·Î±×ÀÎ
1256
´Ù¼¼´ë(ºô¶ó)
¼­¿ïºÏºÎÁö¹æ¹ý¿ø
 °¨Á¤°¡289,000,000 ¿ø
 ÃÖÀú°¡(80%) 231,200,000 ¿ø
 º¸Áõ±Ý(10%) 23,120,000 ¿ø
 Ã»±¸¾×293,000,000 ¿ø
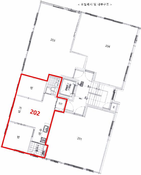
¼­¿ïƯº°½Ã Áß¶û±¸ ¸é¸ñµ¿ 655-2 ¾Æ½ºÆ®·Î 2Ãþ202È£
»ç°Ç¹øÈ£ 2025Ÿ°æ12223
°æ¸ÅÁ¾·ùºÎµ¿»ê°­Á¦°æ¸Å
¸Å°¢´ë»óÅäÁö ¹× °Ç¹°Àϰý ¸Å°¢
¸Å°¢±âÀÏ    2026.05.07(¸ñ) 10:00 ÀÔÂû 31ÀÏÀü    
ÅäÁö¸éÀû20.92§³(6.33 Æò)
°Ç¹°¸éÀû28.45§³(8.61 Æò)
乫/¼ÒÀ¯ÀÚÀÌOO / ÀÌOO
ä±ÇÀÚÁÖOOOOOOO
ÆäÀ̽ººÏ Æ®À§ÅÍ ±¸±Û+
īī¿À½ºÅ丮
īī¿ÀÅå sms¹®ÀÚº¸³»±â
 

±âÀϳ»¿ª

°æ°ú ³¯Â¥ Àú°¨ ÃÖÀú°¡ °á°ú
Á¢¼öÀÏ 2025-03-27 °æ¸ÅÁ¢¼ö
~0ÀÏ 
2025-03-27 °æ¸Å°³½Ã°áÁ¤
~75ÀÏ 
2025-06-10 ¹è´ç¿ä±¸Á¾±âÀÏ
~292ÀÏ 
2026-01-13 100%
289,000,000
À¯Âû
~336ÀÏ 
2026-02-26 80%
231,200,000
º¯°æ
~369ÀÏ 
2026-03-31 100%
289,000,000
À¯Âû
~406ÀÏ 
2026-05-07 80%
231,200,000
ÁøÇà
¹°°Ç¸í¼¼¼­ ÇöȲÁ¶»ç¼­ ¹®°ÇÁ¢¼ö ¼Û´Þ³»¿ª

°¨Á¤Æò°¡ÇöȲ

¸ñ·Ï ÁÖ¼Ò ±¸Á¶/¿ëµµ/´ëÁö±Ç ¸éÀû ºñ°í
´ëÁö±Ç
¸é¸ñµ¿ 655-2 447.3ºÐÀÇ 20.92 20.92 §³
(6.33Æò)
°Ç¹°
¸é¸ñµ¿ 655-2 2Ãþ202È£ ö±ÙÄÜÅ©¸®Æ®±¸Á¶ 28.45 §³
(8.61Æò)
1) À§Ä¡/µµ½ÃÁö¿ª/Â÷·®ÃâÀÔ °¡´É/ÁöÇÏö/³ë¼±¹ö½º Á¤·ùÀå/ö±ÙÄÜÅ©¸®Æ®±¸Á¶ ´õº¸±â
°¨Á¤Æò°¡ ¿äÇ×Ç¥
1)À§Ä¡ ¹× ÁÖÀ§È¯°æ
º»°ÇÀº ¼­¿ïƯº°½Ã Áß¶û±¸ ¸é¸ñµ¿ ȨÇ÷¯½º µ¿Ãø Àαٿ¡ À§Ä¡Çϸç, ÁÖÀ§¿¡´Â ÀúÃþ °øµ¿ÁÖ
ÅÃ, ´Üµ¶ÁÖÅÃ, ¾ÆÆÄÆ®, ¼Ò±Ô¸ð ±Ù¸°»ýȰ½Ã¼³ µîÀÌ ¼ÒÀçÇÔ.
2)±³Åë»óȲ
º»°Ç±îÁö Â÷·®ÃâÀÔ °¡´ÉÇϰí, Àαٿ¡ ÁöÇÏö7È£¼± »ç°¡Á¤¿ª ¹× ³ë¼±¹ö½º Á¤·ùÀåÀÌ ¼ÒÀçÇÔ.
3)°Ç¹°ÀÇ ±¸Á¶
ö±ÙÄÜÅ©¸®Æ®±¸Á¶ ö±ÙÄÜÅ©¸®Æ®(ÆòÁöºØ)À¸·Î

¿Üº® : ¼®ÀçŸÀÏ ºÙÀÓ µî.
³»º® : ÀÎÅ׸®¾î ¸¶°¨Àç, º®Áö µî.
âȣ : P.V.C¼¦½Ã âȣ µî.
¹Ù´Ú : ¸ñÀ繫´Ì ÇÃ¶ó½ºÆ½, ŸÀÏ µî.
4)ÀÌ¿ë»óÅÂ
´Ù¼¼´ëÁÖÅÃÀ¸·Î ÀÌ¿ëÁßÀÓ. <ÈÄ÷ ³»ºÎ±¸Á¶µµ ÂüÁ¶>
5)¼³ºñ³»¿ª
¿¤¸®º£ÀÌÅÍ, ³­¹æ¼³ºñ, À§»ý ¹× ±Þ¹è¼ö¼³ºñ µî °®Ãã.
6)ÅäÁöÀÇ Çü»ó ¹× ÀÌ¿ë»óÅÂ
´ëü·Î À广Çü ÆòÁö·Î ÁÖ°Å¿ë µîÀÇ ºÎÁö·Î ÀÌ¿ëÁßÀÓ.
7)ÀÎÁ¢ µµ·Î»óŵî
³²¼­ÃøÀ¸·Î µµ·Î¿¡ Á¢ÇÔ.
8)ÅäÁöÀÌ¿ë°èȹ ¹× Á¦ÇÑ»óÅÂ
µµ½ÃÁö¿ª, Á¦2Á¾ÀϹÝÁÖÁö¿ª(7ÃþÀÌÇÏ), °¡Ãà»çÀ°Á¦Çѱ¸¿ª(¹®ÀÇ:º¸°ÇÇàÁ¤°ú){°¡ÃàºÐ´¢ÀÇ °ü¸®
¹× À̿뿡 °üÇÑ ¹ý·ü}, ±³À°È¯°æº¸È£±¸¿ª(°üÇÒ±³À°Ã»¿¡È®Àοä¸Á){±³À°È¯°æ º¸È£¿¡ °üÇÑ ¹ý·ü
}, ´ë°ø¹æ¾îÇùÁ¶±¸¿ª(À§Å¹°íµµ:ÇØ¹ß107m(Áö¹Ý+°ÇÃà+¿Ážµî),À°±º¼öµµ¹æÀ§»ç·ÉºÎ(02-524-3146
)°üÇÒ){±º»ç±âÁö ¹× ±º»ç½Ã¼³ º¸È£¹ý}, °ú¹Ð¾ïÁ¦±Ç¿ª{¼öµµ±ÇÁ¤ºñ°èȹ¹ý}, (ÇѰ­)Æó±â¹°¸Å¸³
½Ã¼³ ¼³Ä¡Á¦ÇÑÁö¿ª{ÇѰ­¼ö°è »ó¼ö¿ø¼öÁú°³¼± ¹× ÁÖ¹ÎÁö¿ø µî¿¡ °üÇÑ ¹ý·ü}.
9)°øºÎ¿ÍÀÇ Â÷ÀÌ
¾ø À½.
10)±âŸÂü°í»çÇ×(ÀÓ´ë°ü·Ê ¹× ±âŸ)
ÀÓ´ë°ü°è ¹Ì»ó.
Âü°í
»çÇ×

* °øµ¿ÃâÀÔ¹®ÀÌ Àá°Ü ÀÖ°í, È£ÃâÇÏ¿´À¸³ª ÀÀ´äÀÌ ¾øÀ½. * ¿ìÆíÇÔ¿¡ ¾È³»¹®À» ³Ö¾îµÎ¾úÀ¸³ª ¾Æ¹« ¿¬¶ôÀÌ ¾ø¾î Á¡À¯ÀÚ È®ÀÎ ºÒ´ÉÀÓ.

°ÇÃ๰ÇöȲ

¼ÒÀçÁö ¼­¿ïƯº°½Ã Áß¶û±¸ ¸é¸ñµ¿ 655-2¹øÁö
´ëÁö¸éÀû 447.3§³
(135.55Æò)
¿¬¸éÀû 724.77§³
(219.63Æò)
°ÇÃà¸éÀû 201.05§³
(60.92Æò)
¿ëÀû·ü»êÁ¤
¿¬¸éÀû
712.45§³
(215.89Æò)
°ÇÆóÀ² 44.95% ¿ëÀû·ü 159.28%
Áö»óÃþ¼ö 6Ãþ ÁöÇÏÃþ¼ö 1Ãþ
ÁÖ¿ëµµ °øµ¿ÁÖÅà ±¸Á¶ ö±ÙÄÜÅ©¸®Æ®±¸Á¶
Âø°øÀÏÀÚ 2020.07.31 »ç¿ë½ÂÀÎÀÏÀÚ 2021.01.19
°ÇÃ๰Ãþº°ÇöȲ [º¸±â]


±¹ÅäºÎ½Ç°Å·¡°¡ ¼­¿ïƯº°½Ã Áß¶û±¸ ¸é¸ñµ¿

¡Ü ¸Å¸Å

¸éÀû(§³), ±Ý¾×(¸¸¿ø)

¡Ü Àü¼¼

¸éÀû(§³), ±Ý¾×(¸¸¿ø)

°è¾àÀϰǹ°¸íĪÃþ¿¬¸éÀûº¸Áõ±Ý¿ù¼¼°ÇÃà
26.03.31ºê¸®Æ°ºô¸®Áö343.7718,10002008
26.03.31ºê¸®Æ°ºô¸®Áö343.7718,10002008
26.03.31ºê¸®Æ°ºô¸®Áö343.7718,10002008
26.03.31Á¦ÀÌ·º½ººô529.9823,70002021
26.03.31Çϳª¸Ç¼Ç274.4624,90002002
¢Ñ ´õº¸±â

µî±âºÎµîº» ¿ä¾à(°Ç¹°)

  Á¢¼öÀÏÀÚ µî±â¸ñÀû/±Ç¸®ÀÚ ±Ç¸®±Ý¾× ±âÁØ
1 2021³â3¿ù15ÀÏ
¼ÒÀ¯±Ç
ÀÌOO
¼Ò¸ê
2 2021³â3¿ù15ÀÏ
¾àÁ¤/±ÝÁö»çÇ×/ȯ¸ÅƯ¾à
Àμö
3 2022³â6¿ù9ÀÏ
¾Ð·ù
±¹
¼Ò¸ê±âÁØ
4 2023³â1¿ù20ÀÏ
¾Ð·ù
ÁßOO
¼Ò¸ê
5 2023³â5¿ù30ÀÏ
ÀÓÂ÷±Ç¼³Á¤
ÁöOO
293,000,000 ¼Ò¸ê
6 2023³â7¿ù14ÀÏ
¾Ð·ù
¼­OOOO
¼Ò¸ê
7 2025³â2¿ù17ÀÏ
¾Ð·ù
±¹
¼Ò¸ê
8 2025³â3¿ù27ÀÏ
°­Á¦°æ¸Å
ÁÖOOOO
¼Ò¸ê

ÀÓÂ÷ÀÎÇöȲ (¹è´ç¿ä±¸Á¾±âÀÏ: 2025-06-10)

ÀÓÂ÷ÀÎ ¿ëµµ/Á¡À¯ º¸Áõ±Ý/¿ù¼¼ ´ëÇ×·Â
ÀüÀÔÀÏ/È®Á¤ÀÏ ¹è´ç¿ä±¸ ºñ°í
ÁÖOOOOOOOOOOOO 202È£ 293,000,000
2021³â3¿ù15ÀÏ
2021³â1¿ù29ÀÏ
2025.6.2. 2021³â3¿ù15ÀÏ~
ÁöOO 202È£ 293,000,000
2021³â3¿ù15ÀÏ
2021³â1¿ù29ÀÏ
2021³â3¿ù15ÀÏ~
ºñ°í
(¸Å°¢¹°°Ç
¸í¼¼¼­)
ÁÖÅõµ½Ãº¸Áõ°ø»ç(Áö¿µ¹Ì) : ÀÓÂ÷±ÇÀÚ Áö¿µ¹ÌÀÇ ±Ç¸®½Â°èÀÎÀÓ. Áö¿µ¹Ì : ÁÖÅÃÀÓÂ÷±Çµî±â ¼³Á¤ÀÏÀº 2023³â5¿ù30ÀÏÀÓ.

¿©ÀÇÁÖ°æ¸Å Á¶¾ð ÇÑ ¸¶µð

¼±¼øÀ§ ÀÓÂ÷±Çµî±â°¡ µÇ¾î ÀÖ½À´Ï´Ù
´ëÇ×·ÂÀÌ ÀÖ´Â ¼±¼øÀ§ ÀÓÂ÷±Çµî±â ±Ç¸®ÀÚ°¡ ¹è´çÀ» Àü¾× ¹ÞÁö ¸øÇÒ °æ¿ì ³«ÂûÀÚ°¡ ÀÜ¿© º¸Áõ±ÝÀ» ÀμöÇØ¾ßÇÏ´Â °æ¿ìµµ ÀÖ½À´Ï´Ù.

ÁÖÀÇ»çÇ× (ÃÖ¼±¼øÀ§ ¼³Á¤ÀÏ: 2022³â6¿ù9ÀÏ ¾Ð·ù ¼³Á¤)

¸Å°¢À¸·Î ¼Ò¸êµÇÁö ¾Ê´Â µî±âºÎ±Ç¸®:
¸Å°¢À¸·Î ¼³Á¤µÈ °ÍÀ¸·Î º¸´Â Áö»ó±Ç:
2026.02.25 ä±ÇÀÚ ÁÖOOOOOOO ÀμöÁ¶°Çº¯°æÈ®¾à(´ëÇ×·ÂÆ÷±âÈ®¾à) ¹× ¸Å°¢±âÀϺ¯°æ½Åû Á¦Ãâ
ÁÖÅõµ½Ãº¸Áõ°ø»ç(Áö¿µ¹Ì) : ¹è´ç±Ý¿¡¼­ ÀÓ´ëÂ÷º¸Áõ±Ý Àü¾×À» º¯Á¦¹ÞÁö ¸øÇÏ´õ¶óµµ ¸Å¼öÀο¡ ´ëÇÑ ÀÜÁ¸ ÀÓ´ëÂ÷º¸Áõ±Ý ¹Ýȯû±¸ ±ÇÀ» Æ÷±âÇϰí ÀÓÂ÷±Çµî±â¸¦ ¸»¼ÒÇÏ´Â °Í¿¡ µ¿ÀÇÇÏ´Â È®¾à¼­¸¦ Á¦ÃâÇÔ(2026. 2. 25. Á¢¼ö).
¡Ø¹Ì³³°ü¸®ºñ(°ø¿ë) Àμö¿©ºÎ¸¦ ÀÔÂû Àü¿¡ È®ÀÎÇϽñ⠹ٶø´Ï´Ù

 

Áö¿ªºÐ¼®

ÁöÇÏö¸í Á÷¼±°Å¸®

Çб³¸í ÀüÈ­¹øÈ£ ÁÖ¼Ò Á÷¼±°Å¸®

¹ý¿ø

¼­¿ïºÏºÎÁö¹æ¹ý¿ø (013-22)¼­¿ïƯº°½Ã µµºÀ±¸ ¸¶µé·Î749 (µµºÀ2µ¿ 626)
´ëÇ¥ : 02)910-3114
°üÇÒÁö¿ª : °­ºÏ±¸, ³ë¿ø±¸, µµºÀ±¸, µ¿´ë¹®±¸, ¼ººÏ±¸, Áß¶û±¸

µî±â¼Ò ¼­¿ïºÏºÎÁö¹æ¹ý¿ø º»¿ø µî±â±¹ (´ëÇ¥:1544-0773, ÆÑ½º:(02)2030-2330, ¼­¿ïƯº°½Ã µµºÀ±¸ ³ëÇØ·Î 325 (⵿ 337¹øÁö))
¼¼¹«¼­ Áß¶û ¼¼¹«¼­ (´ëÇ¥:02-2170-02, ÆÑ½º:02-493-7315, ¼­¿ïƯº°½Ã Áß¶û±¸ ¸Á¿ì·Î 176(»óºÀµ¿ 137-1))

Àαٳ«ÂûÅë°è

±â°£ ¸Å°¢°Ç¼ö Æò±Õ°¨Á¤°¡
Æò±Õ¸Å°¢°¡
¸Å°¢°¡À²
Æò±ÕÀ¯Âû¼ö
3°³¿ù 16°Ç 284,081,750¿ø
201,693,842¿ø
70%
3.2ȸ
6°³¿ù 23°Ç 288,926,435¿ø
220,279,392¿ø
75%
3ȸ
12°³¿ù 30°Ç 281,143,600¿ø
224,694,957¿ø
80%
2.5ȸ


º» °æ¸ÅÁ¤º¸´Â ¹ý¿øÀÚ·á¿Í ÀÏÄ¡Çϵµ·Ï ÇÏ¿´À¸³ª ±Ç¸®»çÇ׺¯µ¿, ÀÔ·ÂÂø¿À µîÀÇ ¿øÀÎÀ¸·Î »ç½Ç°ú ´Ù¸¦ ¼ö ÀÖ½À´Ï´Ù. ÀÌ¿ë¾à°ü¿¡ ÀǰЏéÃ¥Á¶°ÇÀ¸·Î Á¦°øµÊÀ» ¾Ë¸®¸ç, °æ¸ÅÀÔÂû½Ã ¹Ýµå½Ã °ü·Ã °øºÎ¸¦ ÀçÈ®ÀÎÇϽñ⠹ٶø´Ï´Ù. º¸´Ù Æí¸®ÇÑ °æ¸ÅÁ¤º¸ Á¦°øÀ» À§ÇØ Áö¼ÓÀûÀ¸·Î °³¼±ÇϰڽÀ´Ï´Ù. ÀÌ¿ëÇØ Áּż­ °¨»çÇÕ´Ï´Ù.