·Î±×ÀÎ
79
¾ÆÆÄÆ®
ÃáõÁö¹æ¹ý¿ø ¿øÁÖÁö¿ø
 °¨Á¤°¡71,000,000 ¿ø
 ÃÖÀú°¡(70%) 49,700,000 ¿ø
 º¸Áõ±Ý(10%) 4,970,000 ¿ø
 Ã»±¸¾×51,568,399 ¿ø
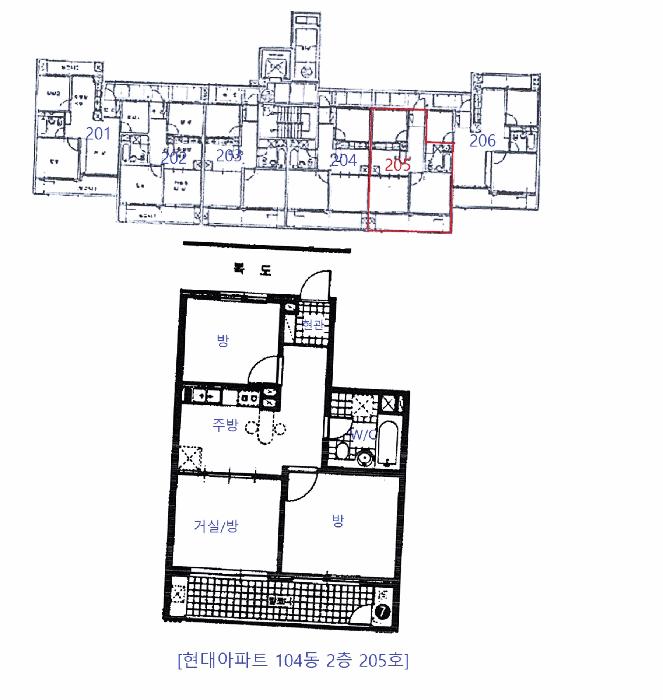
°­¿øÆ¯º°ÀÚÄ¡µµ ¿øÁֽà Èï¾÷¸é ¸ÅÁö¸® 1928 Çö´ë¾ÆÆÄÆ® 104µ¿ 2Ãþ205È£
»ç°Ç¹øÈ£ 2025Ÿ°æ20624
°æ¸ÅÁ¾·ùºÎµ¿»êÀÓÀǰæ¸Å
¸Å°¢´ë»óÅäÁö ¹× °Ç¹°Àϰý ¸Å°¢
¸Å°¢±âÀÏ    2026.02.23(¿ù) 10:00 ÀÔÂû 33ÀÏÀü    
ÅäÁö¸éÀû37.51§³(11.35 Æò)
°Ç¹°¸éÀû51.55§³(15.59 Æò)
乫/¼ÒÀ¯ÀÚÀüOO / ÀüOO
ä±ÇÀÚÇÑOOOOOOO
ÆäÀ̽ººÏ Æ®À§ÅÍ ±¸±Û+
īī¿À½ºÅ丮
īī¿ÀÅå sms¹®ÀÚº¸³»±â
 

±âÀϳ»¿ª

°æ°ú ³¯Â¥ Àú°¨ ÃÖÀú°¡ °á°ú
Á¢¼öÀÏ 2025-05-08 °æ¸ÅÁ¢¼ö
~1ÀÏ 
2025-05-09 °æ¸Å°³½Ã°áÁ¤
~95ÀÏ 
2025-08-11 ¹è´ç¿ä±¸Á¾±âÀÏ
~249ÀÏ 
2026-01-12 100%
71,000,000
À¯Âû
~291ÀÏ 
2026-02-23 70%
49,700,000
ÁøÇà
¹°°Ç¸í¼¼¼­ ÇöȲÁ¶»ç¼­ ¹®°ÇÁ¢¼ö ¼Û´Þ³»¿ª

°¨Á¤Æò°¡ÇöȲ

¸ñ·Ï ÁÖ¼Ò ±¸Á¶/¿ëµµ/´ëÁö±Ç ¸éÀû ºñ°í
´ëÁö±Ç
¸ÅÁö¸® 1928 17079.2ºÐÀÇ 37.505 37.505 §³
(11.35Æò)
°Ç¹°
¸ÅÁö¸® 1928 104µ¿ 2Ãþ205È£ ö±ÙÄÜÅ©¸®Æ®Á¶ 51.545 §³
(15.59Æò)
1) À§Ä¡/ÁÖ°ÅÁö¿ª/Â÷·®ÃâÀÔ °¡´É/¹ö½ºÁ¤·ùÀå/ö±ÙÄÜÅ©¸®Æ®Á¶/½º¶óºêÁöºØ/µµ½Ã°¡½º/°³º°³­¹æ/¹æ2 ´õº¸±â
°¨Á¤Æò°¡ ¿äÇ×Ç¥
1)À§Ä¡ ¹× ÁÖÀ§È¯°æ
°­¿øÆ¯º°ÀÚÄ¡µµ ¿øÁֽà Èï¾÷¸é ¸ÅÁö¸® ¼ÒÀç ""Èï¾÷Àú¼öÁö"" µ¿Ãø Àαٿ¡ À§Ä¡Çϸç, ÁÖÀ§´Â
¾ÆÆÄÆ® ´ÜÁö, °øµ¿ÁÖÅÃ, »ó°¡ÁÖÅÃ, ±Ù¸°»ó°¡ µîÀ¸·Î Çü¼ºµÈ ¾ÆÆÄÆ® ÁÖ°ÅÁö´ëÀÓ.
2)±³Åë»óȲ
º»°Ç±îÁö Á¦¹Ý Â÷·®ÃâÀÔ °¡´ÉÇϸç Àαٿ¡ ¹ö½ºÁ¤·ùÀåÀÌ ¼ÒÀçÇÏ¿© ´ëÁß±³Åë»çÁ¤ º¸ÅëÀÓ.
3)°Ç¹°ÀÇ ±¸Á¶
ö±ÙÄÜÅ©¸®Æ®Á¶ ½º¶óºêÁöºØ 12Ãþ °Ç ³» 2Ãþ 205È£·Î¼­
¿Üº® : ¸ôÅ»À§ ÆäÀÎÆÃ ¸¶°¨.
³»º® : º®Áö µµ¹è ¹× ÀϺΠŸÀÏ ºÙÀÓ.
âȣ : ¾Ë·ç¹Ì´½¼¦½Ã/PVC¼¦½Ã ÀÌÁßâ.
4)ÀÌ¿ë»óÅÂ
¾ÆÆÄÆ®(¹æ2, °Å½Ç/¹æ, ÁÖ¹æ, ¿å½Ç, ¹ßÄÚ´Ï µî)·Î ÀÌ¿ë ÁßÀÓ.
5)¼³ºñ³»¿ª
À§»ý½Ã¼³ ¹× ±Þ¹è¼ö ½Ã¼³ µÇ¾î ÀÖÀ¸¸ç, ¿Á³»¼ÒÈ­Àü µî ¼Ò¹æ¼³ºñ, ½Â°­±â¼³ºñ, µµ½Ã°¡½º¿¡
ÀÇÇÑ °³º°³­¹æ½Ã¼³, Áö»ó ÁÖÂ÷½Ã¼³ µî µÇ¾î ÀÖÀ½.
6)ÅäÁöÀÇ Çü»ó ¹× ÀÌ¿ë»óÅÂ
¼­ÇÏÇ⠿ϰæ»çÀÇ ºÎÁ¤Çü ÅäÁö·Î¼­, ¾ÆÆÄÆ® °ÇºÎÁö·Î ÀÌ¿ë ÁßÀÓ.
7)ÀÎÁ¢ µµ·Î»óŵî
´ÜÁö ³» µµ·Î½Ã¼³ µÇ¾î ÀÖÀ½.
8)ÅäÁöÀÌ¿ë°èȹ ¹× Á¦ÇÑ»óÅÂ
Á¦2Á¾ ÀϹÝÁÖ°ÅÁö¿ª, ¼Ò·Î3·ù(Æø 8m ¹Ì¸¸)(Á¢ÇÔ), Áß·Î3·ù(Æø 12m-15m)(Á¢ÇÔ), ¹èÃâ½Ã¼³
¼³Ä¡ Á¦ÇÑÁö¿ª.
9)°øºÎ¿ÍÀÇ Â÷ÀÌ
¾øÀ½.
10)±âŸÂü°í»çÇ×(ÀÓ´ë°ü·Ê ¹× ±âŸ)
ÀÓ´ë°ü°è ¹Ì»óÀÓ.

°ÇÃ๰ÇöȲ

¼ÒÀçÁö °­¿øÆ¯º°ÀÚÄ¡µµ ¿øÁֽà Èï¾÷¸é ¸ÅÁö¸® 1928¹øÁö
´ëÁö¸éÀû 17143.6§³
(5195.03Æò)
¿¬¸éÀû 3640.8§³
(1103.27Æò)
°ÇÃà¸éÀû 3377.97§³
(1023.63Æò)
¿ëÀû·ü»êÁ¤
¿¬¸éÀû
3640.8§³
(1103.27Æò)
°ÇÆóÀ² 19.7% ¿ëÀû·ü 172.45%
Áö»óÃþ¼ö 9Ãþ ÁöÇÏÃþ¼ö  
ÁÖ¿ëµµ °øµ¿ÁÖÅà ±¸Á¶ ö±ÙÄÜÅ©¸®Æ®±¸Á¶
Âø°øÀÏÀÚ 1994.04.01 »ç¿ë½ÂÀÎÀÏÀÚ 1995.08.16
°ÇÃ๰Ãþº°ÇöȲ [º¸±â]


µî±âºÎµîº» ¿ä¾à(°Ç¹°)

  Á¢¼öÀÏÀÚ µî±â¸ñÀû/±Ç¸®ÀÚ ±Ç¸®±Ý¾× ±âÁØ
1 2019³â1¿ù7ÀÏ
¼ÒÀ¯±Ç
ÀüOO
¼Ò¸ê
2 2019³â1¿ù7ÀÏ
±ÙÀú´ç±Ç
ÇÑOOOO
65,450,000 ¼Ò¸ê±âÁØ
3 2025³â5¿ù9ÀÏ
ÀÓÀǰæ¸Å
ÇÑOOOO
¼Ò¸ê
4 2025³â5¿ù29ÀÏ
°¡¾Ð·ù
³óOOOO
17,692,783 ¼Ò¸ê
5 2025³â6¿ù10ÀÏ
°¡¾Ð·ù
(OOOO
17,218,111 ¼Ò¸ê

ÀÓÂ÷ÀÎÇöȲ (¹è´ç¿ä±¸Á¾±âÀÏ: 2025-08-11)


Á¶»çµÈ ÀÓÂ÷³»¿ªÀÌ ¾ø½À´Ï´Ù


¾ÆÆÄÆ® Á¤º¸ Çö´ë

ÁÖ¼Ò °­¿ø ¿øÁֽà Èï¾÷¸é ¸ÅÁö¸® 1928
½Ã°ø»ç °í·Á»ê¾÷°³¹ß(ÁÖ) ´ÜÁö±Ô¸ð 6°³µ¿ 478°¡±¸(6°³µ¿)¼¼´ë
³­¹æ °³º°/µµ½Ã°¡½º »ç¿ë½ÂÀÎ 2004-03
°ü¸®¼Ò 033)763-9683
Àü¿ë¸éÀû 34~59 ¼¼´ë¼ö 478°¡±¸(6°³µ¿)
´ëÁö±Ç
Çö°ü/±¸Á¶ Æíº¹µµ½Ä / ¹æ, ¿å½Ç
  • Çб³ ¿¬¼¼´ëÇб³
  • ÁÖº¯½Ã¼³ Èï¾÷¸é»ç¹«¼Ò,
  • ´ëÁß±³Åë ¹ö½º-34,31,55,36

¿©ÀÇÁÖ°æ¸Å Á¶¾ð ÇÑ ¸¶µð


ÁÖÀÇ»çÇ× (ÃÖ¼±¼øÀ§ ¼³Á¤ÀÏ: 2019.01.07. ±ÙÀú´ç±Ç ¼³Á¤)

¸Å°¢À¸·Î ¼Ò¸êµÇÁö ¾Ê´Â µî±âºÎ±Ç¸®:
¸Å°¢À¸·Î ¼³Á¤µÈ °ÍÀ¸·Î º¸´Â Áö»ó±Ç:
¡Ø¹Ì³³°ü¸®ºñ(°ø¿ë) Àμö¿©ºÎ¸¦ ÀÔÂû Àü¿¡ È®ÀÎÇϽñ⠹ٶø´Ï´Ù

 

Áö¿ªºÐ¼®

ÁöÇÏö¸í Á÷¼±°Å¸®

Çб³¸í ÀüÈ­¹øÈ£ ÁÖ¼Ò Á÷¼±°Å¸®

¹ý¿ø

ÃáõÁö¹æ¹ý¿ø ¿øÁÖÁö¿ø (264-78)°­¿øµµ ¿øÁֽà ½Ãû·Î149 (¹«½Çµ¿)
´ëÇ¥ : 033)738-1000, ¾ß°£ : 033)738-1199
°üÇÒÁö¿ª : ¿øÁÖ½Ã, Ⱦ¼º±º

µî±â¼Ò ÃáõÁö¹æ¹ý¿ø ¿øÁÖÁö¿ø µî±â°ú (´ëÇ¥:1544-0773, ÆÑ½º:(033)743-5611, °­¿øµµ ¿øÁֽà ½Ãû·Î 149 (¹«½Çµ¿ 1800))
¼¼¹«¼­ ¼¼¹«¼­ (´ëÇ¥:, ÆÑ½º:, )

Àαٳ«ÂûÅë°è

±â°£ ¸Å°¢°Ç¼ö Æò±Õ°¨Á¤°¡
Æò±Õ¸Å°¢°¡
¸Å°¢°¡À²
Æò±ÕÀ¯Âû¼ö
3°³¿ù 42°Ç 206,202,381¿ø
179,335,509¿ø
83%
1.3ȸ
6°³¿ù 84°Ç 192,421,429¿ø
163,661,740¿ø
81%
1.3ȸ
12°³¿ù 117°Ç 212,699,145¿ø
169,974,877¿ø
80%
1.3ȸ


º» °æ¸ÅÁ¤º¸´Â ¹ý¿øÀÚ·á¿Í ÀÏÄ¡Çϵµ·Ï ÇÏ¿´À¸³ª ±Ç¸®»çÇ׺¯µ¿, ÀÔ·ÂÂø¿À µîÀÇ ¿øÀÎÀ¸·Î »ç½Ç°ú ´Ù¸¦ ¼ö ÀÖ½À´Ï´Ù. ÀÌ¿ë¾à°ü¿¡ ÀǰЏéÃ¥Á¶°ÇÀ¸·Î Á¦°øµÊÀ» ¾Ë¸®¸ç, °æ¸ÅÀÔÂû½Ã ¹Ýµå½Ã °ü·Ã °øºÎ¸¦ ÀçÈ®ÀÎÇϽñ⠹ٶø´Ï´Ù. º¸´Ù Æí¸®ÇÑ °æ¸ÅÁ¤º¸ Á¦°øÀ» À§ÇØ Áö¼ÓÀûÀ¸·Î °³¼±ÇϰڽÀ´Ï´Ù. ÀÌ¿ëÇØ Áּż­ °¨»çÇÕ´Ï´Ù.