·Î±×ÀÎ
52
¿ÀÇǽºÅÚ
¼ö¿øÁö¹æ¹ý¿ø ¼º³²Áö¿ø
 °¨Á¤°¡369,512,290 ¿ø
 ÃÖÀú°¡(100%) 369,512,290 ¿ø
 º¸Áõ±Ý(10%) 36,951,229 ¿ø
 Ã»±¸¾×330,750,000 ¿ø
°æ±âµµ ¼º³²½Ã Áß¿ø±¸ ¼º³²µ¿ 3135 Áö¾Ø´À¸ð¶õ 2Ãþ 201È£
»ç°Ç¹øÈ£ 2025Ÿ°æ51770
°æ¸ÅÁ¾·ùºÎµ¿»ê°­Á¦°æ¸Å
¸Å°¢´ë»óÅäÁö ¹× °Ç¹°Àϰý ¸Å°¢
¸Å°¢±âÀÏ    2026.01.12(¿ù) 10:00 ÀÔÂû 1ÀÏÀü    
ÅäÁö¸éÀû9.12§³(2.76 Æò)
°Ç¹°¸éÀû50.89§³(15.39 Æò)
乫/¼ÒÀ¯ÀÚ¸Á OOOO OOOOOOO OOO / ¸Á OOOO OOOOOOO OOO
ä±ÇÀÚÁ¤OO
ÆäÀ̽ººÏ Æ®À§ÅÍ ±¸±Û+
īī¿À½ºÅ丮
īī¿ÀÅå sms¹®ÀÚº¸³»±â
 

±âÀϳ»¿ª

°æ°ú ³¯Â¥ Àú°¨ ÃÖÀú°¡ °á°ú
Á¢¼öÀÏ 2025-03-11 °æ¸ÅÁ¢¼ö
~8ÀÏ 
2025-03-19 °æ¸Å°³½Ã°áÁ¤
~71ÀÏ 
2025-05-21 ¹è´ç¿ä±¸Á¾±âÀÏ
~307ÀÏ 
2026-01-12 100%
369,512,290
ÁøÇà
¹°°Ç¸í¼¼¼­ ÇöȲÁ¶»ç¼­ ¹®°ÇÁ¢¼ö ¼Û´Þ³»¿ª

°¨Á¤Æò°¡ÇöȲ

¸ñ·Ï ÁÖ¼Ò ±¸Á¶/¿ëµµ/´ëÁö±Ç ¸éÀû ºñ°í
´ëÁö±Ç
¼º³²µ¿ 3135 1028.4ºÐÀÇ 9.12 9.12 §³
(2.76Æò)
°Ç¹°
¼º³²µ¿ 3135 2Ãþ 201È£ ö±ÙÄÜÅ©¸®Æ®º®½Ä±¸Á¶ 50.89 §³
(15.39Æò)
1) À§Ä¡/µµ½ÃÁö¿ª/ÀϹݻó¾÷Áö¿ª/ÁöÇÏö/ÁöÇÏÁÖÂ÷Àå/°£¼±µµ·Î/³ë¼±¹ö½º Á¤·ùÀå/ö±ÙÄÜÅ©¸®Æ®Á¶/µµ½Ã°¡½º/°³º°³­¹æ ´õº¸±â
°¨Á¤Æò°¡ ¿äÇ×Ç¥
1)À§Ä¡ ¹× ÁÖÀ§È¯°æ
°æ±âµµ ¼º³²½Ã Áß¿ø±¸ ¼º³²µ¿ ¼ÒÀç ""¼º³²Á¾ÇտÀå"" ºÏ¼­Ãø Àαٿ¡ À§Ä¡Çϸç, ÁÖÀ§¿¡´Â
¾÷¹«½Ã¼³, ¿ÀÇǽºÅÚ, Á¦¹Ý ±Ù¸°»ýȰ½Ã¼³ µîÀÌ ¼ÒÀçÇÏ¿© ÀÖÀ½.
2)±³Åë»óȲ
º»°Ç±îÁö Â÷·®Á¢±Ù °¡´ÉÇϸç, Àαٿ¡ ³ë¼±¹ö½º Á¤·ùÀå ¹× ÁöÇÏö¿ª ""¸ð¶õ¿ª""ÀÌ ¼ÒÀçÇÏ¿©
Á¦¹Ý ´ëÁß±³Åë¿©°ÇÀº ¾çÈ£ÇÔ.
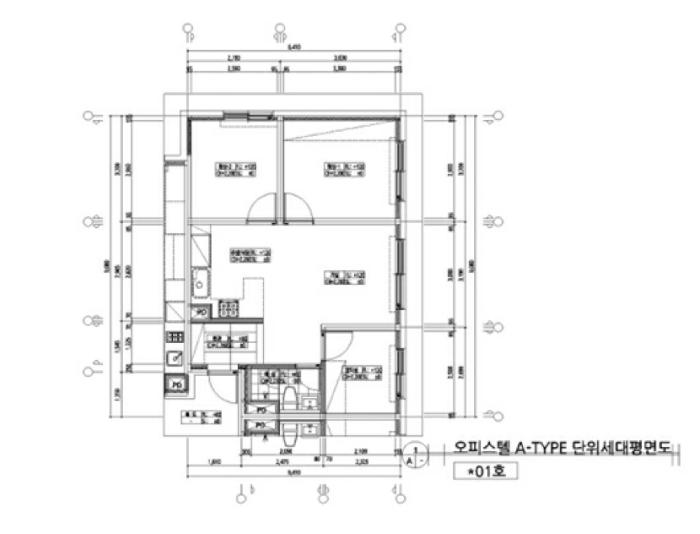
3)°Ç¹°ÀÇ ±¸Á¶
ö±ÙÄÜÅ©¸®Æ®Á¶ (ö±Ù)ÄÜÅ©¸®Æ®ÁöºØ 14Ãþ Áß 2Ãþ 201È£·Î¼­,
¿Üº® : ¿ÜÀå¼® µî ¸¶°¨
³»º® : º®Áö, ÀϺΠŸÀÏ ¸¶°¨ µî
âȣ : PVC âȣÀÓ
4)ÀÌ¿ë»óÅÂ
¿ÀÇǽºÅÚ·Î ÀÌ¿ë ÁßÀÓ
5)¼³ºñ³»¿ª
À§»ý ¹× ±Þ¹è¼ö ¼³ºñ, °³º°³­¹æ¼³ºñ, µµ½Ã°¡½º, ½Â°­±â, ÁöÇÏÁÖÂ÷Àå µîÀÓ.
6)ÅäÁöÀÇ Çü»ó ¹× ÀÌ¿ë»óÅÂ
»ç´Ù¸® À¯»çÇü ÅäÁö·Î¼­ ¾÷¹«½Ã¼³, ±Ù¸°»ýȰ½Ã¼³ ¹× °øµ¿ÁÖÅÃÀÇ °ÇºÎÁö·Î ÀÌ¿ë ÁßÀÓ
7)ÀÎÁ¢ µµ·Î»óŵî
º»°Ç ºÏÃøÀ¸·Î ¾à 50¹ÌÅÍ, ³²ÃøÀ¸·Î ¾à 20¹ÌÅÍ ÆøÀÇ Æ÷Àåµµ·Î¿¡ Á¢ÇÔ.
8)ÅäÁöÀÌ¿ë°èȹ ¹× Á¦ÇÑ»óÅÂ
µµ½ÃÁö¿ª, ÀϹݻó¾÷Áö¿ª, ¹æÈ­Áö±¸, ½Ã°¡Áö°æ°üÁö±¸, ±¤·Î2·ù(Æø 50m~70m)(ÁÖ°£¼±µµ·Î)(Á¢ÇÕ), Áß·Î1·ù(Æø 20m~25m)(º¸Á¶°£¼±µµ·Î)(Á¢ÇÕ) °¡Ãà»çÀ°Á¦Çѱ¸¿ª<°¡ÃàºÐ´¢ÀÇ °ü¸® ¹× À̿뿡 °üÇÑ ¹ý·ü>, »ó´ëº¸È£±¸¿ª(2020-06-02)<±³À°È¯°æ º¸È£¿¡ °üÇÑ ¹ý·ü>, »ó´ëº¸È£±¸¿ª(2020-06-10)<±³À°È¯°æ º¸È£¿¡ °üÇÑ ¹ý·ü>, ºñÇà¾ÈÀüÁ¦5±¸¿ª(Àü¼ú)(ºñÇà¾ÈÀüÁ¦5±¸¿ª)<±º»ç±âÁö ¹× ±º»ç½Ã¼³ º¸È£¹ý>, ´ë±âȯ°æ±ÔÁ¦Áö¿ª<´ë±âȯ°æº¸Àü¹ý>, µµ½Ã±³ÅëÁ¤ºñÁö¿ª<µµ½Ã±³ÅëÁ¤ºñÃËÁø¹ý>, °ú¹Ð¾ïÁ¦±Ç¿ª<¼öµµ±ÇÁ¤ºñ°èȹ¹ý>
9)°øºÎ¿ÍÀÇ Â÷ÀÌ
ÇØ´ç»çÇ× ¾øÀ½.
10)±âŸÂü°í»çÇ×(ÀÓ´ë°ü·Ê ¹× ±âŸ)
ÀÓ´ë°ü°è´Â ¹Ì»óÀÓ.

°ÇÃ๰ÇöȲ

¼ÒÀçÁö °æ±âµµ ¼º³²½Ã Áß¿ø±¸ ¼º³²µ¿ 3135¹øÁö
´ëÁö¸éÀû 1028.4§³
(311.64Æò)
¿¬¸éÀû 14277.36§³
(4326.47Æò)
°ÇÃà¸éÀû 788.75§³
(239.02Æò)
¿ëÀû·ü»êÁ¤
¿¬¸éÀû
8226.72§³
(2492.95Æò)
°ÇÆóÀ² 76.7% ¿ëÀû·ü 799.95%
Áö»óÃþ¼ö 14Ãþ ÁöÇÏÃþ¼ö 7Ãþ
ÁÖ¿ëµµ ¾÷¹«½Ã¼³ ±¸Á¶ ö±ÙÄÜÅ©¸®Æ®±¸Á¶
Âø°øÀÏÀÚ 2017.10.23 »ç¿ë½ÂÀÎÀÏÀÚ 2020.04.28
°ÇÃ๰Ãþº°ÇöȲ [º¸±â]



ÀÓÂ÷ÀÎÇöȲ (¹è´ç¿ä±¸Á¾±âÀÏ: 2025-05-21)

ÀÓÂ÷ÀÎ ¿ëµµ/Á¡À¯ º¸Áõ±Ý/¿ù¼¼ ´ëÇ×·Â
ÀüÀÔÀÏ/È®Á¤ÀÏ ¹è´ç¿ä±¸ ºñ°í
³óOOOOOOO 201È£ 330,750,000
2020.08.10.
2020.07.16.
2025.4.10. 2020.08.21.ºÎÅÍ
Á¤OO 201È£ 330,750,000
2020.08.10.
2020.07.16.
2025.3.11. 2020.08.21.ºÎÅÍ
ºñ°í
(¸Å°¢¹°°Ç
¸í¼¼¼­)
³óÇùÀºÇà ÁÖ½Äȸ»ç:ÀÓÂ÷ÀÎ ÀåÈ£»ïÀÇ Àü¼¼(ÀÓÂ÷)º¸Áõ±Ý¹Ýȯä±ÇÀÇ Áú±ÇÀڷμ­ Áú±Ç¼³Á¤±Ý¾×Àº 288,000,000¿øÀ̸ç, Áú±Ç¼³Á¤ÀÏÀº 2020.07.28.ÀÓ Á¤¹®¼ö:-°æ¸Å½Åûä±ÇÀÚ·Î ¹è´ç¿ä±¸ÀÏÀÚ´Â °æ¸Å½ÅûÀÏÀÓ. º¸Áõ±Ý 330,750,000¿ø Áß 15,750,000¿øÀº 2022.08.11.¿¡ Áõ¾×µÇ¾úÀ¸ ¸ç, Áõ¾×ºÐ¿¡ ´ëÇÑ È®Á¤ÀÏÀÚ´Â 2022.8.12.ÀÓ

¿©ÀÇÁÖ°æ¸Å Á¶¾ð ÇÑ ¸¶µð


ÁÖÀÇ»çÇ× (ÃÖ¼±¼øÀ§ ¼³Á¤ÀÏ: 2023.11.20. °¡¾Ð·ù ¼³Á¤)

¸Å°¢À¸·Î ¼Ò¸êµÇÁö ¾Ê´Â µî±âºÎ±Ç¸®:
¸Å°¢À¸·Î ¼³Á¤µÈ °ÍÀ¸·Î º¸´Â Áö»ó±Ç:
¡Ø¹Ì³³°ü¸®ºñ(°ø¿ë) Àμö¿©ºÎ¸¦ ÀÔÂû Àü¿¡ È®ÀÎÇϽñ⠹ٶø´Ï´Ù

 

Áö¿ªºÐ¼®

ÁöÇÏö¸í Á÷¼±°Å¸®

Çб³¸í ÀüÈ­¹øÈ£ ÁÖ¼Ò Á÷¼±°Å¸®

¹ý¿ø

¼ö¿øÁö¹æ¹ý¿ø ¼º³²Áö¿ø (131-43)°æ±âµµ ¼º³²½Ã ¼öÁ¤±¸ »ê¼º´ë·Î 451 (´Ü´ëµ¿)
´ëÇ¥ : 031)737-1558, ¾ß°£ : 031)737-1120
°üÇÒÁö¿ª : ¼º³²½Ã, ±¤ÁÖ½Ã, Çϳ²½Ã

µî±â¼Ò ¼ö¿øÁö¹æ¹ý¿ø ¼º³²Áö¿ø µî±â°ú (´ëÇ¥:1544-0773, ÆÑ½º:(031)741-2913, °æ±âµµ ¼º³²½Ã ¼öÁ¤±¸ »ê¼º´ë·Î 451 (´Ü´ëµ¿ 75))
¼¼¹«¼­ ¼º³²¼¼¹«¼­ (´ëÇ¥:031-730-62, ÆÑ½º:031-736-1904, °æ±âµµ ¼º³²½Ã ¼öÁ¤±¸ Èñ¸Á·Î 480 (´Ü´ëµ¿))

Àαٳ«ÂûÅë°è

±â°£ ¸Å°¢°Ç¼ö Æò±Õ°¨Á¤°¡
Æò±Õ¸Å°¢°¡
¸Å°¢°¡À²
Æò±ÕÀ¯Âû¼ö
3°³¿ù 1°Ç 379,000,000¿ø
307,000,000¿ø
81%
1ȸ
6°³¿ù 7°Ç 393,371,429¿ø
274,798,229¿ø
78%
2ȸ
12°³¿ù 13°Ç 355,200,000¿ø
260,769,046¿ø
77%
1.6ȸ


º» °æ¸ÅÁ¤º¸´Â ¹ý¿øÀÚ·á¿Í ÀÏÄ¡Çϵµ·Ï ÇÏ¿´À¸³ª ±Ç¸®»çÇ׺¯µ¿, ÀÔ·ÂÂø¿À µîÀÇ ¿øÀÎÀ¸·Î »ç½Ç°ú ´Ù¸¦ ¼ö ÀÖ½À´Ï´Ù. ÀÌ¿ë¾à°ü¿¡ ÀǰЏéÃ¥Á¶°ÇÀ¸·Î Á¦°øµÊÀ» ¾Ë¸®¸ç, °æ¸ÅÀÔÂû½Ã ¹Ýµå½Ã °ü·Ã °øºÎ¸¦ ÀçÈ®ÀÎÇϽñ⠹ٶø´Ï´Ù. º¸´Ù Æí¸®ÇÑ °æ¸ÅÁ¤º¸ Á¦°øÀ» À§ÇØ Áö¼ÓÀûÀ¸·Î °³¼±ÇϰڽÀ´Ï´Ù. ÀÌ¿ëÇØ Áּż­ °¨»çÇÕ´Ï´Ù.