·Î±×ÀÎ
10
´Ù¼¼´ë(ºô¶ó)
ÀÎõÁö¹æ¹ý¿ø
 °¨Á¤°¡211,000,000 ¿ø
 ÃÖÀú°¡(100%) 211,000,000 ¿ø
 º¸Áõ±Ý(10%) 21,100,000 ¿ø
 Ã»±¸¾×215,000,000 ¿ø
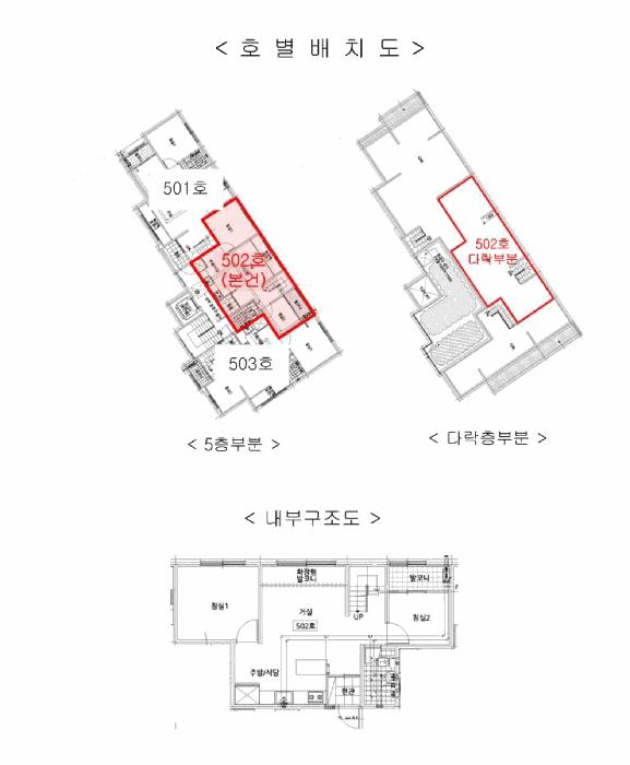
ÀÎõ±¤¿ª½Ã ¼­±¸ ´çÇϵ¿ 1087-14 ÆÄÅ©ºä °¡µ¿ 5Ãþ502È£
»ç°Ç¹øÈ£ 2025Ÿ°æ512731
°æ¸ÅÁ¾·ùºÎµ¿»ê°­Á¦°æ¸Å
¸Å°¢´ë»óÅäÁö ¹× °Ç¹°Àϰý ¸Å°¢
¸Å°¢±âÀÏ    2026.01.07(¼ö) 10:00 ÀÔÂû 13ÀÏÀü    
ÅäÁö¸éÀû33.84§³(10.24 Æò)
°Ç¹°¸éÀû46.18§³(13.97 Æò)
乫/¼ÒÀ¯ÀÚÃÖOO / ÃÖOO
ä±ÇÀÚÁÖOOOOOOO
ÆäÀ̽ººÏ Æ®À§ÅÍ ±¸±Û+
īī¿À½ºÅ丮
īī¿ÀÅå sms¹®ÀÚº¸³»±â
 

±âÀϳ»¿ª

°æ°ú ³¯Â¥ Àú°¨ ÃÖÀú°¡ °á°ú
Á¢¼öÀÏ 2025-09-24 °æ¸ÅÁ¢¼ö
~2ÀÏ 
2025-09-26 °æ¸Å°³½Ã°áÁ¤
~68ÀÏ 
2025-12-01 ¹è´ç¿ä±¸Á¾±âÀÏ
~105ÀÏ 
2026-01-07 100%
211,000,000
ÁøÇà
¹°°Ç¸í¼¼¼­ ÇöȲÁ¶»ç¼­ ¹®°ÇÁ¢¼ö ¼Û´Þ³»¿ª

°¨Á¤Æò°¡ÇöȲ

¸ñ·Ï ÁÖ¼Ò ±¸Á¶/¿ëµµ/´ëÁö±Ç ¸éÀû ºñ°í
´ëÁö±Ç
´çÇϵ¿ 1087-14 835.2ºÐÀÇ 33.836 33.836 §³
(10.24Æò)
°Ç¹°
´çÇϵ¿ 1087-14 °¡µ¿ 5Ãþ502È£ ö±ÙÄÜÅ©¸®Æ®Á¶ 46.18 §³
(13.97Æò)
1) À§Ä¡/Á¦2Á¾ÀϹÝÁÖ°ÅÁö¿ª/Áö±¸´ÜÀ§°èȹ±¸¿ª/ÅäÁö°Å·¡Çã°¡±¸¿ª/Â÷·®ÃâÀÔ °¡´É/¹ö½ºÁ¤·ùÀå/ö±ÙÄÜÅ©¸®Æ®±¸Á¶ ´õº¸±â
°¨Á¤Æò°¡ ¿äÇ×Ç¥
1)À§Ä¡ ¹× ÁÖÀ§È¯°æ
º»°ÇÀº ÀÎõ±¤¿ª½Ã ¼­±¸ ´çÇϵ¿¼ÒÀç "¹®°î°íµîÇб³" ³²µ¿Ãø ¾à100¹ÌÅÍ ÁöÁ¡¿¡ À§Ä¡Çϸç ÁÖÀ§ ÀÏ´ë´Â µ¿·ùÇüÀÇ °øµ¿ÁÖÅÃ, ¾ÆÆÄÆ®¹× ±Ù¸°»ýȰ½Ã¼³ µîÀÌ ¼ÒÀçÇÔ.
2)±³Åë»óȲ
º»°Ç±îÁö Â÷·®ÃâÀÔ °¡´ÉÇϰí, Àαٿ¡ ¹ö½ºÁ¤·ùÀåÀÌ ¼ÒÀçÇÏ¿© Á¦¹Ý ±³Åë»óȲÀº ¹«³­ÇÔ.
3)°Ç¹°ÀÇ ±¸Á¶
ö±ÙÄÜÅ©¸®Æ®±¸Á¶ °æ»ç½½¶óºêÁöºØ 5Ãþ °Ç³»ÀÇ 5Ãþ 502È£·Î¼­, ¿Üº® : Ä¡À庮µ¹ µî¸¶°¨. ³»º® : º®Áö ¹× ÀϺΟÀÏ ¸¶°¨. âȣ : ÇÏÀÌ»õ½Ã âȣ µîÀÓ.
4)ÀÌ¿ë»óÅÂ
µµ½ÃÇü»ýȰÁÖÅÃ(´ÜÁöÇü´Ù¼¼´ëÁÖÅÃ)À¸·Î ÀÌ¿ëÁßÀÓ.
5)¼³ºñ³»¿ª
±Þ.¹è¼ö ¹× À§»ý¼³ºñ, ½Â°­±â¼³ºñ, ³­¹æ¼³ºñµîÀÌ µÇ¾î ÀÖÀ½.
6)ÅäÁöÀÇ Çü»ó ¹× ÀÌ¿ë»óÅÂ
´ëü·Î »ç´Ù¸®ÇüÀÇ ÅäÁö·Î¼­ ´Ù¼¼´ëÁÖÅà °ÇºÎÁö·Î ÀÌ¿ëÁßÀÓ.
7)ÀÎÁ¢ µµ·Î»óŵî
º»°Ç ºÏµ¿ÃøÀ¸·Î ¾à6¹ÌÅÍÀÇ ¸·´Ù¸¥ µµ·Î¿¡ Á¢ÇÔ.
8)ÅäÁöÀÌ¿ë°èȹ ¹× Á¦ÇÑ»óÅÂ
Á¦2Á¾ÀϹÝÁÖ°ÅÁö¿ª(2012-05-31), Áö±¸´ÜÀ§°èȹ±¸¿ª(µµ½Ã°ü¸®°èȹ ÀÔ¾ÈÁßÀÎÁö¿ª (´çÇÏÁö±¸´ÜÀ§°èȹ±¸¿ª)), ¼Ò·Î2·ù(Æø8m~10m)(Á¢ÇÕ), °¡Ãà»çÀ°Á¦Çѱ¸¿ª(2025-05-20), »ó´ëº¸È£±¸¿ª(2025-03-10), »ó´ëº¸È£±¸¿ª, ¼ºÀå°ü¸®±Ç¿ª,ÅäÁö°Å·¡°è¾à¿¡°üÇÑ Çã°¡±¸¿ª(ÅäÁö°Å·¡Çã°¡±¸¿ª(¿Ü±¹ÀÎ µîÀÇ ÁÖÅÿ뵵 Ãëµæ¿¡ ÇÑÇÔ).
9)°øºÎ¿ÍÀÇ Â÷ÀÌ
¾ø À½.
10)±âŸÂü°í»çÇ×(ÀÓ´ë°ü·Ê ¹× ±âŸ)
ÀÓ´ë°ü°è´Â ¹Ì»óÀÓ.
Âü°í
»çÇ×
- ¡®µµ½ÃÇü»ýȰÁÖÅÃ(´ÜÁöÇü´Ù¼¼´ëÁÖÅÃ)¡¯À¸·Î ÀÌ¿ë ÁßÀÓ.
º»°Ç ºÎµ¿»êÀº ÁÖ¼ÒÁöÀÇ 5Ãþ °øµ¿ÁÖÅÃÀÓ. ´Ù¼¼´ëÁÖÅÃÀÓ.

°ÇÃ๰ÇöȲ

¼ÒÀçÁö ÀÎõ±¤¿ª½Ã ¼­±¸ ´çÇϵ¿ 1087-14¹øÁö
´ëÁö¸éÀû   ¿¬¸éÀû 659.67§³
(199.9Æò)
°ÇÃà¸éÀû 226.16§³
(68.53Æò)
¿ëÀû·ü»êÁ¤
¿¬¸éÀû
659.67§³
(199.9Æò)
°ÇÆóÀ²   ¿ëÀû·ü  
Áö»óÃþ¼ö 5Ãþ ÁöÇÏÃþ¼ö  
ÁÖ¿ëµµ °øµ¿ÁÖÅà ±¸Á¶ ö±ÙÄÜÅ©¸®Æ®±¸Á¶
Âø°øÀÏÀÚ 2015.07.06 »ç¿ë½ÂÀÎÀÏÀÚ 2016.01.05
°ÇÃ๰Ãþº°ÇöȲ [º¸±â]


±¹ÅäºÎ½Ç°Å·¡°¡ ÀÎõ±¤¿ª½Ã ¼­±¸ ´çÇϵ¿

¡Ü ¸Å¸Å

¸éÀû(§³), ±Ý¾×(¸¸¿ø)

¡Ü Àü¼¼

¸éÀû(§³), ±Ý¾×(¸¸¿ø)

°è¾àÀϰǹ°¸íĪÃþ¿¬¸éÀû´ëÁö±Ý¾×°ÇÃà
24.03.28¹é»ê¾Æ¸£ºô3Â÷357.6933.831214,4002011
24.03.26¼¼ÁßÈúŸ¿îÇϿ콺277.2254.237515,3002008
24.03.26µðÀÚÀΟ¿î101µ¿,102µ¿558.3729.13122,5002015
24.03.25¸ðµå´Ï¿¡²Þ(A,Bµ¿)537.8828.888818,0002012
24.03.21»ïÀÍij½½6Â÷256.4432.967412,8002011
¢Ñ ´õº¸±â

µî±âºÎµîº» ¿ä¾à(°Ç¹°)

  Á¢¼öÀÏÀÚ µî±â¸ñÀû/±Ç¸®ÀÚ ±Ç¸®±Ý¾× ±âÁØ
1 2021³â11¿ù4ÀÏ
¼ÒÀ¯±Ç
ÃÖOO
¼Ò¸ê
2 2022³â2¿ù15ÀÏ
°¡¾Ð·ù
(OOOO
9,364,643 ¼Ò¸ê±âÁØ
3 2022³â3¿ù30ÀÏ
°¡¾Ð·ù
¼­OOOO
8,461,704 ¼Ò¸ê
4 2023³â2¿ù10ÀÏ
¾Ð·ù
±¹OOOO
¼Ò¸ê
5 2023³â11¿ù22ÀÏ
ÀÓÂ÷±Ç¼³Á¤
±èOO
215,000,000 ¼Ò¸ê
6 2024³â3¿ù25ÀÏ
°¡¾Ð·ù
ÁÖOOOO
20,000,000 ¼Ò¸ê
7 2025³â7¿ù24ÀÏ
¾Ð·ù
ºÎOO
¼Ò¸ê
8 2025³â9¿ù26ÀÏ
°­Á¦°æ¸Å
ÁÖOOOO
¼Ò¸ê

ÀÓÂ÷ÀÎÇöȲ (¹è´ç¿ä±¸Á¾±âÀÏ: 2025-12-01)



¸Å°¢±âÀÏ 7ÀÏÀü¿¡ ¸Å°¢¹°°Ç¸í¼¼¼­°¡ °ø°íµÇ¿À´Ï È®ÀÎÇϽñ⠹ٶø´Ï´Ù.

ÀÓÂ÷ÀÎ ¿ëµµ/Á¡À¯ º¸Áõ±Ý/¿ù¼¼ ´ëÇ×·Â
ÀüÀÔÀÏ/È®Á¤ÀÏ ¹è´ç¿ä±¸ ºñ°í
±èOO 215,000,000
O
2021. 10. 26.
2021. 9. 14.
2021. 10. 25.~
ÁÖOOOOOOOOOOOOOOO ÀüºÎ 215,000,000
O
2021. 10. 26.
2021. 9. 14.
2025. 11. 24. 2021. 10. 25.~2024. 1. 19.
ºñ°í
(¸Å°¢¹°°Ç
¸í¼¼¼­)
- ±è¿¹Áö: ÁÖÅÃÀÓÂ÷±Çµî±â±ÇÀڷμ­ ÁÖÅÃÀÓÂ÷±Çµî±âÀÏÀº 2023. 11. 22. ÀÓ - ÁÖÅõµ½Ãº¸Áõ°ø»ç(ÀÓÂ÷ÀÎ ±è¿¹Áö): °æ¸Å½Åû±ÇÀÚÀ̸ç ÁÖÅÃÀÓ´ëÂ÷º¸È£¹ý Á¦3Á¶ÀÇ2 Á¦7Ç× Á¦9È£ÀÇ ±â°üÀ¸·Î ÀÓÂ÷ÀÎ ±è¿¹Áö·Î

¿©ÀÇÁÖ°æ¸Å Á¶¾ð ÇÑ ¸¶µð

¼±¼øÀ§ ÀÓÂ÷±Çµî±â°¡ µÇ¾î ÀÖ½À´Ï´Ù
´ëÇ×·ÂÀÌ ÀÖ´Â ¼±¼øÀ§ ÀÓÂ÷±Çµî±â ±Ç¸®ÀÚ°¡ ¹è´çÀ» Àü¾× ¹ÞÁö ¸øÇÒ °æ¿ì ³«ÂûÀÚ°¡ ÀÜ¿© º¸Áõ±ÝÀ» ÀμöÇØ¾ßÇÏ´Â °æ¿ìµµ ÀÖ½À´Ï´Ù.

ÁÖÀÇ»çÇ× (ÃÖ¼±¼øÀ§ ¼³Á¤ÀÏ: 2022. 2. 15. °¡¾Ð·ù ¼³Á¤)

¸Å°¢À¸·Î ¼Ò¸êµÇÁö ¾Ê´Â µî±âºÎ±Ç¸®: À»±¸ ¼øÀ§ 5¹ø ÁÖÅÃÀÓÂ÷±Çµî±â(´Ù¸¸ ÁÖÅõµ½Ãº¸Áõ°ø»çÀÇ ¸»¼Òµ¿ÀÇ È®¾à¼­°¡ Á¦ÃâµÊ)
¸Å°¢À¸·Î ¼³Á¤µÈ °ÍÀ¸·Î º¸´Â Áö»ó±Ç:
- ¡®µµ½ÃÇü»ýȰÁÖÅÃ(´ÜÁöÇü´Ù¼¼´ëÁÖÅÃ)¡¯À¸·Î ÀÌ¿ë ÁßÀÓ.
¡Ø¹Ì³³°ü¸®ºñ(°ø¿ë) Àμö¿©ºÎ¸¦ ÀÔÂû Àü¿¡ È®ÀÎÇϽñ⠹ٶø´Ï´Ù

 

Áö¿ªºÐ¼®

ÁöÇÏö¸í Á÷¼±°Å¸®

Çб³¸í ÀüÈ­¹øÈ£ ÁÖ¼Ò Á÷¼±°Å¸®

¹ý¿ø

ÀÎõÁö¹æ¹ý¿ø (222-20)ÀÎõ±¤¿ª½Ã ¹ÌÃßȦ±¸ ¼Ò¼º·Î 163¹ø±æ 17(ÇÐÀ͵¿)
´ëÇ¥ : 032)860-1113~4
°üÇÒÁö¿ª : Áß±¸, µ¿±¸, ³²±¸, ¿¬¼ö±¸, ³²µ¿±¸, ºÎÆò±¸, °è¾ç±¸, ¼­±¸, ¿ËÁø±º, °­È­±º

µî±â¼Ò ÀÎõÁö¹æ¹ý¿ø º»¿ø µî±â±¹ (´ëÇ¥:1544-0773, ÆÑ½º:(032)620-9099, ÀÎõ±¤¿ª½Ã ¹ÌÃßȦ±¸ °æ¿ø´ë·Î 881(Á־ȵ¿ 983))
¼¼¹«¼­ ¼­ÀÎõ¼¼¹«¼­ (´ëÇ¥:032-560-52, ÆÑ½º:032-561-5777, ÀÎõ±¤¿ª½Ã ¼­±¸ ¼­°ù·Î369¹ø±æ 17 (¿¬Èñµ¿))

Àαٳ«ÂûÅë°è

±â°£ ¸Å°¢°Ç¼ö Æò±Õ°¨Á¤°¡
Æò±Õ¸Å°¢°¡
¸Å°¢°¡À²
Æò±ÕÀ¯Âû¼ö
3°³¿ù 26°Ç 528,534,831¿ø
228,152,614¿ø
63%
1.9ȸ
6°³¿ù 45°Ç 461,109,448¿ø
223,482,116¿ø
64%
2ȸ
12°³¿ù 54°Ç 916,997,719¿ø
520,303,026¿ø
61%
2.2ȸ


º» °æ¸ÅÁ¤º¸´Â ¹ý¿øÀÚ·á¿Í ÀÏÄ¡Çϵµ·Ï ÇÏ¿´À¸³ª ±Ç¸®»çÇ׺¯µ¿, ÀÔ·ÂÂø¿À µîÀÇ ¿øÀÎÀ¸·Î »ç½Ç°ú ´Ù¸¦ ¼ö ÀÖ½À´Ï´Ù. ÀÌ¿ë¾à°ü¿¡ ÀǰЏéÃ¥Á¶°ÇÀ¸·Î Á¦°øµÊÀ» ¾Ë¸®¸ç, °æ¸ÅÀÔÂû½Ã ¹Ýµå½Ã °ü·Ã °øºÎ¸¦ ÀçÈ®ÀÎÇϽñ⠹ٶø´Ï´Ù. º¸´Ù Æí¸®ÇÑ °æ¸ÅÁ¤º¸ Á¦°øÀ» À§ÇØ Áö¼ÓÀûÀ¸·Î °³¼±ÇϰڽÀ´Ï´Ù. ÀÌ¿ëÇØ Áּż­ °¨»çÇÕ´Ï´Ù.