·Î±×ÀÎ
1137
´Ù¼¼´ë(ºô¶ó)
±¤ÁÖÁö¹æ¹ý¿ø
 °¨Á¤°¡302,000,000 ¿ø
 ÃÖÀú°¡(56%) 169,120,000 ¿ø
 º¸Áõ±Ý(10%) 16,912,000 ¿ø
 Ã»±¸¾×1,473,131,146 ¿ø
±¤ÁÖ±¤¿ª½Ã ³²±¸ »çµ¿ 135-2 °¡µ¿ 3Ãþ303È£
»ç°Ç¹øÈ£ 2025Ÿ°æ32745
Áߺ¹»ç°ÇÁߺ¹ 2025Ÿ°æ33415,
°æ¸ÅÁ¾·ùºÎµ¿»êÀÓÀǰæ¸Å
¸Å°¢´ë»óÅäÁö ¹× °Ç¹°Àϰý ¸Å°¢
¸Å°¢±âÀÏ    2026.04.01(¼ö) 10:00 ÀÔÂû 27ÀÏÀü    
ÅäÁö¸éÀû153.92§³(46.56 Æò)
°Ç¹°¸éÀû115.91§³(35.06 Æò)
乫/¼ÒÀ¯ÀÚ½ÅOOOO OOOO / ±èOO
ä±ÇÀÚÁÖOOO OOOOOO¿Ü 1¸í
ÆäÀ̽ººÏ Æ®À§ÅÍ ±¸±Û+
īī¿À½ºÅ丮
īī¿ÀÅå sms¹®ÀÚº¸³»±â
 

±âÀϳ»¿ª

°æ°ú ³¯Â¥ Àú°¨ ÃÖÀú°¡ °á°ú
Á¢¼öÀÏ 2025-05-09 °æ¸ÅÁ¢¼ö
~5ÀÏ 
2025-05-14 °æ¸Å°³½Ã°áÁ¤
~87ÀÏ 
2025-08-04 ¹è´ç¿ä±¸Á¾±âÀÏ
~243ÀÏ 
2026-01-07 100%
302,000,000
À¯Âû
~278ÀÏ 
2026-02-11 70%
211,400,000
À¯Âû
~327ÀÏ 
2026-04-01 56%
169,120,000
ÁøÇà
¹°°Ç¸í¼¼¼­ ÇöȲÁ¶»ç¼­ ¹®°ÇÁ¢¼ö ¼Û´Þ³»¿ª

°¨Á¤Æò°¡ÇöȲ

¸ñ·Ï ÁÖ¼Ò ±¸Á¶/¿ëµµ/´ëÁö±Ç ¸éÀû ºñ°í
´ëÁö±Ç
»çµ¿ 135-2 1203.3ºÐÀÇ 153.917 153.917 §³
(46.56Æò)
°Ç¹°
»çµ¿ 135-2 °¡µ¿ 3Ãþ303È£ ö±ÙÄÜÅ©¸®Æ®±¸Á¶ 115.9094 §³
(35.06Æò)
1) À§Ä¡/Á¦1Á¾ÀϹÝÁÖ°ÅÁö¿ª/¹ö½ºÁ¤·ùÀå/Â÷·®ÀÇ ÃâÀÔÀÌ ¿ëÀÌ/ö±ÙÄÜÅ©¸®Æ®±¸Á¶/Æò½º¶óºêÁöºØ/µµ½Ã°¡½º/°³º°³­¹æ ´õº¸±â
°¨Á¤Æò°¡ ¿äÇ×Ç¥
1)À§Ä¡ ¹× ÁÖÀ§È¯°æ
±¤ÁÖ±¤¿ª½Ã ³²±¸ »çµ¿ ¼ÒÀç ""È£³²½ÅÇдëÇб³"" ºÏÃø Àαٿ¡ À§Ä¡Çϸç, ÁÖÀ§´Â ´Üµ¶ÁÖÅÃ, ±Ù¸°»ýȰ½Ã¼³ µîÀÌ ¼ÒÀçÇÏ´Â ±âÁ¸ ÁÖÅÃÁö´ë·Î¼­, Á¦¹ÝÁÖÀ§È¯°æÀº º¸ÅëÀÓ.
2)±³Åë»óȲ
º»°Ç±îÁö Â÷·®ÀÇ ÃâÀÔÀÌ ¿ëÀÌÇϸç, ºÏµ¿Ãø Àαٿ¡ ¹ö½ºÁ¤·ùÀåÀÌ ¼ÒÀçÇÏ´Â µî Á¦¹Ý±³Åë»çÁ¤Àº º¸ÅëÀÓ.
3)°Ç¹°ÀÇ ±¸Á¶
ö±ÙÄÜÅ©¸®Æ®±¸Á¶ Æò½º¶óºêÁöºØ Áö»ó4Ãþ Á¦3Ãþ Á¦303È£·Î¼­, (»ç¿ë½ÂÀÎÀÏ: 2014.11.20.)

- ¿Üº®: ¼®Àç ¸¶°¨ µî,
- âȣ: ¼¦½Ã âȣ ¸¶°¨ µîÀÓ.
4)ÀÌ¿ë»óÅÂ
º»°ÇÀº ¿¬¸³ÁÖÅÃÀ¸·Î ÀÌ¿ë ÁßÀÓ.
5)¼³ºñ³»¿ª
º»°ÇÀº ±âº»ÀûÀÎ À§»ý ¹× ±Þ¹è¼ö¼³ºñ, ½Â°­±â¼³ºñ, µµ½Ã°¡½º¸¦ ÀÌ¿ëÇÑ °³º°³­¹æ¼³ºñ µîÀÌ ¼³Ä¡ µÇ¾îÀÖÀ½.


6)ÅäÁöÀÇ Çü»ó ¹× ÀÌ¿ë»óÅÂ
ºÎÁ¤Çü ÆòÁö·Î¼­, ¿¬¸³ÁÖÅà °ÇºÎÁö·Î ÀÌ¿ë ÁßÀÓ.
7)ÀÎÁ¢ µµ·Î»óŵî
¼­ÃøÀ¸·Î ³ëÆø ¾à 5¹ÌÅÍ ³»¿ÜÀÇ ¾Æ½ºÆÈÆ® Æ÷Àåµµ·Î¿¡ Á¢ÇÔ.
8)ÅäÁöÀÌ¿ë°èȹ ¹× Á¦ÇÑ»óÅÂ
Á¦1Á¾ÀϹÝÁÖ°ÅÁö¿ª, ¼Ò·Î3·ù(Æø 8m ¹Ì¸¸)(Á¢ÇÕ)ÀÓ.
9)°øºÎ¿ÍÀÇ Â÷ÀÌ
µî±â»çÇ×ÀüºÎÁõ¸í¼­»ó ´ëÁö±ÇÀÇ ¸ñÀûÀÎ ÅäÁöÀÇ ¸éÀûÀº '1,178.1§³'·Î ±âÀçµÇ¾î ÀÖÀ¸³ª ÅäÁö´ëÀå»ó ¸éÀûÀº '1,203.3§³'·Î »óÀÌÇѹÙ, µî±â»çÇ×ÀüºÎÁõ¸í¼­»ó ¸éÀû '1,178.1§³'·Î ±âÀçÇÏ¿´À½.
10)±âŸÂü°í»çÇ×(ÀÓ´ë°ü·Ê ¹× ±âŸ)
- ÀÓ´ë°ü°è: ¹Ì»óÀÓ.
- ±âŸ: --
Âü°í
»çÇ×
- µî±â»çÇ×ÀüºÎÁõ¸í¼­ ¹× ÅäÁö´ëÀå»ó ´ëÁö±ÇÀÇ ¸ñÀûÀÎ ÅäÁöÀÇ ¸éÀûÀº 1,203.3§³·Î ±âÀçµÇ¾î ÀÖÀ¸³ª, ´ëÁö±ÇÀº 1,171.8§³¿¡ ÇÑÇÏ¿© ÃëµæÇÑ °ÍÀ¸·Î ±âÀçµÇ¾î ÀÖ¾î ¼­·Î »óÀÌÇÑ ¹Ù, ´ëÁö±Ç Ãëµæ ¸éÀûÀÎ 1,171.8§³¸¦ ±âÁØÀ¸·Î Æò°¡ÇÏ¿´À½ - ä±ÇÀÚÀÇ º¸Á¤¼­¿¡ ÀÇÇϸé, ÅäÁöÀÇ ¸éÀûÀÌ ´õ ³Ð°Ô µÇ¾î ÀÖ´Â ÀÌÀ¯´Â 'ÀÌ »ç°Ç ´ëÁö±ÇÀÇ ¸ñÀûÀÎ ÅäÁö 1,203.3§³ Áß 31.5§³°¡ µµ·ÎÆíÀÔ ¿¹Á¤À̱⠶§¹®'À̶ó°í ÇÔ

°ÇÃ๰ÇöȲ

¼ÒÀçÁö ±¤ÁÖ±¤¿ª½Ã ³²±¸ »çµ¿ 135-2¹øÁö
´ëÁö¸éÀû 1171.8§³
(355.09Æò)
¿¬¸éÀû 1471.1574§³
(445.81Æò)
°ÇÃà¸éÀû 428.9949§³
(130Æò)
¿ëÀû·ü»êÁ¤
¿¬¸éÀû
1158.1724§³
(350.96Æò)
°ÇÆóÀ² 36.6099% ¿ëÀû·ü 98.837%
Áö»óÃþ¼ö 4Ãþ ÁöÇÏÃþ¼ö 1Ãþ
ÁÖ¿ëµµ °øµ¿ÁÖÅà ±¸Á¶ ö±ÙÄÜÅ©¸®Æ®±¸Á¶
Âø°øÀÏÀÚ 2014.02.10 »ç¿ë½ÂÀÎÀÏÀÚ 2014.11.20
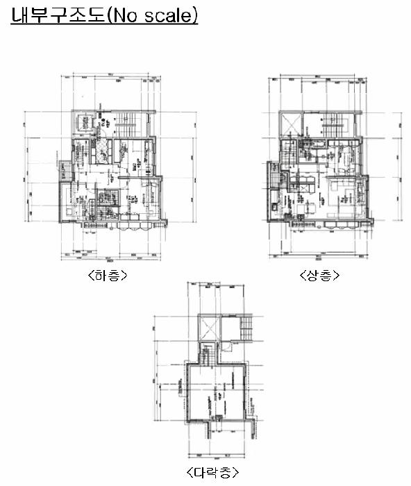
°ÇÃ๰Ãþº°ÇöȲ [º¸±â]


±¹ÅäºÎ½Ç°Å·¡°¡ ±¤ÁÖ±¤¿ª½Ã ³²±¸ »çµ¿

¡Ü ¸Å¸Å

¸éÀû(§³), ±Ý¾×(¸¸¿ø)

¡Ü Àü¼¼

¸éÀû(§³), ±Ý¾×(¸¸¿ø)

°è¾àÀϰǹ°¸íĪÃþ¿¬¸éÀûº¸Áõ±Ý¿ù¼¼°ÇÃà
25.10.14»çÁ÷277.558,00001978
25.06.19»çÁ÷277.556,53051978
25.05.28»çÁ÷172.65,79051978

µî±âºÎµîº» ¿ä¾à(°Ç¹°)

  Á¢¼öÀÏÀÚ µî±â¸ñÀû/±Ç¸®ÀÚ ±Ç¸®±Ý¾× ±âÁØ
1 2014³â11¿ù28ÀÏ
¼ÒÀ¯±Ç
±èOO
¼Ò¸ê
2 2014³â12¿ù24ÀÏ
±ÙÀú´ç±Ç
³óOOOO
250,000,000 ¼Ò¸ê±âÁØ
3 2020³â8¿ù28ÀÏ
±ÙÀú´ç±Ç
(OOOO
1,535,000,000 ¼Ò¸ê
4 2023³â12¿ù8ÀÏ
°¡¾Ð·ù
¾¾OOOO
100,000,000 ¼Ò¸ê
5 2025³â5¿ù14ÀÏ
ÀÓÀǰæ¸Å
(OOOO
¼Ò¸ê
6 2025³â8¿ù7ÀÏ
ÀÓÀǰæ¸Å
³óOOOO
¼Ò¸ê

ÀÓÂ÷ÀÎÇöȲ (¹è´ç¿ä±¸Á¾±âÀÏ: 2025-08-04)


Á¶»çµÈ ÀÓÂ÷³»¿ªÀÌ ¾ø½À´Ï´Ù


¿©ÀÇÁÖ°æ¸Å Á¶¾ð ÇÑ ¸¶µð


ÁÖÀÇ»çÇ× (ÃÖ¼±¼øÀ§ ¼³Á¤ÀÏ: 2014.12.24. ±ÙÀú´ç±Ç ¼³Á¤)

¸Å°¢À¸·Î ¼Ò¸êµÇÁö ¾Ê´Â µî±âºÎ±Ç¸®:
¸Å°¢À¸·Î ¼³Á¤µÈ °ÍÀ¸·Î º¸´Â Áö»ó±Ç:
- µî±â»çÇ×ÀüºÎÁõ¸í¼­ ¹× ÅäÁö´ëÀå»ó ´ëÁö±ÇÀÇ ¸ñÀûÀÎ ÅäÁöÀÇ ¸éÀûÀº 1,203.3§³·Î ±âÀçµÇ¾î ÀÖÀ¸³ª, ´ëÁö±ÇÀº 1,171.8§³¿¡ ÇÑ ÇÏ¿© ÃëµæÇÑ °ÍÀ¸·Î ±âÀçµÇ¾î ÀÖ¾î ¼­·Î »óÀÌÇÑ ¹Ù, ´ëÁö±Ç Ãëµæ ¸éÀûÀÎ 1,171.8§³¸¦ ±âÁØÀ¸·Î Æò°¡ÇÏ¿´À½ - ä±ÇÀÚÀÇ º¸Á¤¼­¿¡ ÀÇÇϸé, ÅäÁöÀÇ ¸éÀûÀÌ ´õ ³Ð°Ô µÇ¾î ÀÖ´Â ÀÌÀ¯´Â 'ÀÌ »ç°Ç ´ëÁö±ÇÀÇ ¸ñÀûÀÎ ÅäÁö 1,203.3§³ Áß 31.5§³°¡ µµ·ÎÆíÀÔ ¿¹Á¤À̱⠶§¹®'À̶ó°í ÇÔ
¡Ø¹Ì³³°ü¸®ºñ(°ø¿ë) Àμö¿©ºÎ¸¦ ÀÔÂû Àü¿¡ È®ÀÎÇϽñ⠹ٶø´Ï´Ù

 

Áö¿ªºÐ¼®

ÁöÇÏö¸í Á÷¼±°Å¸®

Çб³¸í ÀüÈ­¹øÈ£ ÁÖ¼Ò Á÷¼±°Å¸®

¹ý¿ø

±¤ÁÖÁö¹æ¹ý¿ø (614-41)±¤ÁÖ±¤¿ª½Ã µ¿±¸ Áعý·Î 7-12(Áö»ê2µ¿)
´ëÇ¥ : 062)239-1114
°üÇÒÁö¿ª : ±¤ÁÖ±¤¿ª½Ã, ³ªÁÖ½Ã, È­¼ø±º, À强±º, ´ã¾ç±º, °î¼º±º, ¿µ±¤±º

µî±â¼Ò ±¤ÁÖÁö¹æ¹ý¿ø º»¿ø µî±â±¹ (´ëÇ¥:1544-0773, ÆÑ½º:(062)381-0856, 381-0876, ±¤ÁÖ±¤¿ª½Ã ¼­±¸ ½Ãû·Î 106 (Ä¡Æòµ¿ 1205))
¼¼¹«¼­ ±¤ÁÖ¼¼¹«¼­ (´ëÇ¥:062-605-02, ÆÑ½º:062-716-7232, ±¤ÁÖ±¤¿ª½Ã µ¿±¸ Áß¾Ó·Î 154 (È£³²µ¿))

Àαٳ«ÂûÅë°è

±â°£ ¸Å°¢°Ç¼ö Æò±Õ°¨Á¤°¡
Æò±Õ¸Å°¢°¡
¸Å°¢°¡À²
Æò±ÕÀ¯Âû¼ö
3°³¿ù 2°Ç 44,000,000¿ø
26,631,000¿ø
61%
2ȸ
6°³¿ù 7°Ç 54,857,143¿ø
31,649,000¿ø
57%
2.1ȸ
12°³¿ù 7°Ç 54,857,143¿ø
31,649,000¿ø
57%
2.1ȸ


º» °æ¸ÅÁ¤º¸´Â ¹ý¿øÀÚ·á¿Í ÀÏÄ¡Çϵµ·Ï ÇÏ¿´À¸³ª ±Ç¸®»çÇ׺¯µ¿, ÀÔ·ÂÂø¿À µîÀÇ ¿øÀÎÀ¸·Î »ç½Ç°ú ´Ù¸¦ ¼ö ÀÖ½À´Ï´Ù. ÀÌ¿ë¾à°ü¿¡ ÀǰЏéÃ¥Á¶°ÇÀ¸·Î Á¦°øµÊÀ» ¾Ë¸®¸ç, °æ¸ÅÀÔÂû½Ã ¹Ýµå½Ã °ü·Ã °øºÎ¸¦ ÀçÈ®ÀÎÇϽñ⠹ٶø´Ï´Ù. º¸´Ù Æí¸®ÇÑ °æ¸ÅÁ¤º¸ Á¦°øÀ» À§ÇØ Áö¼ÓÀûÀ¸·Î °³¼±ÇϰڽÀ´Ï´Ù. ÀÌ¿ëÇØ Áּż­ °¨»çÇÕ´Ï´Ù.