·Î±×ÀÎ
30
¾ÆÆÄÆ®
ÀÎõÁö¹æ¹ý¿ø ºÎõÁö¿ø
 °¨Á¤°¡463,000,000 ¿ø
 ÃÖÀú°¡(100%) 463,000,000 ¿ø
 º¸Áõ±Ý(10%) 46,300,000 ¿ø
 Ã»±¸¾×115,561,004 ¿ø
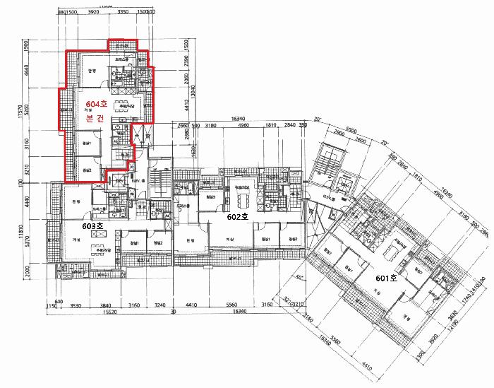
°æ±âµµ ±èÆ÷½Ã ±¸·¡µ¿ 6873-8 ÇѰ¡¶÷¸¶À»¿ì¹Ì¸° 102µ¿ 6Ãþ604È£
»ç°Ç¹øÈ£ 2025Ÿ°æ34165
°æ¸ÅÁ¾·ùºÎµ¿»êÀÓÀǰæ¸Å
¸Å°¢´ë»óÅäÁö ¹× °Ç¹°Àϰý ¸Å°¢
¸Å°¢±âÀÏ    2026.01.06(È­) 10:00 ÀÔÂû 11ÀÏÀü    
ÅäÁö¸éÀû64.25§³(19.43 Æò)
°Ç¹°¸éÀû105.82§³(32.01 Æò)
乫/¼ÒÀ¯ÀÚ±èOO / °­OO
ä±ÇÀÚºñOOOOOO OOOO
ÆäÀ̽ººÏ Æ®À§ÅÍ ±¸±Û+
īī¿À½ºÅ丮
īī¿ÀÅå sms¹®ÀÚº¸³»±â
 

±âÀϳ»¿ª

°æ°ú ³¯Â¥ Àú°¨ ÃÖÀú°¡ °á°ú
Á¢¼öÀÏ 2025-08-07 °æ¸ÅÁ¢¼ö
~1ÀÏ 
2025-08-08 °æ¸Å°³½Ã°áÁ¤
~81ÀÏ 
2025-10-27 ¹è´ç¿ä±¸Á¾±âÀÏ
~152ÀÏ 
2026-01-06 100%
463,000,000
ÁøÇà
¹°°Ç¸í¼¼¼­ ÇöȲÁ¶»ç¼­ ¹®°ÇÁ¢¼ö ¼Û´Þ³»¿ª

°¨Á¤Æò°¡ÇöȲ

¸ñ·Ï ÁÖ¼Ò ±¸Á¶/¿ëµµ/´ëÁö±Ç ¸éÀû ºñ°í
´ëÁö±Ç
±¸·¡µ¿ 6873-8 74419.1ºÐÀÇ 64.2457 64.2457 §³
(19.43Æò)
°Ç¹°
±¸·¡µ¿ 6873-8 102µ¿ 6Ãþ604È£ ö±ÙÄÜÅ©¸®Æ®±¸Á¶ 105.8231 §³
(32.01Æò)
1) À§Ä¡/Á¦3Á¾ÀϹÝÁÖ°ÅÁö¿ª/Á¦1Á¾Áö±¸´ÜÀ§°èȹ±¸¿ª/¹ö½ºÁ¤·ùÀå/ÁÖÂ÷Àå/ö±ÙÄÜÅ©¸®Æ®±¸Á¶ ´õº¸±â
°¨Á¤Æò°¡ ¿äÇ×Ç¥
1)À§Ä¡ ¹× ÁÖÀ§È¯°æ
º»°ÇÀº °æ±âµµ ±èÆ÷½Ã ±¸·¡µ¿ ¼ÒÀç ""ÇѰ¡¶÷»ç°Å¸®"" ºÏ¼­Ãø Àαٿ¡ À§Ä¡ÇÏ°í ºÎ±ÙÀº
¾ÆÆÄÆ®´ÜÁö,»ó¾÷¿ë ¹× ¾÷¹«¿ë ±Ù¸°»ýȰ½Ã¼³,Çб³ µîÀÌ ¼ÒÀçÇϰí ÀÖ´Â Áö¿ªÀÓ.
2)±³Åë»óȲ
º»°Ç±îÁö Á¦¹ÝÂ÷·®ÀÇ ÁøÃâÀÔÀÌ ¿ëÀÌÇϰí Àαٿ¡ ""±¸·¡¿ª"" ¹× ¹ö½ºÁ¤·ùÀåÀÌ ¼ÒÀçÇϰí ÀÖ¾î
Á¦¹Ý±³Åë»çÁ¤Àº º¸Åë½Ã µÊ.
3)°Ç¹°ÀÇ ±¸Á¶
2011³â 10¿ù 28ÀÏ »ç¿ë½ÂÀÎÀ» ¹ÞÀº ö±ÙÄÜÅ©¸®Æ®±¸Á¶ (ö±Ù)ÄÜÅ©¸®Æ®ÁöºØ 20Ãþ°ÇÁß
Á¦102µ¿ Á¦6Ãþ Á¦604È£·Î
¿Üº®:ÄÜÅ©¸®Æ®À§ ÆäÀÎÆÃ¸¶°¨µî
³»º®:º®Áö ¹× ÀϺΟÀϸ¶°¨µî
âȣ:»þ½Ãâȣµî
4)ÀÌ¿ë»óÅÂ
¾ÆÆÄÆ®·Î ÀÌ¿ëµÇ°í ÀÖÀ½.
5)¼³ºñ³»¿ª
À§»ý¼³ºñ,»óÇϼöµµ¼³ºñ,½Â°­±â,ÁÖÂ÷Àå,³­¹æ¼³ºñµî µÇ¾îÀÖÀ½.
6)ÅäÁöÀÇ Çü»ó ¹× ÀÌ¿ë»óÅÂ
1ÇÊÁö ´ëü·Î À广ÇüÀÇ ÅäÁö·Î ¾ÆÆÄÆ®ÀÇ °ÇºÎÁö·Î ÀÌ¿ëµÇ°í ÀÖÀ½.
7)ÀÎÁ¢ µµ·Î»óŵî
´ÜÁö³» Æ÷Àåµµ·Î¸¦ ÅëÇÏ¿© ¿Ü°ûÀÇ °øµµ¿Í ¿¬°áµÊ.
8)ÅäÁöÀÌ¿ë°èȹ ¹× Á¦ÇÑ»óÅÂ
Á¦3Á¾ÀϹÝÁÖ°ÅÁö¿ª,Á¦1Á¾Áö±¸´ÜÀ§°èȹ±¸¿ª(±èÆ÷ÇѰ­½Åµµ½Ã),±¤·Î3·ù(Æø 40m~50m)(Á¢ÇÕ),
¼Ò·Î1·ù(Æø 10m~12m)(2014-11-27)(Ư¼öµµ·Î)(Á¢ÇÕ),¼Ò·Î3·ù(Æø 8m ¹Ì¸¸)(2014-11-27)
(Ư¼öµµ·Î)(Á¢ÇÕ),Áß·Î1·ù(Æø 20m~25m)(Á¢ÇÕ),°¡Ãà»çÀ°Á¦Çѱ¸¿ª(¸ðµçÃàÁ¾ Á¦ÇÑ)<°¡ÃàºÐ´¢ÀÇ
°ü¸® ¹× À̿뿡 °üÇÑ ¹ý·ü>,»ó´ëº¸È£±¸¿ª(±èÆ÷ÇѰ¡¶÷À¯Ä¡¿ø)<±³À°È¯°æ º¸È£¿¡ °üÇÑ ¹ý·ü>,
»ó´ëº¸È£±¸¿ª(±èÆ÷ÇѰ¡¶÷ÁßÇб³)<±³À°È¯°æ º¸È£¿¡ °üÇÑ ¹ý·ü>,»ó´ëº¸È£±¸¿ª(±èÆ÷ÇѰ¡¶÷Ãʵî
Çб³)<±³À°È¯°æ º¸È£¿¡ °üÇÑ ¹ý·ü>,»ó´ëº¸È£±¸¿ª(ÇÁ¶óÀÓÀ¯Ä¡¿ø)<±³À°È¯°æ º¸È£¿¡ °üÇÑ
¹ý·ü>,Àý´ëº¸È£±¸¿ª(±èÆ÷ÇѰ¡¶÷ÁßÇб³)<±³À°È¯°æ º¸È£¿¡ °üÇÑ ¹ý·ü>,µµ·Î±¸¿ª
(Áö¹æµµ355È£¼±)<µµ·Î¹ý>,¼ºÀå°ü¸®±Ç¿ª<¼öµµ±ÇÁ¤ºñ°èȹ¹ý>,ÅÃÁö°³¹ßÁö±¸(±èÆ÷½Åµµ½ÃÅÃÁö
°³¹ß)<ÅÃÁö°³¹ßÃËÁø¹ý>,Çϼö󸮱¸¿ª(¾çÃÌ󸮺б¸)<Çϼöµµ¹ý>.

<Ãß°¡±âÀç>º»Áõ¸íÀº°£È¤Àü»ê¿À·ù·ÎÀÎÇÏ¿©»ç½Ç°ú´Ù¸¦¼öÀÖÀ¸´ÏÀÎÇã°¡³ªÅäÁö°Å·¡ÀüµîÁö¿ªÁö±¸
µîÀÇÆíÀÔ¿©ºÎ¸¦¹Ýµå½Ã°ü°èºÎ¼­¿¡È®ÀιÞÀ¸½Ã±â¹Ù¶ø´Ï´Ù.
9)°øºÎ¿ÍÀÇ Â÷ÀÌ
ÇØ´ç»çÇ×¾øÀ½.
10)±âŸÂü°í»çÇ×(ÀÓ´ë°ü·Ê ¹× ±âŸ)
º»°Ç ÇöÀ广¹®ÇÏ¿´À¸³ª °ÅÁÖÀÎ µî ÀÌÇØ°ü°èÀÎÀÇ ºÎÀç°ü°è·Î ³»ºÎ±¸Á¶ µîÀº °øºÎ ¹×
Àα٠À¯»ç¹°°ÇÀÇ Æò°¡Àü·Ê µîÀ» Âü°íÇÏ¿© ÀϹÝÀûÀÎ »ç¾çÀ» ±âÁØÀ¸·Î Æò°¡ÇÏ¿´À¸¸ç
ÀÓ´ë¿©ºÎ´Â ÆÄ¾ÇÇÏÁö ¸øÇÏ¿´´Â ¹Ù °æ¸ÅÁøÇà½Ã Âü°í¹Ù¶ø´Ï´Ù.


±¹ÅäºÎ½Ç°Å·¡°¡ °æ±âµµ ±èÆ÷½Ã ±¸·¡µ¿

¡Ü ¸Å¸Å

¸éÀû(§³), ±Ý¾×(¸¸¿ø)

¡Ü Àü¼¼

¸éÀû(§³), ±Ý¾×(¸¸¿ø)

°è¾àÀÏARTÃþÀü¿ë±Ý¾×°ÇÃà
24.03.28ÇѰ¡¶÷¸¶À»(¿ì¹Ì¸°)3105.789743,0002011
24.03.24ÇѰ¡¶÷¸¶À»(¿ì¹Ì¸°)9105.789743,7002011
24.03.24ÇѰ¡¶÷¸¶À»(¿ì¹Ì¸°)17105.789745,8002011
24.03.11ÇѰ¡¶÷¸¶À»(¿ì¹Ì¸°)20105.823144,5002011
24.03.06ÇѰ¡¶÷¸¶À»(¿ì¹Ì¸°)4105.823143,0002011
¢Ñ ´õº¸±â

µî±âºÎµîº» ¿ä¾à(°Ç¹°)

  Á¢¼öÀÏÀÚ µî±â¸ñÀû/±Ç¸®ÀÚ ±Ç¸®±Ý¾× ±âÁØ
1 2013³â6¿ù28ÀÏ
¼ÒÀ¯±Ç
°­OO
¼Ò¸ê
2 2013³â6¿ù28ÀÏ
±ÙÀú´ç±Ç
³óOOOO
297,360,000 ¼Ò¸ê±âÁØ
3 2015³â6¿ù29ÀÏ
±ÙÀú´ç±Ç
³óOOOO
16,800,000 ¼Ò¸ê
4 2022³â1¿ù12ÀÏ
±ÙÀú´ç±Ç
ºñOOOO
190,800,000 ¼Ò¸ê
5 2025³â8¿ù8ÀÏ
ÀÓÀǰæ¸Å
ºñOOOO
¼Ò¸ê

ÀÓÂ÷ÀÎÇöȲ (¹è´ç¿ä±¸Á¾±âÀÏ: 2025-10-27)



¸Å°¢±âÀÏ 7ÀÏÀü¿¡ °ø°íµÇ¿À´Ï È®ÀÎÇϽñ⠹ٶø´Ï´Ù.


¿©ÀÇÁÖ°æ¸Å Á¶¾ð ÇÑ ¸¶µð

ÃëÇÏ ¶Ç´Â Ãë¼ÒµÉ °¡´É¼º ÀÖ½À´Ï´Ù
ÀÌ ¹°°ÇÀÇ °¨Á¤°¡°ÝÀº 463,000,000¿øÀÔ´Ï´Ù. °æ¸Å¸¦ ½ÅûÇÑ Ã¤±ÇÀÚ°¡ ¹è´ç ¹Þ¾Æ¾ß ÇÒ ±Ý¾×Àº 115,561,004¿øÀ¸·Î °¨Á¤°¡°Ý ´ëºñ »ó´çÈ÷ ÀûÀº ±Ý¾×ÀÔ´Ï´Ù. ÀÌ·± °æ¿ì, 乫°¡°¡ º¯Á¦ÇÏ¿© °æ¸Å¸¦ ÃëÇϽÃŰ°Å³ª °æ¸Å½Åûä±ÇÀÚ°¡ ¹è´ç¹ÞÀº ±Ý¿øÀÌ ¾ø°ÔµÇ¾î À̸¥ ¹Ù "¹«À׿©¿¡ ÀÇÇÑ Ãë¼Ò"°¡ µÉ °¡´É¼ºÀÌ ÀÖ½À´Ï´Ù.

ÁÖÀÇ»çÇ× (ÃÖ¼±¼øÀ§ ¼³Á¤ÀÏ: 2013.6.28. ±ÙÀú´ç±Ç ¼³Á¤)

¸Å°¢À¸·Î ¼Ò¸êµÇÁö ¾Ê´Â µî±âºÎ±Ç¸®:
¸Å°¢À¸·Î ¼³Á¤µÈ °ÍÀ¸·Î º¸´Â Áö»ó±Ç:
¡Ø¹Ì³³°ü¸®ºñ(°ø¿ë) Àμö¿©ºÎ¸¦ ÀÔÂû Àü¿¡ È®ÀÎÇϽñ⠹ٶø´Ï´Ù

 

Áö¿ªºÐ¼®

ÁöÇÏö¸í Á÷¼±°Å¸®

Çб³¸í ÀüÈ­¹øÈ£ ÁÖ¼Ò Á÷¼±°Å¸®

¹ý¿ø

ÀÎõÁö¹æ¹ý¿ø ºÎõÁö¿ø (146-02)°æ±âµµ ºÎõ½Ã ¿ø¹Ì±¸ »óÀÏ·Î 129(»óµ¿)
´ëÇ¥ : 032)320-1114, ¹Î¿ø : 032)320-1234
°üÇÒÁö¿ª : ºÎõ½Ã, ±èÆ÷½Ã

µî±â¼Ò ÀÎõÁö¹æ¹ý¿ø ºÎõÁö¿ø ±èÆ÷µî±â¼Ò (´ëÇ¥:1544-0773, ÆÑ½º:(031)982-6997, °æ±âµµ ±èÆ÷½Ã ºÀÈ­·Î 16 (»ç¿ìµ¿ 240-2))
¼¼¹«¼­ ±èÆ÷¼¼¹«¼­ (´ëÇ¥:031-980-32, ÆÑ½º:031-987-9932, °æ±âµµ ±èÆ÷½Ã ±èÆ÷ÇѰ­1·Î 22 (Àå±âµ¿))

Àαٳ«ÂûÅë°è

±â°£ ¸Å°¢°Ç¼ö Æò±Õ°¨Á¤°¡
Æò±Õ¸Å°¢°¡
¸Å°¢°¡À²
Æò±ÕÀ¯Âû¼ö
3°³¿ù 64°Ç 481,375,000¿ø
408,761,393¿ø
85%
1ȸ
6°³¿ù 117°Ç 495,427,350¿ø
420,371,347¿ø
85%
1ȸ
12°³¿ù 216°Ç 497,013,889¿ø
420,556,644¿ø
85%
1ȸ


º» °æ¸ÅÁ¤º¸´Â ¹ý¿øÀÚ·á¿Í ÀÏÄ¡Çϵµ·Ï ÇÏ¿´À¸³ª ±Ç¸®»çÇ׺¯µ¿, ÀÔ·ÂÂø¿À µîÀÇ ¿øÀÎÀ¸·Î »ç½Ç°ú ´Ù¸¦ ¼ö ÀÖ½À´Ï´Ù. ÀÌ¿ë¾à°ü¿¡ ÀǰЏéÃ¥Á¶°ÇÀ¸·Î Á¦°øµÊÀ» ¾Ë¸®¸ç, °æ¸ÅÀÔÂû½Ã ¹Ýµå½Ã °ü·Ã °øºÎ¸¦ ÀçÈ®ÀÎÇϽñ⠹ٶø´Ï´Ù. º¸´Ù Æí¸®ÇÑ °æ¸ÅÁ¤º¸ Á¦°øÀ» À§ÇØ Áö¼ÓÀûÀ¸·Î °³¼±ÇϰڽÀ´Ï´Ù. ÀÌ¿ëÇØ Áּż­ °¨»çÇÕ´Ï´Ù.