·Î±×ÀÎ
30
¾ÆÆÄÆ®
ûÁÖÁö¹æ¹ý¿ø Á¦ÃµÁö¿ø
 °¨Á¤°¡294,000,000 ¿ø
 ÃÖÀú°¡(100%) 294,000,000 ¿ø
 º¸Áõ±Ý(10%) 29,400,000 ¿ø
 Ã»±¸¾×29,176,143 ¿ø
ÃæÃ»ºÏµµ Á¦Ãµ½Ã Çϼҵ¿ 198 Á¦Ãµ±×¸°ÄÚ¾Æ·ç¾ÆÆÄÆ® 108µ¿ 9Ãþ906È£
»ç°Ç¹øÈ£ 2025Ÿ°æ124
°æ¸ÅÁ¾·ùºÎµ¿»êÀÓÀǰæ¸Å
¸Å°¢´ë»óÅäÁö ¹× °Ç¹°Àϰý ¸Å°¢
¸Å°¢±âÀÏ    2026.01.05(¿ù) 10:00 ÀÔÂû 11ÀÏÀü    
ÅäÁö¸éÀû54.48§³(16.48 Æò)
°Ç¹°¸éÀû84.99§³(25.71 Æò)
乫/¼ÒÀ¯ÀÚ¹ÚOO / ¹ÚOO
ä±ÇÀÚÁÖOOO OOOO
ÆäÀ̽ººÏ Æ®À§ÅÍ ±¸±Û+
īī¿À½ºÅ丮
īī¿ÀÅå sms¹®ÀÚº¸³»±â
 

±âÀϳ»¿ª

°æ°ú ³¯Â¥ Àú°¨ ÃÖÀú°¡ °á°ú
Á¢¼öÀÏ 2025-06-30 °æ¸ÅÁ¢¼ö
~0ÀÏ 
2025-06-30 °æ¸Å°³½Ã°áÁ¤
~91ÀÏ 
2025-09-29 ¹è´ç¿ä±¸Á¾±âÀÏ
~189ÀÏ 
2026-01-05 100%
294,000,000
ÁøÇà
¹°°Ç¸í¼¼¼­ ÇöȲÁ¶»ç¼­ ¹®°ÇÁ¢¼ö ¼Û´Þ³»¿ª

°¨Á¤Æò°¡ÇöȲ

¸ñ·Ï ÁÖ¼Ò ±¸Á¶/¿ëµµ/´ëÁö±Ç ¸éÀû ºñ°í
´ëÁö±Ç
Çϼҵ¿ 198 45721ºÐÀÇ 54.4821 54.4821 §³
(16.48Æò)
°Ç¹°
Çϼҵ¿ 198 108µ¿ 9Ãþ906È£ ö±ÙÄÜÅ©¸®Æ®Á¶ 84.9857 §³
(25.71Æò)
1) À§Ä¡/µµ½ÃÁö¿ª/Á¦2Á¾ÀϹÝÁÖ°ÅÁö¿ª/Á¦1Á¾Áö±¸´ÜÀ§°èȹ±¸¿ª/¹ö½ºÁ¤·ùÀå/ÁöÇÏÁÖÂ÷Àå/µµ½Ã°¡½º/¹æ3/È­Àå½Ç2 ´õº¸±â
°¨Á¤Æò°¡ ¿äÇ×Ç¥
1)À§Ä¡ ¹× ÁÖÀ§È¯°æ
º»°ÇÀº ÃæÃ»ºÏµµ Á¦Ãµ½Ã Çϼҵ¿ ¼ÒÀç ""Á¦Ãµ°æÂû¼­"" ¼­Ãø Àαٿ¡ À§Ä¡Çϸç, ÁÖÀ§´Â ¾ÆÆÄÆ®´ÜÁö, ´Ù¼¼´ëÁÖÅà ¹× ±Ù¸°»ýȰ½Ã¼³ µîÀ¸·Î Çü¼ºµÇ¾î ÀÖ´Â ÁÖ°ÅÁö¿ªÀ¸·Î Á¦¹Ý ÁÖÀ§È¯°æÀº º¸ÅëÀÓ
2)±³Åë»óȲ
º»°ÇÀº Á¦Â÷·®ÀÇ ÁøÃâÀÔÀÌ ¿ëÀÌÇϸç, Àαٿ¡ ¹ö½ºÁ¤·ùÀåÀÌ ¼ÒÀçÇϰí ÀÖ¾î Á¦¹Ý ±³Åë»çÁ¤Àº º¸ÅëÀÓ.
3)°Ç¹°ÀÇ ±¸Á¶
ö±ÙÄÜÅ©¸®Æ® (ö±Ù)ÄÜÅ©¸®Æ®ÁöºØ Á¦15Ãþ °Ç¹° ³» Á¦9Ãþ Á¦906È£·Î¼­(»ç¿ë½ÂÀÎÀÏ:2007.04.02.)
¿Üº®: ¸ôÅ»À§ ÆäÀÎÆÃ
³»º®: º®Áöµµ¹è ¹× ÀϺΠŸÀϺÙÀÓ
âȣ: ¼¦½ÃâȣÀÓ.
4)ÀÌ¿ë»óÅÂ
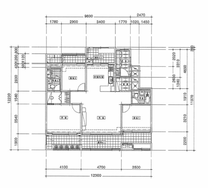
¾ÆÆÄÆ®(¹æ3. °Å½Ç, ÁÖ¹æ/½Ä´ç, È­Àå½Ç2, ¹ßÄÚ´Ï)·Î ÀÌ¿ë ÁßÀÓ.
5)¼³ºñ³»¿ª
À§»ý ¹× ±Þ¹è¼ö¼³ºñ,µµ½Ã°¡½º¿¡ ÀÇÇÑ ³­¹æ¼³ºñ, ½Â°­±â¼³ºñ, ¼ÒÈ­¼³ºñ, ÁöÇÏÁÖÂ÷Àå¼³ºñ µîÀÌ µÇ¾îÀÖÀ½.
6)ÅäÁöÀÇ Çü»ó ¹× ÀÌ¿ë»óÅÂ
ºÎÁ¤ÇüÀÇ ÅäÁö·Î ÁÖÀ§ÀÏ´ë´Â ³²ÇÏÇâÀÇ ¿Ï°æ»çÁöÁö´ë¸¦ ÀÌ·ç°í ÀÖÀ¸¸ç ¾ÆÆÄÆ® ºÎÁö·Î ÀÌ¿ë ÁßÀÓ.
7)ÀÎÁ¢ µµ·Î»óŵî
º»°Ç ¾ÆÆÄÆ® ´ÜÁö ºÏÃøÀ¸·Î ¿Õº¹4Â÷¼± µµ·Î, ³²Ãø ¹× µ¿ÃøÀ¸·Î ¿Õº¹ 2Â÷¼±µµ·Î¿Í °¢°¢ Á¢Çϰí ÀÖ¾î ÀÎÁ¢µµ·Î »óÅ´ ¾çÈ£ÇÔ.
8)ÅäÁöÀÌ¿ë°èȹ ¹× Á¦ÇÑ»óÅÂ
µµ½ÃÁö¿ª,Á¦2Á¾ÀϹÝÁÖ°ÅÁö¿ª,Á¦1Á¾Áö±¸´ÜÀ§°èȹ±¸¿ª,Áß·Î1·ù(Æø 20m~25m((Á¢ÇÕ),Áß·Î3·ù(Æø 12m~15m)(Á¢ÇÕ) °¡Ãà»çÀ°Á¦Çѱ¸¿ª(ÀüºÎÁ¦ÇÑÁö¿ª)<°¡ÃàºÐ´¢ÀÇ °ü¸® ¹× À̿뿡 °üÇÑ ¹ý·ü>,
»ó´ëº¸È£±¸¿ª(µ¿¸íÃʵîÇб³,Á¦Ãµ±³À°Áö¿øÃ»:640-6691)<±³À°È¯°æ º¸È£¿¡ °üÇÑ ¹ý·ü>,
»ó´ëº¸È£±¸¿ª(ÀǸ²À¯Ä¡¿ø,Á¦Ãµ±³À°Áö¿øÃ»:640-6691)<±³À°È¯°æ º¸È£¿¡ °üÇÑ ¹ý·ü>
9)°øºÎ¿ÍÀÇ Â÷ÀÌ
ÇØ´ç»çÇ× ¾øÀ½.
10)±âŸÂü°í»çÇ×(ÀÓ´ë°ü·Ê ¹× ±âŸ)
ÀÓ´ë°ü°è´Â ¹Ì»óÀÓ.
Âü°í
»çÇ×

À§ ºÎµ¿»êÀº 乫ÀÚÀÇ Ã³

°ÇÃ๰ÇöȲ

¼ÒÀçÁö ÃæÃ»ºÏµµ Á¦Ãµ½Ã Çϼҵ¿ 198¹øÁö
´ëÁö¸éÀû   ¿¬¸éÀû 574.81§³
(174.18Æò)
°ÇÃà¸éÀû 288§³
(87.27Æò)
¿ëÀû·ü»êÁ¤
¿¬¸éÀû
574.81§³
(174.18Æò)
°ÇÆóÀ²   ¿ëÀû·ü  
Áö»óÃþ¼ö 2Ãþ ÁöÇÏÃþ¼ö  
ÁÖ¿ëµµ °øµ¿ÁÖÅà ±¸Á¶ ö±ÙÄÜÅ©¸®Æ®±¸Á¶
Âø°øÀÏÀÚ 2005.01.21 »ç¿ë½ÂÀÎÀÏÀÚ 2007.03.27
°ÇÃ๰Ãþº°ÇöȲ [º¸±â]


µî±âºÎµîº» ¿ä¾à(°Ç¹°)

  Á¢¼öÀÏÀÚ µî±â¸ñÀû/±Ç¸®ÀÚ ±Ç¸®±Ý¾× ±âÁØ
1 2014³â4¿ù18ÀÏ
¼ÒÀ¯±Ç
¹ÚOO
¼Ò¸ê
2 2022³â7¿ù1ÀÏ
±ÙÀú´ç±Ç
(OOOO
36,300,000 ¼Ò¸ê±âÁØ
3 2025³â6¿ù30ÀÏ
ÀÓÀǰæ¸Å
(OOOO
¼Ò¸ê
4 2025³â11¿ù17ÀÏ
¾Ð·ù
Á¦OO
¼Ò¸ê

ÀÓÂ÷ÀÎÇöȲ (¹è´ç¿ä±¸Á¾±âÀÏ: 2025-09-29)



¸Å°¢±âÀÏ 7ÀÏÀü¿¡ °ø°íµÇ¿À´Ï È®ÀÎÇϽñ⠹ٶø´Ï´Ù.


¿©ÀÇÁÖ°æ¸Å Á¶¾ð ÇÑ ¸¶µð

ÃëÇÏ ¶Ç´Â Ãë¼ÒµÉ °¡´É¼º ÀÖ½À´Ï´Ù
ÀÌ ¹°°ÇÀÇ °¨Á¤°¡°ÝÀº 294,000,000¿øÀÔ´Ï´Ù. °æ¸Å¸¦ ½ÅûÇÑ Ã¤±ÇÀÚ°¡ ¹è´ç ¹Þ¾Æ¾ß ÇÒ ±Ý¾×Àº 29,176,143¿øÀ¸·Î °¨Á¤°¡°Ý ´ëºñ »ó´çÈ÷ ÀûÀº ±Ý¾×ÀÔ´Ï´Ù. ÀÌ·± °æ¿ì, 乫°¡°¡ º¯Á¦ÇÏ¿© °æ¸Å¸¦ ÃëÇϽÃŰ°Å³ª °æ¸Å½Åûä±ÇÀÚ°¡ ¹è´ç¹ÞÀº ±Ý¿øÀÌ ¾ø°ÔµÇ¾î À̸¥ ¹Ù "¹«À׿©¿¡ ÀÇÇÑ Ãë¼Ò"°¡ µÉ °¡´É¼ºÀÌ ÀÖ½À´Ï´Ù.

ÁÖÀÇ»çÇ× (ÃÖ¼±¼øÀ§ ¼³Á¤ÀÏ: 2022. 7. 1. ±ÙÀú´ç ¼³Á¤)

¸Å°¢À¸·Î ¼Ò¸êµÇÁö ¾Ê´Â µî±âºÎ±Ç¸®:
¸Å°¢À¸·Î ¼³Á¤µÈ °ÍÀ¸·Î º¸´Â Áö»ó±Ç:
¡Ø¹Ì³³°ü¸®ºñ(°ø¿ë) Àμö¿©ºÎ¸¦ ÀÔÂû Àü¿¡ È®ÀÎÇϽñ⠹ٶø´Ï´Ù

 

Áö¿ªºÐ¼®

ÁöÇÏö¸í Á÷¼±°Å¸®

Çб³¸í ÀüÈ­¹øÈ£ ÁÖ¼Ò Á÷¼±°Å¸®

¹ý¿ø

ûÁÖÁö¹æ¹ý¿ø Á¦ÃµÁö¿ø (271-65)ÃæÃ»ºÏµµ Á¦Ãµ½Ã Ä¥¼º·Î 53 (Áß¾Ó·Î2°¡ 16-2)
¹Î¿ø : 043)640-2070, µî±â°è : 043)640-2061, ¾ß°£ : 043)640-2000
°üÇÒÁö¿ª : Á¦Ãµ½Ã, ´Ü¾ç±º

µî±â¼Ò ûÁÖÁö¹æ¹ý¿ø Á¦ÃµÁö¿ø µî±â°è (´ëÇ¥:1544-0773, ÆÑ½º:(043)644-9844, ÃæºÏ Á¦Ãµ½Ã Ä¥¼º·Î 53 (Áß¾Ó·Î2°¡ 16-2))
¼¼¹«¼­ Á¦Ãµ¼¼¹«¼­ (´ëÇ¥:043-649-22, ÆÑ½º:043-648-3586, ÃæÃ»ºÏµµ Á¦Ãµ½Ã ³»Åä·Î41±æ 8 (È­»êµ¿))

Àαٳ«ÂûÅë°è

±â°£ ¸Å°¢°Ç¼ö Æò±Õ°¨Á¤°¡
Æò±Õ¸Å°¢°¡
¸Å°¢°¡À²
Æò±ÕÀ¯Âû¼ö
3°³¿ù 6°Ç 127,246,667¿ø
106,454,467¿ø
84%
1.5ȸ
6°³¿ù 11°Ç 180,416,364¿ø
149,732,891¿ø
84%
1.5ȸ
12°³¿ù 22°Ç 161,730,909¿ø
136,094,591¿ø
84%
1.4ȸ


º» °æ¸ÅÁ¤º¸´Â ¹ý¿øÀÚ·á¿Í ÀÏÄ¡Çϵµ·Ï ÇÏ¿´À¸³ª ±Ç¸®»çÇ׺¯µ¿, ÀÔ·ÂÂø¿À µîÀÇ ¿øÀÎÀ¸·Î »ç½Ç°ú ´Ù¸¦ ¼ö ÀÖ½À´Ï´Ù. ÀÌ¿ë¾à°ü¿¡ ÀǰЏéÃ¥Á¶°ÇÀ¸·Î Á¦°øµÊÀ» ¾Ë¸®¸ç, °æ¸ÅÀÔÂû½Ã ¹Ýµå½Ã °ü·Ã °øºÎ¸¦ ÀçÈ®ÀÎÇϽñ⠹ٶø´Ï´Ù. º¸´Ù Æí¸®ÇÑ °æ¸ÅÁ¤º¸ Á¦°øÀ» À§ÇØ Áö¼ÓÀûÀ¸·Î °³¼±ÇϰڽÀ´Ï´Ù. ÀÌ¿ëÇØ Áּż­ °¨»çÇÕ´Ï´Ù.