·Î±×ÀÎ
1219
´Ù¼¼´ë(ºô¶ó)
ÀÇÁ¤ºÎÁö¹æ¹ý¿ø °í¾çÁö¿ø
 °¨Á¤°¡270,000,000 ¿ø
 ÃÖÀú°¡(49%) 132,300,000 ¿ø
 º¸Áõ±Ý(10%) 13,230,000 ¿ø
 Ã»±¸¾×243,488,218 ¿ø
°æ±âµµ °í¾ç½Ã Àϻ굿±¸ dzµ¿ 605-29 Èú½ºÅ¸¿î 103µ¿ 3Ãþ302È£
»ç°Ç¹øÈ£ 2025Ÿ°æ62462
°æ¸ÅÁ¾·ùºÎµ¿»ê°­Á¦°æ¸Å
¸Å°¢´ë»óÅäÁö ¹× °Ç¹°Àϰý ¸Å°¢
¸Å°¢±âÀÏ    2026.03.25(¼ö) 10:00 ÀÔÂû 19ÀÏÀü    
ÅäÁö¸éÀû72.50§³(21.93 Æò)
°Ç¹°¸éÀû63.95§³(19.34 Æò)
乫/¼ÒÀ¯ÀÚ±èOO / ±èOO
ä±ÇÀÚÁÖOOOOOOO
ÆäÀ̽ººÏ Æ®À§ÅÍ ±¸±Û+
īī¿À½ºÅ丮
īī¿ÀÅå sms¹®ÀÚº¸³»±â
 

±âÀϳ»¿ª

°æ°ú ³¯Â¥ Àú°¨ ÃÖÀú°¡ °á°ú
Á¢¼öÀÏ 2025-02-27 °æ¸ÅÁ¢¼ö
~1ÀÏ 
2025-02-28 °æ¸Å°³½Ã°áÁ¤
~88ÀÏ 
2025-05-26 ¹è´ç¿ä±¸Á¾±âÀÏ
~307ÀÏ 
2025-12-31 100%
270,000,000
À¯Âû
~349ÀÏ 
2026-02-11 70%
189,000,000
À¯Âû
~391ÀÏ 
2026-03-25 49%
132,300,000
ÁøÇà
¹°°Ç¸í¼¼¼­ ÇöȲÁ¶»ç¼­ ¹®°ÇÁ¢¼ö ¼Û´Þ³»¿ª

°¨Á¤Æò°¡ÇöȲ

¸ñ·Ï ÁÖ¼Ò ±¸Á¶/¿ëµµ/´ëÁö±Ç ¸éÀû ºñ°í
´ëÁö±Ç
dzµ¿ 605-29 580ºÐÀÇ 72.5 72.5 §³
(21.93Æò)
°Ç¹°
dzµ¿ 605-29 103µ¿ 3Ãþ302È£ ö±ÙÄÜÅ©¸®Æ®±¸Á¶ 63.95 §³
(19.34Æò)
1) À§Ä¡/µµ½ÃÁö¿ª/°èȹ°ü¸®Áö¿ª/¹ö½ºÁ¤·ùÀå/Â÷·®ÁøÃâÀÔ °¡´É/Â÷·®ÁøÃâÀÔ °¡´É/ö±ÙÄÜÅ©¸®Æ®±¸Á¶/°æ»çÁöºØ ´õº¸±â
°¨Á¤Æò°¡ ¿äÇ×Ç¥
1)À§Ä¡ ¹× ÁÖÀ§È¯°æ
º»°ÇÀº °æ±âµµ °í¾ç½Ã Àϻ굿±¸ dzµ¿ ¼ÒÀç '´Ù¼ØÃʵîÇб³' ºÏµ¿Ãø Àαٿ¡ À§Ä¡ÇÏ¸ç ºÎ±ÙÀº ´Ù¼¼´ëÁÖÅÃ, ±Ù¸°»ýȰ½Ã¼³ µîÀÌ ¼ÒÀçÇÏ´Â ÁÖÅÃÁö´ë·Î ÁÖÀ§È¯°æÀº º¸ÅëÀÓ.
2)±³Åë»óȲ
º»°Ç±îÁö Â÷·®ÁøÃâÀÔ °¡´ÉÇϸç Àαٿ¡ ¹ö½ºÁ¤·ùÀåÀÌ ¼ÒÀçÇÏ´Â µî ´ëÁß±³Åë»óȲÀº º¸ÅëÀÓ.
3)°Ç¹°ÀÇ ±¸Á¶
ö±ÙÄÜÅ©¸®Æ®±¸Á¶ °æ»çÁöºØ Áö»ó4Ãþ Áß Á¦302È£·Î¼­

¿Üº®: µå¶óÀ̺ñÆ®¸¶°¨ µî
âȣ: »õ½Ãâ µîÀÓ.
4)ÀÌ¿ë»óÅÂ
´Ù¼¼´ëÁÖÅÃÀ¸·Î ÀÌ¿ëÁßÀÓ.
5)¼³ºñ³»¿ª
À§»ý ¹× ±Þ¹è¼ö¼³ºñ, ³­¹æ¼³ºñ, ½Â°­±â¼³ºñ µî µÇ¾îÀÖÀ½.
6)ÅäÁöÀÇ Çü»ó ¹× ÀÌ¿ë»óÅÂ
ºÎÁ¤ÇüÀÇ ÅäÁö·Î '´Ù¼¼´ëÁÖÅÃ' À¸·Î ÀÌ¿ëÁßÀÓ.
7)ÀÎÁ¢ µµ·Î»óŵî
µ¿ÃøÀ¸·Î Æø ¾à 6m ³»¿ÜÀÇ Æ÷Àåµµ·Î¿¡ Á¢ÇÔ.
8)ÅäÁöÀÌ¿ë°èȹ ¹× Á¦ÇÑ»óÅÂ
°èȹ°ü¸®Áö¿ª °¡Ãà»çÀ°Á¦Çѱ¸¿ª(2024-11-12)(ÀϺÎÁ¦Çѱ¸¿ª [ÀüºÎÁ¦Çѱ¸¿ªÀ¸·ÎºÎÅÍ Á¦ÇѰŸ® 500m (¼Ò,Á¥¼Ò,¸» Á¦ÇÑ)])<°¡ÃàºÐ´¢ÀÇ °ü¸® ¹× À̿뿡 °üÇÑ ¹ý·ü>, °¡Ãà»çÀ°Á¦Çѱ¸¿ª(2024-11-12)(ÀüºÎÁ¦Çѱ¸¿ª [µµ½ÃÁö¿ª{ÁÖ°Å,»ó¾÷,°ø¾÷,³ìÁö(ÀÚ¿¬Ãë¶ôÁö±¸)}¹×ÁְŹÐÁýÁö¿ª])<°¡ÃàºÐ´¢ÀÇ °ü¸® ¹× À̿뿡 °üÇÑ ¹ý·ü>, »ó´ëº¸È£±¸¿ª<±³À°È¯°æ º¸È£¿¡ °üÇÑ ¹ý·ü>, °ú¹Ð¾ïÁ¦±Ç¿ª<¼öµµ±ÇÁ¤ºñ°èȹ¹ý>
9)°øºÎ¿ÍÀÇ Â÷ÀÌ
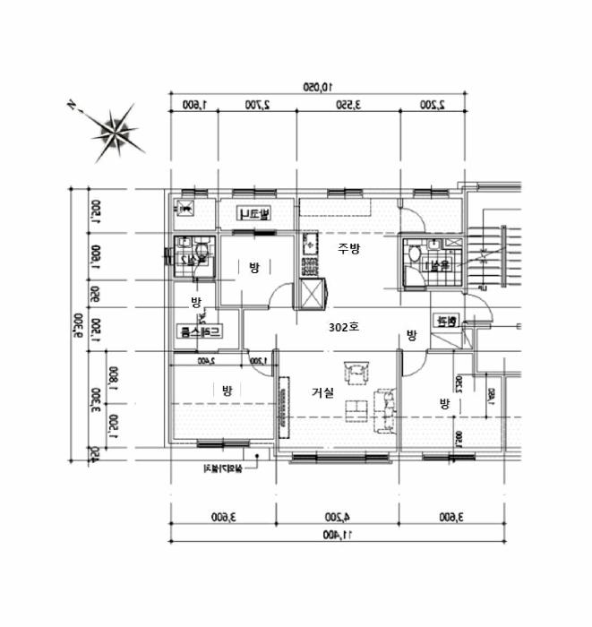
¹®ÆÐ µî ÇöÀåÁ¶»ç½Ã È®ÀÎÇÑ 302È£¿Í ÁýÇÕ°ÇÃ๰´ëÀå °ÇÃ๰ÇöȲµµ»ó µµ¸é°ú ÀÏÄ¡ÇÏÁö ¾Ê¾Æ ÇöȲ Á¡À¯ºÎºÐÀÎ 302È£¸¦ °¨Á¤Æò°¡ÇϵÇ, µµ¸é»ó À§Ä¡·Î ÃßÁ¤µÇ´Â 301È£ÀÇ °¡¾×(270,000,000¿ø)À» º´±âÇÏ¿´À¸´Ï °æ¸Å½Ã Âü°íÇϽñ⠹ٶ÷.
10)±âŸÂü°í»çÇ×(ÀÓ´ë°ü·Ê ¹× ±âŸ)
µî±â»çÇ×ÀüºÎÁõ¸í¼­»ó ÀÓÂ÷º¸Áõ±Ý ¡®±Ý234,000,000¿ø¡¯, ÀÓÂ÷±ÇÀÚ ¡®Áø¾çÈñ¡¯·Î ÁÖÅÃÀÓÂ÷±Ç ¼³Á¤µÇ¾î ÀÖÀ¸¸ç, ±¸Ã¼ÀûÀÎ ÀÓ´ë³»¿ªÀº ¹Ì»óÀÓ.
Âü°í
»çÇ×
½Åûä±ÇÀÚÀÎ ÁÖÅõµ½Ãº¸Áõ°ø»ç(¾çµµÀü:ÁÖÅÃÀÓÂ÷±ÇÀÚ Áø¾çÈñ)·ÎºÎÅÍ 2025.7.9.ÀÚ¿¡ ¡®ÀÓÂ÷º¸Áõ±Ý¿¡ ´ëÇÏ¿© ¿ì¼±º¯Á¦±Ç¸¸ ÁÖÀåÇÏ°í ´ëÇ×·ÂÀº Æ÷±âÇϸç, Àü¾×À» º¯Á¦¹ÞÁö ¸øÇÏ´õ¶óµµ ÀÓÂ÷±Çµî±â¸¦ ¸»¼ÒÇÔ¿¡ µ¿ÀÇÇÑ´Ù.¡¯´Â ³»¿ëÀÇ È®¾à¼­°¡ Á¦ÃâµÊ.
ö±ÙÄÜÅ©¸®Æ®±¸Á¶ °æ»çÁöºØ 4Ãþ ´Ù¼¼´ëÁÖÅÃ

°ÇÃ๰ÇöȲ

¼ÒÀçÁö °æ±âµµ °í¾ç½Ã Àϻ굿±¸ dzµ¿ 605-29¹øÁö
´ëÁö¸éÀû 580§³
(175.76Æò)
¿¬¸éÀû 575.56§³
(174.41Æò)
°ÇÃà¸éÀû 208.81§³
(63.28Æò)
¿ëÀû·ü»êÁ¤
¿¬¸éÀû
575.56§³
(174.41Æò)
°ÇÆóÀ² 36% ¿ëÀû·ü 99.23%
Áö»óÃþ¼ö 4Ãþ ÁöÇÏÃþ¼ö  
ÁÖ¿ëµµ °øµ¿ÁÖÅà ±¸Á¶ ö±ÙÄÜÅ©¸®Æ®±¸Á¶
Âø°øÀÏÀÚ 2015.03.26 »ç¿ë½ÂÀÎÀÏÀÚ 2016.05.13
°ÇÃ๰Ãþº°ÇöȲ [º¸±â]


µî±âºÎµîº» ¿ä¾à(°Ç¹°)

  Á¢¼öÀÏÀÚ µî±â¸ñÀû/±Ç¸®ÀÚ ±Ç¸®±Ý¾× ±âÁØ
1 2020³â4¿ù13ÀÏ
¼ÒÀ¯±Ç
±èOO
¼Ò¸ê
2 2020³â7¿ù14ÀÏ
¾Ð·ù
±¹OOOO
¼Ò¸ê±âÁØ
3 2022³â3¿ù31ÀÏ
¾Ð·ù
±¹
¼Ò¸ê
4 2024³â4¿ù18ÀÏ
ÀÓÂ÷±Ç¼³Á¤
ÁøOO
234,000,000 ¼Ò¸ê
5 2025³â2¿ù28ÀÏ
°­Á¦°æ¸Å
ÁÖOOOO
¼Ò¸ê

ÀÓÂ÷ÀÎÇöȲ (¹è´ç¿ä±¸Á¾±âÀÏ: 2025-05-26)

ÀÓÂ÷ÀÎ ¿ëµµ/Á¡À¯ º¸Áõ±Ý/¿ù¼¼ ´ëÇ×·Â
ÀüÀÔÀÏ/È®Á¤ÀÏ ¹è´ç¿ä±¸ ºñ°í
ÁÖOOOOOOO ÀüºÎ 234,000,000
O
2020. 4. 9.
2020. 3. 25.
2020.5.19. 2020. 4. 9.~2022. 4. 8.
ÁøOO ÀüºÎ 234,000,000
O
2020. 4. 9.
2020. 3. 25.
2020. 4. 9.
ºñ°í
(¸Å°¢¹°°Ç
¸í¼¼¼­)
ÁÖÅõµ½Ãº¸Áõ°ø»ç:°æ¸Å½Åûä±ÇÀÚ·Î ÀÓÂ÷ÀÎ Áø¾çÈñÀÇ ÀÓÂ÷º¸Áõ±Ý¹Ýȯä±Ç ¾ç¼öÀÎÀÓ(´ëÇ׷¹׿켱º¯Á¦±Ç ½Â°è, 2025.5.19. ±Ç¸® ½Å°í¹×¹è´ç¿ä±¸½Åû¼­ Á¦Ãâ)

¿©ÀÇÁÖ°æ¸Å Á¶¾ð ÇÑ ¸¶µð

¼±¼øÀ§ ÀÓÂ÷±Çµî±â°¡ µÇ¾î ÀÖ½À´Ï´Ù
´ëÇ×·ÂÀÌ ÀÖ´Â ¼±¼øÀ§ ÀÓÂ÷±Çµî±â ±Ç¸®ÀÚ°¡ ¹è´çÀ» Àü¾× ¹ÞÁö ¸øÇÒ °æ¿ì ³«ÂûÀÚ°¡ ÀÜ¿© º¸Áõ±ÝÀ» ÀμöÇØ¾ßÇÏ´Â °æ¿ìµµ ÀÖ½À´Ï´Ù.

ÁÖÀÇ»çÇ× (ÃÖ¼±¼øÀ§ ¼³Á¤ÀÏ: 2020. 7. 14. ¾Ð·ù ¼³Á¤)

¸Å°¢À¸·Î ¼Ò¸êµÇÁö ¾Ê´Â µî±âºÎ±Ç¸®:
¸Å°¢À¸·Î ¼³Á¤µÈ °ÍÀ¸·Î º¸´Â Áö»ó±Ç:
½Åûä±ÇÀÚÀÎ ÁÖÅõµ½Ãº¸Áõ°ø»ç(¾çµµÀü:ÁÖÅÃÀÓÂ÷±ÇÀÚ Áø¾çÈñ)·ÎºÎÅÍ 2025.7.9.ÀÚ¿¡ ¡®ÀÓÂ÷º¸Áõ±Ý¿¡ ´ëÇÏ¿© ¿ì¼±º¯Á¦±Ç¸¸ ÁÖÀåÇÏ °í ´ëÇ×·ÂÀº Æ÷±âÇϸç, Àü¾×À» º¯Á¦¹ÞÁö ¸øÇÏ´õ¶óµµ ÀÓÂ÷±Çµî±â¸¦ ¸»¼ÒÇÔ¿¡ µ¿ÀÇÇÑ´Ù.¡¯´Â ³»¿ëÀÇ È®¾à¼­°¡ Á¦ÃâµÊ.
¡Ø¹Ì³³°ü¸®ºñ(°ø¿ë) Àμö¿©ºÎ¸¦ ÀÔÂû Àü¿¡ È®ÀÎÇϽñ⠹ٶø´Ï´Ù

 

Áö¿ªºÐ¼®

ÁöÇÏö¸í Á÷¼±°Å¸®

Çб³¸í ÀüÈ­¹øÈ£ ÁÖ¼Ò Á÷¼±°Å¸®

¹ý¿ø

ÀÇÁ¤ºÎÁö¹æ¹ý¿ø °í¾çÁö¿ø (104-13)°æ±âµµ °í¾ç½Ã Àϻ굿±¸ Àå¹é·Î 209
´ëÇ¥ : 031)920-6114, ¾ß°£ : 031)920-6550, ÆÑ½º : 031)920-6119
°üÇÒÁö¿ª : °í¾ç½Ã, ÆÄÁÖ½Ã

µî±â¼Ò ÀÇÁ¤ºÎÁö¹æ¹ý¿ø °í¾çÁö¿ø °í¾çµî±â¼Ò (´ëÇ¥:1544-0773, ÆÑ½º:(031)920-5959, °æ±âµµ °í¾ç½Ã Àϻ굿±¸ Áß¾Ó·Î1275¹ø±æ 38-30 (ÀåÇ×µ¿ 773))
¼¼¹«¼­ °í¾ç¼¼¹«¼­ (´ëÇ¥:031-900-92, ÆÑ½º:031-907-9177, °æ±âµµ °í¾ç½Ã Àϻ굿±¸ Áß¾Ó·Î1275¹ø±æ 14-43 (ÀåÇ×µ¿) )

Àαٳ«ÂûÅë°è

±â°£ ¸Å°¢°Ç¼ö Æò±Õ°¨Á¤°¡
Æò±Õ¸Å°¢°¡
¸Å°¢°¡À²
Æò±ÕÀ¯Âû¼ö
3°³¿ù 23°Ç 296,217,391¿ø
192,240,957¿ø
61%
2.4ȸ
6°³¿ù 31°Ç 282,096,774¿ø
190,587,177¿ø
65%
2.1ȸ
12°³¿ù 45°Ç 278,355,556¿ø
183,356,746¿ø
64%
2ȸ


º» °æ¸ÅÁ¤º¸´Â ¹ý¿øÀÚ·á¿Í ÀÏÄ¡Çϵµ·Ï ÇÏ¿´À¸³ª ±Ç¸®»çÇ׺¯µ¿, ÀÔ·ÂÂø¿À µîÀÇ ¿øÀÎÀ¸·Î »ç½Ç°ú ´Ù¸¦ ¼ö ÀÖ½À´Ï´Ù. ÀÌ¿ë¾à°ü¿¡ ÀǰЏéÃ¥Á¶°ÇÀ¸·Î Á¦°øµÊÀ» ¾Ë¸®¸ç, °æ¸ÅÀÔÂû½Ã ¹Ýµå½Ã °ü·Ã °øºÎ¸¦ ÀçÈ®ÀÎÇϽñ⠹ٶø´Ï´Ù. º¸´Ù Æí¸®ÇÑ °æ¸ÅÁ¤º¸ Á¦°øÀ» À§ÇØ Áö¼ÓÀûÀ¸·Î °³¼±ÇϰڽÀ´Ï´Ù. ÀÌ¿ëÇØ Áּż­ °¨»çÇÕ´Ï´Ù.