·Î±×ÀÎ
1205
¾ÆÆÄÆ®
ÀÇÁ¤ºÎÁö¹æ¹ý¿ø °í¾çÁö¿ø
 °¨Á¤°¡162,000,000 ¿ø
 ÃÖÀú°¡(49%) 79,380,000 ¿ø
 º¸Áõ±Ý(10%) 7,938,000 ¿ø
 Ã»±¸¾×144,175,781 ¿ø
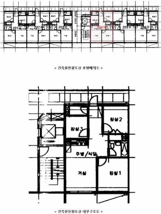
°æ±âµµ °í¾ç½Ã ´ö¾ç±¸ °í¾çµ¿ 414-17 À±Ã¢¾ÆÆÄÆ® 101µ¿ 2Ãþ204È£
»ç°Ç¹øÈ£ 2025Ÿ°æ63933
°æ¸ÅÁ¾·ùºÎµ¿»ê°­Á¦°æ¸Å
¸Å°¢´ë»óÅäÁö ¹× °Ç¹°Àϰý ¸Å°¢
¸Å°¢±âÀÏ    2026.03.24(È­) 10:00 ÀÔÂû 20ÀÏÀü    
ÅäÁö¸éÀû30.40§³(9.20 Æò)
°Ç¹°¸éÀû58.99§³(17.84 Æò)
乫/¼ÒÀ¯ÀÚÀ±OO / À±OO
ä±ÇÀÚÇÑOOOOOOO
ÆäÀ̽ººÏ Æ®À§ÅÍ ±¸±Û+
īī¿À½ºÅ丮
īī¿ÀÅå sms¹®ÀÚº¸³»±â
 

±âÀϳ»¿ª

°æ°ú ³¯Â¥ Àú°¨ ÃÖÀú°¡ °á°ú
Á¢¼öÀÏ 2025-08-13 °æ¸ÅÁ¢¼ö
~1ÀÏ 
2025-08-14 °æ¸Å°³½Ã°áÁ¤
~89ÀÏ 
2025-11-10 ¹è´ç¿ä±¸Á¾±âÀÏ
~139ÀÏ 
2025-12-30 100%
162,000,000
À¯Âû
~181ÀÏ 
2026-02-10 70%
113,400,000
À¯Âû
~223ÀÏ 
2026-03-24 49%
79,380,000
ÁøÇà
¹°°Ç¸í¼¼¼­ ÇöȲÁ¶»ç¼­ ¹®°ÇÁ¢¼ö ¼Û´Þ³»¿ª

°¨Á¤Æò°¡ÇöȲ

¸ñ·Ï ÁÖ¼Ò ±¸Á¶/¿ëµµ/´ëÁö±Ç ¸éÀû ºñ°í
´ëÁö±Ç
°í¾çµ¿ 414-17 8494ºÐÀÇ 30.3973 30.3973 §³
(9.20Æò)
°Ç¹°
°í¾çµ¿ 414-17 101µ¿ 2Ãþ204È£ ö±ÙÄÜÅ©¸®Æ®º®½Ä±¸Á¶ 58.9875 §³
(17.84Æò)
1) À§Ä¡/µµ½ÃÁö¿ª/Á¦2Á¾ÀϹÝÁÖ°ÅÁö¿ª/³ë¼±¹ö½º Á¤·ùÀå/½º¶óºêÁöºØ ´õº¸±â
°¨Á¤Æò°¡ ¿äÇ×Ç¥
1)À§Ä¡ ¹× ÁÖÀ§È¯°æ
º»°ÇÀº °æ±âµµ °í¾ç½Ã ´ö¾ç±¸ °í¾çµ¿ ¼ÒÀç ""°í¾çÃʵîÇб³"" ºÏ¼­Ãø Àαٿ¡ À§Ä¡Çϸç, ÁÖÀ§´Â °øµ¿ÁÖÅÃ, ¾ÆÆÄÆ®´ÜÁö, ±Ù¸°»ýȰ½Ã¼³ ¹× °¢±Þ Çб³ µîÀÌ ¼ÒÀçÇÏ´Â Áö¿ªÀ¸·Î Á¦¹Ý ÁÖÀ§È¯°æÀº º¸ÅëÀÔ´Ï´Ù.
2)±³Åë»óȲ
º»°Ç±îÁö Â÷·® Áø,ÃâÀÔÀÌ °¡´ÉÇϸç, Àαٿ¡ ³ë¼±¹ö½º Á¤·ùÀåÀÌ ¼ÒÀçÇÏ´Â µî Á¦¹Ý ±³Åë»óȲÀº º¸ÅëÀÔ´Ï´Ù.
3)°Ç¹°ÀÇ ±¸Á¶
ö±ÙÄÜÅ©¸®Æ®º®½Ä±¸Á¶ °æ»ç½º¶óºêÁöºØ 10Ãþ°Ç ³» 2Ãþ 204È£·Î¼­,

¿Üº®: ¸ôÅ»À§ ÆäÀÎÆÃ ¸¶°¨ µî,
âȣ: ¼¦½Ã âȣÀÔ´Ï´Ù.
4)ÀÌ¿ë»óÅÂ
¾ÆÆÄÆ®(ÈÄ÷ ""³»ºÎ ±¸Á¶µµ"" ÂüÁ¶)À¸·Î ÀÌ¿ë ÁßÀÔ´Ï´Ù.
5)¼³ºñ³»¿ª
À§»ý ¹× ±Þ,¹è¼ö¼³ºñ ¹× ³­¹æ¼³ºñ, ½Â°­±â ¼³ºñ µîÀÌ µÇ¾îÀÖ½À´Ï´Ù.


6)ÅäÁöÀÇ Çü»ó ¹× ÀÌ¿ë»óÅÂ
ÀÎÁ¢Áö´ëºñ µî°íÆòźÇÑ ºÎÁ¤ÇüÀÇ ÅäÁö·Î ¾ÆÆÄÆ® °ÇºÎÁö·Î ÀÌ¿ë ÁßÀÔ´Ï´Ù.
7)ÀÎÁ¢ µµ·Î»óŵî
´ÜÁö ³» µµ·Î¸¦ ÅëÇØ ¿Ü°û °øµµ¿Í ¿¬°èµÇ¾î ÀÖ½À´Ï´Ù.
8)ÅäÁöÀÌ¿ë°èȹ ¹× Á¦ÇÑ»óÅÂ
Á¦2Á¾ÀϹÝÁÖ°ÅÁö¿ª, ¼Ò·Î2·ù(Æø 8m~10m)(Á¢ÇÕ) °¡Ãà»çÀ°Á¦Çѱ¸¿ª(2024-11-12)(ÀüºÎÁ¦Çѱ¸¿ª [µµ½ÃÁö¿ª{ÁÖ°Å,»ó¾÷,°ø¾÷,³ìÁö(ÀÚ¿¬Ãë¶ôÁö±¸)}¹×ÁְŹÐÁýÁö¿ª])<°¡ÃàºÐ´¢ÀÇ °ü¸® ¹× À̿뿡 °üÇÑ ¹ý·ü>, ¿ª»ç¹®È­È¯°æº¸Á¸Áö¿ª(°í¾çÇâ±³)<°æ±âµµ¹®È­À纸ȣÁ¶·Ê>, »ó´ëº¸È£±¸¿ª<±³À°È¯°æ º¸È£¿¡ °üÇÑ ¹ý·ü>, ¿ª»ç¹®È­È¯°æº¸Á¸Áö¿ª(º®Á¦°üÁö)<¹®È­À¯»êÀÇ º¸Á¸ ¹× Ȱ¿ë¿¡ °üÇÑ ¹ý·ü>, °ú¹Ð¾ïÁ¦±Ç¿ª<¼öµµ±ÇÁ¤ºñ°èȹ¹ý>
9)°øºÎ¿ÍÀÇ Â÷ÀÌ
°øºÎ¿ÍÀÇ Â÷ÀÌ ¾ø½À´Ï´Ù.
10)±âŸÂü°í»çÇ×(ÀÓ´ë°ü·Ê ¹× ±âŸ)
ÀÓ´ë°ü°è ¹Ì»óÀÔ´Ï´Ù.

º»°ÇÀº ³»ºÎ±¸Á¶ È®ÀÎ ¹× ÀÛ¼ºÀº ÀÌÇØ°ü°èÀÎÀÇ Æó¹® ¹× ºÎÀç·Î ÀÎÇÏ¿© °Ç¹° ¿Ü°ü ¹× ޹®Á¶»ç, °ÇÃ๰ÇöȲµµ¸é¿¡ ÀǰÅÇÏ¿© Ç¥ÁØÀûÀ̰í ÀϹÝÀûÀÎ ÀÌ¿ë ¹× °ü¸®»óŸ¦ ±âÁØÇÏ¿© ÀÛ¼ºÇÏ¿´À¸¹Ç·Î °æ¸Å ÁøÇà½Ã Âü°íÇϽñ⠹ٶø´Ï´Ù.
Âü°í
»çÇ×

º»°ÇÀº ±ÙÄÜÅ©¸®Æ®º®½Ä±¸Á¶ °æ»ç½º¶óºêÁöºØ 10Ãþ ¾ÆÆÄÆ®ÀÓ.

°ÇÃ๰ÇöȲ

¼ÒÀçÁö °æ±âµµ °í¾ç½Ã ´ö¾ç±¸ °í¾çµ¿ 414-17¹øÁö
´ëÁö¸éÀû   ¿¬¸éÀû 5109.45§³
(1548.32Æò)
°ÇÃà¸éÀû 533.625§³
(161.7Æò)
¿ëÀû·ü»êÁ¤
¿¬¸éÀû
4704.45§³
(1425.59Æò)
°ÇÆóÀ²   ¿ëÀû·ü  
Áö»óÃþ¼ö 10Ãþ ÁöÇÏÃþ¼ö 1Ãþ
ÁÖ¿ëµµ °øµ¿ÁÖÅà ±¸Á¶ ö±ÙÄÜÅ©¸®Æ®±¸Á¶
Âø°øÀÏÀÚ 1995.01.16 »ç¿ë½ÂÀÎÀÏÀÚ 1997.08.20
°ÇÃ๰Ãþº°ÇöȲ [º¸±â]


µî±âºÎµîº» ¿ä¾à(°Ç¹°)

  Á¢¼öÀÏÀÚ µî±â¸ñÀû/±Ç¸®ÀÚ ±Ç¸®±Ý¾× ±âÁØ
1 2018³â9¿ù18ÀÏ
¼ÒÀ¯±Ç
˱OO
¼Ò¸ê
2 2024³â3¿ù13ÀÏ
¾Ð·ù
±¹
¼Ò¸ê±âÁØ
3 2024³â4¿ù11ÀÏ
¾Ð·ù
±¹OOOO
¼Ò¸ê
4 2024³â11¿ù14ÀÏ
ÀÓÂ÷±Ç¼³Á¤
ÀÌOO
140,000,000 ¼Ò¸ê
5 2024³â11¿ù14ÀÏ
¾Ð·ù
±¹
¼Ò¸ê
6 2025³â8¿ù14ÀÏ
°­Á¦°æ¸Å
ÇÑOOOO
¼Ò¸ê

ÀÓÂ÷ÀÎÇöȲ (¹è´ç¿ä±¸Á¾±âÀÏ: 2025-11-10)

ÀÓÂ÷ÀÎ ¿ëµµ/Á¡À¯ º¸Áõ±Ý/¿ù¼¼ ´ëÇ×·Â
ÀüÀÔÀÏ/È®Á¤ÀÏ ¹è´ç¿ä±¸ ºñ°í
ÀÌOO ÀüºÎ 140,000,000
O
2022.11.11
2022.11.11
2022.11.11~
ÇÑOOOOOOO ÀüºÎ 140,000,000
O
2022.11.11
2022.11.11
2025.8.13. 2022.11.11~
ºñ°í
(¸Å°¢¹°°Ç
¸í¼¼¼­)
Çѱ¹ÁÖÅñÝÀ¶°ø»ç:ÀÓÂ÷±ÇÀÚ ÀÌ»ó±Ù ÀÓ´ëÂ÷º¸Áõ±Ý¹Ýȯä±ÇÀÇ ´ëÀ§º¯Á¦ÀÚÀÓ.

¾ÆÆÄÆ® Á¤º¸ À±Ã¢1Â÷

ÁÖ¼Ò °æ±â °í¾ç½Ã ´ö¾ç±¸ °í¾çµ¿ 414-17
½Ã°ø»ç À±Ã¢ÁÖÅðǼ³(ÁÖ) ´ÜÁö±Ô¸ð 6°³µ¿ 240°¡±¸(3°³µ¿)¼¼´ë
³­¹æ °³º°/¿­º´ÇÕ »ç¿ë½ÂÀÎ 1997-08
°ü¸®¼Ò 031)963-7555
Àü¿ë¸éÀû 58~84 ¼¼´ë¼ö 240°¡±¸(3°³µ¿)
´ëÁö±Ç
Çö°ü/±¸Á¶ °è´Ü½Ä / ¹æ, ¿å½Ç
  • Çб³ °í¾çÃÊ, ¸ñ¾ÏÃÊ,¸ñ¾ÏÁß,
  • ÁÖº¯½Ã¼³ ¼øÈïÇÑÀÇ¿ø, °í¾ç¼Ò¹æ¼­, µ¶ÀÏÀÎÇб³
  • ´ëÁß±³Åë ¸¶À»¹ö½º 1007-1

¿©ÀÇÁÖ°æ¸Å Á¶¾ð ÇÑ ¸¶µð

¼±¼øÀ§ ÀÓÂ÷±Çµî±â°¡ µÇ¾î ÀÖ½À´Ï´Ù
´ëÇ×·ÂÀÌ ÀÖ´Â ¼±¼øÀ§ ÀÓÂ÷±Çµî±â ±Ç¸®ÀÚ°¡ ¹è´çÀ» Àü¾× ¹ÞÁö ¸øÇÒ °æ¿ì ³«ÂûÀÚ°¡ ÀÜ¿© º¸Áõ±ÝÀ» ÀμöÇØ¾ßÇÏ´Â °æ¿ìµµ ÀÖ½À´Ï´Ù.

ÁÖÀÇ»çÇ× (ÃÖ¼±¼øÀ§ ¼³Á¤ÀÏ: 2024.03.13. ¾Ð·ù ¼³Á¤)

¸Å°¢À¸·Î ¼Ò¸êµÇÁö ¾Ê´Â µî±âºÎ±Ç¸®: ¸Å¼öÀο¡°Ô ´ëÇ×ÇÒ ¼ö ÀÖ´Â À»±¸ 18¹ø ÀÓÂ÷±Çµî±â(ÀÓ´ëÂ÷º¸Áõ±Ý 140,000,000¿ø, ÀüÀÔÀÏÀÚ 2022. 11. 11. È®Á¤ÀÏÀÚ 2022. 11. 11.)°¡ ÀÖÀ¸¹Ç·Î ¹è´ç¿¡¼­ Àü¾× º¯Á¦µÇÁö ¾Æ´ÏÇϸé Àܾ×Àº ¸Å¼öÀο¡°Ô ÀμöµÉ ¼ö ÀÖÀ½.
¸Å°¢À¸·Î ¼³Á¤µÈ °ÍÀ¸·Î º¸´Â Áö»ó±Ç:
¡Ø¹Ì³³°ü¸®ºñ(°ø¿ë) Àμö¿©ºÎ¸¦ ÀÔÂû Àü¿¡ È®ÀÎÇϽñ⠹ٶø´Ï´Ù

 

Áö¿ªºÐ¼®

ÁöÇÏö¸í Á÷¼±°Å¸®

Çб³¸í ÀüÈ­¹øÈ£ ÁÖ¼Ò Á÷¼±°Å¸®

¹ý¿ø

ÀÇÁ¤ºÎÁö¹æ¹ý¿ø °í¾çÁö¿ø (104-13)°æ±âµµ °í¾ç½Ã Àϻ굿±¸ Àå¹é·Î 209
´ëÇ¥ : 031)920-6114, ¾ß°£ : 031)920-6550, ÆÑ½º : 031)920-6119
°üÇÒÁö¿ª : °í¾ç½Ã, ÆÄÁÖ½Ã

µî±â¼Ò ÀÇÁ¤ºÎÁö¹æ¹ý¿ø °í¾çÁö¿ø °í¾çµî±â¼Ò (´ëÇ¥:1544-0773, ÆÑ½º:(031)920-5959, °æ±âµµ °í¾ç½Ã Àϻ굿±¸ Áß¾Ó·Î1275¹ø±æ 38-30 (ÀåÇ×µ¿ 773))
¼¼¹«¼­ µ¿°í¾ç¼¼¹«¼­ (´ëÇ¥:031-900-62, ÆÑ½º:031-963-2979, °æ±âµµ °í¾ç½Ã ´ö¾ç±¸ È­Áß·Î 104¹ø±æ 16(È­Á¤µ¿))

Àαٳ«ÂûÅë°è

±â°£ ¸Å°¢°Ç¼ö Æò±Õ°¨Á¤°¡
Æò±Õ¸Å°¢°¡
¸Å°¢°¡À²
Æò±ÕÀ¯Âû¼ö
3°³¿ù 28°Ç 478,642,857¿ø
410,900,949¿ø
84%
1.6ȸ
6°³¿ù 44°Ç 523,795,455¿ø
433,716,895¿ø
82%
1.6ȸ
12°³¿ù 106°Ç 523,345,283¿ø
444,434,020¿ø
84%
1.3ȸ


º» °æ¸ÅÁ¤º¸´Â ¹ý¿øÀÚ·á¿Í ÀÏÄ¡Çϵµ·Ï ÇÏ¿´À¸³ª ±Ç¸®»çÇ׺¯µ¿, ÀÔ·ÂÂø¿À µîÀÇ ¿øÀÎÀ¸·Î »ç½Ç°ú ´Ù¸¦ ¼ö ÀÖ½À´Ï´Ù. ÀÌ¿ë¾à°ü¿¡ ÀǰЏéÃ¥Á¶°ÇÀ¸·Î Á¦°øµÊÀ» ¾Ë¸®¸ç, °æ¸ÅÀÔÂû½Ã ¹Ýµå½Ã °ü·Ã °øºÎ¸¦ ÀçÈ®ÀÎÇϽñ⠹ٶø´Ï´Ù. º¸´Ù Æí¸®ÇÑ °æ¸ÅÁ¤º¸ Á¦°øÀ» À§ÇØ Áö¼ÓÀûÀ¸·Î °³¼±ÇϰڽÀ´Ï´Ù. ÀÌ¿ëÇØ Áּż­ °¨»çÇÕ´Ï´Ù.