·Î±×ÀÎ
47
¿ÀÇǽºÅÚ
¼ö¿øÁö¹æ¹ý¿ø
 °¨Á¤°¡618,000,000 ¿ø
 ÃÖÀú°¡(70%) 432,600,000 ¿ø
 º¸Áõ±Ý(10%) 43,260,000 ¿ø
 Ã»±¸¾×420,841,590 ¿ø
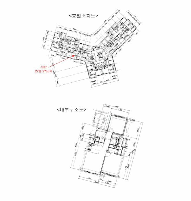
°æ±âµµ ¼ö¿ø½Ã ¿µÅ뱸 ¹ýÁ¶·Î 38, 101µ¿ 27Ãþ2703È£ (Çϵ¿,±¤±³´õ¼¥·¹ÀÌÅ©ÆÄÅ©)
°æ±âµµ ¼ö¿ø½Ã ¿µÅ뱸 Çϵ¿ 1019
»ç°Ç¹øÈ£ 2025Ÿ°æ53474
°æ¸ÅÁ¾·ùºÎµ¿»êÀÓÀǰæ¸Å
¸Å°¢´ë»óÅäÁö ¹× °Ç¹°Àϰý ¸Å°¢
¸Å°¢±âÀÏ    2026.02.03(È­) 10:00 ÀÔÂû 37ÀÏÀü    
ÅäÁö¸éÀû19.73§³(5.97 Æò)
°Ç¹°¸éÀû58.83§³(17.80 Æò)
乫/¼ÒÀ¯ÀÚÁÖOOOOOO / ÁÖOOOOOO
ä±ÇÀÚÁ¦OOOOOOO OOOO(OOOOOOOOOOOOOO)
ÆäÀ̽ººÏ Æ®À§ÅÍ ±¸±Û+
īī¿À½ºÅ丮
īī¿ÀÅå sms¹®ÀÚº¸³»±â
 

±âÀϳ»¿ª

°æ°ú ³¯Â¥ Àú°¨ ÃÖÀú°¡ °á°ú
Á¢¼öÀÏ 2025-01-21 °æ¸ÅÁ¢¼ö
~1ÀÏ 
2025-01-22 °æ¸Å°³½Ã°áÁ¤
~85ÀÏ 
2025-04-16 ¹è´ç¿ä±¸Á¾±âÀÏ
~337ÀÏ 
2025-12-24 100%
618,000,000
À¯Âû
~378ÀÏ 
2026-02-03 70%
432,600,000
ÁøÇà
¹°°Ç¸í¼¼¼­ ÇöȲÁ¶»ç¼­ ¹®°ÇÁ¢¼ö ¼Û´Þ³»¿ª

°¨Á¤Æò°¡ÇöȲ

¸ñ·Ï ÁÖ¼Ò ±¸Á¶/¿ëµµ/´ëÁö±Ç ¸éÀû ºñ°í
´ëÁö±Ç
Çϵ¿ 1019 14974.8ºÐÀÇ 19.73 19.73 §³
(5.97Æò)
°Ç¹°
Çϵ¿ 1019 101µ¿ 27Ãþ2703È£ ö±ÙÄÜÅ©¸®Æ®±¸Á¶ 58.83 §³
(17.80Æò)
1) À§Ä¡/µµ½ÃÁö¿ª/ÀϹݻó¾÷Áö¿ª/Áö±¸´ÜÀ§°èȹ±¸¿ª/¹ö½ºÁ¤·ùÀå/ÁöÇÏÁÖÂ÷Àå/ö±ÙÄÜÅ©¸®Æ®±¸Á¶/¹æ2 ´õº¸±â
°¨Á¤Æò°¡ ¿äÇ×Ç¥
1)À§Ä¡ ¹× ÁÖÀ§È¯°æ
º»°ÇÀº °æ±âµµ ¼ö¿ø½Ã ¿µÅ뱸 Çϵ¿¿¡ ¼ÒÀçÇÏ´Â '¿øÃµÈ£¼ö' ºÏÃø Àαٿ¡ À§Ä¡Çϸç ÁÖº¯Àº È£¼ö ¹× °ø¿ø, ¾÷¹«½Ã¼³(¿ÀÇǽºÅÚ), ¾ÆÆÄÆ®´ÜÁö, °ø°ø±â°ü, ±Ù¸°»ýȰ½Ã¼³ µîÀÌ ¼ÒÀçÇÏ´Â ÁÖ°Å ¹× ¾÷¹«½Ã¼³ÀÇ º¹ÇÕÁö´ëÀÓ.
2)±³Åë»óȲ
º»°Ç±îÁö Â÷·® ÃâÀÔÀÌ ¿ëÀÌÇÏ°í ºÏÃøÀ¸·Î ¿ë¼­°í¼Óµµ·Î Èï´öIC, ¿µµ¿°í¼Óµµ·Î µ¿¼ö¿øIC, ºÏ¼­Ãø¿¡ ½ÅºÐ´ç¼± ±¤±³Áß¾Ó¿ªÀÌ À§Ä¡Çϰí Àαٿ¡ ¹ö½ºÁ¤·ùÀåÀÌ ¼ÒÀçÇÔ.
3)°Ç¹°ÀÇ ±¸Á¶
ö±ÙÄÜÅ©¸®Æ®±¸Á¶ ö±ÙÄÜÅ©¸®Æ®ÁöºØ 35Ãþ ¾÷¹«½Ã¼³(¿ÀÇǽºÅÚ) ³» 27Ãþ 2703È£·Î¼­,

¿Üº®: ¼®Àç ºÙÀÓ ¹× ¸ôÅ» À§ ÆäÀÎÆÃ ¸¶°¨
³»º®: º®Áö ¹× ÀϺΠŸÀÏ µî ¸¶°¨
âȣ: ¼¨½Ã âȣÀÓ.
4)ÀÌ¿ë»óÅÂ
¿ÀÇǽºÅÚ(¹æ2, °Å½Ç, ÁÖ¹æ, ¿å½Ç µî)·Î ÀÌ¿ë ÁßÀÓ.(ÈÄ÷ ³»ºÎ±¸Á¶µµ ¹× °øºÎ ÂüÁ¶)
5)¼³ºñ³»¿ª
À§»ý ¹× ±Þ¹è¼ö¼³ºñ, ½Â°­±â¼³ºñ, °øµ¿Çö°üº¸¾È°³Æó¼³ºñ, ÁöÇÏÁÖÂ÷Àå µîÀ» °®Ãã.
6)ÅäÁöÀÇ Çü»ó ¹× ÀÌ¿ë»óÅÂ
ÆòÁöÀÇ °¡ÀåÇü ÅäÁö·Î¼­ ¾÷¹«½Ã¼³(¿ÀÇǽºÅÚ) °ÇºÎÁö·Î ÀÌ¿ë ÁßÀÓ.
7)ÀÎÁ¢ µµ·Î»óŵî
º»°Ç ´ÜÁö ³» µµ·Î°¡ ºÏÃøÀ¸·Î ¿ÜºÎ °øµµ¿Í ¿¬°áµÊ.
8)ÅäÁöÀÌ¿ë°èȹ ¹× Á¦ÇÑ»óÅÂ
µµ½ÃÁö¿ª, ÀϹݻó¾÷Áö¿ª, Áö±¸´ÜÀ§°èȹ±¸¿ª(±¤±³Áö±¸), ´ë·Î3·ù(Æø 25m~30m)(Á¢ÇÕ), Áß·Î1·ù(Æø 20m~25m)(2012-01-05)(Á¢ÇÕ) °¡Ãà»çÀ°Á¦Çѱ¸¿ª<°¡ÃàºÐ´¢ÀÇ °ü¸® ¹× À̿뿡 °üÇÑ ¹ý·ü>, µµ½Ã±³ÅëÁ¤ºñÁö¿ª<µµ½Ã±³ÅëÁ¤ºñÃËÁø¹ý>, °ú¹Ð¾ïÁ¦±Ç¿ª<¼öµµ±ÇÁ¤ºñ°èȹ¹ý>, ÅÃÁö°³¹ßÁö±¸<ÅÃÁö°³¹ßÃËÁø¹ý>ÀÓ.
9)°øºÎ¿ÍÀÇ Â÷ÀÌ
¾øÀ½.
10)±âŸÂü°í»çÇ×(ÀÓ´ë°ü·Ê ¹× ±âŸ)
ÀÓ´ë°ü°è ¹Ì»óÀÌ¸ç ³»ºÎ Á¢±ÙÀÌ Á¦ÇѵŠÀÖ¾î Ç¥ÁØÀû ÀÌ¿ë»óȲÀ» ±âÁØÀ¸·Î ÇÏ¿´À½.
Âü°í
»çÇ×

º»°Ç ºÎµ¿»êÀÇ ÇöȲÀº ¿Ü

°ÇÃ๰ÇöȲ

¼ÒÀçÁö °æ±âµµ ¼ö¿ø½Ã ¿µÅ뱸 Çϵ¿ 1019¹øÁö
´ëÁö¸éÀû   ¿¬¸éÀû 3156.8§³
(956.61Æò)
°ÇÃà¸éÀû 1412.03§³
(427.89Æò)
¿ëÀû·ü»êÁ¤
¿¬¸éÀû
874.3§³
(264.94Æò)
°ÇÆóÀ²   ¿ëÀû·ü  
Áö»óÃþ¼ö 1Ãþ ÁöÇÏÃþ¼ö 1Ãþ
ÁÖ¿ëµµ ÆÇ¸Å½Ã¼³ ±¸Á¶ ö±ÙÄÜÅ©¸®Æ®±¸Á¶
Âø°øÀÏÀÚ 2013.11.15 »ç¿ë½ÂÀÎÀÏÀÚ 2016.09.09
°ÇÃ๰Ãþº°ÇöȲ [º¸±â]


µî±âºÎµîº» ¿ä¾à(°Ç¹°)

  Á¢¼öÀÏÀÚ µî±â¸ñÀû/±Ç¸®ÀÚ ±Ç¸®±Ý¾× ±âÁØ
1 2022³â10¿ù17ÀÏ
¼ÒÀ¯±Ç
(OOOO
¼Ò¸ê
2 2022³â10¿ù17ÀÏ
±ÙÀú´ç±Ç
Á¦OOOO
480,000,000 ¼Ò¸ê±âÁØ
3 2024³â12¿ù17ÀÏ
ÀÓÂ÷±Ç¼³Á¤
º¯OO
300,000,000 ¼Ò¸ê
4 2025³â1¿ù22ÀÏ
ÀÓÀǰæ¸Å
ÀÇOOOO
¼Ò¸ê

ÀÓÂ÷ÀÎÇöȲ (¹è´ç¿ä±¸Á¾±âÀÏ: 2025-04-16)

ÀÓÂ÷ÀÎ ¿ëµµ/Á¡À¯ º¸Áõ±Ý/¿ù¼¼ ´ëÇ×·Â
ÀüÀÔÀÏ/È®Á¤ÀÏ ¹è´ç¿ä±¸ ºñ°í
º¯OO 2703È£ 300,000,000
X
2022.12.01.
1Â÷:2022.12.1.2Â÷:2024.11.12.
2025.2.17. 2022.12.01.~2024.11.30.
ÁÖOOOOOOOOOOOOOOOO 2703È£ 300,000,000
X
2022.12.01.
2022.12.01.
2025.4.10. 2022.12.01.~2024.11.30.
ºñ°í
(¸Å°¢¹°°Ç
¸í¼¼¼­)
ÁÖÅõµ½Ãº¸Áõ°ø»ç(¾çµµÀÎ:º¯¹Î¼ö):ÀÓÂ÷ÀÎ º¯¹Î¼öÀÇ º¸Áõ±Ý¹Ýȯä±ÇÀ» ¾ç¼öÇÔ(ÁÖÅÃÀÓ´ëÂ÷º¸È£¹ý Á¦3Á¶ÀÇ 2 Á¦7Ç×)

¿©ÀÇÁÖ°æ¸Å Á¶¾ð ÇÑ ¸¶µð


ÁÖÀÇ»çÇ× (ÃÖ¼±¼øÀ§ ¼³Á¤ÀÏ: 2022.10.17.±ÙÀú´ç±Ç ¼³Á¤)

¸Å°¢À¸·Î ¼Ò¸êµÇÁö ¾Ê´Â µî±âºÎ±Ç¸®:
¸Å°¢À¸·Î ¼³Á¤µÈ °ÍÀ¸·Î º¸´Â Áö»ó±Ç:
¡Ø¹Ì³³°ü¸®ºñ(°ø¿ë) Àμö¿©ºÎ¸¦ ÀÔÂû Àü¿¡ È®ÀÎÇϽñ⠹ٶø´Ï´Ù

 

Áö¿ªºÐ¼®

ÁöÇÏö¸í Á÷¼±°Å¸®

Çб³¸í ÀüÈ­¹øÈ£ ÁÖ¼Ò Á÷¼±°Å¸®

¹ý¿ø

¼ö¿øÁö¹æ¹ý¿ø (165-12)°æ±âµµ ¼ö¿ø½Ã ¿µÅ뱸 ¹ýÁ¶·Î 105, Çϵ¿, ¼ö¿ø¹ý¿øÁ¾ÇÕû»ç
´ëÇ¥ : 031)210-1114, ¾ß°£ : 031)210-1111
°üÇÒÁö¿ª : ¼ö¿ø½Ã, ¿À»ê½Ã, È­¼º½Ã, ¿ëÀνÃ

µî±â¼Ò ¼ö¿øÁö¹æ¹ý¿ø º»¿ø µ¿¼ö¿øµî±â¼Ò (´ëÇ¥:1544-0773, ÆÑ½º:(031)206-1934, 204-4677, °æ±âµµ ¼ö¿ø½Ã ¿µÅ뱸 û¸í·Î 127 (¿µÅ뵿 961-16))
¼¼¹«¼­ µ¿¼ö¿ø¼¼¹«¼­ (´ëÇ¥:031-695-42, ÆÑ½º:031-273-2416, °æ±âµµ ¼ö¿ø½Ã ¿µÅ뱸 û¸í³²·Î 13 (¿µÅ뵿))

Àαٳ«ÂûÅë°è

±â°£ ¸Å°¢°Ç¼ö Æò±Õ°¨Á¤°¡
Æò±Õ¸Å°¢°¡
¸Å°¢°¡À²
Æò±ÕÀ¯Âû¼ö
3°³¿ù 9°Ç 412,122,222¿ø
174,779,000¿ø
62%
2.4ȸ
6°³¿ù 9°Ç 412,122,222¿ø
174,779,000¿ø
62%
2.4ȸ
12°³¿ù 17°Ç 341,182,353¿ø
163,684,029¿ø
60%
2.3ȸ


º» °æ¸ÅÁ¤º¸´Â ¹ý¿øÀÚ·á¿Í ÀÏÄ¡Çϵµ·Ï ÇÏ¿´À¸³ª ±Ç¸®»çÇ׺¯µ¿, ÀÔ·ÂÂø¿À µîÀÇ ¿øÀÎÀ¸·Î »ç½Ç°ú ´Ù¸¦ ¼ö ÀÖ½À´Ï´Ù. ÀÌ¿ë¾à°ü¿¡ ÀǰЏéÃ¥Á¶°ÇÀ¸·Î Á¦°øµÊÀ» ¾Ë¸®¸ç, °æ¸ÅÀÔÂû½Ã ¹Ýµå½Ã °ü·Ã °øºÎ¸¦ ÀçÈ®ÀÎÇϽñ⠹ٶø´Ï´Ù. º¸´Ù Æí¸®ÇÑ °æ¸ÅÁ¤º¸ Á¦°øÀ» À§ÇØ Áö¼ÓÀûÀ¸·Î °³¼±ÇϰڽÀ´Ï´Ù. ÀÌ¿ëÇØ Áּż­ °¨»çÇÕ´Ï´Ù.