·Î±×ÀÎ
18
´Ù¼¼´ë(ºô¶ó)
ÀÎõÁö¹æ¹ý¿ø
 °¨Á¤°¡164,000,000 ¿ø
 ÃÖÀú°¡(100%) 164,000,000 ¿ø
 º¸Áõ±Ý(10%) 16,400,000 ¿ø
 Ã»±¸¾×200,000,000 ¿ø
ÀÎõ±¤¿ª½Ã ¹ÌÃßȦ±¸ ¼þÀǵ¿ 48-13 ¸¶ÀÌÇØÇÇȨŸ¿î 4Ãþ401È£
»ç°Ç¹øÈ£ 2025Ÿ°æ508570
°æ¸ÅÁ¾·ùºÎµ¿»ê°­Á¦°æ¸Å
¸Å°¢´ë»óÅäÁö ¹× °Ç¹°Àϰý ¸Å°¢
¸Å°¢±âÀÏ    2025.12.23(È­) 10:00 ÀÔÂû 13ÀÏÀü    
ÅäÁö¸éÀû15.20§³(4.60 Æò)
°Ç¹°¸éÀû52.91§³(16.01 Æò)
乫/¼ÒÀ¯ÀÚÀÓOO / ÀÓOO
ä±ÇÀÚÁÖOOOOOOO
ÆäÀ̽ººÏ Æ®À§ÅÍ ±¸±Û+
īī¿À½ºÅ丮
īī¿ÀÅå sms¹®ÀÚº¸³»±â
 

±âÀϳ»¿ª

°æ°ú ³¯Â¥ Àú°¨ ÃÖÀú°¡ °á°ú
Á¢¼öÀÏ 2025-04-01 °æ¸ÅÁ¢¼ö
~1ÀÏ 
2025-04-02 °æ¸Å°³½Ã°áÁ¤
~97ÀÏ 
2025-07-07 ¹è´ç¿ä±¸Á¾±âÀÏ
~266ÀÏ 
2025-12-23 100%
164,000,000
ÁøÇà
¹°°Ç¸í¼¼¼­ ÇöȲÁ¶»ç¼­ ¹®°ÇÁ¢¼ö ¼Û´Þ³»¿ª

°¨Á¤Æò°¡ÇöȲ

¸ñ·Ï ÁÖ¼Ò ±¸Á¶/¿ëµµ/´ëÁö±Ç ¸éÀû ºñ°í
´ëÁö±Ç
¼þÀǵ¿ 48-13 367ºÐÀÇ 15.2 15.2 §³
(4.60Æò)
°Ç¹°
¼þÀǵ¿ 48-13 4Ãþ401È£ ö±ÙÄÜÅ©¸®Æ®±¸Á¶ 52.91 §³
(16.01Æò)
1) À§Ä¡/ÁØÁÖ°ÅÁö¿ª/³ë¼±¹ö½º Á¤·ùÀå/Á¦¹Ý Â÷·® ÃâÀÔ/ö±ÙÄÜÅ©¸®Æ®Á¶/µµ½Ã°¡½º ´õº¸±â
°¨Á¤Æò°¡ ¿äÇ×Ç¥
1)À§Ä¡ ¹× ÁÖÀ§È¯°æ
´ë»ó¹°°ÇÀº ÀÎõ±¤¿ª½Ã ¹ÌÃßȦ±¸ µµÈ­µ¿ ¼ÒÀç ""Á¦¹°Æ÷¿ª"" ³²Ãø Àαٿ¡ À§Ä¡Çϸç, ÁÖÀ§´Â
À¯»ç À¯ÇüÀÇ °øµ¿ÁÖÅà ¹× ±Ù¸°»ýȰ½Ã¼³ µîÀÌ ¼ÒÀçÇÏ´Â ±¸½Ã°¡Áö ³» ÁÖ°Å ¹ÐÁýÁö¿ªÀÓ.
2)±³Åë»óȲ
º» °Ç±îÁö Á¦¹Ý Â÷·® ÃâÀÔ ÀÚÀ¯·Î¿ì¸ç, Àαٿ¡ ³ë¼±¹ö½º Á¤·ùÀå ¹× Àüö¿ªÀÌ ¼ÒÀçÇÏ´Â µî ´ëÁß±³Åë ÆíÀÍÀº ¾çÈ£ÇÑ ÆíÀÓ.
3)°Ç¹°ÀÇ ±¸Á¶
ö±ÙÄÜÅ©¸®Æ®Á¶ (ö±Ù)ÄÜÅ©¸®Æ®ÁöºØ 9Ãþ °Ç¹° ³» 4Ãþ 401È£·Î¼­,
(»ç¿ë½ÂÀÎÀÏ: 2017.05.12)

¿Ü º® : ¸ôÅ»À§ »÷µå½ºÇÁ·¹ÀÌ ¹× ¼®ÀçºÙÀÓ µî ¸¶°¨.
â È£ : ¼¨½Ãâȣ µîÀÓ.
4)ÀÌ¿ë»óÅÂ
´Ù¼¼´ëÁÖÅÃÀ¸·Î ÀÌ¿ëÁßÀÓ.
5)¼³ºñ³»¿ª
À§»ý ¹× ±Þ¹è¼ö¼³ºñ, µµ½Ã°¡½º¼³ºñ. ³­¹æ¼³ºñ, ½Â°­±â¼³ºñ µîÀÌ °®Ãß¾îÁ® ÀÖÀ½.
6)ÅäÁöÀÇ Çü»ó ¹× ÀÌ¿ë»óÅÂ
À广Çü ÆòÁöÀ̸ç 1°³ µ¿(24°³ È£, ÁÖÂ÷21´ë, ¿¬¸éÀû 1,854.77§³, ¿ëÀû·ü 439%) °ÇºÎÁöÀÓ.
7)ÀÎÁ¢ µµ·Î»óŵî
µ¿ÃøÀ¸·Î ·ÎÆø ¾à 7~8¹ÌÅÍ µµ·Î¿Í Á¢ÇÏ¸ç ³²ÃøÀ¸·Î ¸·´Ù¸¥ ±æ ·ÎÆø ¾à4¹ÌÅÍ µµ·Î¿Í Á¢ÇÔ.
8)ÅäÁöÀÌ¿ë°èȹ ¹× Á¦ÇÑ»óÅÂ
ÁØÁÖ°ÅÁö¿ª, °¡Ãà»çÀ°Á¦Çѱ¸¿ª(ÀÎõ±¤¿ª½Ã ¹ÌÃßȦ±¸ °¡Ãà»çÀ°Á¦ÇÑ¿¡ °üÇÑ Á¶·Ê[2018. 7. 1.])<°¡ÃàºÐ´¢ÀÇ °ü¸® ¹× À̿뿡 °üÇÑ ¹ý·ü> , »ó´ëº¸È£±¸¿ª<±³À°È¯°æ º¸È£¿¡ °üÇÑ ¹ý·ü> , »ó´ëº¸È£±¸¿ª(2019-10-29)<±³À°È¯°æ º¸È£¿¡ °üÇÑ ¹ý·ü> , °ú¹Ð¾ïÁ¦±Ç¿ª<¼öµµ±ÇÁ¤ºñ°èȹ¹ý>.
9)°øºÎ¿ÍÀÇ Â÷ÀÌ
ÇØ´ç»çÇ× ¾øÀ½.
10)±âŸÂü°í»çÇ×(ÀÓ´ë°ü·Ê ¹× ±âŸ)
ÀÓÂ÷º¸Áõ±Ý ±Ý200,000,000¿ø ÁÖÅÃÀÓÂ÷±Ç µî±âµÇ¾î ÀÖÀ¸¸ç ÇöÀç ÀÓ´ë°ü°è´Â ¹Ì»óÀÓ.
Âü°í
»çÇ×

º»°ÇÀº ºô¶ó, ´Üµ¶ ÁÖ

°ÇÃ๰ÇöȲ

¼ÒÀçÁö ÀÎõ±¤¿ª½Ã ¹ÌÃßȦ±¸ ¼þÀǵ¿ 48-13¹øÁö
´ëÁö¸éÀû 367§³
(111.21Æò)
¿¬¸éÀû 1854.77§³
(562.05Æò)
°ÇÃà¸éÀû 219.97§³
(66.66Æò)
¿ëÀû·ü»êÁ¤
¿¬¸éÀû
1611.14§³
(488.22Æò)
°ÇÆóÀ² 59.94% ¿ëÀû·ü 439%
Áö»óÃþ¼ö 9Ãþ ÁöÇÏÃþ¼ö 1Ãþ
ÁÖ¿ëµµ ¾÷¹«½Ã¼³ ±¸Á¶ ö±ÙÄÜÅ©¸®Æ®±¸Á¶
Âø°øÀÏÀÚ 2015.12.07 »ç¿ë½ÂÀÎÀÏÀÚ 2017.05.12
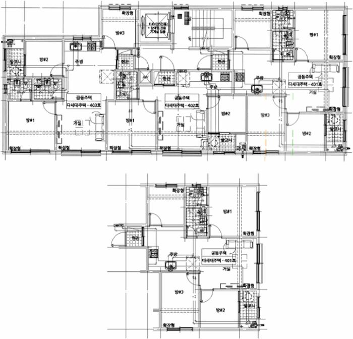
°ÇÃ๰Ãþº°ÇöȲ [º¸±â]


±¹ÅäºÎ½Ç°Å·¡°¡ ÀÎõ±¤¿ª½Ã ¹ÌÃßȦ±¸ ¼þÀǵ¿

¡Ü ¸Å¸Å

¸éÀû(§³), ±Ý¾×(¸¸¿ø)

¡Ü Àü¼¼

¸éÀû(§³), ±Ý¾×(¸¸¿ø)

°è¾àÀϰǹ°¸íĪÃþ¿¬¸éÀû´ëÁö±Ý¾×°ÇÃà
24.03.30°æÁÖÆÄÅ©662.2824.924716,2502016
24.03.29dz°æÃ¤102µ¿450.7921.7418,0002015
24.03.28»ï¼ºÄ³½½958.3511.7615,5002014
24.03.28¿¡µ§ÇÏÀÌÃ÷Aµ¿239.9726.265,0002001
24.03.27µ¿¸í¾ÆÆ®ºôAµ¿257.8521.78414,0002001
¢Ñ ´õº¸±â

µî±âºÎµîº» ¿ä¾à(°Ç¹°)

  Á¢¼öÀÏÀÚ µî±â¸ñÀû/±Ç¸®ÀÚ ±Ç¸®±Ý¾× ±âÁØ
1 2019³â12¿ù23ÀÏ
¼ÒÀ¯±Ç
ÀÓOO
¼Ò¸ê
2 2022³â8¿ù18ÀÏ
¾Ð·ù
±¹
¼Ò¸ê±âÁØ
3 2022³â9¿ù30ÀÏ
°¡¾Ð·ù
ÁÖOOOO
3,039,000,000 ¼Ò¸ê
4 2024³â2¿ù20ÀÏ
ÀÓÂ÷±Ç¼³Á¤
±èOO
200,000,000 ¼Ò¸ê
5 2025³â4¿ù2ÀÏ
°­Á¦°æ¸Å
ÁÖOOOO
¼Ò¸ê

ÀÓÂ÷ÀÎÇöȲ (¹è´ç¿ä±¸Á¾±âÀÏ: 2025-07-07)



¸Å°¢±âÀÏ 7ÀÏÀü¿¡ ¸Å°¢¹°°Ç¸í¼¼¼­°¡ °ø°íµÇ¿À´Ï È®ÀÎÇϽñ⠹ٶø´Ï´Ù.

ÀÓÂ÷ÀÎ ¿ëµµ/Á¡À¯ º¸Áõ±Ý/¿ù¼¼ ´ëÇ×·Â
ÀüÀÔÀÏ/È®Á¤ÀÏ ¹è´ç¿ä±¸ ºñ°í
±èOO ÀüºÎ 200,000,000
O
2021.12.10.
2021.12.02.
ÁÖOOOOOOOOOOOOOOOO ÀüºÎ 200,000,000
O
2021.12.10.
2021.12.02.
2025.7.7. 2021.12.10.~2023.12.10.
ºñ°í
(¸Å°¢¹°°Ç
¸í¼¼¼­)
±è¿µÈÆ:ÁÖÅÃÀÓÂ÷±Çµî±â±ÇÀڷμ­ ÁÖÅÃÀÓÂ÷±Çµî±âÀÏÀº 2024.02.20.ÀÓ ÁÖÅõµ½Ãº¸Áõ°ø»ç(ÀÓÂ÷ÀÎ:±è¿µÈÆ):ÁÖÅÃÀÓÂ÷±ÇÀÇ ½Â°èÀÎÀÎ ÁÖÅõµ½Ãº¸Áõ°ø»ç·ÎºÎÅÍ ¿ì¼±º¯Á¦±Ç¸¸ ÁÖÀåÇÏ°í ´ëÇ×·ÂÀº Æ÷±âÇϸç ÀÓ´ëÂ÷º¸Áõ±Ý Àü¾×À» º¯Á¦¹ÞÁö ¸øÇÏ´õ¶óµµ ¸Å¼öÀο¡ ´ëÇÑ ÀÜÁ¸ ÀÓ´ëÂ÷º¸Áõ±Ý ¹Ýȯû±¸±ÇÀ» Æ÷±âÇϰí ÀÓ´ëÂ÷µî±â¸¦ ¸»¼ÒÇÏ´Â °Í¿¡ µ¿ÀÇÇÑ´Ù´Â È®¾à¼­°¡ Á¦ÃâµÊ

¿©ÀÇÁÖ°æ¸Å Á¶¾ð ÇÑ ¸¶µð

¼±¼øÀ§ ÀÓÂ÷±Çµî±â°¡ µÇ¾î ÀÖ½À´Ï´Ù
´ëÇ×·ÂÀÌ ÀÖ´Â ¼±¼øÀ§ ÀÓÂ÷±Çµî±â ±Ç¸®ÀÚ°¡ ¹è´çÀ» Àü¾× ¹ÞÁö ¸øÇÒ °æ¿ì ³«ÂûÀÚ°¡ ÀÜ¿© º¸Áõ±ÝÀ» ÀμöÇØ¾ßÇÏ´Â °æ¿ìµµ ÀÖ½À´Ï´Ù.

ÁÖÀÇ»çÇ× (ÃÖ¼±¼øÀ§ ¼³Á¤ÀÏ: 2022.08.18. ¾Ð·ù ¼³Á¤)

¸Å°¢À¸·Î ¼Ò¸êµÇÁö ¾Ê´Â µî±âºÎ±Ç¸®: À»±¸ ¼øÀ§1¹ø ÁÖÅÃÀÓÂ÷±Çµî±â(´Ù¸¸ ÁÖÅõµ½Ãº¸Áõ°ø»çÀÇ ¸»¼Òµ¿ÀÇ È®¾à¼­°¡ Á¦ÃâµÊ)
¸Å°¢À¸·Î ¼³Á¤µÈ °ÍÀ¸·Î º¸´Â Áö»ó±Ç:
¡Ø¹Ì³³°ü¸®ºñ(°ø¿ë) Àμö¿©ºÎ¸¦ ÀÔÂû Àü¿¡ È®ÀÎÇϽñ⠹ٶø´Ï´Ù

 

Áö¿ªºÐ¼®

ÁöÇÏö¸í Á÷¼±°Å¸®

Çб³¸í ÀüÈ­¹øÈ£ ÁÖ¼Ò Á÷¼±°Å¸®

¹ý¿ø

ÀÎõÁö¹æ¹ý¿ø (222-20)ÀÎõ±¤¿ª½Ã ¹ÌÃßȦ±¸ ¼Ò¼º·Î 163¹ø±æ 17(ÇÐÀ͵¿)
´ëÇ¥ : 032)860-1113~4
°üÇÒÁö¿ª : Áß±¸, µ¿±¸, ³²±¸, ¿¬¼ö±¸, ³²µ¿±¸, ºÎÆò±¸, °è¾ç±¸, ¼­±¸, ¿ËÁø±º, °­È­±º

µî±â¼Ò ÀÎõÁö¹æ¹ý¿ø º»¿ø µî±â±¹ (´ëÇ¥:1544-0773, ÆÑ½º:(032)620-9099, ÀÎõ±¤¿ª½Ã ¹ÌÃßȦ±¸ °æ¿ø´ë·Î 881(Á־ȵ¿ 983))
¼¼¹«¼­ ÀÎõ¼¼¹«¼­ (´ëÇ¥:032-770-02, ÆÑ½º:032-777-8104, ÀÎõ±¤¿ª½Ã µ¿±¸ ¿ì°¢·Î 75 (⿵µ¿))

Àαٳ«ÂûÅë°è

±â°£ ¸Å°¢°Ç¼ö Æò±Õ°¨Á¤°¡
Æò±Õ¸Å°¢°¡
¸Å°¢°¡À²
Æò±ÕÀ¯Âû¼ö
3°³¿ù 89°Ç 136,348,315¿ø
76,099,547¿ø
55%
2.8ȸ
6°³¿ù 188°Ç 142,068,617¿ø
84,037,494¿ø
59%
2.3ȸ
12°³¿ù 344°Ç 138,904,070¿ø
84,857,263¿ø
61%
2.2ȸ


º» °æ¸ÅÁ¤º¸´Â ¹ý¿øÀÚ·á¿Í ÀÏÄ¡Çϵµ·Ï ÇÏ¿´À¸³ª ±Ç¸®»çÇ׺¯µ¿, ÀÔ·ÂÂø¿À µîÀÇ ¿øÀÎÀ¸·Î »ç½Ç°ú ´Ù¸¦ ¼ö ÀÖ½À´Ï´Ù. ÀÌ¿ë¾à°ü¿¡ ÀǰЏéÃ¥Á¶°ÇÀ¸·Î Á¦°øµÊÀ» ¾Ë¸®¸ç, °æ¸ÅÀÔÂû½Ã ¹Ýµå½Ã °ü·Ã °øºÎ¸¦ ÀçÈ®ÀÎÇϽñ⠹ٶø´Ï´Ù. º¸´Ù Æí¸®ÇÑ °æ¸ÅÁ¤º¸ Á¦°øÀ» À§ÇØ Áö¼ÓÀûÀ¸·Î °³¼±ÇϰڽÀ´Ï´Ù. ÀÌ¿ëÇØ Áּż­ °¨»çÇÕ´Ï´Ù.