·Î±×ÀÎ
60
¿ÀÇǽºÅÚ
Á¦ÁÖÁö¹æ¹ý¿ø
 °¨Á¤°¡393,000,000 ¿ø
 ÃÖÀú°¡(70%) 275,100,000 ¿ø
 º¸Áõ±Ý(10%) 27,510,000 ¿ø
 Ã»±¸¾×330,000,000 ¿ø
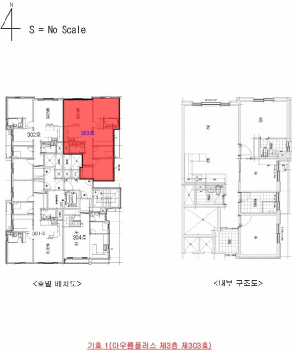
Á¦ÁÖÆ¯º°ÀÚÄ¡µµ Á¦Áֽà ¿¬µ¿ 1371 ¾Æ¿ì·ëÇ÷¯½º 3Ãþ 303È£
»ç°Ç¹øÈ£ 2025Ÿ°æ7906
°æ¸ÅÁ¾·ùºÎµ¿»êÀÓÀǰæ¸Å
¸Å°¢´ë»óÅäÁö ¹× °Ç¹°Àϰý ¸Å°¢
¸Å°¢±âÀÏ    2026.02.03(È­) 10:00 ÀÔÂû 40ÀÏÀü    
ÅäÁö¸éÀû10.68§³(3.23 Æò)
°Ç¹°¸éÀû77.74§³(23.52 Æò)
乫/¼ÒÀ¯ÀÚ±èOO / ±èOO
ä±ÇÀÚ±èOO
ÆäÀ̽ººÏ Æ®À§ÅÍ ±¸±Û+
īī¿À½ºÅ丮
īī¿ÀÅå sms¹®ÀÚº¸³»±â
 

±âÀϳ»¿ª

°æ°ú ³¯Â¥ Àú°¨ ÃÖÀú°¡ °á°ú
Á¢¼öÀÏ 2025-04-15 °æ¸ÅÁ¢¼ö
~2ÀÏ 
2025-04-17 °æ¸Å°³½Ã°áÁ¤
~97ÀÏ 
2025-07-21 ¹è´ç¿ä±¸Á¾±âÀÏ
~252ÀÏ 
2025-12-23 100%
393,000,000
À¯Âû
~294ÀÏ 
2026-02-03 70%
275,100,000
ÁøÇà
¹°°Ç¸í¼¼¼­ ÇöȲÁ¶»ç¼­ ¹®°ÇÁ¢¼ö ¼Û´Þ³»¿ª

°¨Á¤Æò°¡ÇöȲ

¸ñ·Ï ÁÖ¼Ò ±¸Á¶/¿ëµµ/´ëÁö±Ç ¸éÀû ºñ°í
´ëÁö±Ç
¿¬µ¿ 1371 544.4ºÐÀÇ 10.684 10.684 §³
(3.23Æò)
°Ç¹°
¿¬µ¿ 1371 3Ãþ 303È£ ö±ÙÄÜÅ©¸®Æ®±¸Á¶ 77.743 §³
(23.52Æò)
1) À§Ä¡/ÀϹݻó¾÷Áö¿ª/Á¦1Á¾Áö±¸´ÜÀ§°èȹ±¸¿ª/¹ö½ºÁ¤·ùÀå/ÁÖÂ÷Àå/ö±ÙÄÜÅ©¸®Æ®±¸Á¶ ´õº¸±â
°¨Á¤Æò°¡ ¿äÇ×Ç¥
1)À§Ä¡ ¹× ÁÖÀ§È¯°æ
º»°ÇÀº Á¦ÁÖÆ¯º°ÀÚÄ¡µµ Á¦Áֽà ¿¬µ¿ ¼ÒÀç ¡°´ë¸²1Â÷ ÀÌÆíÇÑ¾ÆÆÄÆ® ´ÜÁö¡± ºÏÃø Àαٿ¡ À§Ä¡Çϸç, ÁÖÀ§´Â ¾ÆÆÄÆ® ¹× ¿ÀÇǽºÅÚ ºôµù, ¾÷¹«¿ëºôµù, ÁÖ»ó¿ëºôµù, ±Ù¸°»ýȰ½Ã¼³ µîÀÌ È¥ÀçÇÏ´Â »ó¾÷Áö¿ªÀÓ.
2)±³Åë»óȲ
Àαٿ¡ ¹ö½ºÁ¤·ùÀå µîÀÌ ¼ÒÀçÇÏ¿© Á¦¹Ý±³Åë»çÁ¤Àº ¾çÈ£ÇÑ ÆíÀÓ.
3)°Ç¹°ÀÇ ±¸Á¶
ö±ÙÄÜÅ©¸®Æ®±¸Á¶ Æò½½·¡ºêÁöÁß 15Ãþ °Ç¹° Áß Á¦3ÃþÀ¸·Î¼­,
¿Üº®:ÀÎÁ¶¼® ºÙÀÓ µî,
âȣ:»õ½Ãâȣ µîÀÓ.
4)ÀÌ¿ë»óÅÂ
¿ÀÇǽºÅÚ·Î ÀÌ¿ëÁßÀÓ.
5)¼³ºñ³»¿ª
À§»ý ¹× ±Þ¹è¼ö¼³ºñ, ½Â°­±â ¼³ºñ, ¿Á³»¼ÒÈ­Àü¼³ºñ, ³­¹æ¼³ºñ, ±â°è½Ä ÁÖÂ÷Àå¼³ºñ µÇ¾î ÀÖÀ½.
6)ÅäÁöÀÇ Çü»ó ¹× ÀÌ¿ë»óÅÂ
ÀÎÁ¢µµ·Î ´ëºñ ÆòÁöÀÎ ¼¼·ÎÀ广ÇüÀÇ ÅäÁö·Î¼­, ¿ÀÇǽºÅÚ µî °ÇºÎÁö·Î ÀÌ¿ëÁßÀÓ.
7)ÀÎÁ¢ µµ·Î»óŵî
-ºÏÃøÀ¸·Î °ø°ø°øÁö(1371-6¹øÁö)¸¦ »çÀÌ¿¡ µÎ°í ³ëÆø ¾à35¹ÌÅÍ ³»¿ÜÀÇ ¾Æ½ºÄÜÆ÷Àåµµ·Î°¡ ÀÖÀ½.
-¼­ÃøÀ¸·Î ³ëÆø ¾à10¹ÌÅÍ ³»¿ÜÀÇ º¸ÇàÀÚÀü¿ëµµ·Î¿¡ Á¢ÇÔ.
-³²ÃøÀ¸·Î ³ëÆø ¾à10¹ÌÅÍ ³»¿ÜÀÇ ¾Æ½ºÄÜÆ÷Àåµµ·Î¿¡ Á¢ÇÔ.
8)ÅäÁöÀÌ¿ë°èȹ ¹× Á¦ÇÑ»óÅÂ
ÀϹݻó¾÷Áö¿ª, ¹æÈ­Áö±¸, ½Ã°¡Áö°æ°üÁö±¸(Áß½É), Á¦1Á¾Áö±¸´ÜÀ§°èȹ±¸¿ª, ¼Ò·Î1·ù(Æø 10m~12m)(Á¢ÇÕ) °¡Ãà»çÀ°Á¦Çѱ¸¿ª(ÀüºÎÁ¦Çѱ¸¿ª)<°¡ÃàºÐ´¢ÀÇ °ü¸® ¹× À̿뿡 °üÇÑ ¹ý·ü>, Àå¾Ö¹°Á¦ÇÑÇ¥¸é±¸¿ª<°øÇ׽ü³¹ý>, °ÇÃà°èȹ½ÉÀÇ´ë»ó±¸¿ª(°ÇÃà°èȹ½ÉÀÇ´ë»ó±¸¿ª)<Á¦ÁÖÆ¯º°ÀÚÄ¡µµ ¼³Ä¡ ¹× ±¹Á¦ÀÚÀ¯µµ½Ã Á¶¼ºÀ» À§ÇÑ Æ¯º°¹ý>, ÁöÇϼöÀÚ¿øÆ¯º°°ü¸®±¸¿ª<Á¦ÁÖÆ¯º°ÀÚÄ¡µµ ¼³Ä¡ ¹× ±¹Á¦ÀÚÀ¯µµ½Ã Á¶¼ºÀ» À§ÇÑ Æ¯º°¹ý>ÀÓ.
9)°øºÎ¿ÍÀÇ Â÷ÀÌ
¾øÀ½.
10)±âŸÂü°í»çÇ×(ÀÓ´ë°ü·Ê ¹× ±âŸ)
ÀÓ´ë°ü°è´Â ¹Ì»óÀÓ.

°ÇÃ๰ÇöȲ

¼ÒÀçÁö Á¦ÁÖÆ¯º°ÀÚÄ¡µµ Á¦Áֽà ¿¬µ¿ 1371¹øÁö
´ëÁö¸éÀû 544.4§³
(164.97Æò)
¿¬¸éÀû 5354.499§³
(1622.58Æò)
°ÇÃà¸éÀû 429.47§³
(130.14Æò)
¿ëÀû·ü»êÁ¤
¿¬¸éÀû
4898.444§³
(1484.38Æò)
°ÇÆóÀ² 78.89% ¿ëÀû·ü 899.79%
Áö»óÃþ¼ö 15Ãþ ÁöÇÏÃþ¼ö 1Ãþ
ÁÖ¿ëµµ ¾÷¹«½Ã¼³ ±¸Á¶ ö±ÙÄÜÅ©¸®Æ®±¸Á¶
Âø°øÀÏÀÚ 2019.07.24 »ç¿ë½ÂÀÎÀÏÀÚ 2022.05.04
°ÇÃ๰Ãþº°ÇöȲ [º¸±â]


µî±âºÎµîº» ¿ä¾à(°Ç¹°)

  Á¢¼öÀÏÀÚ µî±â¸ñÀû/±Ç¸®ÀÚ ±Ç¸®±Ý¾× ±âÁØ
1 2022³â9¿ù21ÀÏ
¼ÒÀ¯±Ç
±èOO
¼Ò¸ê
2 2022³â9¿ù21ÀÏ
Àü¼¼±Ç
±èOO
330,000,000 ¼Ò¸ê±âÁØ
3 2023³â8¿ù18ÀÏ
°¡¾Ð·ù
³óOOOO
5,857,149 ¼Ò¸ê
4 2025³â4¿ù17ÀÏ
ÀÓÀǰæ¸Å
±èOO
¼Ò¸ê
5 2025³â10¿ù27ÀÏ
¾Ð·ù
±¹
¼Ò¸ê
6 2025³â11¿ù21ÀÏ
¾Ð·ù
Á¦OOOO
¼Ò¸ê
7 2025³â11¿ù26ÀÏ
¾Ð·ù
±¹
¼Ò¸ê

ÀÓÂ÷ÀÎÇöȲ (¹è´ç¿ä±¸Á¾±âÀÏ: 2025-07-21)

ÀÓÂ÷ÀÎ ¿ëµµ/Á¡À¯ º¸Áõ±Ý/¿ù¼¼ ´ëÇ×·Â
ÀüÀÔÀÏ/È®Á¤ÀÏ ¹è´ç¿ä±¸ ºñ°í
±èOO 3Ãþ303È£ÀüºÎ 330,000,000¿ø
X
2022.09.21
2022.09.21.Àü¼¼±Ç¼³Á¤
2025.4.15. 2022.09.21.~2024.09.20.
ºñ°í
(¸Å°¢¹°°Ç
¸í¼¼¼­)
±è°æ´ö : ÃÖ¼±¼øÀ§ Àü¼¼±ÇÀÚ °â ´ëÇ×·Â ÀÖ´Â ÀÓÂ÷ÀÎ ¹× °æ¸Å½Åûä±ÇÀÚ·Î ¹è´ç¿¡¼­ º¸Áõ±ÝÀÌ Àü¾× º¯Á¦µÇÁö ¾ÊÀ¸¸é Àܾ×À» ¸Å¼öÀÎÀÌ ÀμöÇÔ.

¿©ÀÇÁÖ°æ¸Å Á¶¾ð ÇÑ ¸¶µð


ÁÖÀÇ»çÇ× (ÃÖ¼±¼øÀ§ ¼³Á¤ÀÏ: 2022. 09. 21. Àü¼¼±Ç ¼³Á¤)

¸Å°¢À¸·Î ¼Ò¸êµÇÁö ¾Ê´Â µî±âºÎ±Ç¸®:
¸Å°¢À¸·Î ¼³Á¤µÈ °ÍÀ¸·Î º¸´Â Áö»ó±Ç:
- ÇöÀåÁ¶»ç½Ã °ÅÁÖÀÚ Æó¹®ºÎÀçÀÇ »çÀ¯·Î ³»ºÎÈ®ÀÎÀÌ °ï¶õÇÑ ¹Ù, ¿ÜºÎ°üÂû ¹× °ÇÃ൵¸é µîÀ» ÂüÁ¶ÇÏ¿© Åë»óÀûÀÎ ³»ºÎ ÀÎÅ׸®¾î »óŸ¦ ±âÁØÀ¸·Î °¨Á¤Æò°¡ÇÔ. - ÀÌ¿ë»óÅ : ¿ÀÇǽºÅÚ·Î ÀÌ¿ë ÁßÀÓ.
¡Ø¹Ì³³°ü¸®ºñ(°ø¿ë) Àμö¿©ºÎ¸¦ ÀÔÂû Àü¿¡ È®ÀÎÇϽñ⠹ٶø´Ï´Ù

 

Áö¿ªºÐ¼®

ÁöÇÏö¸í Á÷¼±°Å¸®

Çб³¸í ÀüÈ­¹øÈ£ ÁÖ¼Ò Á÷¼±°Å¸®

¹ý¿ø

Á¦ÁÖÁö¹æ¹ý¿ø (632-23)Á¦ÁÖÆ¯º°ÀÚÄ¡µµ Á¦Áֽà ³²±¤ºÏ5±æ 3 (À̵µ2µ¿)
´ëÇ¥ : 064)729-2000
°üÇÒÁö¿ª : Á¦ÁÖ½Ã, ¼­±ÍÆ÷½Ã

µî±â¼Ò Á¦ÁÖÁö¹æ¹ý¿ø º»¿ø µî±â°ú (´ëÇ¥:1544-0773, ÆÑ½º:(064)753-0102, Á¦ÁÖÆ¯º°ÀÚÄ¡µµ Á¦Áֽà ³²±¤ºÏ5±æ 3 (À̵µ2µ¿ 950-1))
¼¼¹«¼­ Á¦ÁÖ¼¼¹«¼­ (´ëÇ¥:064-720-52, ÆÑ½º:064-724-1107, Á¦ÁÖÆ¯º°ÀÚÄ¡µµ Á¦Áֽà û»ç·Î 59 (µµ³²µ¿))

Àαٳ«ÂûÅë°è

±â°£ ¸Å°¢°Ç¼ö Æò±Õ°¨Á¤°¡
Æò±Õ¸Å°¢°¡
¸Å°¢°¡À²
Æò±ÕÀ¯Âû¼ö
3°³¿ù 45°Ç 333,750,977¿ø
170,119,084¿ø
48%
2.7ȸ
6°³¿ù 59°Ç 379,003,075¿ø
213,924,367¿ø
51%
2.5ȸ
12°³¿ù 59°Ç 379,003,075¿ø
213,924,367¿ø
51%
2.5ȸ


º» °æ¸ÅÁ¤º¸´Â ¹ý¿øÀÚ·á¿Í ÀÏÄ¡Çϵµ·Ï ÇÏ¿´À¸³ª ±Ç¸®»çÇ׺¯µ¿, ÀÔ·ÂÂø¿À µîÀÇ ¿øÀÎÀ¸·Î »ç½Ç°ú ´Ù¸¦ ¼ö ÀÖ½À´Ï´Ù. ÀÌ¿ë¾à°ü¿¡ ÀǰЏéÃ¥Á¶°ÇÀ¸·Î Á¦°øµÊÀ» ¾Ë¸®¸ç, °æ¸ÅÀÔÂû½Ã ¹Ýµå½Ã °ü·Ã °øºÎ¸¦ ÀçÈ®ÀÎÇϽñ⠹ٶø´Ï´Ù. º¸´Ù Æí¸®ÇÑ °æ¸ÅÁ¤º¸ Á¦°øÀ» À§ÇØ Áö¼ÓÀûÀ¸·Î °³¼±ÇϰڽÀ´Ï´Ù. ÀÌ¿ëÇØ Áּż­ °¨»çÇÕ´Ï´Ù.