·Î±×ÀÎ
1096
´Ù¼¼´ë(ºô¶ó)
ÀÇÁ¤ºÎÁö¹æ¹ý¿ø °í¾çÁö¿ø
 °¨Á¤°¡265,000,000 ¿ø
 ÃÖÀú°¡(49%) 129,850,000 ¿ø
 º¸Áõ±Ý(10%) 12,985,000 ¿ø
 Ã»±¸¾×273,620,516 ¿ø
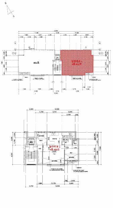
°æ±âµµ °í¾ç½Ã Àϻ굿±¸ ½Ä»çµ¿ 730-2 ·çÇî 101µ¿ 4Ãþ402È£
»ç°Ç¹øÈ£ 2025Ÿ°æ774
°æ¸ÅÁ¾·ùºÎµ¿»êÀÓÀǰæ¸Å
¸Å°¢´ë»óÅäÁö ¹× °Ç¹°Àϰý ¸Å°¢
¸Å°¢±âÀÏ    2026.03.17(È­) 10:00 ÀÔÂû 19ÀÏÀü    
ÅäÁö¸éÀû57.18§³(17.30 Æò)
°Ç¹°¸éÀû50.21§³(15.19 Æò)
乫/¼ÒÀ¯ÀÚ½ÅOO / ½ÅOO
ä±ÇÀÚ¼­OOOOOOOO
ÆäÀ̽ººÏ Æ®À§ÅÍ ±¸±Û+
īī¿À½ºÅ丮
īī¿ÀÅå sms¹®ÀÚº¸³»±â
 

±âÀϳ»¿ª

°æ°ú ³¯Â¥ Àú°¨ ÃÖÀú°¡ °á°ú
Á¢¼öÀÏ 2025-02-17 °æ¸ÅÁ¢¼ö
~2ÀÏ 
2025-02-19 °æ¸Å°³½Ã°áÁ¤
~91ÀÏ 
2025-05-19 ¹è´ç¿ä±¸Á¾±âÀÏ
~309ÀÏ 
2025-12-23 100%
265,000,000
À¯Âû
~351ÀÏ 
2026-02-03 70%
185,500,000
À¯Âû
~393ÀÏ 
2026-03-17 49%
129,850,000
ÁøÇà
¹°°Ç¸í¼¼¼­ ÇöȲÁ¶»ç¼­ ¹®°ÇÁ¢¼ö ¼Û´Þ³»¿ª

°¨Á¤Æò°¡ÇöȲ

¸ñ·Ï ÁÖ¼Ò ±¸Á¶/¿ëµµ/´ëÁö±Ç ¸éÀû ºñ°í
´ëÁö±Ç
½Ä»çµ¿ 730-2 972ºÐÀÇ 57.18 57.18 §³
(17.30Æò)
°Ç¹°
½Ä»çµ¿ 730-2 101µ¿ 4Ãþ402È£ ö±ÙÄÜÅ©¸®Æ®±¸Á¶ 50.21 §³
(15.19Æò)
1) À§Ä¡/µµ½ÃÁö¿ª/º¸Àü°ü¸®Áö¿ª/°èȹ°ü¸®Áö¿ª/³ë¼±¹ö½ºÁ¤·ùÀå/ö±ÙÄÜÅ©¸®Æ®±¸Á¶/°æ»çÁöºØ ´õº¸±â
°¨Á¤Æò°¡ ¿äÇ×Ç¥
1)À§Ä¡ ¹× ÁÖÀ§È¯°æ
º»°ÇÀº °æ±âµµ °í¾ç½Ã Àϻ굿±¸ ½Ä»çµ¿ ¼ÒÀç ""°í¾ç±¹Á¦°íµîÇб³"" ºÏ¼­Ãø Àαٿ¡ À§Ä¡Çϸç, ÀαÙÀº ´Ù¼¼´ëÁÖÅÃ, ±Ù¸°»ýȰ½Ã¼³ ¹× ³ó°æÁö µîÀÌ È¥ÀçÇÏ´Â Áö¿ªÀÓ.
2)±³Åë»óȲ
º»°Ç±îÁö Â÷·®ÀÇ ÁøÃâÀÔÀÌ °¡´ÉÇϸç, Àαٿ¡ ³ë¼±¹ö½ºÁ¤·ùÀåÀÌ ¼ÒÀçÇÏ´Â µî ±³Åë»óȲÀº º¸ÅëÀÓ.
3)°Ç¹°ÀÇ ±¸Á¶
ö±ÙÄÜÅ©¸®Æ®±¸Á¶ (ö±Ù)ÄÜÅ©¸®Æ®(°æ»çÁöºØ Æò½½¶óºê)ÁöºØ 4Ãþ Áß 4Ãþ 402È£·Î¼­
(»ç¿ë½ÂÀÎÀÏ : 2020.06.12.)

¿Üº® : ¼®ÀçºÙÀÓ ¸¶°¨ µî,
âȣ : »õ½Ãâȣ µîÀÓ.
4)ÀÌ¿ë»óÅÂ
´Ù¼¼´ëÁÖÅÃÀÓ.
5)¼³ºñ³»¿ª
À§»ý ¹× ±Þ¹è¼ö¼³ºñ, ³­¹æ¼³ºñ ¹× E/V¼³ºñ µî µÇ¾î ÀÖÀ½.


6)ÅäÁöÀÇ Çü»ó ¹× ÀÌ¿ë»óÅÂ
»ç´Ù¸®ÇüÀÇ ÅäÁö·Î¼­ ÁÖ°Å¿ë °ÇºÎÁö·Î ÀÌ¿ëÁßÀÓ.
7)ÀÎÁ¢ µµ·Î»óŵî
º»°Ç µ¿ÃøÀ¸·Î Æø ¾à 6m Æ÷Àåµµ·Î¿Í Á¢ÇÔ.
8)ÅäÁöÀÌ¿ë°èȹ ¹× Á¦ÇÑ»óÅÂ
°èȹ°ü¸®Áö¿ª, º¸Àü°ü¸®Áö¿ª, ¼ºÀå°ü¸®°èȹ±¸¿ª(º¹ÇÕzone), °¡Ãà»çÀ°Á¦Çѱ¸¿ª(2024-11-12)
(ÀϺÎÁ¦Çѱ¸¿ª [ÀüºÎÁ¦Çѱ¸¿ªÀ¸·ÎºÎÅÍ Á¦ÇѰŸ® 500m (¼Ò,Á¥¼Ò,¸» Á¦ÇÑ)])<°¡ÃàºÐ´¢ÀÇ °ü¸®
¹× À̿뿡 °üÇÑ ¹ý·ü>, °¡Ãà»çÀ°Á¦Çѱ¸¿ª(2024-11-12)(ÀüºÎÁ¦Çѱ¸¿ª [µµ½ÃÁö¿ª{ÁÖ°Å,»ó¾÷,
°ø¾÷,³ìÁö(ÀÚ¿¬Ãë¶ôÁö±¸)}¹×ÁְŹÐÁýÁö¿ª])<°¡ÃàºÐ´¢ÀÇ °ü¸® ¹× À̿뿡 °üÇÑ ¹ý·ü>,
Á¦ÇѺ¸È£±¸¿ª(Àü¹æÁö¿ª:25km)(º¸È£)<±º»ç±âÁö ¹× ±º»ç½Ã¼³ º¸È£¹ý>, °ú¹Ð¾ïÁ¦±Ç¿ª
<¼öµµ±ÇÁ¤ºñ°èȹ¹ý>
9)°øºÎ¿ÍÀÇ Â÷ÀÌ
-
10)±âŸÂü°í»çÇ×(ÀÓ´ë°ü·Ê ¹× ±âŸ)
ÀÓ´ë°ü°è µî ¹Ì»óÀ̸ç, º»°Ç¿¡ ´Ù¶ôÀÌ ¼ÒÀçÇϸç, ÁýÇÕ°ÇÃ๰´ëÀå»ó À§¹Ý°ÇÃ๰ µîÀçµÇ¾î ÀÖÀ½.
Âü°í
»çÇ×
1.µî±â»çÇ×ÀüºÎÁõ¸í¼­³ª ÁýÇÕ°ÇÃ๰´ëÀå»ó ´Ù¶ô¿¡ ´ëÇÑ µîÀç´Â ¾øÀ¸³ª °ÇÃ๰ÇöȲµµ»ó º»°Ç ³»ºÎ¿¡ ´Ù¶ôÀ¸·Î ÁøÀÔÇÏ´Â °è´Ü ¹× ´Ù¶ôÀÌ Ç¥½ÃµÇ¾î ÀÖÀ½.(À̸¦ °¨¾ÈÇÏ¿© °¨Á¤Æò°¡ÇÔ) 2.ÁýÇÕ°ÇÃ๰´ëÀå»ó À§¹Ý°ÇÃ๰ µîÀç[Àϻ굿±¸ °ÇÃà°ú-16788(2021.4.27)È£¿¡ ÀǰÅ]
(ö±Ù)ÄÜÅ©¸®

°ÇÃ๰ÇöȲ

¼ÒÀçÁö °æ±âµµ °í¾ç½Ã Àϻ굿±¸ ½Ä»çµ¿ 730-2¹øÁö
´ëÁö¸éÀû   ¿¬¸éÀû 623.77§³
(189.02Æò)
°ÇÃà¸éÀû 164.68§³
(49.9Æò)
¿ëÀû·ü»êÁ¤
¿¬¸éÀû
481§³
(145.76Æò)
°ÇÆóÀ²   ¿ëÀû·ü  
Áö»óÃþ¼ö 4Ãþ ÁöÇÏÃþ¼ö 1Ãþ
ÁÖ¿ëµµ °øµ¿ÁÖÅà ±¸Á¶ ö±ÙÄÜÅ©¸®Æ®±¸Á¶
Âø°øÀÏÀÚ 2016.11.04 »ç¿ë½ÂÀÎÀÏÀÚ 2020.06.12
°ÇÃ๰Ãþº°ÇöȲ [º¸±â]


µî±âºÎµîº» ¿ä¾à(°Ç¹°)

  Á¢¼öÀÏÀÚ µî±â¸ñÀû/±Ç¸®ÀÚ ±Ç¸®±Ý¾× ±âÁØ
1 2020³â7¿ù7ÀÏ
¼ÒÀ¯±Ç
½ÅOO
¼Ò¸ê
2 2020³â7¿ù7ÀÏ
±ÙÀú´ç±Ç
¼­OOOO
324,000,000 ¼Ò¸ê±âÁØ
3 2022³â10¿ù5ÀÏ
°¡¾Ð·ù
½ÅOO
84,317,062 ¼Ò¸ê
4 2025³â2¿ù19ÀÏ
ÀÓÀǰæ¸Å
¼­OOOO
¼Ò¸ê

ÀÓÂ÷ÀÎÇöȲ (¹è´ç¿ä±¸Á¾±âÀÏ: 2025-05-19)


Á¶»çµÈ ÀÓÂ÷³»¿ªÀÌ ¾ø½À´Ï´Ù


¿©ÀÇÁÖ°æ¸Å Á¶¾ð ÇÑ ¸¶µð


ÁÖÀÇ»çÇ× (ÃÖ¼±¼øÀ§ ¼³Á¤ÀÏ: 2020.7.7.±ÙÀú´ç±Ç ¼³Á¤)

¸Å°¢À¸·Î ¼Ò¸êµÇÁö ¾Ê´Â µî±âºÎ±Ç¸®:
¸Å°¢À¸·Î ¼³Á¤µÈ °ÍÀ¸·Î º¸´Â Áö»ó±Ç:
1.µî±â»çÇ×ÀüºÎÁõ¸í¼­³ª ÁýÇÕ°ÇÃ๰´ëÀå»ó ´Ù¶ô¿¡ ´ëÇÑ µîÀç´Â ¾øÀ¸³ª °ÇÃ๰ÇöȲµµ»ó º»°Ç ³»ºÎ¿¡ ´Ù¶ôÀ¸·Î ÁøÀÔÇÏ´Â °è´Ü ¹× ´Ù¶ôÀÌ Ç¥½ÃµÇ¾î ÀÖÀ½.(À̸¦ °¨¾ÈÇÏ¿© °¨Á¤Æò°¡ÇÔ) 2.ÁýÇÕ°ÇÃ๰´ëÀå»ó À§¹Ý°ÇÃ๰ µîÀç[Àϻ굿±¸ °ÇÃà°ú-16788(2021.4.27)È£¿¡ ÀǰÅ]
¡Ø¹Ì³³°ü¸®ºñ(°ø¿ë) Àμö¿©ºÎ¸¦ ÀÔÂû Àü¿¡ È®ÀÎÇϽñ⠹ٶø´Ï´Ù

 

Áö¿ªºÐ¼®

ÁöÇÏö¸í Á÷¼±°Å¸®

Çб³¸í ÀüÈ­¹øÈ£ ÁÖ¼Ò Á÷¼±°Å¸®

¹ý¿ø

ÀÇÁ¤ºÎÁö¹æ¹ý¿ø °í¾çÁö¿ø (104-13)°æ±âµµ °í¾ç½Ã Àϻ굿±¸ Àå¹é·Î 209
´ëÇ¥ : 031)920-6114, ¾ß°£ : 031)920-6550, ÆÑ½º : 031)920-6119
°üÇÒÁö¿ª : °í¾ç½Ã, ÆÄÁÖ½Ã

µî±â¼Ò ÀÇÁ¤ºÎÁö¹æ¹ý¿ø °í¾çÁö¿ø °í¾çµî±â¼Ò (´ëÇ¥:1544-0773, ÆÑ½º:(031)920-5959, °æ±âµµ °í¾ç½Ã Àϻ굿±¸ Áß¾Ó·Î1275¹ø±æ 38-30 (ÀåÇ×µ¿ 773))
¼¼¹«¼­ °í¾ç¼¼¹«¼­ (´ëÇ¥:031-900-92, ÆÑ½º:031-907-9177, °æ±âµµ °í¾ç½Ã Àϻ굿±¸ Áß¾Ó·Î1275¹ø±æ 14-43 (ÀåÇ×µ¿) )

Àαٳ«ÂûÅë°è

±â°£ ¸Å°¢°Ç¼ö Æò±Õ°¨Á¤°¡
Æò±Õ¸Å°¢°¡
¸Å°¢°¡À²
Æò±ÕÀ¯Âû¼ö
3°³¿ù 20°Ç 270,500,000¿ø
188,229,245¿ø
71%
3ȸ
6°³¿ù 37°Ç 253,297,297¿ø
162,692,524¿ø
65%
3ȸ
12°³¿ù 93°Ç 248,526,882¿ø
160,275,169¿ø
64%
2.5ȸ


º» °æ¸ÅÁ¤º¸´Â ¹ý¿øÀÚ·á¿Í ÀÏÄ¡Çϵµ·Ï ÇÏ¿´À¸³ª ±Ç¸®»çÇ׺¯µ¿, ÀÔ·ÂÂø¿À µîÀÇ ¿øÀÎÀ¸·Î »ç½Ç°ú ´Ù¸¦ ¼ö ÀÖ½À´Ï´Ù. ÀÌ¿ë¾à°ü¿¡ ÀǰЏéÃ¥Á¶°ÇÀ¸·Î Á¦°øµÊÀ» ¾Ë¸®¸ç, °æ¸ÅÀÔÂû½Ã ¹Ýµå½Ã °ü·Ã °øºÎ¸¦ ÀçÈ®ÀÎÇϽñ⠹ٶø´Ï´Ù. º¸´Ù Æí¸®ÇÑ °æ¸ÅÁ¤º¸ Á¦°øÀ» À§ÇØ Áö¼ÓÀûÀ¸·Î °³¼±ÇϰڽÀ´Ï´Ù. ÀÌ¿ëÇØ Áּż­ °¨»çÇÕ´Ï´Ù.