·Î±×ÀÎ
1176
¿ÀÇǽºÅÚ
ÀÎõÁö¹æ¹ý¿ø
 °¨Á¤°¡156,000,000 ¿ø
 ÃÖÀú°¡(49%) 76,440,000 ¿ø
 º¸Áõ±Ý(10%) 7,644,000 ¿ø
 Ã»±¸¾×188,000,000 ¿ø
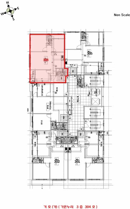
ÀÎõ±¤¿ª½Ã ¹ÌÃßȦ±¸ µµÈ­µ¿ 618-9 °¡¿Â´©¸® 3Ãþ304È£
»ç°Ç¹øÈ£ 2025Ÿ°æ507541
°æ¸ÅÁ¾·ùºÎµ¿»ê°­Á¦°æ¸Å
¸Å°¢´ë»óÅäÁö ¹× °Ç¹°Àϰý ¸Å°¢
¸Å°¢±âÀÏ    2026.03.19(¸ñ) 10:00 ÀÔÂû 18ÀÏÀü    
ÅäÁö¸éÀû18.69§³(5.65 Æò)
°Ç¹°¸éÀû78.72§³(23.81 Æò)
乫/¼ÒÀ¯ÀÚ°ûOO / °ûOO
ä±ÇÀÚÁÖOOOOOOO
ÆäÀ̽ººÏ Æ®À§ÅÍ ±¸±Û+
īī¿À½ºÅ丮
īī¿ÀÅå sms¹®ÀÚº¸³»±â
 

±âÀϳ»¿ª

°æ°ú ³¯Â¥ Àú°¨ ÃÖÀú°¡ °á°ú
Á¢¼öÀÏ 2025-02-17 °æ¸ÅÁ¢¼ö
~1ÀÏ 
2025-02-18 °æ¸Å°³½Ã°áÁ¤
~87ÀÏ 
2025-05-15 ¹è´ç¿ä±¸Á¾±âÀÏ
~308ÀÏ 
2025-12-22 100%
156,000,000
À¯Âû
~352ÀÏ 
2026-02-04 70%
109,200,000
À¯Âû
~395ÀÏ 
2026-03-19 49%
76,440,000
ÁøÇà
¹°°Ç¸í¼¼¼­ ÇöȲÁ¶»ç¼­ ¹®°ÇÁ¢¼ö ¼Û´Þ³»¿ª

°¨Á¤Æò°¡ÇöȲ

¸ñ·Ï ÁÖ¼Ò ±¸Á¶/¿ëµµ/´ëÁö±Ç ¸éÀû ºñ°í
´ëÁö±Ç
µµÈ­µ¿ 618-9 650.3ºÐÀÇ 18.686 18.686 §³
(5.65Æò)
°Ç¹°
µµÈ­µ¿ 618-9 3Ãþ304È£ ö±ÙÄÜÅ©¸®Æ®±¸Á¶ 78.72 §³
(23.81Æò)
1) À§Ä¡/ÀϹݻó¾÷Áö¿ª/¹ö½ºÁ¤·ùÀå/Â÷·®ÀÇ Á¢±ÙÀÌ °¡´É/ö±ÙÄÜÅ©¸®Æ®Á¶/½½·¡ºêÁöºØ ´õº¸±â
°¨Á¤Æò°¡ ¿äÇ×Ç¥
1)À§Ä¡ ¹× ÁÖÀ§È¯°æ
º»°ÇÀº ÀÎõ±¤¿ª½Ã ¹ÌÃßȦ±¸ µµÈ­µ¿ ¼ÒÀç 'µµÈ­¿ª' ³²¼­Ãø Àαٿ¡ À§Ä¡ÇÑ °¡¿Â´©¸® Á¦3Ãþ Á¦

304È£·Î¼­, ºÎ±ÙÀº ¿ÀÇǽºÅÚ, °øµ¿ÁÖÅà ¹× ±Ù¸°»ýȰ½Ã¼³ µîÀ¸·Î Çü¼ºµÇ¾î ÀÖÀ½.
2)±³Åë»óȲ
º»°Ç±îÁö Â÷·®ÀÇ Á¢±ÙÀÌ °¡´ÉÇϸç, ºÎ±Ù¿¡ ¹ö½ºÁ¤·ùÀå ¹× 'µµÈ­¿ª'ÀÌ ¼ÒÀçÇÏ¿© ´ëÁß±³Åë»óȲ

Àº ¹«³­½ÃµÊ.
3)°Ç¹°ÀÇ ±¸Á¶
ö±ÙÄÜÅ©¸®Æ®Á¶ ½½·¡ºêÁöºØ 10Ãþ °Ç ³» 3Ãþ 304È£·Î¼­,

(ÁýÇÕ°ÇÃ๰´ëÀå»ó »ç¿ë½ÂÀÎÀÏ : 2013.06.05)

¿Ü º® : µå¶óÀ̺ñÆ® ¹× ¼®À縶°¨

â È£ : »õ½ÃâÀÓ.
4)ÀÌ¿ë»óÅÂ
¿ÀÇǽºÅÚÀÓ.
5)¼³ºñ³»¿ª
À§»ý¼³ºñ, ±Þ¹è¼ö¼³ºñ, ³­¹æ¼³ºñ, ½Â°­±â¼³ºñ µîÀÌ µÇ¾î ÀÖÀ½.
6)ÅäÁöÀÇ Çü»ó ¹× ÀÌ¿ë»óÅÂ
»ç°¢Çü ÅäÁö·Î ¿ÀÇǽºÅÚ ¹× °øµ¿ÁÖÅà °ÇºÎÁöÀÓ.
7)ÀÎÁ¢ µµ·Î»óŵî
º»°Ç ÇÊÁö ³²ÃøÀ¸·Î ¾à 35 m, ºÏÃø 8 m µµ·Î¿Í Á¢ÇÔ.
8)ÅäÁöÀÌ¿ë°èȹ ¹× Á¦ÇÑ»óÅÂ
ÀϹݻó¾÷Áö¿ª(2022-06.13), ¹æÈ­Áö±¸, ½Ã°æ°üÁö±¸(2023-12-18), °¡Ãà»çÀ°Á¦Çѱ¸¿ª(ÀÎõ±¤¿ª

½Ã ¹ÌÃßȦ±¸ °¡Ãà»çÀ°Á¦ÇÑ¿¡ °üÇÑ Á¶·Ê[2018. 7. 1.])<°¡ÃàºÐ´¢ÀÇ °ü¸® ¹× À̿뿡 °üÇÑ ¹ý·ü

>, °ú¹Ð¾ïÁ¦±Ç¿ª<¼öµµ±ÇÁ¤ºñ°èȹ¹ý>ÀÓ.
9)°øºÎ¿ÍÀÇ Â÷ÀÌ
-
10)±âŸÂü°í»çÇ×(ÀÓ´ë°ü·Ê ¹× ±âŸ)
ÀÌÇØ°ü°èÀÎÀÇ ºÎÀç ¹× Æó¹® µîÀ¸·Î ÇöÀåÁ¶»ç ¹× °øºÎ¸¦ ±Ù°Å·Î ÀÛ¼ºÇÏ¿´À¸¸ç, ÀÚ¼¼ÇÑ ÀÓ´ë°ü

°è´Â ¹Ì»óÀÓ.
Âü°í
»çÇ×

´ë·Î

°ÇÃ๰ÇöȲ

¼ÒÀçÁö ÀÎõ±¤¿ª½Ã ¹ÌÃßȦ±¸ µµÈ­µ¿ 618-9¹øÁö
´ëÁö¸éÀû 650.3§³
(197.06Æò)
¿¬¸éÀû 3630.07§³
(1100.02Æò)
°ÇÃà¸éÀû 505.07§³
(153.05Æò)
¿ëÀû·ü»êÁ¤
¿¬¸éÀû
3596.76§³
(1089.93Æò)
°ÇÆóÀ² 77.67% ¿ëÀû·ü 553.09%
Áö»óÃþ¼ö 10Ãþ ÁöÇÏÃþ¼ö 1Ãþ
ÁÖ¿ëµµ ¾÷¹«½Ã¼³ ±¸Á¶ ö±ÙÄÜÅ©¸®Æ®±¸Á¶
Âø°øÀÏÀÚ 2012.06.18 »ç¿ë½ÂÀÎÀÏÀÚ 2013.06.05
°ÇÃ๰Ãþº°ÇöȲ [º¸±â]


±¹ÅäºÎ½Ç°Å·¡°¡ ÀÎõ±¤¿ª½Ã ¹ÌÃßȦ±¸ µµÈ­µ¿

¡Ü ¸Å¸Å

¸éÀû(§³), ±Ý¾×(¸¸¿ø)

¡Ü Àü¼¼

¸éÀû(§³), ±Ý¾×(¸¸¿ø)

°è¾àÀϰǹ°¸íĪÃþÀü¿ëº¸Áõ±Ý¿ù¼¼°ÇÃà
25.09.24°¡¿Â´©¸®481.292,000702013
25.09.18°¡¿Â´©¸®481.12,500702013
25.07.04°¡¿Â´©¸®579.1915,50002013

µî±âºÎµîº» ¿ä¾à(°Ç¹°)

  Á¢¼öÀÏÀÚ µî±â¸ñÀû/±Ç¸®ÀÚ ±Ç¸®±Ý¾× ±âÁØ
1 2022³â6¿ù10ÀÏ
¼ÒÀ¯±Ç
°ûOO
¼Ò¸ê
2 2023³â10¿ù13ÀÏ
ÀÓÂ÷±Ç¼³Á¤
¼ÛOO
188,000,000 Àμö
3 2025³â2¿ù18ÀÏ
°­Á¦°æ¸Å
ÁÖOOOO
¼Ò¸ê±âÁØ

ÀÓÂ÷ÀÎÇöȲ (¹è´ç¿ä±¸Á¾±âÀÏ: 2025-05-15)

ÀÓÂ÷ÀÎ ¿ëµµ/Á¡À¯ º¸Áõ±Ý/¿ù¼¼ ´ëÇ×·Â
ÀüÀÔÀÏ/È®Á¤ÀÏ ¹è´ç¿ä±¸ ºñ°í
¼ÛOO ÀüºÎ 188,000,000
O
2021.07.26.
2021.07.26.
2021.08.31.
ÁÖOOOOOOOOOOOOOOOO ÀüºÎ 188,000,000
O
2021.07.26.
2021.07.26.
2025.5.15. 2021.08.31.~2023.12.26.
ºñ°í
(¸Å°¢¹°°Ç
¸í¼¼¼­)
¼ÛÁ¤¼÷ : ÁÖÅÃÀÓÂ÷±Çµî±â±Ç¸®Àڷμ­ ÁÖÅÃÀÓÂ÷±Çµî±âÀÏÀº 2023.10.13.ÀÓ ÁÖÅõµ½Ãº¸Áõ°ø»ç(ÀÓÂ÷ÀÎ:¼ÛÁ¤¼÷) : ÀÓÂ÷ÀÎ ¼ÛÁ¤¼÷ÀÇ ÀÓÂ÷º¸Áõ±Ý¹Ýȯä±Ç ¾ç¼öÀÎÀ¸·Î¼­, º¸Áõ±Ý Àü¾×À» ¹è´ç¹ÞÁö ¸øÇÏ´õ¶óµµ

¿©ÀÇÁÖ°æ¸Å Á¶¾ð ÇÑ ¸¶µð

¼±¼øÀ§ ÀÓÂ÷±Çµî±â°¡ µÇ¾î ÀÖ½À´Ï´Ù
´ëÇ×·ÂÀÌ ÀÖ´Â ¼±¼øÀ§ ÀÓÂ÷±Çµî±â ±Ç¸®ÀÚ°¡ ¹è´çÀ» Àü¾× ¹ÞÁö ¸øÇÒ °æ¿ì ³«ÂûÀÚ°¡ ÀÜ¿© º¸Áõ±ÝÀ» ÀμöÇØ¾ßÇÏ´Â °æ¿ìµµ ÀÖ½À´Ï´Ù.

ÁÖÀÇ»çÇ× (ÃÖ¼±¼øÀ§ ¼³Á¤ÀÏ: 2025.02.18. °­Á¦°æ¸Å°³½Ã°áÁ¤ ¼³Á¤)

¸Å°¢À¸·Î ¼Ò¸êµÇÁö ¾Ê´Â µî±âºÎ±Ç¸®: À»±¸ ¼øÀ§ 6¹ø ÁÖÅÃÀÓÂ÷±Çµî±â(´Ù¸¸, ÁÖÅõµ½Ãº¸Áõ°ø»çÀÇ ¸»¼Òµ¿ÀÇ È®¾à¼­°¡ Á¦Ãâ µÊ)
¸Å°¢À¸·Î ¼³Á¤µÈ °ÍÀ¸·Î º¸´Â Áö»ó±Ç:
¡Ø¹Ì³³°ü¸®ºñ(°ø¿ë) Àμö¿©ºÎ¸¦ ÀÔÂû Àü¿¡ È®ÀÎÇϽñ⠹ٶø´Ï´Ù

 

Áö¿ªºÐ¼®

ÁöÇÏö¸í Á÷¼±°Å¸®

Çб³¸í ÀüÈ­¹øÈ£ ÁÖ¼Ò Á÷¼±°Å¸®

¹ý¿ø

ÀÎõÁö¹æ¹ý¿ø (222-20)ÀÎõ±¤¿ª½Ã ¹ÌÃßȦ±¸ ¼Ò¼º·Î 163¹ø±æ 17(ÇÐÀ͵¿)
´ëÇ¥ : 032)860-1113~4
°üÇÒÁö¿ª : Áß±¸, µ¿±¸, ³²±¸, ¿¬¼ö±¸, ³²µ¿±¸, ºÎÆò±¸, °è¾ç±¸, ¼­±¸, ¿ËÁø±º, °­È­±º

µî±â¼Ò ÀÎõÁö¹æ¹ý¿ø º»¿ø µî±â±¹ (´ëÇ¥:1544-0773, ÆÑ½º:(032)620-9099, ÀÎõ±¤¿ª½Ã ¹ÌÃßȦ±¸ °æ¿ø´ë·Î 881(Á־ȵ¿ 983))
¼¼¹«¼­ ÀÎõ¼¼¹«¼­ (´ëÇ¥:032-770-02, ÆÑ½º:032-777-8104, ÀÎõ±¤¿ª½Ã µ¿±¸ ¿ì°¢·Î 75 (⿵µ¿))

Àαٳ«ÂûÅë°è

±â°£ ¸Å°¢°Ç¼ö Æò±Õ°¨Á¤°¡
Æò±Õ¸Å°¢°¡
¸Å°¢°¡À²
Æò±ÕÀ¯Âû¼ö
3°³¿ù 265°Ç 205,247,170¿ø
131,230,001¿ø
65%
1.8ȸ
6°³¿ù 472°Ç 203,931,504¿ø
124,908,950¿ø
61%
2.2ȸ
12°³¿ù 796°Ç 208,313,844¿ø
131,423,435¿ø
63%
2.1ȸ


º» °æ¸ÅÁ¤º¸´Â ¹ý¿øÀÚ·á¿Í ÀÏÄ¡Çϵµ·Ï ÇÏ¿´À¸³ª ±Ç¸®»çÇ׺¯µ¿, ÀÔ·ÂÂø¿À µîÀÇ ¿øÀÎÀ¸·Î »ç½Ç°ú ´Ù¸¦ ¼ö ÀÖ½À´Ï´Ù. ÀÌ¿ë¾à°ü¿¡ ÀǰЏéÃ¥Á¶°ÇÀ¸·Î Á¦°øµÊÀ» ¾Ë¸®¸ç, °æ¸ÅÀÔÂû½Ã ¹Ýµå½Ã °ü·Ã °øºÎ¸¦ ÀçÈ®ÀÎÇϽñ⠹ٶø´Ï´Ù. º¸´Ù Æí¸®ÇÑ °æ¸ÅÁ¤º¸ Á¦°øÀ» À§ÇØ Áö¼ÓÀûÀ¸·Î °³¼±ÇϰڽÀ´Ï´Ù. ÀÌ¿ëÇØ Áּż­ °¨»çÇÕ´Ï´Ù.