·Î±×ÀÎ
1190
¿ÀÇǽºÅÚ
ÀÎõÁö¹æ¹ý¿ø
 °¨Á¤°¡183,000,000 ¿ø
 ÃÖÀú°¡(49%) 89,670,000 ¿ø
 º¸Áõ±Ý(10%) 8,967,000 ¿ø
 Ã»±¸¾×224,000,000 ¿ø
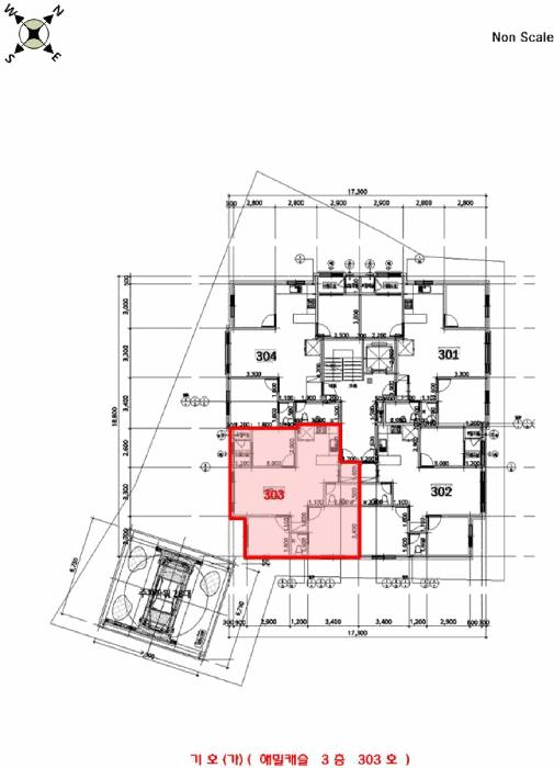
ÀÎõ±¤¿ª½Ã ³²µ¿±¸ ¸¸¼ö·Î19¹ø±æ 15, 3Ãþ303È£ (¸¸¼öµ¿,ÇØ¹Ðij½½)
ÀÎõ±¤¿ª½Ã ³²µ¿±¸ ¸¸¼öµ¿ 870-3
»ç°Ç¹øÈ£ 2025Ÿ°æ506285
°æ¸ÅÁ¾·ùºÎµ¿»ê°­Á¦°æ¸Å
¸Å°¢´ë»óÅäÁö ¹× °Ç¹°Àϰý ¸Å°¢
¸Å°¢±âÀÏ    2026.03.19(¸ñ) 10:00 ÀÔÂû 26ÀÏÀü    
ÅäÁö¸éÀû15.44§³(4.67 Æò)
°Ç¹°¸éÀû65.41§³(19.79 Æò)
乫/¼ÒÀ¯ÀÚ¸Á OOOO OOOOOOO OOO / ¸Á OOOO OOOOOOO OOO
ä±ÇÀÚÁÖOOOOOOO
ÆäÀ̽ººÏ Æ®À§ÅÍ ±¸±Û+
īī¿À½ºÅ丮
īī¿ÀÅå sms¹®ÀÚº¸³»±â
 

±âÀϳ»¿ª

°æ°ú ³¯Â¥ Àú°¨ ÃÖÀú°¡ °á°ú
Á¢¼öÀÏ 2025-01-22 °æ¸ÅÁ¢¼ö
~14ÀÏ 
2025-02-05 °æ¸Å°³½Ã°áÁ¤
~105ÀÏ 
2025-05-07 ¹è´ç¿ä±¸Á¾±âÀÏ
~334ÀÏ 
2025-12-22 100%
183,000,000
À¯Âû
~378ÀÏ 
2026-02-04 70%
128,100,000
À¯Âû
~421ÀÏ 
2026-03-19 49%
89,670,000
ÁøÇà
¹°°Ç¸í¼¼¼­ ÇöȲÁ¶»ç¼­ ¹®°ÇÁ¢¼ö ¼Û´Þ³»¿ª

°¨Á¤Æò°¡ÇöȲ

¸ñ·Ï ÁÖ¼Ò ±¸Á¶/¿ëµµ/´ëÁö±Ç ¸éÀû ºñ°í
´ëÁö±Ç
¸¸¼öµ¿ 870-3 612.7ºÐÀÇ 15.4386 15.4386 §³
(4.67Æò)
°Ç¹°
¸¸¼öµ¿ 870-3 3Ãþ303È£ ö±ÙÄÜÅ©¸®Æ®±¸Á¶ 65.4075 §³
(19.79Æò)
1) À§Ä¡/ÁØÁÖ°ÅÁö¿ª/¹ö½ºÁ¤·ùÀå/ö±ÙÄÜÅ©¸®Æ®±¸Á¶ ´õº¸±â
°¨Á¤Æò°¡ ¿äÇ×Ç¥
1)À§Ä¡ ¹× ÁÖÀ§È¯°æ
º»°ÇÀº ÀÎõ±¤¿ª½Ã ³²µ¿±¸ ¸¸¼öµ¿ ¼ÒÀç '¸¸¼ö¿©ÀÚÁßÇб³' ³²¼­Ãø Àαٿ¡ À§Ä¡ÇÑ ÇØ¹Ðij½½ Á¦

3Ãþ Á¦303È£·Î¼­ ºÎ±ÙÀº °øµ¿ÁÖÅÃ, ¿ÀÇǽºÅÚ ¹× ±Ù¸°»ýȰ½Ã¼³ µîÀ¸·Î Çü¼ºµÇ¾î ÀÖÀ½.
2)±³Åë»óȲ
º»°Ç±îÁö Â÷·® ÃâÀÔÀÌ °¡´ÉÇϸç, Àαٿ¡ ¹ö½ºÁ¤·ùÀå ¹× '¸¸¼ö¿ª'ÀÌ ¼ÒÀçÇÏ¿© ´ëÁß±³Åë»óȲÀº

¹«³­½ÃµÊ.
3)°Ç¹°ÀÇ ±¸Á¶
ö±ÙÄÜÅ©¸®Æ®±¸Á¶ (ö±Ù)ÄÜÅ©¸®Æ®ÁöºØ 10Ãþ°Ç ³» 3Ãþ 303È£·Î,

(ÁýÇÕ°ÇÃ๰´ëÀå»ó »ç¿ë½ÂÀÎÀÏ : 2017.08.25)

¿Ü º® : ¼®À縶°¨ ¹× µå¶óÀ̺ñÆ®¸¶°¨

â È£ : »õ½ÃâÀÓ.
4)ÀÌ¿ë»óÅÂ
¿ÀÇǽºÅÚÀÓ.
5)¼³ºñ³»¿ª
À§»ý¼³ºñ, ±Þ¹è¼ö¼³ºñ, ³­¹æ¼³ºñ, ¿¤·¹º£ÀÌÅÍ µîÀÌ µÇ¾î ÀÖÀ½.
6)ÅäÁöÀÇ Çü»ó ¹× ÀÌ¿ë»óÅÂ
ºÎÁ¤Çü ÅäÁö·Î¼­ ¿ÀÇǽºÅÚ ¹× ±Ù¸°»ýȰ½Ã¼³ °ÇºÎÁö·Î ÀÌ¿ëÁßÀÓ.
7)ÀÎÁ¢ µµ·Î»óŵî
º»°Ç ÇÊÁö ºÏµ¿Ãø ¾à 8 m, ³²¼­Ãø ¾à 5 m µµ·Î¿Í Á¢ÇÔ.
8)ÅäÁöÀÌ¿ë°èȹ ¹× Á¦ÇÑ»óÅÂ
ÁØÁÖ°ÅÁö¿ª, °¡Ãà»çÀ°Á¦Çѱ¸¿ª(2013-03-08)((¹®ÀÇ:³²µ¿±¸È¯°æº¸Àü°ú 032-453-2343))<°¡ÃàºÐ

´¢ÀÇ °ü¸® ¹× À̿뿡 °üÇÑ ¹ý·ü>, »ó´ëº¸È£±¸¿ª(¹®ÀÇ: ÀÎõµ¿ºÎ±³À°Áö¿øÃ» Æò»ý±³À°°Ç°­°ú 4

60-6086)<±³À°È¯°æ º¸È£¿¡ °üÇÑ ¹ý·ü>, °ú¹Ð¾ïÁ¦±Ç¿ª<¼öµµ±ÇÁ¤ºñ°èȹ¹ý>ÀÓ.
9)°øºÎ¿ÍÀÇ Â÷ÀÌ
-
10)±âŸÂü°í»çÇ×(ÀÓ´ë°ü·Ê ¹× ±âŸ)
º»°Ç ÀÌÇØ°ü°èÀÎÀÇ ºÎÀç ¹× Æó¹® µîÀ¸·Î ÇöÀåÁ¶»ç ¹× °øºÎ µîÀ» ±Ù°Å·Î ÀÛ¼ºÇÏ¿´À¸¸ç ÀÚ¼¼

ÇÑ ÀÓ´ë°ü°è´Â ¹Ì»óÀÓ.

°ÇÃ๰ÇöȲ

¼ÒÀçÁö ÀÎõ±¤¿ª½Ã ³²µ¿±¸ ¸¸¼öµ¿ 870-3¹øÁö
´ëÁö¸éÀû 612.7§³
(185.67Æò)
¿¬¸éÀû 3050.885§³
(924.51Æò)
°ÇÃà¸éÀû 316.01§³
(95.76Æò)
¿ëÀû·ü»êÁ¤
¿¬¸éÀû
2805.37§³
(850.11Æò)
°ÇÆóÀ² 51.58% ¿ëÀû·ü 457.87%
Áö»óÃþ¼ö 10Ãþ ÁöÇÏÃþ¼ö 1Ãþ
ÁÖ¿ëµµ ¾÷¹«½Ã¼³ ±¸Á¶ ö±ÙÄÜÅ©¸®Æ®±¸Á¶
Âø°øÀÏÀÚ 2016.12.21 »ç¿ë½ÂÀÎÀÏÀÚ 2017.08.25
°ÇÃ๰Ãþº°ÇöȲ [º¸±â]


±¹ÅäºÎ½Ç°Å·¡°¡ ÀÎõ±¤¿ª½Ã ³²µ¿±¸ ¸¸¼öµ¿

¡Ü ¸Å¸Å

¸éÀû(§³), ±Ý¾×(¸¸¿ø)

¡Ü Àü¼¼

¸éÀû(§³), ±Ý¾×(¸¸¿ø)

°è¾àÀϰǹ°¸íĪÃþÀü¿ëº¸Áõ±Ý¿ù¼¼°ÇÃà
25.08.25ÇØ¹Ðij½½369.132,000752017
25.04.01ÇØ¹Ðij½½565.2113,14002017

µî±âºÎµîº» ¿ä¾à(°Ç¹°)

  Á¢¼öÀÏÀÚ µî±â¸ñÀû/±Ç¸®ÀÚ ±Ç¸®±Ý¾× ±âÁØ
1 2021³â4¿ù9ÀÏ
¼ÒÀ¯±Ç
±èOO
¼Ò¸ê
2 2022³â7¿ù18ÀÏ
¾Ð·ù
±¹
¼Ò¸ê±âÁØ
3 2022³â9¿ù16ÀÏ
°¡¾Ð·ù
ÁÖOOOO
1,450,500,000 ¼Ò¸ê
4 2022³â11¿ù3ÀÏ
¾Ð·ù
³²OO
¼Ò¸ê
5 2023³â10¿ù4ÀÏ
ÀÓÂ÷±Ç¼³Á¤
¿ÀOO
224,000,000 ¼Ò¸ê
6 2025³â2¿ù5ÀÏ
°­Á¦°æ¸Å
ÁÖOOOO
¼Ò¸ê

ÀÓÂ÷ÀÎÇöȲ (¹è´ç¿ä±¸Á¾±âÀÏ: 2025-05-07)

ÀÓÂ÷ÀÎ ¿ëµµ/Á¡À¯ º¸Áõ±Ý/¿ù¼¼ ´ëÇ×·Â
ÀüÀÔÀÏ/È®Á¤ÀÏ ¹è´ç¿ä±¸ ºñ°í
¿ÀOO ÀüºÎ 224,000,000
O
2021.03.22.
2021.03.03.
2021.03.19.
ÁÖOOOOOOOOOOOOOOOO ÀüºÎ 224,000,000
O
2021.03.22.
2021.03.03.
2025.4.10. 2021.03.19.~2023.11.24.
ºñ°í
(¸Å°¢¹°°Ç
¸í¼¼¼­)
¿ÀÁøÈñ : ÁÖÅÃÀÓÂ÷±Çµî±â±Ç¸®Àڷμ­ ÁÖÅÃÀÓÂ÷±Çµî±âÀÏÀº 2023.10.4.ÀÓ ÁÖÅõµ½Ãº¸Áõ°ø»ç(ÀÓÂ÷ÀÎ:¿ÀÁøÈñ) : ÀÓÂ÷ÀÎ ¿ÀÁøÈñÀÇ ÀÓÂ÷º¸Áõ±Ý¹Ýȯä±Ç ¾ç¼öÀÎÀ¸·Î¼­, º¸Áõ±Ý Àü¾×À» ¹è´ç¹ÞÁö ¸øÇÏ´õ¶óµµ

¿©ÀÇÁÖ°æ¸Å Á¶¾ð ÇÑ ¸¶µð

¼±¼øÀ§ ÀÓÂ÷±Çµî±â°¡ µÇ¾î ÀÖ½À´Ï´Ù
´ëÇ×·ÂÀÌ ÀÖ´Â ¼±¼øÀ§ ÀÓÂ÷±Çµî±â ±Ç¸®ÀÚ°¡ ¹è´çÀ» Àü¾× ¹ÞÁö ¸øÇÒ °æ¿ì ³«ÂûÀÚ°¡ ÀÜ¿© º¸Áõ±ÝÀ» ÀμöÇØ¾ßÇÏ´Â °æ¿ìµµ ÀÖ½À´Ï´Ù.

ÁÖÀÇ»çÇ× (ÃÖ¼±¼øÀ§ ¼³Á¤ÀÏ: 2022.07.18. ¾Ð·ù ¼³Á¤)

¸Å°¢À¸·Î ¼Ò¸êµÇÁö ¾Ê´Â µî±âºÎ±Ç¸®: À»±¸ ¼øÀ§ 3¹ø ÁÖÅÃÀÓÂ÷±Çµî±â(´Ù¸¸, ÁÖÅõµ½Ãº¸Áõ°ø»çÀÇ ¸»¼Òµ¿ÀÇ È®¾à¼­°¡ Á¦Ãâ µÊ)
¸Å°¢À¸·Î ¼³Á¤µÈ °ÍÀ¸·Î º¸´Â Áö»ó±Ç:
¡Ø¹Ì³³°ü¸®ºñ(°ø¿ë) Àμö¿©ºÎ¸¦ ÀÔÂû Àü¿¡ È®ÀÎÇϽñ⠹ٶø´Ï´Ù

 

Áö¿ªºÐ¼®

ÁöÇÏö¸í Á÷¼±°Å¸®

Çб³¸í ÀüÈ­¹øÈ£ ÁÖ¼Ò Á÷¼±°Å¸®

¹ý¿ø

ÀÎõÁö¹æ¹ý¿ø (222-20)ÀÎõ±¤¿ª½Ã ¹ÌÃßȦ±¸ ¼Ò¼º·Î 163¹ø±æ 17(ÇÐÀ͵¿)
´ëÇ¥ : 032)860-1113~4
°üÇÒÁö¿ª : Áß±¸, µ¿±¸, ³²±¸, ¿¬¼ö±¸, ³²µ¿±¸, ºÎÆò±¸, °è¾ç±¸, ¼­±¸, ¿ËÁø±º, °­È­±º

µî±â¼Ò ÀÎõÁö¹æ¹ý¿ø º»¿ø µî±â±¹ (´ëÇ¥:1544-0773, ÆÑ½º:(032)620-9099, ÀÎõ±¤¿ª½Ã ¹ÌÃßȦ±¸ °æ¿ø´ë·Î 881(Á־ȵ¿ 983))
¼¼¹«¼­ ³²ÀÎõ¼¼¹«¼­ (´ëÇ¥:032-460-52, ÆÑ½º:032-463-5778, ÀÎõ±¤¿ª½Ã ³²µ¿±¸ ÀÎÇÏ·Î 548 (±¸¿ùµ¿))

Àαٳ«ÂûÅë°è

±â°£ ¸Å°¢°Ç¼ö Æò±Õ°¨Á¤°¡
Æò±Õ¸Å°¢°¡
¸Å°¢°¡À²
Æò±ÕÀ¯Âû¼ö
3°³¿ù 131°Ç 187,698,473¿ø
136,507,423¿ø
74%
1.5ȸ
6°³¿ù 222°Ç 193,024,775¿ø
139,664,748¿ø
73%
1.5ȸ
12°³¿ù 347°Ç 199,756,484¿ø
145,387,613¿ø
73%
1.5ȸ


º» °æ¸ÅÁ¤º¸´Â ¹ý¿øÀÚ·á¿Í ÀÏÄ¡Çϵµ·Ï ÇÏ¿´À¸³ª ±Ç¸®»çÇ׺¯µ¿, ÀÔ·ÂÂø¿À µîÀÇ ¿øÀÎÀ¸·Î »ç½Ç°ú ´Ù¸¦ ¼ö ÀÖ½À´Ï´Ù. ÀÌ¿ë¾à°ü¿¡ ÀǰЏéÃ¥Á¶°ÇÀ¸·Î Á¦°øµÊÀ» ¾Ë¸®¸ç, °æ¸ÅÀÔÂû½Ã ¹Ýµå½Ã °ü·Ã °øºÎ¸¦ ÀçÈ®ÀÎÇϽñ⠹ٶø´Ï´Ù. º¸´Ù Æí¸®ÇÑ °æ¸ÅÁ¤º¸ Á¦°øÀ» À§ÇØ Áö¼ÓÀûÀ¸·Î °³¼±ÇϰڽÀ´Ï´Ù. ÀÌ¿ëÇØ Áּż­ °¨»çÇÕ´Ï´Ù.