·Î±×ÀÎ
71
´Ù¼¼´ë(ºô¶ó)
ÀÎõÁö¹æ¹ý¿ø
 °¨Á¤°¡99,000,000 ¿ø
 ÃÖÀú°¡(100%) 99,000,000 ¿ø
 º¸Áõ±Ý(10%) 9,900,000 ¿ø
 Ã»±¸¾×125,000,000 ¿ø
ÀÎõ±¤¿ª½Ã ºÎÆò±¸ ºÎÆò´ë·Î 132, 12Ãþ1215È£ (ºÎÆòµ¿,Ç츮¿ò³ëºí·¹½º)
ÀÎõ±¤¿ª½Ã ºÎÆò±¸ ºÎÆòµ¿ 431-15
»ç°Ç¹øÈ£ 2025Ÿ°æ505114
°æ¸ÅÁ¾·ùºÎµ¿»ê°­Á¦°æ¸Å
¸Å°¢´ë»óÅäÁö ¹× °Ç¹°Àϰý ¸Å°¢
¸Å°¢±âÀÏ    2025.12.22(¿ù) 10:00 (¿À´Ã ÀÔÂû)    
ÅäÁö¸éÀû3.72§³(1.13 Æò)
°Ç¹°¸éÀû16.76§³(5.07 Æò)
乫/¼ÒÀ¯ÀÚ¹æOO / ¹æOO
ä±ÇÀÚÁÖOOOOOOO
ÆäÀ̽ººÏ Æ®À§ÅÍ ±¸±Û+
īī¿À½ºÅ丮
īī¿ÀÅå sms¹®ÀÚº¸³»±â
 

±âÀϳ»¿ª

°æ°ú ³¯Â¥ Àú°¨ ÃÖÀú°¡ °á°ú
Á¢¼öÀÏ 2025-01-17 °æ¸ÅÁ¢¼ö
~3ÀÏ 
2025-01-20 °æ¸Å°³½Ã°áÁ¤
~104ÀÏ 
2025-05-01 ¹è´ç¿ä±¸Á¾±âÀÏ
~339ÀÏ 
2025-12-22 100%
99,000,000
ÁøÇà
¹°°Ç¸í¼¼¼­ ÇöȲÁ¶»ç¼­ ¹®°ÇÁ¢¼ö ¼Û´Þ³»¿ª

°¨Á¤Æò°¡ÇöȲ

¸ñ·Ï ÁÖ¼Ò ±¸Á¶/¿ëµµ/´ëÁö±Ç ¸éÀû ºñ°í
´ëÁö±Ç
ºÎÆòµ¿ 431-15 1018.8ºÐÀÇ 3.72 3.72 §³
(1.13Æò)
°Ç¹°
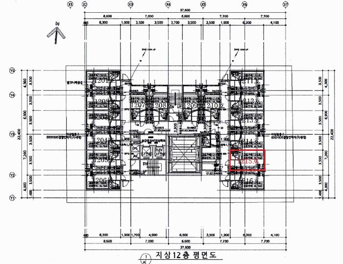
ºÎÆòµ¿ 431-15 12Ãþ1215È£ ö±ÙÄÜÅ©¸®Æ®±¸Á¶ 16.76 §³
(5.07Æò)
1) À§Ä¡/ÀϹݻó¾÷Áö¿ª/ÁöÇÏÁÖÂ÷Àå/°£¼±µµ·Î/ö±ÙÄÜÅ©¸®Æ®±¸Á¶/Æò½º¶óºêÁöºØ/µµ½Ã°¡½º/°¡½ºº¸ÀÏ·¯ ´õº¸±â
°¨Á¤Æò°¡ ¿äÇ×Ç¥
1)À§Ä¡ ¹× ÁÖÀ§È¯°æ
´ë»ó¹°°ÇÀº ÀÎõ±¤¿ª½Ã ºÎÆò±¸ ºÎÆòµ¿ ¼ÒÀç ""ºÎÆò½ÃÀ忪"" ºÏÃø ºÎÆò´ë·Îº¯¿¡ À§Ä¡Çϸç,
ÁÖÀ§´Â ºÎÆò´ë·Îº¯À¸·Î ¾÷¹« ¹× »ó¾÷½Ã¼³, ¿ÀÇǽºÅÚ µîÀÌ ÁñºñÇϸç, µ¿Ãø À̸éÁö¿ª¿¡´Â
¾ÆÆÄÆ® µî °øµ¿ÁÖÅà ¹× °¢Á¾ ±Ù¸°»ýȰ½Ã¼³ µîÀÌ ¼ÒÀçÇÏ´Â Áö¿ªÀÓ.
2)±³Åë»óȲ
º»°Ç±îÁö Â÷·® ÃâÀÔÀÌ °¡´ÉÇϸç, Àα٠±³Åë½Ã¼³ ¹× °£¼±µµ·Î¿ÍÀÇ °Å¸® ¹× ÆíÀǼº µî °í
·Á½Ã Á¦¹Ý ±³Åë»óȲÀº ¾çÈ£ÇÔ.
3)°Ç¹°ÀÇ ±¸Á¶
ö±ÙÄÜÅ©¸®Æ®±¸Á¶ Æò½º¶óºêÁöºØ 15Ãþ °Ç¹° ³» Á¦12Ãþ Á¦1215È£·Î¼­,
(»ç¿ë½ÂÀÎÀÏ: 2014.05.13)

¿Ü º® : ¸ôÅ»À§ ÆäÀÎÆÃ ¹× ÀϺΠȭ°­¼® ºÙÀÓ µî ¸¶°¨.
â È£ : ¼¦½Ãâȣ µî
4)ÀÌ¿ë»óÅÂ
°øºÎ»ó °øµ¿ÁÖÅÃ(µµ½ÃÇü»ýȰÁÖÅÃ)À¸·Î µîÀçµÇ¾î ÀÖÀ½.
5)¼³ºñ³»¿ª
À§»ý ¹× ±Þ¹è¼ö¼³ºñ, µµ½Ã°¡½ºº¸ÀÏ·¯¿¡ ÀÇÇÑ ³­¹æ¼³ºñ, ½Â°­±â¼³ºñ, ÁöÇÏÁÖÂ÷Àå½Ã¼³, ¼Ò
¹æ¼³ºñ µîÀÌ °®Ãß¾îÁ® ÀÖÀ½.
6)ÅäÁöÀÇ Çü»ó ¹× ÀÌ¿ë»óÅÂ
ÀÎÁ¢Áö ¹× ÀÎÁ¢µµ·Î¿Í µî°íÆòźÇÑ 2ÇÊ1´ÜÀÇ ¼¼·ÎÀ广Çü ÅäÁö·Î¼­, °øµ¿ÁÖÅÃ, ¾÷¹«½Ã¼³,
Á¦1,2Á¾±Ù¸°»ýȰ½Ã¼³ °ÇºÎÁö·Î ÀÌ¿ëÁßÀÓ.
7)ÀÎÁ¢ µµ·Î»óŵî
¼­ÃøÀ¸·Î ±¤´ë·ÎÀÇ °£¼±µµ·Î(ºÎÆò´ë·Î) ¹× µ¿ÃøÀ¸·Î ·ÎÆø ¾à8¹ÌÅÍ ³»¿ÜÀÇ À̸鵵·Î¿¡ Á¢
Çϰí ÀÖÀ½.
8)ÅäÁöÀÌ¿ë°èȹ ¹× Á¦ÇÑ»óÅÂ
<ºÎÆòµ¿ 431-15>: ÀϹݻó¾÷Áö¿ª, ¹æÈ­Áö±¸, ½Ã°¡Áö°æ°üÁö±¸(Áß½É), °¡·Î±¸¿ªº° ÃÖ°í³ôÀÌ
Á¦ÇÑÁö¿ª<°ÇÃà¹ý>, »ó´ëº¸È£±¸¿ª<±³À°È¯°æ º¸È£¿¡ °üÇÑ ¹ý·ü>, °ú¹Ð¾ïÁ¦±Ç¿ª<¼öµµ±ÇÁ¤ºñ
°èȹ¹ý>, öµµº¸È£Áö±¸(2014-07-14)<öµµ¾ÈÀü¹ý>, (ÇѰ­)Æó±â¹°¸Å¸³½Ã¼³ ¼³Ä¡Á¦ÇÑÁö¿ª
<ÇѰ­¼ö°è »ó¼ö¿ø¼öÁú°³¼± ¹× ÁÖ¹ÎÁö¿ø µî¿¡ °üÇÑ ¹ý·ü>

<ºÎÆòµ¿ 431-52>: ÀϹݻó¾÷Áö¿ª, ¹æÈ­Áö±¸, °¡·Î±¸¿ªº° ÃÖ°í³ôÀÌÁ¦ÇÑÁö¿ª<°ÇÃà¹ý>, »ó´ë
º¸È£±¸¿ª<±³À°È¯°æº¸È£¿¡ °üÇÑ ¹ý·ü>, °ú¹Ð¾ïÁ¦±Ç¿ª<¼öµµ±ÇÁ¤ºñ°èȹ¹ý>, (ÇѰ­)Æó±â¹°¸Å
¸³½Ã¼³ ¼³Ä¡Á¦ÇÑÁö¿ª<ÇѰ­¼ö°è »ó¼ö¿ø¼öÁú°³¼± ¹× ÁÖ¹ÎÁö¿ø µî¿¡ °üÇÑ ¹ý·ü>
9)°øºÎ¿ÍÀÇ Â÷ÀÌ
¾øÀ½.
10)±âŸÂü°í»çÇ×(ÀÓ´ë°ü·Ê ¹× ±âŸ)
ÀÓ´ë°ü°è´Â ¹Ì»óÀÓ.
Âü°í
»çÇ×

º» °ÇÀº 15Ãþ

°ÇÃ๰ÇöȲ

¼ÒÀçÁö ÀÎõ±¤¿ª½Ã ºÎÆò±¸ ºÎÆòµ¿ 431-15¹øÁö
´ëÁö¸éÀû 1018.8§³
(308.73Æò)
¿¬¸éÀû 8806.09§³
(2668.51Æò)
°ÇÃà¸éÀû 752.3§³
(227.97Æò)
¿ëÀû·ü»êÁ¤
¿¬¸éÀû
7113.31§³
(2155.55Æò)
°ÇÆóÀ² 73.84% ¿ëÀû·ü 698.2%
Áö»óÃþ¼ö 15Ãþ ÁöÇÏÃþ¼ö 2Ãþ
ÁÖ¿ëµµ °øµ¿ÁÖÅà ±¸Á¶ ö±ÙÄÜÅ©¸®Æ®±¸Á¶
Âø°øÀÏÀÚ 2012.10.15 »ç¿ë½ÂÀÎÀÏÀÚ 2014.05.13
°ÇÃ๰Ãþº°ÇöȲ [º¸±â]


±¹ÅäºÎ½Ç°Å·¡°¡ ÀÎõ±¤¿ª½Ã ºÎÆò±¸ ºÎÆòµ¿

¡Ü ¸Å¸Å

¸éÀû(§³), ±Ý¾×(¸¸¿ø)

¡Ü Àü¼¼

¸éÀû(§³), ±Ý¾×(¸¸¿ø)

°è¾àÀϰǹ°¸íĪÃþ¿¬¸éÀû´ëÁö±Ý¾×°ÇÃà
24.03.31°Ç¿ì(798-6)144.6461.3425,5001985
24.03.30ȯÈñºô¸®Áö(10-138)352.6924.37515,8952003
24.03.30·°Å°ÇÏÀÌÃ÷ºô(768-29)238.2516.736,4001994
24.03.30·°Å°ÇÏÀÌÃ÷ºô(768-29)238.2516.736,4001994
24.03.30´ëµ¿ÁÖÅÃ145.5418.189913,8002002
¢Ñ ´õº¸±â

µî±âºÎµîº» ¿ä¾à(°Ç¹°)

  Á¢¼öÀÏÀÚ µî±â¸ñÀû/±Ç¸®ÀÚ ±Ç¸®±Ý¾× ±âÁØ
1 2022³â1¿ù27ÀÏ
¼ÒÀ¯±Ç
¹æOO
¼Ò¸ê
2 2024³â3¿ù6ÀÏ
ÀÓÂ÷±Ç¼³Á¤
±èOO
125,000,000 Àμö
3 2024³â11¿ù25ÀÏ
°¡¾Ð·ù
ÁÖOOOO
3,025,000,000 ¼Ò¸ê±âÁØ
4 2025³â1¿ù20ÀÏ
°­Á¦°æ¸Å
ÁÖOOOO
¼Ò¸ê

ÀÓÂ÷ÀÎÇöȲ (¹è´ç¿ä±¸Á¾±âÀÏ: 2025-05-01)

ÀÓÂ÷ÀÎ ¿ëµµ/Á¡À¯ º¸Áõ±Ý/¿ù¼¼ ´ëÇ×·Â
ÀüÀÔÀÏ/È®Á¤ÀÏ ¹è´ç¿ä±¸ ºñ°í
±èOO
O
2024.10.22.
±èOO ÀüºÎ 125,000,000
O
2022.01.24.
2021.12.29.
2022.01.24.
ÁÖOOOOOOOOOOOOOOOO ÀüºÎ 125,000,000
O
2022.01.24.
2021.12.29.
2025.5.1. 2022.01.24.~2024.01.23.
ºñ°í
(¸Å°¢¹°°Ç
¸í¼¼¼­)
±è¼±¹Ì : ÁÖÅÃÀÓÂ÷±Çµî±â±Ç¸®Àڷμ­ ÁÖÅÃÀÓÂ÷±Çµî±âÀÏÀº 2024.3.6.ÀÓ ÁÖÅõµ½Ãº¸Áõ°ø»ç(ÀÓÂ÷ÀÎ:±è¼±¹Ì) : ÀÓÂ÷ÀÎ ±è¼±¹ÌÀÇ ÀÓÂ÷º¸Áõ±Ý¹Ýȯä±Ç ¾ç¼öÀÎ

¿©ÀÇÁÖ°æ¸Å Á¶¾ð ÇÑ ¸¶µð

¼±¼øÀ§ ÀÓÂ÷±Çµî±â°¡ µÇ¾î ÀÖ½À´Ï´Ù
´ëÇ×·ÂÀÌ ÀÖ´Â ¼±¼øÀ§ ÀÓÂ÷±Çµî±â ±Ç¸®ÀÚ°¡ ¹è´çÀ» Àü¾× ¹ÞÁö ¸øÇÒ °æ¿ì ³«ÂûÀÚ°¡ ÀÜ¿© º¸Áõ±ÝÀ» ÀμöÇØ¾ßÇÏ´Â °æ¿ìµµ ÀÖ½À´Ï´Ù.

ÁÖÀÇ»çÇ× (ÃÖ¼±¼øÀ§ ¼³Á¤ÀÏ: 2024.11.25. °¡¾Ð·ù ¼³Á¤)

¸Å°¢À¸·Î ¼Ò¸êµÇÁö ¾Ê´Â µî±âºÎ±Ç¸®: ¸Å¼öÀο¡°Ô ´ëÇ×ÇÒ ¼ö ÀÖ´Â À»±¸ 5¹ø ÀÓÂ÷±Çµî±â ÀÖÀ¸¹Ç·Î ¹è´ç¿¡¼­ Àü¾× º¯Á¦µÇÁö ¾Æ´ÏÇϸé Àܾ×À» ¸Å¼öÀÎÀÌ ÀμöÇÔ
¸Å°¢À¸·Î ¼³Á¤µÈ °ÍÀ¸·Î º¸´Â Áö»ó±Ç:
¡Ø¹Ì³³°ü¸®ºñ(°ø¿ë) Àμö¿©ºÎ¸¦ ÀÔÂû Àü¿¡ È®ÀÎÇϽñ⠹ٶø´Ï´Ù

 

Áö¿ªºÐ¼®

ÁöÇÏö¸í Á÷¼±°Å¸®

Çб³¸í ÀüÈ­¹øÈ£ ÁÖ¼Ò Á÷¼±°Å¸®

¹ý¿ø

ÀÎõÁö¹æ¹ý¿ø (222-20)ÀÎõ±¤¿ª½Ã ¹ÌÃßȦ±¸ ¼Ò¼º·Î 163¹ø±æ 17(ÇÐÀ͵¿)
´ëÇ¥ : 032)860-1113~4
°üÇÒÁö¿ª : Áß±¸, µ¿±¸, ³²±¸, ¿¬¼ö±¸, ³²µ¿±¸, ºÎÆò±¸, °è¾ç±¸, ¼­±¸, ¿ËÁø±º, °­È­±º

µî±â¼Ò ÀÎõÁö¹æ¹ý¿ø º»¿ø µî±â±¹ (´ëÇ¥:1544-0773, ÆÑ½º:(032)620-9099, ÀÎõ±¤¿ª½Ã ¹ÌÃßȦ±¸ °æ¿ø´ë·Î 881(Á־ȵ¿ 983))
¼¼¹«¼­ ºÏÀÎõ¼¼¹«¼­ (´ëÇ¥:032-540-62, ÆÑ½º:032-545-0411, ÀÎõ±¤¿ª½Ã °è¾ç±¸ È¿¼­·Î244(ÀÛÀüµ¿ 422-1) )

Àαٳ«ÂûÅë°è

±â°£ ¸Å°¢°Ç¼ö Æò±Õ°¨Á¤°¡
Æò±Õ¸Å°¢°¡
¸Å°¢°¡À²
Æò±ÕÀ¯Âû¼ö
3°³¿ù 20°Ç 835,778,113¿ø
618,244,697¿ø
64%
2.3ȸ
6°³¿ù 32°Ç 622,441,501¿ø
454,240,155¿ø
65%
2.2ȸ
12°³¿ù 36°Ç 573,725,778¿ø
414,769,110¿ø
64%
2.4ȸ


º» °æ¸ÅÁ¤º¸´Â ¹ý¿øÀÚ·á¿Í ÀÏÄ¡Çϵµ·Ï ÇÏ¿´À¸³ª ±Ç¸®»çÇ׺¯µ¿, ÀÔ·ÂÂø¿À µîÀÇ ¿øÀÎÀ¸·Î »ç½Ç°ú ´Ù¸¦ ¼ö ÀÖ½À´Ï´Ù. ÀÌ¿ë¾à°ü¿¡ ÀǰЏéÃ¥Á¶°ÇÀ¸·Î Á¦°øµÊÀ» ¾Ë¸®¸ç, °æ¸ÅÀÔÂû½Ã ¹Ýµå½Ã °ü·Ã °øºÎ¸¦ ÀçÈ®ÀÎÇϽñ⠹ٶø´Ï´Ù. º¸´Ù Æí¸®ÇÑ °æ¸ÅÁ¤º¸ Á¦°øÀ» À§ÇØ Áö¼ÓÀûÀ¸·Î °³¼±ÇϰڽÀ´Ï´Ù. ÀÌ¿ëÇØ Áּż­ °¨»çÇÕ´Ï´Ù.