·Î±×ÀÎ
1446
¾ÆÆÄÆ®
ûÁÖÁö¹æ¹ý¿ø ÃæÁÖÁö¿ø
 °¨Á¤°¡196,000,000 ¿ø
 ÃÖÀú°¡(41%) 80,282,000 ¿ø
 º¸Áõ±Ý(10%) 8,028,200 ¿ø
 Ã»±¸¾×213,365,520 ¿ø
ÃæÃ»ºÏµµ ÃæÁֽà Áß¾Óž¸é ¿ø¾Ó4±æ 51, 116µ¿ 1Ãþ105È£ (ÃæÁÖ½ÃÆ¼ÀÚÀÌ)
ÃæÃ»ºÏµµ ÃæÁֽà Áß¾Óž¸é ¿ëÀü¸® 721
»ç°Ç¹øÈ£ 2024Ÿ°æ35605
°æ¸ÅÁ¾·ùºÎµ¿»ê°­Á¦°æ¸Å
¸Å°¢´ë»óÅäÁö ¹× °Ç¹°Àϰý ¸Å°¢
¸Å°¢±âÀÏ    2026.06.01(¿ù) 10:00 ÀÔÂû 11ÀÏÀü    
ÅäÁö¸éÀû48.88§³(14.79 Æò)
°Ç¹°¸éÀû60.00§³(18.15 Æò)
乫/¼ÒÀ¯ÀÚÀÌOO / ÀÌOO
ä±ÇÀÚÁÖOOOOOOO
ÆäÀ̽ººÏ Æ®À§ÅÍ ±¸±Û+
īī¿À½ºÅ丮
īī¿ÀÅå sms¹®ÀÚº¸³»±â
 

±âÀϳ»¿ª

°æ°ú ³¯Â¥ Àú°¨ ÃÖÀú°¡ °á°ú
Á¢¼öÀÏ 2024-11-06 °æ¸ÅÁ¢¼ö
~1ÀÏ 
2024-11-07 °æ¸Å°³½Ã°áÁ¤
~97ÀÏ 
2025-02-11 ¹è´ç¿ä±¸Á¾±âÀÏ
~411ÀÏ 
2025-12-22 100%
196,000,000
À¯Âû
~446ÀÏ 
2026-01-26 80%
156,800,000
À¯Âû
~495ÀÏ 
2026-03-16 64%
125,440,000
À¯Âû
~530ÀÏ 
2026-04-20 51%
100,352,000
À¯Âû
~572ÀÏ 
2026-06-01 41%
80,282,000
ÁøÇà
¹°°Ç¸í¼¼¼­ ÇöȲÁ¶»ç¼­ ¹®°ÇÁ¢¼ö ¼Û´Þ³»¿ª

°¨Á¤Æò°¡ÇöȲ

¸ñ·Ï ÁÖ¼Ò ±¸Á¶/¿ëµµ/´ëÁö±Ç ¸éÀû ºñ°í
´ëÁö±Ç
¿ëÀü¸® 721 88800.3ºÐÀÇ 48.8793 48.8793 §³
(14.79Æò)
°Ç¹°
¿ëÀü¸® 721 116µ¿ 1Ãþ105È£ ö±ÙÄÜÅ©¸®Æ®±¸Á¶ 59.9959 §³
(18.15Æò)
1) À§Ä¡/µµ½ÃÁö¿ª/Á¦3Á¾ÀϹÝÁÖ°ÅÁö¿ª/Áö±¸´ÜÀ§°èȹ±¸¿ª/ÁÖÂ÷Àå/°£¼±µµ·Î/ö±ÙÄÜÅ©¸®Æ®±¸Á¶/¹æ3/¿å½Ç2 ´õº¸±â
°¨Á¤Æò°¡ ¿äÇ×Ç¥
1)À§Ä¡ ¹× ÁÖÀ§È¯°æ
º»°ÇÀº ÃæÃ»ºÏµµ ÃæÁֽà Áß¾Óž¸é ¿ëÀü¸® ¼ÒÀç "ÃæÁÖÁß¾ÓžÃʵîÇб³" ºÏÃø Àαٿ¡ À§Ä¡Çϸç, ÁÖÀ§´Â ¾ÆÆÄÆ®´ÜÁö, ´Üµ¶ÁÖÅà ¹× ±Ù¸°»ýȰ½Ã¼³ µîÀÌ È¥ÀçÇÏ´Â µî Á¦¹Ý ÁÖÀ§È¯°æÀº º¸ÅëÀÓ.
2)±³Åë»óȲ
º»°Ç±îÁö Á¦Â÷·®ÀÇ ÁøÃâÀÔÀÌ ÀÚÀ¯·Î¿ì¸ç, Àαٿ¡ °£¼±µµ·Î°¡ Åë°úÇÏ´Â µî Á¦¹Ý ±³Åë»çÁ¤Àº º¸ÅëÀÓ.
3)°Ç¹°ÀÇ ±¸Á¶
ö±ÙÄÜÅ©¸®Æ®±¸Á¶(ö±Ù)ÄÜÅ©¸®Æ®ÁöºØ ÁöÇÏ3Ãþ Áö»ó17Ãþ °Ç¹° ³» Á¦1Ãþ 105È£·Î¼­
(»ç¿ë½ÂÀÎÀÏ:2017.11.29.)
¿Üº®: ¸ôÅ»À§ ÆäÀÎÆÃ ¸¶°¨
³»º®: º®Áöµµ¹è ¹× ÀϺΠŸÀϺÙÀÓ µî
âȣ: ¼¦½ÃâȣÀÓ.
4)ÀÌ¿ë»óÅÂ
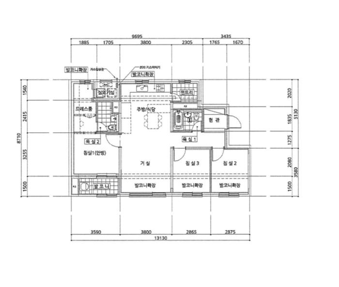
¾ÆÆÄÆ®(¹æ3, °Å½Ç, ÁÖ¹æ/½Ä´ç, ¿å½Ç2)·Î ÀÌ¿ë ÁßÀÓ.
5)¼³ºñ³»¿ª
À§»ý ¹× ±Þ¹è¼ö¼³ºñ, ³­¹æ¼³ºñ, ¼ÒÈ­Àü¼³ºñ, ½Â°­±â¼³ºñ, ÁÖÂ÷Àå¼³ºñ µÇ¾îÀÖÀ½.
6)ÅäÁöÀÇ Çü»ó ¹× ÀÌ¿ë»óÅÂ
Á¤¹æÇüÀÇ ÆòźÇÑ ÅäÁö·Î¼­ ¾ÆÆÄÆ® °ÇºÎÁö·Î ÀÌ¿ë ÁßÀÓ.
7)ÀÎÁ¢ µµ·Î»óŵî
³²ÃøÀ¸·Î ³ëÆø ¾à 20-25m ³»¿ÜÀÇ Æ÷Àåµµ·Î¿Í Á¢ÇÔ.
8)ÅäÁöÀÌ¿ë°èȹ ¹× Á¦ÇÑ»óÅÂ
µµ½ÃÁö¿ª,Á¦3Á¾ÀϹÝÁÖ°ÅÁö¿ª(2013-01-15),Áö±¸´ÜÀ§°èȹ±¸¿ª(2013-01-24),Áß·Î1·ù(Æø 20m-25m)(2020-03-27)(Áß·Î1-Áß¾Ó)(Á¢ÇÕ),Áß·Î2·ù(Æø 15m-20m)(2020-03-27)(Áß·Î2-Áß¾Ó26)(Á¢ÇÕ),°¡Ãà»çÀ°Á¦Çѱ¸¿ª(¸ðµç°¡Ãà»çÀ°Á¦ÇÑÁö¿ª)<°¡ÃàºÐ´¢ÀÇ °ü¸® ¹× À̿뿡 °üÇÑ ¹ý·ü>,»ó´ëº¸È£±¸¿ª(2019-09-20)(¼­ÃæÁÖ²ÞÀÇÀ¯Ä¡¿ø)<±³À°È¯°æ º¸È£¿¡ °üÇÑ ¹ý·ü>,»ó´ëº¸È£±¸¿ª(2019-09-20)(Áß¾ÓžÁßÇб³)<±³À°È¯°æ º¸È£¿¡ °üÇÑ ¹ý·ü>,»ó´ëº¸È£±¸¿ª(2019-09-20)(ÃæÁÖÁß¾ÓžÃʵîÇб³)<±³À°È¯°æ º¸È£¿¡ °üÇÑ ¹ý·ü>,Àý´ëº¸È£±¸¿ª(2019-09-20)(Áß¾ÓžÁßÇб³)<±³À°È¯°æ º¸È£¿¡ °üÇÑ ¹ý·ü>,Àý´ëº¸È£±¸¿ª(2019-09-20)(ÃæÁÖÁß¾ÓžÃʵîÇб³)<±³À°È¯°æ º¸È£¿¡ °üÇÑ ¹ý·ü),±â¾÷µµ½Ã°³¹ß±¸¿ª(2013-01-15)(ÃæÁÖÁö½Ä±â¹ÝÇü±â¾÷µµ½Ã)<±â¾÷µµ½Ã°³¹ß Ưº°¹ý>
9)°øºÎ¿ÍÀÇ Â÷ÀÌ
ÇØ´ç»çÇ× ¾øÀ½.
10)±âŸÂü°í»çÇ×(ÀÓ´ë°ü·Ê ¹× ±âŸ)
ÀÓ´ë°ü°è´Â ¹Ì»óÀÓ.

°ÇÃ๰ÇöȲ

¼ÒÀçÁö ÃæÃ»ºÏµµ ÃæÁֽà Áß¾Óž¸é ¿ëÀü¸® 721¹øÁö
´ëÁö¸éÀû   ¿¬¸éÀû 7467.2258§³
(2262.8Æò)
°ÇÃà¸éÀû 720.3853§³
(218.3Æò)
¿ëÀû·ü»êÁ¤
¿¬¸éÀû
7250.7468§³
(2197.2Æò)
°ÇÆóÀ²   ¿ëÀû·ü  
Áö»óÃþ¼ö 17Ãþ ÁöÇÏÃþ¼ö 1Ãþ
ÁÖ¿ëµµ °øµ¿ÁÖÅà ±¸Á¶ ö±ÙÄÜÅ©¸®Æ®±¸Á¶
Âø°øÀÏÀÚ 2015.10.30 »ç¿ë½ÂÀÎÀÏÀÚ 2017.11.29
°ÇÃ๰Ãþº°ÇöȲ [º¸±â]


±¹ÅäºÎ½Ç°Å·¡°¡ ÃæÃ»ºÏµµ ÃæÁֽà Áß¾Óž¸é

¡Ü ¸Å¸Å

¸éÀû(§³), ±Ý¾×(¸¸¿ø)

¡Ü Àü¼¼

¸éÀû(§³), ±Ý¾×(¸¸¿ø)

°è¾àÀÏARTÃþÀü¿ëº¸Áõ±Ý¿ù¼¼°ÇÃà
26.05.07ÃæÁÖ½ÃÆ¼ÀÚÀÌ959.897716,0002017
26.05.04ÃæÁÖ½ÃÆ¼ÀÚÀÌ359.995917,00002017
26.05.03ÃæÁÖ½ÃÆ¼ÀÚÀÌ1659.897715,50002017
26.04.29ÃæÁÖ½ÃÆ¼ÀÚÀÌ859.995916,50002017
26.04.28ÃæÁÖ½ÃÆ¼ÀÚÀÌ459.995916,60002017
¢Ñ ´õº¸±â

µî±âºÎµîº» ¿ä¾à(°Ç¹°)

  Á¢¼öÀÏÀÚ µî±â¸ñÀû/±Ç¸®ÀÚ ±Ç¸®±Ý¾× ±âÁØ
1 2020³â3¿ù30ÀÏ
¼ÒÀ¯±Ç
ÀÌOO
¼Ò¸ê
2 2023³â7¿ù24ÀÏ
ÀÓÂ÷±Ç¼³Á¤
¿øOO
200,000,000 Àμö
3 2023³â12¿ù27ÀÏ
°¡¾Ð·ù
½ÅOOOO
28,314,606 ¼Ò¸ê±âÁØ
4 2024³â4¿ù5ÀÏ
¾Ð·ù
±¹OOOO
¼Ò¸ê
5 2024³â6¿ù28ÀÏ
¾Ð·ù
±¤OO
¼Ò¸ê
6 2024³â9¿ù6ÀÏ
¾Ð·ù
ÃæOO
¼Ò¸ê
7 2024³â11¿ù7ÀÏ
°­Á¦°æ¸Å
ÁÖOOOO
¼Ò¸ê

ÀÓÂ÷ÀÎÇöȲ (¹è´ç¿ä±¸Á¾±âÀÏ: 2025-02-11)

ÀÓÂ÷ÀÎ ¿ëµµ/Á¡À¯ º¸Áõ±Ý/¿ù¼¼ ´ëÇ×·Â
ÀüÀÔÀÏ/È®Á¤ÀÏ ¹è´ç¿ä±¸ ºñ°í
¿øOO 200,000,000
O
2022.4.15.
2022.11.7.
ÀÌOO ¹Ì»ó ¹Ì»ó
[¿ù]¹Ì»ó
X
2024.01.31
¹Ì»ó
ºñ°í
(¸Å°¢¹°°Ç
¸í¼¼¼­)
¿ø¼º¹Î: °æ¸Å½Åûä±ÇÀÚÀÎ ÁÖÅõµ½Ãº¸Áõ°ø»ç°¡ ÀÓÂ÷±ÇÀÚ ¿ø¼º¹ÎÀÇ ÀÓÂ÷º¸Áõ±Ý¹Ýȯä±Ç ¾ç¼öÀÎÀÓ(´ëÇ×·Â ¹× ¿ì¼±º¯Á¦±Ç ½Â°è)

¿©ÀÇÁÖ°æ¸Å Á¶¾ð ÇÑ ¸¶µð

¼±¼øÀ§ ÀÓÂ÷±Çµî±â°¡ µÇ¾î ÀÖ½À´Ï´Ù
´ëÇ×·ÂÀÌ ÀÖ´Â ¼±¼øÀ§ ÀÓÂ÷±Çµî±â ±Ç¸®ÀÚ°¡ ¹è´çÀ» Àü¾× ¹ÞÁö ¸øÇÒ °æ¿ì ³«ÂûÀÚ°¡ ÀÜ¿© º¸Áõ±ÝÀ» ÀμöÇØ¾ßÇÏ´Â °æ¿ìµµ ÀÖ½À´Ï´Ù.

ÁÖÀÇ»çÇ× (ÃÖ¼±¼øÀ§ ¼³Á¤ÀÏ: 2023.12.27. °¡¾Ð·ù ¼³Á¤)

¸Å°¢À¸·Î ¼Ò¸êµÇÁö ¾Ê´Â µî±âºÎ±Ç¸®: ¸Å¼öÀο¡°Ô ´ëÇ×ÇÒ ¼ö ÀÖ´Â À»±¸ 5¹ø ÀÓÂ÷±Çµî±â(ÀÓ´ëÂ÷º¸Áõ±Ý 200,000,000¿ø, ÀüÀÔÀÏÀÚ 2022.4.15. È®Á¤ÀÏÀÚ 2022.11.7.)°¡ ÀÖ À¸¹Ç·Î ¹è´ç¿¡¼­ º¸Áõ±ÝÀÌ Àü¾× º¯Á¦µÇÁö ¾ÊÀ¸¸é Àܾ×À» ¸Å¼öÀÎÀÌ ÀμöÇÔ
¸Å°¢À¸·Î ¼³Á¤µÈ °ÍÀ¸·Î º¸´Â Áö»ó±Ç:
¡Ø¹Ì³³°ü¸®ºñ(°ø¿ë) Àμö¿©ºÎ¸¦ ÀÔÂû Àü¿¡ È®ÀÎÇϽñ⠹ٶø´Ï´Ù

 

Áö¿ªºÐ¼®

ÁöÇÏö¸í Á÷¼±°Å¸®

Çб³¸í ÀüÈ­¹øÈ£ ÁÖ¼Ò Á÷¼±°Å¸®

¹ý¿ø

ûÁÖÁö¹æ¹ý¿ø ÃæÁÖÁö¿ø (273-57)ÃæÃ»ºÏµµ ÃæÁֽà °è¸í´ë·Î 103 (±³Çö2µ¿ 720-2)
´ëÇ¥ : 043)841-9119
°üÇÒÁö¿ª : À½¼º±º, ÃæÁÖ½Ã

µî±â¼Ò ûÁÖÁö¹æ¹ý¿ø ÃæÁÖÁö¿ø µî±â°è (´ëÇ¥:1544-0773, ÆÑ½º:(043)848-6461~2, ÃæºÏ ÃæÁֽà °è¸í´ë·Î 103 (±³Çöµ¿ 720-2))
¼¼¹«¼­ ÃæÁÖ¼¼¹«¼­ (´ëÇ¥:043-841-62, ÆÑ½º:043-845-3320, ÃæÃ»ºÏµµ ÃæÁÖ½Ã Ãæ¿ø´ë·Î 724 (±Ý¸ªµ¿))

Àαٳ«ÂûÅë°è

±â°£ ¸Å°¢°Ç¼ö Æò±Õ°¨Á¤°¡
Æò±Õ¸Å°¢°¡
¸Å°¢°¡À²
Æò±ÕÀ¯Âû¼ö
3°³¿ù 8°Ç 169,500,000¿ø
142,048,111¿ø
84%
1.1ȸ
6°³¿ù 18°Ç 135,122,222¿ø
111,438,740¿ø
82%
1.4ȸ
12°³¿ù 42°Ç 136,199,738¿ø
108,245,778¿ø
78%
1.9ȸ


º» °æ¸ÅÁ¤º¸´Â ¹ý¿øÀÚ·á¿Í ÀÏÄ¡Çϵµ·Ï ÇÏ¿´À¸³ª ±Ç¸®»çÇ׺¯µ¿, ÀÔ·ÂÂø¿À µîÀÇ ¿øÀÎÀ¸·Î »ç½Ç°ú ´Ù¸¦ ¼ö ÀÖ½À´Ï´Ù. ÀÌ¿ë¾à°ü¿¡ ÀǰЏéÃ¥Á¶°ÇÀ¸·Î Á¦°øµÊÀ» ¾Ë¸®¸ç, °æ¸ÅÀÔÂû½Ã ¹Ýµå½Ã °ü·Ã °øºÎ¸¦ ÀçÈ®ÀÎÇϽñ⠹ٶø´Ï´Ù. º¸´Ù Æí¸®ÇÑ °æ¸ÅÁ¤º¸ Á¦°øÀ» À§ÇØ Áö¼ÓÀûÀ¸·Î °³¼±ÇϰڽÀ´Ï´Ù. ÀÌ¿ëÇØ Áּż­ °¨»çÇÕ´Ï´Ù.