·Î±×ÀÎ
1190
±Ù¸°ÁÖÅÃ
ÃáõÁö¹æ¹ý¿ø °­¸ªÁö¿ø
 °¨Á¤°¡1,506,113,600 ¿ø
 ÃÖÀú°¡(70%) 1,054,280,000 ¿ø
 º¸Áõ±Ý(10%) 105,428,000 ¿ø
 Ã»±¸¾×824,039,403 ¿ø
°­¿øÆ¯º°ÀÚÄ¡µµ °­¸ª½Ã ³»°îµ¿ 396-1
»ç°Ç¹øÈ£ 2025Ÿ°æ30051
°æ¸ÅÁ¾·ùºÎµ¿»êÀÓÀǰæ¸Å
¸Å°¢´ë»óÅäÁö ¹× °Ç¹°Àϰý¸Å°¢
¸Å°¢±âÀÏ    2026.04.27(¿ù) 10:00 ÀÔÂû 18ÀÏÀü    
ÅäÁö¸éÀû1,821.00§³(550.85 Æò)
°Ç¹°¸éÀû459.09§³(138.87 Æò)
乫/¼ÒÀ¯ÀÚÁÖOOO OOOO¿Ü 1¸í / ±èOO
ä±ÇÀÚ°­OOOOOOOO
ÆäÀ̽ººÏ Æ®À§ÅÍ ±¸±Û+
īī¿À½ºÅ丮
īī¿ÀÅå sms¹®ÀÚº¸³»±â
 

±âÀϳ»¿ª

°æ°ú ³¯Â¥ Àú°¨ ÃÖÀú°¡ °á°ú
Á¢¼öÀÏ 2025-01-07 °æ¸ÅÁ¢¼ö
~7ÀÏ 
2025-01-14 °æ¸Å°³½Ã°áÁ¤
~100ÀÏ 
2025-04-17 ¹è´ç¿ä±¸Á¾±âÀÏ
~349ÀÏ 
2025-12-22 100%
1,506,113,600
À¯Âû
~391ÀÏ 
2026-02-02 70%
1,054,280,000
º¯°æ
~475ÀÏ 
2026-04-27 70%
1,054,280,000
ÁøÇà
¹°°Ç¸í¼¼¼­ ÇöȲÁ¶»ç¼­ ¹®°ÇÁ¢¼ö ¼Û´Þ³»¿ª

°¨Á¤Æò°¡ÇöȲ

¸ñ·Ï ÁÖ¼Ò ±¸Á¶/¿ëµµ/´ëÁö±Ç ¸éÀû ºñ°í
ÅäÁö
³»°îµ¿ 396-1 ´ë 1821 §³
(550.85Æò)
°Ç¹°
³»°îµ¿ 396-1 1Ãþ ±Ù¸°»ýȰ½Ã¼³ ö±ÙÄÜÅ©¸®Æ®±¸Á¶ 192.25 §³
(58.16Æò)
³»°îµ¿ 396-1 2Ãþ ´Ù°¡±¸ÁÖÅà ö±ÙÄÜÅ©¸®Æ®±¸Á¶ 103.72 §³
(31.38Æò)
³»°îµ¿ 396-1 3Ãþ ´Ù°¡±¸ÁÖÅà ö±ÙÄÜÅ©¸®Æ®±¸Á¶ 110.12 §³
(33.31Æò)
Á¦½Ã¿Ü
°Ç¹°
³»°îµ¿ 396-1 °è´Ü½Ç 13 §³
(3.93Æò)
Æ÷ÇÔ
³»°îµ¿ 396-1 Â÷°í 40 §³
(12.10Æò)
Æ÷ÇÔ
³»°îµ¿ 396-1 ž籤¼³ºñ §³ Æ÷ÇÔ
1) À§Ä¡/µµ½ÃÁö¿ª/ÀÚ¿¬³ìÁöÁö¿ª/º¸Àü»êÁö/¹ö½ºÁ¤·ùÀå/ö±ÙÄÜÅ©¸®Æ®±¸Á¶ ´õº¸±â
°¨Á¤Æò°¡ ¿äÇ×Ç¥
1)À§Ä¡ ¹× ÁÖÀ§È¯°æ
º»°ÇÀº °­¿øÆ¯º°ÀÚÄ¡µµ °­¸ª½Ã ³»°îµ¿ ¼ÒÀç "³»°îµ¿ ÇàÁ¤º¹Áö¼¾ÅÍ" ºÏµ¿Ãø Àαٿ¡ À§Ä¡Çϸç, ÁÖÀ§´Â ÁÖÅà ¹× ±Ù¸°»ýȰ½Ã¼³, ³ó°æÁö, ÀÓ¾ß µîÀÌ È¥ÀçÇÏ´Â Áö¿ªÀ¸·Î¼­, ÁÖÀ§È¯°æÀº º¸ÅëÀÓ.
2)±³Åë»óȲ
º»°Ç±îÁö Â÷·® ÃâÀÔÀÌ °¡´ÉÇϸç, Àαٿ¡ ¹ö½ºÁ¤·ùÀå ¼ÒÀçÇÏ´Â µî Àü¹ÝÀûÀÎ ±³Åë»óȲÀº º¸ÅëÀÓ.
3)ÇüÅ ¹× ÀÌ¿ë»óÅÂ
º»°ÇÀº ºÎÁ¤ÇüÀÇ ¿Ï°æ»ç ÅäÁö·Î¼­ ÇöȲ ÁÖ»ó¿ë °ÇºÎÁö·Î ÀÌ¿ëÁßÀ̸ç, ÀϺδ ÇöȲ µµ·Î·Î ÀÌ¿ëÁßÀÓ.
4)ÀÎÁ¢ µµ·Î»óÅÂ
º»°Ç ³²µ¿ÃøÀ¸·Î ¾à 4¹ÌÅÍ ³»¿ÜÀÇ Æ÷Àåµµ·Î¿¡ Á¢ÇÔ.
5)ÅäÁöÀÌ¿ë°èȹ ¹× Á¦ÇÑ»óÅÂ
µµ½ÃÁö¿ª,º¸Àü³ìÁöÁö¿ª,ÀÚ¿¬³ìÁöÁö¿ª, °¡Ãà»çÀ°Á¦Çѱ¸¿ª(2024-10-30)(¸ðµçÃàÁ¾ »çÀ°Á¦Çѱ¸¿ª)<°¡ÃàºÐ´¢ÀÇ °ü¸® ¹× À̿뿡 °üÇÑ ¹ý·ü>, ºñÇà¾ÈÀüÁ¦2±¸¿ª(Àü¼ú)<±º»ç±âÁö ¹× ±º»ç½Ã¼³ º¸È£¹ý>, ±º¿ëºñÇàÀå ¼ÒÀ½´ëÃ¥±¸¿ª Á¦3Á¾±¸¿ª(2021-12-29)<±º¿ëºñÇàÀå¤ý±º»ç°ÝÀå ¼ÒÀ½ ¹æÁö ¹× ÇÇÇØº¸»ó¿¡ °üÇÑ ¹ý·ü>, ¿ª»ç¹®È­È¯°æº¸Á¸Áö¿ª<¹®È­À¯»êÀÇ º¸Á¸ ¹× Ȱ¿ë¿¡ °üÇÑ ¹ý·ü>, °øÀÍ¿ë»êÁö<»êÁö°ü¸®¹ý>, º¸Àü»êÁö<»êÁö°ü¸®¹ý>
6)Á¦½Ã¸ñ·Ï ¿ÜÀÇ ¹°°Ç
¾øÀ½.
7)°øºÎ¿ÍÀÇ Â÷ÀÌ
º»°Ç ÅäÁö´Â °øºÎ»ó Áö¸ñ &quot;´ë&quot;À̳ª, ÀϺδ ÇöȲ &quot;µµ·Î&quot;ÀÓ.
8)±âŸÂü°í»çÇ×(ÀÓ´ë°ü·Ê ¹× ±âŸ)
-
1)°Ç¹°ÀÇ ±¸Á¶
º»°ÇÀº ö±ÙÄÜÅ©¸®Æ®±¸Á¶ ±âŸÁöºØ Áö»ó3Ãþ °Ç¹°·Î¼­, 2020³â 3¿ù 19ÀÏ¿¡ »ç¿ë½ÂÀÎ µÇ¾úÀ¸¸ç, ¿Üº®: ´ë¸®¼® ¹× ½ºÅ¸ÄÚ ¸¶°¨ µî ³»º®: ³»ºÎ ÀÎÅ׸®¾î ¸¶°¨ µî âȣ: ¾Ë·ç¹Ì´½ »õ½Ã âȣ µîÀÓ.
2)ÀÌ¿ë»óÅÂ
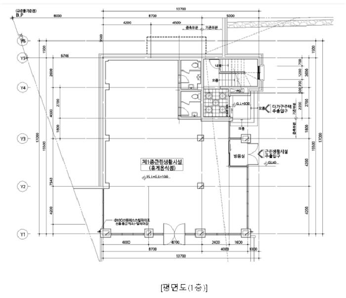
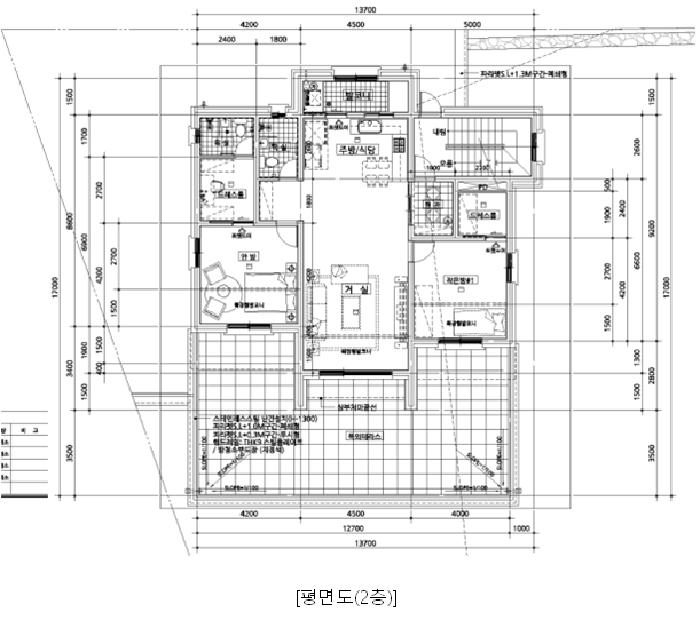
º»°ÇÀº 1Ãþ ±Ù¸°»ýȰ½Ã¼³(ÇöȲ &apos;PETER LEE STUDIO) 2Ãþ,3ÃþÀº ´Ù°¡±¸ÁÖÅÃÀ¸·Î ÀÌ¿ëÁßÀÓ.
3)¼³ºñ³»¿ª
±âº»ÀûÀÎ À§»ý ¹× ±Þ¹è¼ö¼³ºñ µî µÇ¾îÀÖÀ¸¸ç, ÁÖÅúκÐÀº LPG°¡½º¿¡ ÀÇÇÑ ³­¹æ¼³ºñ µÇ¾îÀÖÀ½.
4)ºÎÇÕ¹° ¹× Á¾¹°
ÈÄ÷ &quot;ÁöÀû ¹× °Ç¹°°³È²µµ&quot;¿Í °°ÀÌ Á¦½Ã¿Ü°Ç¹° ¼ÒÀçÇÔ.
5)°øºÎ¿ÍÀÇ Â÷ÀÌ
-
6)±âŸÂü°í»çÇ×(ÀÓ´ë°ü·Ê ¹× ±âŸ)
-
Âü°í
»çÇ×
-Àϰý¸Å°¢. Á¦½Ã¿Ü °Ç¹° Æ÷ÇÔ -¸ñ·Ï1. ÇöȲ ÀϺΠµµ·ÎÀÓ -¸ñ·Ï2. ÇöȲ 1ÃþÀº ±Ù¸°»ýȰ½Ã¼³, 2,3ÃþÀº ´Ù°¡±¸ ÁÖÅÃÀ¸·Î ÀÌ¿ëÁßÀÓ -Áö»ó¿¡ ¼ÒÀçÇÏ´Â Á¶°æ¼ö, Á¶°æ¼® µîÀº ÅäÁö°¡Ä¡¿¡ Æ÷ÇÔÇÏ¿© Æò°¡ÇÔ -Á¤È®ÇÑ ÁöÀû °æ°è µîÀº Ãø·® ¿äÇÔ
¼Ò Àç: º»°Ç ±âÈ£1,2¹øÀº °­¸ª½Ã ³»°îµ¿ ÇàÁ¤º¹Áö¼¾Å¸ µ¿Ãø Àαٿ¡ À§Ä¡ÇÔ. Çö Ȳ: º»°Ç ±âÈ£1,2¹øÀº µµ½ÃÁö¿ª,º¸Àü³ìÁöÁö¿ª,ÀÚ¿¬³ìÁöÁö¿ªÀÇ ´ëÁö·Î Áö»ó ¿¡ 乫ÀÚ ¼ÒÀ¯ÀÇ Ã¶±ÙÄÜÅ©¸®Æ®Á¶ ±âŸÁöºØ 3Ãþ ´Üµ¶ÁÖÅÃÀÌ ¼ÒÀçÇϰí ÀÖÀ¸¸ç ÇöÀç 乫ÀÚ(¼ÒÀ¯ÀÚ)¿Í ÀÓÂ÷ÀεéÀÌ

°ÇÃ๰ÇöȲ

¼ÒÀçÁö °­¿øÆ¯º°ÀÚÄ¡µµ °­¸ª½Ã ³»°îµ¿ 396-1¹øÁö
´ëÁö¸éÀû 1821§³
(551.82Æò)
¿¬¸éÀû 406.09§³
(123.06Æò)
°ÇÃà¸éÀû 378.97§³
(114.84Æò)
¿ëÀû·ü»êÁ¤
¿¬¸éÀû
406.09§³
(123.06Æò)
°ÇÆóÀ² 20.81% ¿ëÀû·ü 22.3%
Áö»óÃþ¼ö 3Ãþ ÁöÇÏÃþ¼ö  
ÁÖ¿ëµµ ´Üµ¶ÁÖÅà ±¸Á¶ ö±ÙÄÜÅ©¸®Æ®±¸Á¶
Âø°øÀÏÀÚ 2018.08.07 »ç¿ë½ÂÀÎÀÏÀÚ 2020.03.19
°ÇÃ๰Ãþº°ÇöȲ [º¸±â]


±¹ÅäºÎ½Ç°Å·¡°¡ °­¿øÆ¯º°ÀÚÄ¡µµ °­¸ª½Ã ³»°îµ¿

¡Ü ¸Å¸Å

¸éÀû(§³), ±Ý¾×(¸¸¿ø)

¡Ü Àü¼¼

¸éÀû(§³), ±Ý¾×(¸¸¿ø)

°è¾àÀÏ¿¬¸éÀûº¸Áõ±Ý¿ù¼¼°ÇÃà
26.03.312820035
26.03.252820035
26.03.2530300482017
26.03.1839.66500652016
26.03.1795.3719,0001979
¢Ñ ´õº¸±â

µî±âºÎµîº» ¿ä¾à(ÅäÁö)

  Á¢¼öÀÏÀÚ µî±â¸ñÀû/±Ç¸®ÀÚ ±Ç¸®±Ý¾× ±âÁØ
1 2018³â1¿ù17ÀÏ
¼ÒÀ¯±Ç
±èOO
¼Ò¸ê
2 2022³â3¿ù21ÀÏ
Àü¼¼±Ç
±ÇOO
280,000,000 Àμö
3 2024³â4¿ù1ÀÏ
±ÙÀú´ç±Ç
°­OOOO
630,000,000 ¼Ò¸ê±âÁØ
4 2024³â4¿ù1ÀÏ
±ÙÀú´ç±Ç
°­OOOO
360,000,000 ¼Ò¸ê
5 2024³â7¿ù16ÀÏ
°¡¾Ð·ù
±èOO
25,692,431 ¼Ò¸ê
6 2024³â10¿ù15ÀÏ
°¡¾Ð·ù
°­OOOO
34,000,000 ¼Ò¸ê
7 2024³â12¿ù10ÀÏ
°¡¾Ð·ù
¾ÈOO
18,000,000 ¼Ò¸ê
8 2025³â1¿ù15ÀÏ
ÀÓÀǰæ¸Å
°­OOOO
¼Ò¸ê
9 2025³â1¿ù24ÀÏ
¾Ð·ù
±¹OOOO
¼Ò¸ê
10 2025³â7¿ù10ÀÏ
¾Ð·ù
±¹
¼Ò¸ê

µî±âºÎµîº» ¿ä¾à(°Ç¹°)

  Á¢¼öÀÏÀÚ µî±â¸ñÀû/±Ç¸®ÀÚ ±Ç¸®±Ý¾× ±âÁØ
1 2020³â3¿ù20ÀÏ
¼ÒÀ¯±Ç
±èOO
¼Ò¸ê
2 2022³â3¿ù21ÀÏ
Àü¼¼±Ç
±ÇOO
280,000,000 Àμö
3 2024³â4¿ù1ÀÏ
±ÙÀú´ç±Ç
°­OOOO
630,000,000 ¼Ò¸ê±âÁØ
4 2024³â4¿ù1ÀÏ
±ÙÀú´ç±Ç
°­OOOO
360,000,000 ¼Ò¸ê
5 2024³â7¿ù16ÀÏ
°¡¾Ð·ù
±èOO
25,692,431 ¼Ò¸ê
6 2024³â10¿ù15ÀÏ
°¡¾Ð·ù
°­OOOO
34,000,000 ¼Ò¸ê
7 2024³â12¿ù10ÀÏ
°¡¾Ð·ù
¾ÈOO
18,000,000 ¼Ò¸ê
8 2025³â1¿ù15ÀÏ
ÀÓÀǰæ¸Å
°­OOOO
¼Ò¸ê
9 2025³â7¿ù10ÀÏ
¾Ð·ù
±¹
¼Ò¸ê

ÀÓÂ÷ÀÎÇöȲ (¹è´ç¿ä±¸Á¾±âÀÏ: 2025-04-17)

ÀÓÂ÷ÀÎ ¿ëµµ/Á¡À¯ º¸Áõ±Ý/¿ù¼¼ ´ëÇ×·Â
ÀüÀÔÀÏ/È®Á¤ÀÏ ¹è´ç¿ä±¸ ºñ°í
±ÇOO 3ÃþÀüºÎ110.12§³ ±Ý280,000,000¿ø
[¿ù]0¿ø
O
2022.04.06.
2022.04.06.
2025.1.21. 2022. 3.31.ºÎÅÍÇöÀç±îÁö
ÀÌOO 1Ãþ»ó°¡ÀüºÎ172.77§³ ±Ý30,000,000¿ø
[¿ù]±Ý2,000,000¿ø
O
2023.03.02.
2023.08.23.
2025.1.24. 2023.02.05.ºÎÅÍÇöÀç±îÁö

¿©ÀÇÁÖ°æ¸Å Á¶¾ð ÇÑ ¸¶µð

Á¦½Ã¿Ü ¹°°ÇÀÌ Æ÷ÇԵǾî ÀÖ½À´Ï´Ù
¡®Á¦½Ã¿Ü ¹°°Ç¡¯Àº ÇØ´ç °øºÎ»ó¿¡´Â Á¸ÀçÇÏÁö ¾ÊÁö¸¸, ÇöÀå¿¡ Á¸Àç°¡ È®ÀεǴ ¿©·¯ ÇüÅÂÀÇ °Ç¹°, ±â°è±â±¸ µîÀ» ¸»ÇÕ´Ï´Ù. ÀÌµé ´ëºÎºÐÀº ¹«Çã°¡, ¹«½Å°íÀ̰ųª »ç¿ë½ÂÀÎÀ» ¹ÞÁö ¾ÊÀº °ÍÀÔ´Ï´Ù. ¡®Á¦½Ã¿Ü ¹°°Ç¡¯ÀÌ °æ¸Å´ë»ó¿¡ Æ÷ÇԵǾî ÀÖ´Ù¸é ³«ÂûÀÚÀÇ ¼ÒÀ¯±Ç Ãëµæ¿¡´Â ¾Æ¹«·± ¹®Á¦°¡ ¾ø½À´Ï´Ù.

ÁÖÀÇ»çÇ× (ÃÖ¼±¼øÀ§ ¼³Á¤ÀÏ: 2024.04.01. ±ÙÀú´ç±Ç ¼³Á¤)

¸Å°¢À¸·Î ¼Ò¸êµÇÁö ¾Ê´Â µî±âºÎ±Ç¸®: ¸ñ·Ï1. À»±¸ ¼øÀ§ 8¹ø Àü¼¼±Ç¼³Á¤µî±â(2022.3.21. µî±â)´Â ¸»¼ÒµÇÁö ¾Ê°í ¸Å¼öÀο¡°Ô ÀμöµÊ ¸ñ·Ï2. À»±¸ ¼øÀ§ 2¹ø Àü¼¼±Ç¼³Á¤µî±â(2022.3.21. µî±â)´Â ¸»¼ÒµÇÁö ¾Ê°í ¸Å¼öÀο¡°Ô ÀμöµÊ
¸Å°¢À¸·Î ¼³Á¤µÈ °ÍÀ¸·Î º¸´Â Áö»ó±Ç:
2025.04.10 À¯Ä¡±ÇÀÚ ÇÇOO OOOO OOO OOO À¯Ä¡±Ç½Å°í Á¦Ãâ
2025.09.16 À¯Ä¡±ÇÀÚ ÀÌOO(OOOOOOO) À¯Ä¡±Ç ±Ç¸® ÃëÇϼ­ Á¦Ãâ
-Àϰý¸Å°¢. Á¦½Ã¿Ü °Ç¹° Æ÷ÇÔ -¸ñ·Ï1. ÇöȲ ÀϺΠµµ·ÎÀÓ -¸ñ·Ï2. ÇöȲ 1ÃþÀº ±Ù¸°»ýȰ½Ã¼³, 2,3ÃþÀº ´Ù°¡±¸ ÁÖÅÃÀ¸·Î ÀÌ¿ëÁßÀÓ -Áö»ó¿¡ ¼ÒÀçÇÏ´Â Á¶°æ¼ö, Á¶°æ¼® µîÀº ÅäÁö°¡Ä¡¿¡ Æ÷ÇÔÇÏ¿© Æò°¡ÇÔ -Á¤È®ÇÑ ÁöÀû °æ°è µîÀº Ãø·® ¿äÇÔ
¡Ø¹Ì³³°ü¸®ºñ(°ø¿ë) Àμö¿©ºÎ¸¦ ÀÔÂû Àü¿¡ È®ÀÎÇϽñ⠹ٶø´Ï´Ù

 

Áö¿ªºÐ¼®

ÁöÇÏö¸í Á÷¼±°Å¸®

Çб³¸í ÀüÈ­¹øÈ£ ÁÖ¼Ò Á÷¼±°Å¸®

¹ý¿ø

ÃáõÁö¹æ¹ý¿ø °­¸ªÁö¿ø (254-63)°­¿øµµ °­¸ª½Ã µ¿ÇØ´ë·Î 3288-18 (³­°îµ¿)
´ëÇ¥ : 033)640-1000, ¾ß°£ : 033)640-1199
°üÇÒÁö¿ª : °­¸ª½Ã, µ¿ÇؽÃ, »ïô½Ã

µî±â¼Ò ÃáõÁö¹æ¹ý¿ø °­¸ªÁö¿ø µî±â°ú (´ëÇ¥:1544-0773, ÆÑ½º:(033)647-5110, °­¿øµµ °­¸ª½Ã µ¿ÇØ´ë·Î 3288-18 (³­°îµ¿ 117-1))
¼¼¹«¼­ °­¸ª¼¼¹«¼­ (´ëÇ¥:033-610-92, ÆÑ½º:033-641-4186, °­¿øµµ °­¸ª½Ã ¼ö¸®°ñ±æ 65 (±³µ¿))

Àαٳ«ÂûÅë°è

±â°£ ¸Å°¢°Ç¼ö Æò±Õ°¨Á¤°¡
Æò±Õ¸Å°¢°¡
¸Å°¢°¡À²
Æò±ÕÀ¯Âû¼ö
3°³¿ù 6°Ç 1,074,108,255¿ø
731,542,833¿ø
60%
1.7ȸ
6°³¿ù 39°Ç 346,211,439¿ø
211,733,513¿ø
54%
1.9ȸ
12°³¿ù 56°Ç 440,620,952¿ø
250,576,875¿ø
53%
2.1ȸ


º» °æ¸ÅÁ¤º¸´Â ¹ý¿øÀÚ·á¿Í ÀÏÄ¡Çϵµ·Ï ÇÏ¿´À¸³ª ±Ç¸®»çÇ׺¯µ¿, ÀÔ·ÂÂø¿À µîÀÇ ¿øÀÎÀ¸·Î »ç½Ç°ú ´Ù¸¦ ¼ö ÀÖ½À´Ï´Ù. ÀÌ¿ë¾à°ü¿¡ ÀǰЏéÃ¥Á¶°ÇÀ¸·Î Á¦°øµÊÀ» ¾Ë¸®¸ç, °æ¸ÅÀÔÂû½Ã ¹Ýµå½Ã °ü·Ã °øºÎ¸¦ ÀçÈ®ÀÎÇϽñ⠹ٶø´Ï´Ù. º¸´Ù Æí¸®ÇÑ °æ¸ÅÁ¤º¸ Á¦°øÀ» À§ÇØ Áö¼ÓÀûÀ¸·Î °³¼±ÇϰڽÀ´Ï´Ù. ÀÌ¿ëÇØ Áּż­ °¨»çÇÕ´Ï´Ù.