·Î±×ÀÎ
1157
´Ù¼¼´ë(ºô¶ó)
ÀÎõÁö¹æ¹ý¿ø
 °¨Á¤°¡161,000,000 ¿ø
 ÃÖÀú°¡(49%) 78,890,000 ¿ø
 º¸Áõ±Ý(10%) 7,889,000 ¿ø
 Ã»±¸¾×67,405,166 ¿ø
ÀÎõ±¤¿ª½Ã ³²µ¿±¸ ´ã¹æ·Î48¹ø±æ 38, 2Ãþ 202È£ (¸¸¼öµ¿,ÇØÇÇÇϿ콺)
ÀÎõ±¤¿ª½Ã ³²µ¿±¸ ¸¸¼öµ¿ 1105-8
»ç°Ç¹øÈ£ 2024Ÿ°æ560053
°æ¸ÅÁ¾·ùºÎµ¿»êÀÓÀǰæ¸Å
¸Å°¢´ë»óÅäÁö ¹× °Ç¹°Àϰý ¸Å°¢
¸Å°¢±âÀÏ    2026.03.17(È­) 10:00 ÀÔÂû 16ÀÏÀü    
ÅäÁö¸éÀû28.17§³(8.52 Æò)
°Ç¹°¸éÀû49.99§³(15.12 Æò)
乫/¼ÒÀ¯ÀÚÀÌOO / ÀÌOO
ä±ÇÀÚÇÑOOOOOOO
ÆäÀ̽ººÏ Æ®À§ÅÍ ±¸±Û+
īī¿À½ºÅ丮
īī¿ÀÅå sms¹®ÀÚº¸³»±â
 

±âÀϳ»¿ª

°æ°ú ³¯Â¥ Àú°¨ ÃÖÀú°¡ °á°ú
Á¢¼öÀÏ 2024-09-04 °æ¸ÅÁ¢¼ö
~5ÀÏ 
2024-09-09 °æ¸Å°³½Ã°áÁ¤
~103ÀÏ 
2024-12-16 ¹è´ç¿ä±¸Á¾±âÀÏ
~470ÀÏ 
2025-12-18 100%
161,000,000
À¯Âû
~516ÀÏ 
2026-02-02 70%
112,700,000
À¯Âû
~559ÀÏ 
2026-03-17 49%
78,890,000
ÁøÇà
¹°°Ç¸í¼¼¼­ ÇöȲÁ¶»ç¼­ ¹®°ÇÁ¢¼ö ¼Û´Þ³»¿ª

°¨Á¤Æò°¡ÇöȲ

¸ñ·Ï ÁÖ¼Ò ±¸Á¶/¿ëµµ/´ëÁö±Ç ¸éÀû ºñ°í
´ëÁö±Ç
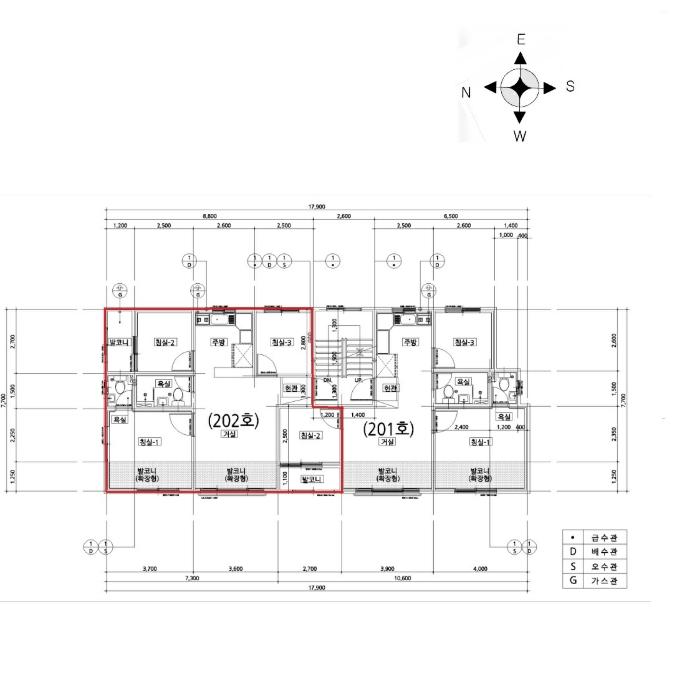
¸¸¼öµ¿ 1105-8 227.6ºÐÀÇ 28.1731 28.1731 §³
(8.52Æò)
°Ç¹°
¸¸¼öµ¿ 1105-8 2Ãþ 202È£ ö±ÙÄÜÅ©¸®Æ®Á¶ 49.99 §³
(15.12Æò)
1) À§Ä¡/Á¦2Á¾ÀϹÝÁÖ°ÅÁö¿ª/Á¦1Á¾Áö±¸´ÜÀ§°èȹ±¸¿ª/ö±ÙÄÜÅ©¸®Æ®Á¶/µµ½Ã°¡½º ´õº¸±â
°¨Á¤Æò°¡ ¿äÇ×Ç¥
1)À§Ä¡ ¹× ÁÖÀ§È¯°æ
´ë»ó¹°°ÇÀº ÀÎõ±¤¿ª½Ã ³²µ¿±¸ ¸¸¼öµ¿ ¼ÒÀç "¸¸¼öÇö´ë¾ÆÆÄÆ®" ºÏÃø Àαٿ¡ À§Ä¡Çϸç,
ºÎ±ÙÀº ´Ù¼¼´ëÁÖÅÃ¹× ¾ÆÆÄÆ®´ÜÁö¿Í ¼Ò±Ô¸ð ±Ù¸°»ýȰ½Ã¼³µîÀÌ È¥ÀçÇÏ´Â Áö´ë·Î¼­
Á¦¹Ý ÁÖÀ§ ȯ°æÀº ´ëü·Î º¸ÅëÀÓ.
2)±³Åë»óȲ
´ë»ó¹°°Ç±îÁö´Â Â÷·®ÃâÀÔÀÌ °¡´ÉÇϸç, Àαٿ¡ ³ë¼± ¹ö½º Á¤·ùÀå°ú Àüö¿ªÀÌ ¼ÒÀçÇÏ´Â µî
Á¦¹Ý ±³Åë»óȲÀº ´ëü·Î ¹«³­ÇÔ.
3)°Ç¹°ÀÇ ±¸Á¶
´ë»ó¹°°ÇÀº ö±ÙÄÜÅ©¸®Æ®Á¶ ö±ÙÄÜÅ©¸®Æ®ÁöºØ 5Ãþ °Ç³» 2Ãþ 202È£·Î½á,
¿Üº® : µ¹ºÙÀÓ¸¶°¨ µî.
³»º® : º®Áöµµ¹è ¹× ÀϺΠŸÀϺÙÀÓ ¸¶°¨.
âȣ : ¼¦½ÃâȣÀÓ.
4)ÀÌ¿ë»óÅÂ
´Ù¼¼´ëÁÖÅÃÀ¸·Î ÀÌ¿ëÁßÀÓ.
5)¼³ºñ³»¿ª
À§»ý¼³ºñ ¹× ±Þ ¡¤¹è¼ö¼³ºñ, µµ½Ã°¡½º ³­¹æ¼³ºñ µîÀ» °®Ãß¾úÀ½.
6)ÅäÁöÀÇ Çü»ó ¹× ÀÌ¿ë»óÅÂ
ÀÎÁ¢Áö ´ëºñ µî°íÆòźÇÑ »ç´Ù¸®Çü ÅäÁö·Î¼­, "´Ù¼¼´ëÁÖÅÃ"°ÇºÎÁö·Î ÀÌ¿ëÁßÀÓ.
7)ÀÎÁ¢ µµ·Î»óŵî
´ë»ó¹°°Ç ºÏÃøÀ¸·Î ³ëÆø ¾à 8m ÀÇ µµ·Î¿¡ Á¢ÇÔ.
8)ÅäÁöÀÌ¿ë°èȹ ¹× Á¦ÇÑ»óÅÂ
Á¦2Á¾ÀϹÝÁÖ°ÅÁö¿ª, Á¦1Á¾Áö±¸´ÜÀ§°èȹ±¸¿ª(¸¸¼ö3) °¡Ãà»çÀ°Á¦Çѱ¸¿ª(2013-03-08)((¹®ÀÇ:³²
µ¿±¸È¯°æº¸Àü°ú 032-453-2343))<°¡ÃàºÐ´¢ÀÇ °ü¸® ¹× À̿뿡 °üÇÑ ¹ý·ü>, °ú¹Ð¾ïÁ¦±Ç¿ª<¼öµµ
±ÇÁ¤ºñ°èȹ¹ý>

9)°øºÎ¿ÍÀÇ Â÷ÀÌ
¾øÀ½.
10)±âŸÂü°í»çÇ×(ÀÓ´ë°ü·Ê ¹× ±âŸ)
ÇöÀåÁ¶»ç½Ã Æó¹®ºÎÀç µîÀ¸·Î ÀÎÇÏ¿©, ÀÓ´ë°ü°è´Â ¹Ì»óÀÓ.


±¹ÅäºÎ½Ç°Å·¡°¡ ÀÎõ±¤¿ª½Ã ³²µ¿±¸ ¸¸¼öµ¿

¡Ü ¸Å¸Å

¸éÀû(§³), ±Ý¾×(¸¸¿ø)

¡Ü Àü¼¼

¸éÀû(§³), ±Ý¾×(¸¸¿ø)

°è¾àÀϰǹ°¸íĪÃþ¿¬¸éÀûº¸Áõ±Ý¿ù¼¼°ÇÃà
26.02.09ÇѼָ®Ä¡ºô305µ¿369.2413,0002011
26.02.06ÀÌÈ­ºô¶ó235.7500451994
26.02.06È­ÆòÀü¿øºô¶ó(111-103)Bµ¿339.245,2001995
26.02.04û½Ç(3-77)10µ¿149.7956,50001989
26.02.04»ï¼ºÈ¨Å¸¿î459.6213,0002002
¢Ñ ´õº¸±â

µî±âºÎµîº» ¿ä¾à(°Ç¹°)

  Á¢¼öÀÏÀÚ µî±â¸ñÀû/±Ç¸®ÀÚ ±Ç¸®±Ý¾× ±âÁØ
1 2021³â7¿ù30ÀÏ
¼ÒÀ¯±Ç
ÀÌOO
¼Ò¸ê
2 2021³â7¿ù30ÀÏ
±ÙÀú´ç±Ç
ÇÑOOOO
74,800,000 ¼Ò¸ê±âÁØ
3 2024³â4¿ù1ÀÏ
°¡¾Ð·ù
ÄÉOOOO
14,397,488 ¼Ò¸ê
4 2024³â5¿ù27ÀÏ
°¡¾Ð·ù
(OOOO
12,253,504 ¼Ò¸ê
5 2024³â9¿ù9ÀÏ
ÀÓÀǰæ¸Å
ÇÑOOOO
¼Ò¸ê

ÀÓÂ÷ÀÎÇöȲ (¹è´ç¿ä±¸Á¾±âÀÏ: 2024-12-16)


Á¶»çµÈ ÀÓÂ÷³»¿ªÀÌ ¾ø½À´Ï´Ù


¿©ÀÇÁÖ°æ¸Å Á¶¾ð ÇÑ ¸¶µð


ÁÖÀÇ»çÇ× (ÃÖ¼±¼øÀ§ ¼³Á¤ÀÏ: 2021.07.30. ±ÙÀú´ç±Ç ¼³Á¤)

¸Å°¢À¸·Î ¼Ò¸êµÇÁö ¾Ê´Â µî±âºÎ±Ç¸®:
¸Å°¢À¸·Î ¼³Á¤µÈ °ÍÀ¸·Î º¸´Â Áö»ó±Ç:
¡Ø¹Ì³³°ü¸®ºñ(°ø¿ë) Àμö¿©ºÎ¸¦ ÀÔÂû Àü¿¡ È®ÀÎÇϽñ⠹ٶø´Ï´Ù

 

Áö¿ªºÐ¼®

ÁöÇÏö¸í Á÷¼±°Å¸®

Çб³¸í ÀüÈ­¹øÈ£ ÁÖ¼Ò Á÷¼±°Å¸®

¹ý¿ø

ÀÎõÁö¹æ¹ý¿ø (222-20)ÀÎõ±¤¿ª½Ã ¹ÌÃßȦ±¸ ¼Ò¼º·Î 163¹ø±æ 17(ÇÐÀ͵¿)
´ëÇ¥ : 032)860-1113~4
°üÇÒÁö¿ª : Áß±¸, µ¿±¸, ³²±¸, ¿¬¼ö±¸, ³²µ¿±¸, ºÎÆò±¸, °è¾ç±¸, ¼­±¸, ¿ËÁø±º, °­È­±º

µî±â¼Ò ÀÎõÁö¹æ¹ý¿ø º»¿ø µî±â±¹ (´ëÇ¥:1544-0773, ÆÑ½º:(032)620-9099, ÀÎõ±¤¿ª½Ã ¹ÌÃßȦ±¸ °æ¿ø´ë·Î 881(Á־ȵ¿ 983))
¼¼¹«¼­ ³²ÀÎõ¼¼¹«¼­ (´ëÇ¥:032-460-52, ÆÑ½º:032-463-5778, ÀÎõ±¤¿ª½Ã ³²µ¿±¸ ÀÎÇÏ·Î 548 (±¸¿ùµ¿))

Àαٳ«ÂûÅë°è

±â°£ ¸Å°¢°Ç¼ö Æò±Õ°¨Á¤°¡
Æò±Õ¸Å°¢°¡
¸Å°¢°¡À²
Æò±ÕÀ¯Âû¼ö
3°³¿ù 77°Ç 123,367,532¿ø
74,082,852¿ø
58%
2.4ȸ
6°³¿ù 137°Ç 128,487,007¿ø
78,336,824¿ø
59%
2.4ȸ
12°³¿ù 280°Ç 129,718,643¿ø
81,398,265¿ø
60%
2.2ȸ


º» °æ¸ÅÁ¤º¸´Â ¹ý¿øÀÚ·á¿Í ÀÏÄ¡Çϵµ·Ï ÇÏ¿´À¸³ª ±Ç¸®»çÇ׺¯µ¿, ÀÔ·ÂÂø¿À µîÀÇ ¿øÀÎÀ¸·Î »ç½Ç°ú ´Ù¸¦ ¼ö ÀÖ½À´Ï´Ù. ÀÌ¿ë¾à°ü¿¡ ÀǰЏéÃ¥Á¶°ÇÀ¸·Î Á¦°øµÊÀ» ¾Ë¸®¸ç, °æ¸ÅÀÔÂû½Ã ¹Ýµå½Ã °ü·Ã °øºÎ¸¦ ÀçÈ®ÀÎÇϽñ⠹ٶø´Ï´Ù. º¸´Ù Æí¸®ÇÑ °æ¸ÅÁ¤º¸ Á¦°øÀ» À§ÇØ Áö¼ÓÀûÀ¸·Î °³¼±ÇϰڽÀ´Ï´Ù. ÀÌ¿ëÇØ Áּż­ °¨»çÇÕ´Ï´Ù.