·Î±×ÀÎ
1159
´Ù¼¼´ë(ºô¶ó)
ÀÇÁ¤ºÎÁö¹æ¹ý¿ø °í¾çÁö¿ø
 °¨Á¤°¡215,000,000 ¿ø
 ÃÖÀú°¡(49%) 105,350,000 ¿ø
 º¸Áõ±Ý(10%) 10,535,000 ¿ø
 Ã»±¸¾×221,049,532 ¿ø
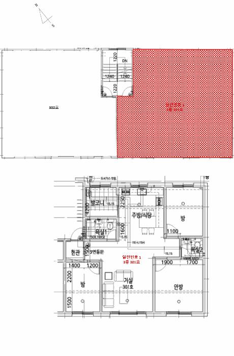
°æ±âµµ ÆÄÁֽà ¾ßµ¿µ¿ 617-3 105µ¿ 3Ãþ301È£
»ç°Ç¹øÈ£ 2025Ÿ°æ62729
°æ¸ÅÁ¾·ùºÎµ¿»ê°­Á¦°æ¸Å
¸Å°¢´ë»óÅäÁö ¹× °Ç¹°Àϰý ¸Å°¢
¸Å°¢±âÀÏ    2026.03.11(¼ö) 10:00 ÀÔÂû 9ÀÏÀü    
ÅäÁö¸éÀû63.02§³(19.06 Æò)
°Ç¹°¸éÀû54.07§³(16.36 Æò)
乫/¼ÒÀ¯ÀÚ¹ÚOO / ¹ÚOO
ä±ÇÀÚÁÖOOOOOOO
ÆäÀ̽ººÏ Æ®À§ÅÍ ±¸±Û+
īī¿À½ºÅ丮
īī¿ÀÅå sms¹®ÀÚº¸³»±â
 

±âÀϳ»¿ª

°æ°ú ³¯Â¥ Àú°¨ ÃÖÀú°¡ °á°ú
Á¢¼öÀÏ 2025-03-26 °æ¸ÅÁ¢¼ö
~1ÀÏ 
2025-03-27 °æ¸Å°³½Ã°áÁ¤
~89ÀÏ 
2025-06-23 ¹è´ç¿ä±¸Á¾±âÀÏ
~266ÀÏ 
2025-12-17 100%
215,000,000
À¯Âû
~308ÀÏ 
2026-01-28 70%
150,500,000
À¯Âû
~350ÀÏ 
2026-03-11 49%
105,350,000
ÁøÇà
¹°°Ç¸í¼¼¼­ ÇöȲÁ¶»ç¼­ ¹®°ÇÁ¢¼ö ¼Û´Þ³»¿ª

°¨Á¤Æò°¡ÇöȲ

¸ñ·Ï ÁÖ¼Ò ±¸Á¶/¿ëµµ/´ëÁö±Ç ¸éÀû ºñ°í
´ëÁö±Ç
¾ßµ¿µ¿ 617-3 1556ºÐÀÇ 63.02 63.02 §³
(19.06Æò)
°Ç¹°
¾ßµ¿µ¿ 617-3 105µ¿ 3Ãþ301È£ ö±ÙÄÜÅ©¸®Æ®±¸Á¶ 54.07 §³
(16.36Æò)
1) À§Ä¡/°èȹ°ü¸®Áö¿ª/³ë¼±¹ö½ºÁ¤·ùÀå/ö±ÙÄÜÅ©¸®Æ®±¸Á¶ ´õº¸±â
°¨Á¤Æò°¡ ¿äÇ×Ç¥
1)À§Ä¡ ¹× ÁÖÀ§È¯°æ
º»°ÇÀº °æ±âµµ ÆÄÁֽà ¾ßµ¿µ¿ ¼ÒÀç ""¹®»êÁ¦ÀϰíµîÇб³"" ºÏ¼­Ãø ±Ù°Å¸®¿¡ À§Ä¡Çϸç, ÀαÙÀº ´Ù¼¼´ëÁÖÅÃ, ¾ÆÆÄÆ®, ±Ù¸°»ýȰ½Ã¼³ ¹× Çб³ µîÀÌ È¥ÀçÇÏ´Â Áö¿ªÀÓ.
2)±³Åë»óȲ
º»°Ç±îÁö Â÷·®ÀÇ ÁøÃâÀÔÀÌ °¡´ÉÇϸç, Àαٿ¡ ³ë¼±¹ö½ºÁ¤·ùÀåÀÌ ¼ÒÀçÇÏ´Â µî ±³Åë»óȲÀº º¸ÅëÀÓ.
3)°Ç¹°ÀÇ ±¸Á¶
ö±ÙÄÜÅ©¸®Æ®±¸Á¶ Æò½½¶óºêÁöºØ 4Ãþ Áß 3Ãþ 301È£·Î¼­ (»ç¿ë½ÂÀÎÀÏ : 2019.01.18.)

¿Üº® : ¼®ÀçºÙÀÓ ¸¶°¨ µî,
âȣ : »õ½Ãâȣ µîÀÓ.
4)ÀÌ¿ë»óÅÂ
´Ù¼¼´ëÁÖÅÃÀÓ.
5)¼³ºñ³»¿ª
À§»ý ¹× ±Þ¹è¼ö¼³ºñ, ³­¹æ¼³ºñ µî µÇ¾î ÀÖÀ½.



6)ÅäÁöÀÇ Çü»ó ¹× ÀÌ¿ë»óÅÂ
ÀÎÁ¢µµ·Î ¹× ÀÎÁ¢ÅäÁö¿Í µî°íÆòźÇÑ 2ÇÊ ÀÏ´ÜÀÇ »ç´Ù¸®ÇüÀÇ ÅäÁö·Î¼­ ÁÖ°Å¿ë °ÇºÎÁö·Î ÀÌ¿ëÁßÀÓ.
7)ÀÎÁ¢ µµ·Î»óŵî
º»°Ç ºÏµ¿ÃøÀ¸·Î Æø ¾à 6mÀÇ Æ÷Àåµµ·Î¿Í Á¢ÇÔ.
8)ÅäÁöÀÌ¿ë°èȹ ¹× Á¦ÇÑ»óÅÂ
ÀϷùøÈ£ 1~2) °øÈ÷ °èȹ°ü¸®Áö¿ª, °¡Ãà»çÀ°Á¦Çѱ¸¿ª(ÀüºÎÁ¦ÇÑ)<°¡ÃàºÐ´¢ÀÇ °ü¸® ¹× À̿뿡 °üÇÑ ¹ý·ü>, ±º»ç±âÁö ¹× ±º»ç½Ã¼³±âŸ(15¹ÌÅÍÀ§ÀÓ)<±º»ç±âÁö ¹× ±º»ç½Ã¼³ º¸È£¹ý>, Á¦ÇѺ¸È£±¸¿ª(Àü¹æÁö¿ª:25km)<±º»ç±âÁö ¹× ±º»ç½Ã¼³ º¸È£¹ý>
9)°øºÎ¿ÍÀÇ Â÷ÀÌ
-
10)±âŸÂü°í»çÇ×(ÀÓ´ë°ü·Ê ¹× ±âŸ)
ÀÓ´ë°ü°è µî ¹Ì»óÀ̳ª, µî±â»çÇ×ÀüºÎÁõ¸í¼­»ó ÁÖÅÃÀÓÂ÷±Ç µî±âµÇ¾î ÀÖÀ½.
Âü°í
»çÇ×

- ö±ÙÄÜÅ©

°ÇÃ๰ÇöȲ

¼ÒÀçÁö °æ±âµµ ÆÄÁֽà ¾ßµ¿µ¿ 617-3¹øÁö
´ëÁö¸éÀû   ¿¬¸éÀû 525.92§³
(159.37Æò)
°ÇÃà¸éÀû 182.33§³
(55.25Æò)
¿ëÀû·ü»êÁ¤
¿¬¸éÀû
525.92§³
(159.37Æò)
°ÇÆóÀ²   ¿ëÀû·ü  
Áö»óÃþ¼ö 4Ãþ ÁöÇÏÃþ¼ö  
ÁÖ¿ëµµ °øµ¿ÁÖÅà ±¸Á¶ ö±ÙÄÜÅ©¸®Æ®±¸Á¶
Âø°øÀÏÀÚ 2018.04.18 »ç¿ë½ÂÀÎÀÏÀÚ 2019.01.18
°ÇÃ๰Ãþº°ÇöȲ [º¸±â]


±¹ÅäºÎ½Ç°Å·¡°¡ °æ±âµµ ÆÄÁֽà ¾ßµ¿µ¿

¡Ü ¸Å¸Å

¸éÀû(§³), ±Ý¾×(¸¸¿ø)

¡Ü Àü¼¼

¸éÀû(§³), ±Ý¾×(¸¸¿ø)

°è¾àÀϰǹ°¸íĪÃþ¿¬¸éÀûº¸Áõ±Ý¿ù¼¼°ÇÃà
26.01.25û¿ìÇÏÀÌÃ÷206µ¿207µ¿208µ¿450.1500902018
26.01.06û¿ìÇÏÀÌÃ÷206µ¿207µ¿208µ¿353.8114,8002018
25.12.22û¿ìÇÏÀÌÃ÷203µ¿204µ¿205µ¿152.451,000502017
25.12.15µ¥¼§Èú103µ¿367.2923,3002021
25.11.24û¿ìÇÏÀÌÃ÷103µ¿104µ¿105µ¿358.522,000552019
¢Ñ ´õº¸±â

µî±âºÎµîº» ¿ä¾à(°Ç¹°)

  Á¢¼öÀÏÀÚ µî±â¸ñÀû/±Ç¸®ÀÚ ±Ç¸®±Ý¾× ±âÁØ
1 2022³â4¿ù15ÀÏ
¼ÒÀ¯±Ç
¹ÚOO
¼Ò¸ê
2 2024³â4¿ù19ÀÏ
ÀÓÂ÷±Ç¼³Á¤
ÀÌOO
214,000,000 Àμö
3 2025³â3¿ù27ÀÏ
°­Á¦°æ¸Å
ÁÖOOOO
¼Ò¸ê±âÁØ

ÀÓÂ÷ÀÎÇöȲ (¹è´ç¿ä±¸Á¾±âÀÏ: 2025-06-23)

ÀÓÂ÷ÀÎ ¿ëµµ/Á¡À¯ º¸Áõ±Ý/¿ù¼¼ ´ëÇ×·Â
ÀüÀÔÀÏ/È®Á¤ÀÏ ¹è´ç¿ä±¸ ºñ°í
ÀÌOO 301È£ÀüºÎ 214,000,000
O
2022.04.15.
2022.03.10.
2022.04.15.~
ÁÖOOOOOOO 301È£ÀüºÎ 214,000,000
O
2022.04.15.
2022.03.10.
2025.3.26. 2022.04.15.~
ºñ°í
(¸Å°¢¹°°Ç
¸í¼¼¼­)
ÁÖÅõµ½Ãº¸Áõ°ø»ç:½Åûä±ÇÀڷμ­ ÀÓÂ÷±ÇÀÚ ÀÌÁÖ¿¬ÀÇ ÀÓ´ëÂ÷º¸Áõ±Ý¹Ýȯä±ÇÀ» ½Â°èÇÏ¿´À¸¸ç, ¹è´ç¿ä±¸ ÀÏÀÚ´Â °æ¸Å½ÅûÀÏÀÓ.

¿©ÀÇÁÖ°æ¸Å Á¶¾ð ÇÑ ¸¶µð


ÁÖÀÇ»çÇ× (ÃÖ¼±¼øÀ§ ¼³Á¤ÀÏ: 2025. 03. 27 °æ¸Å°³½Ã°á ¼³Á¤ Á¤)

¸Å°¢À¸·Î ¼Ò¸êµÇÁö ¾Ê´Â µî±âºÎ±Ç¸®: ¸Å¼öÀο¡°Ô ´ëÇ×ÇÒ ¼ö ÀÖ´Â ÀÓÂ÷ÀÎ ÀÖÀ½(ÀÓ´ëÂ÷º¸Áõ±Ý 214,000,000¿ø, ÀüÀÔÀÏ 2022.4.15. È®Á¤ÀÏÀÚ 2022.3.10) ¹è´ç¿¡¼­ º¸Áõ±Ý ÀÌ Àü¾× º¯Á¦µÇÁö ¾Æ´ÏÇϸé Àܾ×À» ¸Å¼öÀÎÀÌ ÀμöÇÔ.
¸Å°¢À¸·Î ¼³Á¤µÈ °ÍÀ¸·Î º¸´Â Áö»ó±Ç:
¡Ø¹Ì³³°ü¸®ºñ(°ø¿ë) Àμö¿©ºÎ¸¦ ÀÔÂû Àü¿¡ È®ÀÎÇϽñ⠹ٶø´Ï´Ù

 

Áö¿ªºÐ¼®

ÁöÇÏö¸í Á÷¼±°Å¸®

Çб³¸í ÀüÈ­¹øÈ£ ÁÖ¼Ò Á÷¼±°Å¸®

¹ý¿ø

ÀÇÁ¤ºÎÁö¹æ¹ý¿ø °í¾çÁö¿ø (104-13)°æ±âµµ °í¾ç½Ã Àϻ굿±¸ Àå¹é·Î 209
´ëÇ¥ : 031)920-6114, ¾ß°£ : 031)920-6550, ÆÑ½º : 031)920-6119
°üÇÒÁö¿ª : °í¾ç½Ã, ÆÄÁÖ½Ã

µî±â¼Ò ÀÇÁ¤ºÎÁö¹æ¹ý¿ø °í¾çÁö¿ø ÆÄÁÖµî±â¼Ò (´ëÇ¥:1544-0773, ÆÑ½º:(031)945-4764, 3628, °æ±âµµ ÆÄÁֽà ±ÝÁ¤·Î 45 (±ÝÃ̵¿ 947-28))
¼¼¹«¼­ ÆÄÁÖ¼¼¹«¼­ (´ëÇ¥:031-956-02, ÆÑ½º:031-957-0315, °æ±âµµ ÆÄÁֽà ±Ý¸ª¿ª·Î 62 (±ÝÃ̵¿))

Àαٳ«ÂûÅë°è

±â°£ ¸Å°¢°Ç¼ö Æò±Õ°¨Á¤°¡
Æò±Õ¸Å°¢°¡
¸Å°¢°¡À²
Æò±ÕÀ¯Âû¼ö


º» °æ¸ÅÁ¤º¸´Â ¹ý¿øÀÚ·á¿Í ÀÏÄ¡Çϵµ·Ï ÇÏ¿´À¸³ª ±Ç¸®»çÇ׺¯µ¿, ÀÔ·ÂÂø¿À µîÀÇ ¿øÀÎÀ¸·Î »ç½Ç°ú ´Ù¸¦ ¼ö ÀÖ½À´Ï´Ù. ÀÌ¿ë¾à°ü¿¡ ÀǰЏéÃ¥Á¶°ÇÀ¸·Î Á¦°øµÊÀ» ¾Ë¸®¸ç, °æ¸ÅÀÔÂû½Ã ¹Ýµå½Ã °ü·Ã °øºÎ¸¦ ÀçÈ®ÀÎÇϽñ⠹ٶø´Ï´Ù. º¸´Ù Æí¸®ÇÑ °æ¸ÅÁ¤º¸ Á¦°øÀ» À§ÇØ Áö¼ÓÀûÀ¸·Î °³¼±ÇϰڽÀ´Ï´Ù. ÀÌ¿ëÇØ Áּż­ °¨»çÇÕ´Ï´Ù.