·Î±×ÀÎ
1120
´Ù¼¼´ë(ºô¶ó)
ÀÎõÁö¹æ¹ý¿ø
 °¨Á¤°¡130,000,000 ¿ø
 ÃÖÀú°¡(49%) 63,700,000 ¿ø
 º¸Áõ±Ý(10%) 6,370,000 ¿ø
 Ã»±¸¾×130,000,000 ¿ø
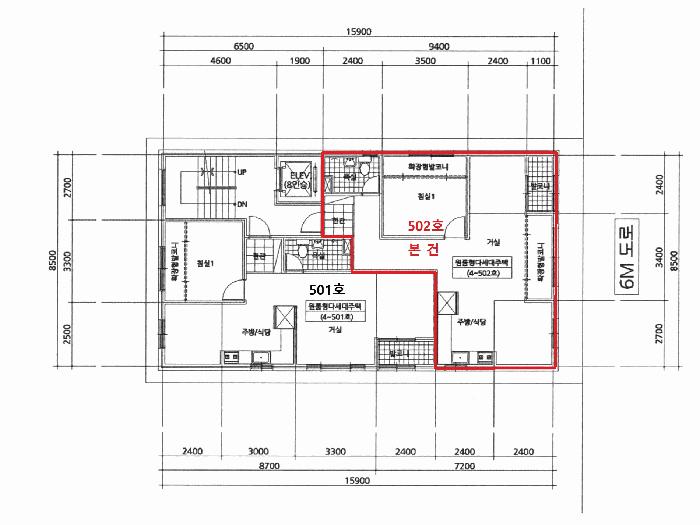
ÀÎõ±¤¿ª½Ã ¹ÌÃßȦ±¸ ¼þÀǵ¿ 302-56 ´ë±¤ºô¸®Áö 5Ãþ 502È£
»ç°Ç¹øÈ£ 2025Ÿ°æ509118
°æ¸ÅÁ¾·ùºÎµ¿»ê°­Á¦°æ¸Å
¸Å°¢´ë»óÅäÁö ¹× °Ç¹°Àϰý ¸Å°¢
¸Å°¢±âÀÏ    2026.03.12(¸ñ) 10:00 ÀÔÂû 29ÀÏÀü    
ÅäÁö¸éÀû17.88§³(5.41 Æò)
°Ç¹°¸éÀû48.61§³(14.70 Æò)
乫/¼ÒÀ¯ÀÚ±ÇOO / ±ÇOO
ä±ÇÀÚÁÖOOOOOOO
ÆäÀ̽ººÏ Æ®À§ÅÍ ±¸±Û+
īī¿À½ºÅ丮
īī¿ÀÅå sms¹®ÀÚº¸³»±â
 

±âÀϳ»¿ª

°æ°ú ³¯Â¥ Àú°¨ ÃÖÀú°¡ °á°ú
Á¢¼öÀÏ 2025-05-02 °æ¸ÅÁ¢¼ö
~5ÀÏ 
2025-05-07 °æ¸Å°³½Ã°áÁ¤
~94ÀÏ 
2025-08-04 ¹è´ç¿ä±¸Á¾±âÀÏ
~228ÀÏ 
2025-12-16 100%
130,000,000
À¯Âû
~272ÀÏ 
2026-01-29 70%
91,000,000
À¯Âû
~314ÀÏ 
2026-03-12 49%
63,700,000
ÁøÇà
¹°°Ç¸í¼¼¼­ ÇöȲÁ¶»ç¼­ ¹®°ÇÁ¢¼ö ¼Û´Þ³»¿ª

°¨Á¤Æò°¡ÇöȲ

¸ñ·Ï ÁÖ¼Ò ±¸Á¶/¿ëµµ/´ëÁö±Ç ¸éÀû ºñ°í
´ëÁö±Ç
¼þÀǵ¿ 302-56 179.2ºÐÀÇ 17.882 17.882 §³
(5.41Æò)
°Ç¹°
¼þÀǵ¿ 302-56 5Ãþ 502È£ ö±ÙÄÜÅ©¸®Æ®±¸Á¶ 48.61 §³
(14.70Æò)
1) À§Ä¡/ÀϹݻó¾÷Áö¿ª/¹ö½ºÁ¤·ùÀå/ÁÖÂ÷Àå/ö±ÙÄÜÅ©¸®Æ®±¸Á¶ ´õº¸±â
°¨Á¤Æò°¡ ¿äÇ×Ç¥
1)À§Ä¡ ¹× ÁÖÀ§È¯°æ
º»°ÇÀº ÀÎõ±¤¿ª½Ã ¹ÌÃßȦ±¸ ¼þÀǵ¿ ¼ÒÀç ""¼þÀÇ¿À°Å¸®"" ¼­Ãø Àαٿ¡ À§Ä¡Çϰí
ºÎ±ÙÀº ´Ù¼¼´ëÁÖÅÃ,±Ù¸°»ýȰ½Ã¼³ µîÀÌ ¼ÒÀçÇϰí ÀÖ´Â Áö¿ªÀÓ.
2)±³Åë»óȲ
º»°Ç±îÁö Á¦¹ÝÂ÷·®ÀÇ ÁøÃâÀÔÀÌ ¿ëÀÌÇϰí Àαٿ¡ ¹ö½ºÁ¤·ùÀåÀÌ ¼ÒÀçÇϰí ÀÖ¾î
Á¦¹Ý±³Åë»çÁ¤Àº º¸Åë½Ã µÊ.
3)°Ç¹°ÀÇ ±¸Á¶
2014³â 8¿ù 19ÀÏ »ç¿ë½ÂÀÎÀ» ¹ÞÀº ö±ÙÄÜÅ©¸®Æ®±¸Á¶ (ö±Ù)ÄÜÅ©¸®Æ®ÁöºØ 6Ãþ°ÇÁß
Á¦5Ãþ Á¦502È£·Î
¿Üº®:½ºÅæÄÚÆ®¸¶°¨µî
³»º®:º®Áö ¹× ÀϺΟÀϸ¶°¨µî
âȣ:»þ½Ãâȣµî
4)ÀÌ¿ë»óÅÂ
´Ù¼¼´ëÁÖÅÃÀ¸·Î ÀÌ¿ëµÇ°í ÀÖÀ½.
5)¼³ºñ³»¿ª
À§»ý¼³ºñ,»óÇϼöµµ¼³ºñ,½Â°­±â,ÁÖÂ÷Àå,³­¹æ¼³ºñµîµÇ¾îÀÖÀ½.
6)ÅäÁöÀÇ Çü»ó ¹× ÀÌ¿ë»óÅÂ
1ÇÊÁö À广ÇüÀÇ ÅäÁö·Î °øµ¿ÁÖÅà ¹× ¾÷¹«½Ã¼³ÀÇ °ÇºÎÁö·Î ÀÌ¿ëµÇ°í ÀÖÀ½.
7)ÀÎÁ¢ µµ·Î»óŵî
ºÏÃøÀ¸·Î »óžçÈ£ÇÑ ¾Æ½ºÆÈÆ®Æ÷Àåµµ·Î¿Í Á¢Çϰí ÀÖÀ½.
8)ÅäÁöÀÌ¿ë°èȹ ¹× Á¦ÇÑ»óÅÂ
ÀϹݻó¾÷Áö¿ª(2022-06-13),¹æÈ­Áö±¸,°¡Ãà»çÀ°Á¦Çѱ¸¿ª(ÀÎõ±¤¿ª½Ã ¹ÌÃßȦ±¸ °¡Ãà»çÀ°Á¦ÇÑ¿¡
°üÇÑ Á¶·Ê[2018. 7. 1.])<°¡ÃàºÐ´¢ÀÇ °ü¸® ¹× À̿뿡 °üÇÑ ¹ý·ü>,»ó´ëº¸È£±¸¿ª(³²ºÎ±³À°Ã»
Æò»ý±³À°°ú-1927(2008.03.07))<±³À°È¯°æ º¸È£¿¡ °üÇÑ ¹ý·ü>,°ú¹Ð¾ïÁ¦±Ç¿ª<¼öµµ±ÇÁ¤ºñ°èȹ¹ý>
9)°øºÎ¿ÍÀÇ Â÷ÀÌ
ÇØ´ç»çÇ×¾øÀ½.
10)±âŸÂü°í»çÇ×(ÀÓ´ë°ü·Ê ¹× ±âŸ)
°¡.º»°Ç ÇöÀ广¹®ÇÏ¿´À¸³ª °ÅÁÖÀÎ µî ÀÌÇØ°ü°èÀÎÀÇ ºÎÀç°ü°è·Î ³»ºÎ±¸Á¶ µîÀº °øºÎ ¹×
Àα٠À¯»ç¹°°ÇÀÇ Æò°¡Àü·Ê µîÀ» Âü°íÇÏ¿© ÀϹÝÀûÀÎ »ç¾çÀ» ±âÁØÀ¸·Î Æò°¡ÇÏ¿´À¸¸ç
ÀÓ´ë¿©ºÎ´Â ÆÄ¾ÇÇÏÁö ¸øÇÏ¿´´Â ¹Ù °æ¸ÅÁøÇà½Ã Âü°í¹Ù¶ø´Ï´Ù.

³ª.º»°Ç µî±â»çÇ×ÀüºÎÁõ¸í¼­»ó ¾Æ·¡¿Í °°ÀÌ ÀÓÂ÷±Çµî±â¸í·ÉÀÌ µîÀçµÇ¾îÀÖÀ½.

2022Ä«ÀÓ1530(2023.01.17)

ÀÓÂ÷º¸Áõ±Ý: 130,000,000¿ø
¹ü À§: 5Ãþ 502È£ 48.61Á¦°ö¹ÌÅÍ ÀüºÎ
ÀÓ´ëÂ÷°è¾àÀÏÀÚ: 2020.10.16
Áֹεî·ÏÀÏÀÚ: 2020.12.15
Á¡À¯°³½ÃÀÏÀÚ: 2020.12.15
È®Á¤ÀÏÀÚ: 2020.10.19
ÀÓÂ÷±ÇÀÚ: ¹Ú**(640315-*******),ÀÎõ ¹ÌÃßȦ±¸ Àåõ·Î19¹ø±æ 17,502È£
Âü°í
»çÇ×

º»°ÇÀº ºô

°ÇÃ๰ÇöȲ

¼ÒÀçÁö ÀÎõ±¤¿ª½Ã ¹ÌÃßȦ±¸ ¼þÀǵ¿ 302-56¹øÁö
´ëÁö¸éÀû 179.2§³
(54.3Æò)
¿¬¸éÀû 624.14§³
(189.13Æò)
°ÇÃà¸éÀû 135.15§³
(40.95Æò)
¿ëÀû·ü»êÁ¤
¿¬¸éÀû
624.14§³
(189.13Æò)
°ÇÆóÀ² 75.42% ¿ëÀû·ü 348.29%
Áö»óÃþ¼ö 6Ãþ ÁöÇÏÃþ¼ö  
ÁÖ¿ëµµ °øµ¿ÁÖÅà ±¸Á¶ ö±ÙÄÜÅ©¸®Æ®±¸Á¶
Âø°øÀÏÀÚ 2014.01.25 »ç¿ë½ÂÀÎÀÏÀÚ 2014.08.19
°ÇÃ๰Ãþº°ÇöȲ [º¸±â]


±¹ÅäºÎ½Ç°Å·¡°¡ ÀÎõ±¤¿ª½Ã ¹ÌÃßȦ±¸ ¼þÀǵ¿

¡Ü ¸Å¸Å

¸éÀû(§³), ±Ý¾×(¸¸¿ø)

¡Ü Àü¼¼

¸éÀû(§³), ±Ý¾×(¸¸¿ø)

°è¾àÀϰǹ°¸íĪÃþ¿¬¸éÀûº¸Áõ±Ý¿ù¼¼°ÇÃà
26.01.30ȸ¸²¾ÆÆ®ºô¶óAµ¿236.283,0001991
26.01.30º£½ºÆ¼¿òºô356.6410,00002011
26.01.29´õ½ºÅ×ÀÌÇÁ¶óÀÓ¿ùµå1962.249724,8002020
26.01.28´ëÇåÁÖÅÃ459.056,0002002
26.01.28CJC¾ÆÆ®ºô325.653,65002007
¢Ñ ´õº¸±â

µî±âºÎµîº» ¿ä¾à(°Ç¹°)

  Á¢¼öÀÏÀÚ µî±â¸ñÀû/±Ç¸®ÀÚ ±Ç¸®±Ý¾× ±âÁØ
1 2020³â12¿ù30ÀÏ
¼ÒÀ¯±Ç
±ÇOO
¼Ò¸ê
2 2022³â4¿ù8ÀÏ
¾Ð·ù
±¹
¼Ò¸ê±âÁØ
3 2022³â9¿ù13ÀÏ
°¡¾Ð·ù
ÁÖOOOO
2,071,000,000 ¼Ò¸ê
4 2023³â1¿ù26ÀÏ
ÀÓÂ÷±Ç¼³Á¤
¹ÚOO
130,000,000 ¼Ò¸ê
5 2025³â5¿ù8ÀÏ
°­Á¦°æ¸Å
ÁÖOOOO
¼Ò¸ê

ÀÓÂ÷ÀÎÇöȲ (¹è´ç¿ä±¸Á¾±âÀÏ: 2025-08-04)

ÀÓÂ÷ÀÎ ¿ëµµ/Á¡À¯ º¸Áõ±Ý/¿ù¼¼ ´ëÇ×·Â
ÀüÀÔÀÏ/È®Á¤ÀÏ ¹è´ç¿ä±¸ ºñ°í
¹ÚOO ÀüºÎ 130,000,000
O
2020. 12. 15.
2020. 10. 19.
2021. 1. 19.~
ÁÖOOOOOOOOOOOOOOO ÀüºÎ 130,000,000
O
2020. 12. 15.
2020. 10. 19.
2025. 7. 4. 2021. 1. 19.~2023. 5. 16.
ºñ°í
(¸Å°¢¹°°Ç
¸í¼¼¼­)
- ¹Ú¿ùÀÚ : ÁÖÅÃÀÓÂ÷±Çµî±â±ÇÀڷμ­ ÁÖÅÃÀÓÂ÷±Çµî±âÀÏÀº 2023. 1. 26.ÀÓ - ÁÖÅõµ½Ãº¸Áõ°ø»ç(ÀÓÂ÷ÀÎ ¹Ú¿ùÀÚ) : °æ¸Å½Åû±ÇÀÚÀ̸ç ÁÖÅÃÀÓ´ëÂ÷º¸È£¹ý Á¦3Á¶ÀÇ2 Á¦7Ç× Á¦9È£ÀÇ ±â°üÀ¸·Î ÀÓÂ÷ÀÎ ¹Ú¿ùÀÚ·Î

¿©ÀÇÁÖ°æ¸Å Á¶¾ð ÇÑ ¸¶µð

¼±¼øÀ§ ÀÓÂ÷±Çµî±â°¡ µÇ¾î ÀÖ½À´Ï´Ù
´ëÇ×·ÂÀÌ ÀÖ´Â ¼±¼øÀ§ ÀÓÂ÷±Çµî±â ±Ç¸®ÀÚ°¡ ¹è´çÀ» Àü¾× ¹ÞÁö ¸øÇÒ °æ¿ì ³«ÂûÀÚ°¡ ÀÜ¿© º¸Áõ±ÝÀ» ÀμöÇØ¾ßÇÏ´Â °æ¿ìµµ ÀÖ½À´Ï´Ù.

ÁÖÀÇ»çÇ× (ÃÖ¼±¼øÀ§ ¼³Á¤ÀÏ: 2022. 4. 8. ¾Ð·ù ¼³Á¤)

¸Å°¢À¸·Î ¼Ò¸êµÇÁö ¾Ê´Â µî±âºÎ±Ç¸®: À»±¸ ¼øÀ§ 3¹ø ÁÖÅÃÀÓÂ÷±Çµî±â(´Ù¸¸ ÁÖÅõµ½Ãº¸Áõ°ø»çÀÇ ¸»¼Òµ¿ÀÇ È®¾à¼­°¡ Á¦ÃâµÊ)
¸Å°¢À¸·Î ¼³Á¤µÈ °ÍÀ¸·Î º¸´Â Áö»ó±Ç:
¡Ø¹Ì³³°ü¸®ºñ(°ø¿ë) Àμö¿©ºÎ¸¦ ÀÔÂû Àü¿¡ È®ÀÎÇϽñ⠹ٶø´Ï´Ù

 

Áö¿ªºÐ¼®

ÁöÇÏö¸í Á÷¼±°Å¸®

Çб³¸í ÀüÈ­¹øÈ£ ÁÖ¼Ò Á÷¼±°Å¸®

¹ý¿ø

ÀÎõÁö¹æ¹ý¿ø (222-20)ÀÎõ±¤¿ª½Ã ¹ÌÃßȦ±¸ ¼Ò¼º·Î 163¹ø±æ 17(ÇÐÀ͵¿)
´ëÇ¥ : 032)860-1113~4
°üÇÒÁö¿ª : Áß±¸, µ¿±¸, ³²±¸, ¿¬¼ö±¸, ³²µ¿±¸, ºÎÆò±¸, °è¾ç±¸, ¼­±¸, ¿ËÁø±º, °­È­±º

µî±â¼Ò ÀÎõÁö¹æ¹ý¿ø º»¿ø µî±â±¹ (´ëÇ¥:1544-0773, ÆÑ½º:(032)620-9099, ÀÎõ±¤¿ª½Ã ¹ÌÃßȦ±¸ °æ¿ø´ë·Î 881(Á־ȵ¿ 983))
¼¼¹«¼­ ÀÎõ¼¼¹«¼­ (´ëÇ¥:032-770-02, ÆÑ½º:032-777-8104, ÀÎõ±¤¿ª½Ã µ¿±¸ ¿ì°¢·Î 75 (⿵µ¿))

Àαٳ«ÂûÅë°è

±â°£ ¸Å°¢°Ç¼ö Æò±Õ°¨Á¤°¡
Æò±Õ¸Å°¢°¡
¸Å°¢°¡À²
Æò±ÕÀ¯Âû¼ö
3°³¿ù 90°Ç 139,774,444¿ø
80,037,768¿ø
57%
2.5ȸ
6°³¿ù 180°Ç 140,220,000¿ø
80,325,051¿ø
57%
2.4ȸ
12°³¿ù 349°Ç 141,362,751¿ø
85,866,746¿ø
60%
2.2ȸ


º» °æ¸ÅÁ¤º¸´Â ¹ý¿øÀÚ·á¿Í ÀÏÄ¡Çϵµ·Ï ÇÏ¿´À¸³ª ±Ç¸®»çÇ׺¯µ¿, ÀÔ·ÂÂø¿À µîÀÇ ¿øÀÎÀ¸·Î »ç½Ç°ú ´Ù¸¦ ¼ö ÀÖ½À´Ï´Ù. ÀÌ¿ë¾à°ü¿¡ ÀǰЏéÃ¥Á¶°ÇÀ¸·Î Á¦°øµÊÀ» ¾Ë¸®¸ç, °æ¸ÅÀÔÂû½Ã ¹Ýµå½Ã °ü·Ã °øºÎ¸¦ ÀçÈ®ÀÎÇϽñ⠹ٶø´Ï´Ù. º¸´Ù Æí¸®ÇÑ °æ¸ÅÁ¤º¸ Á¦°øÀ» À§ÇØ Áö¼ÓÀûÀ¸·Î °³¼±ÇϰڽÀ´Ï´Ù. ÀÌ¿ëÇØ Áּż­ °¨»çÇÕ´Ï´Ù.