·Î±×ÀÎ
96
´Ù°¡±¸ÁÖÅÃ
´ë±¸Áö¹æ¹ý¿ø ´ë±¸¼­ºÎÁö¿ø
 °¨Á¤°¡689,779,440 ¿ø
 ÃÖÀú°¡(70%) 482,846,000 ¿ø
 º¸Áõ±Ý(10%) 48,284,600 ¿ø
 Ã»±¸¾×194,022,163 ¿ø
´ë±¸±¤¿ª½Ã ´Þ¼­±¸ ¼ÛÇöµ¿ 798-90
»ç°Ç¹øÈ£ 2025Ÿ°æ2542
°æ¸ÅÁ¾·ùºÎµ¿»ê°­Á¦°æ¸Å
¸Å°¢´ë»óÅäÁö ¹× °Ç¹°Àϰý¸Å°¢
¸Å°¢±âÀÏ    2026.01.13(È­) 10:00 ÀÔÂû 15ÀÏÀü    
ÅäÁö¸éÀû216.00§³(65.34 Æò)
°Ç¹°¸éÀû445.69§³(134.82 Æò)
乫/¼ÒÀ¯ÀÚÀÌOO / ÀÌOO
ä±ÇÀÚÀÌOO
ÆäÀ̽ººÏ Æ®À§ÅÍ ±¸±Û+
īī¿À½ºÅ丮
īī¿ÀÅå sms¹®ÀÚº¸³»±â
 

±âÀϳ»¿ª

°æ°ú ³¯Â¥ Àú°¨ ÃÖÀú°¡ °á°ú
Á¢¼öÀÏ 2025-08-14 °æ¸ÅÁ¢¼ö
~0ÀÏ 
2025-08-14 °æ¸Å°³½Ã°áÁ¤
~95ÀÏ 
2025-11-17 ¹è´ç¿ä±¸Á¾±âÀÏ
~124ÀÏ 
2025-12-16 100%
689,779,440
À¯Âû
~152ÀÏ 
2026-01-13 70%
482,846,000
ÁøÇà
¹°°Ç¸í¼¼¼­ ÇöȲÁ¶»ç¼­ ¹®°ÇÁ¢¼ö ¼Û´Þ³»¿ª

°¨Á¤Æò°¡ÇöȲ

¸ñ·Ï ÁÖ¼Ò ±¸Á¶/¿ëµµ/´ëÁö±Ç ¸éÀû ºñ°í
ÅäÁö
¼ÛÇöµ¿ 798-90 ´ë 216 §³
(65.34Æò)
°Ç¹°
¼ÛÇöµ¿ 798-90 1Ãþ ´Ù°¡±¸ÁÖÅÃ(2°¡±¸) ö±ÙÄÜÅ©¸®Æ®Á¶ 115.47 §³
(34.93Æò)
¼ÛÇöµ¿ 798-90 2Ãþ ´Ù°¡±¸ÁÖÅÃ(3°¡±¸) ö±ÙÄÜÅ©¸®Æ®Á¶ 128.76 §³
(38.95Æò)
¼ÛÇöµ¿ 798-90 3Ãþ ´Ù°¡±¸ÁÖÅÃ(1°¡±¸) ö±ÙÄÜÅ©¸®Æ®Á¶ 108.96 §³
(32.96Æò)
Á¦½Ã¿Ü
°Ç¹°
¼ÛÇöµ¿ 798-90 È®Àå¹ßÄÚ´Ï 11.8 §³
(3.57Æò)
Æ÷ÇÔ
¼ÛÇöµ¿ 798-90 ´Ù¿ëµµ½Ç 13.9 §³
(4.20Æò)
Æ÷ÇÔ
¼ÛÇöµ¿ 798-90 È®Àå¹ßÄÚ´Ï 23.5 §³
(7.11Æò)
Æ÷ÇÔ
¼ÛÇöµ¿ 798-90 ¹ßÄÚ´Ï ¹× ´Ù¿ëµµ½Ç 43.3 §³
(13.10Æò)
Æ÷ÇÔ
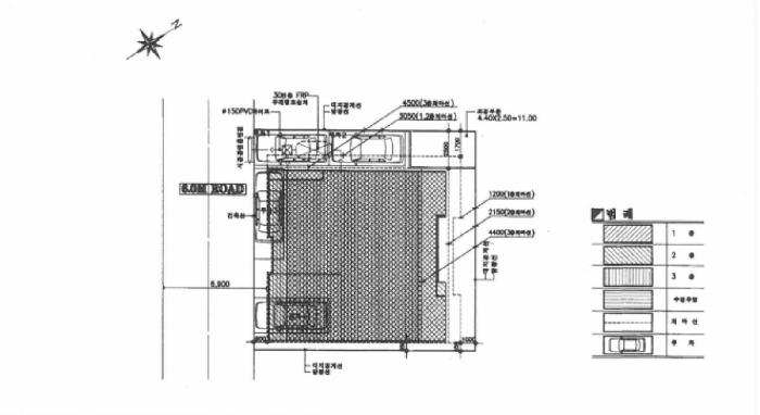
1) À§Ä¡/µµ½ÃÁö¿ª/Á¦2Á¾ÀϹÝÁÖ°ÅÁö¿ª/¹ö½ºÁ¤·ùÀå/ÁÖÂ÷Àå/Â÷·®ÀÇ Á¢±ÙÀÌ °¡´É/ö±ÙÄÜÅ©¸®Æ®Á¶/½º¶óºêÁöºØ/µµ½Ã°¡½º ´õº¸±â
°¨Á¤Æò°¡ ¿äÇ×Ç¥
1)À§Ä¡ ¹× ÁÖÀ§È¯°æ
´ë»ó ÅäÁö´Â ´ë±¸±¤¿ª½Ã ´Þ¼­±¸ ¼ÛÇöµ¿ ¼ÒÀç ¡®´ë±¸´ë³²ÃʵîÇб³¡¯ ºÏ¼­Ãø Àαٿ¡ À§Ä¡Çϸç,
ºÎ±ÙÀº ´Üµ¶(´Ù°¡±¸)ÁÖÅÃ, ¾ÆÆÄÆ® ¹× ÁÖ»óº¹ÇÕ¿ë ºÎµ¿»ê µîÀ¸·Î Çü¼ºµÇ¾î ÀÖÀ½.
2)±³Åë»óȲ
´ë»ó ÅäÁö±îÁö Â÷·®ÀÇ Á¢±ÙÀÌ °¡´ÉÇϸç, Àαٿ¡ ¹ö½ºÁ¤·ùÀå ¹× ´ë±¸µµ½Ãöµµ1È£¼±¿ª µîÀÌ ¼Ò
ÀçÇÏ¿© Á¦¹Ý ±³Åë»çÁ¤Àº ¾çÈ£ÇÔ.
3)ÇüÅ ¹× ÀÌ¿ë»óÅÂ
´ë»ó ÅäÁö´Â ÀÎÁ¢ÇÊÁö¿Í ´ëü·Î µî°íÆòźÇÑ Á¤¹æÇüÀÇ ÅäÁö·Î¼­ ÁÖ°Å¿ë(´Üµ¶ÁÖÅÃ) °ÇºÎÁö·Î
ÀÌ¿ë ÁßÀÓ.
4)ÀÎÁ¢ µµ·Î»óÅÂ
´ë»ó ÅäÁö´Â ³²¼­ÃøÀ¸·Î Æø ¾à 6m Æ÷Àåµµ·Î¿Í Á¢ÇÔ.
5)ÅäÁöÀÌ¿ë°èȹ ¹× Á¦ÇÑ»óÅÂ
´ë»ó ÅäÁö´Â µµ½ÃÁö¿ª, Á¦2Á¾ÀϹÝÁÖ°ÅÁö¿ª, ¼Ò·Î3·ù(Æø 8m ¹Ì¸¸)(Á¢ÇÕ), °¡Ãà»çÀ°Á¦Çѱ¸¿ª
(¼¼ºÎ»çÇ×Àº ³ì»öȯ°æ°ú ¹®ÀÇ¿ä¸Á), »ó´ëº¸È£±¸¿ªÀÓ.
6)Á¦½Ã¸ñ·Ï ¿ÜÀÇ ¹°°Ç
¾øÀ½.
7)°øºÎ¿ÍÀÇ Â÷ÀÌ
¾øÀ½.
8)±âŸÂü°í»çÇ×(ÀÓ´ë°ü·Ê ¹× ±âŸ)
ÀÓ´ë°ü°è´Â ¹Ì»óÀÓ.
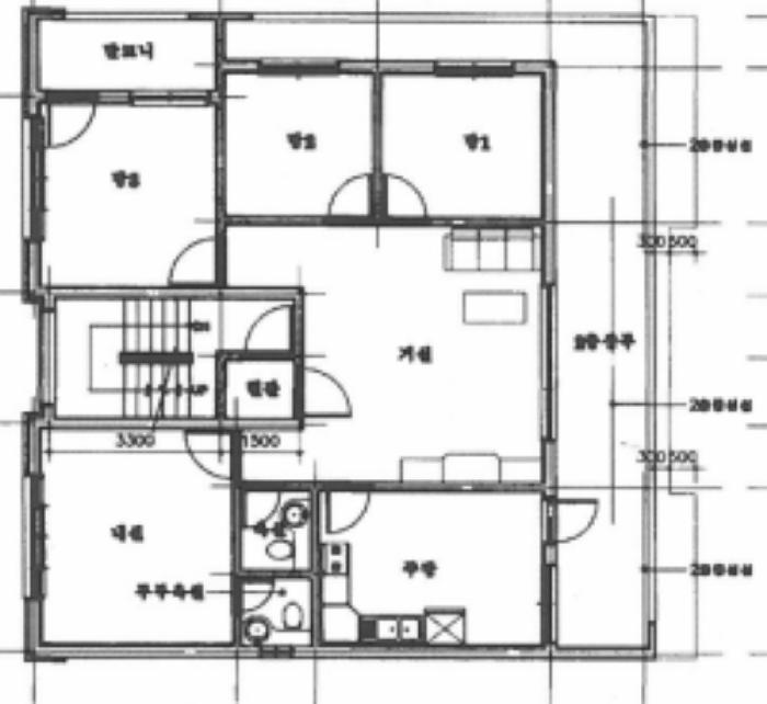
1)°Ç¹°ÀÇ ±¸Á¶
ö±ÙÄÜÅ©¸®Æ®Á¶ ö±ÙÄÜÅ©¸®Æ®½º¶óºêÁöºØ 3Ãþ °Ç¹°·Î¼­
»ç¿ë½ÂÀÎÀÏÀÚ´Â 2003³â 4¿ù 26ÀÏÀ̸ç
- ¿Üº® : ¿ÜÀå¼®Àç ¹× Ä¡ÀåÀûŸÀÏ ¸¶°¨
- ³»º® : º®Áö ¹× ÀϺΠŸÀÏ ¸¶°¨
- ¹Ù´Ú : ¹Ù´ÚÀç ¹× ÀϺΠŸÀÏ ¸¶°¨
- âȣ : »õ½Ã ÀÌÁßâȣ µîÀÇ ±¸Á¶ÀÓ.
2)ÀÌ¿ë»óÅÂ
´Üµ¶(´Ù°¡±¸)ÁÖÅÃÀ¸·Î ÀÌ¿ë ÁßÀÓ.
3)¼³ºñ³»¿ª
±Þ¡¤¹è¼ö¼³ºñ µî À§»ý¼³ºñ ¹× µµ½Ã°¡½º º¸ÀÏ·¯¿¡ ÀÇÇÑ ³­¹æ¼³ºñ µîÀÌ µÇ¾î ÀÖÀ½.
4)ºÎÇÕ¹° ¹× Á¾¹°
º°Áö ""ÁöÀû ¹× °Ç¹°°³È²µµ"" ¹× ""»çÁø¿ëÁö""¿Í °°ÀÌ Á¾¹° ¹× ºÎÇÕ¹°·Î ÃßÁ¤µÇ´Â Á¦½Ã¿Ü°Ç¹°
(¤¡~¤©)ÀÌ ¼ÒÀçÇÔ.
5)°øºÎ¿ÍÀÇ Â÷ÀÌ
¾øÀ½.


6)±âŸÂü°í»çÇ×(ÀÓ´ë°ü·Ê ¹× ±âŸ)
°¡. ÀÓ´ë°ü°è : ¹Ì»óÀÓ.
³ª. ±â Ÿ : ¨ç ÀϹݰÇÃ๰´ëÀå»ó À§¹Ý°ÇÃ๰ µîÀç³»¿ªÀÌ ÀÖÀ¸´Ï ÇØ´ç ³»¿ëÀº °üÇҺμ­
µîÀ» ÅëÇØ ¹Ýµå½Ã ÀçÈ®ÀÎ ÇϽñ⠹ٶ÷.
(µîÀç³»¿ª: °ÇÃà°ú-22347(2024.5.9.)È£¿¡ ÀǰŠÀ§¹Ý°ÇÃ๰ 16.0§³(3Ãþ,ÁÖÅÃ,
Á¶¸³½ÄÆÇ³Ú), 5.0§³(1Ãþ,ÁÖÅÃ,Á¶¸³½ÄÆÇ³Ú) ½ÃÁ¤Á¶Ä¡Áß)
¨è °ÇÃ๰ÇöȲµµ»ó 1Ãþ ÁÖÂ÷ÀåÀº ÇöȲ ÁÖÅÃÀ¸·Î ÀÌ¿ë ÁßÀÓ.
Âü°í
»çÇ×
Àϰý¸Å°¢. Á¦½Ã¿Ü °Ç¹° Æ÷ÇÔ. ÀϹݰÇÃ๰´ëÀå»ó À§¹Ý°ÇÃ๰·Î µîÀç.
º°Ã· »çÁø°ú °°ÀÌ ¿Á»ó °è´Ü½Ç¿¡ Á¦½Ã¿Ü°Ç¹°(â°í)°¡ ÀÖÀ½.

°ÇÃ๰ÇöȲ

¼ÒÀçÁö ´ë±¸±¤¿ª½Ã ´Þ¼­±¸ ¼ÛÇöµ¿ 798-90¹øÁö
´ëÁö¸éÀû 216§³
(65.45Æò)
¿¬¸éÀû 353.19§³
(107.03Æò)
°ÇÃà¸éÀû 129.26§³
(39.17Æò)
¿ëÀû·ü»êÁ¤
¿¬¸éÀû
353.19§³
(107.03Æò)
°ÇÆóÀ² 59.84% ¿ëÀû·ü 163.51%
Áö»óÃþ¼ö 3Ãþ ÁöÇÏÃþ¼ö  
ÁÖ¿ëµµ ´Üµ¶ÁÖÅà ±¸Á¶ ö±ÙÄÜÅ©¸®Æ®±¸Á¶
Âø°øÀÏÀÚ 2002.10.22 »ç¿ë½ÂÀÎÀÏÀÚ 2003.04.26
°ÇÃ๰Ãþº°ÇöȲ [º¸±â]


±¹ÅäºÎ½Ç°Å·¡°¡ ´ë±¸±¤¿ª½Ã ´Þ¼­±¸ ¼ÛÇöµ¿

¡Ü ¸Å¸Å

¸éÀû(§³), ±Ý¾×(¸¸¿ø)

¡Ü Àü¼¼

¸éÀû(§³), ±Ý¾×(¸¸¿ø)

°è¾àÀÏÀ¯Çü¿¬¸éÀû´ëÁö±Ý¾×°ÇÃà
24.03.28´Ù°¡±¸444.08250.4136,0002022
24.03.25´Üµ¶67.32165.133,0002003
24.03.12´Ù°¡±¸230.8514370,0001996
24.02.27´Üµ¶137.5513323,0001988
24.02.07´Ù°¡±¸190.92168.256,0001989
¢Ñ ´õº¸±â

µî±âºÎµîº» ¿ä¾à(ÅäÁö)

  Á¢¼öÀÏÀÚ µî±â¸ñÀû/±Ç¸®ÀÚ ±Ç¸®±Ý¾× ±âÁØ
1 2002³â10¿ù2ÀÏ
¼ÒÀ¯±Ç
ÀÌOO
¼Ò¸ê
2 2002³â10¿ù2ÀÏ
±ÙÀú´ç±Ç
´ëOOOO
100,000,000 ¼Ò¸ê±âÁØ
3 2025³â8¿ù18ÀÏ
°­Á¦°æ¸Å
ÀÌOO
¼Ò¸ê

µî±âºÎµîº» ¿ä¾à(°Ç¹°)

  Á¢¼öÀÏÀÚ µî±â¸ñÀû/±Ç¸®ÀÚ ±Ç¸®±Ý¾× ±âÁØ
1 2003³â8¿ù25ÀÏ
¼ÒÀ¯±Ç
ÀÌOO
¼Ò¸ê
2 2003³â9¿ù23ÀÏ
±ÙÀú´ç±Ç
´ëOOOO
100,000,000 ¼Ò¸ê±âÁØ
3 2016³â10¿ù7ÀÏ
Àü¼¼±Ç
ÀÌOO
60,000,000 ¼Ò¸ê
4 2023³â6¿ù29ÀÏ
ÀÓÂ÷±Ç¼³Á¤
ÀÌOO
170,000,000 ¼Ò¸ê
5 2024³â6¿ù12ÀÏ
Àü¼¼±Ç
¹ÚOO
70,000,000 ¼Ò¸ê
6 2025³â8¿ù18ÀÏ
°­Á¦°æ¸Å
ÀÌOO
¼Ò¸ê
7 2025³â10¿ù2ÀÏ
ÀÓÂ÷±Ç¼³Á¤
ÀÌOO
60,000,000 ¼Ò¸ê

ÀÓÂ÷ÀÎÇöȲ (¹è´ç¿ä±¸Á¾±âÀÏ: 2025-11-17)

ÀÓÂ÷ÀÎ ¿ëµµ/Á¡À¯ º¸Áõ±Ý/¿ù¼¼ ´ëÇ×·Â
ÀüÀÔÀÏ/È®Á¤ÀÏ ¹è´ç¿ä±¸ ºñ°í
±èOO 302È£
X
2021.12.30.
¹ÚOO 102È£ 85,000,000
X
2023.1.10.
¹ÚOO 101È£ 70,000,000
X
2024.5.30.
2024.7.2.
2025.10.22. 2024.5.30.~2026.5.30.
¹ÚOO 201È£
X
2023.6.20.
ÀÌOO 203È£ 60,000,000¿ø(1Â÷),65,000,000¿ø(2Â÷)
X
2016.9.19.
2016.9.19.(1Â÷),2023.10.4.(2Â÷)
2025.9.25. 2016.9.19.~2025.9.22.
ÀÌOO 302È£ 170,000,000¿ø(1Â÷),178,500,000¿ø(2Â÷)
X
2020.2.27.
2020.2.10.(1Â÷),2022.2.14.(2Â÷)
2020.2.27.~
ÃÖOO 301È£ 40,000,000
[¿ù]50,000
X
2021.9.7.
2021.9.7.
2025.10.15. 2021.9.6.~
ÃÖOO 202È£ 70,000,000
X
2020.1.10.
ÇÑOOOOOOOOOOOO 102È£ 80,000,000
[¿ù]80,000
X
2023.1.10.
2022.12.22.
2025.11.17. 2023.1.11.~2027.1.10.
ÇÑOOOOOOOOOOOO 201È£ 70,000,000
[¿ù]50,000
X
2023.6.20.
2023.5.16.
2025.11.17. 2023.6.20.~2027.6.19.
ÇÑOOOOOOOOOOOO 202È£ 70,000,000
[¿ù]50,000
X
2020.1.10.
2019.12.20.
2025.11.17. 2020.1.10.~2026.1.9.
ºñ°í
(¸Å°¢¹°°Ç
¸í¼¼¼­)
±è»óö:ÀÓ´ëÂ÷ °ü°è´Â ¾Ë ¼ö ¾øÀ½. ¹Ú°æÈ­:'ÀÓÂ÷º¸Áõ±Ý 8,000¸¸¿ø, ¿ùÂ÷ÀÓ 8¸¸¿ø'¿¡¼­ 'ÀÓÂ÷º¸Áõ±Ý 8,500¸¸¿ø, ¿ùÂ÷ÀÓ ¾øÀ½'À¸·Î 2025.6.12.°æ º¯°æ°è¾àµÇ¾úÀ¸³ª º¯ °æ°è¾àÀ» È®ÀÎÇÒ ¼ö ÀÖ´Â ÀÚ·á´Â ¾øÀ½. ÀÌÇüÁø:°æ¸Å½Åûä±ÇÀÚÀÓ. Çѱ¹ÅäÁöÁÖÅðø»ç(¹Ú°æÈ­):¹Ú°æÈ­´Â ¼ÒÀ¯ÀÚ À̹ÌÇâ°ú Çѱ¹ÅäÁöÁÖÅðø»çÀÇ ÀÓ´ëÂ÷ °è¾à¿¡ ÀÇÇÑ ÀÔÁÖÀÚÀÓ. Çѱ¹ÅäÁöÁÖÅðø»ç(¹ÚÀÎÀÌ):¹ÚÀÎÀÌ´Â ¼ÒÀ¯ÀÚ À̹ÌÇâ°ú Çѱ¹ÅäÁöÁÖÅðø»çÀÇ ÀÓ´ëÂ÷ °è¾à¿¡ ÀÇÇÑ ÀÔÁÖÀÚÀÓ. Çѱ¹ÅäÁöÁÖÅðø»ç(ÃÖÁ¾±Ô):ÃÖÁ¾±Ô´Â ¼ÒÀ¯ÀÚ À̹ÌÇâ°ú Çѱ¹ÅäÁöÁÖÅðø»çÀÇ ÀÓ´ëÂ÷ °è¾à¿¡ ÀÇÇÑ ÀÔÁÖÀÚÀÓ.

¿©ÀÇÁÖ°æ¸Å Á¶¾ð ÇÑ ¸¶µð

Á¦½Ã¿Ü ¹°°ÇÀÌ Æ÷ÇԵǾî ÀÖ½À´Ï´Ù
¡®Á¦½Ã¿Ü ¹°°Ç¡¯Àº ÇØ´ç °øºÎ»ó¿¡´Â Á¸ÀçÇÏÁö ¾ÊÁö¸¸, ÇöÀå¿¡ Á¸Àç°¡ È®ÀεǴ ¿©·¯ ÇüÅÂÀÇ °Ç¹°, ±â°è±â±¸ µîÀ» ¸»ÇÕ´Ï´Ù. ÀÌµé ´ëºÎºÐÀº ¹«Çã°¡, ¹«½Å°íÀ̰ųª »ç¿ë½ÂÀÎÀ» ¹ÞÁö ¾ÊÀº °ÍÀÔ´Ï´Ù. ¡®Á¦½Ã¿Ü ¹°°Ç¡¯ÀÌ °æ¸Å´ë»ó¿¡ Æ÷ÇԵǾî ÀÖ´Ù¸é ³«ÂûÀÚÀÇ ¼ÒÀ¯±Ç Ãëµæ¿¡´Â ¾Æ¹«·± ¹®Á¦°¡ ¾ø½À´Ï´Ù.
ÃëÇÏ ¶Ç´Â Ãë¼ÒµÉ °¡´É¼º ÀÖ½À´Ï´Ù
ÀÌ ¹°°ÇÀÇ °¨Á¤°¡°ÝÀº 689,779,440¿øÀÔ´Ï´Ù. °æ¸Å¸¦ ½ÅûÇÑ Ã¤±ÇÀÚ°¡ ¹è´ç ¹Þ¾Æ¾ß ÇÒ ±Ý¾×Àº 194,022,163¿øÀ¸·Î °¨Á¤°¡°Ý ´ëºñ »ó´çÈ÷ ÀûÀº ±Ý¾×ÀÔ´Ï´Ù. ÀÌ·± °æ¿ì, 乫°¡°¡ º¯Á¦ÇÏ¿© °æ¸Å¸¦ ÃëÇϽÃŰ°Å³ª °æ¸Å½Åûä±ÇÀÚ°¡ ¹è´ç¹ÞÀº ±Ý¿øÀÌ ¾ø°ÔµÇ¾î À̸¥ ¹Ù "¹«À׿©¿¡ ÀÇÇÑ Ãë¼Ò"°¡ µÉ °¡´É¼ºÀÌ ÀÖ½À´Ï´Ù.

ÁÖÀÇ»çÇ× (ÃÖ¼±¼øÀ§ ¼³Á¤ÀÏ: ¸ñ ·Ï 1. : 2 0 0 2. 1 0 . 2. ±Ù Àú ´ç ±Ç, ¸ñ·Ï2.:2003.9.23.±ÙÀú ¼³Á¤ ´ç±Ç)

¸Å°¢À¸·Î ¼Ò¸êµÇÁö ¾Ê´Â µî±âºÎ±Ç¸®: ÇØ´ç»çÇ×¾øÀ½
¸Å°¢À¸·Î ¼³Á¤µÈ °ÍÀ¸·Î º¸´Â Áö»ó±Ç: ÇØ´ç»çÇ×¾øÀ½
Àϰý¸Å°¢. Á¦½Ã¿Ü °Ç¹° Æ÷ÇÔ. ÀϹݰÇÃ๰´ëÀå»ó À§¹Ý°ÇÃ๰·Î µîÀçµÇ¾î ÀÖÀ¸´Ï °üÇÒ±â°ü¿¡ È®ÀÎÀÌ ÇÊ¿äÇÔ.
¡Ø¹Ì³³°ü¸®ºñ(°ø¿ë) Àμö¿©ºÎ¸¦ ÀÔÂû Àü¿¡ È®ÀÎÇϽñ⠹ٶø´Ï´Ù

 

Áö¿ªºÐ¼®

ÁöÇÏö¸í Á÷¼±°Å¸®

Çб³¸í ÀüÈ­¹øÈ£ ÁÖ¼Ò Á÷¼±°Å¸®

¹ý¿ø

´ë±¸Áö¹æ¹ý¿ø ¼­ºÎÁö¿ø (426-35)´ë±¸±¤¿ª½Ã ´Þ¼­±¸ Àå»ê³²·Î 30 (¿ë»êµ¿ 230)
´ëÇ¥ : 053)570-2114, ¾ß°£ : 053)570-2200
°üÇÒÁö¿ª : ¼­±¸, ´Þ¼­±¸, ´Þ¼º±º, ¼ºÁÖ±º, °í·É±º

µî±â¼Ò ´ë±¸Áö¹æ¹ý¿ø ¼­ºÎÁö¿ø µî±â°ú (´ëÇ¥:1544-0773, ÆÑ½º:(053)570-2345, ´ë±¸±¤¿ª½Ã ´Þ¼­±¸ Àå»ê³²·Î 30 (¿ë»êµ¿ 230))
¼¼¹«¼­ ³²´ë±¸¼¼¹«¼­ (´ëÇ¥:053-659-02, ÆÑ½º:053-627-0157, ´ë±¸±¤¿ª½Ã ³²±¸ ´ë¸í·Î 55 (´ë¸íµ¿))

Àαٳ«ÂûÅë°è

±â°£ ¸Å°¢°Ç¼ö Æò±Õ°¨Á¤°¡
Æò±Õ¸Å°¢°¡
¸Å°¢°¡À²
Æò±ÕÀ¯Âû¼ö
3°³¿ù 5°Ç 1,374,420,564¿ø
665,572,422¿ø
48%
2.8ȸ
6°³¿ù 15°Ç 1,137,320,381¿ø
579,802,001¿ø
52%
2.5ȸ
12°³¿ù 16°Ç 1,090,604,313¿ø
556,038,438¿ø
52%
2.4ȸ


º» °æ¸ÅÁ¤º¸´Â ¹ý¿øÀÚ·á¿Í ÀÏÄ¡Çϵµ·Ï ÇÏ¿´À¸³ª ±Ç¸®»çÇ׺¯µ¿, ÀÔ·ÂÂø¿À µîÀÇ ¿øÀÎÀ¸·Î »ç½Ç°ú ´Ù¸¦ ¼ö ÀÖ½À´Ï´Ù. ÀÌ¿ë¾à°ü¿¡ ÀǰЏéÃ¥Á¶°ÇÀ¸·Î Á¦°øµÊÀ» ¾Ë¸®¸ç, °æ¸ÅÀÔÂû½Ã ¹Ýµå½Ã °ü·Ã °øºÎ¸¦ ÀçÈ®ÀÎÇϽñ⠹ٶø´Ï´Ù. º¸´Ù Æí¸®ÇÑ °æ¸ÅÁ¤º¸ Á¦°øÀ» À§ÇØ Áö¼ÓÀûÀ¸·Î °³¼±ÇϰڽÀ´Ï´Ù. ÀÌ¿ëÇØ Áּż­ °¨»çÇÕ´Ï´Ù.