·Î±×ÀÎ
106
±Ù¸°ÁÖÅÃ
¼ö¿øÁö¹æ¹ý¿ø ÆòÅÃÁö¿ø
 °¨Á¤°¡2,485,901,140 ¿ø
 ÃÖÀú°¡(70%) 1,740,131,000 ¿ø
 º¸Áõ±Ý(10%) 174,013,100 ¿ø
 Ã»±¸¾×1,418,899,170 ¿ø
°æ±âµµ ÆòÅýà °í´öµ¿ 2217-1
»ç°Ç¹øÈ£ 2025Ÿ°æ41492
°æ¸ÅÁ¾·ùºÎµ¿»êÀÓÀǰæ¸Å
¸Å°¢´ë»óÅäÁö ¹× °Ç¹°Àϰý¸Å°¢
¸Å°¢±âÀÏ    2026.02.02(¿ù) 10:00 ÀÔÂû 38ÀÏÀü    
ÅäÁö¸éÀû261.70§³(79.16 Æò)
°Ç¹°¸éÀû444.66§³(134.51 Æò)
乫/¼ÒÀ¯ÀÚ´õOOOOOO / ´õOOOOOO
ä±ÇÀÚº´OOOOOOO
ÆäÀ̽ººÏ Æ®À§ÅÍ ±¸±Û+
īī¿À½ºÅ丮
īī¿ÀÅå sms¹®ÀÚº¸³»±â
 

±âÀϳ»¿ª

°æ°ú ³¯Â¥ Àú°¨ ÃÖÀú°¡ °á°ú
Á¢¼öÀÏ 2025-02-24 °æ¸ÅÁ¢¼ö
~1ÀÏ 
2025-02-25 °æ¸Å°³½Ã°áÁ¤
~88ÀÏ 
2025-05-23 ¹è´ç¿ä±¸Á¾±âÀÏ
~294ÀÏ 
2025-12-15 100%
2,485,901,140
À¯Âû
~343ÀÏ 
2026-02-02 70%
1,740,131,000
ÁøÇà
¹°°Ç¸í¼¼¼­ ÇöȲÁ¶»ç¼­ ¹®°ÇÁ¢¼ö ¼Û´Þ³»¿ª

°¨Á¤Æò°¡ÇöȲ

¸ñ·Ï ÁÖ¼Ò ±¸Á¶/¿ëµµ/´ëÁö±Ç ¸éÀû ºñ°í
ÅäÁö
°í´öµ¿ 2217-1 ´ë 261.7 §³
(79.16Æò)
°Ç¹°
°í´öµ¿ 2217-1 1Ãþ ±Ù¸°»ýȰ½Ã¼³ ö±ÙÄÜÅ©¸®Æ®±¸Á¶ 112.55 §³
(34.05Æò)
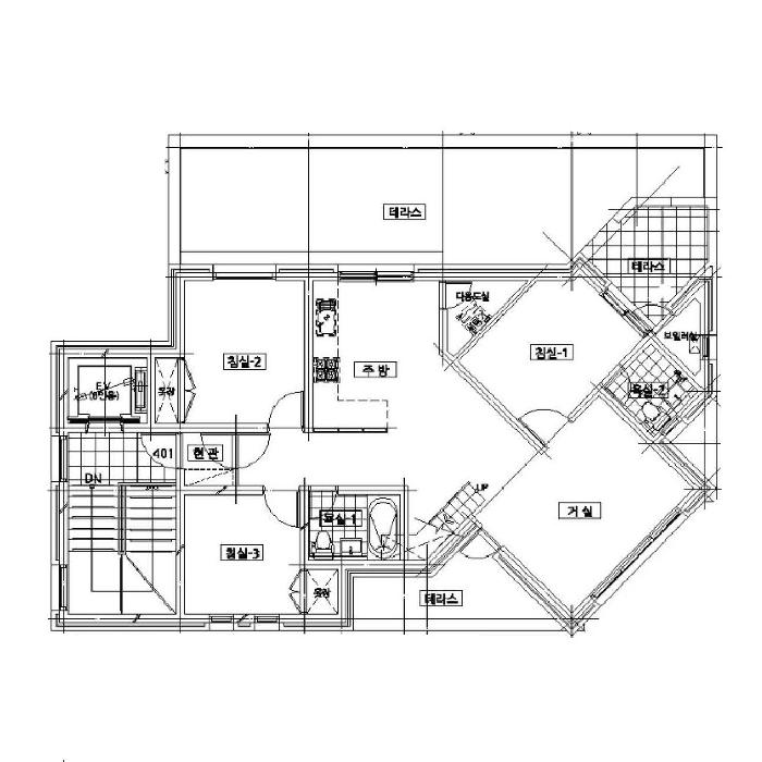
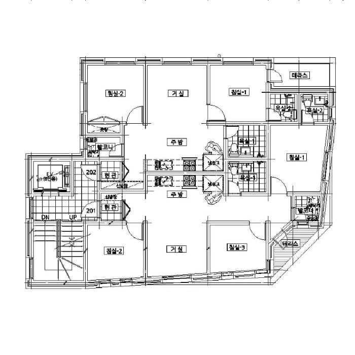
°í´öµ¿ 2217-1 2Ãþ ÁÖÅà ö±ÙÄÜÅ©¸®Æ®±¸Á¶ 116.96 §³
(35.38Æò)
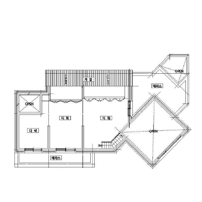
°í´öµ¿ 2217-1 3Ãþ ÁÖÅà ö±ÙÄÜÅ©¸®Æ®±¸Á¶ 117.95 §³
(35.68Æò)
°í´öµ¿ 2217-1 4Ãþ ÁÖÅà ö±ÙÄÜÅ©¸®Æ®±¸Á¶ 97.20 §³
(29.40Æò)
1) À§Ä¡/Á¦1Á¾ÀϹÝÁÖ°ÅÁö¿ª/Áö±¸´ÜÀ§°èȹ±¸¿ª/¹ö½ºÁ¤·ùÀå/ö±ÙÄÜÅ©¸®Æ®±¸Á¶/µµ½Ã°¡½º ´õº¸±â
°¨Á¤Æò°¡ ¿äÇ×Ç¥
1)À§Ä¡ ¹× ÁÖÀ§È¯°æ
º»°ÇÀº °æ±âµµ ÆòÅýà °í´öµ¿ ¼ÒÀç ""À²Æ÷ÃʵîÇб³"" ³²µ¿Ãø Àαٿ¡ À§Ä¡Çϸç, ÁÖÀ§´Â ±Ù¸°»ýȰ½Ã¼³, ¾ÆÆÄÆ®´ÜÁö, »ê¾÷´ÜÁö µîÀÌ È¥ÀçÇϰí ÀÖÀ½.
2)±³Åë»óȲ
º»°Ç±îÁö Á¦¹Ý Â÷·®ÀÇ ÁøÃâÀÔÀÌ °¡´ÉÇϰí Àαٿ¡ ³ë¼± ¹ö½ºÁ¤·ùÀåÀÌ ¼ÒÀçÇÏ´Â µî ±³Åë»óȲÀº º¸ÅëÀÓ.
3)ÇüÅ ¹× ÀÌ¿ë»óÅÂ
ÀÎÁ¢ÅäÁö¿Í µî°íÆòźÇÑ °¡ÀåÇüÀÇ ÅäÁö·Î¼­, ÁÖ»ó¿ë °ÇºÎÁö·Î ÀÌ¿ë ÁßÀÓ.
4)ÀÎÁ¢ µµ·Î»óÅÂ
º»°Ç ºÏ¼­Ãø ¹× ³²¼­ÃøÀ¸·Î ³ëÆø ¾à 8¹ÌÅÍÀÇ µµ·Î¿¡ Á¢Çϰí ÀÖÀ½.
5)ÅäÁöÀÌ¿ë°èȹ ¹× Á¦ÇÑ»óÅÂ
Á¦1Á¾ÀϹÝÁÖ°ÅÁö¿ª, Áö±¸´ÜÀ§°èȹ±¸¿ª(°í´ö±¹Á¦È­Áö±¸), ¼Ò·Î2·ù(Æø 8m~10m)(Á¢ÇÕ) °¡Ãà»çÀ°Á¦Çѱ¸¿ª(ÀüºÎÁ¦Çѱ¸¿ª)<°¡ÃàºÐ´¢ÀÇ °ü¸® ¹× À̿뿡 °üÇÑ ¹ý·ü>, »ó´ëº¸È£±¸¿ª(°í´ö11À¯Ä¡¿ø)<±³À°È¯°æ º¸È£¿¡ °üÇÑ ¹ý·ü>, ÅÃÁö°³¹ßÁö±¸<ÅÃÁö°³¹ßÃËÁø¹ý>
6)Á¦½Ã¸ñ·Ï ¿ÜÀÇ ¹°°Ç
-
7)°øºÎ¿ÍÀÇ Â÷ÀÌ
-
8)±âŸÂü°í»çÇ×(ÀÓ´ë°ü·Ê ¹× ±âŸ)
ÀÓ´ë°ü°è´Â ¹Ì»óÀÓ.
1)°Ç¹°ÀÇ ±¸Á¶
ö±ÙÄÜÅ©¸®Æ®±¸Á¶ (ö±Ù)ÄÜÅ©¸®Æ®ÁöºØ 4Ãþ°ÇÀ¸·Î¼­,
(»ç¿ë½ÂÀÎÀÏ:2022.05.24.)

¿Üº®: Ä¡À庮µ¹ ¸¶°¨ µî,
³»º®: ¸ôÅ»À§ ÆäÀÎÆÃ ¸¶°¨, º®Áöµµ¹è ¸¶°¨ µî,
âȣ: ¼¦½Ã âȣ µîÀÓ.
2)ÀÌ¿ë»óÅÂ
ÀϹݰÇÃ๰´ëÀå »ó ÁÖ¿ëµµ´Â ´Ù°¡±¸ÁÖÅÃÀ̸ç,
1Ãþ: Á¦2Á¾ ±Ù¸°»ýȰ½Ã¼³(Å·ºÎµ¿»ê, ¹éÁ¤¹ä»ó)
2Ãþ: ´Ù°¡±¸ÁÖÅÃ(2°¡±¸)
3Ãþ: ´Ù°¡±¸ÁÖÅÃ(2°¡±¸)
4Ãþ: ´Ù°¡±¸ÁÖÅÃ(1°¡±¸)·Î ÀÌ¿ë ÁßÀÓ.
3)¼³ºñ³»¿ª
±âº»ÀûÀÎ ±Þ¹è¼ö¼³ºñ, ³­¹æ¼³ºñ, ³Ã¹æ¼³ºñ, µµ½Ã°¡½º ¼³ºñ, È­ÀçŽÁö¼³ºñ, ½Â°­±â ¼³ºñ µîÀÌ µÇ¾î ÀÖÀ½.
4)ºÎÇÕ¹° ¹× Á¾¹°
-
5)°øºÎ¿ÍÀÇ Â÷ÀÌ
-
6)±âŸÂü°í»çÇ×(ÀÓ´ë°ü·Ê ¹× ±âŸ)
ÀÓ´ë°ü°è´Â ¹Ì»óÀÓ.
Âü°í
»çÇ×
Àϰý¸Å°¢
* º»°Ç ¸ñÀû¹°Àº °í´öµ¿¿¡ ¼ÒÀçÇÏ´Â 4Ãþ ´Ù°¡±¸ÁÖÅÃÀÓ(1Ãþ Á¡Æ÷ 2°³, 2Ãþ 2°¡±¸, 3Ãþ 2°¡±¸, 4Ãþ 1°¡±¸).

°ÇÃ๰ÇöȲ

¼ÒÀçÁö °æ±âµµ ÆòÅýà °í´öµ¿ 2217-1¹øÁö
´ëÁö¸éÀû 261.7§³
(79.3Æò)
¿¬¸éÀû 464.92§³
(140.88Æò)
°ÇÃà¸éÀû 156.92§³
(47.55Æò)
¿ëÀû·ü»êÁ¤
¿¬¸éÀû
464.92§³
(140.88Æò)
°ÇÆóÀ² 59.96% ¿ëÀû·ü 177.65%
Áö»óÃþ¼ö 4Ãþ ÁöÇÏÃþ¼ö  
ÁÖ¿ëµµ ´Üµ¶ÁÖÅà ±¸Á¶ ö±ÙÄÜÅ©¸®Æ®±¸Á¶
Âø°øÀÏÀÚ 2021.04.15 »ç¿ë½ÂÀÎÀÏÀÚ 2022.05.24
°ÇÃ๰Ãþº°ÇöȲ [º¸±â]


±¹ÅäºÎ½Ç°Å·¡°¡ °æ±âµµ ÆòÅýà °í´öµ¿

¡Ü ¸Å¸Å

¸éÀû(§³), ±Ý¾×(¸¸¿ø)

¡Ü Àü¼¼

¸éÀû(§³), ±Ý¾×(¸¸¿ø)

°è¾àÀÏ¿¬¸éÀûº¸Áõ±Ý¿ù¼¼°ÇÃà
25.12.1944.032,000702021
25.12.1845.63500902023
25.12.1756.51500902021
25.12.1555.18500952022
25.12.15103.81500150
¢Ñ ´õº¸±â

µî±âºÎµîº» ¿ä¾à(ÅäÁö)

  Á¢¼öÀÏÀÚ µî±â¸ñÀû/±Ç¸®ÀÚ ±Ç¸®±Ý¾× ±âÁØ
1 2020³â12¿ù29ÀÏ
¼ÒÀ¯±Ç
´õOOOO
¼Ò¸ê
2 2020³â12¿ù29ÀÏ
±ÙÀú´ç±Ç
º´OOOO
1,440,000,000 ¼Ò¸ê±âÁØ
3 2022³â6¿ù9ÀÏ
±ÙÀú´ç±Ç
º´OOOO
240,000,000 ¼Ò¸ê
4 2024³â1¿ù4ÀÏ
±ÙÀú´ç±Ç
¹ÚOO
200,000,000 ¼Ò¸ê
5 2025³â2¿ù25ÀÏ
ÀÓÀǰæ¸Å
º´OOOO
¼Ò¸ê
6 2025³â8¿ù19ÀÏ
¾Ð·ù
ÆòOO
¼Ò¸ê

µî±âºÎµîº» ¿ä¾à(°Ç¹°)

  Á¢¼öÀÏÀÚ µî±â¸ñÀû/±Ç¸®ÀÚ ±Ç¸®±Ý¾× ±âÁØ
1
¼ÒÀ¯±Ç
´õOOOO
¼Ò¸ê
2 2022³â6¿ù9ÀÏ
±ÙÀú´ç±Ç
º´OOOO
1,440,000,000 ¼Ò¸ê±âÁØ
3 2022³â6¿ù9ÀÏ
±ÙÀú´ç±Ç
º´OOOO
240,000,000 ¼Ò¸ê
4 2024³â1¿ù4ÀÏ
±ÙÀú´ç±Ç
¹ÚOO
200,000,000 ¼Ò¸ê
5 2024³â8¿ù20ÀÏ
¾àÁ¤/±ÝÁö»çÇ×/ȯ¸ÅƯ¾à
¼Ò¸ê
6 2025³â2¿ù25ÀÏ
ÀÓÀǰæ¸Å
º´OOOO
¼Ò¸ê
7 2025³â8¿ù19ÀÏ
¾Ð·ù
ÆòOO
¼Ò¸ê

ÀÓÂ÷ÀÎÇöȲ (¹è´ç¿ä±¸Á¾±âÀÏ: 2025-05-23)

ÀÓÂ÷ÀÎ ¿ëµµ/Á¡À¯ º¸Áõ±Ý/¿ù¼¼ ´ëÇ×·Â
ÀüÀÔÀÏ/È®Á¤ÀÏ ¹è´ç¿ä±¸ ºñ°í
±èOO 201È£ ¹Ì»ó
[¿ù]¹Ì»ó
X
2022.07.08.
¹Ì»ó
¹Ì»ó
ÀÌOO 102È£76.5§³ 40,000,000
[¿ù]2,500,000
X
2022.11.07.
¾øÀ½
2022.10.28.~2024.10.27.
ÀåOO 1Ãþ Áß36.04§³ 10,000,000
[¿ù]800,000
X
2024.10.16.
2025.4.16. 2024.10.24.-2026.10.23.
Á¤OO 202È£ 100,000,000
X
2024.09.02.
2024.09.02.
2025.3.21. 2024.09.01.-2026.08.31.
ȸOOOOOOOOO 302È£ ¹Ì»ó
[¿ù]¹Ì»ó
¹ÌÀüÀÔ
¹Ì»ó
¹Ì»ó
ȸOOOOOOOOO 301È£ ¹Ì»ó
[¿ù]¹Ì»ó
¹ÌÀüÀÔ
¹Ì»ó
¹Ì»ó
ȸOOOOOOOOOO 201È£ ¹Ì»ó
[¿ù]¹Ì»ó
¹ÌÀüÀÔ
¹Ì»ó
¹Ì»ó

¿©ÀÇÁÖ°æ¸Å Á¶¾ð ÇÑ ¸¶µð


ÁÖÀÇ»çÇ× (ÃÖ¼±¼øÀ§ ¼³Á¤ÀÏ: °Ç¹°: 2022.06.09. ±ÙÀú´ç ±Ç ¼³Á¤ ÅäÁö: 2020.12.29. ±ÙÀú´ç ±Ç)

¸Å°¢À¸·Î ¼Ò¸êµÇÁö ¾Ê´Â µî±âºÎ±Ç¸®:
¸Å°¢À¸·Î ¼³Á¤µÈ °ÍÀ¸·Î º¸´Â Áö»ó±Ç:
Àϰý¸Å°¢
¡Ø¹Ì³³°ü¸®ºñ(°ø¿ë) Àμö¿©ºÎ¸¦ ÀÔÂû Àü¿¡ È®ÀÎÇϽñ⠹ٶø´Ï´Ù

 

Áö¿ªºÐ¼®

ÁöÇÏö¸í Á÷¼±°Å¸®

Çб³¸í ÀüÈ­¹øÈ£ ÁÖ¼Ò Á÷¼±°Å¸®

¹ý¿ø

¼ö¿øÁö¹æ¹ý¿ø ÆòÅÃÁö¿ø (178-48)°æ±âµµ ÆòÅýà Æò³²·Î 1036 (µ¿»èµ¿)
´ëÇ¥ : 031)650-3114, ¾ß°£ : 031)650-3150
°üÇÒÁö¿ª : ÆòÅýÃ, ¾È¼º½Ã

µî±â¼Ò ¼ö¿øÁö¹æ¹ý¿ø º»¿ø ¼Ûźµî±â¼Ò (´ëÇ¥:1544-0773, ÆÑ½º:(031)665-3769, °æ±âµµ ÆòÅýà °æ±â´ë·Î 1351 (¼­Á¤µ¿ 813-3))
¼¼¹«¼­ ÆòÅü¼¹«¼­ (´ëÇ¥:031-650-02, ÆÑ½º:031-658-1116, °æ±âµµ ÆòÅýà Á×¹é6·Î6 (Á׹鵿 796))

Àαٳ«ÂûÅë°è

±â°£ ¸Å°¢°Ç¼ö Æò±Õ°¨Á¤°¡
Æò±Õ¸Å°¢°¡
¸Å°¢°¡À²
Æò±ÕÀ¯Âû¼ö
3°³¿ù 1°Ç 1,302,196,320¿ø
630,000,000¿ø
48%
3ȸ
6°³¿ù 2°Ç 1,256,790,760¿ø
730,050,000¿ø
58%
2.5ȸ
12°³¿ù 9°Ç 1,896,351,557¿ø
1,132,053,444¿ø
59%
2.2ȸ


º» °æ¸ÅÁ¤º¸´Â ¹ý¿øÀÚ·á¿Í ÀÏÄ¡Çϵµ·Ï ÇÏ¿´À¸³ª ±Ç¸®»çÇ׺¯µ¿, ÀÔ·ÂÂø¿À µîÀÇ ¿øÀÎÀ¸·Î »ç½Ç°ú ´Ù¸¦ ¼ö ÀÖ½À´Ï´Ù. ÀÌ¿ë¾à°ü¿¡ ÀǰЏéÃ¥Á¶°ÇÀ¸·Î Á¦°øµÊÀ» ¾Ë¸®¸ç, °æ¸ÅÀÔÂû½Ã ¹Ýµå½Ã °ü·Ã °øºÎ¸¦ ÀçÈ®ÀÎÇϽñ⠹ٶø´Ï´Ù. º¸´Ù Æí¸®ÇÑ °æ¸ÅÁ¤º¸ Á¦°øÀ» À§ÇØ Áö¼ÓÀûÀ¸·Î °³¼±ÇϰڽÀ´Ï´Ù. ÀÌ¿ëÇØ Áּż­ °¨»çÇÕ´Ï´Ù.