·Î±×ÀÎ
1393
¾ÆÆÄÆ®
¼ö¿øÁö¹æ¹ý¿ø ÆòÅÃÁö¿ø
 °¨Á¤°¡159,000,000 ¿ø
 ÃÖÀú°¡(70%) 111,300,000 ¿ø
 º¸Áõ±Ý(10%) 11,130,000 ¿ø
 Ã»±¸¾×148,951,045 ¿ø
°æ±âµµ ÆòÅýà °æ±â´ë·Î 1576, 102µ¿ 2Ãþ203È£ (µ¶°îµ¿,ÇÑÀÏ¾ÆÆÄÆ®)
°æ±âµµ ÆòÅýà µ¶°îµ¿ 473
»ç°Ç¹øÈ£ 2025Ÿ°æ41159
°æ¸ÅÁ¾·ùºÎµ¿»ê°­Á¦°æ¸Å
¸Å°¢´ë»óÅäÁö ¹× °Ç¹°Àϰý ¸Å°¢
¸Å°¢±âÀÏ    2026.06.15(¿ù) 10:00 ÀÔÂû 30ÀÏÀü    
ÅäÁö¸éÀû37.05§³(11.21 Æò)
°Ç¹°¸éÀû59.34§³(17.95 Æò)
乫/¼ÒÀ¯ÀÚÀ±OO / À±OO
ä±ÇÀÚÇÑOOOOOOO
ÆäÀ̽ººÏ Æ®À§ÅÍ ±¸±Û+
īī¿À½ºÅ丮
īī¿ÀÅå sms¹®ÀÚº¸³»±â
 

±âÀϳ»¿ª

°æ°ú ³¯Â¥ Àú°¨ ÃÖÀú°¡ °á°ú
Á¢¼öÀÏ 2025-01-23 °æ¸ÅÁ¢¼ö
~1ÀÏ 
2025-01-24 °æ¸Å°³½Ã°áÁ¤
~109ÀÏ 
2025-05-12 ¹è´ç¿ä±¸Á¾±âÀÏ
~326ÀÏ 
2025-12-15 100%
159,000,000
À¯Âû
~375ÀÏ 
2026-02-02 70%
111,300,000
À¯Âû
~424ÀÏ 
2026-03-23 49%
77,910,000
º¯°æ
~452ÀÏ 
2026-04-20 100%
159,000,000
À¯Âû
~508ÀÏ 
2026-06-15 70%
111,300,000
ÁøÇà
¹°°Ç¸í¼¼¼­ ÇöȲÁ¶»ç¼­ ¹®°ÇÁ¢¼ö ¼Û´Þ³»¿ª

°¨Á¤Æò°¡ÇöȲ

¸ñ·Ï ÁÖ¼Ò ±¸Á¶/¿ëµµ/´ëÁö±Ç ¸éÀû ºñ°í
´ëÁö±Ç
µ¶°îµ¿ 473 17349.2ºÐÀÇ 37.045 37.045 §³
(11.21Æò)
°Ç¹°
µ¶°îµ¿ 473 102µ¿ 2Ãþ203È£ ö±ÙÄÜÅ©¸®Æ®Á¶ 59.34 §³
(17.95Æò)
1) À§Ä¡/Á¦2Á¾ÀϹÝÁÖ°ÅÁö¿ª/Áö±¸´ÜÀ§°èȹ±¸¿ª/¹ö½ºÁ¤·ùÀå/ö±ÙÄÜÅ©¸®Æ®±¸Á¶/½º¶óºêÁöºØ ´õº¸±â
°¨Á¤Æò°¡ ¿äÇ×Ç¥
1)À§Ä¡ ¹× ÁÖÀ§È¯°æ
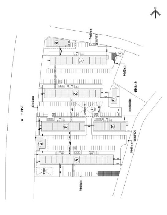
º»°ÇÀº °æ±âµµ ÆòÅýà Áö»êµ¿ ¼ÒÀç ""¼ÛºÏµ¿ÁÖ¹ÎÀÚÄ¡½ëÅÍ"" ºÏÃø Àαٿ¡ ¼ÒÀçÇϸç, ÁÖÀ§´Â ¾ÆÆÄÆ®´ÜÁö, ´Üµ¶ÁÖÅÃ, ±Ù¸°»ýȰ½Ã¼³ µîÀÌ È¥ÀçÇÏ´Â Áö´ë·Î¼­ Á¦¹Ý ÁÖÀ§È¯°æÀº º¸ÅëÀÓ.
2)±³Åë»óȲ
º»°Ç±îÁö Á¦¹Ý Â÷·®ÀÇ ÃâÀÔÀÌ ¿øÈ°Çϰí, ÁÖº¯À¸·Î ¹ö½ºÁ¤·ùÀåÀÌ À§Ä¡ÇÏ¸ç ¿îÇàºóµµ µîÀ¸·Î º¸¾Æ Á¦¹Ý ´ëÁß±³Åë»óȲÀº ¹«³­ÇÑ ÆíÀÓ.
3)°Ç¹°ÀÇ ±¸Á¶
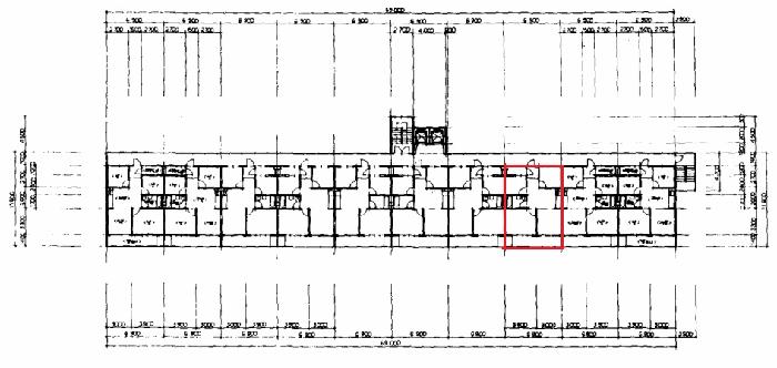
ö±ÙÄÜÅ©¸®Æ®±¸Á¶ ½º¶óºêÁöºØ Áö»ó9Ãþ °Ç¹° Áß Á¦102µ¿ Á¦2Ãþ Á¦203È£·Î¼­(»ç¿ë½ÂÀÎÀÏ 1993.09.03),
¿Üº® : ¸ôÅ»À§ ÆäÀÎÆÃ ¸¶°¨ µî
³»º® : º®Áö ¹× ŸÀϺÙÀÓ ¸¶°¨ µî
âȣ : ¾Ë·ç¹Ì´½ »õ½ÃâȣÀÔ´Ï´Ù
4)ÀÌ¿ë»óÅÂ
ÁýÇհǹ°(¾ÆÆÄÆ®)·Î ÀÌ¿ëÁßÀÓ.
5)¼³ºñ³»¿ª
À§»ý ±Þ.¹è¼ö¼³ºñ, ¿¤¸®º£ÀÌÅͼ³ºñ, È­Àç°æº¸¼³ºñ µî µÇ¾îÀÖÀ½.
6)ÅäÁöÀÇ Çü»ó ¹× ÀÌ¿ë»óÅÂ
ºÎÁ¤ÇüÀÇ ÆòÁö·Î ¾ÆÆÄÆ® °ÇºÎÁö·Î ÀÌ¿ëÁßÀÓ.
7)ÀÎÁ¢ µµ·Î»óŵî
´ÜÁö³» µµ·Î¸¦ ÅëÇÏ¿© ¼­ÃøÀÇ °æ±â´ë·Î(1¹ø ±¹µµ)¿Í ¿¬°è°¡´ÉÇÔ.
8)ÅäÁöÀÌ¿ë°èȹ ¹× Á¦ÇÑ»óÅÂ
µ¶°îµ¿ 473 :Á¦2Á¾ÀϹÝÁÖ°ÅÁö¿ª, Áö±¸´ÜÀ§°èȹ±¸¿ª(Áö»ê2Áö±¸), ´ë·Î1·ù(Æø 35m~40m)(Á¢ÇÕ), ¼Ò·Î1·ù(Æø 10m~12m)(Á¢ÇÕ), Áß·Î3·ù(Æø 12m~15m)(Á¢ÇÕ), °¡Ãà»çÀ°Á¦Çѱ¸¿ª(ÀüºÎÁ¦Çѱ¸¿ª)<°¡ÃàºÐ´¢ÀÇ °ü¸® ¹× À̿뿡 °üÇÑ ¹ý·ü>, ºñÇà¾ÈÀüÁ¦5±¸¿ª(Àü¼ú)<±º»ç±âÁö ¹× ±º»ç½Ã¼³ º¸È£¹ý>, ±º¿ëºñÇàÀå ¼ÒÀ½´ëÃ¥±¸¿ª Á¦3Á¾±¸¿ª<±º¿ëºñÇàÀå¤ý±º»ç°ÝÀå ¼ÒÀ½ ¹æÁö ¹× ÇÇÇØº¸»ó¿¡ °üÇÑ ¹ý·ü>
9)°øºÎ¿ÍÀÇ Â÷ÀÌ
¾øÀ½.
10)±âŸÂü°í»çÇ×(ÀÓ´ë°ü·Ê ¹× ±âŸ)
-ÀÓ´ë°ü°è(µî±â»çÇ×ÀüºÎÁõ¸í¼­ ±âÁØ)
-µî±â¸ñÀû : ÁÖÅÃÀÓÂ÷±Ç, -Á¢¼ö : 2024³â1¿ù31ÀÏ Á¦4252È£
-µî±â¿øÀÎ : 2024³â1¿ù26ÀÏ ¼ö¿øÁö¹æ¹ý¿ø ÆòÅÃÁö¿øÀÇ ÀÓÂ÷±Çµî±â¸í·É (2024Ä«ÀÓ1026)
-ÀÓÂ÷º¸Áõ±Ý : ±Ý135,000,000¿ø, -¹üÀ§ : °Ç¹°ÀÇ ÀüºÎ
-ÀÓ´ëÂ÷°è¾àÀÏÀÚ : 2021³â12¿ù2ÀÏ, -Áֹεî·ÏÀÏÀÚ : 2022³â1¿ù24ÀÏ
-Á¡À¯°³½ÃÀÏÀÚ : 2022³â1¿ù17ÀÏ, -È®Á¤ÀÏÀÚ : 2021³â12¿ù9ÀÏ
-ÀÓÂ÷±ÇÀÚ : ½ÅÁعü 870625-*******
°æ±âµµ ÆòÅýà °æ±â´ë·Î 1576, 102µ¿ 203È£(µ¶°îµ¿,ÇÑÀÏ¾ÆÆÄÆ®)
Âü°í
»çÇ×
Çѱ¹ÁÖÅñÝÀ¶°ø»ç(ÀÓÂ÷±ÇÀÚ ½ÅÁعü)°¡ 2026.03.04.ÀÚ¿¡ ´ëÇ×·Â Æ÷±â È®¾à¼­ Á¦Ãâ(ÀÓÂ÷º¸Áõ±Ý Àü¾×À» º¯Á¦¹ÞÁö ¸øÇÏ´õ¶óµµ ÀÓÂ÷±Çµî±â¸¦ ¸»¼ÒÇÏ´Â °Í¿¡ µ¿ÀÇ)
* º»°Ç ¸ñÀû¹°Àº µ¶°îµ¿ ÇÑÀÏ¾ÆÆÄÆ® 102µ¿ 2Ãþ¿¡ ¼ÓÇÏ´Â ÀüÀ¯ºÎºÐÀÓ. * º¹µµ½Ä ¾ÆÆÄÆ®ÀÓ.

°ÇÃ๰ÇöȲ

¼ÒÀçÁö °æ±âµµ ÆòÅýà µ¶°îµ¿ 473¹øÁö
´ëÁö¸éÀû 17349.2§³
(5257.33Æò)
¿¬¸éÀû 7663§³
(2322.12Æò)
°ÇÃà¸éÀû 959.25§³
(290.68Æò)
¿ëÀû·ü»êÁ¤
¿¬¸éÀû
6789.25§³
(2057.35Æò)
°ÇÆóÀ² 23.94% ¿ëÀû·ü 194.74%
Áö»óÃþ¼ö 9Ãþ ÁöÇÏÃþ¼ö 1Ãþ
ÁÖ¿ëµµ °øµ¿ÁÖÅà ±¸Á¶ ö±ÙÄÜÅ©¸®Æ®±¸Á¶
Âø°øÀÏÀÚ 1992.05.25 »ç¿ë½ÂÀÎÀÏÀÚ 1993.09.03
°ÇÃ๰Ãþº°ÇöȲ [º¸±â]


±¹ÅäºÎ½Ç°Å·¡°¡ °æ±âµµ ÆòÅýà µ¶°îµ¿

¡Ü ¸Å¸Å

¸éÀû(§³), ±Ý¾×(¸¸¿ø)

¡Ü Àü¼¼

¸éÀû(§³), ±Ý¾×(¸¸¿ø)

°è¾àÀÏARTÃþÀü¿ëº¸Áõ±Ý¿ù¼¼°ÇÃà
26.05.08ÇÑÀÏ959.341,000601993
26.04.12ÇÑÀÏ659.3410,00001993
26.03.19ÇÑÀÏ659.411,7001993
26.03.19ÇÑÀÏ959.3412,8001993
26.03.13ÇÑÀÏ659.3414,00001993
¢Ñ ´õº¸±â

µî±âºÎµîº» ¿ä¾à(°Ç¹°)

  Á¢¼öÀÏÀÚ µî±â¸ñÀû/±Ç¸®ÀÚ ±Ç¸®±Ý¾× ±âÁØ
1 2021³â7¿ù7ÀÏ
¼ÒÀ¯±Ç
˱OO
¼Ò¸ê
2 2024³â1¿ù31ÀÏ
ÀÓÂ÷±Ç¼³Á¤
½ÅOO
135,000,000 Àμö
3 2025³â1¿ù24ÀÏ
°­Á¦°æ¸Å
ÇÑOOOO
¼Ò¸ê±âÁØ

ÀÓÂ÷ÀÎÇöȲ (¹è´ç¿ä±¸Á¾±âÀÏ: 2025-05-12)

ÀÓÂ÷ÀÎ ¿ëµµ/Á¡À¯ º¸Áõ±Ý/¿ù¼¼ ´ëÇ×·Â
ÀüÀÔÀÏ/È®Á¤ÀÏ ¹è´ç¿ä±¸ ºñ°í
½ÅOO ÀüºÎ 135,000,000
O
2022.01.24.
2021.12.09.
2022.01.17.
ºñ°í
(¸Å°¢¹°°Ç
¸í¼¼¼­)
½ÅÁعü:ÁÖÅÃÀÓÂ÷±Çµî±â±ÇÀڷμ­ ÁÖÅÃÀÓÂ÷±Çµî±âÀÏÀº 2024.01.31.ÀÓ Çѱ¹ÁÖÅñÝÀ¶°ø»ç´Â °æ¸Å½ÅûÀڷμ­ ÁÖÅÃÀÓÂ÷±Çµî±â±ÇÀÚ ½ÅÁعüÀÇ ÀÓÂ÷º¸Áõ±Ý¹Ýȯä±Ç ¾ç¼öÀÎÀÓ

¿©ÀÇÁÖ°æ¸Å Á¶¾ð ÇÑ ¸¶µð

¼±¼øÀ§ ÀÓÂ÷±Çµî±â°¡ µÇ¾î ÀÖ½À´Ï´Ù
´ëÇ×·ÂÀÌ ÀÖ´Â ¼±¼øÀ§ ÀÓÂ÷±Çµî±â ±Ç¸®ÀÚ°¡ ¹è´çÀ» Àü¾× ¹ÞÁö ¸øÇÒ °æ¿ì ³«ÂûÀÚ°¡ ÀÜ¿© º¸Áõ±ÝÀ» ÀμöÇØ¾ßÇÏ´Â °æ¿ìµµ ÀÖ½À´Ï´Ù.

ÁÖÀÇ»çÇ× (ÃÖ¼±¼øÀ§ ¼³Á¤ÀÏ: 2025.01.24. °³½Ã°áÁ¤ ¼³Á¤)

¸Å°¢À¸·Î ¼Ò¸êµÇÁö ¾Ê´Â µî±âºÎ±Ç¸®:
¸Å°¢À¸·Î ¼³Á¤µÈ °ÍÀ¸·Î º¸´Â Áö»ó±Ç:
Çѱ¹ÁÖÅñÝÀ¶°ø»ç(ÀÓÂ÷±ÇÀÚ ½ÅÁعü)°¡ 2026.03.04.ÀÚ¿¡ ´ëÇ×·Â Æ÷±â È®¾à¼­ Á¦Ãâ(ÀÓÂ÷º¸Áõ±Ý Àü¾×À» º¯Á¦¹ÞÁö ¸øÇÏ´õ¶óµµ ÀÓÂ÷ ±Çµî±â¸¦ ¸»¼ÒÇÏ´Â °Í¿¡ µ¿ÀÇ)
¡Ø¹Ì³³°ü¸®ºñ(°ø¿ë) Àμö¿©ºÎ¸¦ ÀÔÂû Àü¿¡ È®ÀÎÇϽñ⠹ٶø´Ï´Ù

 

Áö¿ªºÐ¼®

ÁöÇÏö¸í Á÷¼±°Å¸®

Çб³¸í ÀüÈ­¹øÈ£ ÁÖ¼Ò Á÷¼±°Å¸®

¹ý¿ø

¼ö¿øÁö¹æ¹ý¿ø ÆòÅÃÁö¿ø (178-48)°æ±âµµ ÆòÅýà Æò³²·Î 1036 (µ¿»èµ¿)
´ëÇ¥ : 031)650-3114, ¾ß°£ : 031)650-3150
°üÇÒÁö¿ª : ÆòÅýÃ, ¾È¼º½Ã

µî±â¼Ò ¼ö¿øÁö¹æ¹ý¿ø º»¿ø ¼Ûźµî±â¼Ò (´ëÇ¥:1544-0773, ÆÑ½º:(031)665-3769, °æ±âµµ ÆòÅýà °æ±â´ë·Î 1351 (¼­Á¤µ¿ 813-3))
¼¼¹«¼­ ÆòÅü¼¹«¼­ (´ëÇ¥:031-650-02, ÆÑ½º:031-658-1116, °æ±âµµ ÆòÅýà Á×¹é6·Î6 (Á׹鵿 796))

Àαٳ«ÂûÅë°è

±â°£ ¸Å°¢°Ç¼ö Æò±Õ°¨Á¤°¡
Æò±Õ¸Å°¢°¡
¸Å°¢°¡À²
Æò±ÕÀ¯Âû¼ö
3°³¿ù 60°Ç 316,350,000¿ø
235,205,087¿ø
71%
1.6ȸ
6°³¿ù 126°Ç 312,944,444¿ø
233,244,332¿ø
73%
1.5ȸ
12°³¿ù 202°Ç 328,114,851¿ø
232,185,593¿ø
71%
1.7ȸ


º» °æ¸ÅÁ¤º¸´Â ¹ý¿øÀÚ·á¿Í ÀÏÄ¡Çϵµ·Ï ÇÏ¿´À¸³ª ±Ç¸®»çÇ׺¯µ¿, ÀÔ·ÂÂø¿À µîÀÇ ¿øÀÎÀ¸·Î »ç½Ç°ú ´Ù¸¦ ¼ö ÀÖ½À´Ï´Ù. ÀÌ¿ë¾à°ü¿¡ ÀǰЏéÃ¥Á¶°ÇÀ¸·Î Á¦°øµÊÀ» ¾Ë¸®¸ç, °æ¸ÅÀÔÂû½Ã ¹Ýµå½Ã °ü·Ã °øºÎ¸¦ ÀçÈ®ÀÎÇϽñ⠹ٶø´Ï´Ù. º¸´Ù Æí¸®ÇÑ °æ¸ÅÁ¤º¸ Á¦°øÀ» À§ÇØ Áö¼ÓÀûÀ¸·Î °³¼±ÇϰڽÀ´Ï´Ù. ÀÌ¿ëÇØ Áּż­ °¨»çÇÕ´Ï´Ù.