·Î±×ÀÎ
1301
±Ù¸°»ó°¡
ÃáõÁö¹æ¹ý¿ø °­¸ªÁö¿ø
 °¨Á¤°¡46,000,000 ¿ø
 ÃÖÀú°¡(24%) 11,045,000 ¿ø
 º¸Áõ±Ý(10%) 1,104,500 ¿ø
 Ã»±¸¾×50,000,000 ¿ø
°­¿øÆ¯º°ÀÚÄ¡µµ »ïô½Ã ³²¾çµ¿ 332 ÁöÇÏÃþ101È£
»ç°Ç¹øÈ£ 2025Ÿ°æ30541
°æ¸ÅÁ¾·ùºÎµ¿»ê°­Á¦°æ¸Å
¸Å°¢´ë»óÅäÁö ¹× °Ç¹°Àϰý ¸Å°¢
¸Å°¢±âÀÏ    2026.06.01(¿ù) 10:00 ÀÔÂû 5ÀÏÀü    
ÅäÁö¸éÀû33.14§³(10.03 Æò)
°Ç¹°¸éÀû172.04§³(52.04 Æò)
乫/¼ÒÀ¯ÀÚÁÖOOO OOOOOO / ÁÖOOO OOOOOO
ä±ÇÀÚ±èOO
ÆäÀ̽ººÏ Æ®À§ÅÍ ±¸±Û+
īī¿À½ºÅ丮
īī¿ÀÅå sms¹®ÀÚº¸³»±â
 

±âÀϳ»¿ª

°æ°ú ³¯Â¥ Àú°¨ ÃÖÀú°¡ °á°ú
Á¢¼öÀÏ 2025-04-15 °æ¸ÅÁ¢¼ö
~2ÀÏ 
2025-04-17 °æ¸Å°³½Ã°áÁ¤
~93ÀÏ 
2025-07-17 ¹è´ç¿ä±¸Á¾±âÀÏ
~244ÀÏ 
2025-12-15 100%
46,000,000
À¯Âû
~286ÀÏ 
2026-01-26 70%
32,200,000
À¯Âû
~335ÀÏ 
2026-03-16 49%
22,540,000
À¯Âû
~370ÀÏ 
2026-04-20 34%
15,778,000
À¯Âû
~412ÀÏ 
2026-06-01 24%
11,045,000
ÁøÇà
¹°°Ç¸í¼¼¼­ ÇöȲÁ¶»ç¼­ ¹®°ÇÁ¢¼ö ¼Û´Þ³»¿ª

°¨Á¤Æò°¡ÇöȲ

¸ñ·Ï ÁÖ¼Ò ±¸Á¶/¿ëµµ/´ëÁö±Ç ¸éÀû ºñ°í
´ëÁö±Ç
³²¾çµ¿ 332 567.4ºÐÀÇ 33.143 33.143 §³
(10.03Æò)
°Ç¹°
³²¾çµ¿ 332 ÁöÇÏÃþ101È£ ö±ÙÄÜÅ©¸®Æ®Á¶ 172.04 §³
(52.04Æò)
1) À§Ä¡/µµ½ÃÁö¿ª/ÀϹݻó¾÷Áö¿ª/¹ö½ºÁ¤·ùÀå/ÁÖÂ÷Àå/ö±ÙÄÜÅ©¸®Æ®Á¶/Æò½½·¡ºêÁöºØ ´õº¸±â
°¨Á¤Æò°¡ ¿äÇ×Ç¥
1)À§Ä¡ ¹× ÁÖÀ§È¯°æ
º»°ÇÀº °­¿øÆ¯º°ÀÚÄ¡µµ »ïô½Ã ³²¾çµ¿ ¼ÒÀç ""³²¾çµ¿ÇàÁ¤º¹Áö¼¾ÅÍ"" ³²¼­Ãø Àαٿ¡ À§Ä¡Çϸç, ºÎ±ÙÀº »ó¾÷¿ë ¹× ¾÷¹«¿ë µîÀ¸·Î Çü¼ºµÈ ³ë¼±»ó°¡Áö´ëÀÓ.
2)±³Åë»óȲ
º»°Ç±îÁö Â÷·®Á¢±Ù °¡´ÉÇϸç, ´ëÁß±³Åë»óȲÀº ¹ö½ºÁ¤·ùÀå°úÀÇ °Å¸® ¹× ¹èÂ÷°£°Ý µîÀ» °í·ÁÇØ º¼ ¶§ ¾çÈ£ÇÑ ÆíÀÓ.
3)°Ç¹°ÀÇ ±¸Á¶
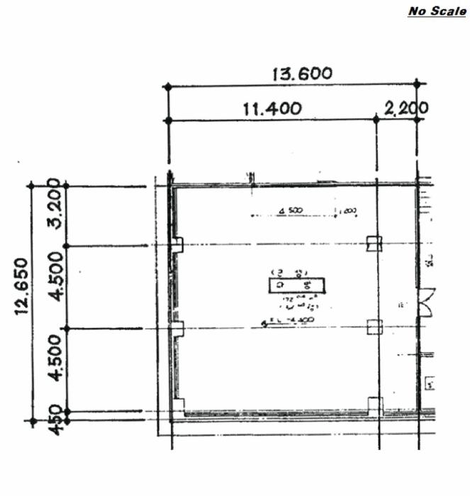
ö±ÙÄÜÅ©¸®Æ®Á¶ Æò½½·¡ºêÁöºØ ÁöÇÏ1Ãþ/Áö»ó10Ãþ °Ç¹° Áß Á¦ÁöÇÏÃþ Á¦101È£·Î¼­
¿Üº®: º¹ÇÕÆÇ³Ú¸¶°¨, ÀÎÁ¶´ë¸®¼®¸¶°¨ µî,
³»º®: ¸ð¸£Å¸¸£À§ÆäÀÎÆÃ µî,
õÀå: ÅØ½º¸¶°¨,
¹Ù´Ú: ÄÜÅ©¸®Æ®³ëÃâ µîÀÓ.
4)ÀÌ¿ë»óÅÂ
±Ù¸°»ýȰ½Ã¼³(ÇöȲ °ø½Ç)À¸·Î ÀÌ¿ë ÁßÀÓ.
5)¼³ºñ³»¿ª
º»°Ç¿¡ Àü±â¼³ºñ µî µÇ¾î ÀÖÀ¸¸ç, º»°Ç °Ç¹° 1Ãþ °ø¿ëºÎºÐ¿¡ À§»ý¼³ºñ, º»°Ç °Ç¹°¿¡ ½Â°­±â¼³ºñ µÇ¾î ÀÖÀ¸³ª ÁöÇÏÃþÀº ¿¬°áµÇ¾î ÀÖÁö ¾ÊÀ¸¸ç, ±â°è½ÄÁÖÂ÷Àå¼³ºñ°¡ µÇ¾î ÀÖÀ¸³ª Á¤¹Ð¾ÈÀüÁ¡°Ë ¹Ì¼ö°ËÀ¸·Î »ç¿ë±ÝÁöµÇ¾î ÀÖÀ½.
6)ÅäÁöÀÇ Çü»ó ¹× ÀÌ¿ë»óÅÂ
¼¼ÀåÇü ÆòÁö·Î¼­ ¾÷¹«½Ã¼³ ¹× ±Ù¸°»ýȰ½Ã¼³ °ÇºÎÁö·Î ÀÌ¿ë ÁßÀÓ.
7)ÀÎÁ¢ µµ·Î»óŵî
º»°Ç ¼­Ãø ¹× ºÏÃøÀ¸·Î µµ·Î¿¡ Á¢ÇÔ.
8)ÅäÁöÀÌ¿ë°èȹ ¹× Á¦ÇÑ»óÅÂ
µµ½ÃÁö¿ª, ÀϹݻó¾÷Áö¿ª(2025-02-14)(»ïô½Ã °í½Ã Á¦2025-35È£), ´ë·Î1·ù(Æø 35m~40m)(Á¢ÇÕ), ¼Ò·Î1·ù(Æø 10m~12m)(Á¢ÇÕ), °¡Ãà»çÀ°Á¦Çѱ¸¿ª(2024-08-29)(¸ðµçÃàÁ¾Á¦ÇÑ)<°¡ÃàºÐ´¢ÀÇ °ü¸® ¹× À̿뿡 °üÇÑ ¹ý·ü>ÀÓ.
9)°øºÎ¿ÍÀÇ Â÷ÀÌ
ÇØ´ç»çÇ× ¾øÀ½.
10)±âŸÂü°í»çÇ×(ÀÓ´ë°ü·Ê ¹× ±âŸ)
- ÀÓ´ë°ü°è´Â ¹Ì»óÀÓ.

- º»°ÇÀº Àå±â°£ °ø½Ç»óÅ·μ­ ³»ºÎ¿¡ °õÆÎÀÌ µîÀ¸·Î ÀÎÇØ ¼ö¸® µîÀÌ ÇÊ¿äÇÒ ¼öµµ ÀÖÀ¸¸ç, º»°ÇÀÌ ¼ÒÀçÇÑ ÁöÇÏÃþÀº °è´ÜÀ¸·Î¸¸ Á¢±Ù°¡´ÉÇϸç, ±â°è½ÇÀÌ ¼ÒÀçÇÏ¿© ¼ÒÀ½ ¹× Çϼö³¿»õ µîÀÇ ¹®Á¦°¡ ÀÖ´Â ¹Ù °æ¸ÅÁøÇà ½Ã Âü°íÇϽñ⠹ٶ÷.

- º»°ÇÀº °ü¸®»ç¹«¼Ò ޹®°á°ú °ü¸®ºñ°¡ Àå±â°£ ü³³µÇ¾î ÀÖ´Â ¹Ù ÇâÈÄ º»°ÇÀÇ Á¤»ó»ç¿ëÀ» À§Çؼ­´Â ¹Ì³³°ü¸®ºñ¿Í °ü·ÃÇÑ ¹®Á¦°¡ ¹ß»ýÇÒ ¼öµµ ÀÖ´Â ¹Ù °æ¸ÅÁøÇà ½Ã Âü°íÇϽñ⠹ٶó¸ç, ¹Ì³³°ü¸®ºñÀÇ ±Ý¾× ¹× ÀÌ¿Í °ü·ÃÇÑ »çÇ×Àº º°µµ·Î È®ÀÎÇϽñ⠹ٶ÷.
Âü°í
»çÇ×
-Àå±â°£ °ø½Ç»óÅ·μ­ ³»ºÎ¿¡ °õÆÎÀÌ µîÀ¸·Î ÀÎÇØ ¼ö¸® µîÀÌ ÇÊ¿äÇÒ ¼ö ÀÖÀ¸¸ç, º»°Ç ¼ÒÀç ÁöÇÏÃþÀº °è´ÜÀ¸·Î¸¸ Á¢±Ù°¡´ÉÇϸç, ±â°è½ÇÀÌ ¼ÒÀçÇÏ¿© ¼ÒÀ½ ¹× Çϼö³¿»õ µîÀÇ ¹®Á¦°¡ ÀÖÀ» ¼ö ÀÖÀ½ -°ü¸®»ç¹«¼Ò ޹® °á°ú °ü¸®ºñ°¡ Àå±âü³³µÇ¾î Àִ¹٠¹Ì³³°ü¸®ºñ¿¡ °üÇÑ »çÇ×Àº º°µµ È®ÀÎ ÇÊ¿äÇÔ -¹Ì³³°ü¸®ºñ ¹× Àå±â°£ °ø½Ç»óÅ¿¡ ´ëÇÏ¿© 乫ÀÚ °â ¼ÒÀ¯ÀÚÀÇ Àǰ߼­ Á¦ÃâÀÖÀ½(¸Å°¢¹°°Ç¸í¼¼¼­ ÷ºÎ Àǰ߼­ Âü°í)
¼ÒÀç : »ïô½Ã ´çÀúµ¿ »ïô°íµîÇб³ ³²µ¿Ãø Àαٿ¡ À§Ä¡ÇÔ. ÇöȲ : º»°ÇÀº »ïô½Ã Áß¾Ó·Î 214, ÇöÁøºôµù ÁöÇÏÃþ 101È£·Î »ó°¡°Ç¹°ÀÓ´ëÂ÷ Çö Ȳ¼­ ¹× ÀüÀÔ¼¼´ëÈ®Àμ­»ó¿¡ ÀÓÂ÷ÀÎÀº ¾øÀ½. ÇöÀå¿¡ ÇöÁøºôµù °ü¸®¼ÒÀåÀ» ¸¸³ª È®ÀÎÇѹ٠ÁöÇÏÃþ 101È£ ³»ºÎ¿¡´Â Áý±â ¹× ºñǰÀÌ ÀÏü ¼ÒÀçÇÏÁö ¾Ê´Â °ø½ÇÀ̸ç Çö Á¡À¯ÀÚµµ ¾ø´Ù°í ÇÔ.

°ÇÃ๰ÇöȲ

¼ÒÀçÁö °­¿øÆ¯º°ÀÚÄ¡µµ »ïô½Ã ³²¾çµ¿ 332¹øÁö
´ëÁö¸éÀû 567.4§³
(171.94Æò)
¿¬¸éÀû 4143.24§³
(1255.53Æò)
°ÇÃà¸éÀû 450.27§³
(136.45Æò)
¿ëÀû·ü»êÁ¤
¿¬¸éÀû
3785.18§³
(1147.02Æò)
°ÇÆóÀ² 79.36% ¿ëÀû·ü 667.11%
Áö»óÃþ¼ö 10Ãþ ÁöÇÏÃþ¼ö 1Ãþ
ÁÖ¿ëµµ ¾÷¹«½Ã¼³ ±¸Á¶ ö±ÙÄÜÅ©¸®Æ®±¸Á¶
Âø°øÀÏÀÚ »ç¿ë½ÂÀÎÀÏÀÚ 1996.01.12
°ÇÃ๰Ãþº°ÇöȲ [º¸±â]


µî±âºÎµîº» ¿ä¾à(°Ç¹°)

  Á¢¼öÀÏÀÚ µî±â¸ñÀû/±Ç¸®ÀÚ ±Ç¸®±Ý¾× ±âÁØ
1 2017³â5¿ù4ÀÏ
¼ÒÀ¯±Ç
(OOOO
¼Ò¸ê
2 2025³â4¿ù17ÀÏ
°­Á¦°æ¸Å
±èOO
¼Ò¸ê±âÁØ

ÀÓÂ÷ÀÎÇöȲ (¹è´ç¿ä±¸Á¾±âÀÏ: 2025-07-17)


Á¶»çµÈ ÀÓÂ÷³»¿ªÀÌ ¾ø½À´Ï´Ù


¿©ÀÇÁÖ°æ¸Å Á¶¾ð ÇÑ ¸¶µð


ÁÖÀÇ»çÇ× (ÃÖ¼±¼øÀ§ ¼³Á¤ÀÏ: 2025.4.17.°æ¸Å°³½Ã°áÁ¤ ¼³Á¤)

¸Å°¢À¸·Î ¼Ò¸êµÇÁö ¾Ê´Â µî±âºÎ±Ç¸®: ÇØ´ç»çÇ×¾øÀ½
¸Å°¢À¸·Î ¼³Á¤µÈ °ÍÀ¸·Î º¸´Â Áö»ó±Ç: ÇØ´ç»çÇ×¾øÀ½
-Àå±â°£ °ø½Ç»óÅ·μ­ ³»ºÎ¿¡ °õÆÎÀÌ µîÀ¸·Î ÀÎÇØ ¼ö¸® µîÀÌ ÇÊ¿äÇÒ ¼ö ÀÖÀ¸¸ç, º»°Ç ¼ÒÀç ÁöÇÏÃþÀº °è´ÜÀ¸·Î¸¸ Á¢±Ù°¡´ÉÇϸç, ±â°è½ÇÀÌ ¼ÒÀçÇÏ¿© ¼ÒÀ½ ¹× Çϼö³¿»õ µîÀÇ ¹®Á¦°¡ ÀÖÀ» ¼ö ÀÖÀ½ -°ü¸®»ç¹«¼Ò ޹® °á°ú °ü¸®ºñ°¡ Àå±âü³³µÇ¾î Àִ¹٠¹Ì³³°ü¸®ºñ¿¡ °üÇÑ »çÇ×Àº º°µµ È®ÀÎ ÇÊ¿äÇÔ -¹Ì³³°ü¸®ºñ ¹× Àå±â°£ °ø½Ç»óÅ¿¡ ´ëÇÏ¿© 乫ÀÚ °â ¼ÒÀ¯ÀÚÀÇ Àǰ߼­ Á¦ÃâÀÖÀ½(¸Å°¢¹°°Ç¸í¼¼¼­ ÷ºÎ Àǰ߼­ Âü°í)
¡Ø¹Ì³³°ü¸®ºñ(°ø¿ë) Àμö¿©ºÎ¸¦ ÀÔÂû Àü¿¡ È®ÀÎÇϽñ⠹ٶø´Ï´Ù

 

Áö¿ªºÐ¼®

ÁöÇÏö¸í Á÷¼±°Å¸®

Çб³¸í ÀüÈ­¹øÈ£ ÁÖ¼Ò Á÷¼±°Å¸®

¹ý¿ø

ÃáõÁö¹æ¹ý¿ø °­¸ªÁö¿ø (254-63)°­¿øµµ °­¸ª½Ã µ¿ÇØ´ë·Î 3288-18 (³­°îµ¿)
´ëÇ¥ : 033)640-1000, ¾ß°£ : 033)640-1199
°üÇÒÁö¿ª : °­¸ª½Ã, µ¿ÇؽÃ, »ïô½Ã

µî±â¼Ò ÃáõÁö¹æ¹ý¿ø º»¿ø »ïôµî±â¼Ò (´ëÇ¥:1544-0773, ÆÑ½º:(033)574-6798, °­¿øµµ »ïô½Ã û¼®·Î3±æ 16-17 (±³µ¿ 737))
¼¼¹«¼­ »ïô¼¼¹«¼­ (´ëÇ¥:033-570-02, ÆÑ½º:033-574-5788, °­¿øµµ »ïô½Ã ±³µ¿·Î 148 (±³µ¿))

Àαٳ«ÂûÅë°è

±â°£ ¸Å°¢°Ç¼ö Æò±Õ°¨Á¤°¡
Æò±Õ¸Å°¢°¡
¸Å°¢°¡À²
Æò±ÕÀ¯Âû¼ö
3°³¿ù 0°Ç 0¿ø
0¿ø
0%
0ȸ
6°³¿ù 0°Ç 0¿ø
0¿ø
0%
0ȸ
12°³¿ù 0°Ç 0¿ø
0¿ø
0%
0ȸ


º» °æ¸ÅÁ¤º¸´Â ¹ý¿øÀÚ·á¿Í ÀÏÄ¡Çϵµ·Ï ÇÏ¿´À¸³ª ±Ç¸®»çÇ׺¯µ¿, ÀÔ·ÂÂø¿À µîÀÇ ¿øÀÎÀ¸·Î »ç½Ç°ú ´Ù¸¦ ¼ö ÀÖ½À´Ï´Ù. ÀÌ¿ë¾à°ü¿¡ ÀǰЏéÃ¥Á¶°ÇÀ¸·Î Á¦°øµÊÀ» ¾Ë¸®¸ç, °æ¸ÅÀÔÂû½Ã ¹Ýµå½Ã °ü·Ã °øºÎ¸¦ ÀçÈ®ÀÎÇϽñ⠹ٶø´Ï´Ù. º¸´Ù Æí¸®ÇÑ °æ¸ÅÁ¤º¸ Á¦°øÀ» À§ÇØ Áö¼ÓÀûÀ¸·Î °³¼±ÇϰڽÀ´Ï´Ù. ÀÌ¿ëÇØ Áּż­ °¨»çÇÕ´Ï´Ù.