·Î±×ÀÎ
1387
´Ù¼¼´ë(ºô¶ó)
¼ö¿øÁö¹æ¹ý¿ø ¼º³²Áö¿ø
 °¨Á¤°¡135,000,000 ¿ø
 ÃÖÀú°¡(34%) 46,305,000 ¿ø
 º¸Áõ±Ý(10%) 4,630,500 ¿ø
 Ã»±¸¾×195,000,000 ¿ø
°æ±âµµ ±¤Áֽà ÃßÀÚµ¿ 462-22 ±×·£µåºô 102µ¿ 2Ãþ202È£
»ç°Ç¹øÈ£ 2025Ÿ°æ51947
°æ¸ÅÁ¾·ùºÎµ¿»ê°­Á¦°æ¸Å
¸Å°¢´ë»óÅäÁö ¹× °Ç¹°Àϰý ¸Å°¢
¸Å°¢±âÀÏ    2026.04.06(¿ù) 10:00 ÀÔÂû 5ÀÏÀü    
ÅäÁö¸éÀû60.74§³(18.37 Æò)
°Ç¹°¸éÀû66.64§³(20.16 Æò)
乫/¼ÒÀ¯ÀÚ±èOO / ±èOO
ä±ÇÀÚÁÖOOOOOOO
ÆäÀ̽ººÏ Æ®À§ÅÍ ±¸±Û+
īī¿À½ºÅ丮
īī¿ÀÅå sms¹®ÀÚº¸³»±â
 

±âÀϳ»¿ª

°æ°ú ³¯Â¥ Àú°¨ ÃÖÀú°¡ °á°ú
Á¢¼öÀÏ 2025-04-04 °æ¸ÅÁ¢¼ö
~11ÀÏ 
2025-04-15 °æ¸Å°³½Ã°áÁ¤
~87ÀÏ 
2025-06-30 ¹è´ç¿ä±¸Á¾±âÀÏ
~255ÀÏ 
2025-12-15 100%
135,000,000
À¯Âû
~297ÀÏ 
2026-01-26 70%
94,500,000
À¯Âû
~329ÀÏ 
2026-02-27 49%
66,150,000
À¯Âû
~367ÀÏ 
2026-04-06 34%
46,305,000
ÁøÇà
¹°°Ç¸í¼¼¼­ ÇöȲÁ¶»ç¼­ ¹®°ÇÁ¢¼ö ¼Û´Þ³»¿ª

°¨Á¤Æò°¡ÇöȲ

¸ñ·Ï ÁÖ¼Ò ±¸Á¶/¿ëµµ/´ëÁö±Ç ¸éÀû ºñ°í
´ëÁö±Ç
ÃßÀÚµ¿ 462-22 487ºÐÀÇ 60.7428 60.7428 §³
(18.37Æò)
°Ç¹°
ÃßÀÚµ¿ 462-22 102µ¿ 2Ãþ202È£ ö±ÙÄÜÅ©¸®Æ®±¸Á¶ 66.64 §³
(20.16Æò)
1) À§Ä¡/°èȹ°ü¸®Áö¿ª/Áö±¸´ÜÀ§°èȹ±¸¿ª/³ë¼±¹ö½ºÁ¤·ùÀå/ö±ÙÄÜÅ©¸®Æ®±¸Á¶/°æ»çÁöºØ ´õº¸±â
°¨Á¤Æò°¡ ¿äÇ×Ç¥
1)À§Ä¡ ¹× ÁÖÀ§È¯°æ
º»°ÇÀº °æ±âµµ ±¤Áֽà ÃßÀÚµ¿ ¼ÒÀç ""¿ÀÆ÷ÃʵîÇб³"" µ¿Ãø Àαٿ¡ À§Ä¡Çϸç, ÁÖÀ§´Â ´Ù¼¼´ë ¹× ¾ÆÆÄÆ®, ±Ù¸°»ýȰ½Ã¼³, °øÀå ¹× Ã¢°í µîÀÌ È¥ÀçÇÏ´Â Áö¿ªÀÓ.
2)±³Åë»óȲ
º»°Ç±îÁö Â÷·® Á¢±Ù °¡´ÉÇϸç, Àαٿ¡ ³ë¼±¹ö½ºÁ¤·ùÀåÀÌ ¼ÒÀçÇÏ´Â µî Àü¹ÝÀûÀÎ ±³Åë¿©°ÇÀº º¸ÅëÀÓ.
3)°Ç¹°ÀÇ ±¸Á¶
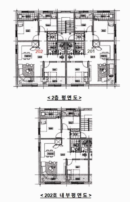
ö±ÙÄÜÅ©¸®Æ®±¸Á¶ °æ»çÁöºØ 4Ãþ °Ç¹° ³» 2Ãþ 202È£·Î¼­,
¿Üº® : µ¹ºÙÀÓ ¸¶°¨ µî
³»º® : º®Áö µµ¹è ¹× ŸÀÏ ºÙÀÓ µî
âȣ : ¼¦½Ã âȣÀÓ.
4)ÀÌ¿ë»óÅÂ
´Ù¼¼´ëÁÖÅÃ(ÈÄ÷ ""³»ºÎ±¸Á¶µµ"" ÂüÁ¶)ÀÓ.
5)¼³ºñ³»¿ª
À§»ý ¹× ±Þ¹è¼ö¼³ºñ, ¼ÒÈ­¼³ºñ, ³­¹æ¼³ºñ µîÀÌ µÇ¾î ÀÖÀ½.
6)ÅäÁöÀÇ Çü»ó ¹× ÀÌ¿ë»óÅÂ
ºÎÁ¤ÇüÀÇ ÅäÁö·Î¼­, ´Ù¼¼´ë °ÇºÎÁöÀÓ.
7)ÀÎÁ¢ µµ·Î»óŵî
´ÜÁö ³» µµ·Î°¡ ¿Ü°û °øµµ¿Í ¿¬°èµÇ¾î ÀÖÀ½.
8)ÅäÁöÀÌ¿ë°èȹ ¹× Á¦ÇÑ»óÅÂ
°èȹ°ü¸®Áö¿ª, ÁְŰ³¹ßÁøÈïÁö±¸, ÁÖ°Å¿ëÁö(ÁÖ°Å¿ëÁö), Áö±¸´ÜÀ§°èȹ±¸¿ª, °¡Ãà»çÀ°Á¦Çѱ¸¿ª<°¡ÃàºÐ´¢ÀÇ °ü¸® ¹× À̿뿡 °üÇÑ ¹ý·ü>, »ó´ëº¸È£±¸¿ª(Çб³È¯°æÀ§»ýÁ¤È­±¸¿ª ¼¼ºÎ³»¿ëÀº ±³À°Ã»¿¡ º°µµ È®Àοä[¿ÀÆ÷Ãʱ³])<±³À°È¯°æ º¸È£¿¡ °üÇÑ ¹ý·ü>, ¹èÃâ½Ã¼³¼³Ä¡Á¦ÇÑÁö¿ª<¹°È¯°æº¸Àü¹ý>, ÀÚ¿¬º¸Àü±Ç¿ª<¼öµµ±ÇÁ¤ºñ°èȹ¹ý>, °øÀå¼³¸³½ÂÀÎÁö¿ª<¼öµµ¹ý>, Ưº°´ëÃ¥Áö¿ª<ȯ°æÁ¤Ã¥±âº»¹ý>ÀÓ.
9)°øºÎ¿ÍÀÇ Â÷ÀÌ
¾øÀ½.
10)±âŸÂü°í»çÇ×(ÀÓ´ë°ü·Ê ¹× ±âŸ)
ÀÓ´ë°ü°è µîÀº ¹Ì»óÀÓ.
Âü°í
»çÇ×
´Ù¼¼´ëÁÖÅÃÀ¸·Î ÀÌ¿ëÁßÀÓ.

°ÇÃ๰ÇöȲ

¼ÒÀçÁö °æ±âµµ ±¤Áֽà ÃßÀÚµ¿ 462-22¹øÁö
´ëÁö¸éÀû 487§³
(147.58Æò)
¿¬¸éÀû 583.68§³
(176.87Æò)
°ÇÃà¸éÀû 187.2§³
(56.73Æò)
¿ëÀû·ü»êÁ¤
¿¬¸éÀû
583.68§³
(176.87Æò)
°ÇÆóÀ² 38.44% ¿ëÀû·ü 119.85%
Áö»óÃþ¼ö 4Ãþ ÁöÇÏÃþ¼ö  
ÁÖ¿ëµµ °øµ¿ÁÖÅà ±¸Á¶ ö±ÙÄÜÅ©¸®Æ®±¸Á¶
Âø°øÀÏÀÚ 2015.06.29 »ç¿ë½ÂÀÎÀÏÀÚ 2016.01.12
°ÇÃ๰Ãþº°ÇöȲ [º¸±â]


±¹ÅäºÎ½Ç°Å·¡°¡ °æ±âµµ ±¤Áֽà ÃßÀÚµ¿

¡Ü ¸Å¸Å

¸éÀû(§³), ±Ý¾×(¸¸¿ø)

¡Ü Àü¼¼

¸éÀû(§³), ±Ý¾×(¸¸¿ø)

°è¾àÀϰǹ°¸íĪÃþ¿¬¸éÀûº¸Áõ±Ý¿ù¼¼°ÇÃà
26.03.13»ï¼º·Î¾â¸Ç¼Ç(Aµ¿)359.882,000702009
26.02.08»ó·ÏŸ¿î(105µ¿)459.9316,0002014
26.02.06ÇØ¿À¸§ÇϿ콺(101µ¿)258.091,000902017
26.01.29±×·£µåºô(103µ¿)166.6513,5002016
26.01.26¿ì¼º(103µ¿)155.8213,5002015
¢Ñ ´õº¸±â

µî±âºÎµîº» ¿ä¾à(°Ç¹°)

  Á¢¼öÀÏÀÚ µî±â¸ñÀû/±Ç¸®ÀÚ ±Ç¸®±Ý¾× ±âÁØ
1 2021³â10¿ù5ÀÏ
¼ÒÀ¯±Ç
±èOO
¼Ò¸ê
2 2021³â12¿ù7ÀÏ
¾Ð·ù
±¹
¼Ò¸ê±âÁØ
3 2023³â12¿ù22ÀÏ
ÀÓÂ÷±Ç¼³Á¤
Á¶OO
195,000,000 ¼Ò¸ê
4 2025³â4¿ù15ÀÏ
°­Á¦°æ¸Å
ÁÖOOOO
¼Ò¸ê
5 2025³â9¿ù3ÀÏ
¾Ð·ù
ºÎOO
¼Ò¸ê
6 2025³â9¿ù15ÀÏ
¾Ð·ù
±¤OO
¼Ò¸ê

ÀÓÂ÷ÀÎÇöȲ (¹è´ç¿ä±¸Á¾±âÀÏ: 2025-06-30)

ÀÓÂ÷ÀÎ ¿ëµµ/Á¡À¯ º¸Áõ±Ý/¿ù¼¼ ´ëÇ×·Â
ÀüÀÔÀÏ/È®Á¤ÀÏ ¹è´ç¿ä±¸ ºñ°í
Á¶OO °Ç¹°ÀüºÎ 195,000,000
O
2021.09.17.
2021.08.30.
2021.09.17.(Á¡À¯°³½ÃÀÏÀÚ)
ÁÖOOOOOOO °Ç¹°ÀüºÎ 195,000,000
O
2021.09.17.
2021.08.30.
2025.6.19. 202109.17.~2024.04.14.
ºñ°í
(¸Å°¢¹°°Ç
¸í¼¼¼­)
Á¶Èñ¼ö: ÀÓÂ÷ÀÎ Á¶Èñ¼ö´Â ÁÖÅÃÀÓÂ÷±ÇÀÚ·Î ÀÓÂ÷±Çµî±âÀÏÀÚ´Â 2023. 12. 22.ÀÓ. ÁÖÅõµ½Ãº¸Áõ°ø»ç: ÀÓÂ÷ÀÎ ÁÖÅõµ½Ãº¸Áõ°ø»ç´Â ÁÖÅÃÀÓ´ëÂ÷º¸È£¹ý Á¦3Á¶ÀÇ2 Á¦7Ç׿¡ ÀÇÇÏ¿© ÀÓÂ÷ÀÎ Á¶Èñ¼öÀÇ ÀÓÂ÷º¸Áõ±Ý(±Ý 195,000,000¿ø)À» ¾ç¼öÇÑ ½Åûä±ÇÀÚ·Î ÈļøÀ§±Ç¸®ÀÚº¸´Ù ¿ì¼±¹è´çÀ» ¹ÞÀ½.

¿©ÀÇÁÖ°æ¸Å Á¶¾ð ÇÑ ¸¶µð

¼±¼øÀ§ ÀÓÂ÷±Çµî±â°¡ µÇ¾î ÀÖ½À´Ï´Ù
´ëÇ×·ÂÀÌ ÀÖ´Â ¼±¼øÀ§ ÀÓÂ÷±Çµî±â ±Ç¸®ÀÚ°¡ ¹è´çÀ» Àü¾× ¹ÞÁö ¸øÇÒ °æ¿ì ³«ÂûÀÚ°¡ ÀÜ¿© º¸Áõ±ÝÀ» ÀμöÇØ¾ßÇÏ´Â °æ¿ìµµ ÀÖ½À´Ï´Ù.

ÁÖÀÇ»çÇ× (ÃÖ¼±¼øÀ§ ¼³Á¤ÀÏ: 2021. 12. 7. ¾Ð·ù ¼³Á¤)

¸Å°¢À¸·Î ¼Ò¸êµÇÁö ¾Ê´Â µî±âºÎ±Ç¸®: ¸Å¼öÀο¡°Ô ´ëÇ×ÇÒ ¼ö ÀÖ´Â À»¼ö ¼øÀ§ 1¹ø ÁÖÅÃÀÓÂ÷±Çµî±â ÀÖÀ½.(ÀÓÂ÷º¸Áõ±Ý:±Ý195,000,000¿ø, Áֹεî·ÏÀÏÀÚ: 2021.09.17, Á¡À¯ °³½ÃÀÏÀÚ: 2021.09.17, È®Á¤ÀÏÀÚ: 2021.08.30.) ¹è´ç¿¡¼­ ÀÓÂ÷º¸Áõ±ÝÀÌ Àü¾× ¹è´çµÇÁö ¾Æ´ÏÇϸé Àܾ×À» ¸Å¼öÀÎÀÌ ÀμöÇÔ.
¸Å°¢À¸·Î ¼³Á¤µÈ °ÍÀ¸·Î º¸´Â Áö»ó±Ç:
2025.04.04 ä±ÇÀÚ ¼Ò¼Û´ë¸®ÀÎ ¹ýOOOOOOOOO ½ÅûÀÌÀ¯ º¯°æ½Åû¼­ Á¦Ãâ
´Ù¼¼´ëÁÖÅÃÀ¸·Î ÀÌ¿ëÁßÀÓ.
¡Ø¹Ì³³°ü¸®ºñ(°ø¿ë) Àμö¿©ºÎ¸¦ ÀÔÂû Àü¿¡ È®ÀÎÇϽñ⠹ٶø´Ï´Ù

 

Áö¿ªºÐ¼®

ÁöÇÏö¸í Á÷¼±°Å¸®

Çб³¸í ÀüÈ­¹øÈ£ ÁÖ¼Ò Á÷¼±°Å¸®

¹ý¿ø

¼ö¿øÁö¹æ¹ý¿ø ¼º³²Áö¿ø (131-43)°æ±âµµ ¼º³²½Ã ¼öÁ¤±¸ »ê¼º´ë·Î 451 (´Ü´ëµ¿)
´ëÇ¥ : 031)737-1558, ¾ß°£ : 031)737-1120
°üÇÒÁö¿ª : ¼º³²½Ã, ±¤ÁÖ½Ã, Çϳ²½Ã

µî±â¼Ò ¼ö¿øÁö¹æ¹ý¿ø ¼º³²Áö¿ø ±¤ÁÖµî±â¼Ò (´ëÇ¥:1544-0773, ÆÑ½º:(031)765-2388, °æ±âµµ ±¤Áֽà ÇàÁ¤Å¸¿î·Î 49-15 (¼ÛÁ¤µ¿ 346-4))
¼¼¹«¼­ °æ±â±¤ÁÖ¼¼¹«¼­ (´ëÇ¥:031-880-92, ÆÑ½º:031-769-0417, °æ±âµµ ±¤Áֽà ¹®È­·Î 127)

Àαٳ«ÂûÅë°è

±â°£ ¸Å°¢°Ç¼ö Æò±Õ°¨Á¤°¡
Æò±Õ¸Å°¢°¡
¸Å°¢°¡À²
Æò±ÕÀ¯Âû¼ö
3°³¿ù 34°Ç 225,235,294¿ø
135,880,084¿ø
60%
4.1ȸ
6°³¿ù 73°Ç 241,282,192¿ø
132,926,290¿ø
56%
3.7ȸ
12°³¿ù 164°Ç 238,162,561¿ø
137,155,953¿ø
58%
3.2ȸ


º» °æ¸ÅÁ¤º¸´Â ¹ý¿øÀÚ·á¿Í ÀÏÄ¡Çϵµ·Ï ÇÏ¿´À¸³ª ±Ç¸®»çÇ׺¯µ¿, ÀÔ·ÂÂø¿À µîÀÇ ¿øÀÎÀ¸·Î »ç½Ç°ú ´Ù¸¦ ¼ö ÀÖ½À´Ï´Ù. ÀÌ¿ë¾à°ü¿¡ ÀǰЏéÃ¥Á¶°ÇÀ¸·Î Á¦°øµÊÀ» ¾Ë¸®¸ç, °æ¸ÅÀÔÂû½Ã ¹Ýµå½Ã °ü·Ã °øºÎ¸¦ ÀçÈ®ÀÎÇϽñ⠹ٶø´Ï´Ù. º¸´Ù Æí¸®ÇÑ °æ¸ÅÁ¤º¸ Á¦°øÀ» À§ÇØ Áö¼ÓÀûÀ¸·Î °³¼±ÇϰڽÀ´Ï´Ù. ÀÌ¿ëÇØ Áּż­ °¨»çÇÕ´Ï´Ù.