·Î±×ÀÎ
75
±Ù¸°»ó°¡
¼ö¿øÁö¹æ¹ý¿ø ¼º³²Áö¿ø
 °¨Á¤°¡1,290,000,000 ¿ø
 ÃÖÀú°¡(100%) 1,290,000,000 ¿ø
 º¸Áõ±Ý(10%) 129,000,000 ¿ø
 Ã»±¸¾×720,000,000 ¿ø
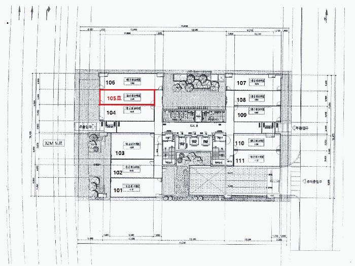
°æ±âµµ Çϳ²½Ã ¸Á¿ùµ¿ 1134-1 ¿¡½ººñºñÁö 1Ãþ105È£
»ç°Ç¹øÈ£ 2025Ÿ°æ51857
°æ¸ÅÁ¾·ùºÎµ¿»êÀÓÀǰæ¸Å
¸Å°¢´ë»óÅäÁö ¹× °Ç¹°Àϰý ¸Å°¢
¸Å°¢±âÀÏ    2025.12.15(¿ù) 10:00 ÀÔÂû 1ÀÏÀü    
ÅäÁö¸éÀû8.59§³(2.60 Æò)
°Ç¹°¸éÀû38.94§³(11.78 Æò)
乫/¼ÒÀ¯ÀÚȲOO / ȲOO
ä±ÇÀÚÄÉOOOOOOOOOOOOOOOOOO(OOOO OOOO)
ÆäÀ̽ººÏ Æ®À§ÅÍ ±¸±Û+
īī¿À½ºÅ丮
īī¿ÀÅå sms¹®ÀÚº¸³»±â
 

±âÀϳ»¿ª

°æ°ú ³¯Â¥ Àú°¨ ÃÖÀú°¡ °á°ú
Á¢¼öÀÏ 2025-03-21 °æ¸ÅÁ¢¼ö
~4ÀÏ 
2025-03-25 °æ¸Å°³½Ã°áÁ¤
~74ÀÏ 
2025-06-03 ¹è´ç¿ä±¸Á¾±âÀÏ
~269ÀÏ 
2025-12-15 100%
1,290,000,000
ÁøÇà
¹°°Ç¸í¼¼¼­ ÇöȲÁ¶»ç¼­ ¹®°ÇÁ¢¼ö ¼Û´Þ³»¿ª

°¨Á¤Æò°¡ÇöȲ

¸ñ·Ï ÁÖ¼Ò ±¸Á¶/¿ëµµ/´ëÁö±Ç ¸éÀû ºñ°í
´ëÁö±Ç
¸Á¿ùµ¿ 1134-1 1308.7ºÐÀÇ 8.59 8.59 §³
(2.60Æò)
°Ç¹°
¸Á¿ùµ¿ 1134-1 1Ãþ105È£ ö±ÙÄÜÅ©¸®Æ®±¸Á¶ 38.94 §³
(11.78Æò)
1) À§Ä¡/µµ½ÃÁö¿ª/Á߽ɻó¾÷Áö¿ª/Áö±¸´ÜÀ§°èȹ±¸¿ª/ÁÖÂ÷Àå/ÁöÇÏö/³ë¼±¹ö½ºÁ¤·ùÀå/ö±ÙÄÜÅ©¸®Æ®±¸Á¶ ´õº¸±â
°¨Á¤Æò°¡ ¿äÇ×Ç¥
1)À§Ä¡ ¹× ÁÖÀ§È¯°æ
º»°ÇÀº °æ±âµµ Çϳ²½Ã ¸Á¿ùµ¿ ¼ÒÀç ¡®5È£¼± ¹Ì»ç¿ª¡¯ ³²µ¿Ãø Àαٿ¡ À§Ä¡ÇÏ´Â ±¸ºÐ
°Ç¹°¡¸¿¡½ººñºñÁö¡¹Á¦1Ãþ Á¦105È£ ·Î¼­ ÁÖÀ§´Â ±Ù¸°»ýȰ½Ã¼³, ¾÷¹«½Ã¼³, ¿ÀÇÇ
½ºÅÚ, ¾ÆÆÄÆ®´ÜÁö µîÀÌ ÀÔÁöÇØ ÀÖ´Â Áö¿ªÀ¸·Î »ó¾÷Áö·Î¼­ ÁÖÀ§È¯°æÀº º¸ÅëÀÎÆíÀÓ.
2)±³Åë»óȲ
º»°Ç±îÁö Â÷·®Á¢±ÙÀÌ ¿ëÀÌÇϰí Àαٿ¡ ³ë¼±¹ö½ºÁ¤·ùÀå ¹× ÁöÇÏö '5È£¼± ¹Ì»ç¿ª'ÀÌ
¼ÒÀçÇÏ¿© Á¦¹Ý ±³Åë»çÁ¤Àº ¾çÈ£ÇÔ.
3)°Ç¹°ÀÇ ±¸Á¶
ö±ÙÄÜÅ©¸®Æ®±¸Á¶ (ö±Ù)ÄÜÅ©¸®Æ®ÁöºØ ÁöÇÏ4Ãþ Áö»ó11Ãþ°Ç ³» Á¦1Ãþ Á¦105È£·Î¼­

¿Üº® : ¾Ë·ç¹Ì´½º¹ÇÕÆÇ³Ú ¹× ÀϺΠġÀå¼®ÀçºÙÀÓ µî
³»º® : ¸ôÅ»À§ ÆäÀÎÆÃ, ¸ÅÀ庰 ÀÎÅ׸®¾î ¸¶°¨ µî
âȣ : °­È­À¯¸® ¸¶°¨ µî.
4)ÀÌ¿ë»óÅÂ
°øºÎ»ó Á¦1Á¾ ±Ù¸°»ýȰ½Ã¼³(¼Ò¸ÅÁ¡)À¸·Î ÇöÀç ¸ÅÁ¡À¸·Î ÀÌ¿ëµÇ°í ÀÖÀ½.
5)¼³ºñ³»¿ª
À§»ý ¹× ±Þ¹è¼ö¼³ºñ, ¿¤¸®º£ÀÌÆ®, È­ÀçŽÁö ¹× °æº¸¼³ºñ, ÁÖÂ÷Àå½Ã¼³, ½ºÇÁ¸µÅ¬·¯¼³ºñ,
¿Á³»¼ÒÈ­Àü¼³ºñ µîÀÌ µÇ¾îÀÖÀ½.
6)ÅäÁöÀÇ Çü»ó ¹× ÀÌ¿ë»óÅÂ
ÀÎÁ¢Áö¿Í µî°íÆòźÇÑ ¼¼ÀåÇüÀÇ ÅäÁö·Î¼­ '¾ö¹«½Ã¼³ ¹× ±Ù¸°»ýȰ½Ã¼³' °ÇºÎÁö·Î
ÀÌ¿ëÁßÀÓ.
7)ÀÎÁ¢ µµ·Î»óŵî
º»°Ç ³²¼­ÃøÀ¸·Î ´ë·Î(Æø¾à 32m), ºÏµ¿ÃøÀ¸·Î(Æø¾à 11m)ÀÇ Æ÷Àåµµ·Î¿Í Á¢ÇÔ.
8)ÅäÁöÀÌ¿ë°èȹ ¹× Á¦ÇÑ»óÅÂ
µµ½ÃÁö¿ª, Á߽ɻó¾÷Áö¿ª, Áö±¸´ÜÀ§°èȹ±¸¿ª(¹Ì»çÁö±¸), ´ë·Î2·ù(Æø 30m~35m)(Á¢ÇÕ),
¼Ò·Î1·ù(Æø 10m~12m)(Á¢ÇÕ), °¡Ãà»çÀ°Á¦Çѱ¸¿ª(ÀüºÎÁ¦ÇÑÁö¿ª), °ø°øÁÖÅÃÁö±¸, ¹èÃâ
½Ã¼³¼³Ä¡Á¦ÇÑÁö¿ª, °ú¹Ð¾ïÁ¦±Ç¿ª, °øÀå¼³¸³Á¦ÇÑÁö¿ªÀÓ.
9)°øºÎ¿ÍÀÇ Â÷ÀÌ
¾ø À½.
10)±âŸÂü°í»çÇ×(ÀÓ´ë°ü·Ê ¹× ±âŸ)
ÀÓ´ë°ü°è µîÀº ¹Ì»óÀÓ.

Âü°í
»çÇ×
Á¦1Á¾ ±Ù¸°»ýȰ½Ã¼³(¼Ò¸ÅÁ¡)·Î ÇöÀç ¸ÅÁ¡À¸·Î ÀÌ¿ëÁßÀÓ.
- ´ë¿ÕÄ«½ºÅ×¶ó `ÇÏ

°ÇÃ๰ÇöȲ

¼ÒÀçÁö °æ±âµµ Çϳ²½Ã ¸Á¿ùµ¿ 1134-1¹øÁö
´ëÁö¸éÀû 1308.7§³
(396.58Æò)
¿¬¸éÀû 12405.17§³
(3759.14Æò)
°ÇÃà¸éÀû 783.4§³
(237.39Æò)
¿ëÀû·ü»êÁ¤
¿¬¸éÀû
7853.59§³
(2379.88Æò)
°ÇÆóÀ² 59.8609% ¿ëÀû·ü 600.1063%
Áö»óÃþ¼ö 11Ãþ ÁöÇÏÃþ¼ö 4Ãþ
ÁÖ¿ëµµ ¾÷¹«½Ã¼³ ±¸Á¶ ö±ÙÄÜÅ©¸®Æ®±¸Á¶
Âø°øÀÏÀÚ 2017.05.26 »ç¿ë½ÂÀÎÀÏÀÚ 2018.10.30
°ÇÃ๰Ãþº°ÇöȲ [º¸±â]


µî±âºÎµîº» ¿ä¾à(°Ç¹°)

  Á¢¼öÀÏÀÚ µî±â¸ñÀû/±Ç¸®ÀÚ ±Ç¸®±Ý¾× ±âÁØ
1 2018³â11¿ù30ÀÏ
¼ÒÀ¯±Ç
ȲOO
¼Ò¸ê
2 2018³â11¿ù30ÀÏ
±ÙÀú´ç±Ç
¼öOOO
720,000,000 ¼Ò¸ê±âÁØ
3 2024³â11¿ù11ÀÏ
°¡¾Ð·ù
·ÔOOOO
18,078,158 ¼Ò¸ê
4 2024³â11¿ù26ÀÏ
°¡¾Ð·ù
¼­OOOO
31,250,000 ¼Ò¸ê
5 2025³â1¿ù8ÀÏ
°¡¾Ð·ù
(OOOO
14,533,956 ¼Ò¸ê
6 2025³â3¿ù6ÀÏ
°¡¾Ð·ù
¼ÒOOOO
6,478,065 ¼Ò¸ê
7 2025³â3¿ù25ÀÏ
ÀÓÀǰæ¸Å
ÄÉOOOO
¼Ò¸ê
8 2025³â4¿ù11ÀÏ
°¡¾Ð·ù
½ÅOOOO
23,965,157 ¼Ò¸ê
9 2025³â10¿ù21ÀÏ
¾Ð·ù
˼OO
¼Ò¸ê

ÀÓÂ÷ÀÎÇöȲ (¹è´ç¿ä±¸Á¾±âÀÏ: 2025-06-03)

ÀÓÂ÷ÀÎ ¿ëµµ/Á¡À¯ º¸Áõ±Ý/¿ù¼¼ ´ëÇ×·Â
ÀüÀÔÀÏ/È®Á¤ÀÏ ¹è´ç¿ä±¸ ºñ°í
ÁÖOOOOOO °Ç¹°ÀüºÎ 50,000,000
[¿ù]3,000,000
X
2023.03.01.
2025.5.8. 2023.02.27.~ÇöÀç±îÁö
ºñ°í
(¸Å°¢¹°°Ç
¸í¼¼¼­)
ÁÖ½Äȸ»ç Çϸ£´ç: ÀÓÂ÷ÀÎ ÁÖ½Äȸ»ç Çϸ£´çÀº »ó°¡°Ç¹°ÀÓ´ëÂ÷ÇöȲ¼­µîº» ¹ÌÁ¦Ãâ·Î »ç¾÷ÀÚµî·Ï½ÅûÀÏÀÚ°¡ ºÒºÐ¸íÇÔ.

¿©ÀÇÁÖ°æ¸Å Á¶¾ð ÇÑ ¸¶µð


ÁÖÀÇ»çÇ× (ÃÖ¼±¼øÀ§ ¼³Á¤ÀÏ: 2018. 11. 30. ±ÙÀú´ç±Ç ¼³Á¤)

¸Å°¢À¸·Î ¼Ò¸êµÇÁö ¾Ê´Â µî±âºÎ±Ç¸®:
¸Å°¢À¸·Î ¼³Á¤µÈ °ÍÀ¸·Î º¸´Â Áö»ó±Ç:
Á¦1Á¾ ±Ù¸°»ýȰ½Ã¼³(¼Ò¸ÅÁ¡)·Î ÇöÀç ¸ÅÁ¡À¸·Î ÀÌ¿ëÁßÀÓ.
¡Ø¹Ì³³°ü¸®ºñ(°ø¿ë) Àμö¿©ºÎ¸¦ ÀÔÂû Àü¿¡ È®ÀÎÇϽñ⠹ٶø´Ï´Ù

 

Áö¿ªºÐ¼®

ÁöÇÏö¸í Á÷¼±°Å¸®

Çб³¸í ÀüÈ­¹øÈ£ ÁÖ¼Ò Á÷¼±°Å¸®

¹ý¿ø

¼ö¿øÁö¹æ¹ý¿ø ¼º³²Áö¿ø (131-43)°æ±âµµ ¼º³²½Ã ¼öÁ¤±¸ »ê¼º´ë·Î 451 (´Ü´ëµ¿)
´ëÇ¥ : 031)737-1558, ¾ß°£ : 031)737-1120
°üÇÒÁö¿ª : ¼º³²½Ã, ±¤ÁÖ½Ã, Çϳ²½Ã

µî±â¼Ò ¼ö¿øÁö¹æ¹ý¿ø ¼º³²Áö¿ø Çϳ²µî±â¼Ò (´ëÇ¥:1544-0773, ÆÑ½º:(031)791-3199, °æ±âµµ Çϳ²½Ã °Ë´Ü·Î 15 (õÇöµ¿ 576-6))
¼¼¹«¼­ °æ±â±¤ÁÖ¼¼¹«¼­ (´ëÇ¥:031-880-92, ÆÑ½º:031-769-0417, °æ±âµµ ±¤Áֽà ¹®È­·Î 127)

Àαٳ«ÂûÅë°è

±â°£ ¸Å°¢°Ç¼ö Æò±Õ°¨Á¤°¡
Æò±Õ¸Å°¢°¡
¸Å°¢°¡À²
Æò±ÕÀ¯Âû¼ö
3°³¿ù 12°Ç 455,833,333¿ø
301,148,333¿ø
74%
2ȸ
6°³¿ù 26°Ç 478,423,077¿ø
295,300,508¿ø
73%
1.7ȸ
12°³¿ù 30°Ç 470,933,333¿ø
298,053,773¿ø
74%
1.6ȸ


º» °æ¸ÅÁ¤º¸´Â ¹ý¿øÀÚ·á¿Í ÀÏÄ¡Çϵµ·Ï ÇÏ¿´À¸³ª ±Ç¸®»çÇ׺¯µ¿, ÀÔ·ÂÂø¿À µîÀÇ ¿øÀÎÀ¸·Î »ç½Ç°ú ´Ù¸¦ ¼ö ÀÖ½À´Ï´Ù. ÀÌ¿ë¾à°ü¿¡ ÀǰЏéÃ¥Á¶°ÇÀ¸·Î Á¦°øµÊÀ» ¾Ë¸®¸ç, °æ¸ÅÀÔÂû½Ã ¹Ýµå½Ã °ü·Ã °øºÎ¸¦ ÀçÈ®ÀÎÇϽñ⠹ٶø´Ï´Ù. º¸´Ù Æí¸®ÇÑ °æ¸ÅÁ¤º¸ Á¦°øÀ» À§ÇØ Áö¼ÓÀûÀ¸·Î °³¼±ÇϰڽÀ´Ï´Ù. ÀÌ¿ëÇØ Áּż­ °¨»çÇÕ´Ï´Ù.