·Î±×ÀÎ
84
´Ù¼¼´ë(ºô¶ó)
ÀÎõÁö¹æ¹ý¿ø
 °¨Á¤°¡76,000,000 ¿ø
 ÃÖÀú°¡(70%) 53,200,000 ¿ø
 º¸Áõ±Ý(10%) 5,320,000 ¿ø
 Ã»±¸¾×93,000,000 ¿ø
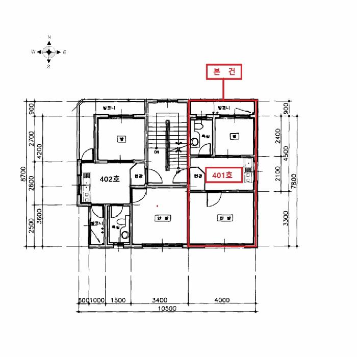
ÀÎõ±¤¿ª½Ã ¹ÌÃßȦ±¸ µµÈ­µ¿ 359-11 4Ãþ401È£
»ç°Ç¹øÈ£ 2025Ÿ°æ507759
°æ¸ÅÁ¾·ùºÎµ¿»ê°­Á¦°æ¸Å
¸Å°¢´ë»óÅäÁö ¹× °Ç¹°Àϰý ¸Å°¢
¸Å°¢±âÀÏ    2026.01.28(¼ö) 10:00 ÀÔÂû 35ÀÏÀü    
ÅäÁö¸éÀû13.56§³(4.10 Æò)
°Ç¹°¸éÀû31.20§³(9.44 Æò)
乫/¼ÒÀ¯ÀÚÀÌOO / ÀÌOO
ä±ÇÀÚ±èOO
ÆäÀ̽ººÏ Æ®À§ÅÍ ±¸±Û+
īī¿À½ºÅ丮
īī¿ÀÅå sms¹®ÀÚº¸³»±â
 

±âÀϳ»¿ª

°æ°ú ³¯Â¥ Àú°¨ ÃÖÀú°¡ °á°ú
Á¢¼öÀÏ 2025-02-21 °æ¸ÅÁ¢¼ö
~3ÀÏ 
2025-02-24 °æ¸Å°³½Ã°áÁ¤
~84ÀÏ 
2025-05-16 ¹è´ç¿ä±¸Á¾±âÀÏ
~297ÀÏ 
2025-12-15 100%
76,000,000
À¯Âû
~341ÀÏ 
2026-01-28 70%
53,200,000
ÁøÇà
¹°°Ç¸í¼¼¼­ ÇöȲÁ¶»ç¼­ ¹®°ÇÁ¢¼ö ¼Û´Þ³»¿ª

°¨Á¤Æò°¡ÇöȲ

¸ñ·Ï ÁÖ¼Ò ±¸Á¶/¿ëµµ/´ëÁö±Ç ¸éÀû ºñ°í
´ëÁö±Ç
µµÈ­µ¿ 359-11 141.5ºÐÀÇ 13.56 13.56 §³
(4.10Æò)
°Ç¹°
µµÈ­µ¿ 359-11 4Ãþ401È£ ö±ÙÄÜÅ©¸®Æ®Á¶ 31.20 §³
(9.44Æò)
1) À§Ä¡/Á¦2Á¾ÀϹÝÁÖ°ÅÁö¿ª/³ë¼±¹ö½ºÁ¤·ùÀå/ö±ÙÄÜÅ©¸®Æ®±¸Á¶/µµ½Ã°¡½º ´õº¸±â
°¨Á¤Æò°¡ ¿äÇ×Ç¥
1)À§Ä¡ ¹× ÁÖÀ§È¯°æ
º»°ÇÀº ÀÎõ±¤¿ª½Ã ¹ÌÃßȦ±¸ µµÈ­µ¿ ¼ÒÀç 'µµÈ­IC' µ¿Ãø Àαٿ¡ À§Ä¡Çϸç, ÁÖÀ§´Â
¾ÆÆÄÆ® ¹× ´Üµ¶ÁÖÅÃ, ´Ù¼¼´ëÁÖÅà µîÀÌ ¼ÒÀçÇÏ´Â Áö¿ªÀ¸·Î¼­ Á¦¹Ý ÁÖÀ§È¯°æÀº º¸ÅëÀÓ.


2)±³Åë»óȲ
º»°Ç±îÁö Â÷·®ÃâÀÔÀÌ °¡´ÉÇϸç, Àαٿ¡ ³ë¼±¹ö½ºÁ¤·ùÀåÀÌ ¼ÒÀçÇÏ´Â µî Á¦¹Ý ±³Åë»óȲÀº
¹«³­ÇÔ.
3)°Ç¹°ÀÇ ±¸Á¶
ö±ÙÄÜÅ©¸®Æ®±¸Á¶ ½½¶óºêÁöºØ 4Ãþ °Ç³» Á¦4Ãþ Á¦401È£·Î¼­,
¿Ü º® : µå¶óÀ̺ñÆ® ¸¶°¨ µî.
³» º® : º®Áöµµ¹è ¹× ÀϺΠŸÀÏ ºÙÀÓ ¸¶°¨ µî.
â È£ : ¼¦½Ã âȣ ¸¶°¨ µîÀÓ.
4)ÀÌ¿ë»óÅÂ
´Ù¼¼´ëÁÖÅÃÀ¸·Î ÀÌ¿ëÁßÀÓ.
5)¼³ºñ³»¿ª
±âº»ÀûÀÎ À§»ý¼³ºñ ¹× ±Þ,¹è¼ö¼³ºñ, ³­¹æ¼³ºñ, µµ½Ã°¡½º¼³ºñ µîÀÌ µÇ¾îÀÖÀ½.
6)ÅäÁöÀÇ Çü»ó ¹× ÀÌ¿ë»óÅÂ
»ç´Ù¸®ÇüÀÇ ÅäÁö·Î¼­ ´Ù¼¼´ëÁÖÅà °ÇºÎÁö·Î ÀÌ¿ëÁßÀÓ.
7)ÀÎÁ¢ µµ·Î»óŵî
º»°Ç ¼­Ãø ¹× ºÏÃøÀ¸·Î °¢°¢ ³ëÆø ¾à8m ³»¿ÜÀÇ µµ·Î¿¡ Á¢ÇÔ.
8)ÅäÁöÀÌ¿ë°èȹ ¹× Á¦ÇÑ»óÅÂ
Á¦2Á¾ÀϹÝÁÖ°ÅÁö¿ª °¡Ãà»çÀ°Á¦Çѱ¸¿ª(ÀÎõ±¤¿ª½Ã ¹ÌÃßȦ±¸ °¡Ãà»çÀ°Á¦ÇÑ¿¡ °üÇÑ Á¶·Ê[2018.
7. 1.])<°¡ÃàºÐ´¢ÀÇ °ü¸® ¹× À̿뿡 °üÇÑ ¹ý·ü>, °ú¹Ð¾ïÁ¦±Ç¿ª<¼öµµ±ÇÁ¤ºñ°èȹ¹ý>

9)°øºÎ¿ÍÀÇ Â÷ÀÌ
¾ø À½.
10)±âŸÂü°í»çÇ×(ÀÓ´ë°ü·Ê ¹× ±âŸ)
ÀÓ´ë°ü°è´Â ¹Ì»óÀÓ.
Âü°í
»çÇ×

º»°ÇÀº ´Üµ¶, ºô¶ó ÁÖ°Å

°ÇÃ๰ÇöȲ

¼ÒÀçÁö ÀÎõ±¤¿ª½Ã ¹ÌÃßȦ±¸ µµÈ­µ¿ 359-11¹øÁö
´ëÁö¸éÀû 141.5§³
(42.88Æò)
¿¬¸éÀû 409.55§³
(124.11Æò)
°ÇÃà¸éÀû 84.35§³
(25.56Æò)
¿ëÀû·ü»êÁ¤
¿¬¸éÀû
327.8§³
(99.33Æò)
°ÇÆóÀ² 59.61% ¿ëÀû·ü 231.66%
Áö»óÃþ¼ö 4Ãþ ÁöÇÏÃþ¼ö 1Ãþ
ÁÖ¿ëµµ °øµ¿ÁÖÅà ±¸Á¶ ö±ÙÄÜÅ©¸®Æ®±¸Á¶
Âø°øÀÏÀÚ 2001.07.13 »ç¿ë½ÂÀÎÀÏÀÚ 2001.11.10
°ÇÃ๰Ãþº°ÇöȲ [º¸±â]


±¹ÅäºÎ½Ç°Å·¡°¡ ÀÎõ±¤¿ª½Ã ¹ÌÃßȦ±¸ µµÈ­µ¿

¡Ü ¸Å¸Å

¸éÀû(§³), ±Ý¾×(¸¸¿ø)

¡Ü Àü¼¼

¸éÀû(§³), ±Ý¾×(¸¸¿ø)

°è¾àÀϰǹ°¸íĪÃþ¿¬¸éÀû´ëÁö±Ý¾×°ÇÃà
24.03.30°í·Áºô¶ó(16-28)237.2924.96,5001991
24.03.29¿ì³²160.6968.87812,5001980
24.03.27¾Æ¿ì¸§355.1239.8312,0002022
24.03.26½Å¼ºµå¸²ºô346.0816.058,2502001
24.03.26¾Æ¿ì¸§455.1239.8312,0002022
¢Ñ ´õº¸±â

µî±âºÎµîº» ¿ä¾à(°Ç¹°)

  Á¢¼öÀÏÀÚ µî±â¸ñÀû/±Ç¸®ÀÚ ±Ç¸®±Ý¾× ±âÁØ
1 2022³â6¿ù2ÀÏ
¼ÒÀ¯±Ç
ÀÌOO
¼Ò¸ê
2 2024³â6¿ù5ÀÏ
¾Ð·ù
±¹
¼Ò¸ê±âÁØ
3 2024³â6¿ù26ÀÏ
ÀÓÂ÷±Ç¼³Á¤
±èOO
93,000,000 ¼Ò¸ê
4 2025³â2¿ù24ÀÏ
°­Á¦°æ¸Å
±èOO
¼Ò¸ê
5 2025³â3¿ù5ÀÏ
¾Ð·ù
±¹OOOO
¼Ò¸ê

ÀÓÂ÷ÀÎÇöȲ (¹è´ç¿ä±¸Á¾±âÀÏ: 2025-05-16)

ÀÓÂ÷ÀÎ ¿ëµµ/Á¡À¯ º¸Áõ±Ý/¿ù¼¼ ´ëÇ×·Â
ÀüÀÔÀÏ/È®Á¤ÀÏ ¹è´ç¿ä±¸ ºñ°í
±èOO ÀüºÎ 93,000,000
O
2022.6.24.
2022.6.7.
2022.6.24.~ÇöÀç±îÁö
ºñ°í
(¸Å°¢¹°°Ç
¸í¼¼¼­)
±èÁø¿µ:°æ¸Å½Åûä±ÇÀÚÀ̰í ÁÖÅÃÀÓÂ÷±Çµî±â±ÇÀڷμ­ ÁÖÅÃÀÓÂ÷±Çµî±âÀÏÀº 2024.6.26.À̰í, ¹è´ç¿ä±¸ÀÏÀÚ´Â °æ¸Å»ç°Ç Á¢¼öÀÏÀÓ.

¿©ÀÇÁÖ°æ¸Å Á¶¾ð ÇÑ ¸¶µð

¼±¼øÀ§ ÀÓÂ÷±Çµî±â°¡ µÇ¾î ÀÖ½À´Ï´Ù
´ëÇ×·ÂÀÌ ÀÖ´Â ¼±¼øÀ§ ÀÓÂ÷±Çµî±â ±Ç¸®ÀÚ°¡ ¹è´çÀ» Àü¾× ¹ÞÁö ¸øÇÒ °æ¿ì ³«ÂûÀÚ°¡ ÀÜ¿© º¸Áõ±ÝÀ» ÀμöÇØ¾ßÇÏ´Â °æ¿ìµµ ÀÖ½À´Ï´Ù.

ÁÖÀÇ»çÇ× (ÃÖ¼±¼øÀ§ ¼³Á¤ÀÏ: 2024.6.5.¾Ð·ù ¼³Á¤)

¸Å°¢À¸·Î ¼Ò¸êµÇÁö ¾Ê´Â µî±âºÎ±Ç¸®: ¸Å¼öÀο¡°Ô ´ëÇ×ÇÒ ¼ö ÀÖ´Â À»±¸9¹ø ÀÓÂ÷±Çµî±â°¡ ÀÖÀ¸¹Ç·Î ¹è´ç¿¡¼­ Àü¾× º¯Á¦µÇÁö ¾Æ´ÏÇϸé Àܾ×À» ¸Å¼öÀÎÀÌ ÀμöÇÔ
¸Å°¢À¸·Î ¼³Á¤µÈ °ÍÀ¸·Î º¸´Â Áö»ó±Ç:
¡Ø¹Ì³³°ü¸®ºñ(°ø¿ë) Àμö¿©ºÎ¸¦ ÀÔÂû Àü¿¡ È®ÀÎÇϽñ⠹ٶø´Ï´Ù

 

Áö¿ªºÐ¼®

ÁöÇÏö¸í Á÷¼±°Å¸®

Çб³¸í ÀüÈ­¹øÈ£ ÁÖ¼Ò Á÷¼±°Å¸®

¹ý¿ø

ÀÎõÁö¹æ¹ý¿ø (222-20)ÀÎõ±¤¿ª½Ã ¹ÌÃßȦ±¸ ¼Ò¼º·Î 163¹ø±æ 17(ÇÐÀ͵¿)
´ëÇ¥ : 032)860-1113~4
°üÇÒÁö¿ª : Áß±¸, µ¿±¸, ³²±¸, ¿¬¼ö±¸, ³²µ¿±¸, ºÎÆò±¸, °è¾ç±¸, ¼­±¸, ¿ËÁø±º, °­È­±º

µî±â¼Ò ÀÎõÁö¹æ¹ý¿ø º»¿ø µî±â±¹ (´ëÇ¥:1544-0773, ÆÑ½º:(032)620-9099, ÀÎõ±¤¿ª½Ã ¹ÌÃßȦ±¸ °æ¿ø´ë·Î 881(Á־ȵ¿ 983))
¼¼¹«¼­ ÀÎõ¼¼¹«¼­ (´ëÇ¥:032-770-02, ÆÑ½º:032-777-8104, ÀÎõ±¤¿ª½Ã µ¿±¸ ¿ì°¢·Î 75 (⿵µ¿))

Àαٳ«ÂûÅë°è

±â°£ ¸Å°¢°Ç¼ö Æò±Õ°¨Á¤°¡
Æò±Õ¸Å°¢°¡
¸Å°¢°¡À²
Æò±ÕÀ¯Âû¼ö
3°³¿ù 16°Ç 151,562,500¿ø
87,332,642¿ø
56%
2.4ȸ
6°³¿ù 36°Ç 163,108,333¿ø
96,460,854¿ø
58%
2.2ȸ
12°³¿ù 46°Ç 161,258,696¿ø
98,177,166¿ø
60%
2.1ȸ


º» °æ¸ÅÁ¤º¸´Â ¹ý¿øÀÚ·á¿Í ÀÏÄ¡Çϵµ·Ï ÇÏ¿´À¸³ª ±Ç¸®»çÇ׺¯µ¿, ÀÔ·ÂÂø¿À µîÀÇ ¿øÀÎÀ¸·Î »ç½Ç°ú ´Ù¸¦ ¼ö ÀÖ½À´Ï´Ù. ÀÌ¿ë¾à°ü¿¡ ÀǰЏéÃ¥Á¶°ÇÀ¸·Î Á¦°øµÊÀ» ¾Ë¸®¸ç, °æ¸ÅÀÔÂû½Ã ¹Ýµå½Ã °ü·Ã °øºÎ¸¦ ÀçÈ®ÀÎÇϽñ⠹ٶø´Ï´Ù. º¸´Ù Æí¸®ÇÑ °æ¸ÅÁ¤º¸ Á¦°øÀ» À§ÇØ Áö¼ÓÀûÀ¸·Î °³¼±ÇϰڽÀ´Ï´Ù. ÀÌ¿ëÇØ Áּż­ °¨»çÇÕ´Ï´Ù.