·Î±×ÀÎ
75
¿ÀÇǽºÅÚ
¼­¿ïÁß¾ÓÁö¹æ¹ý¿ø
 °¨Á¤°¡178,000,000 ¿ø
 ÃÖÀú°¡(80%) 142,400,000 ¿ø
 º¸Áõ±Ý(10%) 14,240,000 ¿ø
 Ã»±¸¾×230,000,000 ¿ø
¼­¿ïƯº°½Ã µ¿ÀÛ±¸ »óµµ1µ¿ 519-1 ´õÆ÷·¹½ºÆ® 2Ãþ203È£
»ç°Ç¹øÈ£ 2025Ÿ°æ102405
°æ¸ÅÁ¾·ùºÎµ¿»ê°­Á¦°æ¸Å
¸Å°¢´ë»óÅäÁö ¹× °Ç¹°Àϰý ¸Å°¢
¸Å°¢±âÀÏ    2026.01.22(¸ñ) 10:00 ÀÔÂû 30ÀÏÀü    
ÅäÁö¸éÀû8.70§³(2.63 Æò)
°Ç¹°¸éÀû12.72§³(3.85 Æò)
乫/¼ÒÀ¯ÀÚ¹®OO / ¹®OO
ä±ÇÀÚÁÖOOOOOOO
ÆäÀ̽ººÏ Æ®À§ÅÍ ±¸±Û+
īī¿À½ºÅ丮
īī¿ÀÅå sms¹®ÀÚº¸³»±â
 

±âÀϳ»¿ª

°æ°ú ³¯Â¥ Àú°¨ ÃÖÀú°¡ °á°ú
Á¢¼öÀÏ 2025-03-18 °æ¸ÅÁ¢¼ö
~3ÀÏ 
2025-03-21 °æ¸Å°³½Ã°áÁ¤
~79ÀÏ 
2025-06-05 ¹è´ç¿ä±¸Á¾±âÀÏ
~268ÀÏ 
2025-12-11 100%
178,000,000
À¯Âû
~310ÀÏ 
2026-01-22 80%
142,400,000
ÁøÇà
¹°°Ç¸í¼¼¼­ ÇöȲÁ¶»ç¼­ ¹®°ÇÁ¢¼ö ¼Û´Þ³»¿ª

°¨Á¤Æò°¡ÇöȲ

¸ñ·Ï ÁÖ¼Ò ±¸Á¶/¿ëµµ/´ëÁö±Ç ¸éÀû ºñ°í
´ëÁö±Ç
»óµµ1µ¿ 519-1 422.5ºÐÀÇ 8.7028 8.7028 §³
(2.63Æò)
°Ç¹°
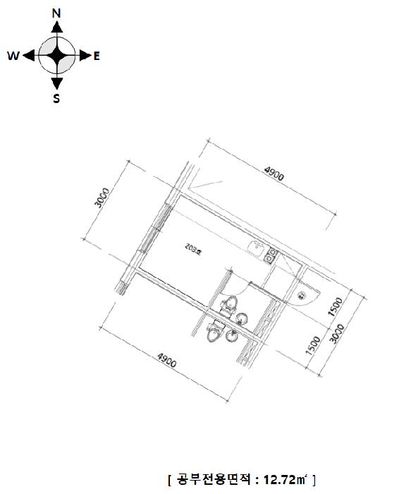
»óµµ1µ¿ 519-1 2Ãþ203È£ ö±ÙÄÜÅ©¸®Æ®±¸Á¶ 12.72 §³
(3.85Æò)
1) À§Ä¡/µµ½ÃÁö¿ª/Á¦3Á¾ÀϹÝÁÖ°ÅÁö¿ª/¹ö½ºÁ¤·ùÀå/ÁÖÂ÷Àå/ÁöÇÏö/°£¼±µµ·Î/ö±ÙÄÜÅ©¸®Æ®±¸Á¶/µµ½Ã°¡½º ´õº¸±â
°¨Á¤Æò°¡ ¿äÇ×Ç¥
1)À§Ä¡ ¹× ÁÖÀ§È¯°æ
º»°ÇÀº ¼­¿ïƯº°½Ã µ¿ÀÛ±¸ »óµµ1µ¿ ¼ÒÀç '¼­¿ï°­³²ÃʵîÇб³' ¼­Ãø Àαٿ¡ À§Ä¡Çϸç ÁÖÀ§´Â ¾ÆÆÄÆ®, ´Üµ¶ÁÖÅÃ, ´Ù¼¼´ëÁÖÅà ¹× ±Ù¸°»ýȰ½Ã¼³ µîÀÌ È¥ÀçµÈ ÁÖ°ÅÁö´ëÀÓ.
2)±³Åë»óȲ
º»°Ç±îÁö Â÷·® ÁøÃâÀÔÀÌ °¡´ÉÇϰí Àα٠°£¼±µµ·Îº¯¿¡ ¹ö½ºÁ¤·ùÀå ¹× ÁöÇÏö 7È£¼± '»óµµ¿ª'ÀÌ ¼ÒÀçÇÔ.
3)°Ç¹°ÀÇ ±¸Á¶
ö±ÙÄÜÅ©¸®Æ®±¸Á¶ Æò½½¶óºêÁöºØ Áö»ó 9Ãþ °Ç¹° ³» 2Ãþ 203È£·Î¼­,
(»ç¿ë½ÂÀÎÀÏ : 2021.12.10.)

¿Üº® : ¼®ÀçŸÀϺÙÀÓ ¸¶°¨ µî
âȣ : ¼¦½Ã âȣ ¸¶°¨ µîÀÓ.
4)ÀÌ¿ë»óÅÂ
¿ÀÇǽºÅÚ·Î ÀÌ¿ëÁßÀÓ.
5)¼³ºñ³»¿ª
À§»ý ¹× ±Þ.¹è¼ö¼³ºñ, ½Â°­±â¼³ºñ, µµ½Ã°¡½º¿¡ ÀÇÇÑ ³­¹æ¼³ºñ, ±â°è½Ç ÁÖÂ÷Àå µîÀÌ ±¸ºñµÇ¾î ÀÖÀ½.
6)ÅäÁöÀÇ Çü»ó ¹× ÀÌ¿ë»óÅÂ
»ç´Ù¸®ÇüÀÇ ÅäÁö·Î¼­ ¾÷¹«½Ã¼³(¿ÀÇǽºÅÚ) °ÇºÎÁö·Î ÀÌ¿ëÁßÀÓ.
7)ÀÎÁ¢ µµ·Î»óŵî
º»°Ç ³²µ¿ÃøÀ¸·Î ¾à 4¹ÌÅÍ ³»¿ÜÀÇ Æ÷Àåµµ·Î¿¡ Á¢ÇÔ.
8)ÅäÁöÀÌ¿ë°èȹ ¹× Á¦ÇÑ»óÅÂ
µµ½ÃÁö¿ª , Á¦3Á¾ÀϹÝÁÖ°ÅÁö¿ª , µµ·Î(ÀúÃË), °¡Ãà»çÀ°Á¦Çѱ¸¿ª<°¡ÃàºÐ´¢ÀÇ °ü¸® ¹× À̿뿡
°üÇÑ ¹ý·ü>, »ó´ëº¸È£±¸¿ª(2015-05-21)(ÀÚ¼¼ÇÑ »çÇ×Àº °üÇÒ ±³À°Ã» ¹®ÀÇ<±³À°È¯°æ º¸È£¿¡
°üÇÑ ¹ý·ü£¾, »ó´ëº¸È£±¸¿ª(ÀÚ¼¼ÇÑ »çÇ×Àº µ¿ÀÛ±³À°Áö¿øÃ»À¸·Î ¹®ÀÇ)<±³À°È¯°æ º¸È£¿¡ °üÇÑ
¹ý·ü>, ´ë°ø¹æ¾îÇùÁ¶±¸¿ª(À§Å¹°íµµ:77-257m)<±º»ç±âÁö ¹× ±º»ç½Ã¼³ º¸È£¹ý>,
°ú¹Ð¾ïÁ¦±Ç<¼öµµ±ÇÁ¤ºñ°èȹ¹ý>, (ÇѰ­)Æó±â¹°¸Å¸³½Ã¼³ ¼³Ä¡Á¦ÇÑÁö¿ª<ÇѰ­¼ö°è
»ó¼ö¿ø¼öÁú°³¼± ¹× ÁÖ¹ÎÁö¿ø µî¿¡ °üÇÑ ¹ý·ü>, °ÇÃ༱(2019-04-11)(µµ·Î°æ°è¼±¿¡¼­
3¹ÌÅÍÈÄÅð, µ¿ÀÛ±¸°í½Ã Á¦2019-30È£(2019.4.11.), ¼¼ºÎ»çÇ× °ÇÃà°ú¹®ÀÇ, <Ãß°¡±âÀç>°ÇÃà¹ý
Á¦2Á¶Á¦1Ç×Á¦11È£³ª¸ñ¿¡ µû¸¥ µµ·Î(µµ·ÎÀÏºÎÆ÷ÇÔ).
9)°øºÎ¿ÍÀÇ Â÷ÀÌ
¾øÀ½.
10)±âŸÂü°í»çÇ×(ÀÓ´ë°ü·Ê ¹× ±âŸ)
-.

°ÇÃ๰ÇöȲ

¼ÒÀçÁö ¼­¿ïƯº°½Ã µ¿ÀÛ±¸ »óµµ1µ¿ 519-1¹øÁö
´ëÁö¸éÀû 420.56§³
(127.44Æò)
¿¬¸éÀû 1284.66§³
(389.29Æò)
°ÇÃà¸éÀû 200.19§³
(60.66Æò)
¿ëÀû·ü»êÁ¤
¿¬¸éÀû
1049.12§³
(317.92Æò)
°ÇÆóÀ² 47.6% ¿ëÀû·ü 249.46%
Áö»óÃþ¼ö 9Ãþ ÁöÇÏÃþ¼ö 1Ãþ
ÁÖ¿ëµµ ¾÷¹«½Ã¼³ ±¸Á¶ ö±ÙÄÜÅ©¸®Æ®±¸Á¶
Âø°øÀÏÀÚ 2021.03.29 »ç¿ë½ÂÀÎÀÏÀÚ 2021.12.10
°ÇÃ๰Ãþº°ÇöȲ [º¸±â]


±¹ÅäºÎ½Ç°Å·¡°¡ ¼­¿ïƯº°½Ã µ¿ÀÛ±¸ »óµµ1µ¿

¡Ü ¸Å¸Å

¸éÀû(§³), ±Ý¾×(¸¸¿ø)

¡Ü Àü¼¼

¸éÀû(§³), ±Ý¾×(¸¸¿ø)

°è¾àÀϰǹ°¸íĪÃþÀü¿ëº¸Áõ±Ý¿ù¼¼°ÇÃà
25.10.31´õÆ÷·¹½ºÆ®211.99300702021
25.08.21´õÆ÷·¹½ºÆ®311.59300752021
25.07.24´õÆ÷·¹½ºÆ®311.99300752021
25.02.03´õÆ÷·¹½ºÆ®311.99300752021
24.11.11´õÆ÷·¹½ºÆ®311.99300752021
¢Ñ ´õº¸±â

µî±âºÎµîº» ¿ä¾à(°Ç¹°)

  Á¢¼öÀÏÀÚ µî±â¸ñÀû/±Ç¸®ÀÚ ±Ç¸®±Ý¾× ±âÁØ
1 2022³â5¿ù19ÀÏ
¼ÒÀ¯±Ç
¹®OO
¼Ò¸ê
2 2022³â5¿ù19ÀÏ
¾àÁ¤/±ÝÁö»çÇ×/ȯ¸ÅƯ¾à
Àμö
3 2023³â9¿ù14ÀÏ
ÀÓÂ÷±Ç¼³Á¤
±èOO
230,000,000 Àμö
4 2023³â9¿ù15ÀÏ
¾Ð·ù
±¹
¼Ò¸ê±âÁØ
5 2023³â10¿ù17ÀÏ
°¡¾Ð·ù
ÁÖOOOO
1,023,000,000 ¼Ò¸ê
6 2025³â3¿ù24ÀÏ
°­Á¦°æ¸Å
ÁÖOOOO
¼Ò¸ê

ÀÓÂ÷ÀÎÇöȲ (¹è´ç¿ä±¸Á¾±âÀÏ: 2025-06-05)

ÀÓÂ÷ÀÎ ¿ëµµ/Á¡À¯ º¸Áõ±Ý/¿ù¼¼ ´ëÇ×·Â
ÀüÀÔÀÏ/È®Á¤ÀÏ ¹è´ç¿ä±¸ ºñ°í
±èOO 203È£ÀüºÎ 230,000,000
O
2022.05.19.
2022.04.28.
2022.05.19.
¹ÚOO
X
2024.09.19
¹Ì»ó
ÁÖOOOOOOO 203È£ÀüºÎ 230,000,000
O
2022.05.19
2022.04.28
2025.5.28. 2022.05.19
ºñ°í
(¸Å°¢¹°°Ç
¸í¼¼¼­)
ÁÖÅõµ½Ãº¸Áõ°ø»ç:°æ¸Å½Åûä±ÇÀÚ·Î ÀÓÂ÷ÀÎ ±è´ÙºóÀÇ ÀÓÂ÷º¸Áõ±Ý¹Ýȯä±Ç ¾ç¼öÀÎÀÓ(´ëÇ׷¹׿켱º¯Á¦±Ç ½Â°è)

¿©ÀÇÁÖ°æ¸Å Á¶¾ð ÇÑ ¸¶µð

¼±¼øÀ§ ÀÓÂ÷±Çµî±â°¡ µÇ¾î ÀÖ½À´Ï´Ù
´ëÇ×·ÂÀÌ ÀÖ´Â ¼±¼øÀ§ ÀÓÂ÷±Çµî±â ±Ç¸®ÀÚ°¡ ¹è´çÀ» Àü¾× ¹ÞÁö ¸øÇÒ °æ¿ì ³«ÂûÀÚ°¡ ÀÜ¿© º¸Áõ±ÝÀ» ÀμöÇØ¾ßÇÏ´Â °æ¿ìµµ ÀÖ½À´Ï´Ù.

ÁÖÀÇ»çÇ× (ÃÖ¼±¼øÀ§ ¼³Á¤ÀÏ: 2023.09.15. ¾Ð·ù ¼³Á¤)

¸Å°¢À¸·Î ¼Ò¸êµÇÁö ¾Ê´Â µî±âºÎ±Ç¸®: ¸Å¼öÀο¡°Ô ´ëÇ×ÇÒ ¼ö ÀÖ´Â À»±¸ 3¹ø ÀÓÂ÷±Çµî±â(ÀÓ´ëÂ÷º¸Áõ±Ý 230,000,000¿ø, ÀüÀÔÀÏÀÚ 2022.05.19. È®Á¤ÀÏÀÚ 2022.04.28.)°¡ ÀÖÀ¸¹Ç·Î ¹è´ç¿¡¼­ Àü¾× º¯Á¦µÇÁö ¾Æ´ÏÇϸé Àܾ×Àº ¸Å¼öÀο¡°Ô ÀμöµÉ ¼ö ÀÖÀ½.
¸Å°¢À¸·Î ¼³Á¤µÈ °ÍÀ¸·Î º¸´Â Áö»ó±Ç:
¡Ø¹Ì³³°ü¸®ºñ(°ø¿ë) Àμö¿©ºÎ¸¦ ÀÔÂû Àü¿¡ È®ÀÎÇϽñ⠹ٶø´Ï´Ù

 

Áö¿ªºÐ¼®

ÁöÇÏö¸í Á÷¼±°Å¸®

Çб³¸í ÀüÈ­¹øÈ£ ÁÖ¼Ò Á÷¼±°Å¸®

¹ý¿ø

¼­¿ïÁß¾ÓÁö¹æ¹ý¿ø (065-94)¼­¿ïƯº°½Ã ¼­Ãʱ¸ ¼­ÃÊÁß¾Ó·Î 157 (¼­Ãʵ¿)
´ëÇ¥ : 02)530-1114, ¾ß°£ : 02)530-1280/536-8003
°üÇÒÁö¿ª : Á¾·Î±¸, Áß±¸, °­³²±¸, ¼­Ãʱ¸, °ü¾Ç±¸, µ¿ÀÛ±¸

µî±â¼Ò ¼­¿ïÁß¾ÓÁö¹æ¹ý¿ø º»¿ø µî±â±¹ (´ëÇ¥:1544-0773, ÆÑ½º:(02)590-1881, ¼­¿ïƯº°½Ã ¼­Ãʱ¸ ¹ý¿ø·Î3±æ 14 (¼­Ãʵ¿ 1707-4))
¼¼¹«¼­ µ¿ÀÛ¼¼¹«¼­ (´ëÇ¥:02-840-920, ÆÑ½º:02-831-4137, ¼­¿ïƯº°½Ã ¿µµîÆ÷±¸ ´ë¹æÃµ·Î 259 (½Å±æµ¿))

Àαٳ«ÂûÅë°è

±â°£ ¸Å°¢°Ç¼ö Æò±Õ°¨Á¤°¡
Æò±Õ¸Å°¢°¡
¸Å°¢°¡À²
Æò±ÕÀ¯Âû¼ö
3°³¿ù 0°Ç 0¿ø
0¿ø
0%
0ȸ
6°³¿ù 1°Ç 151,000,000¿ø
136,744,288¿ø
91%
6ȸ
12°³¿ù 4°Ç 186,750,000¿ø
151,988,822¿ø
84%
3.3ȸ


º» °æ¸ÅÁ¤º¸´Â ¹ý¿øÀÚ·á¿Í ÀÏÄ¡Çϵµ·Ï ÇÏ¿´À¸³ª ±Ç¸®»çÇ׺¯µ¿, ÀÔ·ÂÂø¿À µîÀÇ ¿øÀÎÀ¸·Î »ç½Ç°ú ´Ù¸¦ ¼ö ÀÖ½À´Ï´Ù. ÀÌ¿ë¾à°ü¿¡ ÀǰЏéÃ¥Á¶°ÇÀ¸·Î Á¦°øµÊÀ» ¾Ë¸®¸ç, °æ¸ÅÀÔÂû½Ã ¹Ýµå½Ã °ü·Ã °øºÎ¸¦ ÀçÈ®ÀÎÇϽñ⠹ٶø´Ï´Ù. º¸´Ù Æí¸®ÇÑ °æ¸ÅÁ¤º¸ Á¦°øÀ» À§ÇØ Áö¼ÓÀûÀ¸·Î °³¼±ÇϰڽÀ´Ï´Ù. ÀÌ¿ëÇØ Áּż­ °¨»çÇÕ´Ï´Ù.