·Î±×ÀÎ
103
¿ÀÇǽºÅÚ
ÀÎõÁö¹æ¹ý¿ø
 °¨Á¤°¡172,000,000 ¿ø
 ÃÖÀú°¡(70%) 120,400,000 ¿ø
 º¸Áõ±Ý(10%) 12,040,000 ¿ø
 Ã»±¸¾×94,574,762 ¿ø
ÀÎõ±¤¿ª½Ã ³²µ¿±¸ ¿ëõ·Î153¹ø±æ 75, 2Ãþ201È£ (°£¼®µ¿,³ëºí·¹½º)
ÀÎõ±¤¿ª½Ã ³²µ¿±¸ °£¼®µ¿ 174-23
»ç°Ç¹øÈ£ 2024Ÿ°æ15911
°æ¸ÅÁ¾·ùºÎµ¿»êÀÓÀǰæ¸Å
¸Å°¢´ë»óÅäÁö ¹× °Ç¹°Àϰý ¸Å°¢
¸Å°¢±âÀÏ    2026.01.26(¿ù) 10:00 ÀÔÂû 37ÀÏÀü    
ÅäÁö¸éÀû26.66§³(8.06 Æò)
°Ç¹°¸éÀû74.52§³(22.54 Æò)
乫/¼ÒÀ¯ÀÚÀÌOO / ÀÌOO
ä±ÇÀÚ¼­OOOOOOO
ÆäÀ̽ººÏ Æ®À§ÅÍ ±¸±Û+
īī¿À½ºÅ丮
īī¿ÀÅå sms¹®ÀÚº¸³»±â
 

±âÀϳ»¿ª

°æ°ú ³¯Â¥ Àú°¨ ÃÖÀú°¡ °á°ú
Á¢¼öÀÏ 2024-12-02 °æ¸ÅÁ¢¼ö
~3ÀÏ 
2024-12-05 °æ¸Å°³½Ã°áÁ¤
~100ÀÏ 
2025-03-12 ¹è´ç¿ä±¸Á¾±âÀÏ
~374ÀÏ 
2025-12-11 100%
172,000,000
À¯Âû
~420ÀÏ 
2026-01-26 70%
120,400,000
ÁøÇà
¹°°Ç¸í¼¼¼­ ÇöȲÁ¶»ç¼­ ¹®°ÇÁ¢¼ö ¼Û´Þ³»¿ª

°¨Á¤Æò°¡ÇöȲ

¸ñ·Ï ÁÖ¼Ò ±¸Á¶/¿ëµµ/´ëÁö±Ç ¸éÀû ºñ°í
´ëÁö±Ç
°£¼®µ¿ 174-23 246.1ºÐÀÇ 26.655 26.655 §³
(8.06Æò)
°Ç¹°
°£¼®µ¿ 174-23 2Ãþ201È£ ö±ÙÄÜÅ©¸®Æ®±¸Á¶ 74.5191 §³
(22.54Æò)
1) À§Ä¡/ÀϹݻó¾÷Áö¿ª/ÁöÇÏö/³ë¼±¹ö½ºÁ¤·ùÀå/Â÷·® ÃâÀÔ ¿ëÀÌ/ö±ÙÄÜÅ©¸®Æ®±¸Á¶/Æò½º¶óºêÁöºØ/µµ½Ã°¡½º ´õº¸±â
°¨Á¤Æò°¡ ¿äÇ×Ç¥
1)À§Ä¡ ¹× ÁÖÀ§È¯°æ
º»°ÇÀº ÀÎõ±¤¿ª½Ã ³²µ¿±¸ °£¼®µ¿ ¼ÒÀç "¾à»êÃʵîÇб³" ³²µ¿Ãø Àαٿ¡ À§Ä¡Çϸç, ÁÖÀ§´Â
¾÷¹«½Ã¼³, °øµ¿ÁÖÅÃ, ´Ù¼¼´ëÁÖÅÃ, ÁÖ»ó¿ë °Ç¹° ¹× °¢Á¾ ±Ù¸°»ýȰ½Ã¼³ µîÀ¸·Î Çü¼ºµÈ Áö´ë·Î
¼­, Á¦¹Ý ÁÖÀ§È¯°æÀº ´ëü·Î ¾çÈ£ÇÔ.
2)±³Åë»óȲ
º»°Ç±îÁö Â÷·® ÃâÀÔ ¿ëÀÌÇϸç, Àαٿ¡ ³ë¼±¹ö½ºÁ¤·ùÀå ¹× ÀÎõÁöÇÏö 1È£¼± "°£¼®¿À°Å¸®
¿ª" µîÀÌ ¼ÒÀçÇÏ´Â ¹Ù, Á¦¹Ý ´ëÁß±³Åë»çÁ¤Àº ¾çÈ£ÇÔ.
3)°Ç¹°ÀÇ ±¸Á¶
±¸Á¶ : ö±ÙÄÜÅ©¸®Æ®±¸Á¶ Æò½º¶óºêÁöºØ.

±Ô¸ð : 7Ãþ °Ç¹° ³» Á¦2Ãþ Á¦201È£.

¿Üº® : µå¶óÀ̺ñÆ® µî ¸¶°¨.
âȣ : ÇÏÀ̼¨½Ã âȣ µîÀÓ.
4)ÀÌ¿ë»óÅÂ
¿ÀÇǽºÅÚ·Î ÀÌ¿ëÁßÀÓ.
5)¼³ºñ³»¿ª
±Þ¹è¼ö À§»ý¼³ºñ, ³­¹æ¼³ºñ, µµ½Ã°¡½º, ½Â°­±â ¼³ºñ µî µÇ¾î ÀÖÀ½.
6)ÅäÁöÀÇ Çü»ó ¹× ÀÌ¿ë»óÅÂ
´Ù°¢Çü ÆòÁö·Î¼­ 1°³ µ¿(¿ÀÇǽºÅÚ 4°³ È£, ´Ù¼¼´ëÁÖÅà 8°³È£, ÁÖÂ÷ 9´ë, ¿ëÀû·ü 347.27%) °ÇºÎÁöÀÓ.
7)ÀÎÁ¢ µµ·Î»óŵî
º»°Ç ºÏµ¿ÃøÀ¸·Î ³ëÆø ¾à 8m ³»¿ÜÀÇ Æ÷Àåµµ·Î¿Í Á¢Çϸç, Æ÷Àå»óÅ ¹× °èÅ뼺 µîÀº ¹«³­
ÇÔ.
8)ÅäÁöÀÌ¿ë°èȹ ¹× Á¦ÇÑ»óÅÂ
ÀϹݻó¾÷Áö¿ª, ¹æÈ­Áö±¸, °¡Ãà»çÀ°Á¦Çѱ¸¿ª(2013-03-08)((¹®ÀÇ:³²µ¿±¸È¯°æº¸Àü°ú 032-
453-2343))<°¡ÃàºÐ´¢ÀÇ °ü¸® ¹× À̿뿡 °üÇÑ ¹ý·ü>, »ó´ëº¸È£±¸¿ª(2020-08-11)(¹®ÀÇ: ÀÎ
õµ¿ºÎ±³À°Áö¿øÃ» Æò»ý±³À°°Ç°­°ú 460-6087)<±³À°È¯°æ º¸È£¿¡ °üÇÑ ¹ý·ü>, °ú¹Ð¾ïÁ¦±Ç¿ª
<¼öµµ±ÇÁ¤ºñ°èȹ¹ý> ÀÓ.
9)°øºÎ¿ÍÀÇ Â÷ÀÌ
ÇØ´ç »çÇ× ¾øÀ½.
10)±âŸÂü°í»çÇ×(ÀÓ´ë°ü·Ê ¹× ±âŸ)
ÀÓ´ë°ü°è ¹Ì»óÀÓ.

°ÇÃ๰ÇöȲ

¼ÒÀçÁö ÀÎõ±¤¿ª½Ã ³²µ¿±¸ °£¼®µ¿ 174-23¹øÁö
´ëÁö¸éÀû 246.1§³
(74.58Æò)
¿¬¸éÀû 854.628§³
(258.98Æò)
°ÇÃà¸éÀû 169.4325§³
(51.34Æò)
¿ëÀû·ü»êÁ¤
¿¬¸éÀû
854.628§³
(258.98Æò)
°ÇÆóÀ² 68.847% ¿ëÀû·ü 347.27%
Áö»óÃþ¼ö 7Ãþ ÁöÇÏÃþ¼ö  
ÁÖ¿ëµµ °øµ¿ÁÖÅà ±¸Á¶ ö±ÙÄÜÅ©¸®Æ®±¸Á¶
Âø°øÀÏÀÚ 2014.12.15 »ç¿ë½ÂÀÎÀÏÀÚ 2015.06.18
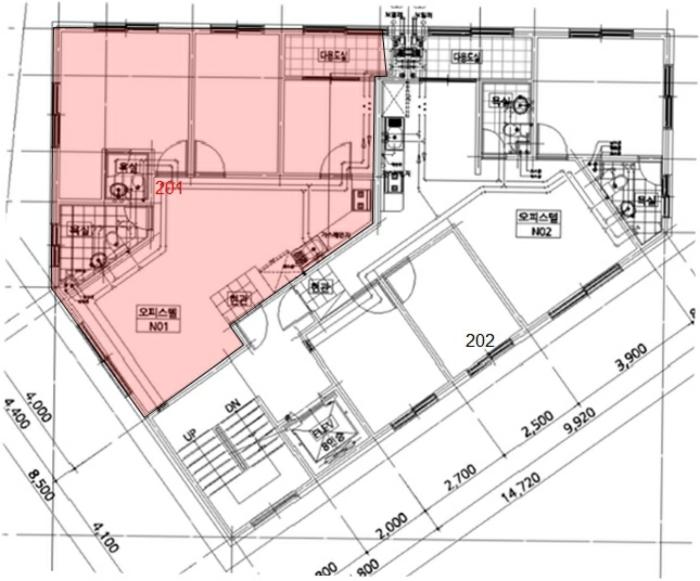
°ÇÃ๰Ãþº°ÇöȲ [º¸±â]


±¹ÅäºÎ½Ç°Å·¡°¡ ÀÎõ±¤¿ª½Ã ³²µ¿±¸ °£¼®µ¿

¡Ü ¸Å¸Å

¸éÀû(§³), ±Ý¾×(¸¸¿ø)

¡Ü Àü¼¼

¸éÀû(§³), ±Ý¾×(¸¸¿ø)

°è¾àÀϰǹ°¸íĪÃþÀü¿ëº¸Áõ±Ý¿ù¼¼°ÇÃà
24.05.25³ëºí·¹½º274.523,000502015

µî±âºÎµîº» ¿ä¾à(°Ç¹°)

  Á¢¼öÀÏÀÚ µî±â¸ñÀû/±Ç¸®ÀÚ ±Ç¸®±Ý¾× ±âÁØ
1 2015³â7¿ù20ÀÏ
¼ÒÀ¯±Ç
ÀÌOO
¼Ò¸ê
2 2015³â7¿ù20ÀÏ
±ÙÀú´ç±Ç
¼­OOOO
138,000,000 ¼Ò¸ê±âÁØ
3 2021³â12¿ù16ÀÏ
±ÙÀú´ç±Ç
(OOOO
15,000,000 ¼Ò¸ê
4 2024³â12¿ù5ÀÏ
ÀÓÀǰæ¸Å
¼­OOOO
¼Ò¸ê
5 2024³â12¿ù30ÀÏ
°¡¾Ð·ù
°­OO
5,873,863 ¼Ò¸ê

ÀÓÂ÷ÀÎÇöȲ (¹è´ç¿ä±¸Á¾±âÀÏ: 2025-03-12)

ÀÓÂ÷ÀÎ ¿ëµµ/Á¡À¯ º¸Áõ±Ý/¿ù¼¼ ´ëÇ×·Â
ÀüÀÔÀÏ/È®Á¤ÀÏ ¹è´ç¿ä±¸ ºñ°í
±èOO ÀüºÎ 30,000,000
[¿ù]500,000
X
2024.06.10.
2024.06.10.
2025.3.12. 2024.06.08.~2026.06.08.

¿©ÀÇÁÖ°æ¸Å Á¶¾ð ÇÑ ¸¶µð


ÁÖÀÇ»çÇ× (ÃÖ¼±¼øÀ§ ¼³Á¤ÀÏ: 2015.07.20. ±ÙÀú´ç±Ç ¼³Á¤)

¸Å°¢À¸·Î ¼Ò¸êµÇÁö ¾Ê´Â µî±âºÎ±Ç¸®:
¸Å°¢À¸·Î ¼³Á¤µÈ °ÍÀ¸·Î º¸´Â Áö»ó±Ç:
¡Ø¹Ì³³°ü¸®ºñ(°ø¿ë) Àμö¿©ºÎ¸¦ ÀÔÂû Àü¿¡ È®ÀÎÇϽñ⠹ٶø´Ï´Ù

 

Áö¿ªºÐ¼®

ÁöÇÏö¸í Á÷¼±°Å¸®

Çб³¸í ÀüÈ­¹øÈ£ ÁÖ¼Ò Á÷¼±°Å¸®

¹ý¿ø

ÀÎõÁö¹æ¹ý¿ø (222-20)ÀÎõ±¤¿ª½Ã ¹ÌÃßȦ±¸ ¼Ò¼º·Î 163¹ø±æ 17(ÇÐÀ͵¿)
´ëÇ¥ : 032)860-1113~4
°üÇÒÁö¿ª : Áß±¸, µ¿±¸, ³²±¸, ¿¬¼ö±¸, ³²µ¿±¸, ºÎÆò±¸, °è¾ç±¸, ¼­±¸, ¿ËÁø±º, °­È­±º

µî±â¼Ò ÀÎõÁö¹æ¹ý¿ø º»¿ø µî±â±¹ (´ëÇ¥:1544-0773, ÆÑ½º:(032)620-9099, ÀÎõ±¤¿ª½Ã ¹ÌÃßȦ±¸ °æ¿ø´ë·Î 881(Á־ȵ¿ 983))
¼¼¹«¼­ ³²ÀÎõ¼¼¹«¼­ (´ëÇ¥:032-460-52, ÆÑ½º:032-463-5778, ÀÎõ±¤¿ª½Ã ³²µ¿±¸ ÀÎÇÏ·Î 548 (±¸¿ùµ¿))

Àαٳ«ÂûÅë°è

±â°£ ¸Å°¢°Ç¼ö Æò±Õ°¨Á¤°¡
Æò±Õ¸Å°¢°¡
¸Å°¢°¡À²
Æò±ÕÀ¯Âû¼ö
3°³¿ù 42°Ç 352,880,952¿ø
298,919,662¿ø
82%
1.6ȸ
6°³¿ù 98°Ç 358,989,796¿ø
299,320,656¿ø
82%
1.6ȸ
12°³¿ù 167°Ç 362,826,347¿ø
300,724,746¿ø
81%
1.5ȸ


º» °æ¸ÅÁ¤º¸´Â ¹ý¿øÀÚ·á¿Í ÀÏÄ¡Çϵµ·Ï ÇÏ¿´À¸³ª ±Ç¸®»çÇ׺¯µ¿, ÀÔ·ÂÂø¿À µîÀÇ ¿øÀÎÀ¸·Î »ç½Ç°ú ´Ù¸¦ ¼ö ÀÖ½À´Ï´Ù. ÀÌ¿ë¾à°ü¿¡ ÀǰЏéÃ¥Á¶°ÇÀ¸·Î Á¦°øµÊÀ» ¾Ë¸®¸ç, °æ¸ÅÀÔÂû½Ã ¹Ýµå½Ã °ü·Ã °øºÎ¸¦ ÀçÈ®ÀÎÇϽñ⠹ٶø´Ï´Ù. º¸´Ù Æí¸®ÇÑ °æ¸ÅÁ¤º¸ Á¦°øÀ» À§ÇØ Áö¼ÓÀûÀ¸·Î °³¼±ÇϰڽÀ´Ï´Ù. ÀÌ¿ëÇØ Áּż­ °¨»çÇÕ´Ï´Ù.