·Î±×ÀÎ
31
´Ù¼¼´ë(ºô¶ó)
¼­¿ï³²ºÎÁö¹æ¹ý¿ø
 °¨Á¤°¡344,000,000 ¿ø
 ÃÖÀú°¡(100%) 344,000,000 ¿ø
 º¸Áõ±Ý(10%) 34,400,000 ¿ø
 Ã»±¸¾×319,000,000 ¿ø
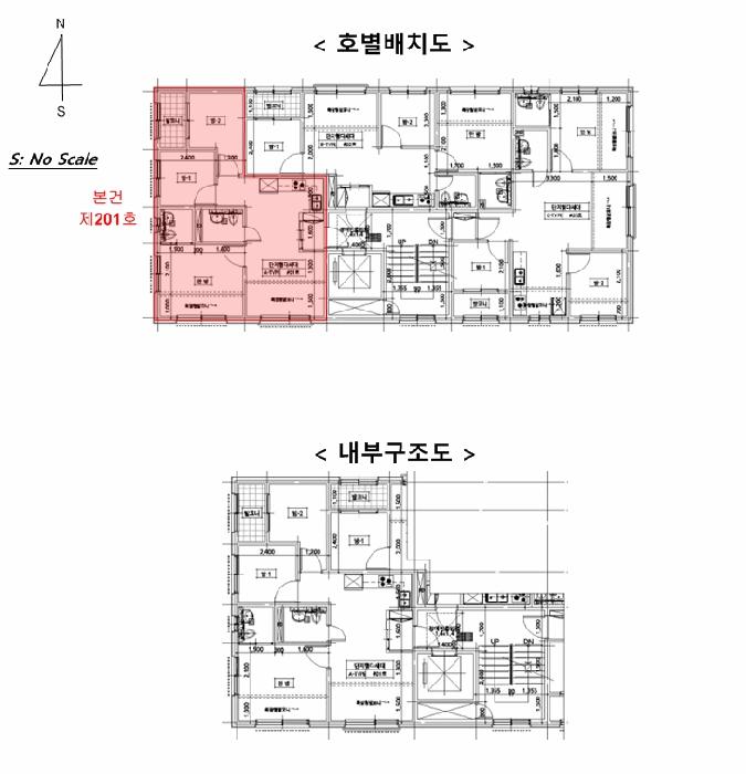
¼­¿ïƯº°½Ã °­¼­±¸ °øÇ×µ¿ 677-6 ¹Ì·¡½ºÅ¸ºô Á¦2Ãþ Á¦201È£
»ç°Ç¹øÈ£ 2025Ÿ°æ9267
°æ¸ÅÁ¾·ùºÎµ¿»ê°­Á¦°æ¸Å
¸Å°¢´ë»óÅäÁö ¹× °Ç¹°Àϰý ¸Å°¢
¸Å°¢±âÀÏ    2025.12.11(¸ñ) 10:00 ÀÔÂû 1ÀÏÀü    
ÅäÁö¸éÀû26.29§³(7.95 Æò)
°Ç¹°¸éÀû41.87§³(12.67 Æò)
乫/¼ÒÀ¯ÀÚ°íOO / °íOO
ä±ÇÀÚÁÖOOOOOOO
ÆäÀ̽ººÏ Æ®À§ÅÍ ±¸±Û+
īī¿À½ºÅ丮
īī¿ÀÅå sms¹®ÀÚº¸³»±â
 

±âÀϳ»¿ª

°æ°ú ³¯Â¥ Àú°¨ ÃÖÀú°¡ °á°ú
Á¢¼öÀÏ 2025-03-24 °æ¸ÅÁ¢¼ö
~1ÀÏ 
2025-03-25 °æ¸Å°³½Ã°áÁ¤
~92ÀÏ 
2025-06-24 ¹è´ç¿ä±¸Á¾±âÀÏ
~262ÀÏ 
2025-12-11 100%
344,000,000
ÁøÇà
¹°°Ç¸í¼¼¼­ ÇöȲÁ¶»ç¼­ ¹®°ÇÁ¢¼ö ¼Û´Þ³»¿ª

°¨Á¤Æò°¡ÇöȲ

¸ñ·Ï ÁÖ¼Ò ±¸Á¶/¿ëµµ/´ëÁö±Ç ¸éÀû ºñ°í
´ëÁö±Ç
°øÇ×µ¿ 677-6 324.7ºÐÀÇ 26.29 26.29 §³
(7.95Æò)
°Ç¹°
°øÇ×µ¿ 677-6 Á¦2Ãþ Á¦201È£ ö±ÙÄÜÅ©¸®Æ®±¸Á¶ 41.87 §³
(12.67Æò)
1) À§Ä¡/µµ½ÃÁö¿ª/Á¦2Á¾ÀϹÝÁÖ°ÅÁö¿ª/¹ö½ºÁ¤·ùÀå/ÁöÇÏö/ö±ÙÄÜÅ©¸®Æ®±¸Á¶/µµ½Ã°¡½º ´õº¸±â
°¨Á¤Æò°¡ ¿äÇ×Ç¥
1)À§Ä¡ ¹× ÁÖÀ§È¯°æ
º»°ÇÀº ¼­¿ïƯº°½Ã °øÇ×µ¿ ¼ÒÀç ""¼­¿ï¼ÛÁ¤ÁßÇб³"" ºÏÃø Àαٿ¡ À§Ä¡Çϸç ÁÖÀ§´Â
´Ù¼¼´ëÁÖÅÃ,±Ù¸°»ýȰ½Ã¼³ µîÀÌ ¼ÒÀçÇÏ´Â µî ÁÖÀ§È¯°æÀº º¸ÅëÀÓ.

2)±³Åë»óȲ
º»°Ç±îÁö Â÷·®ÀÇ ÁøÃâÀÔÀÌ °¡´ÉÇϰí, Àαٿ¡ ¹ö½ºÁ¤·ùÀå ¹× ÁöÇÏö¿ª(5È£¼± '¼ÛÁ¤¿ª')ÀÌ ¼ÒÀçÇÏ´Â µî Á¦¹Ý ±³Åë»óȲÀº ¹«³­ÇÔ.

3)°Ç¹°ÀÇ ±¸Á¶
ö±ÙÄÜÅ©¸®Æ®±¸Á¶ (ö±Ù)ÄÜÅ©¸®Æ®ÁöºØ Áö»ó 6Ãþ °Ç¹° ³» Á¦2Ãþ Á¦201È£·Î¼­,
(»ç¿ë½ÂÀÎÀÏ : 2020.11.04)
- ¿Ü º® : ¼®ÀçºÙÀÓ ¸¶°¨ µî,
- â È£ : ¼¦½Ã âȣ µîÀÓ.

4)ÀÌ¿ë»óÅÂ
µµ½ÃÇü»ýȰÁÖÅÃ(´ÜÁöÇü´Ù¼¼´ë)·Î ÀÌ¿ë ÁßÀÓ.
(ÈÄ÷ ""³»ºÎ±¸Á¶µµ"" ÂüÁ¶)

5)¼³ºñ³»¿ª
À§»ý ¹× ±Þ¹è¼ö¼³ºñ, ½Â°­±â¼³ºñ, È­ÀçŽÁö¼³ºñ, µµ½Ã°¡½º¼³ºñ µîÀÌ ¼³Ä¡µÇ¾î ÀÖÀ½.
6)ÅäÁöÀÇ Çü»ó ¹× ÀÌ¿ë»óÅÂ
ÀÎÁ¢ÇÊÁö ´ëºñ µî°íÆòźÇÑ °¡ÀåÇü ÅäÁö·Î¼­ µµ½ÃÇü»ýȰÁÖÅÃ(´ÜÁöÇü´Ù¼¼´ë)ÀÇ °ÇºÎÁö·Î ÀÌ¿ë ÁßÀÓ.

7)ÀÎÁ¢ µµ·Î»óŵî
º»°Ç ºÏÃøÀ¸·Î °¢ Æø ¾à 6¹ÌÅÍ ³»¿ÜÀÇ Æ÷Àåµµ·Î¿¡ Á¢ÇÔ.

8)ÅäÁöÀÌ¿ë°èȹ ¹× Á¦ÇÑ»óÅÂ
(1)°øÇ×µ¿ 677-6, (2)°øÇ×µ¿ 677-7 °øÈ÷ µµ½ÃÁö¿ª, Á¦2Á¾ÀϹÝÁÖ°ÅÁö¿ª(7ÃþÀÌÇÏ), Áß¿ä½Ã¼³¹°º¸È£Áö±¸(°øÇ×), °¡Ãà»çÀ°Á¦Çѱ¸¿ª(Áö¿ª°æÁ¦°ú È®ÀÎ ¿ä¸Á)<°¡ÃàºÐ´¢ÀÇ °ü¸® ¹× À̿뿡 °üÇÑ ¹ý·ü>, ¼öÆòÇ¥¸é±¸¿ª(¼öÆòÇ¥¸é)<°øÇ׽ü³¹ý>, »ó´ëº¸È£±¸¿ª(2013-11-26)(°­¼­±³À°Áö¿øÃ»¿¡ ¹Ýµå½Ã È®ÀÎ ¿ä¸Á)<±³À°È¯°æ º¸È£¿¡ °üÇÑ ¹ý·ü>, »ó´ëº¸È£±¸¿ª(2016-07-21)(°­¼­±³À°Ã»¿¡ ¹Ýµå½Ã È®Àοä¸Á)<±³À°È¯°æ º¸È£¿¡ °üÇÑ ¹ý·ü>, ´ë°ø¹æ¾îÇùÁ¶±¸¿ª(À§Å¹°íµµ:77-257m)<±º»ç±âÁö ¹× ±º»ç½Ã¼³ º¸È£¹ý>, °ú¹Ð¾ïÁ¦±Ç¿ª<¼öµµ±ÇÁ¤ºñ°èȹ¹ý> µµ½Ã°ü¸®°èȹ ÀÔ¾ÈÁßÀÓ.
9)°øºÎ¿ÍÀÇ Â÷ÀÌ
ÇØ´ç »çÇ× ¾øÀ½.
10)±âŸÂü°í»çÇ×(ÀÓ´ë°ü·Ê ¹× ±âŸ)
ÀÓ´ë ¹Ì»óÀÓ.
Âü°í
»çÇ×
ÀÓÂ÷ÀÎ ¹× ÀÓÂ÷±Ç½Â°èÀÎ ÁÖÅõµ½Ãº¸Áõ°ø»çÀÇ ¸Å¼öÀο¡ ´ëÇÑ ´ëÇ×·Â Æ÷±âÁ¶°Ç ¸Å°¢

°ÇÃ๰ÇöȲ

¼ÒÀçÁö ¼­¿ïƯº°½Ã °­¼­±¸ °øÇ×µ¿ 677-6¹øÁö
´ëÁö¸éÀû 324.7§³
(98.39Æò)
¿¬¸éÀû 633.4§³
(191.94Æò)
°ÇÃà¸éÀû 179.44§³
(54.38Æò)
¿ëÀû·ü»êÁ¤
¿¬¸éÀû
618.805§³
(187.52Æò)
°ÇÆóÀ² 55.26% ¿ëÀû·ü 190.58%
Áö»óÃþ¼ö 6Ãþ ÁöÇÏÃþ¼ö 1Ãþ
ÁÖ¿ëµµ °øµ¿ÁÖÅà ±¸Á¶ ö±ÙÄÜÅ©¸®Æ®±¸Á¶
Âø°øÀÏÀÚ 2020.04.14 »ç¿ë½ÂÀÎÀÏÀÚ 2020.11.04
°ÇÃ๰Ãþº°ÇöȲ [º¸±â]


±¹ÅäºÎ½Ç°Å·¡°¡ ¼­¿ïƯº°½Ã °­¼­±¸ °øÇ×µ¿

¡Ü ¸Å¸Å

¸éÀû(§³), ±Ý¾×(¸¸¿ø)

¡Ü Àü¼¼

¸éÀû(§³), ±Ý¾×(¸¸¿ø)

°è¾àÀϰǹ°¸íĪÃþ¿¬¸éÀû´ëÁö±Ý¾×°ÇÃà
24.03.30¼º°­¿¡ÄÚºô366.7740.362928,0002012
24.03.30·Î¾âÇÏÀÌÃ÷102µ¿344.0625.931,0002017
24.03.25¸®ºê°¡347.63528.2637,0002023
24.03.24¸®ºê°¡247.63528.2640,0002023
24.03.23¼ÛÁ¤ºô¶ó368.6746.1435,0001992
¢Ñ ´õº¸±â

µî±âºÎµîº» ¿ä¾à(°Ç¹°)

  Á¢¼öÀÏÀÚ µî±â¸ñÀû/±Ç¸®ÀÚ ±Ç¸®±Ý¾× ±âÁØ
1 2020³â12¿ù4ÀÏ
¼ÒÀ¯±Ç
°íOO
¼Ò¸ê
2 2022³â9¿ù14ÀÏ
¾Ð·ù
±¹
¼Ò¸ê±âÁØ
3 2022³â12¿ù30ÀÏ
ÀÓÂ÷±Ç¼³Á¤
ÇãOO
319,000,000 ¼Ò¸ê
4 2023³â1¿ù11ÀÏ
°¡¾Ð·ù
ÁÖOOOO
788,000,000 ¼Ò¸ê
5 2025³â3¿ù25ÀÏ
°­Á¦°æ¸Å
ÁÖOOOO
¼Ò¸ê

ÀÓÂ÷ÀÎÇöȲ (¹è´ç¿ä±¸Á¾±âÀÏ: 2025-06-24)

ÀÓÂ÷ÀÎ ¿ëµµ/Á¡À¯ º¸Áõ±Ý/¿ù¼¼ ´ëÇ×·Â
ÀüÀÔÀÏ/È®Á¤ÀÏ ¹è´ç¿ä±¸ ºñ°í
ÁÖOOOOOOO °Ç¹°ÀüºÎ 319,000,000
O
2020.12.04.
2020.11.25.
2025.6.23. 2020.12.04.~
ÇãOO °Ç¹°ÀüºÎ 319,000,000
O
2020.12.04
2020.11.25
2020.12.04 ~
ºñ°í
(¸Å°¢¹°°Ç
¸í¼¼¼­)
ÁÖÅõµ½Ãº¸Áõ°ø»ç:ÁÖÅÃÀÓÂ÷±ÇÀÚ ÇãÁøÈ­ÀÇ ÁöÀ§¸¦ ½Â°èÇÑ ÀÌ »ç°Ç ½Åûä±ÇÀÚ·Î ±Ç¸®½Å°í ¹× ¹è´ç¿ä±¸ÀÏÀº °æ¸Å½ÅûÀÏÀÓ ÇãÁøÈ­:ÁÖÅÃÀÓÂ÷±Ç µî±âÀÏÀº 2022.12.30.ÀÓ

¿©ÀÇÁÖ°æ¸Å Á¶¾ð ÇÑ ¸¶µð


ÁÖÀÇ»çÇ× (ÃÖ¼±¼øÀ§ ¼³Á¤ÀÏ: 2022.9.14. ¾Ð·ù ¼³Á¤)

¸Å°¢À¸·Î ¼Ò¸êµÇÁö ¾Ê´Â µî±âºÎ±Ç¸®:
¸Å°¢À¸·Î ¼³Á¤µÈ °ÍÀ¸·Î º¸´Â Áö»ó±Ç:
Ưº°¸Å°¢Á¶°Ç : ÁÖÅõµ½Ãº¸Áõ°ø»ç´Â ¸Å¼öÀο¡ ´ëÇØ ¹è´ç¹ÞÁö ¸øÇÏ´Â Àܾ׿¡ ´ëÇÑ ÀÓ´ëÂ÷º¸Áõ±Ý ¹Ýȯû±¸±ÇÀ» Æ÷±âÇϰí, ÀÓÂ÷±Ç µî±â¸¦ ¸»¼ÒÇÏ´Â °ÍÀ» Á¶°ÇÀ¸·Î ¸Å°¢
¡Ø¹Ì³³°ü¸®ºñ(°ø¿ë) Àμö¿©ºÎ¸¦ ÀÔÂû Àü¿¡ È®ÀÎÇϽñ⠹ٶø´Ï´Ù

 

Áö¿ªºÐ¼®

ÁöÇÏö¸í Á÷¼±°Å¸®

Çб³¸í ÀüÈ­¹øÈ£ ÁÖ¼Ò Á÷¼±°Å¸®

¹ý¿ø

¼­¿ï³²ºÎÁö¹æ¹ý¿ø (080-88)¼­¿ïƯº°½Ã ¾çõ±¸ ½Å¿ù·Î 386(½ÅÁ¤µ¿)
´ëÇ¥ : 02)2192-1114
°üÇÒÁö¿ª : ¿µµîÆ÷±¸, °­¼­±¸, ¾çõ±¸, ±¸·Î±¸, ±Ýõ±¸

µî±â¼Ò ¼­¿ï³²ºÎÁö¹æ¹ý¿ø º»¿ø µî±â±¹ (´ëÇ¥:1544-0773, ÆÑ½º:(02)2629-7307, ¼­¿ïƯº°½Ã ¿µµîÆ÷±¸ °æÀηΠ772 (¹®·¡µ¿ 1°¡))
¼¼¹«¼­ °­¼­¼¼¹«¼­ (´ëÇ¥:02-2630-42, ÆÑ½º:02-2679-8777, ¼­¿ïƯº°½Ã °­¼­±¸ ¸¶°î¼­1·Î 60 (¸¶°îµ¿))

Àαٳ«ÂûÅë°è

±â°£ ¸Å°¢°Ç¼ö Æò±Õ°¨Á¤°¡
Æò±Õ¸Å°¢°¡
¸Å°¢°¡À²
Æò±ÕÀ¯Âû¼ö
3°³¿ù 324°Ç 262,039,908¿ø
195,298,464¿ø
75%
2.3ȸ
6°³¿ù 583°Ç 261,281,484¿ø
199,148,488¿ø
77%
2.2ȸ
12°³¿ù 1,044°Ç 259,261,474¿ø
200,994,029¿ø
78%
2.3ȸ


º» °æ¸ÅÁ¤º¸´Â ¹ý¿øÀÚ·á¿Í ÀÏÄ¡Çϵµ·Ï ÇÏ¿´À¸³ª ±Ç¸®»çÇ׺¯µ¿, ÀÔ·ÂÂø¿À µîÀÇ ¿øÀÎÀ¸·Î »ç½Ç°ú ´Ù¸¦ ¼ö ÀÖ½À´Ï´Ù. ÀÌ¿ë¾à°ü¿¡ ÀǰЏéÃ¥Á¶°ÇÀ¸·Î Á¦°øµÊÀ» ¾Ë¸®¸ç, °æ¸ÅÀÔÂû½Ã ¹Ýµå½Ã °ü·Ã °øºÎ¸¦ ÀçÈ®ÀÎÇϽñ⠹ٶø´Ï´Ù. º¸´Ù Æí¸®ÇÑ °æ¸ÅÁ¤º¸ Á¦°øÀ» À§ÇØ Áö¼ÓÀûÀ¸·Î °³¼±ÇϰڽÀ´Ï´Ù. ÀÌ¿ëÇØ Áּż­ °¨»çÇÕ´Ï´Ù.