·Î±×ÀÎ
1195
¿ÀÇǽºÅÚ
¼­¿ï³²ºÎÁö¹æ¹ý¿ø
 °¨Á¤°¡168,000,000 ¿ø
 ÃÖÀú°¡(64%) 107,520,000 ¿ø
 º¸Áõ±Ý(10%) 10,752,000 ¿ø
 Ã»±¸¾×184,949,099 ¿ø
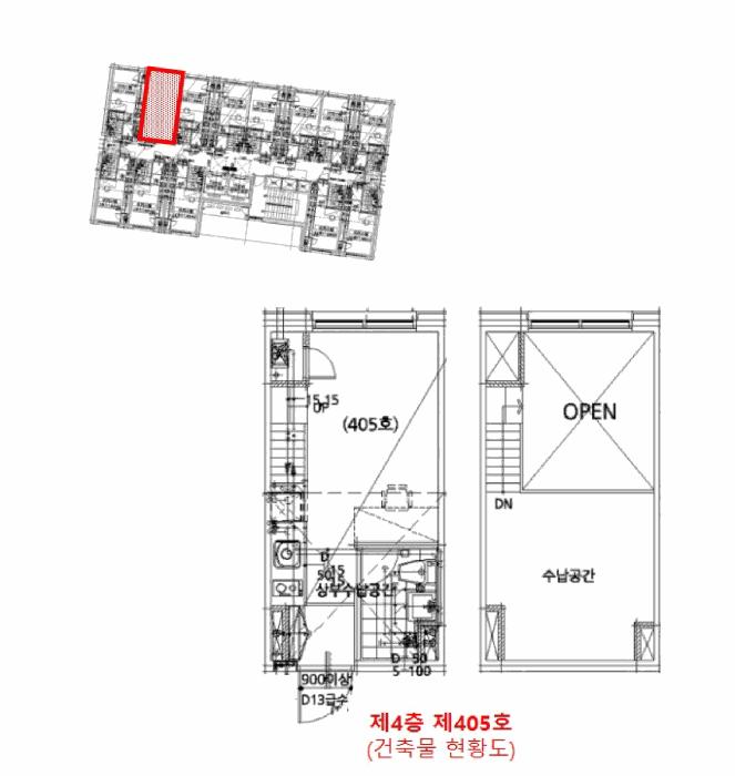
¼­¿ïƯº°½Ã ±Ýõ±¸ µ¶»êµ¿ 151-3 ¿¡½º¿¥º§¸®Ã¼ Á¦4Ãþ Á¦405È£
»ç°Ç¹øÈ£ 2025Ÿ°æ11630
°æ¸ÅÁ¾·ùºÎµ¿»ê°­Á¦°æ¸Å
¸Å°¢´ë»óÅäÁö ¹× °Ç¹°Àϰý ¸Å°¢
¸Å°¢±âÀÏ    2026.03.25(¼ö) 10:00 ÀÔÂû 32ÀÏÀü    
ÅäÁö¸éÀû7.27§³(2.20 Æò)
°Ç¹°¸éÀû17.66§³(5.34 Æò)
乫/¼ÒÀ¯ÀÚ¹ÚOO / ¹ÚOO
ä±ÇÀÚÇÑOOOOOOO
ÆäÀ̽ººÏ Æ®À§ÅÍ ±¸±Û+
īī¿À½ºÅ丮
īī¿ÀÅå sms¹®ÀÚº¸³»±â
 

±âÀϳ»¿ª

°æ°ú ³¯Â¥ Àú°¨ ÃÖÀú°¡ °á°ú
Á¢¼öÀÏ 2025-08-18 °æ¸ÅÁ¢¼ö
~1ÀÏ 
2025-08-19 °æ¸Å°³½Ã°áÁ¤
~93ÀÏ 
2025-11-19 ¹è´ç¿ä±¸Á¾±âÀÏ
~114ÀÏ 
2025-12-10 100%
168,000,000
À¯Âû
~170ÀÏ 
2026-02-04 80%
134,400,000
À¯Âû
~219ÀÏ 
2026-03-25 64%
107,520,000
ÁøÇà
¹°°Ç¸í¼¼¼­ ÇöȲÁ¶»ç¼­ ¹®°ÇÁ¢¼ö ¼Û´Þ³»¿ª

°¨Á¤Æò°¡ÇöȲ

¸ñ·Ï ÁÖ¼Ò ±¸Á¶/¿ëµµ/´ëÁö±Ç ¸éÀû ºñ°í
´ëÁö±Ç
µ¶»êµ¿ 151-3 973.9ºÐÀÇ 7.27 7.27 §³
(2.20Æò)
°Ç¹°
µ¶»êµ¿ 151-3 Á¦4Ãþ Á¦405È£ ö±ÙÄÜÅ©¸®Æ®±¸Á¶ 17.66 §³
(5.34Æò)
1) À§Ä¡/µµ½ÃÁö¿ª/Áذø¾÷Áö¿ª/ÁÖÂ÷Àå/³ë¼±¹ö½ºÁ¤·ùÀå/ö±ÙÄÜÅ©¸®Æ®±¸Á¶/Æò½º¶óºêÁöºØ ´õº¸±â
°¨Á¤Æò°¡ ¿äÇ×Ç¥
1)À§Ä¡ ¹× ÁÖÀ§È¯°æ
º»°ÇÀº ¼­¿ïƯº°½Ã ±Ýõ±¸ µ¶»êµ¿¿¡ ¼ÒÀçÇϸç ""¼¼ÀÏÁßÇб³"" ³²µ¿Ãø Àαٿ¡ À§Ä¡ÇÔ. ºÎ±ÙÀº
¿ÀÇǽºÅÚ, ´Ù¼¼´ëÁÖÅÃ, ¾ÆÆÄÆ®´ÜÁö, °¢Á¾ ±Ù¸°»ýȰ½Ã¼³ µîÀÌ È¥ÀçÇÏ´Â Áö´ë·Î¼­ Á¦¹Ý ÁÖÀ§
ȯ°æÀº º¸ÅëÀÓ.
2)±³Åë»óȲ
º»°Ç ¼ÒÀç °Ç¹°±îÁö Â÷·®ÀÇ ÁøÃâÀÔÀÌ °¡´ÉÇϸç Àαٿ¡ ³ë¼±¹ö½ºÁ¤·ùÀåÀÌ ¼ÒÀçÇÏ´Â µî Á¦¹Ý
±³Åë»óȲÀº º¸ÅëÀÓ.
3)°Ç¹°ÀÇ ±¸Á¶
ö±ÙÄÜÅ©¸®Æ®±¸Á¶ ¹× ÀϹÝö°ñ±¸Á¶ Æò½º¶óºêÁöºØ ÁöÇÏ1Ãþ~Áö»ó10Ãþ °Ç¹°³» Á¦4Ãþ Á¦405È£
·Î¼­ (»ç¿ë½ÂÀÎÀÏ: 2019.12.18)

¿Üº®: ¼®Àç ºÙÀÓ ¸¶°¨ µî
âȣ: ¼¦½Ã âȣ µî
4)ÀÌ¿ë»óÅÂ
¿ÀÇǽºÅÚ·Î ÀÌ¿ë ÁßÀÓ.
5)¼³ºñ³»¿ª
±âº»ÀûÀÎ À§»ý ¹× ±Þ¹è¼ö¼³ºñ, ³­¹æ¼³ºñ, ½Â°­±â¼³ºñ, ±â°è½ÄÁÖÂ÷Àå µîÀÌ µÇ¾î ÀÖÀ½.
6)ÅäÁöÀÇ Çü»ó ¹× ÀÌ¿ë»óÅÂ
ÀÎÁ¢Áö ´ëºñ µî°í ÆòźÇÑ 2ÇÊÁö ÀÏ´ÜÀÇ °¡ÀåÇü ÅäÁö·Î¼­, ¿ÀÇǽºÅÚ ¹× Á¦1Á¾±Ù¸°»ýȰ½Ã¼³
¹× ÀÚµ¿Â÷°ü·Ã½Ã¼³ÀÇ °ÇºÎÁö·Î ÀÌ¿ë ÁßÀÓ.
7)ÀÎÁ¢ µµ·Î»óŵî
º»°Ç ÅäÁö ºÏÃøÀ¸·Î ³ëÆø ¾à 10m ³»¿ÜÀÇ Æ÷Àåµµ·Î¿¡ Á¢ÇÔ.
8)ÅäÁöÀÌ¿ë°èȹ ¹× Á¦ÇÑ»óÅÂ
±âÈ£1,2

µµ½ÃÁö¿ª, Áذø¾÷Áö¿ª, °¡Ãà»çÀ°Á¦Çѱ¸¿ª<°¡ÃàºÐ´¢ÀÇ °ü¸® ¹× À̿뿡 °üÇÑ ¹ý·ü>, °¡·Î±¸¿ª
º° ÃÖ°í³ôÀÌ Á¦ÇÑÁö¿ª(2015-08-27)(¼­¿ïƯº°½Ã°í½Ã Á¦2015-255È£)<°ÇÃà¹ý>, Àå¾Ö¹°Á¦ÇÑÇ¥¸é
±¸¿ª(ÁøÀÔÇ¥¸é±¸¿ª)<°øÇ׽ü³¹ý>, ±³À°È¯°æº¸È£±¸¿ª(¼­¿ï½Ã ³²ºÎ±³À°Áö¿øÃ»¿¡ ¹Ýµå½Ã È®ÀÎ
¿ä¸Á)<±³À°È¯°æ º¸È£¿¡ °üÇÑ ¹ý·ü>, ´ë°ø¹æ¾îÇùÁ¶±¸¿ª(À§Å¹°íµµ:ÇØ¹ß194m(Áö¹Ý+°ÇÃà+¿Áž
µî),À°±º¼öµµ¹æÀ§»ç·ÉºÎ(02-524-3313)°üÇÒ)<±º»ç±âÁö ¹× ±º»ç½Ã¼³ º¸È£¹ý>, °ú¹Ð¾ïÁ¦±Ç¿ª
<¼öµµ±ÇÁ¤ºñ°èȹ¹ý>
9)°øºÎ¿ÍÀÇ Â÷ÀÌ
-
10)±âŸÂü°í»çÇ×(ÀÓ´ë°ü·Ê ¹× ±âŸ)
ÀÓ´ë°ü°è ¹Ì»óÀÓ.

°ÇÃ๰ÇöȲ

¼ÒÀçÁö ¼­¿ïƯº°½Ã ±Ýõ±¸ µ¶»êµ¿ 151-3¹øÁö
´ëÁö¸éÀû 973.9§³
(295.12Æò)
¿¬¸éÀû 3232.77§³
(979.63Æò)
°ÇÃà¸éÀû 368.19§³
(111.57Æò)
¿ëÀû·ü»êÁ¤
¿¬¸éÀû
2840.98§³
(860.9Æò)
°ÇÆóÀ² 37.81% ¿ëÀû·ü 291.71%
Áö»óÃþ¼ö 10Ãþ ÁöÇÏÃþ¼ö 1Ãþ
ÁÖ¿ëµµ ¾÷¹«½Ã¼³ ±¸Á¶ ö±ÙÄÜÅ©¸®Æ®±¸Á¶
Âø°øÀÏÀÚ 2019.01.03 »ç¿ë½ÂÀÎÀÏÀÚ 2019.12.18
°ÇÃ๰Ãþº°ÇöȲ [º¸±â]


±¹ÅäºÎ½Ç°Å·¡°¡ ¼­¿ïƯº°½Ã ±Ýõ±¸ µ¶»êµ¿

¡Ü ¸Å¸Å

¸éÀû(§³), ±Ý¾×(¸¸¿ø)

¡Ü Àü¼¼

¸éÀû(§³), ±Ý¾×(¸¸¿ø)

°è¾àÀϰǹ°¸íĪÃþÀü¿ëº¸Áõ±Ý¿ù¼¼°ÇÃà
26.01.28SM º§¸®Ã¼417.6615,00002019
26.01.26SM º§¸®Ã¼1017.6615,00002019
26.01.17SM º§¸®Ã¼417.665,000432019
26.01.17SM º§¸®Ã¼1017.6616,00002019
26.01.08SM º§¸®Ã¼317.6614,76002019
¢Ñ ´õº¸±â

µî±âºÎµîº» ¿ä¾à(°Ç¹°)

  Á¢¼öÀÏÀÚ µî±â¸ñÀû/±Ç¸®ÀÚ ±Ç¸®±Ý¾× ±âÁØ
1 2020³â2¿ù24ÀÏ
¼ÒÀ¯±Ç
¹ÚOO
¼Ò¸ê
2 2022³â11¿ù22ÀÏ
¾àÁ¤/±ÝÁö»çÇ×/ȯ¸ÅƯ¾à
Àμö
3 2024³â6¿ù17ÀÏ
ÀÓÂ÷±Ç¼³Á¤
ÀÌOO
166,000,000 Àμö
4 2025³â8¿ù19ÀÏ
°­Á¦°æ¸Å
ÇÑOOOO
¼Ò¸ê±âÁØ

ÀÓÂ÷ÀÎÇöȲ (¹è´ç¿ä±¸Á¾±âÀÏ: 2025-11-19)

ÀÓÂ÷ÀÎ ¿ëµµ/Á¡À¯ º¸Áõ±Ý/¿ù¼¼ ´ëÇ×·Â
ÀüÀÔÀÏ/È®Á¤ÀÏ ¹è´ç¿ä±¸ ºñ°í
GOOOOOOOOOOOOOOOO ¹Ì»ó ¹Ì»ó
[¿ù]¹Ì»ó
O
2024.09.03.
¹Ì»ó
MOOOOOOOOOOOOOOO ¹Ì»ó ¹Ì»ó
[¿ù]¹Ì»ó
O
2024.09.03.
¹Ì»ó
ÀÌOO 405È£ 166,000,000
O
2022.09.14.
2022.08.16.
2022.09.14.
ÇÑOOOOOOO 405È£ 166,000,000
O
2022.09.14.
2022.08.16.
2025.8.18. 2022.09.14.~2024.09.13.
ºñ°í
(¸Å°¢¹°°Ç
¸í¼¼¼­)
Çѱ¹ÁÖÅñÝÀ¶°ø»ç : ÀÌ »ç°Ç ½Åûä±ÇÀÚ·Î ÁÖÅÃÀÓÂ÷±ÇÀÚ ÀÌÁÖÁø(ÁÖÅÃÀÓÂ÷±Çµî±âÀÏÀº 2024.06.17.)ÀÇ ÀÓ´ëÂ÷º¸Áõ±Ý¹Ýȯä±ÇÀÇ

¿©ÀÇÁÖ°æ¸Å Á¶¾ð ÇÑ ¸¶µð


ÁÖÀÇ»çÇ× (ÃÖ¼±¼øÀ§ ¼³Á¤ÀÏ: 2025.08.19. ¼³Á¤ °­Á¦°æ¸Å°³½Ã°áÁ¤)

¸Å°¢À¸·Î ¼Ò¸êµÇÁö ¾Ê´Â µî±âºÎ±Ç¸®: - ¸Å¼öÀο¡°Ô ´ëÇ×ÇÒ ¼ö ÀÖ´Â ÀÓÂ÷ÀÎÀÌ ÀÖÀ½(ÀÓ´ëÂ÷º¸Áõ±Ý 166,000,000¿ø, ÀüÀÔÀÏÀÚ 2022.09.14., È®Á¤ÀÏÀÚ 2022.08.16.) - ¹è´ç¿¡¼­ º¸Áõ±ÝÀÌ Àü¾× º¯Á¦µÇÁö ¾Æ´ÏÇÏ¸é ¸Å¼öÀÎÀÌ ÀμöÇÔ
¸Å°¢À¸·Î ¼³Á¤µÈ °ÍÀ¸·Î º¸´Â Áö»ó±Ç:
¡Ø¹Ì³³°ü¸®ºñ(°ø¿ë) Àμö¿©ºÎ¸¦ ÀÔÂû Àü¿¡ È®ÀÎÇϽñ⠹ٶø´Ï´Ù

 

Áö¿ªºÐ¼®

ÁöÇÏö¸í Á÷¼±°Å¸®

Çб³¸í ÀüÈ­¹øÈ£ ÁÖ¼Ò Á÷¼±°Å¸®

¹ý¿ø

¼­¿ï³²ºÎÁö¹æ¹ý¿ø (080-88)¼­¿ïƯº°½Ã ¾çõ±¸ ½Å¿ù·Î 386(½ÅÁ¤µ¿)
´ëÇ¥ : 02)2192-1114
°üÇÒÁö¿ª : ¿µµîÆ÷±¸, °­¼­±¸, ¾çõ±¸, ±¸·Î±¸, ±Ýõ±¸

µî±â¼Ò ¼­¿ï³²ºÎÁö¹æ¹ý¿ø º»¿ø µî±â±¹ (´ëÇ¥:1544-0773, ÆÑ½º:(02)2629-7307, ¼­¿ïƯº°½Ã ¿µµîÆ÷±¸ °æÀηΠ772 (¹®·¡µ¿ 1°¡))
¼¼¹«¼­ ±Ýõ¼¼¹«¼­ (´ëÇ¥:02-850-420, ÆÑ½º:02-861-1475, ¼­¿ïƯº°½Ã ±Ýõ±¸ ½ÃÈï´ë·Î152±æ 11-21 (µ¶»êµ¿))

Àαٳ«ÂûÅë°è

±â°£ ¸Å°¢°Ç¼ö Æò±Õ°¨Á¤°¡
Æò±Õ¸Å°¢°¡
¸Å°¢°¡À²
Æò±ÕÀ¯Âû¼ö
3°³¿ù 43°Ç 255,860,465¿ø
219,656,261¿ø
86%
1.4ȸ
6°³¿ù 86°Ç 236,895,349¿ø
201,069,016¿ø
85%
1.5ȸ
12°³¿ù 139°Ç 227,708,449¿ø
194,968,135¿ø
86%
1.5ȸ


º» °æ¸ÅÁ¤º¸´Â ¹ý¿øÀÚ·á¿Í ÀÏÄ¡Çϵµ·Ï ÇÏ¿´À¸³ª ±Ç¸®»çÇ׺¯µ¿, ÀÔ·ÂÂø¿À µîÀÇ ¿øÀÎÀ¸·Î »ç½Ç°ú ´Ù¸¦ ¼ö ÀÖ½À´Ï´Ù. ÀÌ¿ë¾à°ü¿¡ ÀǰЏéÃ¥Á¶°ÇÀ¸·Î Á¦°øµÊÀ» ¾Ë¸®¸ç, °æ¸ÅÀÔÂû½Ã ¹Ýµå½Ã °ü·Ã °øºÎ¸¦ ÀçÈ®ÀÎÇϽñ⠹ٶø´Ï´Ù. º¸´Ù Æí¸®ÇÑ °æ¸ÅÁ¤º¸ Á¦°øÀ» À§ÇØ Áö¼ÓÀûÀ¸·Î °³¼±ÇϰڽÀ´Ï´Ù. ÀÌ¿ëÇØ Áּż­ °¨»çÇÕ´Ï´Ù.