·Î±×ÀÎ
1194
¿ÀÇǽºÅÚ
ÀÇÁ¤ºÎÁö¹æ¹ý¿ø °í¾çÁö¿ø
 °¨Á¤°¡154,000,000 ¿ø
 ÃÖÀú°¡(49%) 75,460,000 ¿ø
 º¸Áõ±Ý(10%) 7,546,000 ¿ø
 Ã»±¸¾×80,986,820 ¿ø
°æ±âµµ ÆÄÁֽà ¿Íµ¿µ¿ 1454-2 ¿îÁ¤Å¬·¡½º¿ø 12Ãþ1212È£
»ç°Ç¹øÈ£ 2025Ÿ°æ62893
°æ¸ÅÁ¾·ùºÎµ¿»êÀÓÀǰæ¸Å
¸Å°¢´ë»óÅäÁö ¹× °Ç¹°Àϰý ¸Å°¢
¸Å°¢±âÀÏ    2026.03.04(¼ö) 10:00 ÀÔÂû 21ÀÏÀü    
ÅäÁö¸éÀû4.02§³(1.22 Æò)
°Ç¹°¸éÀû19.20§³(5.81 Æò)
乫/¼ÒÀ¯ÀÚÀÌOO / ÀÌOO
ä±ÇÀÚ°íOOOOOOOO
ÆäÀ̽ººÏ Æ®À§ÅÍ ±¸±Û+
īī¿À½ºÅ丮
īī¿ÀÅå sms¹®ÀÚº¸³»±â
 

±âÀϳ»¿ª

°æ°ú ³¯Â¥ Àú°¨ ÃÖÀú°¡ °á°ú
Á¢¼öÀÏ 2025-04-14 °æ¸ÅÁ¢¼ö
~2ÀÏ 
2025-04-16 °æ¸Å°³½Ã°áÁ¤
~91ÀÏ 
2025-07-14 ¹è´ç¿ä±¸Á¾±âÀÏ
~240ÀÏ 
2025-12-10 100%
154,000,000
À¯Âû
~282ÀÏ 
2026-01-21 70%
107,800,000
À¯Âû
~324ÀÏ 
2026-03-04 49%
75,460,000
ÁøÇà
¹°°Ç¸í¼¼¼­ ÇöȲÁ¶»ç¼­ ¹®°ÇÁ¢¼ö ¼Û´Þ³»¿ª

°¨Á¤Æò°¡ÇöȲ

¸ñ·Ï ÁÖ¼Ò ±¸Á¶/¿ëµµ/´ëÁö±Ç ¸éÀû ºñ°í
´ëÁö±Ç
¿Íµ¿µ¿ 1454-2 1913.1ºÐÀÇ 4.024 4.024 §³
(1.22Æò)
°Ç¹°
¿Íµ¿µ¿ 1454-2 12Ãþ1212È£ ö±ÙÄÜÅ©¸®Æ®±¸Á¶ 19.195 §³
(5.81Æò)
1) À§Ä¡/µµ½ÃÁö¿ª/Á߽ɻó¾÷Áö¿ª/Á¦1Á¾Áö±¸´ÜÀ§°èȹ±¸¿ª/³ë¼±¹ö½º Á¤·ùÀå/ö±ÙÄÜÅ©¸®Æ®±¸Á¶/Æò½½·¡ºêÁöºØ ´õº¸±â
°¨Á¤Æò°¡ ¿äÇ×Ç¥
1)À§Ä¡ ¹× ÁÖÀ§È¯°æ
º»°ÇÀº °æ±âµµ ÆÄÁֽà ¿Íµ¿µ¿ ¼ÒÀç ""ÀÇÁ¤ºÎÁö¹æ¹ý¿ø °í¾çÁö¿øÆÄÁֽùý¿ø"" ºÏµ¿Ãø Àαٿ¡ À§Ä¡Çϸç, ÁÖÀ§´Â ±Ù¸°»ýȰ½Ã¼³, ¾÷¹«½Ã¼³, ¿ÀÇǽºÅÚ µîÀÌ ¼ÒÀçÇϸç Á¦¹Ý ÁÖÀ§È¯°æÀº º¸ÅëÀÔ´Ï´Ù.
2)±³Åë»óȲ
º»°Ç±îÁö Â÷·® Áø,ÃâÀÔÀÌ °¡´ÉÇϸç, Àαٿ¡ ³ë¼±¹ö½º Á¤·ùÀåÀÌ ¼ÒÀçÇÏ´Â µî Á¦¹Ý ´ëÁß±³Åë»óȲÀº º¸ÅëÀÔ´Ï´Ù.
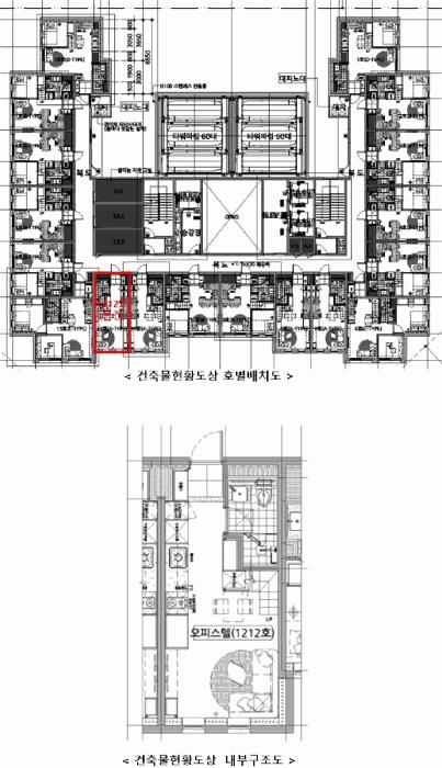
3)°Ç¹°ÀÇ ±¸Á¶
ö±ÙÄÜÅ©¸®Æ®±¸Á¶ Æò½½·¡ºêÁöºØ ³» 12Ãþ 1212È£·Î¼­,
¿Üº®: º¹ÇÕÆÇ³ÚºÙÀÓ ¸¶°¨ µî,
âȣ: ¼¦½Ã âȣÀÔ´Ï´Ù.

4)ÀÌ¿ë»óÅÂ
ÁýÇÕ°ÇÃ๰´ëÀå»ó ÁÖ¿ëµµ´Â ¾÷¹«½Ã¼³(¿ÀÇǽºÅÚ)·Î Ç¥½ÃµÇ¾î ÀÖ½À´Ï´Ù.
5)¼³ºñ³»¿ª
±Þ,¹è¼ö¼³ºñ, ½Â°­±â¼³ºñ, È­ÀçŽÁö¼³ºñ ¹× Àü±â¼³ºñ µîÀÌ µÇ¾îÀÖ½À´Ï´Ù.


6)ÅäÁöÀÇ Çü»ó ¹× ÀÌ¿ë»óÅÂ
ÀÎÁ¢Áö´ëºñ µî°íÆòźÇÑ °¡ÀåÇüÀÇ ÅäÁö·Î ¿ÀÇǽºÅÚ °ÇºÎÁö·Î ÀÌ¿ë ÁßÀÔ´Ï´Ù.
7)ÀÎÁ¢ µµ·Î»óŵî
º»°Ç ºÏ¼­Ãø ¹× ³²Ãø, µ¿ÃøÀ¸·Î °¢°¢ ¿Õº¹ 6Â÷¼± ¹× 4Â÷¼±, 2Â÷¼±ÀÇ Æ÷Àåµµ·Î¿Í °¢°¢ Á¢ÇÕ´Ï´Ù.
8)ÅäÁöÀÌ¿ë°èȹ ¹× Á¦ÇÑ»óÅÂ
µµ½ÃÁö¿ª, Á߽ɻó¾÷Áö¿ª, Á¦1Á¾Áö±¸´ÜÀ§°èȹ±¸¿ª, ´ë·Î3·ù(Æø 25m~30m)(Á¢ÇÕ), ´ë·Î3·ù(Æø 25m~30m)(ÆÄÁÖ¿îÁ¤Áö±¸)(Á¢ÇÕ), Áß·Î2·ù(Æø 15m~20m)(ÆÄÁÖ¿îÁ¤Áö±¸)(Á¢ÇÕ) °¡Ãà»çÀ°Á¦Çѱ¸¿ª(ÀüºÎÁ¦ÇÑ)<°¡ÃàºÐ´¢ÀÇ °ü¸® ¹× À̿뿡 °üÇÑ ¹ý·ü>, »ó´ëº¸È£±¸¿ª<±³À°È¯°æ º¸È£¿¡ °üÇÑ ¹ý·ü>, »ó´ëº¸È£±¸¿ª(Áö»êÃʵîÇб³ »ó´ëº¸È£±¸¿ª(¹Ýµå½Ã ÆÄÁÖ±³À°Áö¿øÃ»¿¡ ÀçÈ®ÀÎ ¹Ù¶÷,TEL 031-940-7245))<±³À°È¯°æ º¸È£¿¡ °üÇÑ ¹ý·ü>
9)°øºÎ¿ÍÀÇ Â÷ÀÌ
°øºÎ¿ÍÀÇ Â÷ÀÌ ¾ø½À´Ï´Ù.
10)±âŸÂü°í»çÇ×(ÀÓ´ë°ü·Ê ¹× ±âŸ)
ÀÓ´ë°ü°è ¹Ì»óÀÔ´Ï´Ù.
º»°ÇÀº ³»ºÎ±¸Á¶ È®ÀÎ ¹× ÀÛ¼ºÀº ÀÌÇØ°ü°èÀÎÀÇ Æó¹® ¹× ºÎÀç·Î ÀÎÇÏ¿© °Ç¹° ¿Ü°ü ¹× ޹®Á¶»ç, °ÇÃ๰ÇöȲµµ¸é¿¡ ÀǰÅÇÏ¿© Ç¥ÁØÀûÀ̰í ÀϹÝÀûÀÎ ÀÌ¿ë ¹× °ü¸®»óŸ¦ ±âÁØÇÏ¿© ÀÛ¼ºÇÏ¿´À¸¹Ç·Î °æ¸Å ÁøÇà½Ã Âü°íÇϽñ⠹ٶø´Ï´Ù.
Âü°í
»çÇ×

-ö±ÙÄÜÅ©

°ÇÃ๰ÇöȲ

¼ÒÀçÁö °æ±âµµ ÆÄÁֽà ¿Íµ¿µ¿ 1454-2¹øÁö
´ëÁö¸éÀû 1913.1§³
(579.73Æò)
¿¬¸éÀû 22145.42§³
(6710.73Æò)
°ÇÃà¸éÀû 1257.98§³
(381.21Æò)
¿ëÀû·ü»êÁ¤
¿¬¸éÀû
13378.09§³
(4053.97Æò)
°ÇÆóÀ² 65.76% ¿ëÀû·ü 699.29%
Áö»óÃþ¼ö 20Ãþ ÁöÇÏÃþ¼ö 6Ãþ
ÁÖ¿ëµµ ¾÷¹«½Ã¼³ ±¸Á¶ ö±ÙÄÜÅ©¸®Æ®±¸Á¶
Âø°øÀÏÀÚ 2021.03.25 »ç¿ë½ÂÀÎÀÏÀÚ 2024.02.01
°ÇÃ๰Ãþº°ÇöȲ [º¸±â]


±¹ÅäºÎ½Ç°Å·¡°¡ °æ±âµµ ÆÄÁֽà ¿Íµ¿µ¿

¡Ü ¸Å¸Å

¸éÀû(§³), ±Ý¾×(¸¸¿ø)

¡Ü Àü¼¼

¸éÀû(§³), ±Ý¾×(¸¸¿ø)

°è¾àÀϰǹ°¸íĪÃþÀü¿ëº¸Áõ±Ý¿ù¼¼°ÇÃà
26.01.24¿îÁ¤Å¬·¡½º¿ø1522.9512,00002024
26.01.24¿îÁ¤Å¬·¡½º¿ø1019.2500602024
26.01.23¿îÁ¤Å¬·¡½º¿ø719.2500552024
26.01.22¿îÁ¤Å¬·¡½º¿ø934.111,000902024
26.01.17¿îÁ¤Å¬·¡½º¿ø1122.953,000502024
¢Ñ ´õº¸±â

µî±âºÎµîº» ¿ä¾à(°Ç¹°)

  Á¢¼öÀÏÀÚ µî±â¸ñÀû/±Ç¸®ÀÚ ±Ç¸®±Ý¾× ±âÁØ
1 2024³â4¿ù8ÀÏ
¼ÒÀ¯±Ç
ÀÌOO
¼Ò¸ê
2 2024³â4¿ù8ÀÏ
±ÙÀú´ç±Ç
°íOOOO
96,000,000 ¼Ò¸ê±âÁØ
3 2025³â4¿ù17ÀÏ
ÀÓÀǰæ¸Å
°íOOOO
¼Ò¸ê

ÀÓÂ÷ÀÎÇöȲ (¹è´ç¿ä±¸Á¾±âÀÏ: 2025-07-14)


Á¶»çµÈ ÀÓÂ÷³»¿ªÀÌ ¾ø½À´Ï´Ù


¿©ÀÇÁÖ°æ¸Å Á¶¾ð ÇÑ ¸¶µð


ÁÖÀÇ»çÇ× (ÃÖ¼±¼øÀ§ ¼³Á¤ÀÏ: 2024.4.8.±ÙÀú´ç ¼³Á¤)

¸Å°¢À¸·Î ¼Ò¸êµÇÁö ¾Ê´Â µî±âºÎ±Ç¸®:
¸Å°¢À¸·Î ¼³Á¤µÈ °ÍÀ¸·Î º¸´Â Áö»ó±Ç:
¡Ø¹Ì³³°ü¸®ºñ(°ø¿ë) Àμö¿©ºÎ¸¦ ÀÔÂû Àü¿¡ È®ÀÎÇϽñ⠹ٶø´Ï´Ù

 

Áö¿ªºÐ¼®

ÁöÇÏö¸í Á÷¼±°Å¸®

Çб³¸í ÀüÈ­¹øÈ£ ÁÖ¼Ò Á÷¼±°Å¸®

¹ý¿ø

ÀÇÁ¤ºÎÁö¹æ¹ý¿ø °í¾çÁö¿ø (104-13)°æ±âµµ °í¾ç½Ã Àϻ굿±¸ Àå¹é·Î 209
´ëÇ¥ : 031)920-6114, ¾ß°£ : 031)920-6550, ÆÑ½º : 031)920-6119
°üÇÒÁö¿ª : °í¾ç½Ã, ÆÄÁÖ½Ã

µî±â¼Ò ÀÇÁ¤ºÎÁö¹æ¹ý¿ø °í¾çÁö¿ø ÆÄÁÖµî±â¼Ò (´ëÇ¥:1544-0773, ÆÑ½º:(031)945-4764, 3628, °æ±âµµ ÆÄÁֽà ±ÝÁ¤·Î 45 (±ÝÃ̵¿ 947-28))
¼¼¹«¼­ ÆÄÁÖ¼¼¹«¼­ (´ëÇ¥:031-956-02, ÆÑ½º:031-957-0315, °æ±âµµ ÆÄÁֽà ±Ý¸ª¿ª·Î 62 (±ÝÃ̵¿))

Àαٳ«ÂûÅë°è

±â°£ ¸Å°¢°Ç¼ö Æò±Õ°¨Á¤°¡
Æò±Õ¸Å°¢°¡
¸Å°¢°¡À²
Æò±ÕÀ¯Âû¼ö
3°³¿ù 9°Ç 927,111,111¿ø
584,743,344¿ø
58%
1.9ȸ
6°³¿ù 11°Ç 792,000,000¿ø
491,021,827¿ø
54%
2.3ȸ
12°³¿ù 13°Ç 724,846,154¿ø
455,108,469¿ø
56%
2.2ȸ


º» °æ¸ÅÁ¤º¸´Â ¹ý¿øÀÚ·á¿Í ÀÏÄ¡Çϵµ·Ï ÇÏ¿´À¸³ª ±Ç¸®»çÇ׺¯µ¿, ÀÔ·ÂÂø¿À µîÀÇ ¿øÀÎÀ¸·Î »ç½Ç°ú ´Ù¸¦ ¼ö ÀÖ½À´Ï´Ù. ÀÌ¿ë¾à°ü¿¡ ÀǰЏéÃ¥Á¶°ÇÀ¸·Î Á¦°øµÊÀ» ¾Ë¸®¸ç, °æ¸ÅÀÔÂû½Ã ¹Ýµå½Ã °ü·Ã °øºÎ¸¦ ÀçÈ®ÀÎÇϽñ⠹ٶø´Ï´Ù. º¸´Ù Æí¸®ÇÑ °æ¸ÅÁ¤º¸ Á¦°øÀ» À§ÇØ Áö¼ÓÀûÀ¸·Î °³¼±ÇϰڽÀ´Ï´Ù. ÀÌ¿ëÇØ Áּż­ °¨»çÇÕ´Ï´Ù.