·Î±×ÀÎ
1330
ÁÖÅÃ
ûÁÖÁö¹æ¹ý¿ø
 °¨Á¤°¡208,639,480 ¿ø
 ÃÖÀú°¡(34%) 71,564,000 ¿ø
 º¸Áõ±Ý(10%) 7,156,400 ¿ø
 Ã»±¸¾×40,335,749 ¿ø
ÃæÃ»ºÏµµ ûÁֽà Èï´ö±¸ ºÀ¸íµ¿ 1265
»ç°Ç¹øÈ£ 2025Ÿ°æ51345
Áߺ¹»ç°ÇÁߺ¹ 2025Ÿ°æ51555,
°æ¸ÅÁ¾·ùºÎµ¿»ê°­Á¦°æ¸Å
¸Å°¢´ë»óÅäÁö ¹× °Ç¹°Àϰý¸Å°¢
¸Å°¢±âÀÏ    2026.03.31(È­) 10:00 ÀÔÂû 3ÀÏÀü    
ÅäÁö¸éÀû156.40§³(47.31 Æò)
°Ç¹°¸éÀû71.56§³(21.65 Æò)
乫/¼ÒÀ¯ÀÚÃÖOO / ÃÖOO
ä±ÇÀÚÃæOOOOOOO
ÆäÀ̽ººÏ Æ®À§ÅÍ ±¸±Û+
īī¿À½ºÅ丮
īī¿ÀÅå sms¹®ÀÚº¸³»±â
 

±âÀϳ»¿ª

°æ°ú ³¯Â¥ Àú°¨ ÃÖÀú°¡ °á°ú
Á¢¼öÀÏ 2025-05-30 °æ¸ÅÁ¢¼ö
~5ÀÏ 
2025-06-04 °æ¸Å°³½Ã°áÁ¤
~97ÀÏ 
2025-09-04 ¹è´ç¿ä±¸Á¾±âÀÏ
~193ÀÏ 
2025-12-09 100%
208,639,480
À¯Âû
~228ÀÏ 
2026-01-13 70%
146,048,000
À¯Âû
~270ÀÏ 
2026-02-24 49%
102,234,000
À¯Âû
~305ÀÏ 
2026-03-31 34%
71,564,000
ÁøÇà
¹°°Ç¸í¼¼¼­ ÇöȲÁ¶»ç¼­ ¹®°ÇÁ¢¼ö ¼Û´Þ³»¿ª

°¨Á¤Æò°¡ÇöȲ

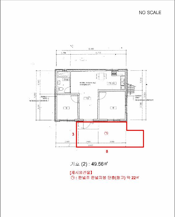
¸ñ·Ï ÁÖ¼Ò ±¸Á¶/¿ëµµ/´ëÁö±Ç ¸éÀû ºñ°í
ÅäÁö
ºÀ¸íµ¿ 1265 ´ë 156.4 §³
(47.31Æò)
°Ç¹°
ºÀ¸íµ¿ 1265 ´ÜÃþ ´Üµ¶ÁÖÅà º®µ¹±¸Á¶ 49.56 §³
(14.99Æò)
Á¦½Ã¿Ü
°Ç¹°
ºÀ¸íµ¿ 1265 â°í 22 §³
(6.66Æò)
Æ÷ÇÔ
1) À§Ä¡/µµ½ÃÁö¿ª/Á¦2Á¾ÀϹÝÁÖ°ÅÁö¿ª/Áö±¸´ÜÀ§°èȹ±¸¿ª/¹ö½ºÁ¤·ùÀå/°£¼±µµ·Î ´õº¸±â
°¨Á¤Æò°¡ ¿äÇ×Ç¥
1)À§Ä¡ ¹× ÁÖÀ§È¯°æ
º»°ÇÀº ÃæÃ»ºÏµµ ûÁֽà Èï´ö±¸ º¹´ëµ¿ ¼ÒÀç ¡°Ã»ÁÖ°íµîÇб³¡± ºÏÃø Àαٿ¡ À§Ä¡Çϸç
ÁÖÀ§¿¡´Â ´Üµ¶ÁÖÅÃ, ±Ù¸°»ýȰ½Ã¼³, »ó°¡ µîÀÌ È¥ÀçµÇ¾î ÀÖ´Â µî Á¦¹Ý ÁÖÀ§È¯°æ º¸Åë½Ã
µÊ.
2)±³Åë»óȲ
º»°Ç ÀαٱîÁö Â÷·®À¸·Î Á¢±ÙÀÌ °¡´ÉÇϸç, Àαٿ¡ °£¼±µµ·Î ¹× ¹ö½ºÁ¤·ùÀåÀÌ ¼ÒÀçÇÏ´Â
µî Á¦¹Ý ±³Åë»óȲ º¸Åë½Ã µÊ.
3)ÇüÅ ¹× ÀÌ¿ë»óÅÂ
Á¤¹æÇü ÆòÁö·Î¼­, ´Üµ¶ÁÖÅà °ÇºÎÁö·Î ÀÌ¿ëÁßÀÓ.

4)ÀÎÁ¢ µµ·Î»óÅÂ
º»°Ç ºÏµ¿ÃøÀ¸·Î ³ëÆø ¾à 3¹ÌÅÍ ³»¿ÜÀÇ º¸µµºí·Ï Æ÷Àåµµ·Î¸¦ ÅëÇÏ¿© Á¢±Ù °¡´ÉÇÔ.

5)ÅäÁöÀÌ¿ë°èȹ ¹× Á¦ÇÑ»óÅÂ
µµ½ÃÁö¿ª, Á¦2Á¾ÀϹÝÁÖ°ÅÁö¿ª, ÁÖ°Å¿ëÁö(´Üµ¶ÁÖÅÃÁö(A4), °ÇÆóÀ² 60%ÀÌÇÏ, ¿ëÀû·ü
250%ÀÌÇÏ), Áö±¸´ÜÀ§°èȹ±¸¿ª(º¹´ë°¡°æ»çâÁö±¸), °¡Ãà»çÀ°Á¦Çѱ¸¿ª
(°¡Ãà»çÀ°ÀüºÎÁ¦Çѱ¸¿ª)<°¡ÃàºÐ´¢ÀÇ °ü¸® ¹× À̿뿡 °üÇÑ ¹ý·ü>, »ó´ëº¸È£±¸¿ª
(ûÁÖ°íµîÇб³,ûÁÖ±³À°Áö¿øÃ»Ã¼À°°Ç°­°ú(043-299-3191~3196))<±³À°È¯°æ º¸È£¿¡ °üÇÑ
¹ý·ü>
6)Á¦½Ã¸ñ·Ï ¿ÜÀÇ ¹°°Ç
ÈÄ÷ 'ÁöÀû ¹× °Ç¹°°³È²µµ' ¹× '»çÁø¿ëÁö' Âü°í ¹Ù¶÷.

7)°øºÎ¿ÍÀÇ Â÷ÀÌ
-
8)±âŸÂü°í»çÇ×(ÀÓ´ë°ü·Ê ¹× ±âŸ)
¹Ì»óÀÓ.
1)°Ç¹°ÀÇ ±¸Á¶
º®µ¹±¸Á¶ (ö±Ù)ÄÜÅ©¸®Æ®ÁöºØ ´ÜÃþ °Ç¹°·Î¼­,
¿Üº® : ¸ôÅ» À§ ÆäÀÎÆÃ ¸¶°¨ µî,
³»º® : º®Áö ¹× ŸÀÏ ¸¶°¨ µî,
¹Ù´Ú : ÀåÆÇ ¹× ŸÀÏ ¸¶°¨ µî,
âȣ : ¼¦½Ã âȣ µîÀÓ.
2)ÀÌ¿ë»óÅÂ
´Üµ¶ÁÖÅÃÀ¸·Î ÀÌ¿ëÁßÀÓ.
3)¼³ºñ³»¿ª
À§»ý ¹× ±Þ¹è¼ö¼³ºñ, ³­¹æ¼³ºñ µîÀÌ ±¸ºñµÇ¾î ÀÖÀ½.
4)ºÎÇÕ¹° ¹× Á¾¹°
ÈÄ÷ 'ÁöÀû ¹× °Ç¹°°³È²µµ' ¹× '»çÁø¿ëÁö' Âü°í ¹Ù¶÷.

5)°øºÎ¿ÍÀÇ Â÷ÀÌ
-
6)±âŸÂü°í»çÇ×(ÀÓ´ë°ü·Ê ¹× ±âŸ)
¹Ì»óÀÓ.
Âü°í
»çÇ×
Àϰý¸Å°¢. Á¦½Ã¿Ü °Ç¹° ¸Å°¢ Æ÷ÇÔ
Á¦½Ã¿Ü¼ÒÀçÇÔ 1. ÆÇ³ÚÁ¶

°ÇÃ๰ÇöȲ

¼ÒÀçÁö ÃæÃ»ºÏµµ ûÁֽà Èï´ö±¸ ºÀ¸íµ¿ 1265¹øÁö
´ëÁö¸éÀû 156.4§³
(47.39Æò)
¿¬¸éÀû 49.56§³
(15.02Æò)
°ÇÃà¸éÀû 53.91§³
(16.34Æò)
¿ëÀû·ü»êÁ¤
¿¬¸éÀû
49.56§³
(15.02Æò)
°ÇÆóÀ² 34.47% ¿ëÀû·ü 31.69%
Áö»óÃþ¼ö 1Ãþ ÁöÇÏÃþ¼ö  
ÁÖ¿ëµµ ´Üµ¶ÁÖÅà ±¸Á¶ º®µ¹±¸Á¶
Âø°øÀÏÀÚ 2004.09.10 »ç¿ë½ÂÀÎÀÏÀÚ 2004.11.17
°ÇÃ๰Ãþº°ÇöȲ [º¸±â]


µî±âºÎµîº» ¿ä¾à(ÅäÁö)

  Á¢¼öÀÏÀÚ µî±â¸ñÀû/±Ç¸®ÀÚ ±Ç¸®±Ý¾× ±âÁØ
1 2021³â12¿ù31ÀÏ
¼ÒÀ¯±Ç
ÃÖOO
¼Ò¸ê
2 2025³â6¿ù4ÀÏ
°­Á¦°æ¸Å
ÃæOOOO
¼Ò¸ê±âÁØ
3 2025³â7¿ù24ÀÏ
°­Á¦°æ¸Å
½ÅOOOO
¼Ò¸ê

µî±âºÎµîº» ¿ä¾à(°Ç¹°)

  Á¢¼öÀÏÀÚ µî±â¸ñÀû/±Ç¸®ÀÚ ±Ç¸®±Ý¾× ±âÁØ
1 2021³â12¿ù31ÀÏ
¼ÒÀ¯±Ç
ÃÖOO
¼Ò¸ê
2 2025³â6¿ù4ÀÏ
°­Á¦°æ¸Å
ÃæOOOO
¼Ò¸ê±âÁØ
3 2025³â7¿ù24ÀÏ
°­Á¦°æ¸Å
½ÅOOOO
¼Ò¸ê

ÀÓÂ÷ÀÎÇöȲ (¹è´ç¿ä±¸Á¾±âÀÏ: 2025-09-04)

ÀÓÂ÷ÀÎ ¿ëµµ/Á¡À¯ º¸Áõ±Ý/¿ù¼¼ ´ëÇ×·Â
ÀüÀÔÀÏ/È®Á¤ÀÏ ¹è´ç¿ä±¸ ºñ°í
ÀÌOO Àüü¹×Á¦½Ã¿Ü1¹ø 8,500¸¸¿ø
O
2022.07.06.

¿©ÀÇÁÖ°æ¸Å Á¶¾ð ÇÑ ¸¶µð

Á¦½Ã¿Ü ¹°°ÇÀÌ Æ÷ÇԵǾî ÀÖ½À´Ï´Ù
¡®Á¦½Ã¿Ü ¹°°Ç¡¯Àº ÇØ´ç °øºÎ»ó¿¡´Â Á¸ÀçÇÏÁö ¾ÊÁö¸¸, ÇöÀå¿¡ Á¸Àç°¡ È®ÀεǴ ¿©·¯ ÇüÅÂÀÇ °Ç¹°, ±â°è±â±¸ µîÀ» ¸»ÇÕ´Ï´Ù. ÀÌµé ´ëºÎºÐÀº ¹«Çã°¡, ¹«½Å°íÀ̰ųª »ç¿ë½ÂÀÎÀ» ¹ÞÁö ¾ÊÀº °ÍÀÔ´Ï´Ù. ¡®Á¦½Ã¿Ü ¹°°Ç¡¯ÀÌ °æ¸Å´ë»ó¿¡ Æ÷ÇԵǾî ÀÖ´Ù¸é ³«ÂûÀÚÀÇ ¼ÒÀ¯±Ç Ãëµæ¿¡´Â ¾Æ¹«·± ¹®Á¦°¡ ¾ø½À´Ï´Ù.
ÃëÇÏ ¶Ç´Â Ãë¼ÒµÉ °¡´É¼ºÀº ÀÖÀ¸³ª ±×´ë·Î ÁøÇàµÉ °¡´É¼ºµµ ¸¹½À´Ï´Ù
¼±Çà°æ¸Å¸¦ ½ÅûÇÑ Ã¤±ÇÀÚ°¡ ¹è´ç ¹Þ¾Æ¾ß ÇÒ ±Ý¾×Àº 40,335,749¿øÀ¸·Î °¨Á¤°¡°Ý ´ëºñ »ó´çÈ÷ ÀûÀº ±Ý¾×À̼­ °æ¸Å°¡ ÃëÇϵǰųª Ãë¼Ò µÉ °¡´É¼ºÀÌ ÀÖ½À´Ï´Ù. ±×·±µ¥ ÈÄÇà°æ¸Å »ç°Ç (Áߺ¹ 2025Ÿ°æ51555,)ÀÌ À־ ÃëÇÏ,Ãë¼ÒµÇÁö ¾Ê°í ÁøÇàµÉ °¡´É¼ºµµ ¸¹½À´Ï´Ù.

ÁÖÀÇ»çÇ× (ÃÖ¼±¼øÀ§ ¼³Á¤ÀÏ: 2025. 6. 4. °æ¸Å°³½Ã°áÁ¤ ¼³Á¤)

¸Å°¢À¸·Î ¼Ò¸êµÇÁö ¾Ê´Â µî±âºÎ±Ç¸®:
¸Å°¢À¸·Î ¼³Á¤µÈ °ÍÀ¸·Î º¸´Â Áö»ó±Ç:
Àϰý¸Å°¢. Á¦½Ã¿Ü °Ç¹° ¸Å°¢ Æ÷ÇÔ
¡Ø¹Ì³³°ü¸®ºñ(°ø¿ë) Àμö¿©ºÎ¸¦ ÀÔÂû Àü¿¡ È®ÀÎÇϽñ⠹ٶø´Ï´Ù

 

Áö¿ªºÐ¼®

ÁöÇÏö¸í Á÷¼±°Å¸®

Çб³¸í ÀüÈ­¹øÈ£ ÁÖ¼Ò Á÷¼±°Å¸®

¹ý¿ø

ûÁÖÁö¹æ¹ý¿ø (286-24)ÃæÃ»ºÏµµ ûÁֽà ¼­¿ø±¸ »ê³²·Î 62¹ø±æ 51 (»ê³²µ¿)
´ëÇ¥ : 043)249-7114~5, ¹Î¿ø : 043)249-7465, ¾ß°£ : 043)249-7400
°üÇÒÁö¿ª : ûÁÖ½Ã, º¸Àº±º, ±«»ê±º, ÁõÆò±º, ÁøÃµ±º

µî±â¼Ò    (´ëÇ¥:, ÆÑ½º:, )
¼¼¹«¼­ ûÁÖ¼¼¹«¼­ (´ëÇ¥:043-230-92, ÆÑ½º:043-235-5417, ÃæÃ»ºÏµµ ûÁֽà Èï´ö±¸ Á×õ·Î 151 (º¹´ëµ¿))

Àαٳ«ÂûÅë°è

±â°£ ¸Å°¢°Ç¼ö Æò±Õ°¨Á¤°¡
Æò±Õ¸Å°¢°¡
¸Å°¢°¡À²
Æò±ÕÀ¯Âû¼ö
3°³¿ù 4°Ç 1,129,190,183¿ø
641,096,150¿ø
39%
5ȸ
6°³¿ù 13°Ç 829,141,333¿ø
548,791,473¿ø
62%
2.6ȸ
12°³¿ù 26°Ç 1,645,553,812¿ø
902,342,613¿ø
59%
3ȸ


º» °æ¸ÅÁ¤º¸´Â ¹ý¿øÀÚ·á¿Í ÀÏÄ¡Çϵµ·Ï ÇÏ¿´À¸³ª ±Ç¸®»çÇ׺¯µ¿, ÀÔ·ÂÂø¿À µîÀÇ ¿øÀÎÀ¸·Î »ç½Ç°ú ´Ù¸¦ ¼ö ÀÖ½À´Ï´Ù. ÀÌ¿ë¾à°ü¿¡ ÀǰЏéÃ¥Á¶°ÇÀ¸·Î Á¦°øµÊÀ» ¾Ë¸®¸ç, °æ¸ÅÀÔÂû½Ã ¹Ýµå½Ã °ü·Ã °øºÎ¸¦ ÀçÈ®ÀÎÇϽñ⠹ٶø´Ï´Ù. º¸´Ù Æí¸®ÇÑ °æ¸ÅÁ¤º¸ Á¦°øÀ» À§ÇØ Áö¼ÓÀûÀ¸·Î °³¼±ÇϰڽÀ´Ï´Ù. ÀÌ¿ëÇØ Áּż­ °¨»çÇÕ´Ï´Ù.