·Î±×ÀÎ
1269
±Ù¸°»ó°¡
¼ö¿øÁö¹æ¹ý¿ø
 °¨Á¤°¡333,000,000 ¿ø
 ÃÖÀú°¡(34%) 114,219,000 ¿ø
 º¸Áõ±Ý(10%) 11,421,900 ¿ø
 Ã»±¸¾×444,220,201 ¿ø
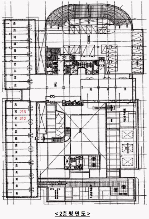
°æ±âµµ È­¼º½Ã ¿µÃµµ¿ 835-1 ´õÆÛ½ºÆ®Å¸¿öÅõ 2Ãþ213È£
»ç°Ç¹øÈ£ 2025Ÿ°æ1270 ¹°°Ç¹øÈ£
°æ¸ÅÁ¾·ùºÎµ¿»êÀÓÀǰæ¸Å
¸Å°¢´ë»óÅäÁö ¹× °Ç¹°Àϰý ¸Å°¢
¸Å°¢±âÀÏ    2026.06.02(È­) 10:00 ÀÔÂû 1ÀÏÀü    
ÅäÁö¸éÀû14.20§³(4.30 Æò)
°Ç¹°¸éÀû45.60§³(13.79 Æò)
乫/¼ÒÀ¯ÀÚ±èOO / ±èOO
ä±ÇÀÚÁÖOOO OOOO
ÆäÀ̽ººÏ Æ®À§ÅÍ ±¸±Û+
īī¿À½ºÅ丮
īī¿ÀÅå sms¹®ÀÚº¸³»±â
 

±âÀϳ»¿ª

°æ°ú ³¯Â¥ Àú°¨ ÃÖÀú°¡ °á°ú
Á¢¼öÀÏ 2025-05-29 °æ¸ÅÁ¢¼ö
~1ÀÏ 
2025-05-30 °æ¸Å°³½Ã°áÁ¤
~368ÀÏ 
¹è´ç¿ä±¸Á¾±âÀÏ
~194ÀÏ 
2025-12-09 100%
333,000,000
À¯Âû
~229ÀÏ 
2026-01-13 70%
233,100,000
À¯Âû
~267ÀÏ 
2026-02-20 49%
163,170,000
º¯°æ
~333ÀÏ 
2026-04-27 49%
163,170,000
À¯Âû
~369ÀÏ 
2026-06-02 34%
114,219,000
ÁøÇà
¹°°Ç¸í¼¼¼­ ÇöȲÁ¶»ç¼­ ¹®°ÇÁ¢¼ö ¼Û´Þ³»¿ª

°¨Á¤Æò°¡ÇöȲ

¸ñ·Ï ÁÖ¼Ò ±¸Á¶/¿ëµµ/´ëÁö±Ç ¸éÀû ºñ°í
´ëÁö±Ç
¿µÃµµ¿ 835-1 9817ºÐÀÇ 14.2031 14.2031 §³
(4.30Æò)
°Ç¹°
¿µÃµµ¿ 835-1 2Ãþ213È£ ö±ÙÄÜÅ©¸®Æ®±¸Á¶ 45.6 §³
(13.79Æò)
1) À§Ä¡/ÁØÁÖ°ÅÁö¿ª/Áö±¸´ÜÀ§°èȹ±¸¿ª/ÁÖÂ÷Àå/³ë¼±¹ö½ºÁ¤·ùÀå/ö±ÙÄÜÅ©¸®Æ®±¸Á¶ ´õº¸±â
°¨Á¤Æò°¡ ¿äÇ×Ç¥
1)À§Ä¡ ¹× ÁÖÀ§È¯°æ
º»°ÇÀº °æ±âµµ È­¼º½Ã ¿µÃµµ¿ ¼ÒÀç""±âÈﵿźIC""³²¼­Ãø Àαٿ¡ À§Ä¡Çϸç, ÁÖÀ§´Â »ó°¡ ¹× ¾÷¹«½Ã¼³, ¾ÆÆÄÆ® µîÀÌ È¥ÀçÇÏ´Â Áö¿ªÀÓ.
2)±³Åë»óȲ
º»°Ç±îÁö Â÷·® Á¢±Ù °¡´ÉÇϸç, Àαٿ¡ ³ë¼±¹ö½ºÁ¤·ùÀåÀÌ ¼ÒÀçÇÏ´Â µî Àü¹ÝÀûÀÎ ±³Åë¿©°ÇÀº º¸ÅëÀÓ.
3)°Ç¹°ÀÇ ±¸Á¶
ö±ÙÄÜÅ©¸®Æ®±¸Á¶ (ö±Ù)ÄÜÅ©¸®Æ®ÁöºØ 20Ãþ °Ç¹° ³» 2Ãþ 212È£¿Í 213È£·Î¼­,
»ç¿ë½ÂÀÎ : 2019.12.03
¿Üº® : ¼®Àç ºÙÀÓ µî
âȣ : ¼¦½Ã âȣ µîÀÓ.
4)ÀÌ¿ë»óÅÂ
¾÷¹«½Ã¼³ÀÓ.
5)¼³ºñ³»¿ª
À§»ý ¹× ±Þ¹è¼ö¼³ºñ, ¼ÒÈ­¼³ºñ, ½Â°­±â¼³ºñ, ÁÖÂ÷Àå¼³ºñ µîÀÌ µÇ¾î ÀÖÀ½.
6)ÅäÁöÀÇ Çü»ó ¹× ÀÌ¿ë»óÅÂ
´ëü·Î À广ÇüÀÇ ÅäÁö·Î¼­, °øÀå ¹× ±Ù¸°»ýȰ½Ã¼³, ¾÷¹«½Ã¼³ °ÇºÎÁöÀÓ.
7)ÀÎÁ¢ µµ·Î»óŵî
ºÏÃø ¹× ¼­ÃøÀ¸·Î Æø ¾à 30¹ÌÅÍ ³»¿Ü, ³²Ãø ¹× µ¿ÃøÀ¸·Î Æø ¾à 12¹ÌÅÍ ³»¿ÜÀÇ µµ·Î¿Í °¢°¢ Á¢ÇÔ.
8)ÅäÁöÀÌ¿ë°èȹ ¹× Á¦ÇÑ»óÅÂ
ÁØÁÖ°ÅÁö¿ª(µ¿Åº2Áö±¸), Áö±¸´ÜÀ§°èȹ±¸¿ª(È­¼ºµ¿Åº(2)), ´ë·Î2·ù(Æø 30m~35m)(´ë(ÁÖ)2-21)(Á¢ÇÕ), ´ë·Î3·ù(Æø 25m~30m)(ÀϹݵµ·Î, µ¿Åº2Áö±¸)(Á¢ÇÕ), Áß·Î3·ù(Æø 12m~15m)(Áß(Áý)3-126)(Á¢ÇÕ), Áß·Î3·ù(Æø 12m~15m)(Áß(Áý)3-135)(Á¢ÇÕ), °¡Ãà»çÀ°Á¦Çѱ¸¿ª(ÀüºÎÁ¦ÇÑ)<°¡ÃàºÐ´¢ÀÇ °ü¸® ¹× À̿뿡 °üÇÑ ¹ý·ü>, µµ·Î±¸¿ª<µµ·Î¹ý>, º¥Ã³±â¾÷À°¼ºÃËÁøÁö±¸<º¥Ã³±â¾÷À°¼º¿¡ °üÇÑ Æ¯º°Á¶Ä¡¹ý>, ¼ºÀå°ü¸®±Ç¿ª<¼öµµ±ÇÁ¤ºñ°èȹ¹ý>, öµµº¸È£Áö±¸(öµµº¸È£Áö±¸)<öµµ¾ÈÀü¹ý>, ÅÃÁö°³¹ßÁö±¸<ÅÃÁö°³¹ßÃËÁø¹ý>ÀÓ.
9)°øºÎ¿ÍÀÇ Â÷ÀÌ
¾øÀ½.
10)±âŸÂü°í»çÇ×(ÀÓ´ë°ü·Ê ¹× ±âŸ)
ÀÓ´ë°ü°è µîÀº ¹Ì»óÀÓ.
Âü°í
»çÇ×

ÇØ´ç ºÎµ¿»êÀÇ ÇöȲÀº ¿Ü

°ÇÃ๰ÇöȲ

¼ÒÀçÁö °æ±âµµ È­¼º½Ã ¿µÃµµ¿ 835-1¹øÁö
´ëÁö¸éÀû 9817§³
(2974.85Æò)
¿¬¸éÀû 62954.87§³
(19077.23Æò)
°ÇÃà¸éÀû 5496.06§³
(1665.47Æò)
¿ëÀû·ü»êÁ¤
¿¬¸éÀû
35283.65§³
(10692.02Æò)
°ÇÆóÀ² 55.985127% ¿ëÀû·ü 359.41377%
Áö»óÃþ¼ö 20Ãþ ÁöÇÏÃþ¼ö 3Ãþ
ÁÖ¿ëµµ °øÀå ±¸Á¶ ö±ÙÄÜÅ©¸®Æ®±¸Á¶
Âø°øÀÏÀÚ 2017.07.26 »ç¿ë½ÂÀÎÀÏÀÚ 2019.12.03
°ÇÃ๰Ãþº°ÇöȲ [º¸±â]


µî±âºÎµîº» ¿ä¾à(°Ç¹°)

  Á¢¼öÀÏÀÚ µî±â¸ñÀû/±Ç¸®ÀÚ ±Ç¸®±Ý¾× ±âÁØ
1 2023³â11¿ù29ÀÏ
¼ÒÀ¯±Ç
±èOO
¼Ò¸ê
2 2023³â11¿ù29ÀÏ
±ÙÀú´ç±Ç
(OOOO
516,000,000 ¼Ò¸ê±âÁØ
3 2025³â4¿ù14ÀÏ
°¡¾Ð·ù
Á¦OOOO
12,784,260 ¼Ò¸ê
4 2025³â5¿ù30ÀÏ
ÀÓÀǰæ¸Å
(OOOO
¼Ò¸ê
5 2025³â7¿ù18ÀÏ
¾Ð·ù
±¹
¼Ò¸ê

ÀÓÂ÷ÀÎÇöȲ (¹è´ç¿ä±¸Á¾±âÀÏ: )

ÀÓÂ÷ÀÎ ¿ëµµ/Á¡À¯ º¸Áõ±Ý/¿ù¼¼ ´ëÇ×·Â
ÀüÀÔÀÏ/È®Á¤ÀÏ ¹è´ç¿ä±¸ ºñ°í
½ºOOOOOOOOOOOOOO ´õÆÛ½ºÆ®Å¸¿öÅõ 2Ãþ213-BÈ£22.0000§³ 25,000,000
X
2025.05.19
2025.05.20
2025.05.31-2027.12.31
Á¶OO ´õÆÛ½ºÆ®Å¸¿ö2 2Ãþ213È£RA-01,RA-02,RA-0320.0000§³ 25,000,000
X
2024.08.14
2024.08.01-2026.12.31

¿©ÀÇÁÖ°æ¸Å Á¶¾ð ÇÑ ¸¶µð


ÁÖÀÇ»çÇ× (ÃÖ¼±¼øÀ§ ¼³Á¤ÀÏ: 2023.11.29.±ÙÀú´ç±Ç ¼³Á¤)

¸Å°¢À¸·Î ¼Ò¸êµÇÁö ¾Ê´Â µî±âºÎ±Ç¸®:
¸Å°¢À¸·Î ¼³Á¤µÈ °ÍÀ¸·Î º¸´Â Áö»ó±Ç:
2026.02.06 ½Â°èÀÎ À¯OOOOOOOO OOOOOOOOO(OOOOOOOOOOOO) ±âÀÏ¿¬±â½Åû¼­ Á¦Ãâ
¡Ø¹Ì³³°ü¸®ºñ(°ø¿ë) Àμö¿©ºÎ¸¦ ÀÔÂû Àü¿¡ È®ÀÎÇϽñ⠹ٶø´Ï´Ù

 

Áö¿ªºÐ¼®

ÁöÇÏö¸í Á÷¼±°Å¸®

Çб³¸í ÀüÈ­¹øÈ£ ÁÖ¼Ò Á÷¼±°Å¸®

¹ý¿ø

¼ö¿øÁö¹æ¹ý¿ø (165-12)°æ±âµµ ¼ö¿ø½Ã ¿µÅ뱸 ¹ýÁ¶·Î 105, Çϵ¿, ¼ö¿ø¹ý¿øÁ¾ÇÕû»ç
´ëÇ¥ : 031)210-1114, ¾ß°£ : 031)210-1111
°üÇÒÁö¿ª : ¼ö¿ø½Ã, ¿À»ê½Ã, È­¼º½Ã, ¿ëÀνÃ

µî±â¼Ò ¼ö¿øÁö¹æ¹ý¿ø º»¿ø È­¼ºµî±â¼Ò (´ëÇ¥:1544-0773, ÆÑ½º:(031)375-3964, °æ±âµµ ¿À»ê½Ã ¹ý¿ø·Î 65 (±Èµ¿ 662))
¼¼¹«¼­ µ¿¼ö¿ø¼¼¹«¼­ (´ëÇ¥:031-695-42, ÆÑ½º:031-273-2416, °æ±âµµ ¼ö¿ø½Ã ¿µÅ뱸 û¸í³²·Î 13 (¿µÅ뵿))

Àαٳ«ÂûÅë°è

±â°£ ¸Å°¢°Ç¼ö Æò±Õ°¨Á¤°¡
Æò±Õ¸Å°¢°¡
¸Å°¢°¡À²
Æò±ÕÀ¯Âû¼ö
3°³¿ù 27°Ç 872,744,719¿ø
343,595,127¿ø
36%
3.7ȸ
6°³¿ù 42°Ç 869,960,654¿ø
364,968,198¿ø
41%
3.6ȸ
12°³¿ù 81°Ç 830,919,806¿ø
364,865,006¿ø
45%
3.2ȸ


º» °æ¸ÅÁ¤º¸´Â ¹ý¿øÀÚ·á¿Í ÀÏÄ¡Çϵµ·Ï ÇÏ¿´À¸³ª ±Ç¸®»çÇ׺¯µ¿, ÀÔ·ÂÂø¿À µîÀÇ ¿øÀÎÀ¸·Î »ç½Ç°ú ´Ù¸¦ ¼ö ÀÖ½À´Ï´Ù. ÀÌ¿ë¾à°ü¿¡ ÀǰЏéÃ¥Á¶°ÇÀ¸·Î Á¦°øµÊÀ» ¾Ë¸®¸ç, °æ¸ÅÀÔÂû½Ã ¹Ýµå½Ã °ü·Ã °øºÎ¸¦ ÀçÈ®ÀÎÇϽñ⠹ٶø´Ï´Ù. º¸´Ù Æí¸®ÇÑ °æ¸ÅÁ¤º¸ Á¦°øÀ» À§ÇØ Áö¼ÓÀûÀ¸·Î °³¼±ÇϰڽÀ´Ï´Ù. ÀÌ¿ëÇØ Áּż­ °¨»çÇÕ´Ï´Ù.