·Î±×ÀÎ
1347
¾ÆÆÄÆ®
ÀÇÁ¤ºÎÁö¹æ¹ý¿ø °í¾çÁö¿ø
 °¨Á¤°¡315,000,000 ¿ø
 ÃÖÀú°¡(70%) 220,500,000 ¿ø
 º¸Áõ±Ý(20%) 44,100,000 ¿ø
 Ã»±¸¾×206,645,783 ¿ø
°æ±âµµ °í¾ç½Ã ´ö¾ç±¸ È­Á¤µ¿ 1004 ¿Áºû¸¶À»¾ÆÆÄÆ® 1402µ¿ 8Ãþ805È£
»ç°Ç¹øÈ£ 2025Ÿ°æ63756
Áߺ¹»ç°ÇÁߺ¹ 2025Ÿ°æ63817,
°æ¸ÅÁ¾·ùºÎµ¿»êÀÓÀǰæ¸Å
¸Å°¢´ë»óÅäÁö ¹× °Ç¹°Àϰý ¸Å°¢
¸Å°¢±âÀÏ    2026.04.07(È­) 10:00 ÀÔÂû 13ÀÏÀü    
ÅäÁö¸éÀû35.26§³(10.67 Æò)
°Ç¹°¸éÀû50.00§³(15.13 Æò)
乫/¼ÒÀ¯ÀÚÀ±OO¿Ü 1¸í / À±OO¿Ü 1¸í
ä±ÇÀÚÈïOOOOO OOOO¿Ü 1¸í
ÆäÀ̽ººÏ Æ®À§ÅÍ ±¸±Û+
īī¿À½ºÅ丮
īī¿ÀÅå sms¹®ÀÚº¸³»±â
 

±âÀϳ»¿ª

°æ°ú ³¯Â¥ Àú°¨ ÃÖÀú°¡ °á°ú
Á¢¼öÀÏ 2025-07-23 °æ¸ÅÁ¢¼ö
~2ÀÏ 
2025-07-25 °æ¸Å°³½Ã°áÁ¤
~96ÀÏ 
2025-10-27 ¹è´ç¿ä±¸Á¾±âÀÏ
~139ÀÏ 
2025-12-09 100%
315,000,000
À¯Âû
~181ÀÏ 
2026-01-20 70%
220,500,000
¸Å°¢
³«Âû°¡ 291,111,111 (92%)
~225ÀÏ 
2026-03-05 ¹Ì³³
~258ÀÏ 
2026-04-07 70%
220,500,000
ÁøÇà
¹°°Ç¸í¼¼¼­ ÇöȲÁ¶»ç¼­ ¹®°ÇÁ¢¼ö ¼Û´Þ³»¿ª

°¨Á¤Æò°¡ÇöȲ

¸ñ·Ï ÁÖ¼Ò ±¸Á¶/¿ëµµ/´ëÁö±Ç ¸éÀû ºñ°í
´ëÁö±Ç
È­Á¤µ¿ 1004 28567.90ºÐÀÇ 35.257 35.257 §³
(10.67Æò)
°Ç¹°
È­Á¤µ¿ 1004 1402µ¿ 8Ãþ805È£ ö±ÙÄÜÅ©¸®Æ®º®½Ä±¸Á¶ 50.00 §³
(15.13Æò)
1) À§Ä¡/µµ½ÃÁö¿ª/Á¦3Á¾ÀϹÝÁÖ°ÅÁö¿ª/Áö±¸´ÜÀ§°èȹ±¸¿ª/³ë¼±¹ö½º Á¤·ùÀå/Æò½º¶óºêÁöºØ ´õº¸±â
°¨Á¤Æò°¡ ¿äÇ×Ç¥
1)À§Ä¡ ¹× ÁÖÀ§È¯°æ
º»°ÇÀº °æ±âµµ °í¾ç½Ã ´ö¾ç±¸ È­Á¤µ¿ ¼ÒÀç ""ÁöµµÃʵîÇб³"" ºÏ¼­Ãø Àαٿ¡ À§Ä¡Çϸç, ÁÖÀ§´Â ´ë±Ô¸ð ¾ÆÆÄÆ® ´ÜÁö, ±Ù¸°°ø¿ø, ±Ù¸°»ýȰ½Ã¼³, °¢±ÞÇб³ µîÀÌ È¥ÀçÇÏ´Â Áö¿ªÀ¸·Î Á¦¹Ý ÁÖÀ§È¯°æÀº º¸ÅëÀÔ´Ï´Ù.
2)±³Åë»óȲ
º»°Ç±îÁö Â÷·® Áø,ÃâÀÔÀÌ °¡´ÉÇϸç, Àαٿ¡ ³ë¼±¹ö½º Á¤·ùÀåÀÌ ¼ÒÀçÇÏ´Â µî Á¦¹Ý ±³Åë»óȲÀº º¸ÅëÀÔ´Ï´Ù.
3)°Ç¹°ÀÇ ±¸Á¶
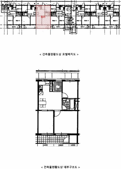
ö±ÙÄÜÅ©¸®Æ®º®½Ä±¸Á¶ Æò½º¶óºêÁöºØ 14Ãþ Áß 8Ãþ 805È£·Î¼­,

¿Üº®: ¸ôÅ»À§ ÆäÀÎÆÃ ¸¶°¨ µî,
âȣ: ¼¦½Ã âȣÀÓ.
4)ÀÌ¿ë»óÅÂ
¾ÆÆÄÆ®(ÈÄ÷ '³»ºÎ±¸Á¶µµ' ÂüÁ¶)·Î ÀÌ¿ë Áß ÀÔ´Ï´Ù.
5)¼³ºñ³»¿ª
À§»ý ¹× ±Þ,¹è¼ö¼³ºñ, ½Â°­±â¼³ºñ, ³­¹æ¼³ºñ, È­ÀçŽÁö¼³ºñ µîÀÌ µÇ¾î ÀÖ½À´Ï´Ù.


6)ÅäÁöÀÇ Çü»ó ¹× ÀÌ¿ë»óÅÂ
ÀÎÁ¢Áö ´ëºñ µî°íÆòźÇÑ »ç´Ù¸®ÇüÀÇ ÅäÁö·Î¼­, ¾ÆÆÄÆ®´ÜÁö °ÇºÎÁö·Î ÀÌ¿ë Áß ÀÔ´Ï´Ù.
7)ÀÎÁ¢ µµ·Î»óŵî
¾ÆÆÄÆ® ´ÜÁö ³» µµ·Î¸¦ ÅëÇØ ¿Ü°û °øµµ¿Í ¿¬°áµË´Ï´Ù.
8)ÅäÁöÀÌ¿ë°èȹ ¹× Á¦ÇÑ»óÅÂ
Á¦3Á¾ÀϹÝÁÖ°ÅÁö¿ª, Áö±¸´ÜÀ§°èȹ±¸¿ª(È­Á¤´É°îÅÃÁö°³¹ß), ¼Ò·Î2·ù(Æø 8m~10m)(Á¢ÇÕ), Áß·Î1·ù(Æø 20m~25m)(Á¢ÇÕ), Áß·Î2·ù(Æø 15m~20m)(Á¢ÇÕ) °¡Ãà»çÀ°Á¦Çѱ¸¿ª(2024-11-12)(ÀüºÎÁ¦Çѱ¸¿ª [µµ½ÃÁö¿ª{ÁÖ°Å,»ó¾÷,°ø¾÷,³ìÁö(ÀÚ¿¬Ãë¶ôÁö±¸)}¹×ÁְŹÐÁýÁö¿ª])<°¡ÃàºÐ´¢ÀÇ °ü¸® ¹× À̿뿡 °üÇÑ ¹ý·ü>, »ó´ëº¸È£±¸¿ª(ÁöµµÁßÇб³)<±³À°È¯°æ º¸È£¿¡ °üÇÑ ¹ý·ü>, »ó´ëº¸È£±¸¿ª(ÁöµµÃʵîÇб³)<±³À°È¯°æ º¸È£¿¡ °üÇÑ ¹ý·ü>, °ú¹Ð¾ïÁ¦±Ç¿ª<¼öµµ±ÇÁ¤ºñ°èȹ¹ý>
9)°øºÎ¿ÍÀÇ Â÷ÀÌ
¾ø½À´Ï´Ù.
10)±âŸÂü°í»çÇ×(ÀÓ´ë°ü·Ê ¹× ±âŸ)
ÀÓ´ë°ü°è ¹Ì»óÀÔ´Ï´Ù.
Âü°í
»çÇ×
Ưº°¸Å°¢Á¶°Ç: ¸Å¼ö½Åûº¸Áõ±ÝÀº ÃÖÀú¸Å°¢°¡°ÝÀÇ 20%ÀÓ.
º»°Ç °Ç¹°Àº ö±ÙÄÜÅ©¸®

°ÇÃ๰ÇöȲ

¼ÒÀçÁö °æ±âµµ °í¾ç½Ã ´ö¾ç±¸ È­Á¤µ¿ 1004¹øÁö
´ëÁö¸éÀû   ¿¬¸éÀû 10735.64§³
(3253.22Æò)
°ÇÃà¸éÀû   ¿ëÀû·ü»êÁ¤
¿¬¸éÀû
10222.71§³
(3097.79Æò)
°ÇÆóÀ²   ¿ëÀû·ü  
Áö»óÃþ¼ö 19Ãþ ÁöÇÏÃþ¼ö 1Ãþ
ÁÖ¿ëµµ °øµ¿ÁÖÅà ±¸Á¶ ö±ÙÄÜÅ©¸®Æ®±¸Á¶
Âø°øÀÏÀÚ 1993.08.10 »ç¿ë½ÂÀÎÀÏÀÚ 1995.11.08
°ÇÃ๰Ãþº°ÇöȲ [º¸±â]


µî±âºÎµîº» ¿ä¾à(°Ç¹°)

  Á¢¼öÀÏÀÚ µî±â¸ñÀû/±Ç¸®ÀÚ ±Ç¸®±Ý¾× ±âÁØ
1 1995³â12¿ù7ÀÏ
¼ÒÀ¯±Ç
˱OO
¼Ò¸ê
2 2021³â8¿ù26ÀÏ
±ÙÀú´ç±Ç
ÈïOOOO
237,600,000 ¼Ò¸ê±âÁØ
3 2022³â3¿ù7ÀÏ
±ÙÀú´ç±Ç
(OOOO
104,400,000 ¼Ò¸ê
4 2025³â6¿ù10ÀÏ
°¡¾Ð·ù
(OOOO
17,253,636 ¼Ò¸ê
5 2025³â7¿ù25ÀÏ
ÀÓÀǰæ¸Å
ÈïOOOO
¼Ò¸ê
6 2025³â7¿ù31ÀÏ
ÀÓÀǰæ¸Å
(OOOO
¼Ò¸ê
7 2025³â8¿ù4ÀÏ
°¡¾Ð·ù
½ÅOOOO
23,121,373 ¼Ò¸ê

ÀÓÂ÷ÀÎÇöȲ (¹è´ç¿ä±¸Á¾±âÀÏ: 2025-10-27)


Á¶»çµÈ ÀÓÂ÷³»¿ªÀÌ ¾ø½À´Ï´Ù


¾ÆÆÄÆ® Á¤º¸

ÁÖ¼Ò
½Ã°ø»ç ´ÜÁö±Ô¸ð 6°³µ¿ ¼¼´ë
³­¹æ »ç¿ë½ÂÀÎ
°ü¸®¼Ò
Àü¿ë¸éÀû ¼¼´ë¼ö
´ëÁö±Ç
Çö°ü/±¸Á¶ ½Ä / ¹æ, ¿å½Ç
  • Çб³
  • ÁÖº¯½Ã¼³
  • ´ëÁß±³Åë

¿©ÀÇÁÖ°æ¸Å Á¶¾ð ÇÑ ¸¶µð


ÁÖÀÇ»çÇ× (ÃÖ¼±¼øÀ§ ¼³Á¤ÀÏ: )

¸Å°¢À¸·Î ¼Ò¸êµÇÁö ¾Ê´Â µî±âºÎ±Ç¸®:
¸Å°¢À¸·Î ¼³Á¤µÈ °ÍÀ¸·Î º¸´Â Áö»ó±Ç:
¡Ø¹Ì³³°ü¸®ºñ(°ø¿ë) Àμö¿©ºÎ¸¦ ÀÔÂû Àü¿¡ È®ÀÎÇϽñ⠹ٶø´Ï´Ù

 

Áö¿ªºÐ¼®

ÁöÇÏö¸í Á÷¼±°Å¸®

Çб³¸í ÀüÈ­¹øÈ£ ÁÖ¼Ò Á÷¼±°Å¸®

¹ý¿ø

ÀÇÁ¤ºÎÁö¹æ¹ý¿ø °í¾çÁö¿ø (104-13)°æ±âµµ °í¾ç½Ã Àϻ굿±¸ Àå¹é·Î 209
´ëÇ¥ : 031)920-6114, ¾ß°£ : 031)920-6550, ÆÑ½º : 031)920-6119
°üÇÒÁö¿ª : °í¾ç½Ã, ÆÄÁÖ½Ã

µî±â¼Ò ÀÇÁ¤ºÎÁö¹æ¹ý¿ø °í¾çÁö¿ø °í¾çµî±â¼Ò (´ëÇ¥:1544-0773, ÆÑ½º:(031)920-5959, °æ±âµµ °í¾ç½Ã Àϻ굿±¸ Áß¾Ó·Î1275¹ø±æ 38-30 (ÀåÇ×µ¿ 773))
¼¼¹«¼­ µ¿°í¾ç¼¼¹«¼­ (´ëÇ¥:031-900-62, ÆÑ½º:031-963-2979, °æ±âµµ °í¾ç½Ã ´ö¾ç±¸ È­Áß·Î 104¹ø±æ 16(È­Á¤µ¿))

Àαٳ«ÂûÅë°è

±â°£ ¸Å°¢°Ç¼ö Æò±Õ°¨Á¤°¡
Æò±Õ¸Å°¢°¡
¸Å°¢°¡À²
Æò±ÕÀ¯Âû¼ö
3°³¿ù 26°Ç 517,000,000¿ø
430,591,095¿ø
82%
1.4ȸ
6°³¿ù 50°Ç 506,840,000¿ø
432,054,700¿ø
84%
1.4ȸ
12°³¿ù 105°Ç 537,796,190¿ø
455,415,766¿ø
83%
1.3ȸ


º» °æ¸ÅÁ¤º¸´Â ¹ý¿øÀÚ·á¿Í ÀÏÄ¡Çϵµ·Ï ÇÏ¿´À¸³ª ±Ç¸®»çÇ׺¯µ¿, ÀÔ·ÂÂø¿À µîÀÇ ¿øÀÎÀ¸·Î »ç½Ç°ú ´Ù¸¦ ¼ö ÀÖ½À´Ï´Ù. ÀÌ¿ë¾à°ü¿¡ ÀǰЏéÃ¥Á¶°ÇÀ¸·Î Á¦°øµÊÀ» ¾Ë¸®¸ç, °æ¸ÅÀÔÂû½Ã ¹Ýµå½Ã °ü·Ã °øºÎ¸¦ ÀçÈ®ÀÎÇϽñ⠹ٶø´Ï´Ù. º¸´Ù Æí¸®ÇÑ °æ¸ÅÁ¤º¸ Á¦°øÀ» À§ÇØ Áö¼ÓÀûÀ¸·Î °³¼±ÇϰڽÀ´Ï´Ù. ÀÌ¿ëÇØ Áּż­ °¨»çÇÕ´Ï´Ù.