·Î±×ÀÎ
61
ÁÖÅÃ
ÀÇÁ¤ºÎÁö¹æ¹ý¿ø °í¾çÁö¿ø
 °¨Á¤°¡1,246,417,360 ¿ø
 ÃÖÀú°¡(100%) 1,246,417,360 ¿ø
 º¸Áõ±Ý(10%) 124,641,736 ¿ø
 Ã»±¸¾×37,546,521 ¿ø
°æ±âµµ °í¾ç½Ã Àϻ굿±¸ Á¤¹ß»êµ¿ 833-9
»ç°Ç¹øÈ£ 2025Ÿ°æ62914
°æ¸ÅÁ¾·ùºÎµ¿»ê°­Á¦°æ¸Å
¸Å°¢´ë»óÅäÁö ¹× °Ç¹°Àϰý¸Å°¢
¸Å°¢±âÀÏ    2025.12.09(È­) 10:00 ÀÔÂû 1ÀÏÀü    
ÅäÁö¸éÀû227.30§³(68.76 Æò)
°Ç¹°¸éÀû268.98§³(81.37 Æò)
乫/¼ÒÀ¯ÀÚ¹ÚOO / ¹ÚOO
ä±ÇÀÚÁÖOOO OOOO
ÆäÀ̽ººÏ Æ®À§ÅÍ ±¸±Û+
īī¿À½ºÅ丮
īī¿ÀÅå sms¹®ÀÚº¸³»±â
 

±âÀϳ»¿ª

°æ°ú ³¯Â¥ Àú°¨ ÃÖÀú°¡ °á°ú
Á¢¼öÀÏ 2025-04-16 °æ¸ÅÁ¢¼ö
~1ÀÏ 
2025-04-17 °æ¸Å°³½Ã°áÁ¤
~96ÀÏ 
2025-07-21 ¹è´ç¿ä±¸Á¾±âÀÏ
~237ÀÏ 
2025-12-09 100%
1,246,417,360
ÁøÇà
¹°°Ç¸í¼¼¼­ ÇöȲÁ¶»ç¼­ ¹®°ÇÁ¢¼ö ¼Û´Þ³»¿ª

°¨Á¤Æò°¡ÇöȲ

¸ñ·Ï ÁÖ¼Ò ±¸Á¶/¿ëµµ/´ëÁö±Ç ¸éÀû ºñ°í
ÅäÁö
Á¤¹ß»êµ¿ 833-9 ´ë 227.3 §³
(68.76Æò)
°Ç¹°
Á¤¹ß»êµ¿ 833-9 ÁöÃþ ÁÖÅà ö±ÙÄÜÅ©¸®Æ®Á¶ 71.10 §³
(21.51Æò)
Á¤¹ß»êµ¿ 833-9 1Ãþ ÁÖÅà ö±ÙÄÜÅ©¸®Æ®Á¶ 97.65 §³
(29.54Æò)
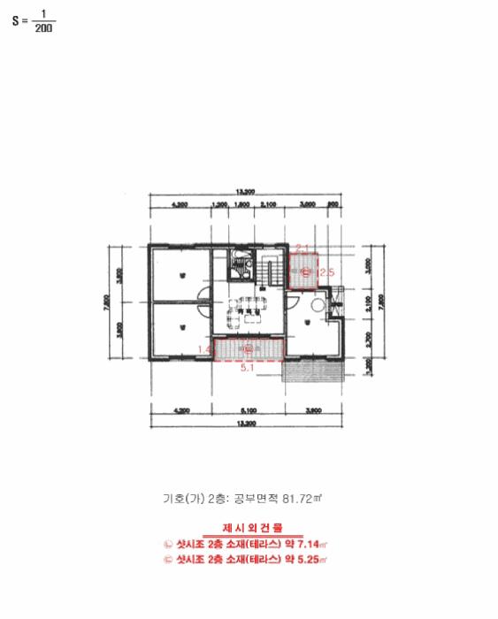
Á¤¹ß»êµ¿ 833-9 2Ãþ ÁÖÅà ö±ÙÄÜÅ©¸®Æ®Á¶ 81.72 §³
(24.72Æò)
Á¦½Ã¿Ü
°Ç¹°
Á¤¹ß»êµ¿ 833-9 ¹ßÄÚ´Ï 6.12 §³
(1.85Æò)
Æ÷ÇÔ
Á¤¹ß»êµ¿ 833-9 ¹ßÄÚ´Ï 7.14 §³
(2.16Æò)
Æ÷ÇÔ
Á¤¹ß»êµ¿ 833-9 ¹ßÄÚ´Ï 5.25 §³
(1.59Æò)
Æ÷ÇÔ
1) À§Ä¡/µµ½ÃÁö¿ª/Á¦1Á¾Àü¿ëÁÖ°ÅÁö¿ª/Áö±¸´ÜÀ§°èȹ±¸¿ª/¹ö½ºÁ¤·ùÀå/Â÷·® Á¢±ÙÀÌ °¡´É/ö±ÙÄÜÅ©¸®Æ®Á¶ ´õº¸±â
°¨Á¤Æò°¡ ¿äÇ×Ç¥
1)À§Ä¡ ¹× ÁÖÀ§È¯°æ
º»°ÇÀº °æ±âµµ °í¾ç½Ã Àϻ굿±¸ Á¤¹ß»êµ¿ ¼ÒÀç ""Àúµ¿ÃʵîÇб³"" µ¿Ãø Àαٿ¡ À§Ä¡Çϸç ÁÖÀ§´Â ´Üµ¶ÁÖÅÃ, ±Ù¸°»ýȰ½Ã¼³ µîÀÌ ¼ÒÀçÇÔ.
2)±³Åë»óȲ
º»°Ç±îÁö Â÷·® Á¢±ÙÀÌ °¡´ÉÇϸç Àαٿ¡ ¹ö½ºÁ¤·ùÀåÀÌ ¼ÒÀçÇϴ¹٠´ëÁß±³Åë»óȲÀº º¸ÅëÀÓ.
3)ÇüÅ ¹× ÀÌ¿ë»óÅÂ
º»°ÇÀº ÀÎÁ¢ÅäÁö ´ëºñ µî°í ÆòźÇÑ °¡ÀåÇü ÅäÁö·Î¼­ ´Üµ¶ÁÖÅà °ÇºÎÁö·Î ÀÌ¿ëÁßÀÓ.
4)ÀÎÁ¢ µµ·Î»óÅÂ
º»°Ç ºÏ¼­ÃøÀ¸·Î Æø ¾à 8m, ºÏµ¿ÃøÀ¸·Î Æø ¾à 6mÀÇ Æ÷Àåµµ·Î¿Í Á¢Çϰí ÀÖÀ½.
5)ÅäÁöÀÌ¿ë°èȹ ¹× Á¦ÇÑ»óÅÂ
Á¦1Á¾Àü¿ëÁÖ°ÅÁö¿ª, Áö±¸´ÜÀ§°èȹ±¸¿ª, ¼Ò·Î2·ù(Æø 8m~10m)(Á¢ÇÕ), ¼Ò·Î3·ù(Æø 8m ¹Ì¸¸)(Á¢ÇÕ) °¡Ãà»çÀ°Á¦Çѱ¸¿ª(2024-11-12)(ÀüºÎÁ¦Çѱ¸¿ª [µµ½ÃÁö¿ª{ÁÖ°Å,»ó¾÷,°ø¾÷,³ìÁö(ÀÚ¿¬Ãë¶ôÁö±¸)}¹×ÁְŹÐÁýÁö¿ª])<°¡ÃàºÐ´¢ÀÇ °ü¸® ¹× À̿뿡 °üÇÑ ¹ý·ü>, »ó´ëº¸È£±¸¿ª(Àúµ¿ÃʵîÇб³)<±³À°È¯°æ º¸È£¿¡ °üÇÑ ¹ý·ü>, °ú¹Ð¾ïÁ¦±Ç¿ª<¼öµµ±ÇÁ¤ºñ°èȹ¹ý>.
6)Á¦½Ã¸ñ·Ï ¿ÜÀÇ ¹°°Ç
¾øÀ½.
7)°øºÎ¿ÍÀÇ Â÷ÀÌ
¾øÀ½.
8)±âŸÂü°í»çÇ×(ÀÓ´ë°ü·Ê ¹× ±âŸ)
ÀÓ´ë°ü°è´Â ¹Ì»óÀÓ.
1)°Ç¹°ÀÇ ±¸Á¶
ö±ÙÄÜÅ©¸®Æ®Á¶ ¹Ú°øÁöºØ(°æ»ç½½¶óºê) 2Ãþ ´Üµ¶ÁÖÅÃ(1°¡±¸)°Ç¹°·Î¼­,
(»ç¿ë½ÂÀÎ:1997.07.18)
¿Üº®: º®µ¹½×±â ¸¶°¨ µî.
âȣ: ¼¦½Ã âȣÀÓ.
2)ÀÌ¿ë»óÅÂ
´Üµ¶ÁÖÅÃÀ¸·Î ÀÌ¿ëÁßÀÓ.
(ÈÄ÷""°Ç¹°ÀÌ¿ë ¹× ³»ºÎ±¸Á¶µµ"" ÂüÁ¶)
3)¼³ºñ³»¿ª
º»°ÇÀº ±âº»ÀûÀÎ À§»ý ¹× ±Þ¹è¼ö¼³ºñ, ³­¹æ¼³ºñ µîÀÌ µÇ¾î ÀÖÀ½.
4)ºÎÇÕ¹° ¹× Á¾¹°
ÈÄ÷ ""ÁöÀû ¹× °Ç¹°°³È²µµ"" ÂüÁ¶.
5)°øºÎ¿ÍÀÇ Â÷ÀÌ
¾øÀ½.
6)±âŸÂü°í»çÇ×(ÀÓ´ë°ü·Ê ¹× ±âŸ)
ÀÓ´ë°ü°è´Â ¹Ì»óÀÓ.
Âü°í
»çÇ×
1. Àϰý¸Å°¢. Á¦½Ã¿Ü °Ç¹° Æ÷ÇÔ. 2. º»°Ç Áö»óÀÇ Á¶°æ¼ö,Àܵð,¿ïŸ¸® µîÀº ÅäÁö¿¡ ȭüµÇ´Â ºÎºÐÀ¸·Î Åë»óÀûÀÎ °Å·¡°üÇà µîÀ» °¨¾ÈÇÏ¿© ÅäÁö¿¡ Æ÷ÇÔÇÏ¿© Æò°¡µÊ.
1.¸ñ·Ï1Àº ¸ñ·Ï2 °Ç¹°ÀÇ ´ëÁö·Î »ç¿ë 2

°ÇÃ๰ÇöȲ

¼ÒÀçÁö °æ±âµµ °í¾ç½Ã Àϻ굿±¸ Á¤¹ß»êµ¿ 833-9¹øÁö
´ëÁö¸éÀû 227.3§³
(68.88Æò)
¿¬¸éÀû 250.47§³
(75.9Æò)
°ÇÃà¸éÀû 100.98§³
(30.6Æò)
¿ëÀû·ü»êÁ¤
¿¬¸éÀû
179.37§³
(54.35Æò)
°ÇÆóÀ² 44.43% ¿ëÀû·ü 78.91%
Áö»óÃþ¼ö 2Ãþ ÁöÇÏÃþ¼ö 1Ãþ
ÁÖ¿ëµµ ´Üµ¶ÁÖÅà ±¸Á¶ ö±ÙÄÜÅ©¸®Æ®±¸Á¶
Âø°øÀÏÀÚ 1996.11.05 »ç¿ë½ÂÀÎÀÏÀÚ 1997.07.18
°ÇÃ๰Ãþº°ÇöȲ [º¸±â]


µî±âºÎµîº» ¿ä¾à(ÅäÁö)

  Á¢¼öÀÏÀÚ µî±â¸ñÀû/±Ç¸®ÀÚ ±Ç¸®±Ý¾× ±âÁØ
1 1996³â1¿ù30ÀÏ
¼ÒÀ¯±Ç
¹ÚOO
¼Ò¸ê
2 2013³â10¿ù8ÀÏ
±ÙÀú´ç±Ç
(OOOO
332,400,000 ¼Ò¸ê±âÁØ
3 2022³â5¿ù2ÀÏ
°¡¾Ð·ù
½ÅOOOO
120,000,000 ¼Ò¸ê
4 2022³â5¿ù13ÀÏ
°¡¾Ð·ù
±âOOOO
170,000,000 ¼Ò¸ê
5 2023³â10¿ù6ÀÏ
°¡¾Ð·ù
(OOOO
32,290,944 ¼Ò¸ê
6 2023³â12¿ù22ÀÏ
°¡¾Ð·ù
ÁßOOOO
35,970,820 ¼Ò¸ê
7 2024³â3¿ù6ÀÏ
¾Ð·ù
±¹
¼Ò¸ê
8 2024³â6¿ù12ÀÏ
¾Ð·ù
°íOO
¼Ò¸ê
9 2025³â1¿ù14ÀÏ
¾Ð·ù
±¹
¼Ò¸ê
10 2025³â4¿ù17ÀÏ
°­Á¦°æ¸Å
(OOOO
¼Ò¸ê

µî±âºÎµîº» ¿ä¾à(°Ç¹°)

  Á¢¼öÀÏÀÚ µî±â¸ñÀû/±Ç¸®ÀÚ ±Ç¸®±Ý¾× ±âÁØ
1 1998³â3¿ù16ÀÏ
¼ÒÀ¯±Ç
¹ÚOO
¼Ò¸ê
2 2013³â10¿ù8ÀÏ
±ÙÀú´ç±Ç
(OOOO
332,400,000 ¼Ò¸ê±âÁØ
3 2022³â5¿ù2ÀÏ
°¡¾Ð·ù
½ÅOOOO
120,000,000 ¼Ò¸ê
4 2022³â5¿ù13ÀÏ
°¡¾Ð·ù
±âOOOO
170,000,000 ¼Ò¸ê
5 2023³â10¿ù6ÀÏ
°¡¾Ð·ù
(OOOO
32,290,944 ¼Ò¸ê
6 2023³â12¿ù22ÀÏ
°¡¾Ð·ù
ÁßOOOO
35,970,820 ¼Ò¸ê
7 2024³â3¿ù6ÀÏ
¾Ð·ù
±¹
¼Ò¸ê
8 2025³â1¿ù15ÀÏ
¾Ð·ù
±¹
¼Ò¸ê
9 2025³â4¿ù17ÀÏ
°­Á¦°æ¸Å
(OOOO
¼Ò¸ê

ÀÓÂ÷ÀÎÇöȲ (¹è´ç¿ä±¸Á¾±âÀÏ: 2025-07-21)


Á¶»çµÈ ÀÓÂ÷³»¿ªÀÌ ¾ø½À´Ï´Ù.


¿©ÀÇÁÖ°æ¸Å Á¶¾ð ÇÑ ¸¶µð

Á¦½Ã¿Ü ¹°°ÇÀÌ Æ÷ÇԵǾî ÀÖ½À´Ï´Ù
¡®Á¦½Ã¿Ü ¹°°Ç¡¯Àº ÇØ´ç °øºÎ»ó¿¡´Â Á¸ÀçÇÏÁö ¾ÊÁö¸¸, ÇöÀå¿¡ Á¸Àç°¡ È®ÀεǴ ¿©·¯ ÇüÅÂÀÇ °Ç¹°, ±â°è±â±¸ µîÀ» ¸»ÇÕ´Ï´Ù. ÀÌµé ´ëºÎºÐÀº ¹«Çã°¡, ¹«½Å°íÀ̰ųª »ç¿ë½ÂÀÎÀ» ¹ÞÁö ¾ÊÀº °ÍÀÔ´Ï´Ù. ¡®Á¦½Ã¿Ü ¹°°Ç¡¯ÀÌ °æ¸Å´ë»ó¿¡ Æ÷ÇԵǾî ÀÖ´Ù¸é ³«ÂûÀÚÀÇ ¼ÒÀ¯±Ç Ãëµæ¿¡´Â ¾Æ¹«·± ¹®Á¦°¡ ¾ø½À´Ï´Ù.
ÃëÇÏ ¶Ç´Â Ãë¼ÒµÉ °¡´É¼º ÀÖ½À´Ï´Ù
ÀÌ ¹°°ÇÀÇ °¨Á¤°¡°ÝÀº 1,246,417,360¿øÀÔ´Ï´Ù. °æ¸Å¸¦ ½ÅûÇÑ Ã¤±ÇÀÚ°¡ ¹è´ç ¹Þ¾Æ¾ß ÇÒ ±Ý¾×Àº 37,546,521¿øÀ¸·Î °¨Á¤°¡°Ý ´ëºñ »ó´çÈ÷ ÀûÀº ±Ý¾×ÀÔ´Ï´Ù. ÀÌ·± °æ¿ì, 乫°¡°¡ º¯Á¦ÇÏ¿© °æ¸Å¸¦ ÃëÇϽÃŰ°Å³ª °æ¸Å½Åûä±ÇÀÚ°¡ ¹è´ç¹ÞÀº ±Ý¿øÀÌ ¾ø°ÔµÇ¾î À̸¥ ¹Ù "¹«À׿©¿¡ ÀÇÇÑ Ãë¼Ò"°¡ µÉ °¡´É¼ºÀÌ ÀÖ½À´Ï´Ù.

ÁÖÀÇ»çÇ× (ÃÖ¼±¼øÀ§ ¼³Á¤ÀÏ: 2013.10.8.±ÙÀú´ç±Ç ¼³Á¤)

¸Å°¢À¸·Î ¼Ò¸êµÇÁö ¾Ê´Â µî±âºÎ±Ç¸®:
¸Å°¢À¸·Î ¼³Á¤µÈ °ÍÀ¸·Î º¸´Â Áö»ó±Ç:
1. Àϰý¸Å°¢. Á¦½Ã¿Ü °Ç¹° Æ÷ÇÔ. 2. º»°Ç Áö»óÀÇ Á¶°æ¼ö,Àܵð,¿ïŸ¸® µîÀº ÅäÁö¿¡ ȭüµÇ´Â ºÎºÐÀ¸·Î Åë»óÀûÀÎ °Å·¡°üÇà µîÀ» °¨¾ÈÇÏ¿© ÅäÁö¿¡ Æ÷ÇÔÇÏ¿© Æò°¡µÊ.
¡Ø¹Ì³³°ü¸®ºñ(°ø¿ë) Àμö¿©ºÎ¸¦ ÀÔÂû Àü¿¡ È®ÀÎÇϽñ⠹ٶø´Ï´Ù

 

Áö¿ªºÐ¼®

ÁöÇÏö¸í Á÷¼±°Å¸®

Çб³¸í ÀüÈ­¹øÈ£ ÁÖ¼Ò Á÷¼±°Å¸®

¹ý¿ø

ÀÇÁ¤ºÎÁö¹æ¹ý¿ø °í¾çÁö¿ø (104-13)°æ±âµµ °í¾ç½Ã Àϻ굿±¸ Àå¹é·Î 209
´ëÇ¥ : 031)920-6114, ¾ß°£ : 031)920-6550, ÆÑ½º : 031)920-6119
°üÇÒÁö¿ª : °í¾ç½Ã, ÆÄÁÖ½Ã

µî±â¼Ò ÀÇÁ¤ºÎÁö¹æ¹ý¿ø °í¾çÁö¿ø °í¾çµî±â¼Ò (´ëÇ¥:1544-0773, ÆÑ½º:(031)920-5959, °æ±âµµ °í¾ç½Ã Àϻ굿±¸ Áß¾Ó·Î1275¹ø±æ 38-30 (ÀåÇ×µ¿ 773))
¼¼¹«¼­ °í¾ç¼¼¹«¼­ (´ëÇ¥:031-900-92, ÆÑ½º:031-907-9177, °æ±âµµ °í¾ç½Ã Àϻ굿±¸ Áß¾Ó·Î1275¹ø±æ 14-43 (ÀåÇ×µ¿) )

Àαٳ«ÂûÅë°è

±â°£ ¸Å°¢°Ç¼ö Æò±Õ°¨Á¤°¡
Æò±Õ¸Å°¢°¡
¸Å°¢°¡À²
Æò±ÕÀ¯Âû¼ö
3°³¿ù 1°Ç 7,125,453,000¿ø
2,752,570,000¿ø
39%
3ȸ
6°³¿ù 4°Ç 2,205,019,450¿ø
989,365,000¿ø
62%
2ȸ
12°³¿ù 9°Ç 2,631,348,605¿ø
1,499,304,111¿ø
62%
2ȸ


º» °æ¸ÅÁ¤º¸´Â ¹ý¿øÀÚ·á¿Í ÀÏÄ¡Çϵµ·Ï ÇÏ¿´À¸³ª ±Ç¸®»çÇ׺¯µ¿, ÀÔ·ÂÂø¿À µîÀÇ ¿øÀÎÀ¸·Î »ç½Ç°ú ´Ù¸¦ ¼ö ÀÖ½À´Ï´Ù. ÀÌ¿ë¾à°ü¿¡ ÀǰЏéÃ¥Á¶°ÇÀ¸·Î Á¦°øµÊÀ» ¾Ë¸®¸ç, °æ¸ÅÀÔÂû½Ã ¹Ýµå½Ã °ü·Ã °øºÎ¸¦ ÀçÈ®ÀÎÇϽñ⠹ٶø´Ï´Ù. º¸´Ù Æí¸®ÇÑ °æ¸ÅÁ¤º¸ Á¦°øÀ» À§ÇØ Áö¼ÓÀûÀ¸·Î °³¼±ÇϰڽÀ´Ï´Ù. ÀÌ¿ëÇØ Áּż­ °¨»çÇÕ´Ï´Ù.