·Î±×ÀÎ
92
±Ù¸°»ó°¡
¼ö¿øÁö¹æ¹ý¿ø ¼º³²Áö¿ø
 °¨Á¤°¡2,310,000,000 ¿ø
 ÃÖÀú°¡(70%) 1,617,000,000 ¿ø
 º¸Áõ±Ý(10%) 161,700,000 ¿ø
 Ã»±¸¾×166,948,339 ¿ø
°æ±âµµ ¼º³²½Ã ºÐ´ç±¸ ºÒÁ¤·Î 260, ÁöÇÏÃþ101È£ (¼ö³»µ¿,ÀåÅÍÁ¶ÇÕ»ó°¡)
°æ±âµµ ¼º³²½Ã ºÐ´ç±¸ ¼ö³»µ¿ 88-5
»ç°Ç¹øÈ£ 2024Ÿ°æ70796
°æ¸ÅÁ¾·ùºÎµ¿»êÀÓÀǰæ¸Å
¸Å°¢´ë»óÅäÁö ¹× °Ç¹°Àϰý ¸Å°¢
¸Å°¢±âÀÏ    2026.01.19(¿ù) 10:00 ÀÔÂû 31ÀÏÀü    
ÅäÁö¸éÀû132.20§³(39.99 Æò)
°Ç¹°¸éÀû626.35§³(189.47 Æò)
乫/¼ÒÀ¯ÀÚÀåOO / ÀÌOO¿Ü 3¸í
ä±ÇÀÚ³óOOOOOOOOOOO
ÆäÀ̽ººÏ Æ®À§ÅÍ ±¸±Û+
īī¿À½ºÅ丮
īī¿ÀÅå sms¹®ÀÚº¸³»±â
 

±âÀϳ»¿ª

°æ°ú ³¯Â¥ Àú°¨ ÃÖÀú°¡ °á°ú
Á¢¼öÀÏ 2024-12-03 °æ¸ÅÁ¢¼ö
~1ÀÏ 
2024-12-04 °æ¸Å°³½Ã°áÁ¤
~69ÀÏ 
2025-02-10 ¹è´ç¿ä±¸Á¾±âÀÏ
~370ÀÏ 
2025-12-08 100%
2,310,000,000
À¯Âû
~412ÀÏ 
2026-01-19 70%
1,617,000,000
ÁøÇà
¹°°Ç¸í¼¼¼­ ÇöȲÁ¶»ç¼­ ¹®°ÇÁ¢¼ö ¼Û´Þ³»¿ª

°¨Á¤Æò°¡ÇöȲ

¸ñ·Ï ÁÖ¼Ò ±¸Á¶/¿ëµµ/´ëÁö±Ç ¸éÀû ºñ°í
´ëÁö±Ç
¼ö³»µ¿ 88-5 833ºÐÀÇ 132.2 132.2 §³
(39.99Æò)
°Ç¹°
¼ö³»µ¿ 88-5 ÁöÇÏÃþ101È£ ö±ÙÄÜÅ©¸®Æ®Á¶ 626.35 §³
(189.47Æò)
1) À§Ä¡/±Ù¸°»ó¾÷Áö¿ª/Áö±¸´ÜÀ§°èȹ±¸¿ª/¹ö½ºÁ¤·ùÀå/°£¼±µµ·Î/Â÷·®Á¢±Ù ¿ëÀÌ/µµ½Ã°¡½º ´õº¸±â
°¨Á¤Æò°¡ ¿äÇ×Ç¥
1)À§Ä¡ ¹× ÁÖÀ§È¯°æ
º»°ÇÀº °æ±âµµ ¼º³²½Ã ºÐ´ç±¸ ¼ö³»µ¿ ¼ÒÀç "¼ö³»ÃʵîÇб³" ³²µ¿Ãø Àαٿ¡ À§Ä¡Çϸç, ÁÖÀ§´Â ¾ÆÆÄÆ®´ÜÁö, ´Ù°¡±¸ÁÖÅà ¹× ±Ù¸°»ýȰ½Ã¼³ µîÀÌ È¥ÀçÇÏ´Â Áö¿ªÀ¸·Î¼­ Á¦¹ÝÁÖÀ§È¯°æÀº º¸Åë½Ã µË´Ï´Ù.
2)±³Åë»óȲ
º»°Ç±îÁö Â÷·®Á¢±Ù ¿ëÀÌÇϸç, Àα٠°£¼±µµ·Îº¯À¸·Î ¹ö½ºÁ¤·ùÀåÀÌ ¼ÒÀçÇÏ´Â µî Á¦¹Ý´ëÁß±³Åë»óȲÀº º¸Åë½Ã µË´Ï´Ù.
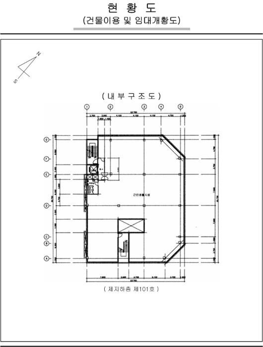
3)°Ç¹°ÀÇ ±¸Á¶
ö±ÙÄÜÅ©¸®Æ® ÆòÁöºØ 5Ãþ Áß Á¦ÁöÇÏÃþ Á¦101È£·Î¼­
(»ç¿ë½ÂÀÎÀÏ:1995.08.17)
¿Ü º® : ¿ÜÀåÆÇ³Ú µî ¸¶°¨.
³» º® : ÀÎÅ׸®¾î µî ¸¶°¨.
4)ÀÌ¿ë»óÅÂ
±Ù¸°»ýȰ½Ã¼³(»óÈ£:º£½ºÆ®¿ø½ºÆ÷Ã÷Ŭ·´)·Î ÀÌ¿ëÁßÀÔ´Ï´Ù.
5)¼³ºñ³»¿ª
±âº»ÀûÀÎ À§»ý¼³ºñ ¹× ±Þ¡¤¹è¼ö¼³ºñ, ¼ÒÈ­Àü¼³ºñ, ½Â°­±â¼³ºñ, Ä«¸®ÇÁÆ®¼³ºñ, µµ½Ã°¡½º¼³ºñ µî µÇ¾îÀÖ½À´Ï´Ù.
6)ÅäÁöÀÇ Çü»ó ¹× ÀÌ¿ë»óÅÂ
´ëü·Î µî°íÆòźÇÑ ¼¼ÀåÇü ÅäÁö·Î¼­ "»ó¾÷¿ë"°ÇºÎÁö·Î ÀÌ¿ëÁßÀÔ´Ï´Ù.
7)ÀÎÁ¢ µµ·Î»óŵî
ºÏ¼­ÃøÀ¸·Î ³ëÆø ¾à 30m ³»¿Ü, ºÏµ¿ÃøÀ¸·Î ³ëÆø ¾à 15m ³»¿Ü ¹× ³²µ¿ÃøÀ¸·Î ³ëÆø ¾à 6m ³»¿ÜÀÇ Æ÷Àåµµ·Î¿Í Á¢Çϰí ÀÖ½À´Ï´Ù.
8)ÅäÁöÀÌ¿ë°èȹ ¹× Á¦ÇÑ»óÅÂ
±Ù¸°»ó¾÷Áö¿ª, Áö±¸´ÜÀ§°èȹ±¸¿ª(ºÐ´ç), ´ë·Î2·ù(Æø 30m-35m)(º¸Á¶°£¼±µµ·Î)(Á¢ÇÕ), ¼Ò·Î3·ù(Æø 8m ¹Ì¸¸)(±¹Áöµµ·Î)(Á¢ÇÕ), Áß·Î2·ù(Æø 15m-20m)(Áý»êµµ·Î)(Á¢ÇÕ), °¡Ãà
»çÀ°Á¦Çѱ¸¿ª, »ó´ëº¸È£±¸¿ª, ´ë±âȯ°æ±ÔÁ¦Áö¿ª, µµ½Ã±³ÅëÁ¤ºñÁö¿ª, °ú¹Ð¾ïÁ¦±Ç¿ªÀÔ
´Ï´Ù.
9)°øºÎ¿ÍÀÇ Â÷ÀÌ
¾ø½À´Ï´Ù.
10)±âŸÂü°í»çÇ×(ÀÓ´ë°ü·Ê ¹× ±âŸ)
ÀÓ´ë°ü°è

¹Ì»óÀÔ´Ï´Ù.


±âŸ

---
Âü°í
»çÇ×
º» °Ç 'º£½ºÆ®¿ø½ºÆ÷Ã÷Ŭ·´'À¸·Î ÀÌ¿ëÁßÀÓ
-ÁöÇÏÃþ 101È£´Â

°ÇÃ๰ÇöȲ

¼ÒÀçÁö °æ±âµµ ¼º³²½Ã ºÐ´ç±¸ ¼ö³»µ¿ 88-5¹øÁö
´ëÁö¸éÀû 835.1§³
(253.06Æò)
¿¬¸éÀû 3915.89§³
(1186.63Æò)
°ÇÃà¸éÀû 533.62§³
(161.7Æò)
¿ëÀû·ü»êÁ¤
¿¬¸éÀû
 
°ÇÆóÀ² 63.9% ¿ëÀû·ü 299.68%
Áö»óÃþ¼ö 5Ãþ ÁöÇÏÃþ¼ö 2Ãþ
ÁÖ¿ëµµ Á¦2Á¾±Ù¸°»ýȰ½Ã¼³ ±¸Á¶ ö±ÙÄÜÅ©¸®Æ®±¸Á¶
Âø°øÀÏÀÚ 1994.08.01 »ç¿ë½ÂÀÎÀÏÀÚ 1995.08.17
°ÇÃ๰Ãþº°ÇöȲ [º¸±â]


µî±âºÎµîº» ¿ä¾à(°Ç¹°)

  Á¢¼öÀÏÀÚ µî±â¸ñÀû/±Ç¸®ÀÚ ±Ç¸®±Ý¾× ±âÁØ
1 2005³â4¿ù8ÀÏ
¼ÒÀ¯±Ç
ÀåOO
¼Ò¸ê
2 1995³â12¿ù13ÀÏ
¼ÒÀ¯±Ç
ÀåOO
¼Ò¸ê
3 2022³â5¿ù18ÀÏ
¼ÒÀ¯±Ç
ÀÌOO
¼Ò¸ê
4 1995³â12¿ù13ÀÏ
¼ÒÀ¯±Ç
ÀÌOO
¼Ò¸ê
5 2006³â7¿ù11ÀÏ
¼ÒÀ¯±Ç
±èOO
¼Ò¸ê
6 2013³â3¿ù29ÀÏ
±ÙÀú´ç±Ç
³óOOOO
260,000,000 ¼Ò¸ê±âÁØ
7 2024³â12¿ù4ÀÏ
ÀÓÀǰæ¸Å
³óOOOO
¼Ò¸ê

ÀÓÂ÷ÀÎÇöȲ (¹è´ç¿ä±¸Á¾±âÀÏ: 2025-02-10)

ÀÓÂ÷ÀÎ ¿ëµµ/Á¡À¯ º¸Áõ±Ý/¿ù¼¼ ´ëÇ×·Â
ÀüÀÔÀÏ/È®Á¤ÀÏ ¹è´ç¿ä±¸ ºñ°í
¹ÚOO ÀϺÎB1ÃþÁß313.175§© 40,000,000
[¿ù]1,800,000
X
2023.02.01.
2025.01.09.
2025.2.7. 2013.09.03.ºÎÅÍ2025.02.07.±îÁö
½ÅOO ÀϺÎB1ÃþÁß313.175§© 40,000,000
[¿ù]1,800,000
X
2023.02.01.
2025.01.09.
2025.2.7. 2013.09.03.ºÎÅÍ2025.02.07.±îÁö
ÃÖOO 80,000,000
[¿ù]2,500,000
O
1997.07.23
ºñ°í
(¸Å°¢¹°°Ç
¸í¼¼¼­)
¹ÚÁÖ¿Ï:º£½ºÆ®¿ø ½ºÆ÷Ã÷Ŭ·´ ¿î¿µ ½Å¼ºÀç:¿¡ÇÁ¾¾¿ø Ã౸±³½Ç ¿î¿µ

¿©ÀÇÁÖ°æ¸Å Á¶¾ð ÇÑ ¸¶µð

ÃëÇÏ ¶Ç´Â Ãë¼ÒµÉ °¡´É¼º ÀÖ½À´Ï´Ù
ÀÌ ¹°°ÇÀÇ °¨Á¤°¡°ÝÀº 2,310,000,000¿øÀÔ´Ï´Ù. °æ¸Å¸¦ ½ÅûÇÑ Ã¤±ÇÀÚ°¡ ¹è´ç ¹Þ¾Æ¾ß ÇÒ ±Ý¾×Àº 166,948,339¿øÀ¸·Î °¨Á¤°¡°Ý ´ëºñ »ó´çÈ÷ ÀûÀº ±Ý¾×ÀÔ´Ï´Ù. ÀÌ·± °æ¿ì, 乫°¡°¡ º¯Á¦ÇÏ¿© °æ¸Å¸¦ ÃëÇϽÃŰ°Å³ª °æ¸Å½Åûä±ÇÀÚ°¡ ¹è´ç¹ÞÀº ±Ý¿øÀÌ ¾ø°ÔµÇ¾î À̸¥ ¹Ù "¹«À׿©¿¡ ÀÇÇÑ Ãë¼Ò"°¡ µÉ °¡´É¼ºÀÌ ÀÖ½À´Ï´Ù.

ÁÖÀÇ»çÇ× (ÃÖ¼±¼øÀ§ ¼³Á¤ÀÏ: 2013.03.29.±ÙÀú´ç±Ç ¼³Á¤)

¸Å°¢À¸·Î ¼Ò¸êµÇÁö ¾Ê´Â µî±âºÎ±Ç¸®:
¸Å°¢À¸·Î ¼³Á¤µÈ °ÍÀ¸·Î º¸´Â Áö»ó±Ç:
º» °Ç 'º£½ºÆ®¿ø½ºÆ÷Ã÷Ŭ·´'À¸·Î ÀÌ¿ëÁßÀÓ
¡Ø¹Ì³³°ü¸®ºñ(°ø¿ë) Àμö¿©ºÎ¸¦ ÀÔÂû Àü¿¡ È®ÀÎÇϽñ⠹ٶø´Ï´Ù

 

Áö¿ªºÐ¼®

ÁöÇÏö¸í Á÷¼±°Å¸®

Çб³¸í ÀüÈ­¹øÈ£ ÁÖ¼Ò Á÷¼±°Å¸®

¹ý¿ø

¼ö¿øÁö¹æ¹ý¿ø ¼º³²Áö¿ø (131-43)°æ±âµµ ¼º³²½Ã ¼öÁ¤±¸ »ê¼º´ë·Î 451 (´Ü´ëµ¿)
´ëÇ¥ : 031)737-1558, ¾ß°£ : 031)737-1120
°üÇÒÁö¿ª : ¼º³²½Ã, ±¤ÁÖ½Ã, Çϳ²½Ã

µî±â¼Ò ¼ö¿øÁö¹æ¹ý¿ø ¼º³²Áö¿ø ºÐ´çµî±â¼Ò (´ëÇ¥:1544-0773, ÆÑ½º:(031)709-1164, °æ±âµµ ¼º³²½Ã ºÐ´ç±¸ ºÒÁ¤·Î406¹ø±æ 21 (¼­Çöµ¿ 318))
¼¼¹«¼­ ºÐ´ç¼¼¹«¼­ (´ëÇ¥:031-219-92, ÆÑ½º:031-781-6851, °æ±âµµ ¼º³²½Ã ºÐ´ç±¸ Ȳ»õ¿ï·Î 311¹ø±æ 11)

Àαٳ«ÂûÅë°è

±â°£ ¸Å°¢°Ç¼ö Æò±Õ°¨Á¤°¡
Æò±Õ¸Å°¢°¡
¸Å°¢°¡À²
Æò±ÕÀ¯Âû¼ö
3°³¿ù 4°Ç 510,650,000¿ø
475,435,043¿ø
78%
1.5ȸ
6°³¿ù 8°Ç 615,450,000¿ø
581,103,771¿ø
82%
1.3ȸ
12°³¿ù 8°Ç 615,450,000¿ø
581,103,771¿ø
82%
1.3ȸ


º» °æ¸ÅÁ¤º¸´Â ¹ý¿øÀÚ·á¿Í ÀÏÄ¡Çϵµ·Ï ÇÏ¿´À¸³ª ±Ç¸®»çÇ׺¯µ¿, ÀÔ·ÂÂø¿À µîÀÇ ¿øÀÎÀ¸·Î »ç½Ç°ú ´Ù¸¦ ¼ö ÀÖ½À´Ï´Ù. ÀÌ¿ë¾à°ü¿¡ ÀǰЏéÃ¥Á¶°ÇÀ¸·Î Á¦°øµÊÀ» ¾Ë¸®¸ç, °æ¸ÅÀÔÂû½Ã ¹Ýµå½Ã °ü·Ã °øºÎ¸¦ ÀçÈ®ÀÎÇϽñ⠹ٶø´Ï´Ù. º¸´Ù Æí¸®ÇÑ °æ¸ÅÁ¤º¸ Á¦°øÀ» À§ÇØ Áö¼ÓÀûÀ¸·Î °³¼±ÇϰڽÀ´Ï´Ù. ÀÌ¿ëÇØ Áּż­ °¨»çÇÕ´Ï´Ù.