·Î±×ÀÎ
84
´Ù¼¼´ë(ºô¶ó)
¼ö¿øÁö¹æ¹ý¿ø ¼º³²Áö¿ø
 °¨Á¤°¡128,000,000 ¿ø
 ÃÖÀú°¡(70%) 89,600,000 ¿ø
 º¸Áõ±Ý(10%) 8,960,000 ¿ø
 Ã»±¸¾×16,793,709 ¿ø
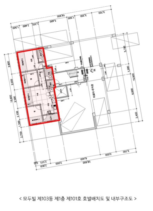
°æ±âµµ ±¤Áֽà ¿ÀÆ÷¾È·Î 294-4, 103µ¿ 1Ãþ 101È£ (ÃßÀÚµ¿,¸ðµÎºô)
°æ±âµµ ±¤Áֽà ÃßÀÚµ¿ 471-21
»ç°Ç¹øÈ£ 2024Ÿ°æ70147
°æ¸ÅÁ¾·ùºÎµ¿»ê°­Á¦°æ¸Å
¸Å°¢´ë»óÅäÁö ¹× °Ç¹°Àϰý ¸Å°¢
¸Å°¢±âÀÏ    2026.01.19(¿ù) 10:00 ÀÔÂû 36ÀÏÀü    
ÅäÁö¸éÀû45.12§³(13.65 Æò)
°Ç¹°¸éÀû55.38§³(16.75 Æò)
乫/¼ÒÀ¯ÀÚÁøOO / ÁøOO
ä±ÇÀÚ¼­OOOOOOOOOOOO
ÆäÀ̽ººÏ Æ®À§ÅÍ ±¸±Û+
īī¿À½ºÅ丮
īī¿ÀÅå sms¹®ÀÚº¸³»±â
 

±âÀϳ»¿ª

°æ°ú ³¯Â¥ Àú°¨ ÃÖÀú°¡ °á°ú
Á¢¼öÀÏ 2024-11-20 °æ¸ÅÁ¢¼ö
~1ÀÏ 
2024-11-21 °æ¸Å°³½Ã°áÁ¤
~63ÀÏ 
2025-01-22 ¹è´ç¿ä±¸Á¾±âÀÏ
~383ÀÏ 
2025-12-08 100%
128,000,000
À¯Âû
~425ÀÏ 
2026-01-19 70%
89,600,000
ÁøÇà
¹°°Ç¸í¼¼¼­ ÇöȲÁ¶»ç¼­ ¹®°ÇÁ¢¼ö ¼Û´Þ³»¿ª

°¨Á¤Æò°¡ÇöȲ

¸ñ·Ï ÁÖ¼Ò ±¸Á¶/¿ëµµ/´ëÁö±Ç ¸éÀû ºñ°í
´ëÁö±Ç
ÃßÀÚ¸® 471-21 468ºÐÀÇ 45.12 45.12 §³
(13.65Æò)
°Ç¹°
ÃßÀÚµ¿ 471-21 103µ¿ 1Ãþ 101È£ ö±ÙÄÜÅ©¸®Æ®Á¶ 55.38 §³
(16.75Æò)
1) À§Ä¡/°èȹ°ü¸®Áö¿ª/Áö±¸´ÜÀ§°èȹ±¸¿ª/³ë¼±¹ö½ºÁ¤·ùÀå/ö±ÙÄÜÅ©¸®Æ®±¸Á¶/µµ½Ã°¡½º/¹æ3/¿å½Ç2 ´õº¸±â
°¨Á¤Æò°¡ ¿äÇ×Ç¥
1)À§Ä¡ ¹× ÁÖÀ§È¯°æ
´ë»ó¹°°ÇÀº °æ±âµµ ±¤Áֽà ÃßÀÚµ¿ ¼ÒÀç "¿ÀÆ÷ÃʵîÇб³" ºÏµ¿Ãø Àαٿ¡ À§Ä¡Çϸç,
º»°Ç ÀαÙÀº ´Ù¼¼´ëÁÖÅÃ, ´Üµ¶ÁÖÅÃ, ¾ÆÆÄÆ®´ÜÁö µîÀÌ ¼ÒÀçÇÏ´Â ÁÖÅÃÁö´ëÀÓ.
2)±³Åë»óȲ
º»°Ç±îÁö Â÷·®ÀÇ Áø¡¤ÃâÀÔÀÌ °¡´ÉÇϰí,
Àαٿ¡ ³ë¼±¹ö½ºÁ¤·ùÀå µîÀÌ ¼ÒÀçÇÏ´Â µî Á¦¹Ý±³Åë»çÁ¤Àº ¾çÈ£ÇÑ ÆíÀÓ.
3)°Ç¹°ÀÇ ±¸Á¶
ö±ÙÄÜÅ©¸®Æ®±¸Á¶ (ö±Ù)ÄÜÅ©¸®Æ®ÁöºØ Áö»ó 4Ãþ °Ç¹° ³» Á¦1Ãþ Á¦101È£·Î¼­,
¿Ü º® : Ä¡À庮µ¹½×±â, ¸ôÅ»À§ ÆäÀÎÆÃ ¸¶°¨ µî,
â È£ : ¼¦½Ãâȣ µîÀÓ.
4)ÀÌ¿ë»óÅÂ
ÇöȲ ´Ù¼¼´ëÁÖÅÃ(°Å½Ç, ÁÖ¹æ, ¹æ3, ¿å½Ç2 µî)À¸·Î ÀÌ¿ëÁßÀÓ.
5)¼³ºñ³»¿ª
À§»ý¡¤±Þ¹è¼ö¼³ºñ, µµ½Ã°¡½º¿¡ ÀÇÇÑ ³­¹æ¼³ºñ,
¼ÒÈ­Àü¼³ºñ ¹× È­ÀçŽÁö¼³ºñ µî ±âº»ÀûÀÎ ¼³ºñ°¡ ±¸ºñµÇ¾î ÀÖÀ½.
6)ÅäÁöÀÇ Çü»ó ¹× ÀÌ¿ë»óÅÂ
»ç´Ù¸®Çü ÅäÁö·Î¼­ ´Ù¼¼´ëÁÖÅà °ÇºÎÁö·Î ÀÌ¿ëÁßÀÓ.
7)ÀÎÁ¢ µµ·Î»óŵî
º»°Ç ºÏÃøÀ¸·Î ³ëÆø ¾à 4m, µ¿ÃøÀ¸·Î ³ëÆø ¾à 6m Æ÷Àåµµ·Î¿Í Á¢ÇÔ.
8)ÅäÁöÀÌ¿ë°èȹ ¹× Á¦ÇÑ»óÅÂ
°èȹ°ü¸®Áö¿ª, ÁְŰ³¹ßÁøÈïÁö±¸, ÁÖ°Å¿ëÁö(ÁÖ°Å¿ëÁö), Áö±¸´ÜÀ§°èȹ±¸¿ª,
°¡Ãà»çÀ°Á¦Çѱ¸¿ª<°¡ÃàºÐ´¢ÀÇ °ü¸® ¹× À̿뿡 °üÇÑ ¹ý·ü>,
»ó´ëº¸È£±¸¿ª(Çб³È¯°æÀ§»ýÁ¤È­±¸¿ª ¼¼ºÎ³»¿ëÀº ±³À°Ã»¿¡ º°µµ È®Àοä[¿ÀÆ÷Ãʱ³])
<±³À°È¯°æ º¸È£¿¡ °üÇÑ ¹ý·ü>, ¹èÃâ½Ã¼³¼³Ä¡Á¦ÇÑÁö¿ª<¹°È¯°æº¸Àü¹ý>,
ÀÚ¿¬º¸Àü±Ç¿ª<¼öµµ±ÇÁ¤ºñ°èȹ¹ý>, °øÀå¼³¸³½ÂÀÎÁö¿ª<¼öµµ¹ý>,
Ưº°´ëÃ¥Áö¿ª<ȯ°æÁ¤Ã¥±âº»¹ý>
9)°øºÎ¿ÍÀÇ Â÷ÀÌ
-
10)±âŸÂü°í»çÇ×(ÀÓ´ë°ü·Ê ¹× ±âŸ)
-

°ÇÃ๰ÇöȲ

¼ÒÀçÁö °æ±âµµ ±¤Áֽà ÃßÀÚµ¿ 471-21¹øÁö
´ëÁö¸éÀû 468§³
(141.82Æò)
¿¬¸éÀû 635.71§³
(192.64Æò)
°ÇÃà¸éÀû 253.99§³
(76.97Æò)
¿ëÀû·ü»êÁ¤
¿¬¸éÀû
635.71§³
(192.64Æò)
°ÇÆóÀ² 54.27% ¿ëÀû·ü 135.84%
Áö»óÃþ¼ö 4Ãþ ÁöÇÏÃþ¼ö  
ÁÖ¿ëµµ °øµ¿ÁÖÅà ±¸Á¶ ö±ÙÄÜÅ©¸®Æ®±¸Á¶
Âø°øÀÏÀÚ 2013.05.06 »ç¿ë½ÂÀÎÀÏÀÚ 2015.10.26
°ÇÃ๰Ãþº°ÇöȲ [º¸±â]


±¹ÅäºÎ½Ç°Å·¡°¡ °æ±âµµ ±¤Áֽà ÃßÀÚµ¿

¡Ü ¸Å¸Å

¸éÀû(§³), ±Ý¾×(¸¸¿ø)

¡Ü Àü¼¼

¸éÀû(§³), ±Ý¾×(¸¸¿ø)

°è¾àÀϰǹ°¸íĪÃþ¿¬¸éÀû´ëÁö±Ý¾×°ÇÃà
24.03.01»ó·ÏŸ¿î(105µ¿)459.93104.75516,0002014
24.02.27»ï¼º·Î¾â¸Ç¼Ç(101µ¿)259.71103.517,0002010
24.02.26»ï¼º·Î¾â¸Ç¼Ç(101µ¿)259.71103.517,0002010
24.01.30û±¸¾ÆÆ®ºô¶ó(2Â÷)275.6661.510,0001997
24.01.19»ï¼º·Î¾â¸Ç¼Ç(103µ¿)159.71103.517,8002011
¢Ñ ´õº¸±â

µî±âºÎµîº» ¿ä¾à(°Ç¹°)

  Á¢¼öÀÏÀÚ µî±â¸ñÀû/±Ç¸®ÀÚ ±Ç¸®±Ý¾× ±âÁØ
1 2015³â11¿ù20ÀÏ
¼ÒÀ¯±Ç
ÁøOO
¼Ò¸ê
2 2016³â1¿ù11ÀÏ
±ÙÀú´ç±Ç
¼ºOOOO
87,600,000 ¼Ò¸ê±âÁØ
3 2022³â2¿ù18ÀÏ
¾Ð·ù
±¤OO
¼Ò¸ê
4 2022³â5¿ù9ÀÏ
¾Ð·ù
±¹OOOO
¼Ò¸ê
5 2023³â12¿ù21ÀÏ
°¡¾Ð·ù
¼­OOOO
23,066,494 ¼Ò¸ê
6 2024³â11¿ù21ÀÏ
°­Á¦°æ¸Å
¼­OOOO
¼Ò¸ê

ÀÓÂ÷ÀÎÇöȲ (¹è´ç¿ä±¸Á¾±âÀÏ: 2025-01-22)


Á¶»çµÈ ÀÓÂ÷³»¿ªÀÌ ¾ø½À´Ï´Ù


¿©ÀÇÁÖ°æ¸Å Á¶¾ð ÇÑ ¸¶µð

ÃëÇÏ ¶Ç´Â Ãë¼ÒµÉ °¡´É¼º ÀÖ½À´Ï´Ù
ÀÌ ¹°°ÇÀÇ °¨Á¤°¡°ÝÀº 128,000,000¿øÀÔ´Ï´Ù. °æ¸Å¸¦ ½ÅûÇÑ Ã¤±ÇÀÚ°¡ ¹è´ç ¹Þ¾Æ¾ß ÇÒ ±Ý¾×Àº 16,793,709¿øÀ¸·Î °¨Á¤°¡°Ý ´ëºñ »ó´çÈ÷ ÀûÀº ±Ý¾×ÀÔ´Ï´Ù. ÀÌ·± °æ¿ì, 乫°¡°¡ º¯Á¦ÇÏ¿© °æ¸Å¸¦ ÃëÇϽÃŰ°Å³ª °æ¸Å½Åûä±ÇÀÚ°¡ ¹è´ç¹ÞÀº ±Ý¿øÀÌ ¾ø°ÔµÇ¾î À̸¥ ¹Ù "¹«À׿©¿¡ ÀÇÇÑ Ãë¼Ò"°¡ µÉ °¡´É¼ºÀÌ ÀÖ½À´Ï´Ù.

ÁÖÀÇ»çÇ× (ÃÖ¼±¼øÀ§ ¼³Á¤ÀÏ: 2016. 1. 11.(±ÙÀú´ç±Ç) ¼³Á¤)

¸Å°¢À¸·Î ¼Ò¸êµÇÁö ¾Ê´Â µî±âºÎ±Ç¸®:
¸Å°¢À¸·Î ¼³Á¤µÈ °ÍÀ¸·Î º¸´Â Áö»ó±Ç:
¡Ø¹Ì³³°ü¸®ºñ(°ø¿ë) Àμö¿©ºÎ¸¦ ÀÔÂû Àü¿¡ È®ÀÎÇϽñ⠹ٶø´Ï´Ù

 

Áö¿ªºÐ¼®

ÁöÇÏö¸í Á÷¼±°Å¸®

Çб³¸í ÀüÈ­¹øÈ£ ÁÖ¼Ò Á÷¼±°Å¸®

¹ý¿ø

¼ö¿øÁö¹æ¹ý¿ø ¼º³²Áö¿ø (131-43)°æ±âµµ ¼º³²½Ã ¼öÁ¤±¸ »ê¼º´ë·Î 451 (´Ü´ëµ¿)
´ëÇ¥ : 031)737-1558, ¾ß°£ : 031)737-1120
°üÇÒÁö¿ª : ¼º³²½Ã, ±¤ÁÖ½Ã, Çϳ²½Ã

µî±â¼Ò ¼ö¿øÁö¹æ¹ý¿ø ¼º³²Áö¿ø ±¤ÁÖµî±â¼Ò (´ëÇ¥:1544-0773, ÆÑ½º:(031)765-2388, °æ±âµµ ±¤Áֽà ÇàÁ¤Å¸¿î·Î 49-15 (¼ÛÁ¤µ¿ 346-4))
¼¼¹«¼­ °æ±â±¤ÁÖ¼¼¹«¼­ (´ëÇ¥:031-880-92, ÆÑ½º:031-769-0417, °æ±âµµ ±¤Áֽà ¹®È­·Î 127)

Àαٳ«ÂûÅë°è

±â°£ ¸Å°¢°Ç¼ö Æò±Õ°¨Á¤°¡
Æò±Õ¸Å°¢°¡
¸Å°¢°¡À²
Æò±ÕÀ¯Âû¼ö
3°³¿ù 34°Ç 241,941,176¿ø
165,205,768¿ø
69%
1.8ȸ
6°³¿ù 56°Ç 247,767,857¿ø
170,906,425¿ø
69%
1.6ȸ
12°³¿ù 65°Ç 246,769,231¿ø
170,210,823¿ø
70%
1.6ȸ


º» °æ¸ÅÁ¤º¸´Â ¹ý¿øÀÚ·á¿Í ÀÏÄ¡Çϵµ·Ï ÇÏ¿´À¸³ª ±Ç¸®»çÇ׺¯µ¿, ÀÔ·ÂÂø¿À µîÀÇ ¿øÀÎÀ¸·Î »ç½Ç°ú ´Ù¸¦ ¼ö ÀÖ½À´Ï´Ù. ÀÌ¿ë¾à°ü¿¡ ÀǰЏéÃ¥Á¶°ÇÀ¸·Î Á¦°øµÊÀ» ¾Ë¸®¸ç, °æ¸ÅÀÔÂû½Ã ¹Ýµå½Ã °ü·Ã °øºÎ¸¦ ÀçÈ®ÀÎÇϽñ⠹ٶø´Ï´Ù. º¸´Ù Æí¸®ÇÑ °æ¸ÅÁ¤º¸ Á¦°øÀ» À§ÇØ Áö¼ÓÀûÀ¸·Î °³¼±ÇϰڽÀ´Ï´Ù. ÀÌ¿ëÇØ Áּż­ °¨»çÇÕ´Ï´Ù.