·Î±×ÀÎ
67
¿ÀÇǽºÅÚ
ÀÎõÁö¹æ¹ý¿ø
 °¨Á¤°¡48,000,000 ¿ø
 ÃÖÀú°¡(70%) 33,600,000 ¿ø
 º¸Áõ±Ý(10%) 3,360,000 ¿ø
 Ã»±¸¾×41,933,150 ¿ø
ÀÎõ±¤¿ª½Ã ¹ÌÃßȦ±¸ ¾Æ¾Ï´ë·Î107¹ø±æ 37-18, 2Ãþ206È£ (¿ëÇöµ¿,¿ÀÇǽºÅÚ)
ÀÎõ±¤¿ª½Ã ¹ÌÃßȦ±¸ ¿ëÇöµ¿ 630-75
»ç°Ç¹øÈ£ 2025Ÿ°æ506414
°æ¸ÅÁ¾·ùºÎµ¿»ê°­Á¦°æ¸Å
¸Å°¢´ë»óÅäÁö ¹× °Ç¹°Àϰý ¸Å°¢
¸Å°¢±âÀÏ    2026.01.19(¿ù) 10:00 ÀÔÂû 44ÀÏÀü    
ÅäÁö¸éÀû8.16§³(2.47 Æò)
°Ç¹°¸éÀû19.46§³(5.89 Æò)
乫/¼ÒÀ¯ÀÚ¼ºO OOOO / ¼ºO OOOO
ä±ÇÀÚ¼­OOOOO OOOO
ÆäÀ̽ººÏ Æ®À§ÅÍ ±¸±Û+
īī¿À½ºÅ丮
īī¿ÀÅå sms¹®ÀÚº¸³»±â
 

±âÀϳ»¿ª

°æ°ú ³¯Â¥ Àú°¨ ÃÖÀú°¡ °á°ú
Á¢¼öÀÏ 2025-01-23 °æ¸ÅÁ¢¼ö
~1ÀÏ 
2025-01-24 °æ¸Å°³½Ã°áÁ¤
~91ÀÏ 
2025-04-24 ¹è´ç¿ä±¸Á¾±âÀÏ
~315ÀÏ 
2025-12-04 100%
48,000,000
À¯Âû
~361ÀÏ 
2026-01-19 70%
33,600,000
ÁøÇà
¹°°Ç¸í¼¼¼­ ÇöȲÁ¶»ç¼­ ¹®°ÇÁ¢¼ö ¼Û´Þ³»¿ª

°¨Á¤Æò°¡ÇöȲ

¸ñ·Ï ÁÖ¼Ò ±¸Á¶/¿ëµµ/´ëÁö±Ç ¸éÀû ºñ°í
´ëÁö±Ç
¿ëÇöµ¿ 630-75 259.2ºÐÀÇ 8.1617 8.1617 §³
(2.47Æò)
°Ç¹°
¿ëÇöµ¿ 630-75 2Ãþ206È£ ö±ÙÄÜÅ©¸®Æ®Á¶ 19.46 §³
(5.89Æò)
1) À§Ä¡/ÀϹݻó¾÷Áö¿ª/¹ö½ºÁ¤·ùÀå/ö±ÙÄÜÅ©¸®Æ®Á¶/Æò½½·¡ºêÁöºØ/°³º°³­¹æ ´õº¸±â
°¨Á¤Æò°¡ ¿äÇ×Ç¥
1)À§Ä¡ ¹× ÁÖÀ§È¯°æ
´ë»ó¹°°ÇÀº °æ±âµµ ¹ÌÃßȦ±¸ ¿ëÇöµ¿ ¼ÒÀç '¿ëÇö5µ¿ÇàÁ¤º¹Áö¼¾ÅÍ' ¼­Ãø Àαٿ¡ À§Ä¡Çϸç, ÁÖÀ§´Â °¢Á¾ ±Ù¸°»ýȰ½Ã¼³, ¿ÀÇǽºÅÚ, ¾ÆÆÄÆ®´ÜÁö, ´Üµ¶ ¹× ´Ù¼¼´ëÁÖÅà µîÀÌ ¼ÒÀçÇÏ´Â Áö¿ªÀ¸·Î¼­, Á¦¹ÝÀÔÁö Á¶°ÇÀº º¸ÅëÀÓ.
2)±³Åë»óȲ
º»°Ç±îÁö Â÷·® ÁøÀÔÀÌ °¡´ÉÇϸç, Àαٿ¡ ³ë¼± ¹ö½ºÁ¤·ùÀåÀÌ ¼ÒÀçÇÏ´Â µî ´ëÁß±³ÅëÀÇ ÆíÀǼºÀº º¸ÅëÀÓ.
3)°Ç¹°ÀÇ ±¸Á¶
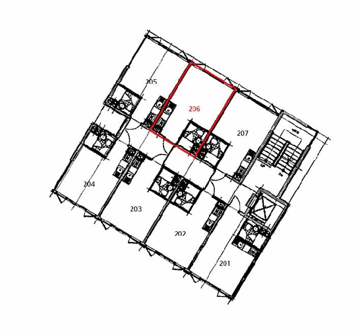
º»°ÇÀº ö±ÙÄÜÅ©¸®Æ®Á¶ Æò½½·¡ºêÁöºØ Áö»ó6Ãþ°Ç ³», Á¦2Ãþ Á¦206È£·Î¼­,
(»ç¿ë½ÂÀÎÀÏ: 2002.10.17.)
¿Ü º® : µå¶óÀ̺ñÆ® ¸¶°¨ µî
â È£ : ÇÏÀÌ»õ½Ã âȣ µî

4)ÀÌ¿ë»óÅÂ
±âÁؽÃÁ¡ ÇöÀç ¿ÀÇǽºÅÚ·Î ÀÌ¿ëÁßÀÓ.
5)¼³ºñ³»¿ª
±âº»ÀûÀÎ À§»ý/±Þ¹è¼ö¼³ºñ, °³º°³­¹æ¼³ºñ, ½Â°­±â¼³ºñ µîÀ» °®Ãß°í ÀÖÀ½.
6)ÅäÁöÀÇ Çü»ó ¹× ÀÌ¿ë»óÅÂ
ÀÎÁ¢Áö ´ëºñ µî°íÆòźÇÑ Á¤¹æÇü ÅäÁö·Î¼­, ±âÁؽÃÁ¡ ÇöÀç ÁÖ°Å¿ë ¹× ¾÷¹«¿ë °ÇºÎÁö·Î ÀÌ¿ëÁßÀÓ.
7)ÀÎÁ¢ µµ·Î»óŵî
º»°Ç ºÏ¼­ÃøÀ¸·Î ³ëÆø ¾à 6M ³»¿ÜÀÇ Æ÷Àåµµ·Î¸¦ ÅëÇÏ¿© ÃâÀÔÇÔ.
8)ÅäÁöÀÌ¿ë°èȹ ¹× Á¦ÇÑ»óÅÂ
¿ëÇöµ¿ 630-75 :ÀϹݻó¾÷Áö¿ª(2022-06-13), ¹æÈ­Áö±¸, °¡Ãà»çÀ°Á¦Çѱ¸¿ª(ÀÎõ±¤¿ª½Ã ¹ÌÃßȦ±¸ °¡Ãà»çÀ°Á¦ÇÑ¿¡ °üÇÑ Á¶·Ê[2018. 7. 1.])<°¡ÃàºÐ´¢ÀÇ °ü¸® ¹× À̿뿡 °üÇÑ ¹ý·ü>, °ú¹Ð¾ïÁ¦±Ç¿ª<¼öµµ±ÇÁ¤ºñ°èȹ¹ý>
9)°øºÎ¿ÍÀÇ Â÷ÀÌ
¾ø À½.
10)±âŸÂü°í»çÇ×(ÀÓ´ë°ü·Ê ¹× ±âŸ)
¹Ì »ó.
Âü°í
»çÇ×

- º»°ÇÀº ÀÎõ ¿ëÇöÃʵîÇб³ ºÎ±Ù¿¡ À§

°ÇÃ๰ÇöȲ

¼ÒÀçÁö ÀÎõ±¤¿ª½Ã ¹ÌÃßȦ±¸ ¿ëÇöµ¿ 630-75¹øÁö
´ëÁö¸éÀû 259.2§³
(78.55Æò)
¿¬¸éÀû 831.55§³
(251.98Æò)
°ÇÃà¸éÀû 180.43§³
(54.68Æò)
¿ëÀû·ü»êÁ¤
¿¬¸éÀû
831.55§³
(251.98Æò)
°ÇÆóÀ² 69.61% ¿ëÀû·ü 320.81%
Áö»óÃþ¼ö 6Ãþ ÁöÇÏÃþ¼ö  
ÁÖ¿ëµµ ¾÷¹«½Ã¼³ ±¸Á¶ ö±ÙÄÜÅ©¸®Æ®±¸Á¶
Âø°øÀÏÀÚ 2002.06.07 »ç¿ë½ÂÀÎÀÏÀÚ 2002.10.17
°ÇÃ๰Ãþº°ÇöȲ [º¸±â]


±¹ÅäºÎ½Ç°Å·¡°¡ ÀÎõ±¤¿ª½Ã ¹ÌÃßȦ±¸ ¿ëÇöµ¿

¡Ü ¸Å¸Å

¸éÀû(§³), ±Ý¾×(¸¸¿ø)

¡Ü Àü¼¼

¸éÀû(§³), ±Ý¾×(¸¸¿ø)

°è¾àÀϰǹ°¸íĪÃþÀü¿ëº¸Áõ±Ý¿ù¼¼°ÇÃà
25.05.26(630-75)319.463,80002002
25.04.07(630-75)219.464,0002002
24.08.08(630-75)519.463,80002002

µî±âºÎµîº» ¿ä¾à(°Ç¹°)

  Á¢¼öÀÏÀÚ µî±â¸ñÀû/±Ç¸®ÀÚ ±Ç¸®±Ý¾× ±âÁØ
1 2011³â6¿ù24ÀÏ
¼ÒÀ¯±Ç
¼ºOOOO
¼Ò¸ê
2 2018³â6¿ù27ÀÏ
ÀÓÂ÷±Ç¼³Á¤
ÇÑOOOO
33,000,000 Àμö
3 2022³â11¿ù30ÀÏ
¾àÁ¤/±ÝÁö»çÇ×/ȯ¸ÅƯ¾à
Àμö
4 2023³â3¿ù13ÀÏ
¾Ð·ù
±¹
¼Ò¸ê±âÁØ
5 2023³â7¿ù26ÀÏ
¾Ð·ù
¹ÌOOO
¼Ò¸ê
6 2025³â1¿ù24ÀÏ
°­Á¦°æ¸Å
¼­OOOO
¼Ò¸ê

ÀÓÂ÷ÀÎÇöȲ (¹è´ç¿ä±¸Á¾±âÀÏ: 2025-04-24)

ÀÓÂ÷ÀÎ ¿ëµµ/Á¡À¯ º¸Áõ±Ý/¿ù¼¼ ´ëÇ×·Â
ÀüÀÔÀÏ/È®Á¤ÀÏ ¹è´ç¿ä±¸ ºñ°í
¼­OOOOOOOOOOOOOOOOOO ÀüºÎ 33,000,000
O
2014.4.16.
2014.4.2.
2014.4.15.~2016.4.14.
ÇÑOOOOOOO ÀüºÎ 33,000,000
O
2014.4.16.
2014.4.2.
ºñ°í
(¸Å°¢¹°°Ç
¸í¼¼¼­)
¼­¿ïº¸Áõº¸Çè ÁÖ½Äȸ»ç(ÀÔÁÖÀÚ:¾ÈÇý¶õ):°æ¸Å½Åûä±ÇÀÚÀÌÀÚ ÀÓÂ÷±ÇÀÚ Çѱ¹ÅäÁöÁÖÅðø»çÀÇ ÀÓÂ÷º¸Áõ±Ý¹Ýȯä±Ç ¾ç¼öÀÎÀ¸·Î¼­, º¸Áõ ±Ý Àü¾×À» ¹è´ç¹ÞÁö ¸øÇÏ´õ¶óµµ ÀÜÁ¸ ÀÓÂ÷º¸Áõ±Ý¹Ýȯä±ÇÀ» Æ÷±âÇϰí ÁÖÅÃÀÓÂ÷±Çµî±â ¸»¼Ò¿¡ µ¿ÀÇÇÑ´Ù´Â ÃëÁöÀÇ È®¾à¼­¸¦ Á¦ÃâÇÔ Çѱ¹ÅäÁöÁÖÅðø»ç:ÁÖÅÃÀÓÂ÷±Çµî±â±ÇÀڷμ­ ÁÖÅÃÀÓÂ÷±Çµî±âÀÏÀº 2018.6.27.ÀÓ

¿©ÀÇÁÖ°æ¸Å Á¶¾ð ÇÑ ¸¶µð

¼±¼øÀ§ ÀÓÂ÷±Çµî±â°¡ µÇ¾î ÀÖ½À´Ï´Ù
´ëÇ×·ÂÀÌ ÀÖ´Â ¼±¼øÀ§ ÀÓÂ÷±Çµî±â ±Ç¸®ÀÚ°¡ ¹è´çÀ» Àü¾× ¹ÞÁö ¸øÇÒ °æ¿ì ³«ÂûÀÚ°¡ ÀÜ¿© º¸Áõ±ÝÀ» ÀμöÇØ¾ßÇÏ´Â °æ¿ìµµ ÀÖ½À´Ï´Ù.

ÁÖÀÇ»çÇ× (ÃÖ¼±¼øÀ§ ¼³Á¤ÀÏ: 2023.3.13. ¾Ð·ù ¼³Á¤)

¸Å°¢À¸·Î ¼Ò¸êµÇÁö ¾Ê´Â µî±âºÎ±Ç¸®: À»±¸ ¼øÀ§ 9¹ø ÁÖÅÃÀÓÂ÷±Çµî±â(´Ù¸¸ ¼­¿ïº¸Áõº¸Çè ÁÖ½Äȸ»çÀÇ ¸»¼Òµ¿ÀÇ È®¾à¼­°¡ Á¦ÃâµÊ)
¸Å°¢À¸·Î ¼³Á¤µÈ °ÍÀ¸·Î º¸´Â Áö»ó±Ç:
¡Ø¹Ì³³°ü¸®ºñ(°ø¿ë) Àμö¿©ºÎ¸¦ ÀÔÂû Àü¿¡ È®ÀÎÇϽñ⠹ٶø´Ï´Ù

 

Áö¿ªºÐ¼®

ÁöÇÏö¸í Á÷¼±°Å¸®

Çб³¸í ÀüÈ­¹øÈ£ ÁÖ¼Ò Á÷¼±°Å¸®

¹ý¿ø

ÀÎõÁö¹æ¹ý¿ø (222-20)ÀÎõ±¤¿ª½Ã ¹ÌÃßȦ±¸ ¼Ò¼º·Î 163¹ø±æ 17(ÇÐÀ͵¿)
´ëÇ¥ : 032)860-1113~4
°üÇÒÁö¿ª : Áß±¸, µ¿±¸, ³²±¸, ¿¬¼ö±¸, ³²µ¿±¸, ºÎÆò±¸, °è¾ç±¸, ¼­±¸, ¿ËÁø±º, °­È­±º

µî±â¼Ò ÀÎõÁö¹æ¹ý¿ø º»¿ø µî±â±¹ (´ëÇ¥:1544-0773, ÆÑ½º:(032)620-9099, ÀÎõ±¤¿ª½Ã ¹ÌÃßȦ±¸ °æ¿ø´ë·Î 881(Á־ȵ¿ 983))
¼¼¹«¼­ ÀÎõ¼¼¹«¼­ (´ëÇ¥:032-770-02, ÆÑ½º:032-777-8104, ÀÎõ±¤¿ª½Ã µ¿±¸ ¿ì°¢·Î 75 (⿵µ¿))

Àαٳ«ÂûÅë°è

±â°£ ¸Å°¢°Ç¼ö Æò±Õ°¨Á¤°¡
Æò±Õ¸Å°¢°¡
¸Å°¢°¡À²
Æò±ÕÀ¯Âû¼ö
3°³¿ù 226°Ç 209,471,239¿ø
130,498,989¿ø
62%
2ȸ
6°³¿ù 447°Ç 205,749,821¿ø
125,289,287¿ø
60%
2.3ȸ
12°³¿ù 688°Ç 211,353,663¿ø
133,393,588¿ø
63%
2.1ȸ


º» °æ¸ÅÁ¤º¸´Â ¹ý¿øÀÚ·á¿Í ÀÏÄ¡Çϵµ·Ï ÇÏ¿´À¸³ª ±Ç¸®»çÇ׺¯µ¿, ÀÔ·ÂÂø¿À µîÀÇ ¿øÀÎÀ¸·Î »ç½Ç°ú ´Ù¸¦ ¼ö ÀÖ½À´Ï´Ù. ÀÌ¿ë¾à°ü¿¡ ÀǰЏéÃ¥Á¶°ÇÀ¸·Î Á¦°øµÊÀ» ¾Ë¸®¸ç, °æ¸ÅÀÔÂû½Ã ¹Ýµå½Ã °ü·Ã °øºÎ¸¦ ÀçÈ®ÀÎÇϽñ⠹ٶø´Ï´Ù. º¸´Ù Æí¸®ÇÑ °æ¸ÅÁ¤º¸ Á¦°øÀ» À§ÇØ Áö¼ÓÀûÀ¸·Î °³¼±ÇϰڽÀ´Ï´Ù. ÀÌ¿ëÇØ Áּż­ °¨»çÇÕ´Ï´Ù.