·Î±×ÀÎ
70
´Ù¼¼´ë(ºô¶ó)
ÀÇÁ¤ºÎÁö¹æ¹ý¿ø °í¾çÁö¿ø
 °¨Á¤°¡212,000,000 ¿ø
 ÃÖÀú°¡(70%) 148,400,000 ¿ø
 º¸Áõ±Ý(10%) 14,840,000 ¿ø
 Ã»±¸¾×220,000,000 ¿ø
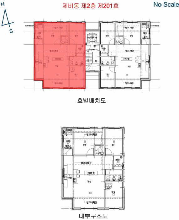
°æ±âµµ ÆÄÁֽà Á¶¸®À¾ ´ë¿ø¸® 264-20 ºñµ¿ 2Ãþ201È£
»ç°Ç¹øÈ£ 2025Ÿ°æ62783
°æ¸ÅÁ¾·ùºÎµ¿»ê°­Á¦°æ¸Å
¸Å°¢´ë»óÅäÁö ¹× °Ç¹°Àϰý ¸Å°¢
¸Å°¢±âÀÏ    2026.01.14(¼ö) 10:00 ÀÔÂû 38ÀÏÀü    
ÅäÁö¸éÀû70.25§³(21.25 Æò)
°Ç¹°¸éÀû60.54§³(18.31 Æò)
乫/¼ÒÀ¯ÀÚ¹ÚOO / ¹ÚOO
ä±ÇÀÚÁÖOOOOOOO
ÆäÀ̽ººÏ Æ®À§ÅÍ ±¸±Û+
īī¿À½ºÅ丮
īī¿ÀÅå sms¹®ÀÚº¸³»±â
 

±âÀϳ»¿ª

°æ°ú ³¯Â¥ Àú°¨ ÃÖÀú°¡ °á°ú
Á¢¼öÀÏ 2025-04-03 °æ¸ÅÁ¢¼ö
~1ÀÏ 
2025-04-04 °æ¸Å°³½Ã°áÁ¤
~85ÀÏ 
2025-06-27 ¹è´ç¿ä±¸Á¾±âÀÏ
~244ÀÏ 
2025-12-03 100%
212,000,000
À¯Âû
~286ÀÏ 
2026-01-14 70%
148,400,000
ÁøÇà
¹°°Ç¸í¼¼¼­ ÇöȲÁ¶»ç¼­ ¹®°ÇÁ¢¼ö ¼Û´Þ³»¿ª

°¨Á¤Æò°¡ÇöȲ

¸ñ·Ï ÁÖ¼Ò ±¸Á¶/¿ëµµ/´ëÁö±Ç ¸éÀû ºñ°í
´ëÁö±Ç
´ë¿ø¸® 264-20 562ºÐÀÇ 70.25 70.25 §³
(21.25Æò)
°Ç¹°
´ë¿ø¸® 264-20 2Ãþ201È£ ö±ÙÄÜÅ©¸®Æ®±¸Á¶ 60.54 §³
(18.31Æò)
1) À§Ä¡/°èȹ°ü¸®Áö¿ª/º¸Àü»êÁö/³ë¼±¹ö½ºÁ¤·ùÀå/ö±ÙÄÜÅ©¸®Æ®±¸Á¶/°³º°³­¹æ ´õº¸±â
°¨Á¤Æò°¡ ¿äÇ×Ç¥
1)À§Ä¡ ¹× ÁÖÀ§È¯°æ
º»°ÇÀº °æ±âµµ ÆÄÁֽà Á¶¸®À¾ ´ë¿ø¸® ¼ÒÀç ""ÆÄÁÖ´ë¿øÃʵîÇб³"" ¼­Ãø Àαٿ¡ À§Ä¡Çϸç, ÁÖÀ§´Â ´ë±Ô¸ð¾ÆÆÄÆ®´ÜÁö, ´Ù¼¼´ëÁÖÅÃ, ¼Ò±Ô¸ð°øÀå ¹× ³ó°æÁö µîÀÌ È¥ÀçÇÏ´Â Áö¿ªÀ¸·Î ÁÖÀ§È¯°æÀº º¸Åë½Ã µÊ.
2)±³Åë»óȲ
º»°Ç±îÁö Â÷·®ÀÇ ÁøÃâÀÔÀÌ °¡´ÉÇϰí Àαٿ¡ ³ë¼±¹ö½ºÁ¤·ùÀåÀÌ ¼ÒÀçÇÏ´Â µî ´ëÁß±³ÅëÀ̿뿩°ÇÀº º¸ÅëÀÓ.
3)°Ç¹°ÀÇ ±¸Á¶
ö±ÙÄÜÅ©¸®Æ®±¸Á¶ ÆòÁöºØ 4Ãþ °Ç¹° ³» Á¦2Ãþ Á¦201È£·Î¼­
(»ç¿ë½ÂÀÎ : 2019.10.04)

¿Üº® : µå¶óÀ̺ñÆ® ¹× Ä¡À庮µ¹¸¶°¨ µî,
âȣ : ÇÏÀ̼¦½Ã âȣ µîÀÓ.
4)ÀÌ¿ë»óÅÂ
´Ù¼¼´ëÁÖÅÃÀ¸·Î ÀÌ¿ëÁßÀÎ °ÍÀ¸·Î ޹®Á¶»çµÊ.
5)¼³ºñ³»¿ª
À§»ý ¹× ±Þ¹è¼ö¼³ºñ, °³º°³­¹æ¼³ºñ ¹× ½Â°­ºñ¼³ºñ µîÀÌ µÇ¾î ÀÖÀ½.


6)ÅäÁöÀÇ Çü»ó ¹× ÀÌ¿ë»óÅÂ
ÀÎÁ¢Áö ´ëºñ µî°í ÆòźÇÑ »ç´Ù¸®Çü ÅäÁö·Î¼­, ""°øµ¿ÁÖÅà °ÇºÎÁö""·Î ÀÌ¿ë ÁßÀÓ.
7)ÀÎÁ¢ µµ·Î»óŵî
º»°Ç ³²µ¿ÃøÀ¸·Î ³ëÆø ¾à 6m ³»¿ÜÀÇ Æ÷Àåµµ·Î¿¡ Á¢ÇÔ.
8)ÅäÁöÀÌ¿ë°èȹ ¹× Á¦ÇÑ»óÅÂ
°èȹ°ü¸®Áö¿ª, °¡Ãà»çÀ°Á¦Çѱ¸¿ª(¸ðµçÃàÁ¾ »çÀ°Á¦ÇÑ)<°¡ÃàºÐ´¢ÀÇ °ü¸® ¹× À̿뿡 °üÇÑ ¹ý·ü>, Á¦ÇѺ¸È£±¸¿ª(Àü¹æÁö¿ª:25km)<±º»ç±âÁö ¹× ±º»ç½Ã¼³ º¸È£¹ý>, Áغ¸Àü»êÁö<»êÁö°ü¸®¹ý>ÀÓ.
9)°øºÎ¿ÍÀÇ Â÷ÀÌ
-.
10)±âŸÂü°í»çÇ×(ÀÓ´ë°ü·Ê ¹× ±âŸ)
ÀÓ´ë°ü°è µîÀº ¹Ì»óÀÓ.
Âü°í
»çÇ×
ÁÖÅõµ½Ãº¸Áõ°ø»ç(Àü: ÀÓÂ÷ÀÎ ±èÁØ)°¡ ¡®ÀÓÂ÷º¸Áõ±Ý¿¡ ´ëÇÏ¿© ¿ì¼±º¯Á¦±Ç¸¸ ÁÖÀåÇÏ°í ´ëÇ×·ÂÀº Æ÷±âÇϸç, Àü¾×À» º¯Á¦¹ÞÁö ¸øÇÏ´õ¶óµµ ÀÓÂ÷±Çµî±â¸¦ ¸»¼ÒÇØ ÁÖ°Ú´Ù.¡¯´Â ³»¿ëÀÇ È®¾à¼­¸¦ Á¦Ãâ(2025.07.09.).
º»°ÇÀº ö±ÙÄÜÅ©¸®

°ÇÃ๰ÇöȲ

¼ÒÀçÁö °æ±âµµ ÆÄÁֽà Á¶¸®À¾ ´ë¿ø¸® 264-20¹øÁö
´ëÁö¸éÀû 562§³
(170.3Æò)
¿¬¸éÀû 559.24§³
(169.47Æò)
°ÇÃà¸éÀû 201.93§³
(61.19Æò)
¿ëÀû·ü»êÁ¤
¿¬¸éÀû
559.24§³
(169.47Æò)
°ÇÆóÀ² 35.93% ¿ëÀû·ü 99.51%
Áö»óÃþ¼ö 4Ãþ ÁöÇÏÃþ¼ö  
ÁÖ¿ëµµ °øµ¿ÁÖÅà ±¸Á¶ ö±ÙÄÜÅ©¸®Æ®±¸Á¶
Âø°øÀÏÀÚ 2018.09.05 »ç¿ë½ÂÀÎÀÏÀÚ 2019.10.04
°ÇÃ๰Ãþº°ÇöȲ [º¸±â]


±¹ÅäºÎ½Ç°Å·¡°¡ °æ±âµµ ÆÄÁֽà Á¶¸®À¾

¡Ü ¸Å¸Å

¸éÀû(§³), ±Ý¾×(¸¸¿ø)

¡Ü Àü¼¼

¸éÀû(§³), ±Ý¾×(¸¸¿ø)

°è¾àÀϰǹ°¸íĪÃþ¿¬¸éÀû´ëÁö±Ý¾×°ÇÃà
24.03.15µå¸²ÈúŸ¿î1,2,3µ¿1169.58453.165,5002018
24.03.09±Ý¼º¿¬¸³(°¡,³ªµ¿)355.0857.60619,1001986
24.03.07Á¦Àϱ׸°ºô101,102(455-1)244.448.786,3002003
24.02.16±×·¹À̽ººô¶ó(°¡,³ª,´Ùµ¿)161.0798.6110,8002003
24.02.14¼¼¿øºô¶ó(248-6)236.3245.31254,9001997
¢Ñ ´õº¸±â

µî±âºÎµîº» ¿ä¾à(°Ç¹°)

  Á¢¼öÀÏÀÚ µî±â¸ñÀû/±Ç¸®ÀÚ ±Ç¸®±Ý¾× ±âÁØ
1 2021³â4¿ù9ÀÏ
¼ÒÀ¯±Ç
¹ÚOO
¼Ò¸ê
2 2023³â5¿ù4ÀÏ
ÀÓÂ÷±Ç¼³Á¤
±èO
220,000,000 Àμö
3 2024³â3¿ù28ÀÏ
°¡¾Ð·ù
ÁÖOOOO
20,000,000 ¼Ò¸ê±âÁØ
4 2025³â4¿ù4ÀÏ
°­Á¦°æ¸Å
ÁÖOOOO
¼Ò¸ê

ÀÓÂ÷ÀÎÇöȲ (¹è´ç¿ä±¸Á¾±âÀÏ: 2025-06-27)

ÀÓÂ÷ÀÎ ¿ëµµ/Á¡À¯ º¸Áõ±Ý/¿ù¼¼ ´ëÇ×·Â
ÀüÀÔÀÏ/È®Á¤ÀÏ ¹è´ç¿ä±¸ ºñ°í
±èO ÀüºÎ 220,000,000
O
2021.04.09.
2021.03.22.
2021.04.10.~
ºñ°í
(¸Å°¢¹°°Ç
¸í¼¼¼­)
±èÁØ:ÁÖÅÃÀÓÂ÷±Çµî±â±ÇÀڷμ­ ÁÖÅÃÀÓÂ÷±Çµî±âÀÏÀº 2023.05.04.ÀÓ. ÁÖÅõµ½Ãº¸Áõ°ø»ç: °æ¸Å½Åûä±ÇÀÚ·Î ÀÓÂ÷ÀÎ ±èÁØÀÇ ÀÓÂ÷º¸Áõ±Ý¹Ýȯä±Ç ¾ç¼öÀÎ(´ëÇ×·Â ¹× ¿ì¼±º¯Á¦±Ç ½Â°è)ÀÓ.

¿©ÀÇÁÖ°æ¸Å Á¶¾ð ÇÑ ¸¶µð

¼±¼øÀ§ ÀÓÂ÷±Çµî±â°¡ µÇ¾î ÀÖ½À´Ï´Ù
´ëÇ×·ÂÀÌ ÀÖ´Â ¼±¼øÀ§ ÀÓÂ÷±Çµî±â ±Ç¸®ÀÚ°¡ ¹è´çÀ» Àü¾× ¹ÞÁö ¸øÇÒ °æ¿ì ³«ÂûÀÚ°¡ ÀÜ¿© º¸Áõ±ÝÀ» ÀμöÇØ¾ßÇÏ´Â °æ¿ìµµ ÀÖ½À´Ï´Ù.

ÁÖÀÇ»çÇ× (ÃÖ¼±¼øÀ§ ¼³Á¤ÀÏ: 2024.03.28. °¡¾Ð·ù ¼³Á¤)

¸Å°¢À¸·Î ¼Ò¸êµÇÁö ¾Ê´Â µî±âºÎ±Ç¸®:
¸Å°¢À¸·Î ¼³Á¤µÈ °ÍÀ¸·Î º¸´Â Áö»ó±Ç:
ÁÖÅõµ½Ãº¸Áõ°ø»ç(Àü: ÀÓÂ÷ÀÎ ±èÁØ)°¡ ¹ÞÁö ¸øÇÏ´õ¶óµµ ÀÓÂ÷±Çµî±â¸¦ ¸»¼ÒÇØ ÁÖ°Ú´Ù.¡¯´Â ³»¿ëÀÇ È®¾à¼­¸¦ Á¦Ãâ(2025.07.09.).
¡Ø¹Ì³³°ü¸®ºñ(°ø¿ë) Àμö¿©ºÎ¸¦ ÀÔÂû Àü¿¡ È®ÀÎÇϽñ⠹ٶø´Ï´Ù

 

Áö¿ªºÐ¼®

ÁöÇÏö¸í Á÷¼±°Å¸®

Çб³¸í ÀüÈ­¹øÈ£ ÁÖ¼Ò Á÷¼±°Å¸®

¹ý¿ø

ÀÇÁ¤ºÎÁö¹æ¹ý¿ø °í¾çÁö¿ø (104-13)°æ±âµµ °í¾ç½Ã Àϻ굿±¸ Àå¹é·Î 209
´ëÇ¥ : 031)920-6114, ¾ß°£ : 031)920-6550, ÆÑ½º : 031)920-6119
°üÇÒÁö¿ª : °í¾ç½Ã, ÆÄÁÖ½Ã

µî±â¼Ò ÀÇÁ¤ºÎÁö¹æ¹ý¿ø °í¾çÁö¿ø ÆÄÁÖµî±â¼Ò (´ëÇ¥:1544-0773, ÆÑ½º:(031)945-4764, 3628, °æ±âµµ ÆÄÁֽà ±ÝÁ¤·Î 45 (±ÝÃ̵¿ 947-28))
¼¼¹«¼­ ÆÄÁÖ¼¼¹«¼­ (´ëÇ¥:031-956-02, ÆÑ½º:031-957-0315, °æ±âµµ ÆÄÁֽà ±Ý¸ª¿ª·Î 62 (±ÝÃ̵¿))

Àαٳ«ÂûÅë°è

±â°£ ¸Å°¢°Ç¼ö Æò±Õ°¨Á¤°¡
Æò±Õ¸Å°¢°¡
¸Å°¢°¡À²
Æò±ÕÀ¯Âû¼ö
3°³¿ù 16°Ç 210,475,000¿ø
111,489,112¿ø
58%
2.9ȸ
6°³¿ù 38°Ç 343,673,684¿ø
146,964,853¿ø
51%
2.9ȸ
12°³¿ù 80°Ç 280,582,500¿ø
130,296,984¿ø
52%
2.6ȸ


º» °æ¸ÅÁ¤º¸´Â ¹ý¿øÀÚ·á¿Í ÀÏÄ¡Çϵµ·Ï ÇÏ¿´À¸³ª ±Ç¸®»çÇ׺¯µ¿, ÀÔ·ÂÂø¿À µîÀÇ ¿øÀÎÀ¸·Î »ç½Ç°ú ´Ù¸¦ ¼ö ÀÖ½À´Ï´Ù. ÀÌ¿ë¾à°ü¿¡ ÀǰЏéÃ¥Á¶°ÇÀ¸·Î Á¦°øµÊÀ» ¾Ë¸®¸ç, °æ¸ÅÀÔÂû½Ã ¹Ýµå½Ã °ü·Ã °øºÎ¸¦ ÀçÈ®ÀÎÇϽñ⠹ٶø´Ï´Ù. º¸´Ù Æí¸®ÇÑ °æ¸ÅÁ¤º¸ Á¦°øÀ» À§ÇØ Áö¼ÓÀûÀ¸·Î °³¼±ÇϰڽÀ´Ï´Ù. ÀÌ¿ëÇØ Áּż­ °¨»çÇÕ´Ï´Ù.