·Î±×ÀÎ
73
´Ù¼¼´ë(ºô¶ó)
¼­¿ï³²ºÎÁö¹æ¹ý¿ø
 °¨Á¤°¡399,000,000 ¿ø
 ÃÖÀú°¡(80%) 319,200,000 ¿ø
 º¸Áõ±Ý(10%) 31,920,000 ¿ø
 Ã»±¸¾×371,201,360 ¿ø
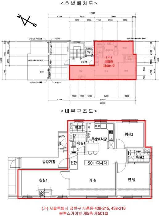
¼­¿ïƯº°½Ã ±Ýõ±¸ µ¶»ê·Î6±æ 39, Á¦5Ãþ Á¦501È£ (½ÃÈﵿ, ºí·ç½ºÄ«À̺ô)
¼­¿ïƯº°½Ã ±Ýõ±¸ ½ÃÈﵿ 438-215
»ç°Ç¹øÈ£ 2024Ÿ°æ140553
°æ¸ÅÁ¾·ùºÎµ¿»ê°­Á¦°æ¸Å
¸Å°¢´ë»óÅäÁö ¹× °Ç¹°Àϰý ¸Å°¢
¸Å°¢±âÀÏ    2026.01.28(¼ö) 10:00 ÀÔÂû 46ÀÏÀü    
ÅäÁö¸éÀû40.94§³(12.38 Æò)
°Ç¹°¸éÀû64.95§³(19.65 Æò)
乫/¼ÒÀ¯ÀÚ¹éOO / ¹éOO
ä±ÇÀÚ¹ÚOO
ÆäÀ̽ººÏ Æ®À§ÅÍ ±¸±Û+
īī¿À½ºÅ丮
īī¿ÀÅå sms¹®ÀÚº¸³»±â
 

±âÀϳ»¿ª

°æ°ú ³¯Â¥ Àú°¨ ÃÖÀú°¡ °á°ú
Á¢¼öÀÏ 2024-11-05 °æ¸ÅÁ¢¼ö
~16ÀÏ 
2024-11-21 °æ¸Å°³½Ã°áÁ¤
~111ÀÏ 
2025-02-24 ¹è´ç¿ä±¸Á¾±âÀÏ
~393ÀÏ 
2025-12-03 100%
399,000,000
À¯Âû
~449ÀÏ 
2026-01-28 80%
319,200,000
ÁøÇà
¹°°Ç¸í¼¼¼­ ÇöȲÁ¶»ç¼­ ¹®°ÇÁ¢¼ö ¼Û´Þ³»¿ª

°¨Á¤Æò°¡ÇöȲ

¸ñ·Ï ÁÖ¼Ò ±¸Á¶/¿ëµµ/´ëÁö±Ç ¸éÀû ºñ°í
´ëÁö±Ç
½ÃÈﵿ 438-215 248ºÐÀÇ 40.94 40.94 §³
(12.38Æò)
°Ç¹°
½ÃÈﵿ 438-215 Á¦5Ãþ Á¦501È£ ö±ÙÄÜÅ©¸®Æ®±¸Á¶ 64.95 §³
(19.65Æò)
1) À§Ä¡/µµ½ÃÁö¿ª/°ü¸®Áö¿ª/Á¦2Á¾ÀϹÝÁÖ°ÅÁö¿ª/ÁöÇÏö/³ë¼±¹ö½ºÁ¤·ùÀå/ö±ÙÄÜÅ©¸®Æ®±¸Á¶/Æò½º¶óºêÁöºØ/µµ½Ã°¡½º/°¡½ºº¸ÀÏ·¯ ´õº¸±â
°¨Á¤Æò°¡ ¿äÇ×Ç¥
1)À§Ä¡ ¹× ÁÖÀ§È¯°æ
º»°ÇÀº ¼­¿ïƯº°½Ã ±Ýõ±¸ ½ÃÈﵿ ¼ÒÀç¡®¹é»êÃʵîÇб³¡¯µ¿Ãø Àαٿ¡ À§Ä¡ÇÏ´Â ºÎµ¿»ê(±¸ºÐ°Ç
¹°, ºí·ç½ºÄ«À̺ô Á¦5Ãþ Á¦501È£)À¸·Î¼­, ÁÖÀ§´Â ¾ÆÆÄÆ®´ÜÁö, ´Ù¼¼´ëÁÖÅÃ, °¢±Þ Çб³ ¹×
°¢Á¾ ±Ù¸°»ýȰ½Ã¼³ µîÀÌ È¥ÀçÇÏ´Â Áö¿ªÀ¸·Î Á¦¹Ý ÁÖÀ§ ȯ°æÀº º¸ÅëÀÔ´Ï´Ù.
2)±³Åë»óȲ
º»°Ç±îÁö Â÷·®ÀÇ Áø¤ýÃâÀÔÀÌ °¡´ÉÇϸç, ºÏ¼­Ãø ¹× ³²¼­Ãø ±Ù°Å¸®¿¡ ÁöÇÏö¿ªÀÌ À§Ä¡Çϰí
ÀÖ¾î ¹ö½º µîÀÇ È¯½ÂÀ¸·Î À̿밡´ÉÇϸç, ¼­Ãø(½ÃÈï´ë·Î)À¸·Î ³ë¼±¹ö½ºÁ¤·ùÀåÀÌ ¼ÒÀçÇÕ´Ï´Ù.
3)°Ç¹°ÀÇ ±¸Á¶
ö±ÙÄÜÅ©¸®Æ®±¸Á¶ Æò½º¶óºêÁöºØ Áö»ó5Ãþ °Ç¹° ³» Á¦5Ãþ Á¦501È£·Î¼­,
(»ç¿ë½ÂÀÎÀÏ : 2019.10.16.)

¿Üº® : ¼®ÀçºÙÀÓ ¸¶°¨ µî.
âȣ : ÇÏÀÌ»õ½Ã âȣ µîÀÔ´Ï´Ù.
4)ÀÌ¿ë»óÅÂ
º»°ÇÀº µµ½ÃÇü»ýȰÁÖÅÃÀ¸·Î ÀÌ¿ëÁßÀÔ´Ï´Ù.
5)¼³ºñ³»¿ª
À§»ý¼³ºñ(±Þ¹è¼ö, ±ÞÅÁ), ³­¹æ¼³ºñ(µµ½Ã°¡½ºº¸ÀÏ·¯), ¼Ò¹æ¼³ºñ(È­Àç°æº¸¼³ºñ µî), ½Â°­±â¼³
ºñ µîÀÌ µÇ¾îÀÖ½À´Ï´Ù.
6)ÅäÁöÀÇ Çü»ó ¹× ÀÌ¿ë»óÅÂ
ºÏÇÏÇâÀÇ ¿Ï°æ»çÁö¸¦ ÆòźÇÏ°Ô Á¶¼ºÇÑ 2ÇÊ ÀÏ´ÜÀÇ °¡ÀåÇü ÅäÁö·Î¼­, ÁÖ°Å¿ë(°øµ¿ÁÖÅÃ(µµ½ÃÇü
»ýȰÁÖÅÃ-´ÜÁöÇü) °ÇºÎÁö·Î ÀÌ¿ëÁßÀÔ´Ï´Ù.
7)ÀÎÁ¢ µµ·Î»óŵî
2ÇÊ ÀÏ´ÜÀÇ ÅäÁö·Î¼­, ¼­ÃøÀ¸·Î ³ëÆø ¾à 6m ³»¿ÜÀÇ ¾Æ½ºÆÈÆ® Æ÷Àåµµ·Î¿Í Á¢ÇÕ´Ï´Ù.
8)ÅäÁöÀÌ¿ë°èȹ ¹× Á¦ÇÑ»óÅÂ
ÅäÁö±âÈ£(1), (2) : µµ½ÃÁö¿ª, Á¦2Á¾ÀϹÝÁÖ°ÅÁö¿ª(7ÃþÀÌÇÏ), °¡Ãà»çÀ°Á¦Çѱ¸¿ª<°¡ÃàºÐ´¢ÀÇ
°ü¸® ¹× À̿뿡 °üÇÑ ¹ý·ü>, Àå¾Ö¹°Á¦ÇÑÇ¥¸é±¸¿ª(ÁøÀÔÇ¥¸é±¸¿ª)<°øÇ׽ü³¹ý>, ±³À°È¯°æº¸È£
±¸¿ª(³²ºÎ±³À°Ã»¿¡ ¹Ýµå½Ã È®ÀÎ ¿ä¸Á)<±³À°È¯°æ º¸È£¿¡ °üÇÑ ¹ý·ü>, ´ë°ø¹æ¾îÇùÁ¶±¸¿ª(À§Å¹
°íµµ:ÇØ¹ß194m(Áö¹Ý+°ÇÃà+¿Áž µî),À°±º¼öµµ¹æÀ§»ç·ÉºÎ(02-524-3313)°üÇÒ)<±º»ç±âÁö ¹× ±º»ç
½Ã¼³ º¸È£¹ý>, ¼Ò±Ô¸ðÁÖÅÃÁ¤ºñ °ü¸®Áö¿ª<ºóÁý ¹× ¼Ò±Ô¸ðÁÖÅà Á¤ºñ¿¡ °üÇÑ Æ¯·Ê¹ý>, °ú¹Ð¾ïÁ¦
±Ç¿ª<¼öµµ±ÇÁ¤ºñ°èȹ¹ý>, ÁßÁ¡°æ°ü°ü¸®±¸¿ª(2016-11-24)(ÁÖ¿ä»ê ÁÖº¯),ÅäÁö°Å·¡°è¾à¿¡°üÇÑÇã
°¡±¸¿ª(2024-09-05)([Áö¸ñ ¡¸µµ·Î¡¹ ÇÑÁ¤](ÁöÁ¤±â°£: 2024.9.10.-2029.9.9.)).
9)°øºÎ¿ÍÀÇ Â÷ÀÌ
¾ø½À´Ï´Ù.
10)±âŸÂü°í»çÇ×(ÀÓ´ë°ü·Ê ¹× ±âŸ)
ÀÓ´ë°ü°è : ¹Ì»óÀÔ´Ï´Ù.
±âŸ»çÇ× : ¾ø½À´Ï´Ù.

°ÇÃ๰ÇöȲ

¼ÒÀçÁö ¼­¿ïƯº°½Ã ±Ýõ±¸ ½ÃÈﵿ 438-215¹øÁö
´ëÁö¸éÀû 248§³
(75.15Æò)
¿¬¸éÀû 494.49§³
(149.85Æò)
°ÇÃà¸éÀû 148.16§³
(44.9Æò)
¿ëÀû·ü»êÁ¤
¿¬¸éÀû
494.49§³
(149.85Æò)
°ÇÆóÀ² 59.74% ¿ëÀû·ü 199.39%
Áö»óÃþ¼ö 5Ãþ ÁöÇÏÃþ¼ö  
ÁÖ¿ëµµ °øµ¿ÁÖÅà ±¸Á¶ ö±ÙÄÜÅ©¸®Æ®±¸Á¶
Âø°øÀÏÀÚ 2018.01.05 »ç¿ë½ÂÀÎÀÏÀÚ 2019.10.16
°ÇÃ๰Ãþº°ÇöȲ [º¸±â]


±¹ÅäºÎ½Ç°Å·¡°¡ ¼­¿ïƯº°½Ã ±Ýõ±¸ ½ÃÈﵿ

¡Ü ¸Å¸Å

¸éÀû(§³), ±Ý¾×(¸¸¿ø)

¡Ü Àü¼¼

¸éÀû(§³), ±Ý¾×(¸¸¿ø)

°è¾àÀϰǹ°¸íĪÃþ¿¬¸éÀû´ëÁö±Ý¾×°ÇÃà
24.03.31Çູºô¸®Áö351.0525.5121,0002001
24.03.30±Ý»êij½½316.6610.86612,5002012
24.03.30±Ý»êij½½216.6610.86612,5002012
24.03.29´Ù¼ØAµ¿Bµ¿248.325.1624,9002014
24.03.29ÇØ°­ÇϿ콺3229.9223.61626,6002022
¢Ñ ´õº¸±â

µî±âºÎµîº» ¿ä¾à(°Ç¹°)

  Á¢¼öÀÏÀÚ µî±â¸ñÀû/±Ç¸®ÀÚ ±Ç¸®±Ý¾× ±âÁØ
1 2021³â8¿ù26ÀÏ
¼ÒÀ¯±Ç
¹éOO
¼Ò¸ê
2 2024³â4¿ù24ÀÏ
°¡¾Ð·ù
(OOOO
6,695,165 ¼Ò¸ê±âÁØ
3 2024³â4¿ù29ÀÏ
ÀÓÂ÷±Ç¼³Á¤
¹ÚOO
350,000,000 ¼Ò¸ê
4 2024³â11¿ù21ÀÏ
°­Á¦°æ¸Å
¹ÚOO
¼Ò¸ê

ÀÓÂ÷ÀÎÇöȲ (¹è´ç¿ä±¸Á¾±âÀÏ: 2025-02-24)

ÀÓÂ÷ÀÎ ¿ëµµ/Á¡À¯ º¸Áõ±Ý/¿ù¼¼ ´ëÇ×·Â
ÀüÀÔÀÏ/È®Á¤ÀÏ ¹è´ç¿ä±¸ ºñ°í
¹ÚOO ÀüºÎ 350,000,000
O
2022.04.21.
2022.03.29.
2025.02.19. 2022.04.20.~2024.04.19.
ºñ°í
(¸Å°¢¹°°Ç
¸í¼¼¼­)
¹ÚÈ¿Áø:½Åûä±ÇÀÚÀ̸ç ÁÖÅÃÀÓÂ÷±Çµî±âÀÏÀº 2024.04.29.ÀÓ

¿©ÀÇÁÖ°æ¸Å Á¶¾ð ÇÑ ¸¶µð

¼±¼øÀ§ ÀÓÂ÷±Çµî±â°¡ µÇ¾î ÀÖ½À´Ï´Ù
´ëÇ×·ÂÀÌ ÀÖ´Â ¼±¼øÀ§ ÀÓÂ÷±Çµî±â ±Ç¸®ÀÚ°¡ ¹è´çÀ» Àü¾× ¹ÞÁö ¸øÇÒ °æ¿ì ³«ÂûÀÚ°¡ ÀÜ¿© º¸Áõ±ÝÀ» ÀμöÇØ¾ßÇÏ´Â °æ¿ìµµ ÀÖ½À´Ï´Ù.

ÁÖÀÇ»çÇ× (ÃÖ¼±¼øÀ§ ¼³Á¤ÀÏ: 2024.04.24.°¡¾Ð·ù ¼³Á¤)

¸Å°¢À¸·Î ¼Ò¸êµÇÁö ¾Ê´Â µî±âºÎ±Ç¸®: ¸Å¼öÀο¡°Ô ´ëÇ×ÇÒ ¼ö ÀÖ´Â ÁÖÅÃÀÓÂ÷±Çµî±â ÀÖÀ½(¹è´ç¿¡¼­ º¸Áõ±ÝÀÌ Àü¾× º¯Á¦µÇÁö ¾Æ´ÏÇϸé Àܾ×À» ¸Å¼öÀÎÀÌ ÀμöÇÔ)
¸Å°¢À¸·Î ¼³Á¤µÈ °ÍÀ¸·Î º¸´Â Áö»ó±Ç:
¡Ø¹Ì³³°ü¸®ºñ(°ø¿ë) Àμö¿©ºÎ¸¦ ÀÔÂû Àü¿¡ È®ÀÎÇϽñ⠹ٶø´Ï´Ù

 

Áö¿ªºÐ¼®

ÁöÇÏö¸í Á÷¼±°Å¸®

Çб³¸í ÀüÈ­¹øÈ£ ÁÖ¼Ò Á÷¼±°Å¸®

¹ý¿ø

¼­¿ï³²ºÎÁö¹æ¹ý¿ø (080-88)¼­¿ïƯº°½Ã ¾çõ±¸ ½Å¿ù·Î 386(½ÅÁ¤µ¿)
´ëÇ¥ : 02)2192-1114
°üÇÒÁö¿ª : ¿µµîÆ÷±¸, °­¼­±¸, ¾çõ±¸, ±¸·Î±¸, ±Ýõ±¸

µî±â¼Ò ¼­¿ï³²ºÎÁö¹æ¹ý¿ø º»¿ø µî±â±¹ (´ëÇ¥:1544-0773, ÆÑ½º:(02)2629-7307, ¼­¿ïƯº°½Ã ¿µµîÆ÷±¸ °æÀηΠ772 (¹®·¡µ¿ 1°¡))
¼¼¹«¼­ ±Ýõ¼¼¹«¼­ (´ëÇ¥:02-850-420, ÆÑ½º:02-861-1475, ¼­¿ïƯº°½Ã ±Ýõ±¸ ½ÃÈï´ë·Î152±æ 11-21 (µ¶»êµ¿))

Àαٳ«ÂûÅë°è

±â°£ ¸Å°¢°Ç¼ö Æò±Õ°¨Á¤°¡
Æò±Õ¸Å°¢°¡
¸Å°¢°¡À²
Æò±ÕÀ¯Âû¼ö
3°³¿ù 18°Ç 266,166,667¿ø
228,915,361¿ø
86%
1.1ȸ
6°³¿ù 30°Ç 266,900,000¿ø
232,828,250¿ø
87%
1ȸ
12°³¿ù 32°Ç 264,375,000¿ø
231,115,328¿ø
87%
1ȸ


º» °æ¸ÅÁ¤º¸´Â ¹ý¿øÀÚ·á¿Í ÀÏÄ¡Çϵµ·Ï ÇÏ¿´À¸³ª ±Ç¸®»çÇ׺¯µ¿, ÀÔ·ÂÂø¿À µîÀÇ ¿øÀÎÀ¸·Î »ç½Ç°ú ´Ù¸¦ ¼ö ÀÖ½À´Ï´Ù. ÀÌ¿ë¾à°ü¿¡ ÀǰЏéÃ¥Á¶°ÇÀ¸·Î Á¦°øµÊÀ» ¾Ë¸®¸ç, °æ¸ÅÀÔÂû½Ã ¹Ýµå½Ã °ü·Ã °øºÎ¸¦ ÀçÈ®ÀÎÇϽñ⠹ٶø´Ï´Ù. º¸´Ù Æí¸®ÇÑ °æ¸ÅÁ¤º¸ Á¦°øÀ» À§ÇØ Áö¼ÓÀûÀ¸·Î °³¼±ÇϰڽÀ´Ï´Ù. ÀÌ¿ëÇØ Áּż­ °¨»çÇÕ´Ï´Ù.