·Î±×ÀÎ
78
¾ÆÆÄÆ®
´ëÀüÁö¹æ¹ý¿ø õ¾ÈÁö¿ø
 °¨Á¤°¡626,000,000 ¿ø
 ÃÖÀú°¡(70%) 438,200,000 ¿ø
 º¸Áõ±Ý(10%) 43,820,000 ¿ø
 Ã»±¸¾×2,096,088,839 ¿ø
ÃæÃ»³²µµ ¾Æ»ê½Ã ±Ç°îµ¿ 620 ¾Æ»ê´õ¼¥Å¸¿ö¾ÆÆÄÆ® 101µ¿ 23Ãþ 2302È£
»ç°Ç¹øÈ£ 2025Ÿ°æ389
Áߺ¹»ç°ÇÁߺ¹ 2025Ÿ°æ574,
°æ¸ÅÁ¾·ùºÎµ¿»ê°­Á¦°æ¸Å
¸Å°¢´ë»óÅäÁö ¹× °Ç¹°Àϰý ¸Å°¢
¸Å°¢±âÀÏ    2026.01.06(È­) 10:00 ÀÔÂû 29ÀÏÀü    
ÅäÁö¸éÀû92.42§³(27.96 Æò)
°Ç¹°¸éÀû176.66§³(53.44 Æò)
乫/¼ÒÀ¯ÀÚÀÌOO / ÀÌOO
ä±ÇÀÚÁÖOOO OOOO¿Ü 1¸í
ÆäÀ̽ººÏ Æ®À§ÅÍ ±¸±Û+
īī¿À½ºÅ丮
īī¿ÀÅå sms¹®ÀÚº¸³»±â
 

±âÀϳ»¿ª

°æ°ú ³¯Â¥ Àú°¨ ÃÖÀú°¡ °á°ú
Á¢¼öÀÏ 2025-02-24 °æ¸ÅÁ¢¼ö
~1ÀÏ 
2025-02-25 °æ¸Å°³½Ã°áÁ¤
~94ÀÏ 
2025-05-29 ¹è´ç¿ä±¸Á¾±âÀÏ
~281ÀÏ 
2025-12-02 100%
626,000,000
À¯Âû
~316ÀÏ 
2026-01-06 70%
438,200,000
ÁøÇà
¹°°Ç¸í¼¼¼­ ÇöȲÁ¶»ç¼­ ¹®°ÇÁ¢¼ö ¼Û´Þ³»¿ª

°¨Á¤Æò°¡ÇöȲ

¸ñ·Ï ÁÖ¼Ò ±¸Á¶/¿ëµµ/´ëÁö±Ç ¸éÀû ºñ°í
´ëÁö±Ç
±Ç°îµ¿ 620 25606.8ºÐÀÇ 92.4206 92.4206 §³
(27.96Æò)
°Ç¹°
±Ç°îµ¿ 620 101µ¿ 23Ãþ 2302È£ ö±ÙÄÜÅ©¸®Æ®±¸Á¶ 176.6563 §³
(53.44Æò)
1) À§Ä¡/µµ½ÃÁö¿ª/Á¦3Á¾ÀϹÝÁÖ°ÅÁö¿ª/Áö±¸´ÜÀ§°èȹ±¸¿ª/¹ö½ºÁ¤·ùÀå/ö±ÙÄÜÅ©¸®Æ®±¸Á¶/°æ»çÁöºØ/µµ½Ã°¡½º/¹æ2/¹æ3/¿å½Ç2 ´õº¸±â
°¨Á¤Æò°¡ ¿äÇ×Ç¥
1)À§Ä¡ ¹× ÁÖÀ§È¯°æ
º»°ÇÀº ÃæÃ»³²µµ ¾Æ»ê½Ã ±Ç°îµ¿ ¼ÒÀç ""¿Â¾ç±Ç°îÃʵîÇб³"" ºÏ¼­Ãø Àαٿ¡ À§Ä¡Çϸç,
ÁÖÀ§´Â ¾ÆÆÄÆ®´ÜÁö, °¢±ÞÁÖÅÃ, ±Ù¸°»ýȰ½Ã¼³, ³ó°æÁö µîÀ¸·Î È¥ÀçµÇ¾î ÀÖ´Â Áö¿ªÀ¸·Î¼­
Á¦¹Ý ÁÖÀ§È¯°æÀº º¸ÅëÀÓ.
2)±³Åë»óȲ
º»°Ç±îÁö Â÷·® Á¢±Ù °¡´ÉÇϸç, µµº¸·Î 5ºÐ ³»¿Ü, ¹ö½ºÁ¤·ùÀå¿¡ µµ´ÞÇÏ´Â µî
Á¦¹Ý ±³Åë»óȲÀº º¸ÅëÀÓ.
3)°Ç¹°ÀÇ ±¸Á¶
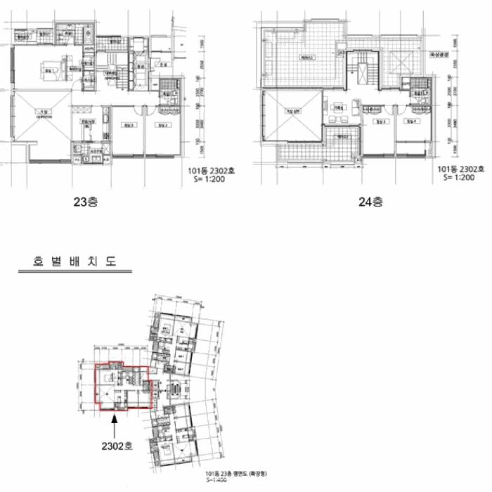
ö±ÙÄÜÅ©¸®Æ®±¸Á¶ °æ»çÁöºØ ¹× ÆòÁöºØ 24Ãþ ¾ÆÆÄÆ® 101µ¿ 23Ãþ 2302È£,
23Ãþ ¹× 24Ãþ º¹Ãþ±¸Á¶·Î½á (»ç¿ë½ÂÀÎÀÏ : 2009.06.25)

¿Üº® : ¸ôÅ»À§ÆäÀÎÆ® ¸¶°¨ µî
³»º® : º®Áö ¹× ÀϺΠŸÀÏ ¸¶°¨ µî
¹Ù´Ú : ÀåÆÇÁö±ò±â ¹× ÀϺΠŸÀÏ ¸¶°¨ µî
âȣ : ¼¦½ÃâȣÀÓ.
4)ÀÌ¿ë»óÅÂ
23Ãþ ¹× 24ÃþÀÇ º¹Ãþ±¸Á¶ ¾ÆÆÄÆ®·Î ÀÌ¿ëÁßÀÓ.
23Ãþ : ¹æ3, °Å½Ç, ÁÖ¹æ °â ½Ä´ç1, ¿å½Ç2
24Ãþ : ¹æ2, ¿å½Ç, °¡Á·½Ç


5)¼³ºñ³»¿ª
±âº»ÀûÀÎ À§»ý¼³ºñ ¹× ½Â°­±â¼³ºñ, ¼ÒÈ­Àü¼³ºñ, µµ½Ã°¡½º¿¡ ÀÇÇÑ °³º° ³­¹æ¼³ºñ µî
°®Ãß¾îÁ® ÀÖÀ½.
6)ÅäÁöÀÇ Çü»ó ¹× ÀÌ¿ë»óÅÂ
´ëü·Î ºÎÁ¤ÇüÀÇ ÆòÁö·Î¼­, ÇöȲ ""¾ÆÆÄÆ®°ÇºÎÁö""·Î ÀÌ¿ëÁßÀÓ.
7)ÀÎÁ¢ µµ·Î»óŵî
º»°Ç ´ÜÁö µ¿Ãø ¿Õº¹4Â÷¼± ¾Æ½ºÄÜÆ÷Àåµµ·Î ¹× ³²¼­Ãø ¿Õº¹2Â÷¼± ¾Æ½ºÄÜÆ÷Àåµµ·Î¿¡ °¢°¢
Á¢ÇÔ.
8)ÅäÁöÀÌ¿ë°èȹ ¹× Á¦ÇÑ»óÅÂ
µµ½ÃÁö¿ª , Á¦3Á¾ÀϹÝÁÖ°ÅÁö¿ª , ½Ã°¡Áö°æ°üÁö±¸(ÀϹÝ) ,
Áö±¸´ÜÀ§°èȹ±¸¿ª(±Ç°îÆ÷½ºÄÚ¾ÆÆÄÆ®) , ´ë·Î1·ù(Æø 35m~40m)(Á¢ÇÕ) ,
¼Ò·Î2·ù(Æø 8m~10m)(¿Â¾ç-¼Ò·Î-2-193)(Á¢ÇÕ) , Áß·Î2·ù(Æø 15m~20m)(2020-06-25)(Á¢ÇÕ)
°¡Ãà»çÀ°Á¦Çѱ¸¿ª(2021-07-22)(ÀüºÎÁ¦Çѱ¸¿ª)<°¡ÃàºÐ´¢ÀÇ °ü¸® ¹× À̿뿡 °üÇÑ ¹ý·ü>
ÁßÁ¡°æ°ü°ü¸®±¸¿ª(¿øµµ½É)
9)°øºÎ¿ÍÀÇ Â÷ÀÌ
¾ø À½.


10)±âŸÂü°í»çÇ×(ÀÓ´ë°ü·Ê ¹× ±âŸ)
¹Ì»óÀÓ.

°ÇÃ๰ÇöȲ

¼ÒÀçÁö ÃæÃ»³²µµ ¾Æ»ê½Ã ±Ç°îµ¿ 620¹øÁö
´ëÁö¸éÀû   ¿¬¸éÀû 396.4093§³
(120.12Æò)
°ÇÃà¸éÀû   ¿ëÀû·ü»êÁ¤
¿¬¸éÀû
 
°ÇÆóÀ²   ¿ëÀû·ü  
Áö»óÃþ¼ö   ÁöÇÏÃþ¼ö 2Ãþ
ÁÖ¿ëµµ °øµ¿ÁÖÅà ±¸Á¶ ö±ÙÄÜÅ©¸®Æ®±¸Á¶
Âø°øÀÏÀÚ 2006.08.10 »ç¿ë½ÂÀÎÀÏÀÚ 2009.06.25
°ÇÃ๰Ãþº°ÇöȲ [º¸±â]


µî±âºÎµîº» ¿ä¾à(°Ç¹°)

  Á¢¼öÀÏÀÚ µî±â¸ñÀû/±Ç¸®ÀÚ ±Ç¸®±Ý¾× ±âÁØ
1 2019³â4¿ù30ÀÏ
¼ÒÀ¯±Ç
ÀÌOO
¼Ò¸ê
2 2019³â4¿ù30ÀÏ
±ÙÀú´ç±Ç
ÇÑOOOO
58,000,000 ¼Ò¸ê±âÁØ
3 2021³â6¿ù16ÀÏ
±ÙÀú´ç±Ç
(OOOO
120,000,000 ¼Ò¸ê
4 2023³â10¿ù24ÀÏ
°¡¾Ð·ù
(OOOO
400,000,000 ¼Ò¸ê
5 2024³â6¿ù18ÀÏ
°¡¾Ð·ù
ȕOOOO
12,729,440 ¼Ò¸ê
6 2024³â6¿ù18ÀÏ
°¡¾Ð·ù
½ÅOOOO
14,905,933 ¼Ò¸ê
7 2024³â7¿ù23ÀÏ
°¡¾Ð·ù
·ÔOOOO
13,429,637 ¼Ò¸ê
8 2024³â8¿ù6ÀÏ
°¡¾Ð·ù
(OOOO
13,716,748 ¼Ò¸ê
9 2025³â2¿ù25ÀÏ
°­Á¦°æ¸Å
(OOOO
¼Ò¸ê
10 2025³â6¿ù26ÀÏ
ÀÓÀǰæ¸Å
(OOOO
¼Ò¸ê

ÀÓÂ÷ÀÎÇöȲ (¹è´ç¿ä±¸Á¾±âÀÏ: 2025-05-29)


Á¶»çµÈ ÀÓÂ÷³»¿ªÀÌ ¾ø½À´Ï´Ù


¿©ÀÇÁÖ°æ¸Å Á¶¾ð ÇÑ ¸¶µð


ÁÖÀÇ»çÇ× (ÃÖ¼±¼øÀ§ ¼³Á¤ÀÏ: 2019.4.30. ±ÙÀú´ç±Ç ¼³Á¤)

¸Å°¢À¸·Î ¼Ò¸êµÇÁö ¾Ê´Â µî±âºÎ±Ç¸®:
¸Å°¢À¸·Î ¼³Á¤µÈ °ÍÀ¸·Î º¸´Â Áö»ó±Ç:
¡Ø¹Ì³³°ü¸®ºñ(°ø¿ë) Àμö¿©ºÎ¸¦ ÀÔÂû Àü¿¡ È®ÀÎÇϽñ⠹ٶø´Ï´Ù

 

Áö¿ªºÐ¼®

ÁöÇÏö¸í Á÷¼±°Å¸®

Çб³¸í ÀüÈ­¹øÈ£ ÁÖ¼Ò Á÷¼±°Å¸®

¹ý¿ø

´ëÀüÁö¹æ¹ý¿ø Ãµ¾ÈÁö¿ø (311-98)ÃæÃ»³²µµ õ¾È½Ã µ¿³²±¸ û¼ö14·Î 77 (û´çµ¿ 476)
´ëÇ¥ : 041)620-3000, ¹Î¿ø : 041)620-3058
°üÇÒÁö¿ª : õ¾È½Ã, ¾Æ»ê½Ã

µî±â¼Ò ´ëÀüÁö¹æ¹ý¿ø Ãµ¾ÈÁö¿ø ¾Æ»êµî±â¼Ò (´ëÇ¥:1544-0773, ÆÑ½º:(041)546-2695, Ãæ³² ¾Æ»ê½Ã ¿ëÈ­·Î76¹ø±æ 7 (¿ëÈ­µ¿ 970))
¼¼¹«¼­ ¾Æ»ê¼¼¹«¼­ (´ëÇ¥:041-536-72, ÆÑ½º:041-533-1351, ÃæÃ»³²µµ ¾Æ»ê½Ã ¹è¹æÀ¾ ¹è¹æ·Î 57-29(°ø¼ö¸® 280-5))

Àαٳ«ÂûÅë°è

±â°£ ¸Å°¢°Ç¼ö Æò±Õ°¨Á¤°¡
Æò±Õ¸Å°¢°¡
¸Å°¢°¡À²
Æò±ÕÀ¯Âû¼ö
3°³¿ù 25°Ç 123,800,000¿ø
98,137,102¿ø
72%
1.8ȸ
6°³¿ù 57°Ç 185,614,035¿ø
149,884,062¿ø
76%
1.5ȸ
12°³¿ù 134°Ç 184,931,701¿ø
149,107,077¿ø
77%
1.4ȸ


º» °æ¸ÅÁ¤º¸´Â ¹ý¿øÀÚ·á¿Í ÀÏÄ¡Çϵµ·Ï ÇÏ¿´À¸³ª ±Ç¸®»çÇ׺¯µ¿, ÀÔ·ÂÂø¿À µîÀÇ ¿øÀÎÀ¸·Î »ç½Ç°ú ´Ù¸¦ ¼ö ÀÖ½À´Ï´Ù. ÀÌ¿ë¾à°ü¿¡ ÀǰЏéÃ¥Á¶°ÇÀ¸·Î Á¦°øµÊÀ» ¾Ë¸®¸ç, °æ¸ÅÀÔÂû½Ã ¹Ýµå½Ã °ü·Ã °øºÎ¸¦ ÀçÈ®ÀÎÇϽñ⠹ٶø´Ï´Ù. º¸´Ù Æí¸®ÇÑ °æ¸ÅÁ¤º¸ Á¦°øÀ» À§ÇØ Áö¼ÓÀûÀ¸·Î °³¼±ÇϰڽÀ´Ï´Ù. ÀÌ¿ëÇØ Áּż­ °¨»çÇÕ´Ï´Ù.