·Î±×ÀÎ
58
¾ÆÆÄÆ®
¼ö¿øÁö¹æ¹ý¿ø ¾È»êÁö¿ø
 °¨Á¤°¡498,000,000 ¿ø
 ÃÖÀú°¡(70%) 348,600,000 ¿ø
 º¸Áõ±Ý(10%) 34,860,000 ¿ø
 Ã»±¸¾×201,438,005 ¿ø
°æ±âµµ ½ÃÈï½Ã Á¤¿Õµ¿ 1874-2 È­¼º¾ÆÆÄÆ® 102µ¿ 3Ãþ304È£
»ç°Ç¹øÈ£ 2025Ÿ°æ52066
°æ¸ÅÁ¾·ùºÎµ¿»êÀÓÀǰæ¸Å
¸Å°¢´ë»óÅäÁö ¹× °Ç¹°Àϰý ¸Å°¢
¸Å°¢±âÀÏ    2026.01.13(È­) 10:30 ÀÔÂû 38ÀÏÀü    
ÅäÁö¸éÀû98.24§³(29.72 Æò)
°Ç¹°¸éÀû128.43§³(38.85 Æò)
乫/¼ÒÀ¯ÀÚ±èOO / ±èOO
ä±ÇÀÚÀ¯OOOOOOOOOOOOOOOO(OOO OOOOOOOO)
ÆäÀ̽ººÏ Æ®À§ÅÍ ±¸±Û+
īī¿À½ºÅ丮
īī¿ÀÅå sms¹®ÀÚº¸³»±â
 

±âÀϳ»¿ª

°æ°ú ³¯Â¥ Àú°¨ ÃÖÀú°¡ °á°ú
Á¢¼öÀÏ 2025-04-01 °æ¸ÅÁ¢¼ö
~2ÀÏ 
2025-04-03 °æ¸Å°³½Ã°áÁ¤
~83ÀÏ 
2025-06-23 ¹è´ç¿ä±¸Á¾±âÀÏ
~245ÀÏ 
2025-12-02 100%
498,000,000
À¯Âû
~287ÀÏ 
2026-01-13 70%
348,600,000
ÁøÇà
¹°°Ç¸í¼¼¼­ ÇöȲÁ¶»ç¼­ ¹®°ÇÁ¢¼ö ¼Û´Þ³»¿ª

°¨Á¤Æò°¡ÇöȲ

¸ñ·Ï ÁÖ¼Ò ±¸Á¶/¿ëµµ/´ëÁö±Ç ¸éÀû ºñ°í
´ëÁö±Ç
Á¤¿Õµ¿ 1874-2 31869.9ºÐÀÇ 98.239 98.239 §³
(29.72Æò)
°Ç¹°
Á¤¿Õµ¿ 1874-2 102µ¿ 3Ãþ304È£ ö±ÙÄÜÅ©¸®Æ® º®½Ä±¸Á¶ 128.43 §³
(38.85Æò)
1) À§Ä¡/µµ½ÃÁö¿ª/Á¦2Á¾ÀϹÝÁÖ°ÅÁö¿ª/Áö±¸´ÜÀ§°èȹ±¸¿ª/¹ö½ºÁ¤·ùÀå/Â÷·® Á¢±ÙÀÌ °¡´É/°£¼±µµ·Î/ö±ÙÄÜÅ©¸®Æ® º®½Ä±¸Á¶/½º¶óºêÁöºØ ´õº¸±â
°¨Á¤Æò°¡ ¿äÇ×Ç¥
1)À§Ä¡ ¹× ÁÖÀ§È¯°æ
º»°ÇÀº °æ±âµµ ½ÃÈï½Ã Á¤¿Õµ¿ ¼ÒÀç '³ÃÁ¤ÃʵîÇб³' ºÏ¼­Ãø Àαٿ¡ À§Ä¡Çϸç ÁÖÀ§´Â
¾ÆÆÄÆ®, ±Ù¸°»ýȰ½Ã¼³, Çб³, °ø¿ø µîÀÌ È¥ÀçÇÏ´Â Áö¿ªÀÓ.
2)±³Åë»óȲ
º»°Ç±îÁö Â÷·® Á¢±ÙÀÌ °¡´ÉÇϰí, Àαٿ¡ ¹ö½ºÁ¤·ùÀå ¹× ¿ÀÀ̵µ¿ª(4È£¼± ¼öÀκд缱)ÀÌ
¼ÒÀçÇÏ¿© ´ëÁß±³Åë»çÁ¤Àº º¸Åë½Ã µÊ.
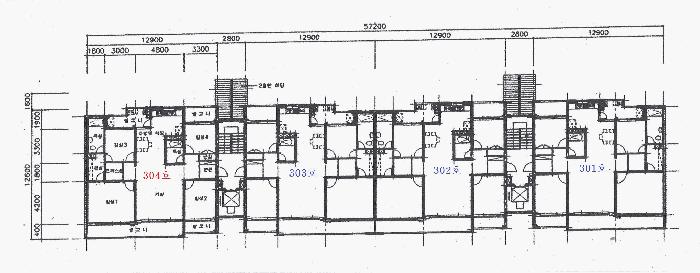
3)°Ç¹°ÀÇ ±¸Á¶
ö±ÙÄÜÅ©¸®Æ® º®½Ä±¸Á¶ °æ»ç½º¶óºêÁöºØ 10Ãþ°Ç ³» 3Ãþ 304È£·Î¼­,
¿Üº® : ¸ôÅ»À§ÆäÀÎÆÃ ¸¶°¨
³»º® : º®Áöµµ¹è ¹× ÀϺΠŸÀϺÙÀÓ µî ¸¶°¨ (޹®»çÇ×)
âȣ : ¼¦½Ã ÀÌÁßâȣ µîÀÓ. (޹®»çÇ×)
4)ÀÌ¿ë»óÅÂ
¾ÆÆÄÆ®·Î ÀÌ¿ëÁßÀÓ.
(ÈÄ÷ ³»ºÎ±¸Á¶µµ ÂüÁ¶)
5)¼³ºñ³»¿ª
À§»ý ¹× ±Þ¹è¼ö¼³ºñ, ³­¹æ¼³ºñ, ½Â°­±â¼³ºñ, ¼ÒÈ­Àü¼³ºñ µîÀÌ µÇ¾î ÀÖÀ½.


6)ÅäÁöÀÇ Çü»ó ¹× ÀÌ¿ë»óÅÂ
ºÎÁ¤ÇüÀÇ ÅäÁö·Î¼­, ¾ÆÆÄÆ® °ÇºÎÁö·Î ÀÌ¿ëÁßÀÓ.
7)ÀÎÁ¢ µµ·Î»óŵî
´ÜÁö³» µµ·Î°¡ ¿Ü°û °øµµ¿Í ¿¬°èµÊ.
8)ÅäÁöÀÌ¿ë°èȹ ¹× Á¦ÇÑ»óÅÂ
µµ½ÃÁö¿ª, Á¦2Á¾ÀϹÝÁÖ°ÅÁö¿ª, Áö±¸´ÜÀ§°èȹ±¸¿ª, ´ë·Î2·ù(Æø 30m~35m)(2020-09-29)
(Á¢ÇÕ), ´ë·Î2·ù(Æø 30m~35m)(º¸Á¶°£¼±µµ·Î)(Á¢ÇÕ), Áß·Î1·ù(Æø 20m~25m)(Áý»êµµ·Î)
(Á¢ÇÕ), °¡Ãà»çÀ°Á¦Çѱ¸¿ª<°¡ÃàºÐ´¢ÀÇ °ü¸® ¹× À̿뿡 °üÇÑ ¹ý·ü>, »ó´ëº¸È£±¸¿ª
<±³À°È¯°æ º¸È£¿¡ °üÇÑ ¹ý·ü>, »ó´ëº¸È£±¸¿ª(2013-07-18)<±³À°È¯°æ º¸È£¿¡ °üÇÑ
¹ý·ü>, Àý´ëº¸È£±¸¿ª(2013-07-18)<±³À°È¯°æ º¸È£¿¡ °üÇÑ ¹ý·ü>, ¼ºÀå°ü¸®±Ç¿ª
<¼öµµ±ÇÁ¤ºñ°èȹ¹ý>ÀÓ.
9)°øºÎ¿ÍÀÇ Â÷ÀÌ
ÇØ´ç»çÇ× ¾øÀ½.
10)±âŸÂü°í»çÇ×(ÀÓ´ë°ü·Ê ¹× ±âŸ)
ÀÓ´ë°ü°è ¹Ì»óÀÓ.
Âü°í
»çÇ×
¿Ü±¹ÀÎü·ùÈ®Àμ­¿¡ `JIN SHIFENG`°ú `JIN CHUNJI`ÀÌ µîÀçµÇ¾î ÀÖÀ¸³ª, 乫ÀÚ°â¼ÒÀ¯ÀÚ°¡ ÀüÀÔ¼¼´ëÈ®Àμ­ ¹× Áֹεî·ÏÇ¥ µîº»¿¡ ¼¼´ëÁÖ·Î µîÀçµÇ¾î ÀÖÀ½(ÇöȲÁ¶»çº¸°í¼­ ÂüÁ¶)

°ÇÃ๰ÇöȲ

¼ÒÀçÁö °æ±âµµ ½ÃÈï½Ã Á¤¿Õµ¿ 1874-2¹øÁö
´ëÁö¸éÀû 31241.18§³
(9467.02Æò)
¿¬¸éÀû 10619.81§³
(3218.12Æò)
°ÇÃà¸éÀû 6279.48§³
(1902.87Æò)
¿ëÀû·ü»êÁ¤
¿¬¸éÀû
4270.16§³
(1293.99Æò)
°ÇÆóÀ² 20.1% ¿ëÀû·ü 150.17%
Áö»óÃþ¼ö 10Ãþ ÁöÇÏÃþ¼ö 1Ãþ
ÁÖ¿ëµµ °øµ¿ÁÖÅà ±¸Á¶ ö±ÙÄÜÅ©¸®Æ®±¸Á¶
Âø°øÀÏÀÚ 1996.01.08 »ç¿ë½ÂÀÎÀÏÀÚ 1997.08.08
°ÇÃ๰Ãþº°ÇöȲ [º¸±â]


±¹ÅäºÎ½Ç°Å·¡°¡ °æ±âµµ ½ÃÈï½Ã Á¤¿Õµ¿

¡Ü ¸Å¸Å

¸éÀû(§³), ±Ý¾×(¸¸¿ø)

¡Ü Àü¼¼

¸éÀû(§³), ±Ý¾×(¸¸¿ø)

°è¾àÀÏARTÃþÀü¿ë±Ý¾×°ÇÃà
24.03.06È­¼º384.940,7001997
24.02.19È­¼º184.931,5001997

µî±âºÎµîº» ¿ä¾à(°Ç¹°)

  Á¢¼öÀÏÀÚ µî±â¸ñÀû/±Ç¸®ÀÚ ±Ç¸®±Ý¾× ±âÁØ
1 2017³â7¿ù28ÀÏ
¼ÒÀ¯±Ç
±èOO
¼Ò¸ê
2 2017³â7¿ù28ÀÏ
±ÙÀú´ç±Ç
(OOOO
264,000,000 ¼Ò¸ê±âÁØ
3 2024³â1¿ù18ÀÏ
°¡¾Ð·ù
Á¶OO
100,000,000 ¼Ò¸ê
4 2024³â11¿ù6ÀÏ
¾Ð·ù
½ÃOO
¼Ò¸ê
5 2025³â4¿ù3ÀÏ
ÀÓÀǰæ¸Å
À¯OOOO
¼Ò¸ê

ÀÓÂ÷ÀÎÇöȲ (¹è´ç¿ä±¸Á¾±âÀÏ: 2025-06-23)

ÀÓÂ÷ÀÎ ¿ëµµ/Á¡À¯ º¸Áõ±Ý/¿ù¼¼ ´ëÇ×·Â
ÀüÀÔÀÏ/È®Á¤ÀÏ ¹è´ç¿ä±¸ ºñ°í
JOOOOOOOO 102µ¿304È£ ¹Ì»ó
[¿ù]¹Ì»ó
X
2017.08.30
¹Ì»ó
¹Ì»ó
JOOOOOOOOO 102µ¿304È£ ¹Ì»ó
[¿ù]¹Ì»ó
X
2017.08.30
¹Ì»ó
¹Ì»ó

¾ÆÆÄÆ® Á¤º¸ È­¼º

ÁÖ¼Ò °æ±â ½ÃÈï½Ã Á¤¿Õµ¿ 1874-2
½Ã°ø»ç È­¼º»ê¾÷ ´ÜÁö±Ô¸ð 6°³µ¿ 420°¡±¸(11°³µ¿)¼¼´ë
³­¹æ °³º°/µµ½Ã°¡½º »ç¿ë½ÂÀÎ 1997-08
°ü¸®¼Ò 031)498-1432
Àü¿ë¸éÀû 84~128 ¼¼´ë¼ö 420°¡±¸(11°³µ¿)
´ëÁö±Ç
Çö°ü/±¸Á¶ °è´Ü½Ä / ¹æ, ¿å½Ç
  • Çб³ ³ÃÁ¤ÃʵîÇб³,¼Û¿îÁßÇб³,
  • ÁÖº¯½Ã¼³ ½ÃÈ­º´¿ø,
  • ´ëÁß±³Åë 30-2,7-1

¿©ÀÇÁÖ°æ¸Å Á¶¾ð ÇÑ ¸¶µð


ÁÖÀÇ»çÇ× (ÃÖ¼±¼øÀ§ ¼³Á¤ÀÏ: 2017.07.28.±ÙÀú´ç ¼³Á¤)

¸Å°¢À¸·Î ¼Ò¸êµÇÁö ¾Ê´Â µî±âºÎ±Ç¸®:
¸Å°¢À¸·Î ¼³Á¤µÈ °ÍÀ¸·Î º¸´Â Áö»ó±Ç:
¿Ü±¹ÀÎü·ùÈ®Àμ­¿¡ `JIN SHIFENG`°ú `JIN CHUNJI`ÀÌ µîÀçµÇ¾î ÀÖÀ¸³ª, 乫ÀÚ°â¼ÒÀ¯ÀÚ°¡ ÀüÀÔ¼¼´ëÈ®Àμ­ ¹× Áֹεî·ÏÇ¥ µî º»¿¡ ¼¼´ëÁÖ·Î µîÀçµÇ¾î ÀÖÀ½(ÇöȲÁ¶»çº¸°í¼­ ÂüÁ¶)
¡Ø¹Ì³³°ü¸®ºñ(°ø¿ë) Àμö¿©ºÎ¸¦ ÀÔÂû Àü¿¡ È®ÀÎÇϽñ⠹ٶø´Ï´Ù

 

Áö¿ªºÐ¼®

ÁöÇÏö¸í Á÷¼±°Å¸®

Çб³¸í ÀüÈ­¹øÈ£ ÁÖ¼Ò Á÷¼±°Å¸®

¹ý¿ø

¼ö¿øÁö¹æ¹ý¿ø ¾È»êÁö¿ø (140-54)°æ±âµµ ¾È»ê½Ã ´Ü¿ø±¸ ±¤´ö¼­·Î 75 (°íÀܵ¿)
´ëÇ¥ : 031)481-1114, ¹Î¿ø : 031)481-1238, ¾ß°£ : 031)481-1112
°üÇÒÁö¿ª : ¾È»ê½Ã, ±¤¸í½Ã, ½ÃÈï½Ã

µî±â¼Ò ¼ö¿øÁö¹æ¹ý¿ø ¾È»êÁö¿ø ½ÃÈïµî±â¼Ò (´ëÇ¥:1544-0773, ÆÑ½º:(031)317-8903, 8904, °æ±âµµ ½ÃÈï½Ã ¿¬¼º·Î 31 (ÇÏÁßµ¿ 872-1))
¼¼¹«¼­ ½ÃÈï¼¼¹«¼­ (´ëÇ¥:031-310-72, ÆÑ½º:02-314-3973, °æ±âµµ ½ÃÈï½Ã ¸¶À¯·Î 368 (Á¤¿Õµ¿))

Àαٳ«ÂûÅë°è

±â°£ ¸Å°¢°Ç¼ö Æò±Õ°¨Á¤°¡
Æò±Õ¸Å°¢°¡
¸Å°¢°¡À²
Æò±ÕÀ¯Âû¼ö
3°³¿ù 33°Ç 432,848,485¿ø
367,217,055¿ø
85%
1ȸ
6°³¿ù 110°Ç 420,218,182¿ø
362,915,232¿ø
86%
1ȸ
12°³¿ù 200°Ç 415,299,000¿ø
360,087,201¿ø
87%
1ȸ


º» °æ¸ÅÁ¤º¸´Â ¹ý¿øÀÚ·á¿Í ÀÏÄ¡Çϵµ·Ï ÇÏ¿´À¸³ª ±Ç¸®»çÇ׺¯µ¿, ÀÔ·ÂÂø¿À µîÀÇ ¿øÀÎÀ¸·Î »ç½Ç°ú ´Ù¸¦ ¼ö ÀÖ½À´Ï´Ù. ÀÌ¿ë¾à°ü¿¡ ÀǰЏéÃ¥Á¶°ÇÀ¸·Î Á¦°øµÊÀ» ¾Ë¸®¸ç, °æ¸ÅÀÔÂû½Ã ¹Ýµå½Ã °ü·Ã °øºÎ¸¦ ÀçÈ®ÀÎÇϽñ⠹ٶø´Ï´Ù. º¸´Ù Æí¸®ÇÑ °æ¸ÅÁ¤º¸ Á¦°øÀ» À§ÇØ Áö¼ÓÀûÀ¸·Î °³¼±ÇϰڽÀ´Ï´Ù. ÀÌ¿ëÇØ Áּż­ °¨»çÇÕ´Ï´Ù.