·Î±×ÀÎ
53
¿ÀÇǽºÅÚ
¼ö¿øÁö¹æ¹ý¿ø ¾È»êÁö¿ø
 °¨Á¤°¡75,000,000 ¿ø
 ÃÖÀú°¡(70%) 52,500,000 ¿ø
 º¸Áõ±Ý(10%) 5,250,000 ¿ø
 Ã»±¸¾×62,371,196 ¿ø
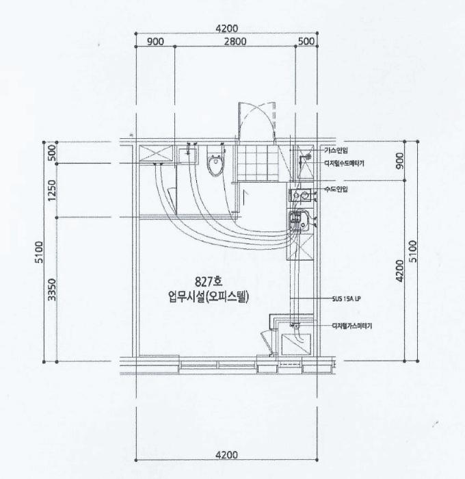
°æ±âµµ ¾È»ê½Ã ´Ü¿ø±¸ °íÀܵ¿ 526 ¸®º£¸£¿ÀÇǽºÅÚ 8Ãþ827È£
»ç°Ç¹øÈ£ 2025Ÿ°æ51627
°æ¸ÅÁ¾·ùºÎµ¿»êÀÓÀǰæ¸Å
¸Å°¢´ë»óÅäÁö ¹× °Ç¹°Àϰý ¸Å°¢
¸Å°¢±âÀÏ    2026.01.13(È­) 10:30 ÀÔÂû 38ÀÏÀü    
ÅäÁö¸éÀû3.56§³(1.08 Æò)
°Ç¹°¸éÀû19.97§³(6.04 Æò)
乫/¼ÒÀ¯ÀÚÀÌOO / ÀÌOO
ä±ÇÀÚÄÉOOOOOOOOOOOOOOOOOOO (OOO O OOOO OOOO)
ÆäÀ̽ººÏ Æ®À§ÅÍ ±¸±Û+
īī¿À½ºÅ丮
īī¿ÀÅå sms¹®ÀÚº¸³»±â
 

±âÀϳ»¿ª

°æ°ú ³¯Â¥ Àú°¨ ÃÖÀú°¡ °á°ú
Á¢¼öÀÏ 2025-02-03 °æ¸ÅÁ¢¼ö
~2ÀÏ 
2025-02-05 °æ¸Å°³½Ã°áÁ¤
~84ÀÏ 
2025-04-28 ¹è´ç¿ä±¸Á¾±âÀÏ
~302ÀÏ 
2025-12-02 100%
75,000,000
À¯Âû
~344ÀÏ 
2026-01-13 70%
52,500,000
ÁøÇà
¹°°Ç¸í¼¼¼­ ÇöȲÁ¶»ç¼­ ¹®°ÇÁ¢¼ö ¼Û´Þ³»¿ª

°¨Á¤Æò°¡ÇöȲ

¸ñ·Ï ÁÖ¼Ò ±¸Á¶/¿ëµµ/´ëÁö±Ç ¸éÀû ºñ°í
´ëÁö±Ç
°íÀܵ¿ 526 1806.5ºÐÀÇ 3.5627 3.5627 §³
(1.08Æò)
°Ç¹°
°íÀܵ¿ 526 8Ãþ827È£ ö±ÙÄÜÅ©¸®Æ®±¸Á¶ 19.97 §³
(6.04Æò)
1) À§Ä¡/µµ½ÃÁö¿ª/°ü¸®Áö¿ª/ÀϹݻó¾÷Áö¿ª/Áö±¸´ÜÀ§°èȹ±¸¿ª/³ë¼±¹ö½ºÁ¤·ùÀå/ö±ÙÄÜÅ©¸®Æ®±¸Á¶ ´õº¸±â
°¨Á¤Æò°¡ ¿äÇ×Ç¥
1)À§Ä¡ ¹× ÁÖÀ§È¯°æ
º»°ÇÀº °æ±âµµ ¾È»ê½Ã ´Ü¿ø±¸ °íÀܵ¿ ¼ÒÀç '¾È»ê½Ãû' ³²¼­Ãø ±Ù°Å¸®¿¡ À§Ä¡Çϸç
ÁÖÀ§´Â º´¿ø, »ó¾÷ ¹× ¾÷¹«¿ë ºÎµ¿»êÀÌ ¼ÒÀçÇÏ´Â »ó¾÷Áö´ëÀÓ.
2)±³Åë»óȲ
º»°Ç±îÁö Â÷·® ÁøÃâÀÔÀÌ ¿ëÀÌÇϸç Àαٿ¡ ³ë¼±¹ö½ºÁ¤·ùÀå ¹× ¼öÀκд缱 °íÀÜ¿ªÀÌ
¼ÒÀçÇÏ¿© ´ëÁß±³Åë»çÁ¤Àº º¸ÅëÀÓ.
3)°Ç¹°ÀÇ ±¸Á¶
ö±ÙÄÜÅ©¸®Æ®±¸Á¶ (ö±Ù)ÄÜÅ©¸®Æ®ÁöºØ ÁöÇÏ6Ãþ Áö»ó17Ãþ °Ç¹° ³» 8Ãþ 827È£·Î¼­,
¿Üº® : º¹ÇÕÆÇ³Ú µ¹ºÙÀÓ ¸¶°¨
³»º® : º®Áöµµ¹è ¹× ŸÀϺÙÀÓ (޹®»çÇ×)
âȣ : ¼¦½¬ âȣ µîÀÓ. (޹®»çÇ×)
4)ÀÌ¿ë»óÅÂ
ÁýÇÕ°ÇÃ๰´ëÀå»ó ¿ëµµ´Â ¾÷¹«½Ã¼³(¿ÀÇǽºÅÚ)ÀÓ.
5)¼³ºñ³»¿ª
À§»ý ¹× ±Þ¹è¼ö¼³ºñ, ¿Á³»¼ÒÈ­Àü¼³ºñ, È­ÀçŽÁö¼³ºñ, ½Â°­±â¼³ºñ, ÁÖÂ÷¼³ºñ µîÀÌ
µÇ¾î ÀÖÀ½.


6)ÅäÁöÀÇ Çü»ó ¹× ÀÌ¿ë»óÅÂ
ÀÎÁ¢ µµ·Î¿Í µî°íÆòźÇÑ ¼¼ÀåÇüÀÇ ÅäÁö·Î¼­ ¾÷¹«½Ã¼³(¿ÀÇǽºÅÚ) °ÇºÎÁö·Î ÀÌ¿ëÁßÀÓ.
7)ÀÎÁ¢ µµ·Î»óŵî
º»°Ç ¼­Ãø ¹× ºÏÃøÀ¸·Î µµ·Î¿¡ °¢°¢ Á¢ÇÔ.
8)ÅäÁöÀÌ¿ë°èȹ ¹× Á¦ÇÑ»óÅÂ
µµ½ÃÁö¿ª, ÀϹݻó¾÷Áö¿ª, ¹æÈ­Áö±¸, ½Ã°¡Áö°æ°üÁö±¸(Áß½É), Áß¿ä½Ã¼³¹°º¸È£Áö±¸
(°ø¿ë), Áö±¸´ÜÀ§°èȹ±¸¿ª, Áß·Î1·ù(Æø 20m~25m)(Áý»êµµ·Î)(Á¢ÇÕ), Áß·Î3·ù
(Æø 12m~15m)(Á¢ÇÕ), °¡Ãà»çÀ°Á¦Çѱ¸¿ª<°¡ÃàºÐ´¢ÀÇ °ü¸® ¹× À̿뿡 °üÇÑ ¹ý·ü>,
´ë±â°ü¸®±Ç¿ª<´ë±â°ü¸®±Ç¿ªÀÇ ´ë±âȯ°æ°³¼±¿¡ °üÇÑ Æ¯º°¹ý>, µµ½Ã±³ÅëÁ¤ºñÁö¿ª
<µµ½Ã±³ÅëÁ¤ºñÃËÁø¹ý>, »ýȰ¼ÒÀ½Áøµ¿°ü¸®Áö¿ª<¼ÒÀ½Áøµ¿°ü¸®¹ý>, ¼ºÀå°ü¸®±Ç¿ª
<¼öµµ±ÇÁ¤ºñ°èȹ¹ý>ÀÓ.
9)°øºÎ¿ÍÀÇ Â÷ÀÌ
ÇØ´ç»çÇ× ¾øÀ½.
10)±âŸÂü°í»çÇ×(ÀÓ´ë°ü·Ê ¹× ±âŸ)
- ÀÓ´ë°ü°è ¹Ì»óÀÓ.
- º»°ÇÀÇ °øºÎ»ó ¿ëµµ°¡ ¾÷¹«½Ã¼³(¿ÀÇǽºÅÚ)ÀιÙ, ÁÖ°Å¿ë ¿©ºÎ¸¦ ÀçÈ®ÀÎÇϽñ⠹ٶ÷.

°ÇÃ๰ÇöȲ

¼ÒÀçÁö °æ±âµµ ¾È»ê½Ã ´Ü¿ø±¸ °íÀܵ¿ 526¹øÁö
´ëÁö¸éÀû 1806.5§³
(547.42Æò)
¿¬¸éÀû 23610.98§³
(7154.84Æò)
°ÇÃà¸éÀû 1111.14§³
(336.71Æò)
¿ëÀû·ü»êÁ¤
¿¬¸éÀû
14534.17§³
(4404.29Æò)
°ÇÆóÀ² 61.5079% ¿ëÀû·ü 804.5485%
Áö»óÃþ¼ö 17Ãþ ÁöÇÏÃþ¼ö 6Ãþ
ÁÖ¿ëµµ ¾÷¹«½Ã¼³ ±¸Á¶ ö±ÙÄÜÅ©¸®Æ®±¸Á¶
Âø°øÀÏÀÚ 2015.04.16 »ç¿ë½ÂÀÎÀÏÀÚ 2017.12.01
°ÇÃ๰Ãþº°ÇöȲ [º¸±â]


µî±âºÎµîº» ¿ä¾à(°Ç¹°)

  Á¢¼öÀÏÀÚ µî±â¸ñÀû/±Ç¸®ÀÚ ±Ç¸®±Ý¾× ±âÁØ
1 2017³â12¿ù19ÀÏ
¼ÒÀ¯±Ç
ÀÌOO
¼Ò¸ê
2 2017³â12¿ù19ÀÏ
±ÙÀú´ç±Ç
(OOOO
72,000,000 ¼Ò¸ê±âÁØ
3 2023³â11¿ù1ÀÏ
°¡¾Ð·ù
½ÅOOOO
272,000,000 ¼Ò¸ê
4 2023³â11¿ù30ÀÏ
°¡¾Ð·ù
(OOOO
49,765,295 ¼Ò¸ê
5 2024³â12¿ù3ÀÏ
°¡¾Ð·ù
ºñOOOO
23,518,522 ¼Ò¸ê
6 2025³â2¿ù5ÀÏ
ÀÓÀǰæ¸Å
ÄÉOOOO
¼Ò¸ê

ÀÓÂ÷ÀÎÇöȲ (¹è´ç¿ä±¸Á¾±âÀÏ: 2025-04-28)

ÀÓÂ÷ÀÎ ¿ëµµ/Á¡À¯ º¸Áõ±Ý/¿ù¼¼ ´ëÇ×·Â
ÀüÀÔÀÏ/È®Á¤ÀÏ ¹è´ç¿ä±¸ ºñ°í
¾çOO 827È£ÀüºÎ 20,000,000
[¿ù]350,000
X
2023.05.26.
2023.05.26.
2025.2.21. 2023.05.26.~ÇöÀç

¿©ÀÇÁÖ°æ¸Å Á¶¾ð ÇÑ ¸¶µð


ÁÖÀÇ»çÇ× (ÃÖ¼±¼øÀ§ ¼³Á¤ÀÏ: 2017.12.19.±ÙÀú´ç ¼³Á¤)

¸Å°¢À¸·Î ¼Ò¸êµÇÁö ¾Ê´Â µî±âºÎ±Ç¸®:
¸Å°¢À¸·Î ¼³Á¤µÈ °ÍÀ¸·Î º¸´Â Áö»ó±Ç:
¡Ø¹Ì³³°ü¸®ºñ(°ø¿ë) Àμö¿©ºÎ¸¦ ÀÔÂû Àü¿¡ È®ÀÎÇϽñ⠹ٶø´Ï´Ù

 

Áö¿ªºÐ¼®

ÁöÇÏö¸í Á÷¼±°Å¸®

Çб³¸í ÀüÈ­¹øÈ£ ÁÖ¼Ò Á÷¼±°Å¸®

¹ý¿ø

¼ö¿øÁö¹æ¹ý¿ø ¾È»êÁö¿ø (140-54)°æ±âµµ ¾È»ê½Ã ´Ü¿ø±¸ ±¤´ö¼­·Î 75 (°íÀܵ¿)
´ëÇ¥ : 031)481-1114, ¹Î¿ø : 031)481-1238, ¾ß°£ : 031)481-1112
°üÇÒÁö¿ª : ¾È»ê½Ã, ±¤¸í½Ã, ½ÃÈï½Ã

µî±â¼Ò ¼ö¿øÁö¹æ¹ý¿ø ¾È»êÁö¿ø µî±â°ú (´ëÇ¥:1544-0773, ÆÑ½º:(031)481-1290~1292, °æ±âµµ ¾È»ê½Ã ´Ü¿ø±¸ ±¤´ö¼­·Î 75 (°íÀܵ¿ 711))
¼¼¹«¼­ ¾È»ê¼¼¹«¼­ (´ëÇ¥:031-412-32, ÆÑ½º:031-412-3268, °æ±âµµ ¾È»ê½Ã ´Ü¿ø±¸ È­¶û·Î 350 (°íÀܵ¿ 517))

Àαٳ«ÂûÅë°è

±â°£ ¸Å°¢°Ç¼ö Æò±Õ°¨Á¤°¡
Æò±Õ¸Å°¢°¡
¸Å°¢°¡À²
Æò±ÕÀ¯Âû¼ö
3°³¿ù 6°Ç 114,000,000¿ø
58,552,167¿ø
58%
2.7ȸ
6°³¿ù 23°Ç 109,391,304¿ø
60,655,804¿ø
60%
2.3ȸ
12°³¿ù 41°Ç 110,804,878¿ø
66,756,668¿ø
63%
2.1ȸ


º» °æ¸ÅÁ¤º¸´Â ¹ý¿øÀÚ·á¿Í ÀÏÄ¡Çϵµ·Ï ÇÏ¿´À¸³ª ±Ç¸®»çÇ׺¯µ¿, ÀÔ·ÂÂø¿À µîÀÇ ¿øÀÎÀ¸·Î »ç½Ç°ú ´Ù¸¦ ¼ö ÀÖ½À´Ï´Ù. ÀÌ¿ë¾à°ü¿¡ ÀǰЏéÃ¥Á¶°ÇÀ¸·Î Á¦°øµÊÀ» ¾Ë¸®¸ç, °æ¸ÅÀÔÂû½Ã ¹Ýµå½Ã °ü·Ã °øºÎ¸¦ ÀçÈ®ÀÎÇϽñ⠹ٶø´Ï´Ù. º¸´Ù Æí¸®ÇÑ °æ¸ÅÁ¤º¸ Á¦°øÀ» À§ÇØ Áö¼ÓÀûÀ¸·Î °³¼±ÇϰڽÀ´Ï´Ù. ÀÌ¿ëÇØ Áּż­ °¨»çÇÕ´Ï´Ù.