·Î±×ÀÎ
24
´Ù°¡±¸ÁÖÅÃ
ûÁÖÁö¹æ¹ý¿ø
 °¨Á¤°¡281,061,960 ¿ø
 ÃÖÀú°¡(100%) 281,061,960 ¿ø
 º¸Áõ±Ý(10%) 28,106,196 ¿ø
 Ã»±¸¾×270,000,000 ¿ø
ÃæÃ»ºÏµµ ÁøÃµ±º ÁøÃµÀ¾ ¼º¼®¸® 733-29
»ç°Ç¹øÈ£ 2025Ÿ°æ3022 ¹°°Ç¹øÈ£
°æ¸ÅÁ¾·ùºÎµ¿»êÀÓÀǰæ¸Å
¸Å°¢´ë»óÅäÁö ¹× °Ç¹°ÁöºÐ¸Å°¢
¸Å°¢±âÀÏ    2025.12.02(È­) 10:00 ÀÔÂû 6ÀÏÀü    
ÅäÁö¸éÀû219.00§³(66.25 Æò)
°Ç¹°¸éÀû221.01§³(66.86 Æò)
乫/¼ÒÀ¯ÀÚ¾ÈOO / ¾ÈOO
ä±ÇÀÚÀÌOO
ÆäÀ̽ººÏ Æ®À§ÅÍ ±¸±Û+
īī¿À½ºÅ丮
īī¿ÀÅå sms¹®ÀÚº¸³»±â
 

±âÀϳ»¿ª

°æ°ú ³¯Â¥ Àú°¨ ÃÖÀú°¡ °á°ú
Á¢¼öÀÏ 2025-06-13 °æ¸ÅÁ¢¼ö
~3ÀÏ 
2025-06-16 °æ¸Å°³½Ã°áÁ¤
~166ÀÏ 
¹è´ç¿ä±¸Á¾±âÀÏ
~172ÀÏ 
2025-12-02 100%
281,061,960
ÁøÇà
¹°°Ç¸í¼¼¼­ ÇöȲÁ¶»ç¼­ ¹®°ÇÁ¢¼ö ¼Û´Þ³»¿ª

°¨Á¤Æò°¡ÇöȲ

¸ñ·Ï ÁÖ¼Ò ±¸Á¶/¿ëµµ/´ëÁö±Ç ¸éÀû ºñ°í
ÅäÁö
¼º¼®¸® 733-29 ´ë 219 §³
(66.25Æò)
1/2 ÁöºÐ ÀüºÎ
°Ç¹°
¼º¼®¸® 733-29 1Ãþ ´Ù°¡±¸ÁÖÅà ö±ÙÄÜÅ©¸®Æ®±¸Á¶ 72.55 §³
(21.95Æò)
1/2 ÁöºÐ ÀüºÎ
¼º¼®¸® 733-29 2Ãþ ´Ù°¡±¸ÁÖÅà ö±ÙÄÜÅ©¸®Æ®±¸Á¶ 74.23 §³
(22.45Æò)
1/2 ÁöºÐ ÀüºÎ
¼º¼®¸® 733-29 3Ãþ ´Ù°¡±¸ÁÖÅà ö±ÙÄÜÅ©¸®Æ®±¸Á¶ 74.23 §³
(22.45Æò)
1/2 ÁöºÐ ÀüºÎ
1) À§Ä¡/µµ½ÃÁö¿ª/Á¦1Á¾ÀϹÝÁÖ°ÅÁö¿ª/ÀϹݰø¾÷Áö¿ª/ÀÚ¿¬³ìÁöÁö¿ª/¹ö½ºÁ¤·ùÀå/ö±ÙÄÜÅ©¸®Æ®±¸Á¶ ´õº¸±â
°¨Á¤Æò°¡ ¿äÇ×Ç¥
1)À§Ä¡ ¹× ÁÖÀ§È¯°æ
º»°ÇÀº ÃæÃ»ºÏµµ ÁøÃµ±º ÁøÃµÀ¾ ½ÅÁ¤¸® ¼ÒÀç 'ÁøÃµ³ó°ø´ÜÁö' ºÏÃø Àαٿ¡ À§Ä¡Çϸç, ÁÖÀ§´Â Áß¡¤¼Ò±Ô¸ðÀÇ °øÀå, Àü¿øÁÖÅÃ, Àü¡¤´äÀÇ ³ó°æÁö, ÀÓ¾ß µîÀÌ È¥ÀçÇÏ´Â ±Ù±³ ³ó°æÁö´ëÀÓ.
2)±³Åë»óȲ
º»°Ç ÀαٱîÁö Á¦ Â÷·®ÀÇ ÃâÀÔ °¡´ÉÇϸç, Àαٿ¡ ¹ö½ºÁ¤·ùÀåÀÌ ¼ÒÀçÇÏ´Â µî Àü¹ÝÀûÀÎ ±³Åë»óȲÀº º¸ÅëÀÓ.
3)ÇüÅ ¹× ÀÌ¿ë»óÅÂ
±âÈ£(1~7) ÅäÁö´Â ÇÏÇâ°æ»çÁø ºÎÁ¤ÇüÀÇ ÅäÁö·Î¼­ ÀÓ¾ßÈ­µÈ ÈÞ°æÁöÀÓ.
±âÈ£(8) ÅäÁö´Â ÀÎÁ¢Áö¿Í ´ëü·Î µî°íÆòźÇÑ ºÎÁ¤ÇüÀÇ ÅäÁö·Î¼­ ÁÖ°Å¿ë °ÇºÎÁöÀÓ.
4)ÀÎÁ¢ µµ·Î»óÅÂ
±âÈ£(1~7) ÅäÁö´Â ÁöÀûµµ»ó ¸ÍÁöÀÓ.
±âÈ£(8) ÅäÁö´Â ¼­ÃøÀ¸·Î ¼¼·ÎÇÑ¸é ÆøÀÇ µµ·Î¿¡ Á¢ÇÔ.
5)ÅäÁöÀÌ¿ë°èȹ ¹× Á¦ÇÑ»óÅÂ
- ±âÈ£(1) : µµ½ÃÁö¿ª, ÀϹݰø¾÷Áö¿ª, ÀÚ¿¬³ìÁöÁö¿ª, °¡Ãà»çÀ°Á¦Çѱ¸¿ª(2020-06-22)(ÀüºÎÁ¦Çѱ¸¿ª)<°¡ÃàºÐ´¢ÀÇ °ü¸®
¹× À̿뿡 °üÇÑ ¹ý·ü>.

- ±âÈ£(2) : µµ½ÃÁö¿ª, ÀÚ¿¬³ìÁöÁö¿ª, °¡Ãà»çÀ°Á¦Çѱ¸¿ª(2020-06-22)(ÀüºÎÁ¦Çѱ¸¿ª)<°¡ÃàºÐ´¢ÀÇ °ü¸® ¹× À̿뿡 °üÇÑ
¹ý·ü>, »ó´ëº¸È£±¸¿ª(2014-02-07)<±³À°È¯°æ º¸È£¿¡ °üÇÑ ¹ý·ü>, ¿ª»ç¹®È­È¯°æº¸Á¸Áö¿ª(ÁøÃµ¿ëÈ­»ç¼®Á¶¿©·¡ÀÔ»ó)
<¹®È­À¯»êÀÇ º¸Á¸ ¹× Ȱ¿ë¿¡ °üÇÑ ¹ý·ü>, ¿µ³ó¿©°ÇºÒ¸®³óÁö.

- ±âÈ£(3) : µµ½ÃÁö¿ª, ÀϹݰø¾÷Áö¿ª, ÀÚ¿¬³ìÁöÁö¿ª, °¡Ãà»çÀ°Á¦Çѱ¸¿ª(2020-06-22)(ÀüºÎÁ¦Çѱ¸¿ª)<°¡ÃàºÐ´¢ÀÇ °ü¸®
¹× À̿뿡 °üÇÑ ¹ý·ü>, »ó´ëº¸È£±¸¿ª(2014-02-07)<±³À°È¯°æ º¸È£¿¡ °üÇÑ ¹ý·ü>, ¿ª»ç¹®È­È¯°æº¸Á¸Áö¿ª(ÁøÃµ¿ëÈ­»ç
¼®Á¶¿©·¡ÀÔ»ó)<¹®È­À¯»êÀÇ º¸Á¸ ¹× Ȱ¿ë¿¡ °üÇÑ ¹ý·ü>.

- ±âÈ£(4) : µµ½ÃÁö¿ª, ÀÚ¿¬³ìÁöÁö¿ª, °¡Ãà»çÀ°Á¦Çѱ¸¿ª(2020-06-22)(ÀüºÎÁ¦Çѱ¸¿ª)<°¡ÃàºÐ´¢ÀÇ °ü¸® ¹× À̿뿡
°üÇÑ ¹ý·ü>, »ó´ëº¸È£±¸¿ª(2014-02-07)<±³À°È¯°æ º¸È£¿¡ °üÇÑ ¹ý·ü>, ¿ª»ç¹®È­È¯°æº¸Á¸Áö¿ª(ÁøÃµ¿ëÈ­»ç¼®Á¶¿©·¡
ÀÔ»ó)<¹®È­À¯»êÀÇ º¸Á¸ ¹× Ȱ¿ë¿¡ °üÇÑ ¹ý·ü>, ¿µ³ó¿©°ÇºÒ¸®³óÁö.

- ±âÈ£(5) : µµ½ÃÁö¿ª, ÀÚ¿¬³ìÁöÁö¿ª, °¡Ãà»çÀ°Á¦Çѱ¸¿ª(2020-06-22)(ÀüºÎÁ¦Çѱ¸¿ª)<°¡ÃàºÐ´¢ÀÇ °ü¸® ¹× À̿뿡
°üÇÑ ¹ý·ü>, »ó´ëº¸È£±¸¿ª(2014-02-07)<±³À°È¯°æ º¸È£¿¡ °üÇÑ ¹ý·ü>, ¿ª»ç¹®È­È¯°æº¸Á¸Áö¿ª(ÁøÃµ¿ëÈ­»ç¼®Á¶¿©·¡
ÀÔ»ó)<¹®È­À¯»êÀÇ º¸Á¸ ¹× Ȱ¿ë¿¡ °üÇÑ ¹ý·ü>, ¿µ³ó¿©°ÇºÒ¸®³óÁö.

- ±âÈ£(6) : µµ½ÃÁö¿ª, ÀϹݰø¾÷Áö¿ª, ÀÚ¿¬³ìÁöÁö¿ª, °¡Ãà»çÀ°Á¦Çѱ¸¿ª(2020-06-22)(ÀüºÎÁ¦Çѱ¸¿ª)<°¡ÃàºÐ´¢ÀÇ
°ü¸® ¹× À̿뿡 °üÇÑ ¹ý·ü>, »ó´ëº¸È£±¸¿ª(2014-02-07)<±³À°È¯°æ º¸È£¿¡ °üÇÑ ¹ý·ü>.

- ±âÈ£(7) : µµ½ÃÁö¿ª, ÀÚ¿¬³ìÁöÁö¿ª, °¡Ãà»çÀ°Á¦Çѱ¸¿ª(2020-06-22)(ÀüºÎÁ¦Çѱ¸¿ª)<°¡ÃàºÐ´¢ÀÇ °ü¸® ¹× À̿뿡
°üÇÑ ¹ý·ü>, »ó´ëº¸È£±¸¿ª(2014-02-07)<±³À°È¯°æ º¸È£¿¡ °üÇÑ ¹ý·ü>, ¿ª»ç¹®È­È¯°æº¸Á¸Áö¿ª(ÁøÃµ¿ëÈ­»ç¼®Á¶¿©·¡
ÀÔ»ó)<¹®È­À¯»êÀÇ º¸Á¸ ¹× Ȱ¿ë¿¡ °üÇÑ ¹ý·ü>, ¿µ³ó¿©°ÇºÒ¸®³óÁö.

- ±âÈ£(8) : µµ½ÃÁö¿ª, Á¦1Á¾ÀϹÝÁÖ°ÅÁö¿ª, °¡Ãà»çÀ°Á¦Çѱ¸¿ª(2020-06-22)(ÀüºÎÁ¦Çѱ¸¿ª)<°¡ÃàºÐ´¢ÀÇ °ü¸® ¹×
À̿뿡 °üÇÑ ¹ý·ü>.
6)Á¦½Ã¸ñ·Ï ¿ÜÀÇ ¹°°Ç
¾øÀ½.
7)°øºÎ¿ÍÀÇ Â÷ÀÌ
¾øÀ½.
8)±âŸÂü°í»çÇ×(ÀÓ´ë°ü·Ê ¹× ±âŸ)
¾øÀ½.
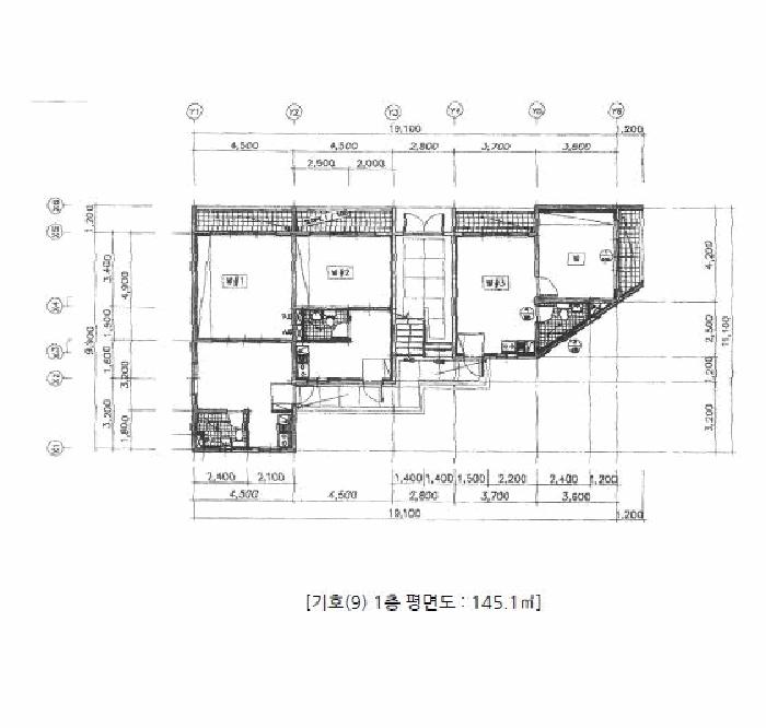
1)°Ç¹°ÀÇ ±¸Á¶
±¸Á¶ : ö±ÙÄÜÅ©¸®Æ®±¸Á¶ (ö±Ù)ÄÜÅ©¸®Æ® (Æò½º¶óºê)ÁöºØ Áö»ó3Ãþ °Ç¹°·Î¼­
¿Üº® : ¿ÜÀåÀç ¹× ¿¬¿ÍÁ¶Àû ¸¶°¨ µî
³»º® : º®Áö ºÙÀÓ, ÀϺΠŸÀÏ ºÙÀÓ µî
âȣ : ÇÏÀ̼¦½Ã âȣ µîÀÓ.

2)ÀÌ¿ë»óÅÂ
´Üµ¶ÁÖÅÃ(9°¡±¸)À¸·Î ÀÌ¿ëÁßÀÓ.
3)¼³ºñ³»¿ª
À§»ý ¹× ±Þ¡¤¹è¼ö¼³ºñ, ³­¹æ¼³ºñ µî ±¸ºñ µÇ¾î ÀÖÀ½.

4)ºÎÇÕ¹° ¹× Á¾¹°
¾øÀ½.
5)°øºÎ¿ÍÀÇ Â÷ÀÌ
¾øÀ½.
6)±âŸÂü°í»çÇ×(ÀÓ´ë°ü·Ê ¹× ±âŸ)
¾øÀ½.
Âü°í
»çÇ×
Àϰý¸Å°¢. ÁöºÐ¸Å°¢. °øÀ¯ÀÚÀÇ ¿ì¼±¸Å¼ö½Å°í´Â 1ȸ¿¡ ÇÑÇÏ¿© Çà»çÇÒ ¼ö ÀÖÀ½.
-. ÇöȲ 1¹ø ~ 7 ÀÓ

°ÇÃ๰ÇöȲ

¼ÒÀçÁö ÃæÃ»ºÏµµ ÁøÃµ±º ÁøÃµÀ¾ ¼º¼®¸® 733-29¹øÁö
´ëÁö¸éÀû 438§³
(132.73Æò)
¿¬¸éÀû 442.02§³
(133.95Æò)
°ÇÃà¸éÀû 151.83§³
(46.01Æò)
¿ëÀû·ü»êÁ¤
¿¬¸éÀû
442.02§³
(133.95Æò)
°ÇÆóÀ² 34.66% ¿ëÀû·ü 100.92%
Áö»óÃþ¼ö 3Ãþ ÁöÇÏÃþ¼ö  
ÁÖ¿ëµµ ´Üµ¶ÁÖÅà ±¸Á¶ ö±ÙÄÜÅ©¸®Æ®±¸Á¶
Âø°øÀÏÀÚ 2002.11.20 »ç¿ë½ÂÀÎÀÏÀÚ 2004.05.21
°ÇÃ๰Ãþº°ÇöȲ [º¸±â]


±¹ÅäºÎ½Ç°Å·¡°¡ ÃæÃ»ºÏµµ ÁøÃµ±º ÁøÃµÀ¾ ¼º¼®¸®

¡Ü ¸Å¸Å

¸éÀû(§³), ±Ý¾×(¸¸¿ø)

¡Ü Àü¼¼

¸éÀû(§³), ±Ý¾×(¸¸¿ø)

°è¾àÀÏ¿¬¸éÀûº¸Áõ±Ý¿ù¼¼°ÇÃà
25.07.1171.9623,0001984
25.02.0722.814,00002019
25.01.1189.5729,0001980
25.01.0224.453,5000
24.10.1159.67,50002019
¢Ñ ´õº¸±â

µî±âºÎµîº» ¿ä¾à(ÅäÁö)

  Á¢¼öÀÏÀÚ µî±â¸ñÀû/±Ç¸®ÀÚ ±Ç¸®±Ý¾× ±âÁØ
1 2016³â4¿ù8ÀÏ
¼ÒÀ¯±Ç
¾ÈOO
¼Ò¸ê
2 2016³â4¿ù8ÀÏ
¼ÒÀ¯±Ç
±èOO
¼Ò¸ê
3 2012³â8¿ù31ÀÏ
±ÙÀú´ç±Ç
ûOOOO
338,000,000 ¼Ò¸ê±âÁØ
4 2018³â3¿ù20ÀÏ
±ÙÀú´ç±Ç
ÀÌOO
270,000,000 ¼Ò¸ê
5 2022³â5¿ù4ÀÏ
(1)±ÙÀú´ç±Ç¼³Á¤
Á¶OO
140,000,000 ¼Ò¸ê
6 2022³â5¿ù4ÀÏ
(2)±ÙÀú´ç±Ç¼³Á¤
ÁöOO
140,000,000 ¼Ò¸ê
7 2025³â6¿ù16ÀÏ
ÀÓÀǰæ¸Å
ÀÌOO
¼Ò¸ê
8 2025³â9¿ù15ÀÏ
°¡¾Ð·ù
ÁõOOOO
44,227,510 ¼Ò¸ê

µî±âºÎµîº» ¿ä¾à(°Ç¹°)

  Á¢¼öÀÏÀÚ µî±â¸ñÀû/±Ç¸®ÀÚ ±Ç¸®±Ý¾× ±âÁØ
1 2016³â4¿ù8ÀÏ
¼ÒÀ¯±Ç
¾ÈOO
¼Ò¸ê
2 2016³â4¿ù8ÀÏ
¼ÒÀ¯±Ç
±èOO
¼Ò¸ê
3 2012³â8¿ù31ÀÏ
±ÙÀú´ç±Ç
ûOOOO
338,000,000 ¼Ò¸ê±âÁØ
4 2018³â3¿ù20ÀÏ
±ÙÀú´ç±Ç
ÀÌOO
270,000,000 ¼Ò¸ê
5 2022³â5¿ù4ÀÏ
(1)±ÙÀú´ç±Ç¼³Á¤
Á¶OO
140,000,000 ¼Ò¸ê
6 2022³â5¿ù4ÀÏ
(2)±ÙÀú´ç±Ç¼³Á¤
ÁöOO
140,000,000 ¼Ò¸ê
7 2025³â6¿ù16ÀÏ
ÀÓÀǰæ¸Å
ÀÌOO
¼Ò¸ê
8 2025³â9¿ù15ÀÏ
°¡¾Ð·ù
ÁõOOOO
44,227,510 ¼Ò¸ê

ÀÓÂ÷ÀÎÇöȲ (¹è´ç¿ä±¸Á¾±âÀÏ: )

ÀÓÂ÷ÀÎ ¿ëµµ/Á¡À¯ º¸Áõ±Ý/¿ù¼¼ ´ëÇ×·Â
ÀüÀÔÀÏ/È®Á¤ÀÏ ¹è´ç¿ä±¸ ºñ°í
TOOOOOOOOOOOOOOOOOO
X
2023.08.24.
°­OO 301È£Àüü 30¸¸¿ø
[¿ù]40¸¸¿ø
¹ÌÀüÀÔ
±èOO
X
2016.03.14.
³ªOO 302È£Àüü 30¸¸¿ø
[¿ù]35¸¸¿ø
¹ÌÀüÀÔ
³ëO 303È£Àüü 30¸¸¿ø
[¿ù]40¸¸¿ø
¹ÌÀüÀÔ
´ÏOO 203È£Àüü 30¸¸¿ø
[¿ù]40¸¸¿ø
¹ÌÀüÀÔ
¹ÙO 201È£Àüü 30¸¸¿ø
[¿ù]40¸¸¿ø
¹ÌÀüÀÔ
»çOO 101È£Àüü 30¸¸¿ø
[¿ù]40¸¸¿ø
¹ÌÀüÀÔ
»þO 103È£Àüü 30¸¸¿ø
[¿ù]40¸¸¿ø
¹ÌÀüÀÔ
¼îOOOOOOOOOOOOOOOOOOO 202È£Àüü 30¸¸¿ø
[¿ù]35¸¸¿ø
2025.01.31.(303È£·Î ÀüÀÔµÊ)
Á¤OO
X
2024.02.14.

¿©ÀÇÁÖ°æ¸Å Á¶¾ð ÇÑ ¸¶µð

ÁöºÐ°æ¸Å ¹°°ÇÀÌ Æ÷ÇԵǾî ÀÖ½À´Ï´Ù
¿©·¯ ¸íÀÌ °øµ¿À¸·Î ¼ÒÀ¯ÇÏ´Â ºÎµ¿»êÀÇ ÀϺθ¸ °æ¸Å·Î ³ª¿Â °ÍÀ» ÁöºÐ°æ¸Å¶ó°í ÇÕ´Ï´Ù. ¼ÒÀ¯ºÎºÐÀÌ Æ¯Á¤µÇÁö ¾Ê¾Æ »ç¿ë¿¡ Á¦¾àÀÌ µû¸¦ ¼ö ÀÖÀ¸¸ç °øÀ¯ÀÚ°£¿¡ ºÐÀïµµ ¹ß»ýÇÒ ¼ö ÀÖ½À´Ï´Ù. °øÀ¯ÀÚ´Â °øÀ¯ÀÚ¿ì¼±¸Å¼öû±¸±Ç¸®°¡ ÀÖ½À´Ï´Ù.

ÁÖÀÇ»çÇ× (ÃÖ¼±¼øÀ§ ¼³Á¤ÀÏ: 2012.08.31. ±ÙÀú´ç±Ç ¼³Á¤)

¸Å°¢À¸·Î ¼Ò¸êµÇÁö ¾Ê´Â µî±âºÎ±Ç¸®:
¸Å°¢À¸·Î ¼³Á¤µÈ °ÍÀ¸·Î º¸´Â Áö»ó±Ç:
Àϰý¸Å°¢. ÁöºÐ¸Å°¢. °øÀ¯ÀÚÀÇ ¿ì¼±¸Å¼ö½Å°í´Â 1ȸ¿¡ ÇÑÇÏ¿© Çà»çÇÒ ¼ö ÀÖÀ½.
¡Ø¹Ì³³°ü¸®ºñ(°ø¿ë) Àμö¿©ºÎ¸¦ ÀÔÂû Àü¿¡ È®ÀÎÇϽñ⠹ٶø´Ï´Ù

 

Áö¿ªºÐ¼®

ÁöÇÏö¸í Á÷¼±°Å¸®

Çб³¸í ÀüÈ­¹øÈ£ ÁÖ¼Ò Á÷¼±°Å¸®

¹ý¿ø

ûÁÖÁö¹æ¹ý¿ø (286-24)ÃæÃ»ºÏµµ ûÁֽà ¼­¿ø±¸ »ê³²·Î 62¹ø±æ 51 (»ê³²µ¿)
´ëÇ¥ : 043)249-7114~5, ¹Î¿ø : 043)249-7465, ¾ß°£ : 043)249-7400
°üÇÒÁö¿ª : ûÁÖ½Ã, º¸Àº±º, ±«»ê±º, ÁõÆò±º, ÁøÃµ±º

µî±â¼Ò ûÁÖÁö¹æ¹ý¿ø º»¿ø ÁøÃµµî±â¼Ò (´ëÇ¥:1544-0773, ÆÑ½º:(043)534-2224, 534-6958, ÃæºÏ ÁøÃµ±º ÁøÃµÀ¾ ³²»ê3±æ 6 (±³¼º¸® 237-2))
¼¼¹«¼­ ûÁÖ¼¼¹«¼­ (´ëÇ¥:043-230-92, ÆÑ½º:043-235-5417, ÃæÃ»ºÏµµ ûÁֽà Èï´ö±¸ Á×õ·Î 151 (º¹´ëµ¿))

Àαٳ«ÂûÅë°è

±â°£ ¸Å°¢°Ç¼ö Æò±Õ°¨Á¤°¡
Æò±Õ¸Å°¢°¡
¸Å°¢°¡À²
Æò±ÕÀ¯Âû¼ö
3°³¿ù 2°Ç 155,056,560¿ø
115,757,500¿ø
51%
3.5ȸ
6°³¿ù 4°Ç 128,823,475¿ø
99,221,250¿ø
59%
2.8ȸ
12°³¿ù 7°Ç 197,878,720¿ø
145,026,427¿ø
63%
2.7ȸ


º» °æ¸ÅÁ¤º¸´Â ¹ý¿øÀÚ·á¿Í ÀÏÄ¡Çϵµ·Ï ÇÏ¿´À¸³ª ±Ç¸®»çÇ׺¯µ¿, ÀÔ·ÂÂø¿À µîÀÇ ¿øÀÎÀ¸·Î »ç½Ç°ú ´Ù¸¦ ¼ö ÀÖ½À´Ï´Ù. ÀÌ¿ë¾à°ü¿¡ ÀǰЏéÃ¥Á¶°ÇÀ¸·Î Á¦°øµÊÀ» ¾Ë¸®¸ç, °æ¸ÅÀÔÂû½Ã ¹Ýµå½Ã °ü·Ã °øºÎ¸¦ ÀçÈ®ÀÎÇϽñ⠹ٶø´Ï´Ù. º¸´Ù Æí¸®ÇÑ °æ¸ÅÁ¤º¸ Á¦°øÀ» À§ÇØ Áö¼ÓÀûÀ¸·Î °³¼±ÇϰڽÀ´Ï´Ù. ÀÌ¿ëÇØ Áּż­ °¨»çÇÕ´Ï´Ù.