·Î±×ÀÎ
1303
´Ù¼¼´ë(ºô¶ó)
¼ö¿øÁö¹æ¹ý¿ø
 °¨Á¤°¡170,000,000 ¿ø
 ÃÖÀú°¡(34%) 58,310,000 ¿ø
 º¸Áõ±Ý(10%) 5,831,000 ¿ø
 Ã»±¸¾×182,719,177 ¿ø
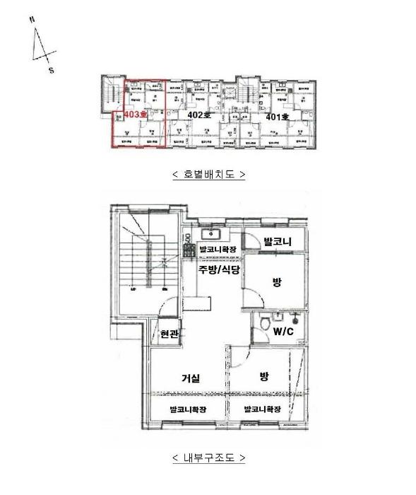
°æ±âµµ ¿ëÀνà óÀα¸ À¯¸²·Î 105, 4Ãþ403È£ (À¯¹æµ¿,´ë¸²½ºÅ¸ºô2)
°æ±âµµ ¿ëÀνà óÀα¸ À¯¹æµ¿ 85-5
»ç°Ç¹øÈ£ 2024Ÿ°æ92045
°æ¸ÅÁ¾·ùºÎµ¿»ê°­Á¦°æ¸Å
¸Å°¢´ë»óÅäÁö ¹× °Ç¹°Àϰý ¸Å°¢
¸Å°¢±âÀÏ    2026.03.20(±Ý) 10:00 ÀÔÂû 26ÀÏÀü    
ÅäÁö¸éÀû49.30§³(14.91 Æò)
°Ç¹°¸éÀû37.70§³(11.40 Æò)
乫/¼ÒÀ¯ÀÚÃÖOO / ÃÖOO
ä±ÇÀÚÁÖOOOOOOO
ÆäÀ̽ººÏ Æ®À§ÅÍ ±¸±Û+
īī¿À½ºÅ丮
īī¿ÀÅå sms¹®ÀÚº¸³»±â
 

±âÀϳ»¿ª

°æ°ú ³¯Â¥ Àú°¨ ÃÖÀú°¡ °á°ú
Á¢¼öÀÏ 2024-10-07 °æ¸ÅÁ¢¼ö
~1ÀÏ 
2024-10-08 °æ¸Å°³½Ã°áÁ¤
~80ÀÏ 
2024-12-26 ¹è´ç¿ä±¸Á¾±âÀÏ
~417ÀÏ 
2025-11-28 100%
170,000,000
À¯Âû
~457ÀÏ 
2026-01-07 70%
119,000,000
À¯Âû
~490ÀÏ 
2026-02-09 49%
83,300,000
À¯Âû
~529ÀÏ 
2026-03-20 34%
58,310,000
ÁøÇà
¹°°Ç¸í¼¼¼­ ÇöȲÁ¶»ç¼­ ¹®°ÇÁ¢¼ö ¼Û´Þ³»¿ª

°¨Á¤Æò°¡ÇöȲ

¸ñ·Ï ÁÖ¼Ò ±¸Á¶/¿ëµµ/´ëÁö±Ç ¸éÀû ºñ°í
´ëÁö±Ç
À¯¹æµ¿ 85-5 728ºÐÀÇ 49.3 49.3 §³
(14.91Æò)
°Ç¹°
À¯¹æµ¿ 85-5 4Ãþ403È£ ö±ÙÄÜÅ©¸®Æ®±¸Á¶ 37.7 §³
(11.40Æò)
1) À§Ä¡/µµ½ÃÁö¿ª/ÀÚ¿¬³ìÁöÁö¿ª/¹ö½ºÁ¤·ùÀå/ÁÖÂ÷Àå/ö±ÙÄÜÅ©¸®Æ®±¸Á¶/Æò½º¶óºêÁöºØ/°³º°³­¹æ/¹æ5 ´õº¸±â
°¨Á¤Æò°¡ ¿äÇ×Ç¥
1)À§Ä¡ ¹× ÁÖÀ§È¯°æ
º»°ÇÀº °æ±âµµ ¿ëÀνà óÀα¸ À¯¹æµ¿ ¼ÒÀç "À¯¹æ5µ¿ ¸¶À»È¸°ü" ºÏ¼­Ãø Àαٿ¡ À§Ä¡ÇÏ¸ç ºÎ±Ù
À¸·Î ´Üµ¶ÁÖÅà ¹× ´Ù¼¼´ëÁÖÅÃ, ¼Ò±Ô¸ð °øÀå ¹× Ã¢°í, ±Ù¸°»ýȰ½Ã¼³, ³ó°æÁö, ÀÓ¾ß µîÀÌ ¼ÒÀç
Çϸç ÁÖ°ÅÁö·Î¼­ÀÇ Á¦¹Ý ÁÖÀ§È¯°æÀº º¸ÅëÀÎ ÆíÀÓ.
2)±³Åë»óȲ
º»°Ç±îÁö Â÷·® ÁøÃâÀÔ °¡´ÉÇϸç Àαٿ¡ ¹ö½ºÁ¤·ùÀåÀÌ ¼ÒÀçÇÏ¿© ´ëÁß±³Åë ÀÌ¿ëÀº º¸ÅëÀÎ
ÆíÀÓ.
3)°Ç¹°ÀÇ ±¸Á¶
ö±ÙÄÜÅ©¸®Æ®±¸Á¶ Æò½º¶óºêÁöºØ 4Ãþ°Ç °øµ¿ÁÖÅà Áß 4Ãþ 403È£·Î¼­,

¿Ü º® : ÀÎÁ¶¼® µ¹ºÙÀÓ.
³» º® : º®Áöµµ¹è ¹× ÀϺΠŸÀϸ¶°¨.
â È£ : ¾Ë·ç¹Ì´½¼¦½Ã ¹× ÇÏÀ̼¦½Ã ÀÌÁßâÀÓ.
4)ÀÌ¿ë»óÅÂ
´Ù¼¼´ëÁÖÅÃ(µµ½ÃÇü»ýȰÁÖÅÃ)À¸·Î ÀÌ¿ëÁßÀÓ.(Èĸé"³»ºÎ±¸Á¶µµ"Âü°í)
5)¼³ºñ³»¿ª
À§»ý ±Þ.¹è¼ö¼³ºñ, °³º°³­¹æ¼³ºñ, ¼Ò¹æ¼³ºñ, °øµ¿Çö°üº¸¾È¼³ºñ µîÀÓ.
6)ÅäÁöÀÇ Çü»ó ¹× ÀÌ¿ë»óÅÂ
ÀÎÁ¢µµ·Î¿Í µî°í ÆòźÇÑ 2ÇÊ ÀÏ´ÜÀÇ ºÎÁ¤Çü ÅäÁö·Î¼­¼­ ´Ù¼¼´ëÁÖÅà °ÇºÎÁö·Î ÀÌ¿ëÁßÀÓ.
7)ÀÎÁ¢ µµ·Î»óŵî
º»°Ç ³²¼­ÃøÀ¸·Î ÁÖÂ÷Àå ÁøÀÔ °¡´ÉÇÏ¸ç ¿Ü°û°øµµ¿Í ¿¬°èµÇ¾î ÀÖÀ½.

8)ÅäÁöÀÌ¿ë°èȹ ¹× Á¦ÇÑ»óÅÂ
±âÈ£(1,2)
µµ½ÃÁö¿ª, ÀÚ¿¬³ìÁöÁö¿ª(2023-06-23), ÀÚ¿¬Ãë¶ôÁö±¸, ¼ºÀå°ü¸®°èȹ±¸¿ª(ÁÖ°ÅÇü)

°¡Ãà»çÀ°Á¦Çѱ¸¿ª<°¡ÃàºÐ´¢ÀÇ °ü¸® ¹× À̿뿡 °üÇÑ ¹ý·ü>,¹èÃâ½Ã¼³¼³Ä¡Á¦ÇÑÁö¿ª<¹°È¯°æº¸Àü
¹ý>,ÀÚ¿¬º¸Àü±Ç¿ª<¼öµµ±ÇÁ¤ºñ°èȹ¹ý>,¼öÁúº¸ÀüƯº°´ëÃ¥Áö¿ª<ȯ°æÁ¤Ã¥±âº»¹ý>

9)°øºÎ¿ÍÀÇ Â÷ÀÌ
-
10)±âŸÂü°í»çÇ×(ÀÓ´ë°ü·Ê ¹× ±âŸ)
ÀÓ´ë°ü°è ¹Ì»óÀÓ.
Âü°í
»çÇ×

ÇØ´ç ºÎµ¿»êÀÇ ÇöȲÀº ¿Ü

°ÇÃ๰ÇöȲ

¼ÒÀçÁö °æ±âµµ ¿ëÀνà óÀα¸ À¯¹æµ¿ 85-5¹øÁö
´ëÁö¸éÀû 728§³
(220.61Æò)
¿¬¸éÀû 724.54§³
(219.56Æò)
°ÇÃà¸éÀû 246.04§³
(74.56Æò)
¿ëÀû·ü»êÁ¤
¿¬¸éÀû
724.54§³
(219.56Æò)
°ÇÆóÀ² 33.8% ¿ëÀû·ü 99.52%
Áö»óÃþ¼ö 4Ãþ ÁöÇÏÃþ¼ö  
ÁÖ¿ëµµ °øµ¿ÁÖÅà ±¸Á¶ ö±ÙÄÜÅ©¸®Æ®±¸Á¶
Âø°øÀÏÀÚ 2018.11.05 »ç¿ë½ÂÀÎÀÏÀÚ 2019.06.07
°ÇÃ๰Ãþº°ÇöȲ [º¸±â]


µî±âºÎµîº» ¿ä¾à(°Ç¹°)

  Á¢¼öÀÏÀÚ µî±â¸ñÀû/±Ç¸®ÀÚ ±Ç¸®±Ý¾× ±âÁØ
1 2021³â9¿ù6ÀÏ
¼ÒÀ¯±Ç
ÃÖOO
¼Ò¸ê
2 2021³â9¿ù6ÀÏ
¾àÁ¤/±ÝÁö»çÇ×/ȯ¸ÅƯ¾à
Àμö
3 2023³â3¿ù15ÀÏ
¾Ð·ù
±¹
¼Ò¸ê±âÁØ
4 2023³â8¿ù18ÀÏ
ÀÓÂ÷±Ç¼³Á¤
±èOO
175,000,000 ¼Ò¸ê
5 2024³â10¿ù8ÀÏ
°­Á¦°æ¸Å
ÁÖOOOO
¼Ò¸ê

ÀÓÂ÷ÀÎÇöȲ (¹è´ç¿ä±¸Á¾±âÀÏ: 2024-12-26)

ÀÓÂ÷ÀÎ ¿ëµµ/Á¡À¯ º¸Áõ±Ý/¿ù¼¼ ´ëÇ×·Â
ÀüÀÔÀÏ/È®Á¤ÀÏ ¹è´ç¿ä±¸ ºñ°í
±èOO 403È£
X
2024.03.20
±èOO 403È£ 175,000,000
O
2021.08.20.
2021.07.26.
2021.08.13.~
ÁÖOOOOOOOOOOOOOOOO 403È£ 175,000,000
O
2021.08.20.
2021.07.26.
2024.12.26. 2021.08.13.~2023.08.14.
ºñ°í
(¸Å°¢¹°°Ç
¸í¼¼¼­)
ÁÖÅõµ½Ãº¸Áõ°ø»ç(¾çµµÀÎ:±è»óÀ±):°æ¸Å½Åûä±ÇÀÚ·Î ÀÓÂ÷±ÇÀÚ ±è»óÀ±ÀÇ ÀÓÂ÷º¸Áõ±Ý¹Ýȯä±Ç ¾ç¼öÀÎÀÓ(´ëÇ×·Â ¹× ¿ì¼±º¯Á¦±Ç ½Â °è)

¿©ÀÇÁÖ°æ¸Å Á¶¾ð ÇÑ ¸¶µð

¼±¼øÀ§ ÀÓÂ÷±Çµî±â°¡ µÇ¾î ÀÖ½À´Ï´Ù
´ëÇ×·ÂÀÌ ÀÖ´Â ¼±¼øÀ§ ÀÓÂ÷±Çµî±â ±Ç¸®ÀÚ°¡ ¹è´çÀ» Àü¾× ¹ÞÁö ¸øÇÒ °æ¿ì ³«ÂûÀÚ°¡ ÀÜ¿© º¸Áõ±ÝÀ» ÀμöÇØ¾ßÇÏ´Â °æ¿ìµµ ÀÖ½À´Ï´Ù.

ÁÖÀÇ»çÇ× (ÃÖ¼±¼øÀ§ ¼³Á¤ÀÏ: 2023.03.15. ¾Ð·ù ¼³Á¤)

¸Å°¢À¸·Î ¼Ò¸êµÇÁö ¾Ê´Â µî±âºÎ±Ç¸®: ¸Å¼öÀο¡°Ô ´ëÇ×ÇÒ ¼ö ÀÖ´Â À»±¸ 1¹ø ÀÓÂ÷±Çµî±â(ÀÓ´ëÂ÷º¸Áõ±Ý 175,000,000¿ø, ÀüÀÔÀÏÀÚ 2021.08.20. È®Á¤ÀÏÀÚ 2021.07.26.)°¡ ÀÖÀ¸¹Ç·Î ¹è´ç¿¡¼­ Àü¾× º¯Á¦µÇÁö ¾Æ´ÏÇϸé Àܾ×À» ¸Å¼öÀÎÀÌ ÀμöÇÔ(¶Ç´Â Àܾ×Àº ¸Å¼öÀο¡°Ô ÀμöµÉ ¼ö ÀÖÀ½)
¸Å°¢À¸·Î ¼³Á¤µÈ °ÍÀ¸·Î º¸´Â Áö»ó±Ç:
2025.03.19 ä±ÇÀÚ ¼Ò¼Û´ë¸®ÀÎ ¹ýOOO OOOOOO ¼Û´ÞÀå¼Ò º¯°æ½Åû¼­(乫ÀÚ) Á¦Ãâ
¡Ø¹Ì³³°ü¸®ºñ(°ø¿ë) Àμö¿©ºÎ¸¦ ÀÔÂû Àü¿¡ È®ÀÎÇϽñ⠹ٶø´Ï´Ù

 

Áö¿ªºÐ¼®

ÁöÇÏö¸í Á÷¼±°Å¸®

Çб³¸í ÀüÈ­¹øÈ£ ÁÖ¼Ò Á÷¼±°Å¸®

¹ý¿ø

¼ö¿øÁö¹æ¹ý¿ø (165-12)°æ±âµµ ¼ö¿ø½Ã ¿µÅ뱸 ¹ýÁ¶·Î 105, Çϵ¿, ¼ö¿ø¹ý¿øÁ¾ÇÕû»ç
´ëÇ¥ : 031)210-1114, ¾ß°£ : 031)210-1111
°üÇÒÁö¿ª : ¼ö¿ø½Ã, ¿À»ê½Ã, È­¼º½Ã, ¿ëÀνÃ

µî±â¼Ò ¼ö¿øÁö¹æ¹ý¿ø º»¿ø ¿ëÀεî±â¼Ò (´ëÇ¥:1544-0773, ÆÑ½º:(031)321-3919, °æ±âµµ ¿ëÀνà óÀα¸ ¼º»ê·Î 7 (¿ªºÏµ¿ 391-28))
¼¼¹«¼­ ¿ëÀμ¼¹«¼­ (´ëÇ¥:031-329-22, ÆÑ½º:031-329-2328, °æ±âµµ ¿ëÀνà óÀα¸ Áߺδë·Î1161¹ø±æ 71 (»ï°¡µ¿))

Àαٳ«ÂûÅë°è

±â°£ ¸Å°¢°Ç¼ö Æò±Õ°¨Á¤°¡
Æò±Õ¸Å°¢°¡
¸Å°¢°¡À²
Æò±ÕÀ¯Âû¼ö
3°³¿ù 9°Ç 173,555,556¿ø
136,695,779¿ø
77%
1.8ȸ
6°³¿ù 18°Ç 209,555,556¿ø
163,189,633¿ø
76%
1.6ȸ
12°³¿ù 27°Ç 214,851,852¿ø
162,769,236¿ø
76%
1.5ȸ


º» °æ¸ÅÁ¤º¸´Â ¹ý¿øÀÚ·á¿Í ÀÏÄ¡Çϵµ·Ï ÇÏ¿´À¸³ª ±Ç¸®»çÇ׺¯µ¿, ÀÔ·ÂÂø¿À µîÀÇ ¿øÀÎÀ¸·Î »ç½Ç°ú ´Ù¸¦ ¼ö ÀÖ½À´Ï´Ù. ÀÌ¿ë¾à°ü¿¡ ÀǰЏéÃ¥Á¶°ÇÀ¸·Î Á¦°øµÊÀ» ¾Ë¸®¸ç, °æ¸ÅÀÔÂû½Ã ¹Ýµå½Ã °ü·Ã °øºÎ¸¦ ÀçÈ®ÀÎÇϽñ⠹ٶø´Ï´Ù. º¸´Ù Æí¸®ÇÑ °æ¸ÅÁ¤º¸ Á¦°øÀ» À§ÇØ Áö¼ÓÀûÀ¸·Î °³¼±ÇϰڽÀ´Ï´Ù. ÀÌ¿ëÇØ Áּż­ °¨»çÇÕ´Ï´Ù.