·Î±×ÀÎ
157
¾ÆÆÄÆ®
¼ö¿øÁö¹æ¹ý¿ø
 °¨Á¤°¡1,300,000,000 ¿ø
 ÃÖÀú°¡(70%) 910,000,000 ¿ø
 º¸Áõ±Ý(10%) 91,000,000 ¿ø
 Ã»±¸¾×461,902,728 ¿ø
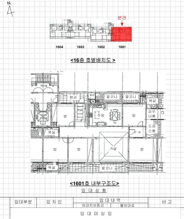
°æ±âµµ ¿ëÀνà ¼öÁö±¸ ¼ºº¹2·Î 86, 103µ¿ 16Ãþ1601È£ (¼ºº¹µ¿,¼ºµ¿¸¶À»¿¤Áöºô¸®Áö1Â÷)
°æ±âµµ ¿ëÀνà ¼öÁö±¸ ¼ºº¹µ¿ 155
»ç°Ç¹øÈ£ 2024Ÿ°æ79820
°æ¸ÅÁ¾·ùºÎµ¿»êÀÓÀǰæ¸Å
¸Å°¢´ë»óÅäÁö ¹× °Ç¹°Àϰý ¸Å°¢
¸Å°¢±âÀÏ    2026.01.07(¼ö) 10:00 ÀÔÂû 30ÀÏÀü    
ÅäÁö¸éÀû107.83§³(32.62 Æò)
°Ç¹°¸éÀû219.87§³(66.51 Æò)
乫/¼ÒÀ¯ÀÚÃÖOO / ½ÅOO¿Ü 1¸í
ä±ÇÀÚÄÉOOOOOOOOOOOO OOOO
ÆäÀ̽ººÏ Æ®À§ÅÍ ±¸±Û+
īī¿À½ºÅ丮
īī¿ÀÅå sms¹®ÀÚº¸³»±â
 

±âÀϳ»¿ª

°æ°ú ³¯Â¥ Àú°¨ ÃÖÀú°¡ °á°ú
Á¢¼öÀÏ 2024-07-15 °æ¸ÅÁ¢¼ö
~2ÀÏ 
2024-07-17 °æ¸Å°³½Ã°áÁ¤
~73ÀÏ 
2024-09-26 ¹è´ç¿ä±¸Á¾±âÀÏ
~501ÀÏ 
2025-11-28 100%
1,300,000,000
À¯Âû
~541ÀÏ 
2026-01-07 70%
910,000,000
ÁøÇà
¹°°Ç¸í¼¼¼­ ÇöȲÁ¶»ç¼­ ¹®°ÇÁ¢¼ö ¼Û´Þ³»¿ª

°¨Á¤Æò°¡ÇöȲ

¸ñ·Ï ÁÖ¼Ò ±¸Á¶/¿ëµµ/´ëÁö±Ç ¸éÀû ºñ°í
´ëÁö±Ç
¼ºº¹µ¿ 155 111005ºÐÀÇ 107.83 107.83 §³
(32.62Æò)
°Ç¹°
¼ºº¹µ¿ 155 103µ¿ 16Ãþ1601È£ ö±ÙÄÜÅ©¸®Æ®Á¶ 219.874 §³
(66.51Æò)
1) À§Ä¡/µµ½ÃÁö¿ª/Á¦3Á¾ÀϹÝÁÖ°ÅÁö¿ª/¹ö½ºÁ¤·ùÀå/ÁöÇÏö/°£¼±µµ·Î/ö±ÙÄÜÅ©¸®Æ®Á¶ ´õº¸±â
°¨Á¤Æò°¡ ¿äÇ×Ç¥
1)À§Ä¡ ¹× ÁÖÀ§È¯°æ
º»°ÇÀº °æ±âµµ ¿ëÀνà ¼öÁö±¸ ¼ºº¹µ¿ ¼ÒÀç "¼ºº¹ÁßÇб³" ³²Ãø Àαٿ¡ À§Ä¡Çϸç,
ÁÖÀ§´Â ¾ÆÆÄÆ®, Çб³, ±Ù¸°»ýȰ½Ã¼³ µîÀÌ ¼ÒÀçÇÏ´Â Áö¿ªÀÓ.
2)±³Åë»óȲ
º»°Ç±îÁö Â÷·®ÁøÀÔ °¡´ÉÇϸç, Àαٿ¡ ¹ö½ºÁ¤·ùÀå ¹× ÁöÇÏö¿ª(¼ºº¹¿ª)ÀÌ ¼ÒÀçÇÏ¿© ´ëÁß±³Åë
»çÁ¤Àº º¸ÅëÀÓ.
3)°Ç¹°ÀÇ ±¸Á¶
ö±ÙÄÜÅ©¸®Æ®Á¶ °æ»ç½½¶óºêÁöºØ 19Ãþ °Ç³» Á¦16Ãþ Á¦1601È£·Î¼­,
¿Üº® : ¸ôÅ» À§ ÆäÀÎÆÃ ¸¶°¨ µî,
³»º® : º®Áö ¹× ÀϺΠŸÀϺÙÀÓ ¸¶°¨ µî,
âȣ : »þ½Ãâȣ µîÀÓ.
4)ÀÌ¿ë»óÅÂ
¾ÆÆÄÆ®·Î ÀÌ¿ëÁßÀÓ.
(ÈÄ÷ "³»ºÎ±¸Á¶µµ" ÂüÁ¶)
5)¼³ºñ³»¿ª
À§»ý¼³ºñ, ±Þ.¹è¼ö¼³ºñ, ³­¹æ¼³ºñ, ½Â°­±â¼³ºñ µîÀÌ µÇ¾îÀÖÀ½.
6)ÅäÁöÀÇ Çü»ó ¹× ÀÌ¿ë»óÅÂ
ÀÎÁ¢ÇÊÁö´ëºñ ´ëü·Î ³²Ãø ÇÏÇâÀÇ ¿Ï°æ»çÁø ºÎÁ¤ÇüÀÇ ÅäÁö·Î¼­, ¾ÆÆÄÆ® °ÇºÎÁö·Î ÀÌ¿ëÁßÀÓ.
7)ÀÎÁ¢ µµ·Î»óŵî
º»°Ç ³²Ãø ¾ÆÆÄÆ®´ÜÁö Á¤¹®À» ÅëÇØ ´ÜÁö ÁøÃâÀÔÀÌ °¡´ÉÇÏ¸ç ¿Ü°û°øµµ¿Í ¿¬°èµÇ¾îÀÖÀ½.
8)ÅäÁöÀÌ¿ë°èȹ ¹× Á¦ÇÑ»óÅÂ
ÅäÁöÀÌ¿ë°èȹȮÀμ­»ó,
µµ½ÃÁö¿ª, Á¦3Á¾ÀϹÝÁÖ°ÅÁö¿ª, ¼Ò·Î1·ù(Æø 10m-12m)(±¹Áöµµ·Î)(Á¢ÇÕ), Áß·Î1·ù(Æø 20m-25m)
(º¸Á¶°£¼±µµ·Î)(Á¢ÇÕ), °¡Ãà»çÀ°Á¦Çѱ¸¿ª<°¡ÃàºÐ´¢ÀÇ °ü¸® ¹× À̿뿡 °üÇÑ ¹ý·ü>, »ó´ëº¸È£
±¸¿ª<±³À°È¯°æ º¸È£¿¡ °üÇÑ ¹ý·ü>, ºñÇà¾ÈÀüÁ¦3±¸¿ª(Àü¼ú)<±º»ç±âÁö ¹× ±º»ç½Ã¼³ º¸È£¹ý>,
¼ºÀå°ü¸®±Ç¿ª<¼öµµ±ÇÁ¤ºñ°èȹ¹ý>.
9)°øºÎ¿ÍÀÇ Â÷ÀÌ
¾øÀ½.
10)±âŸÂü°í»çÇ×(ÀÓ´ë°ü·Ê ¹× ±âŸ)
ÀÓ´ë ¹Ì»óÀÓ.
Âü°í
»çÇ×

º»°Ç ºÎµ¿»êÀÇ ÇöȲÀº ¿Ü

°ÇÃ๰ÇöȲ

¼ÒÀçÁö °æ±âµµ ¿ëÀνà ¼öÁö±¸ ¼ºº¹µ¿ 155¹øÁö
´ëÁö¸éÀû   ¿¬¸éÀû 20952.508§³
(6349.24Æò)
°ÇÃà¸éÀû 1187.728§³
(359.92Æò)
¿ëÀû·ü»êÁ¤
¿¬¸éÀû
19985.512§³
(6056.22Æò)
°ÇÆóÀ²   ¿ëÀû·ü  
Áö»óÃþ¼ö 20Ãþ ÁöÇÏÃþ¼ö 1Ãþ
ÁÖ¿ëµµ °øµ¿ÁÖÅà ±¸Á¶ ö±ÙÄÜÅ©¸®Æ®±¸Á¶
Âø°øÀÏÀÚ 1998.04. »ç¿ë½ÂÀÎÀÏÀÚ 2001.02.19


µî±âºÎµîº» ¿ä¾à(°Ç¹°)

  Á¢¼öÀÏÀÚ µî±â¸ñÀû/±Ç¸®ÀÚ ±Ç¸®±Ý¾× ±âÁØ
1 2018³â3¿ù7ÀÏ
¼ÒÀ¯±Ç
ÃÖOO
¼Ò¸ê
2 2018³â3¿ù7ÀÏ
¼ÒÀ¯±Ç
½ÅOO
¼Ò¸ê
3 2018³â8¿ù29ÀÏ
±ÙÀú´ç±Ç
ÇÑOOOO
522,700,000 ¼Ò¸ê±âÁØ
4 2021³â5¿ù6ÀÏ
±ÙÀú´ç±Ç
(OOOO
120,000,000 ¼Ò¸ê
5 2021³â5¿ù28ÀÏ
±ÙÀú´ç±Ç
(OOOO
120,000,000 ¼Ò¸ê
6 2021³â8¿ù30ÀÏ
±ÙÀú´ç±Ç
(OOOO
120,000,000 ¼Ò¸ê
7 2021³â10¿ù15ÀÏ
±ÙÀú´ç±Ç
(OOOO
120,000,000 ¼Ò¸ê
8 2021³â12¿ù16ÀÏ
±ÙÀú´ç±Ç
(OOOO
405,600,000 ¼Ò¸ê
9 2023³â3¿ù13ÀÏ
°¡¾Ð·ù
½ÅOOOO
9,846,806 ¼Ò¸ê
10 2024³â7¿ù17ÀÏ
ÀÓÀǰæ¸Å
ÄÉOOOO
¼Ò¸ê
11 2024³â10¿ù8ÀÏ
¾Ð·ù
¿ëOO
¼Ò¸ê
12 2024³â10¿ù8ÀÏ
¾Ð·ù
¿ëOO
¼Ò¸ê

ÀÓÂ÷ÀÎÇöȲ (¹è´ç¿ä±¸Á¾±âÀÏ: 2024-09-26)


Á¶»çµÈ ÀÓÂ÷³»¿ªÀÌ ¾ø½À´Ï´Ù


¿©ÀÇÁÖ°æ¸Å Á¶¾ð ÇÑ ¸¶µð


ÁÖÀÇ»çÇ× (ÃÖ¼±¼øÀ§ ¼³Á¤ÀÏ: 2018.08.29. ±ÙÀú´ç±Ç ¼³Á¤)

¸Å°¢À¸·Î ¼Ò¸êµÇÁö ¾Ê´Â µî±âºÎ±Ç¸®: ÇØ´ç»çÇ×¾øÀ½
¸Å°¢À¸·Î ¼³Á¤µÈ °ÍÀ¸·Î º¸´Â Áö»ó±Ç: ÇØ´ç»çÇ×¾øÀ½
¡Ø¹Ì³³°ü¸®ºñ(°ø¿ë) Àμö¿©ºÎ¸¦ ÀÔÂû Àü¿¡ È®ÀÎÇϽñ⠹ٶø´Ï´Ù

 

Áö¿ªºÐ¼®

ÁöÇÏö¸í Á÷¼±°Å¸®

Çб³¸í ÀüÈ­¹øÈ£ ÁÖ¼Ò Á÷¼±°Å¸®

¹ý¿ø

¼ö¿øÁö¹æ¹ý¿ø (165-12)°æ±âµµ ¼ö¿ø½Ã ¿µÅ뱸 ¹ýÁ¶·Î 105, Çϵ¿, ¼ö¿ø¹ý¿øÁ¾ÇÕû»ç
´ëÇ¥ : 031)210-1114, ¾ß°£ : 031)210-1111
°üÇÒÁö¿ª : ¼ö¿ø½Ã, ¿À»ê½Ã, È­¼º½Ã, ¿ëÀνÃ

µî±â¼Ò ¼ö¿øÁö¹æ¹ý¿ø º»¿ø ¿ëÀεî±â¼Ò (´ëÇ¥:1544-0773, ÆÑ½º:(031)321-3919, °æ±âµµ ¿ëÀνà óÀα¸ ¼º»ê·Î 7 (¿ªºÏµ¿ 391-28))
¼¼¹«¼­ ¿ëÀμ¼¹«¼­ (´ëÇ¥:031-329-22, ÆÑ½º:031-329-2328, °æ±âµµ ¿ëÀνà óÀα¸ Áߺδë·Î1161¹ø±æ 71 (»ï°¡µ¿))

Àαٳ«ÂûÅë°è

±â°£ ¸Å°¢°Ç¼ö Æò±Õ°¨Á¤°¡
Æò±Õ¸Å°¢°¡
¸Å°¢°¡À²
Æò±ÕÀ¯Âû¼ö
3°³¿ù 20°Ç 834,250,000¿ø
777,600,868¿ø
94%
0.9ȸ
6°³¿ù 47°Ç 819,638,298¿ø
759,604,256¿ø
93%
0.8ȸ
12°³¿ù 99°Ç 837,430,976¿ø
753,731,041¿ø
90%
1ȸ


º» °æ¸ÅÁ¤º¸´Â ¹ý¿øÀÚ·á¿Í ÀÏÄ¡Çϵµ·Ï ÇÏ¿´À¸³ª ±Ç¸®»çÇ׺¯µ¿, ÀÔ·ÂÂø¿À µîÀÇ ¿øÀÎÀ¸·Î »ç½Ç°ú ´Ù¸¦ ¼ö ÀÖ½À´Ï´Ù. ÀÌ¿ë¾à°ü¿¡ ÀǰЏéÃ¥Á¶°ÇÀ¸·Î Á¦°øµÊÀ» ¾Ë¸®¸ç, °æ¸ÅÀÔÂû½Ã ¹Ýµå½Ã °ü·Ã °øºÎ¸¦ ÀçÈ®ÀÎÇϽñ⠹ٶø´Ï´Ù. º¸´Ù Æí¸®ÇÑ °æ¸ÅÁ¤º¸ Á¦°øÀ» À§ÇØ Áö¼ÓÀûÀ¸·Î °³¼±ÇϰڽÀ´Ï´Ù. ÀÌ¿ëÇØ Áּż­ °¨»çÇÕ´Ï´Ù.