·Î±×ÀÎ
171
¾ÆÆÄÆ®
¿ï»êÁö¹æ¹ý¿ø
 °¨Á¤°¡237,000,000 ¿ø
 ÃÖÀú°¡(49%) 116,130,000 ¿ø
 º¸Áõ±Ý(10%) 11,613,000 ¿ø
 Ã»±¸¾×129,254,730 ¿ø
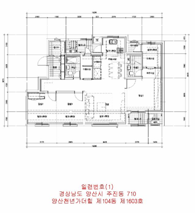
°æ»ó³²µµ ¾ç»ê½Ã ÁÖÁøµ¿ 710 ¾ç»êõ³â°¡´õÈú 104µ¿ 16Ãþ1603È£
»ç°Ç¹øÈ£ 2025Ÿ°æ11946
°æ¸ÅÁ¾·ùºÎµ¿»êÀÓÀǰæ¸Å
¸Å°¢´ë»óÅäÁö ¹× °Ç¹°Àϰý ¸Å°¢
¸Å°¢±âÀÏ    2026.02.24(È­) 10:00 ÀÔÂû 46ÀÏÀü    
ÅäÁö¸éÀû52.22§³(15.80 Æò)
°Ç¹°¸éÀû73.17§³(22.13 Æò)
乫/¼ÒÀ¯ÀÚÁÖOOO OOOO¿Ü 1¸í / ÁÖOOO OOOO¿Ü 1¸í
ä±ÇÀÚ½ÅOOOOOOO
ÆäÀ̽ººÏ Æ®À§ÅÍ ±¸±Û+
īī¿À½ºÅ丮
īī¿ÀÅå sms¹®ÀÚº¸³»±â
 

±âÀϳ»¿ª

°æ°ú ³¯Â¥ Àú°¨ ÃÖÀú°¡ °á°ú
Á¢¼öÀÏ 2025-06-09 °æ¸ÅÁ¢¼ö
~1ÀÏ 
2025-06-10 °æ¸Å°³½Ã°áÁ¤
~84ÀÏ 
2025-09-01 ¹è´ç¿ä±¸Á¾±âÀÏ
~171ÀÏ 
2025-11-27 100%
237,000,000
À¯Âû
~211ÀÏ 
2026-01-06 70%
165,900,000
À¯Âû
~260ÀÏ 
2026-02-24 49%
116,130,000
ÁøÇà
¹°°Ç¸í¼¼¼­ ÇöȲÁ¶»ç¼­ ¹®°ÇÁ¢¼ö ¼Û´Þ³»¿ª

°¨Á¤Æò°¡ÇöȲ

¸ñ·Ï ÁÖ¼Ò ±¸Á¶/¿ëµµ/´ëÁö±Ç ¸éÀû ºñ°í
´ëÁö±Ç
ÁÖÁøµ¿ 710 31649.1ºÐÀÇ 52.2203 52.2203 §³
(15.80Æò)
°Ç¹°
ÁÖÁøµ¿ 710 104µ¿ 16Ãþ1603È£ ö±ÙÄÜÅ©¸®Æ®±¸Á¶ 73.1686 §³
(22.13Æò)
1) À§Ä¡/Á¦2Á¾ÀϹÝÁÖ°ÅÁö¿ª/Áö±¸´ÜÀ§°èȹ±¸¿ª/ö±ÙÄÜÅ©¸®Æ®±¸Á¶ ´õº¸±â
°¨Á¤Æò°¡ ¿äÇ×Ç¥
1)À§Ä¡ ¹× ÁÖÀ§È¯°æ
´ë»ó¹°°ÇÀº °æ»ó³²µµ ¾ç»ê½Ã ÁÖÁøµ¿ ¼ÒÀç ""½Å¸íÃʵîÇб³"" ºÏµ¿Ãø Àαٿ¡ À§Ä¡ÇÏ´Â ±¸ºÐ°Ç¹°·Î¼­ ÁÖÀ§´Â ¾ÆÆÄÆ®, Çб³, ±Ù¸°»ýȰ½Ã¼³ µîÀ¸·Î Çü¼ºµÇ¾î ÀÖÀ½.
2)±³Åë»óȲ
´ë»ó±îÁö Â÷·®Á¢±Ù °¡´ÉÇϸç, ÀϹÝÀû ±³Åë»óȲ º¸ÅëÀÓ.
3)°Ç¹°ÀÇ ±¸Á¶
ö±ÙÄÜÅ©¸®Æ®±¸Á¶ (ö±Ù)ÄÜÅ©¸®Æ®ÁöºØ 19Ãþ °Ç Áß 16Ãþ 1603È£·Î
¿Üº®: ¸ð¸£Å¸¸£ À§ ÆäÀÎÆÃ µî.
³»º®: º®Áö¹Ù¸§, ŸÀϺÙÀÓ, ³»ºÎ ÀÎÅ׸®¾î µî.
âȣ: ¼¦½Ãâȣ µî.
4)ÀÌ¿ë»óÅÂ
¾ÆÆÄÆ®ÀÓ.
5)¼³ºñ³»¿ª
À§»ý ¹× ±Þ¹è¼ö¼³ºñ, ½Â°­±â¼³ºñ, ¼ÒÈ­Àü¼³ºñ µîÀÌ ¼³Ä¡µÇ¾î ÀÖÀ¸¸ç, ³­¹æ¼³ºñ ÀÛµ¿¿©ºÎ´Â °æ¸ÅÁøÇà½Ã È®ÀÎÇϽñ⠹ٶ÷.
6)ÅäÁöÀÇ Çü»ó ¹× ÀÌ¿ë»óÅÂ
»ç´Ù¸®ÇüÀÇ ÅäÁö·Î ÁÖ°Å¿ë(¾ÆÆÄÆ®) °ÇºÎÁöÀÓ.
7)ÀÎÁ¢ µµ·Î»óŵî
ÁÖº¯ °¡·Î¸Á »óÅ º¸ÅëÀÓ.
8)ÅäÁöÀÌ¿ë°èȹ ¹× Á¦ÇÑ»óÅÂ
Á¦2Á¾ÀϹÝÁÖ°ÅÁö¿ª , Áö±¸´ÜÀ§°èȹ±¸¿ª , ±¤·Î3·ù(Æø 40m~50m)(Á¢ÇÕ) , Áß·Î2·ù(Æø 15m~20m)(Á¢ÇÕ), °¡Ãà»çÀ°Á¦Çѱ¸¿ª(¸ðµçÃàÁ¾ Á¦ÇÑÁö¿ª)<°¡ÃàºÐ´¢ÀÇ °ü¸® ¹× À̿뿡 °üÇÑ ¹ý·ü>.
9)°øºÎ¿ÍÀÇ Â÷ÀÌ
¾øÀ½.
10)±âŸÂü°í»çÇ×(ÀÓ´ë°ü·Ê ¹× ±âŸ)
ÀÓ´ë°ü°è ¹Ì»óÀ̸ç, ±âŸ»çÇ× ¾øÀ½.
Âü°í
»çÇ×

º»°Ç ºÎµ¿»êÀº ¾ç»ê ÁÖÁøµ¿ ¼ÒÀç ¾ç

°ÇÃ๰ÇöȲ

¼ÒÀçÁö °æ»ó³²µµ ¾ç»ê½Ã ÁÖÁøµ¿ 710¹øÁö
´ëÁö¸éÀû   ¿¬¸éÀû 1888.1693§³
(572.17Æò)
°ÇÃà¸éÀû   ¿ëÀû·ü»êÁ¤
¿¬¸éÀû
 
°ÇÆóÀ²   ¿ëÀû·ü  
Áö»óÃþ¼ö   ÁöÇÏÃþ¼ö 1Ãþ
ÁÖ¿ëµµ °øµ¿ÁÖÅà ±¸Á¶ ö±ÙÄÜÅ©¸®Æ®±¸Á¶
Âø°øÀÏÀÚ 2021.03.19 »ç¿ë½ÂÀÎÀÏÀÚ 2024.01.31
°ÇÃ๰Ãþº°ÇöȲ [º¸±â]


µî±âºÎµîº» ¿ä¾à(°Ç¹°)

  Á¢¼öÀÏÀÚ µî±â¸ñÀû/±Ç¸®ÀÚ ±Ç¸®±Ý¾× ±âÁØ
1 2024³â2¿ù5ÀÏ
¼ÒÀ¯±Ç
(OOOO
¼Ò¸ê
2 2024³â2¿ù5ÀÏ
¾àÁ¤/±ÝÁö»çÇ×/ȯ¸ÅƯ¾à
Àμö
3 2024³â2¿ù5ÀÏ
±ÙÀú´ç±Ç
(OOOO
111,600,000 ¼Ò¸ê±âÁØ
4 2024³â7¿ù1ÀÏ
±ÙÀú´ç±Ç
½ÅOOOO
151,176,000 ¼Ò¸ê
5 2025³â5¿ù29ÀÏ
°¡¾Ð·ù
ÁÖOOOO
1,000,000,000 ¼Ò¸ê
6 2025³â6¿ù10ÀÏ
ÀÓÀǰæ¸Å
½ÅOOOO
¼Ò¸ê

ÀÓÂ÷ÀÎÇöȲ (¹è´ç¿ä±¸Á¾±âÀÏ: 2025-09-01)


Á¶»çµÈ ÀÓÂ÷³»¿ªÀÌ ¾ø½À´Ï´Ù


¿©ÀÇÁÖ°æ¸Å Á¶¾ð ÇÑ ¸¶µð


ÁÖÀÇ»çÇ× (ÃÖ¼±¼øÀ§ ¼³Á¤ÀÏ: 2024.02.05. ±ÙÀú´ç±Ç ¼³Á¤)

¸Å°¢À¸·Î ¼Ò¸êµÇÁö ¾Ê´Â µî±âºÎ±Ç¸®:
¸Å°¢À¸·Î ¼³Á¤µÈ °ÍÀ¸·Î º¸´Â Áö»ó±Ç:
¡Ø¹Ì³³°ü¸®ºñ(°ø¿ë) Àμö¿©ºÎ¸¦ ÀÔÂû Àü¿¡ È®ÀÎÇϽñ⠹ٶø´Ï´Ù

 

Áö¿ªºÐ¼®

ÁöÇÏö¸í Á÷¼±°Å¸®

Çб³¸í ÀüÈ­¹øÈ£ ÁÖ¼Ò Á÷¼±°Å¸®

¹ý¿ø

¿ï»êÁö¹æ¹ý¿ø (446-43)¿ï»ê±¤¿ª½Ã ³²±¸ ¹ý´ë·Î 55(¿Áµ¿ 1415)
´ëÇ¥ : 052)216-8000, ¹Î¿ø : 052)216-8021~3
°üÇÒÁö¿ª : ¿ï»ê±¤¿ª½Ã, ¾ç»ê½Ã

µî±â¼Ò ¿ï»êÁö¹æ¹ý¿ø º»¿ø ¾ç»êµî±â¼Ò (´ëÇ¥:1544-0773, ÆÑ½º:(055)384-4180, °æ³² ¾ç»ê½Ã ºÏ¾È³²5±æ 12 (ºÏºÎµ¿ 373))
¼¼¹«¼­ ¾ç»ê¼¼¹«¼­ (´ëÇ¥:055-389-62, ÆÑ½º:055-389-6602, °æ»ó³²µµ ¾ç»ê½Ã ¹°±ÝÀ¾ Áõ»ê¿ª·Î135, 9Ãþ, 10Ãþ(°¡Ã̸® 1296-1))

Àαٳ«ÂûÅë°è

±â°£ ¸Å°¢°Ç¼ö Æò±Õ°¨Á¤°¡
Æò±Õ¸Å°¢°¡
¸Å°¢°¡À²
Æò±ÕÀ¯Âû¼ö
3°³¿ù 41°Ç 191,470,732¿ø
154,843,829¿ø
77%
1.3ȸ
6°³¿ù 84°Ç 182,596,429¿ø
144,628,973¿ø
76%
1.3ȸ
12°³¿ù 158°Ç 191,873,418¿ø
154,350,440¿ø
77%
1.3ȸ


º» °æ¸ÅÁ¤º¸´Â ¹ý¿øÀÚ·á¿Í ÀÏÄ¡Çϵµ·Ï ÇÏ¿´À¸³ª ±Ç¸®»çÇ׺¯µ¿, ÀÔ·ÂÂø¿À µîÀÇ ¿øÀÎÀ¸·Î »ç½Ç°ú ´Ù¸¦ ¼ö ÀÖ½À´Ï´Ù. ÀÌ¿ë¾à°ü¿¡ ÀǰЏéÃ¥Á¶°ÇÀ¸·Î Á¦°øµÊÀ» ¾Ë¸®¸ç, °æ¸ÅÀÔÂû½Ã ¹Ýµå½Ã °ü·Ã °øºÎ¸¦ ÀçÈ®ÀÎÇϽñ⠹ٶø´Ï´Ù. º¸´Ù Æí¸®ÇÑ °æ¸ÅÁ¤º¸ Á¦°øÀ» À§ÇØ Áö¼ÓÀûÀ¸·Î °³¼±ÇϰڽÀ´Ï´Ù. ÀÌ¿ëÇØ Áּż­ °¨»çÇÕ´Ï´Ù.