·Î±×ÀÎ
65
¿ÀÇǽºÅÚ
ÀÎõÁö¹æ¹ý¿ø
 °¨Á¤°¡254,000,000 ¿ø
 ÃÖÀú°¡(70%) 177,800,000 ¿ø
 º¸Áõ±Ý(10%) 17,780,000 ¿ø
 Ã»±¸¾×299,000,000 ¿ø
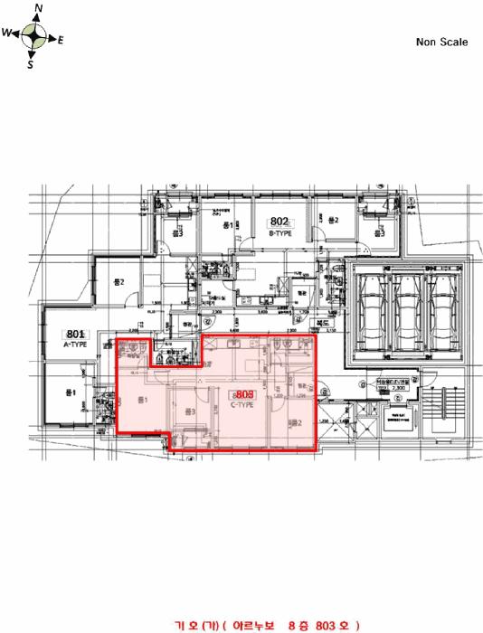
ÀÎõ±¤¿ª½Ã µ¿±¸ ±Ý°îµ¿ 35-15 ¾Æ¸£´©º¸ 8Ãþ803È£
»ç°Ç¹øÈ£ 2025Ÿ°æ511736
°æ¸ÅÁ¾·ùºÎµ¿»ê°­Á¦°æ¸Å
¸Å°¢´ë»óÅäÁö ¹× °Ç¹°Àϰý ¸Å°¢
¸Å°¢±âÀÏ    2026.01.07(¼ö) 10:00 ÀÔÂû 30ÀÏÀü    
ÅäÁö¸éÀû10.92§³(3.30 Æò)
°Ç¹°¸éÀû74.92§³(22.66 Æò)
乫/¼ÒÀ¯ÀÚÃÖOO / ÃÖOO
ä±ÇÀÚÁÖOOOOOOO
ÆäÀ̽ººÏ Æ®À§ÅÍ ±¸±Û+
īī¿À½ºÅ丮
īī¿ÀÅå sms¹®ÀÚº¸³»±â
 

±âÀϳ»¿ª

°æ°ú ³¯Â¥ Àú°¨ ÃÖÀú°¡ °á°ú
Á¢¼öÀÏ 2025-08-20 °æ¸ÅÁ¢¼ö
~2ÀÏ 
2025-08-22 °æ¸Å°³½Ã°áÁ¤
~72ÀÏ 
2025-10-31 ¹è´ç¿ä±¸Á¾±âÀÏ
~98ÀÏ 
2025-11-26 100%
254,000,000
À¯Âû
~140ÀÏ 
2026-01-07 70%
177,800,000
ÁøÇà
¹°°Ç¸í¼¼¼­ ÇöȲÁ¶»ç¼­ ¹®°ÇÁ¢¼ö ¼Û´Þ³»¿ª

°¨Á¤Æò°¡ÇöȲ

¸ñ·Ï ÁÖ¼Ò ±¸Á¶/¿ëµµ/´ëÁö±Ç ¸éÀû ºñ°í
´ëÁö±Ç
±Ý°îµ¿ 35-15 528.9ºÐÀÇ 10.91584 10.91584 §³
(3.30Æò)
°Ç¹°
±Ý°îµ¿ 35-15 8Ãþ803È£ ö±ÙÄÜÅ©¸®Æ®±¸Á¶ 74.923 §³
(22.66Æò)
1) À§Ä¡/ÀϹݻó¾÷Áö¿ª/Áö±¸´ÜÀ§°èȹ±¸¿ª/¹ö½ºÁ¤·ùÀå/ö±ÙÄÜÅ©¸®Æ®±¸Á¶ ´õº¸±â
°¨Á¤Æò°¡ ¿äÇ×Ç¥
1)À§Ä¡ ¹× ÁÖÀ§È¯°æ
º»°ÇÀº ÀÎõ±¤¿ª½Ã µ¿±¸ ±Ý°îµ¿ ¼ÒÀç '¼Û¸²ÃʵîÇб³' ³²Ãø Àαٿ¡ À§Ä¡ÇÑ ¾Æ¸£´©º¸ Á¦8Ãþ Á¦

803È£·Î¼­ ºÎ±ÙÀº ±Ù¸°»ýȰ½Ã¼³ ¹× ¾ÆÆÄÆ® µîÀ¸·Î Çü¼ºµÇ¾î ÀÖÀ½.
2)±³Åë»óȲ
º»°Ç±îÁö Â÷·® ÃâÀÔÀÌ °¡´ÉÇϸç, Àαٿ¡ ¹ö½ºÁ¤·ùÀå ¹× 'µ¿ÀÎõ¿ª'ÀÌ ¼ÒÀçÇÏ¿© ´ëÁß±³Åë»óȲ

Àº ¹«³­½ÃµÊ.
3)°Ç¹°ÀÇ ±¸Á¶
ö±ÙÄÜÅ©¸®Æ®±¸Á¶ (ö±Ù)ÄÜÅ©¸®Æ®ÁöºØ 14Ãþ°Ç ³» 8Ãþ 803È£·Î,

(ÁýÇÕ°ÇÃ๰´ëÀå»ó »ç¿ë½ÂÀÎÀÏ : 2019.03.29)

¿Ü º® : ¸ð¸£Å¸¸£À§ÆäÀÎÆÃ µî

â È£ : »õ½ÃâÀÓ.
4)ÀÌ¿ë»óÅÂ
¿ÀÇǽºÅÚÀÓ.
5)¼³ºñ³»¿ª
À§»ý¼³ºñ, ±Þ¹è¼ö¼³ºñ, ³­¹æ¼³ºñ, ¿¤·¹º£ÀÌÅÍ µîÀÌ µÇ¾î ÀÖÀ½.
6)ÅäÁöÀÇ Çü»ó ¹× ÀÌ¿ë»óÅÂ
ºÎÁ¤Çü ÅäÁö·Î¼­ ¿ÀÇǽºÅÚ °ÇºÎÁö·Î ÀÌ¿ëÁßÀÓ.
7)ÀÎÁ¢ µµ·Î»óŵî
º»°Ç ÇÊÁö ¼­Ãø ¾à 8 m µµ·Î¿Í Á¢ÇÔ.
8)ÅäÁöÀÌ¿ë°èȹ ¹× Á¦ÇÑ»óÅÂ
ÀϹݻó¾÷Áö¿ª, ¹æÈ­Áö±¸, ½Ã°¡Áö°æ°üÁö±¸(2018-12-31), Áö±¸´ÜÀ§°èȹ±¸¿ª(2015-03-23), ´ë·Î

3·ù(Æø 25m~30m)(µ¿ÀÎõ¿ª ÁÖº¯ ÀçÁ¤ºñÃËÁø°èȹ ÇØÁ¦¿¡ µû¸¥ Áö±¸ ³» ¿¬À屸°£ »èÁ¦)(Á¢ÇÕ),

¼Ò·Î2·ù(Æø 8m~10m)(Á¢ÇÕ), °¡Ãà»çÀ°Á¦Çѱ¸¿ª<°¡ÃàºÐ´¢ÀÇ °ü¸® ¹× À̿뿡 °üÇÑ ¹ý·ü>, »ó´ë

º¸È£±¸¿ª(2023-11-28)(⿵ÃʵîÇб³º´¼³À¯Ä¡¿ø, ⿵ÃʵîÇб³)<±³À°È¯°æ º¸È£¿¡ °üÇÑ ¹ý·ü>,

»ó´ëº¸È£±¸¿ª(ÀÎõ¼Û¸²ÃʵîÇб³)<±³À°È¯°æ º¸È£¿¡ °üÇÑ ¹ý·ü>, »ó´ëº¸È£±¸¿ª(ÀÎõÁ¤º¸»ê¾÷°í

µîÇб³)<±³À°È¯°æ º¸È£¿¡ °üÇÑ ¹ý·ü>, ¿ª»ç¹®È­È¯°æº¸Á¸Áö¿ª(2024-06-10)<¹®È­À¯»êÀÇ º¸Á¸

¹× Ȱ¿ë¿¡ °üÇÑ ¹ý·ü>, °ú¹Ð¾ïÁ¦±Ç¿ª<¼öµµ±ÇÁ¤ºñ°èȹ¹ý>ÀÓ.
9)°øºÎ¿ÍÀÇ Â÷ÀÌ
-
10)±âŸÂü°í»çÇ×(ÀÓ´ë°ü·Ê ¹× ±âŸ)
º»°Ç ÀÌÇØ°ü°èÀÎÀÇ ºÎÀç ¹× Æó¹® µîÀ¸·Î ÇöÀåÁ¶»ç ¹× °øºÎ µîÀ» ±Ù°Å·Î ÀÛ¼ºÇÏ¿´À¸¸ç ÀÚ¼¼

ÇÑ ÀÓ´ë°ü°è´Â ¹Ì»óÀÓ.
Âü°í
»çÇ×

- º»°ÇÀº ÀÎõ¼Û¸²ÃʵîÇб³ ºÎ±Ù¿¡

°ÇÃ๰ÇöȲ

¼ÒÀçÁö ÀÎõ±¤¿ª½Ã µ¿±¸ ±Ý°îµ¿ 35-15¹øÁö
´ëÁö¸éÀû 528.9§³
(160.27Æò)
¿¬¸éÀû 4936.366§³
(1495.87Æò)
°ÇÃà¸éÀû 359.93§³
(109.07Æò)
¿ëÀû·ü»êÁ¤
¿¬¸éÀû
4759.096§³
(1442.15Æò)
°ÇÆóÀ² 68.05% ¿ëÀû·ü 899.81%
Áö»óÃþ¼ö 17Ãþ ÁöÇÏÃþ¼ö 1Ãþ
ÁÖ¿ëµµ ¾÷¹«½Ã¼³ ±¸Á¶ ö±ÙÄÜÅ©¸®Æ®±¸Á¶
Âø°øÀÏÀÚ 2017.10.23 »ç¿ë½ÂÀÎÀÏÀÚ 2019.03.29
°ÇÃ๰Ãþº°ÇöȲ [º¸±â]


±¹ÅäºÎ½Ç°Å·¡°¡ ÀÎõ±¤¿ª½Ã µ¿±¸ ±Ý°îµ¿

¡Ü ¸Å¸Å

¸éÀû(§³), ±Ý¾×(¸¸¿ø)

¡Ü Àü¼¼

¸éÀû(§³), ±Ý¾×(¸¸¿ø)

°è¾àÀϰǹ°¸íĪÃþÀü¿ëº¸Áõ±Ý¿ù¼¼°ÇÃà
25.09.04¾Æ¸£´©º¸1077.0317,5002019
24.12.22¾Æ¸£´©º¸1074.9215,00002019
24.03.22¾Æ¸£´©º¸274.946,000202019

µî±âºÎµîº» ¿ä¾à(°Ç¹°)

  Á¢¼öÀÏÀÚ µî±â¸ñÀû/±Ç¸®ÀÚ ±Ç¸®±Ý¾× ±âÁØ
1 2022³â4¿ù20ÀÏ
¼ÒÀ¯±Ç
ÃÖOO
¼Ò¸ê
2 2022³â10¿ù18ÀÏ
¾Ð·ù
µ¿O
¼Ò¸ê±âÁØ
3 2023³â3¿ù27ÀÏ
¾Ð·ù
±¹
¼Ò¸ê
4 2024³â1¿ù10ÀÏ
ÀÓÂ÷±Ç¼³Á¤
ÀÌOO
299,000,000 ¼Ò¸ê
5 2024³â4¿ù18ÀÏ
¾Ð·ù
±¹
¼Ò¸ê
6 2025³â8¿ù22ÀÏ
°­Á¦°æ¸Å
ÁÖOOOO
¼Ò¸ê

ÀÓÂ÷ÀÎÇöȲ (¹è´ç¿ä±¸Á¾±âÀÏ: 2025-10-31)

ÀÓÂ÷ÀÎ ¿ëµµ/Á¡À¯ º¸Áõ±Ý/¿ù¼¼ ´ëÇ×·Â
ÀüÀÔÀÏ/È®Á¤ÀÏ ¹è´ç¿ä±¸ ºñ°í
±èOO
X
2025. 3. 7.
¹ÚO 2,000,000
[¿ù]1,050,000

ÀÌOO 299,000,000
O
2022. 4. 20.
2022. 3. 11.
2022. 4. 20.~
ÁÖOOOOOOOOOOOOOOO ÀüºÎ 299,000,000
O
2022. 4. 20.
2022. 3. 11.
2025. 9. 29. 2022. 4. 20.~2024. 4. 19.
ºñ°í
(¸Å°¢¹°°Ç
¸í¼¼¼­)
- ÀÌÀÎÇÏ: ÁÖÅÃÀÓÂ÷±Çµî±â±ÇÀڷμ­ ÁÖÅÃÀÓÂ÷±Çµî±âÀÏÀº 2024. 1. 10. ÀÓ - ÁÖÅõµ½Ãº¸Áõ°ø»ç(ÀÓÂ÷ÀÎ ÀÌÀÎÇÏ): °æ¸Å½Åû±ÇÀÚÀ̸ç ÁÖÅÃÀÓ´ëÂ÷º¸È£¹ý Á¦3Á¶ÀÇ2 Á¦7Ç× Á¦9È£ÀÇ ±â°üÀ¸·Î ÀÓÂ÷ÀÎ ÀÌÀÎÇÏ·Î

¿©ÀÇÁÖ°æ¸Å Á¶¾ð ÇÑ ¸¶µð

¼±¼øÀ§ ÀÓÂ÷±Çµî±â°¡ µÇ¾î ÀÖ½À´Ï´Ù
´ëÇ×·ÂÀÌ ÀÖ´Â ¼±¼øÀ§ ÀÓÂ÷±Çµî±â ±Ç¸®ÀÚ°¡ ¹è´çÀ» Àü¾× ¹ÞÁö ¸øÇÒ °æ¿ì ³«ÂûÀÚ°¡ ÀÜ¿© º¸Áõ±ÝÀ» ÀμöÇØ¾ßÇÏ´Â °æ¿ìµµ ÀÖ½À´Ï´Ù.

ÁÖÀÇ»çÇ× (ÃÖ¼±¼øÀ§ ¼³Á¤ÀÏ: 2022. 10. 18. ¾Ð·ù ¼³Á¤)

¸Å°¢À¸·Î ¼Ò¸êµÇÁö ¾Ê´Â µî±âºÎ±Ç¸®: À»±¸ ¼øÀ§ 1¹ø ÁÖÅÃÀÓÂ÷±Çµî±â(´Ù¸¸ ÁÖÅõµ½Ãº¸Áõ°ø»çÀÇ ¸»¼Òµ¿ÀÇ È®¾à¼­°¡ Á¦ÃâµÊ)
¸Å°¢À¸·Î ¼³Á¤µÈ °ÍÀ¸·Î º¸´Â Áö»ó±Ç:
¡Ø¹Ì³³°ü¸®ºñ(°ø¿ë) Àμö¿©ºÎ¸¦ ÀÔÂû Àü¿¡ È®ÀÎÇϽñ⠹ٶø´Ï´Ù

 

Áö¿ªºÐ¼®

ÁöÇÏö¸í Á÷¼±°Å¸®

Çб³¸í ÀüÈ­¹øÈ£ ÁÖ¼Ò Á÷¼±°Å¸®

¹ý¿ø

ÀÎõÁö¹æ¹ý¿ø (222-20)ÀÎõ±¤¿ª½Ã ¹ÌÃßȦ±¸ ¼Ò¼º·Î 163¹ø±æ 17(ÇÐÀ͵¿)
´ëÇ¥ : 032)860-1113~4
°üÇÒÁö¿ª : Áß±¸, µ¿±¸, ³²±¸, ¿¬¼ö±¸, ³²µ¿±¸, ºÎÆò±¸, °è¾ç±¸, ¼­±¸, ¿ËÁø±º, °­È­±º

µî±â¼Ò ÀÎõÁö¹æ¹ý¿ø º»¿ø µî±â±¹ (´ëÇ¥:1544-0773, ÆÑ½º:(032)620-9099, ÀÎõ±¤¿ª½Ã ¹ÌÃßȦ±¸ °æ¿ø´ë·Î 881(Á־ȵ¿ 983))
¼¼¹«¼­ ÀÎõ¼¼¹«¼­ (´ëÇ¥:032-770-02, ÆÑ½º:032-777-8104, ÀÎõ±¤¿ª½Ã µ¿±¸ ¿ì°¢·Î 75 (⿵µ¿))

Àαٳ«ÂûÅë°è

±â°£ ¸Å°¢°Ç¼ö Æò±Õ°¨Á¤°¡
Æò±Õ¸Å°¢°¡
¸Å°¢°¡À²
Æò±ÕÀ¯Âû¼ö
3°³¿ù 1°Ç 158,000,000¿ø
131,415,143¿ø
83%
1ȸ
6°³¿ù 3°Ç 206,666,667¿ø
155,978,377¿ø
76%
1.7ȸ
12°³¿ù 7°Ç 179,142,857¿ø
127,271,345¿ø
67%
2.6ȸ


º» °æ¸ÅÁ¤º¸´Â ¹ý¿øÀÚ·á¿Í ÀÏÄ¡Çϵµ·Ï ÇÏ¿´À¸³ª ±Ç¸®»çÇ׺¯µ¿, ÀÔ·ÂÂø¿À µîÀÇ ¿øÀÎÀ¸·Î »ç½Ç°ú ´Ù¸¦ ¼ö ÀÖ½À´Ï´Ù. ÀÌ¿ë¾à°ü¿¡ ÀǰЏéÃ¥Á¶°ÇÀ¸·Î Á¦°øµÊÀ» ¾Ë¸®¸ç, °æ¸ÅÀÔÂû½Ã ¹Ýµå½Ã °ü·Ã °øºÎ¸¦ ÀçÈ®ÀÎÇϽñ⠹ٶø´Ï´Ù. º¸´Ù Æí¸®ÇÑ °æ¸ÅÁ¤º¸ Á¦°øÀ» À§ÇØ Áö¼ÓÀûÀ¸·Î °³¼±ÇϰڽÀ´Ï´Ù. ÀÌ¿ëÇØ Áּż­ °¨»çÇÕ´Ï´Ù.